Home Lopende projecten Alle Panden Over ons Ons team Ons kantoor Onze werkwijze Contacteer ons Blog Cookies

laatste kans

Villa met prachtig bergzicht in residentie Airen

 Project: Airen: eco-vriendelijke luxe villa's in Llíber

Luxe Villa met Duurzaam Design en Groene Technologie

Korte beschrijving:

LUXE VILLA - 3 SLAAPKAMERS - TERRASSEN & TUIN - GROENE OMGEVING - LA VALL DE POP

Ontdek deze moderne villa, verdeeld over twee verdiepingen en gelegen in de rustige en groene omgeving van La Vall de Pop. De woning beschikt over 3 slaapkamers en 2 badkamers, met een lichtrijke leefruimte en open keuken op het gelijkvloers. De keuken is uitgerust met hoogwaardige Miele-toestellen en vormt samen met de woonkamer een aangename, open leefruimte met directe connectie naar buiten.

Op de bovenverdieping bevinden zich alle slaapkamers, waaronder de hoofdslaapkamer met badkamer-ensuite. Elke slaapkamer heeft toegang tot een balkon, wat zorgt voor extra licht en ventilatie. De woning biedt daarnaast praktische ruimtes zoals een berging, wasruimte en een carport. Buiten geniet je van een perceel van 468 m² met aangelegde tuin, terrassen en een privézwembad, ideaal om volledig tot rust te komen.

Deze villa is gelegen in La Vall de Pop, een authentieke en rustige vallei in het binnenland van de Costa Blanca. Hier woon je omringd door natuur, wijngaarden en bergen, terwijl charmante dorpen en de kust zich op korte afstand bevinden. Een ideale locatie voor wie rust, ruimte en levenskwaliteit centraal stelt.

U bent nog niet aangemeld!

Na invullen van onderstaande gegevens wordt u aangemeld, indien er nog geen account bestaat kan deze aangemaakt worden!



 Geef ons uw mening...

 Momenteel nog geen reviews voor dit pand.

Uitgebreide beschrijving:

Ontdek deze luxe villa gelegen in La Vall de Pop, een duurzame omgeving met focus op duurzaamheid en comfort. Deze villa is voorzien van 3 slaapkamers met 2 badkamers, en verdeeld over 2 verdiepingen. We nemen even een wandeling doorheen de woning. 

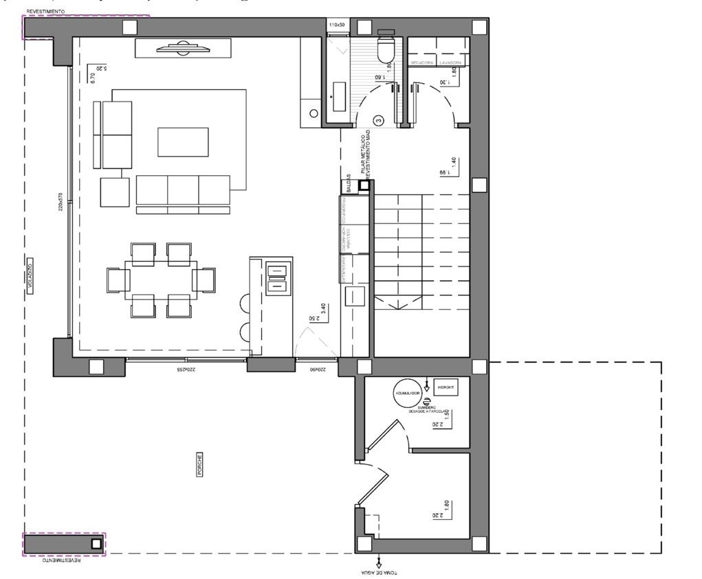
Op de begane vloer is de ruime leefruimte gelegen met open keuken. De keuken is voorzien van inbouwkasten en elektrische apparaten. De apparaten zijn voorzien van Miele toestellen, onder andere een oven, magnetron, kookplaat, koelkast, diepvriezer, ... Dankzij de openheid ben je bij het koken verbonden met de gasten die in de woonkamer zitten. 

Verder is er nog een gastentoilet gelegen met wastafel op de begane vloer. Er is ook een berging te vinden met aansluitingen voor de wasmachine en droogkast. 

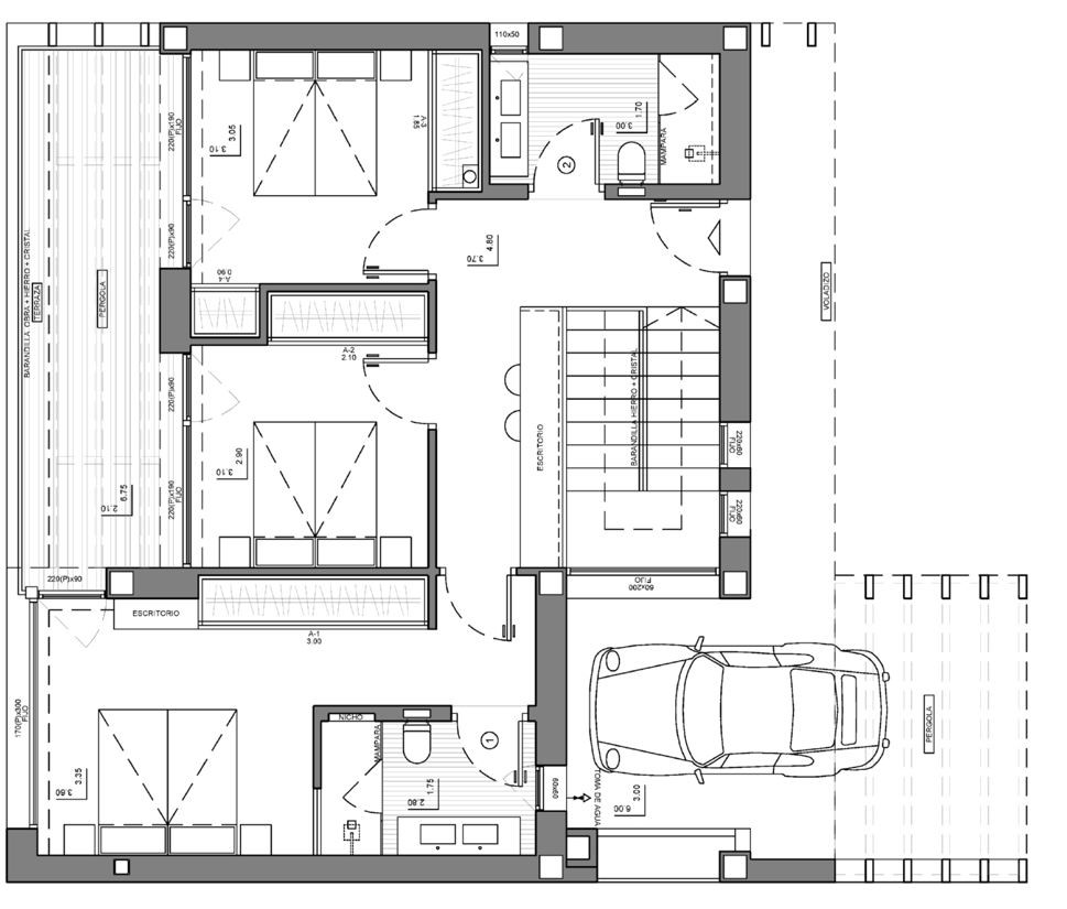
Een verdieping hoger, zijn alle slaapkamers gelegen. Er zijn 3 slaapkamers en 2 badkamers voorzien. De hoofdslaapkamer heeft een badkamer-ensuite, met dubbele wastafel, douche, toilet, ... Dit geeft het ultieme hotelgevoel. De slaapkamers zijn allen voorzien van inbouwkasten met hangrekken, legplanken en lades. 

Er zijn nog 2 slaapkamers die een badkamer delen. Elke slaapkamer heeft toegang tot het balkon, zo zijn de kamers altijd voorzien van verse lucht. 

Deze verdieping is gelegen op straatniveau, er is een carport voorzien voor 1 wagen. 

DUS CONCREET: 

  • 3 slaapkamers
  • 2 badkamers
  • Gastentoilet
  • Uitgeruste keuken met toestellen 
  • Afgewerkte badkamers
  • Uitzicht op groen
  • Berging / wasruimte
  • Technische berging
  • Buitenberging 

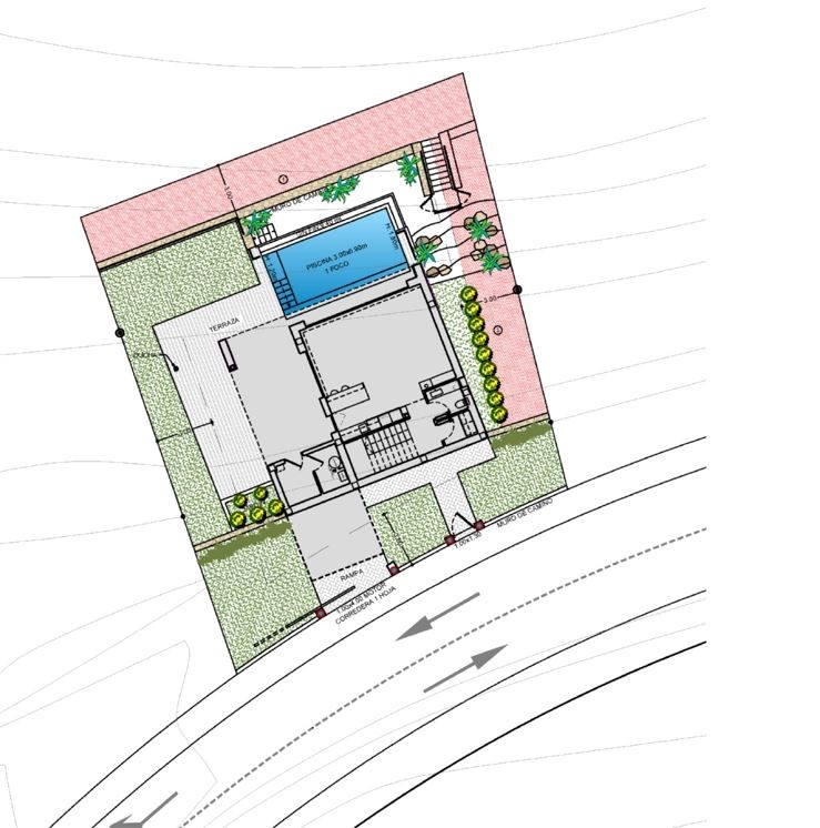
Deze woning is gelegen op een perceel van 468m², in de tuin is er een zwembad gelegen van 3 meter op 7 meter. Rondom de woning zijn er zowel aangelegde terrassen voorzien als groene zones. Ideaal om te ontspannen in een prachtige dag! 

Deze villa is gelegen in La Vall de Pop. La Vall de Pop is een prachtige vallei in het binnenland van de noordelijke Costa Blanca, gelegen tussen charmante dorpen zoals Lliber, Jalón (Xaló), Alcalalí en Parcent. De vallei staat bekend om haar wijngaarden, amandelbomen en glooiende landschappen, en biedt een uitzonderlijke rust die je zelden nog vindt aan de kust. Omringd door bergen en natuur ademt La Vall de Pop authenticiteit, ruimte en een typisch mediterraan binnenlandgevoel.

De dorpen in de vallei hebben elk hun eigen karakter, maar delen dezelfde warme, lokale sfeer. Smalle straatjes, pleinen, kleine cafés en traditionele restaurants vormen het hart van het dagelijkse leven. Vooral Jalón is bekend om zijn wekelijkse markt en lokale wijnproductie, waar bezoekers en bewoners samenkomen. Hier proef je het echte Spanje, met een sterk gemeenschapsgevoel en tradities die nog steeds actief beleefd worden.

De omgeving is ideaal voor liefhebbers van natuur en buitenleven. Wandel- en fietsroutes lopen door de vallei en langs de bergen, met prachtige uitzichten over wijngaarden en heuvels. In het voorjaar kleuren de amandelbomen de vallei wit en roze, wat zorgt voor een uniek en indrukwekkend landschap. Ondanks de rustige ligging liggen kustplaatsen zoals Moraira, Calpe en Jávea op korte rijafstand.

Wat veel mensen niet weten, is dat La Vall de Pop een van de belangrijkste wijnregio’s van de Costa Blanca is. De lokale moscatelwijnen zijn bekend in de hele regio en worden nog steeds op traditionele wijze geproduceerd. Bezoeken aan bodega’s en wijnroutes maken deel uit van het lokale leven en geven de vallei een extra dimensie.

Daarnaast heeft La Vall de Pop een bijzonder rustig en puur karakter. Door de ligging tussen de bergen en het ontbreken van massatoerisme geniet je hier van stilte, heldere lucht en een ontspannen levensritme. Vooral bij zonsopgang en zonsondergang komt de vallei volledig tot leven, met zachte kleuren en een serene sfeer die moeilijk te evenaren is.

AFSTANDEN: 

  • Centrum Jalón (Xaló): ±3 km
  • Restaurants & cafés: ±2–3 km
  • Supermarkt: ±3 km
  • Golfbanen: ±15–20 km
  • Moraira: ±15 km
  • Calpe: ±18 km
  • Jávea: ±20 km
  • Ziekenhuis Dénia: ±20 km
  • Luchthaven Alicante: ±90 km
  • Luchthaven Valencia: ±110 km

Onze visie binnen Casas Kimpencio;

  • Bij Casas Kimpencio ben je niet zomaar iemand, wij willen een persoonlijke relatie aangaan.
  • We behandelen jullie zoals we zelf behandeld willen worden, met de nodige betrokkenheid, precisie en details.
  • Geen enkele vraag is ons te veel, we staan elke dag telefonisch voor jou klaar.
  • Wij hebben de gedachte dat een huis kopen niet zomaar een huis kopen is, maar een nieuwe thuis kopen.
  • Iedereen dient een eigen verhaal te krijgen, met verschillende hoofdstukken. 
  • Wij willen helpen aan het Spaanse hoofdstuk, een hoofdstuk van een nieuwe thuis, vakantiewoning of een investering.
  • En dit doen we met open, duidelijke communicatie  en daarmee geraken we er altijd, zo vinden we jouw ideale woning gebaseerd op meerdere gesprekken.
  • We helpen vanaf het begin tot aan de sleuteloverdracht, en ver daarbuiten. 

Wij vinden deze woning bijzonder omdat

  • Moderne villa verdeeld over 2 verdiepingen in een duurzame en groene omgeving, waar rust en comfort centraal staan
  • Lichtrijke leefruimte met open keuken en Miele-toestellen, perfect voor wie houdt van kwaliteit en openheid
  • Naadloze verbinding tussen keuken, eetruimte en woonkamer, ideaal om gasten te ontvangen
  • Drie slaapkamers op de bovenverdieping, allemaal met toegang tot een balkon voor extra licht en ventilatie
  • Master bedroom met en-suite badkamer en dubbele wastafel, een comfortabele en private ruimte
  • Twee extra slaapkamers met gedeelde badkamer, praktisch voor gezin of gasten
  • Perceel van 468 m² met aangelegde tuin en zwembad van 3 x 7 meter, ideaal om te genieten van het buitenleven
  • Combinatie van terrassen en groene zones rondom de woning, waardoor je altijd een plek vindt in zon of schaduw
  • Carport en technische bergingen voorzien, praktisch en functioneel in het dagelijks gebruik
  • Gastentoilet en aparte wasruimte, extra comfort en gebruiksgemak
  • Gelegen in La Vall de Pop, een unieke vallei gekend om wijngaarden, natuur en rust
  • Dichtbij charmante dorpen en toch op korte afstand van de kust, waardoor je het beste van beide werelden combineert

WONINGEN IN RESIDENTIE AIREN:

Type woning  Aantal slaapkamers / badkamers Bewoonbare oppervlakte  Perceel in m² Prijs 
Tipo B 3/2 165m² 470m² €977.000
Tipo A 3/2 165m² 470m² €990.000

GROEI EN TRENDS IN LA VALL DE POP: 

Jaar  Prijs per m² Jaarlijkse stijging 
2023 €2.200 -
2024 €2.420 +10%
2025 €2.650 +9.5%


Kenmerken:

Aantal slaapkamers 3
Aantal badkamers 2
Privaat zwembad Ja
Terras Ja
Bebouwde oppervlakte 432.76 m²
Oppervlakte perceel rond het huis 430.76 m²
Bewoonbare oppervlakte 291 m²
Terras oppervlakte 88.65+38.85 m²
Vloerverwarming badkamer Ja
Douche schermen Ja
Nabij bushalte Ja
Solarium Ja
Volledige airco installatie Ja
Led verlichting buiten Ja
Led verlichting binnen Ja
privé parkeerplaats Ja
Telefoon Data aansluiting Ja
Videofonie Ja
Inbouwkasten Ja
Aero thermische warmtepomp Ja
Elektrische poort Ja
Elektrisch laadpunt Ja
Badkamer spiegels Ja
Alle keuken apparatuur volledig inbegrepen Ja
Sportvelden Ja
Petanque Ja
Padel Terrein Ja
Nabij kinder speeltuin Ja
Nabij Scholen Ja
Buiten fitness Ja
Fitness ruimte Ja
Berging Ja
Gedeelde tuin Ja
Private Tuin Ja
Alarmsysteem Ja
Domotica Ja
Oriëntatie Zuid
Golfresort afstand in km 5-10 km
Ziekenhuis afstand in km 10-20 km
Luchthaven Alicante afstand 50+ km
Uitzicht tuin Ja
Uitzicht bergen Ja
Ontspanning ruimte buiten Ja
Ontspanning ruimte binnen Ja
Hangend toilet Ja
Hangend badkamer meubel Ja
Zonnepanelen Ja
Uitzicht op het zwembad Ja
Spa center Ja
Security glas met uv filter Ja
Security 24/24 Ja
Volledig ingerichte keuken Ja
Gepantserde toegangsdeur met veiligheidsslot Ja
Kunstgras Ja
Bioklimatologische pergola Ja
Kranen met waterbesparing Ja
Grote ramen van vloer tot plafond Ja
Hoogwaardige afwerking Ja
Goede prijs-kwaliteit verhouding Ja
Aerothermische boiler Ja
Hoge plafonds Ja
Meubelpakket Optioneel
Gelijkvloers Ja
Gelijkvloers met tuin Ja
Villa bouwen op maat Ja
Luxe nieuwbouw Ja
Dressing Ja
Extra grote ramen uitkijkend op tuin en zwembad Ja
Aangelegde tuin met grind, gras en planten. Ja
Kijkwoning Ja
Goed gebied voor rentabiliteit van huur Ja
Volledige vloerverwarming Ja
Automatische irrigatie in de tuin. Ja
Fietsberging Ja
Social club Ja
Energielabel AA
Afgewerkte badkamer Ja
Gesloten urbanisatie Ja
Bouwtermijn na contract 12 maand Ja

Meer info?


Beschikbare documenten

eerste verdieping.jpeg

document-eerste verdieping.jpeg

download
gelijkvloers.jpeg

document-gelijkvloers.jpeg

download
perceel.jpeg

document-perceel.jpeg

download

Ontdek wat we nog meer voor jou in petto hebben!

Villa met prachtig bergzicht in residentie Airen
Villa met prachtig bergzicht in residentie Airen

Project: Airen: eco-vriendelijke luxe villa's in Llíber

Stad: Llíber

3   2     432.76 m²    

Villa Bianca luxe wonen met zeezicht in Cumbre
Villa Bianca luxe wonen met zeezicht in Cumbre

Project: Magnolias Design in Cumbres Del Sol Benitachell

Stad: Benitachell- Alicante

3   3     160 m²  

Luxe villa met zeezicht op ruim perceel - Horizont
Luxe villa met zeezicht op ruim perceel - Horizont

Project: Residentie Jazmines in Cumbre del Sol: luxe villas

Stad: Cumbre Del Sol

3   3    

Luxevilla met zeezicht Campana Garden Finestrat
Luxevilla met zeezicht Campana Garden Finestrat

Project: Sunny Hills Resort villa: Luxe wonen in Finestrat

Stad: Finestrat-Benidorm

3   3     224 m²   100 m²  

Luxe villa met zeezicht - model Alba
Luxe villa met zeezicht - model Alba

Project: Azure Altea Homes II - Luxe villa met zeezicht

Stad: Altea

4   5     484 m²  

Halfvrijstaande villa in residentie Sea Views 6
Halfvrijstaande villa in residentie Sea Views 6

Project: Residentie Sea View 6: Luxe woningen nabij de zee

Stad: Finestrat-Benidorm

3   3     143 m²  

Duplex woning in residentie Montecala Gardens
Duplex woning in residentie Montecala Gardens

Project: Residentie Montecala Gardens in Benitachell

Stad: Benitachell- Alicante

2   2   18 m²  

Nieuwbouw penthouse in Calpe
Nieuwbouw penthouse in Calpe

Project: SEAWAY Tower luxe appartementen en penthouse

Stad: Calpe-Costa-Blanca

3   2     90 m²   31 m²  

Appartement met terras in Alonis - derde fase
Appartement met terras in Alonis - derde fase

Project: Residentie Alonis in Villajoyosa - derde fase

Stad: Villajoyosa-Benidorm

2   2   110 m²   23 m²  

Luxe villa met tuin en zwembad in Moraira
Luxe villa met tuin en zwembad in Moraira

Project: Luxe villa met tuin en zwembad in Moraira

Stad: Moraira Teulada

4   4     360 m²   140 m²  

Fanadix luxe villa met zwembad in Moraira
Fanadix luxe villa met zwembad in Moraira

Project: Luxe villa bij Moraira; met zwembad en zeezicht!

Stad: Moraira Teulada

4   4     510 m²   205 m²  

Villa Petra Altea Hills
Villa Petra Altea Hills

Project: VILLA PETRA luxe in Altea Hills

Stad: Altea Hills

4   4     600 m²   156 m²  

Lees geamuseerd onze nieuwtjes mee...

Bouwvergunning voor toeristische appartementen
Bouwvergunning voor toeristische appartementen

Benidorm zet een grote stap vooruit met de komst van 38 nieuwe toeristische appartementen. Dit ambitieuze project van Alibuilding versterkt het moderne karakter van Poniente en creëert nieuwe kansen voor bewoners, investeerders en bezoekers.

...

Martine

Vooruitgang Corredor Mediterráneo in Spanje
Vooruitgang Corredor Mediterráneo in Spanje

De Corredor Mediterráneo wint eindelijk aan snelheid. Steeds meer trajecten worden afgerond en dat versterkt de verbinding tussen de Spaanse oostkust en Europa.

...

Martine

Ontdek de juiste olie voor elke Spaanse keuken
Ontdek de juiste olie voor elke Spaanse keuken

Spanje staat bekend om zijn rijke variatie aan oliën, van extra vierge olijfolie tot zonnebloem- en amandelolie.

Elke olie heeft unieke eigenschappen en toepassingen in de keuken én voor de gezondheid.

In deze reeks nemen we je mee langs de populairste Spaanse oliën en helpen we ...

Martine

square-box
Tine
Vragen over panden, projecten en onze content
Snel starten:

Hallo, ik ben Tine je kan bij mij terecht met al je vragen over panden, projecten en onze content. Ik antwoord alleen op basis van de beschikbare website-inhoud.