Bungalow op de bovenste verdieping in Torrevieja
Project: Residentie Nature views 2
Nieuwe fase van Nature Views nabij zoutmeren!
Korte beschrijving:
BUNGALOW – 2 SLAAPKAMERS – 2 BADKAMERS – TERRAS EN SOLARIUM – GEMEENSCHAPPELIJK ZWEMBAD
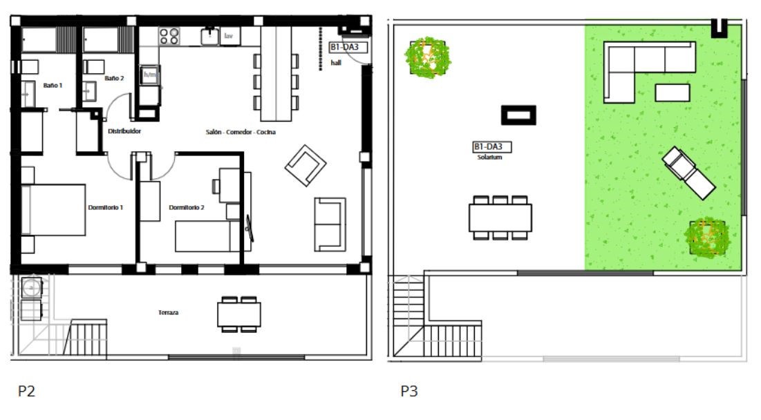
Deze moderne bungalow in Torrevieja is verdeeld over twee verdiepingen en biedt twee ruime slaapkamers met elk een eigen badkamer. De onderste verdieping is slim ingericht met een ruime woonkamer én open keuken. Elke slaapkamer en de woonkamer heeft toegang tot het terras via grote schuiframen.
De woning beschikt over een ruim terras van 20m² + een solarium van 74m² en maakt deel uit van een residentie met uitstekende gemeenschappelijke voorzieningen, waaronder een zwembad, kinderzwembad, fitnessruimte en groene zones. Dankzij de moderne afwerking, het hoge comfortniveau en de ligging nabij zee is dit een ideale plek voor wie op zoek is naar ontspanning en kwaliteit aan de Costa Blanca.
U bent nog niet aangemeld!
 Geef ons uw mening...
Vanaf: €310.000
Ref: KIMP-PROP-4178
Uitgebreide beschrijving:
Deze woning is gelegen op de bovenste verdieping en is voorzien van 2 verdiepingen. De bungalow heeft maar liefst 2 ruime slaapkamers met elk een eigen badkamer. Op de onderste verdieping van de bungalow, zijn alle leefruimtes gelegen.
Er is een ruime leefruimte gelegen met open L-vormige keuken. De keuken is uitgerust met een keramische kookplaat, dampkap, oven, microgolf, koelkast en diepvriezer én een vaatwasser. Kortom alles wat je nodig hebt om meteen zorgeloos in te trekken!
Er zijn 2 slaapkamers met 2 badkamers gelegen op deze verdieping. De hoofdslaapkamer heeft een badkamer-ensuite én een inloopdressing. De andere slaapkamer is voorzien van inbouwkasten met hangrekken, legplanken en lades.
Elke badkamer is uitgerust met een wastafel en bijpassend meubel, toilet én afgewerkte douche. Elke woning heeft een eigen parkeerplaats.
Dus concreet;
- 2 slaapkamers
- 2 badkamers
- Uitgeruste keuken
- Afgewerkte badkamers
De woning heeft 2 buitenruimtes. Aansluitend aan de woonkamer én beide slaapkamers is er een ruim terras gelegen van maar liefst 20m². Op dit balkon is er ruimte gelegen voor wasmachine én droogkast. Hier kan je optimaal genieten van de Spaanse zon. Via een buitentrap bereik je het solarium van 74m². Hier kan je de hele dag genieten van de zon, met de meest prachtige zichten over de zoutmeren.
De woning is in een residentie gelegen. De residentie is voorzien van tal van gemeenschappelijke voorzieningen zoals; fietsenparking, groene landschappen met irrigatiesysteem, fitness, zwembad met kinderzwembad, WiFi, ... Tal van voordelen dus! Er is zelfs gedacht aan brievenbussen voor alle bewoners!
Technische kenmerken;
- Energielabel B
- Keramische tegels in de badkamers
- Veiligheidsdeur
- Elektrische rolluiken
- Dubbele beglazing
- Sanitair warm water via warmtepomp, boilet heeft een capaciteit van 110 liter
- Pré-installatie laadpunt voor elektrische wagen
- Alarmsysteem, optioneel met bediening via smartphone
- Volledige airconditioning én verwarming
- LED-verlichting binnen én buiten
Deze woning is gelegen in Torrevieja. Torrevieja, gelegen aan de zuidelijke Costa Blanca, is een levendige stad die zon, zee en cultuur op een natuurlijke manier samenbrengt. De kustlijn is hier veelzijdig: van brede zandstranden met alle voorzieningen tot kleine, intieme baaien waar je in alle rust kunt genieten van het zachte ruisen van de Middellandse Zee. Met een woning op slechts enkele meters van het strand ervaar je het echte mediterrane leven — de geur van zout in de lucht, het geluid van golven op de achtergrond en het gemak van een ochtendduik of een avondwandeling langs de zee.
De stad staat bekend om haar twee zoutmeren, Las Salinas de Torrevieja y La Mata, die de omgeving een uniek karakter geven. Deze roze gekleurde lagunes trekken flamingo’s en andere vogels aan en zorgen voor een microklimaat dat de lucht zuiver en gezond houdt. Rondom de meren liggen wandel- en fietspaden die uitnodigen om de natuur van dichtbij te beleven. De combinatie van zee, zoutmeren en zon maakt Torrevieja niet alleen mooi om te zien, maar ook bijzonder aangenaam om in te verblijven.
Het centrum van Torrevieja bruist van leven. De haven, de boulevard en de markten vormen het hart van de stad, waar lokale bewoners en bezoekers elkaar ontmoeten. Restaurants serveren dagverse vis, tapas en internationale gerechten, terwijl cafés en boetieks zorgen voor een levendige, maar ontspannen sfeer. Gedurende het jaar zijn er talloze culturele evenementen, waaronder het bekende Habaneras-festival, dat de maritieme geschiedenis van de stad in ere houdt.
Wat veel mensen niet weten, is dat Torrevieja nog steeds een sterke band heeft met haar visserijverleden. In de vroege ochtend keren de vissersboten terug naar de haven en wordt de vangst van de dag direct verkocht aan lokale restaurants. Het is een ritueel dat het authentieke karakter van de stad bewaart, ver weg van het toeristische beeld dat velen kennen.
Daarnaast liggen er rondom Torrevieja kleine, verborgen baaien die alleen bij de lokale bevolking bekend zijn. Deze rustige plekken met helder water zijn ideaal om te snorkelen of gewoon even te ontsnappen aan de drukte van de boulevard. Hier ervaar je de meer stille, pure kant van Torrevieja — een stad die, ondanks haar populariteit, nog steeds ruimte biedt voor rust, natuur en eenvoud aan zee.
Afstanden;
- Strand: 4km
- Luchthaven Alicante: 55km
- Luchthaven Murcia: 65km
- Golfbaan Villamartin: 9km
- Jachthaven Torrevieja: 5km
Onze visie binnen Casas Kimpencio;
- Bij Casas Kimpencio ben je niet zomaar iemand, wij willen een persoonlijke relatie aangaan.
- We behandelen jullie zoals we zelf behandeld willen worden, met de nodige betrokkenheid, precisie en details.
- Geen enkele vraag is ons te veel, we staan elke dag telefonisch voor jou klaar.
- Wij hebben de gedachte dat een huis kopen niet zomaar een huis kopen is, maar een nieuwe thuis kopen.
- Iedereen dient een eigen verhaal te krijgen, met verschillende hoofdstukken.
- Wij willen helpen aan het Spaanse hoofdstuk, een hoofdstuk van een nieuwe thuis, vakantiewoning of een investering.
- En dit doen we met open, duidelijke communicatie en daarmee geraken we er altijd, zo vinden we jouw ideale woning gebaseerd op meerdere gesprekken.
- We helpen vanaf het begin tot aan de sleuteloverdracht, en ver daarbuiten.
Wij vinden deze woning bijzonder omdat;
De ruime leefruimte met open keuken een moderne en lichtrijke sfeer creëert, volledig uitgerust met toestellen zodat je meteen zorgeloos kunt intrekken.
-
Elke slaapkamer heeft een eigen badkamer, volledig afgewerkt met douche, wastafel, meubel en toilet, wat zorgt voor extra comfort en privacy.
-
De hoofdslaapkamer beschikt over een inloopdressing met praktische indeling van lades, legplanken en hangrekken.
-
Er is een extra gastentoilet aanwezig, wat het wooncomfort vergroot.
-
Grote schuiframen zorgen voor overvloedig daglicht en een natuurlijke overgang tussen binnen- en buitenruimte.
-
De woning beschikt over een praktische wasruimte met wasmachine en droger, ideaal voor dagelijks gebruik.
-
De residentie biedt uitzonderlijke voorzieningen zoals een zwembad, fitnessruimte, kinderzwembad, fietsenstalling en groene zones.
-
De ligging in Torrevieja combineert zon, zee en stadse gezelligheid met natuur en ontspanning
Woningen in Nature Views 2;
Type woning | Aantal slaapkamers / badkamers | Terras in m² | Bebouwde oppervlakte | Prijs |
Bungalow op onderste verdieping | 3/3 | 28m² | 110m² | €330.000 |
Bungalow op bovenste verdieping | 2/2 | 94m² | 78m² | €310.000 |
Groei en trends in Torrevieja;
Jaar | Prijs per m² | Jaarlijkse stijging |
2023 | €1.633 | - |
2024 | €1.979 | +21.2% |
2025 | €2.079 | +5% |
Kenmerken:
Aantal slaapkamers | 2 | |
Aantal badkamers | 2 | |
Bebouwde oppervlakte | 78 m² | |
Bewoonbare oppervlakte | 70 m² | |
Afstand naar het strand | 4 km | |
Terras oppervlakte | 20 m² | |
Gedeeld zwembad | Ja | |
Poort | Ja | |
Nabij Scholen | Ja | |
Nabij Commercieel centrum | Ja | |
Nabij bushalte | Ja | |
Terras | Ja | |
Fietsafstand van het strand | Ja | |
Douche schermen | Ja | |
Solarium | Ja | |
Solarium oppervlakte in m2 | 70-80 m² | |
Volledige airco installatie | Ja | |
Elektrische rolluiken | Ja | |
Led verlichting buiten | Ja | |
Led verlichting binnen | Ja | |
privé parkeerplaats | Ja | |
Telefoon Data aansluiting | Ja | |
Videofonie | Ja | |
Inbouwkasten | Ja | |
Ingebouwde kasten met LED-licht | Ja | |
Pre installatie elektrisch laadpunt | Ja | |
Alle keuken apparatuur volledig inbegrepen | Ja | |
Kookplaat Dampkap Magnetron & Oven | Ja | |
Nabij kinder speeltuin | Ja | |
Alarmsysteem | Ja | |
Golfresort afstand in km | 5-10 km | |
Ziekenhuis afstand in km | 0-5 km | |
Luchthaven Alicante afstand | 50+ km | |
Luchthaven Murcia afstand | 50+ km | |
Gedeelde kosten | Ja | |
Ontspanning ruimte buiten | Ja | |
Hangend toilet | Ja | |
Hangend badkamer meubel | Ja | |
Cameradeur met intercom terminal | Ja | |
Badkamer meubel en spiegels | Ja | |
Security 24/24 | Ja | |
Volledig ingerichte keuken | Ja | |
Dampkap | Ja | |
Gepantserde toegangsdeur met veiligheidsslot | Ja | |
Hoogwaardige afwerking | Ja | |
Goede prijs-kwaliteit verhouding | Ja | |
Aerothermische boiler | Ja | |
Bungalow | Ja | |
Dressing | Ja | |
Aangelegde tuin met grind, gras en planten. | Ja | |
Kijkwoning | Ja | |
Goed gebied voor rentabiliteit van huur | Ja | |
Automatische irrigatie in de tuin. | Ja | |
Fietsberging | Ja | |
Energielabel | B | |
Afgewerkte badkamer | Ja | |
Gesloten urbanisatie | Ja |
Meer info?
Beschikbare documenten
Ontdek wat we nog meer voor jou in petto hebben!

Appartement met solarium in residentie Lolm
Project: Residentie Lolm in Hondon de las Nieves
Stad: Hondón de las Nieves
2   1   71.8 m²  

Hacienda San Julian-Lorca
Project: Skandinavia IV
Stad: Torrevieja-Alicante
3   2     82 m²   82 m²  

Bigastro geschakelde woning met 4 slaapkamers
Project: Adosados Los Palacios Bigastro
Stad: Bigastro
4   3     177 m²   50 m²  

Duplex en Fortuna (murcia)
Project: Duplex en Fortuna (murcia)
Stad: Fortuna
3   2     164 m²   73 m²  

Miramar penthouse in Orihuela Costa
Project: Miramar Orihuela Costa
Stad: Orihuela Costa-Alicante
2   2     93 m²   8 m²  

Nieuwbouw villa 2 slpk in The Wind Mill Spanje
Project: Nieuwbouw in La Pinilla: The Wind Mill Spanje
Stad: La Pinilla
2   2     70 m²   53 m²  

Appartementen in het centrum van San Miguel
Project: SALINAS VIEWS: appartementen in het centrum
Stad: San Miguel de salinas
3   2     102 m²   7 m²  

Penthouse Riomar Healthy Living
Project: Assistentie appartementen Riomar Healthy Living
Stad: Torre De La Horodada
1   1   96 m²   44 m²  

Puerta de Oriente-Vera Playa
Project: Puerta de Oriente-Vera Playa
Stad: Vera- regio Costa Almeria Andalusië
2   2     71 m²   45 m²  

Penthouse van met 2 slpk en terras van 108 m²
Project: Sol y Vida appartementen- Torre-pacheco
Stad: Torre-Pacheco - Murcia
3   2     107 m²   108 m²  

Sun and City
Project: Sun and City
Stad: Torrevieja-Alicante
2   2     77 m²   10 m²  

Boutique project met slechts 7 unieke woningen
Project: Moderne appartementen nabij Torrevieja & strand
Stad: Pilar de la Horadada - Alicante
3   2     96 m²   45 m²  
Lees mee met onze nieuwste blogs!

Torrevieja: topkeuze voor Belgen en Nederlanders
Waarom zoveel Belgen en Nederlanders kiezen voor een woning in Torrevieja
De favoriete kustplaats aan de Costa Blanca Zuid
Torrevieja, gelegen aan de prachtige Costa Blanca, is al jarenlang een van de populairste bestemmingen voor Belgische en Nederlandse woningkopers. En dat is niet ...
Martine

De topredenen om een huis te kopen in Torrevieja
Ontdek Torrevieja: Jouw droomhuis aan de Costa Blanca Torrevieja, gelegen aan de zonovergoten Costa Blanca, combineert prachtig weer, adembenemende stranden en betaalbare woningen met een rijke cultuur en een bloeiende internationale gemeenschap.
Of je nu op zoek bent naar een vakantiehuis...
Martine