Home Lopende projecten Alle Panden Over ons Ons team Ons kantoor Onze werkwijze Contacteer ons Blog Cookies

verkocht

Luxe villa in Finestrat; zeezicht en privé zwembad!

 Project: Camporrosso Stone Valley-Finistrat appartementen

NIEUW GEBOUWDE LUXE VILLA IN FINESTRAT MET UITZICHT OP ZEE

Korte beschrijving:

Stel je voor: een gloednieuwe luxe villa, majestueus gelegen in Finestrat, met adembenemend uitzicht op de zee. Deze prachtige woning beschikt over 3 weelderige slaapkamers en 4 verfijnde badkamers. Geniet van een open keuken met een gezellige zithoek, een betoverend terras met een privé zwembad, en een panoramisch uitzicht dat de skyline van Benidorm omarmt. Onder de grond bevindt zich een ruime kelder, perfect voor een dubbele garage. Dit is echt leven in luxe, omringd door de pracht van de Costa Blanca.

U bent nog niet aangemeld!

Na invullen van onderstaande gegevens wordt u aangemeld, indien er nog geen account bestaat kan deze aangemaakt worden!



 Geef ons uw mening...

 Momenteel nog geen reviews voor dit pand.

Uitgebreide beschrijving:

Welkom in het gloednieuwe residentiële complex in Finestrat, waar het adembenemende uitzicht op de zee je elke dag begroet!

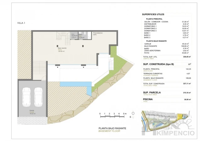
Stel je voor: ontwaken in het Finstrat, omringd door luxe en comfort. Deze prachtige woning biedt niet alleen 3 royale slaapkamers en 4 verfijnde badkamers, maar ook een weelderig perceel van 522m² om te verkennen. Stap naar buiten en laat je verrassen door de weidse 330m² aan buitenruimte, waar elk moment een nieuw avontuur kan zijn. Met een extra 60m² aan terrasruimte en een prachtig zwembad is er altijd een plek om te ontspannen en te genieten van de adembenemende vergezichten. En dat is nog niet alles - met een bebouwde oppervlakte van 422m², inclusief een dubbele garage, is er ruimte in overvloed voor al je dromen en ambities. En het beste van alles? Een betoverend uitzicht op de iconische skyline van Benidorm, elke dag weer. Met luxe afwerkingen, ruime kamers en terrassen, uitgestrekte gemeenschappelijke ruimtes en adembenemend uitzicht, zal dit complex ongetwijfeld een van de meest gewilde bestemmingen in de omgeving worden.Dit is niet zomaar een huis - dit is een levensstijl.

Het prachtige complex rondom de villa is perfect gelegen, met een kleine vallei in het midden die een natuurlijke schoonheid toevoegt aan de omgeving.

Aan weerszijden van de vallei staan imposante flatgebouwen die op majestueuze wijze naar de zee en het zuiden gericht zijn, met ruime terrassen die het leven naar buiten brengen.

In deze woonwijk vind je een scala aan woningen om uit te kiezen. Van begane grond appartementen met 3 duplex slaapkamers en een terras op de begane grond tot penthouses met 2/3 slaapkamers, grote privéterrassen en een solarium. Elk huis biedt een prachtig uitzicht op de zee en de skyline van Benidorm.

De terrasstructuur van het complex is een waar kunstwerk, met terrassen die trapsgewijs afdalen naar de vallei, omlijst door majestueuze muren van cyclopische steen en klassiek metselwerk, geaccentueerd met natuursteen. Dit creëert een unieke en tijdloze uitstraling die al duizenden jaren de tand des tijds heeft doorstaan. Elk terrasniveau heeft zijn eigen unieke charme. Van de hoogste terrassen met zwembaden en uitzichtpunten tot de lagere terrassen met weelderige vegetatie en wandelpaden om te mediteren en te genieten van de natuur.

Benidorm en zijn prachtige stranden liggen op slechts 3 km afstand, waardoor alle recreatieve mogelijkheden binnen handbereik liggen.

Op slechts een steenworp afstand van de prachtige stranden van Levante, Poniente en Cala de Finestrat, vind je meer dan 6 km aan kustlijn die behoren tot de beste van Europa, bekroond met de prestigieuze Blauwe vlaggen door de Europese Unie. Hier kun je genieten van het kristalheldere water en de gouden zandstranden die deze regio zo geliefd maken.

Alle recreatieve voorzieningen die je je maar kunt wensen zijn binnen handbereik, waaronder de beroemde themaparken Aqua Natura, Terra Mítica, Terra Natura, Aqualandia en Mundomar.

Voor golfliefhebbers zijn er de prachtige Sierra Cortina en Villaitana golfbanen, terwijl wandelaars en klimmers de uitdagende paden van Puig Campana kunnen verkennen, omringd door een ongeëvenaarde natuurlijke omgeving.

Met een afstand van slechts 4 km tot de zee, 26 km tot de luchthaven en 1 km tot de dichtstbijzijnde golfbaan, biedt deze locatie het beste van beide werelden: de rust van de kust en de nabijheid van alle voorzieningen die je nodig hebt voor een fantastische levensstijl aan de Costa Blanca.



Kenmerken:

Aantal slaapkamers 3
Aantal badkamers 4
Privaat zwembad Ja
Oppervlakte perceel rond het huis 422 m²
Bebouwde oppervlakte 522 m²
Bewoonbare oppervlakte 330 m²
Afstand naar het strand 3 km
Terras oppervlakte 60 m²
Private Tuin Ja
Poort Ja
Nabij Scholen Ja
Nabij Commercieel centrum Ja
Terras Ja
Vloerverwarming badkamer Ja
Douche schermen Ja
Verwarmd zwembad Ja
Buitenkeuken Ja
Nabij bushalte Ja
Volledige airco installatie Ja
Elektrische rolluiken Ja
Led verlichting buiten Ja
Led verlichting binnen Ja
Zeezicht Ja
privé parkeerplaats Ja
Ondergrondse parking Ja
Garage Ja
Telefoon Data aansluiting Ja
Videofonie Ja
Inbouwkasten Ja
Wijn frigo Ja
Aero thermische warmtepomp Ja
Elektrische poort Ja
Elektrisch laadpunt Ja
Badkamer spiegels Ja
Alle keuken apparatuur volledig inbegrepen Ja
Barbecue Ja
Berging Ja
Kelder Ja
Alarmsysteem Ja
Oriëntatie Zuid
Golfresort afstand in km 5-10 km
Ziekenhuis afstand in km 5-10 km
Luchthaven Alicante afstand 40-50 km
Uitzicht tuin Ja
Uitzicht bergen Ja
Ontspanning ruimte buiten Ja
Ontspanning ruimte binnen Ja
Hangend toilet Ja
Hangend badkamer meubel Ja
Uitzicht op het zwembad Ja
Security glas met uv filter Ja
Volledig ingerichte keuken Ja
Gepantserde toegangsdeur met veiligheidsslot Ja
Kunstgras Ja
Kranen met waterbesparing Ja
Grote ramen van vloer tot plafond Ja
Hoogwaardige afwerking Ja
Elektrische handdoekverwarmer Ja
Aerothermische boiler Ja
Gelijkvloers Ja
Gelijkvloers met tuin Ja
Luxe nieuwbouw Ja
Dressing Ja
Extra grote ramen uitkijkend op tuin en zwembad Ja
Aangelegde tuin met grind, gras en planten. Ja
e-bike oplaadstation Ja
Kijkwoning Ja
Goed gebied voor rentabiliteit van huur Ja
Automatische irrigatie in de tuin. Ja
Dubbele garage Ja
Extra verdieping ondergronds (basement) Ja
Fietsberging Ja

Meer info?


Beschikbare documenten

property-755-19-pic.webp

document-property-755-19-pic.webp

download
property-755-18-pic.webp

document-property-755-18-pic.webp

download

Ontdek wat we nog te bieden hebben in Finistrat!

Luxevilla met zeezicht Campana Garden Finestrat
Luxevilla met zeezicht Campana Garden Finestrat

Project: Sunny Hills Resort villa: Luxe wonen in Finestrat

Stad: Finestrat-Benidorm

3   3     224 m²   100 m²  

Halfvrijstaande villa in residentie Sea Views 6
Halfvrijstaande villa in residentie Sea Views 6

Project: Residentie Sea View 6: Luxe woningen nabij de zee

Stad: Finestrat-Benidorm

3   3     143 m²  

Vrijstaande villa in Finestrat, Bahia Golf
Vrijstaande villa in Finestrat, Bahia Golf

Project: Residentie El Duque Villas in Finestrat

Stad: Finestrat-Benidorm

4   4     249 m²   89 m²  

Finestrat Paradise Resort: jouw droom aan de Costa
Finestrat Paradise Resort: jouw droom aan de Costa

Project: Paradise resort , Luxe woningen in Finestrat!

Stad: Finestrat-Benidorm

2   2     80 m²   30 m²  

Gelijkvloers appartement in My White Resort
Gelijkvloers appartement in My White Resort

Project: My White Resort Exclusief & veelbelovend!

Stad: Finestrat-Benidorm

2   2   66 m²   21 m²  

NATURE: woning in Balcón De Finestrat
NATURE: woning in Balcón De Finestrat

Project: NATURE Moderne woningen in Balcón de Finestrat

Stad: Finestrat-Benidorm

3   2   176 m²   37 m²  

square-box
Tine
Vragen over panden, projecten en onze content
Snel starten:

Hallo, ik ben Tine je kan bij mij terecht met al je vragen over panden, projecten en onze content. Ik antwoord alleen op basis van de beschikbare website-inhoud.