Home Lopende projecten Alle Panden Over ons Ons team Ons kantoor Onze werkwijze Contacteer ons Blog Cookies

Cumbre Del Sol

 Project: Residencial Plus Jazmines

Sea view villa with private pool in Cumbres del Sol Benitac

Korte beschrijving:

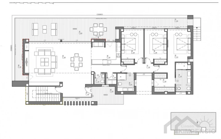
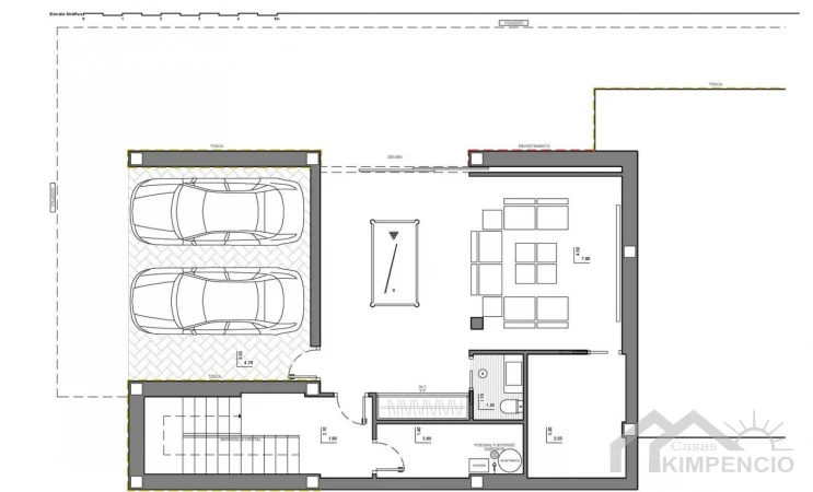
LUXE VILLA IN CUMBRES DEL SOL Villa verdeeld over drie niveaus, het resultaat van een uniek en exclusief ontwerp, met ruime, open en lichte ruimtes, waarin alle kamers zijn gericht op de Middellandse Zee, om optimaal te genieten van het prachtige uitzicht. Het huis is toegankelijk via de bovenste verdieping waar we 5 van de 6 slaapkamers van dit huis vinden. De hoofdslaapkamer heeft een grote kleedkamer en een en-suite badkamer met een douche en bad met uitzicht op zee. De overige 4 slaapkamers op deze verdieping hebben ook een en-suite badkamer met een douche en een kledingkast. Alle slaapkamers hebben directe toegang tot het terras en delen ook een gemeenschappelijke ruimte die is ontworpen om televisie te kijken. De trap brengt ons naar de begane grond van dit huis, het daggedeelte, het heeft een grote woon-eetkamer, een keuken met een eiland en een eetkamer, een bijkeuken, een wasruimte, een kamer met een en-suite badkamer voor het bedienend personeel, een gratis toilet en parkeerplaats voor 3 voertuigen. Naast een groot terras, ideaal om te ontspannen, genietend van het eindeloze zwembad met een 60 meter lange waterspiegel en de ruime veranda met een eetkamer gedurende de dag en een ontspanningsruimte van waaruit u kunt blijven nadenken over het sensationele uitzicht op de zee. Dit fantastische pand wordt gecompleteerd door een doorschijnende oppervlakte van meer dan 100m2, gelegen op de begane grond, waarvan het gebruik zal afhangen van de behoeften van de eigenaar. De villa heeft: Privé en omheind perceel, tuin, Zwembad, Parkeren, Decoratieproject met technische verlichting, Vloerverwarming, Pre-installatie Luchtkanalen airconditioning, Keuken voorzien van inbouwapparatuur: Gecombineerde inbouwkoelkast, Zelfstandige multifunctionele oven met timer, Zelfstandige Touchcontrol keramische kookplaat, Sierafzuigkap, Vrijstaande magnetron Huisvesting die geniet van alle diensten die een geconsolideerde urbanisatie zoals Cumbre del Sol tot uw beschikking stelt, die een commercieel gebied heeft met een supermarkt, kapper, apotheek, bars en restaurants, een internationale school Lady Elizabeth Junior School en een divers sportaanbod met tennis- en paddletennisbanen, wandelpaden, manege, strand en baaien met strandbars.

U bent nog niet aangemeld!

Na invullen van onderstaande gegevens wordt u aangemeld, indien er nog geen account bestaat kan deze aangemaakt worden!



 Geef ons uw mening...

 Momenteel nog geen reviews voor dit pand.

Uitgebreide beschrijving:


Kenmerken:

Aantal slaapkamers 6
Aantal badkamers 7
Privaat zwembad Ja
Oppervlakte perceel rond het huis 2393 m²
Bebouwde oppervlakte 1147 m²
Bewoonbare oppervlakte 975 m²
Afstand naar het strand 500 km
Terras oppervlakte 120 m²
Gedeeld zwembad Ja
Private Tuin Ja
Poort Ja
Nabij Scholen Ja
Nabij kinder speeltuin Ja
Nabij Commercieel centrum Ja
Nabij bushalte Ja

Meer info?


Beschikbare documenten

project-16-10-pic.webp

document-project-16-10-pic.webp

download
project-16-9-pic.webp

document-project-16-9-pic.webp

download
project-16-8-pic.webp

document-project-16-8-pic.webp

download
square-box
Tine
Vragen over panden, projecten en onze content
Snel starten:

Hallo, ik ben Tine je kan bij mij terecht met al je vragen over panden, projecten en onze content. Ik antwoord alleen op basis van de beschikbare website-inhoud.