Gelijkvloers appartement in residentie Aneas

 Project: Residentie Aneas in Corvera Hills Golf

Luxe woningen op prestigieus golfdomein nabij luchthaven

Korte beschrijving:

GELIJKVLOERS APPARTEMENT - 2 SLAAPKAMERS - RUIM TERRAS - GOLFRESORT - CORVERA

Ontdek dit gelijkvloers appartement met 2 slaapkamers en 2 badkamers, gelegen in het rustige Corvera Hills Golf. Bij het betreden van de woning kom je terecht in een inkomhal met praktische inbouwkasten. De leefruimte met open keuken vormt het hart van het appartement en biedt via grote schuiframen directe toegang tot het ruime terras van 36 m², waar je volop kan genieten van het buitenleven.

De woning beschikt over twee comfortabele slaapkamers met ingebouwde kasten, waarvan één met een badkamer-ensuite. Beide badkamers zijn modern afgewerkt en voorzien van alle comfort. De indeling is praktisch en doordacht, waardoor je hier zowel permanent als recreatief aangenaam kan verblijven. Daarnaast geniet je van een gemeenschappelijk zwembad met ruime ligweide, een eigen parkeerplaats en een ondergrondse berging.

Dit appartement is gelegen in Corvera Hills, een rustig en groen golfdomein in de regio Murcia. Hier woon je in een ontspannen, residentiële omgeving met open zichten en veel privacy, terwijl steden zoals Murcia en de stranden van de Mar Menor vlot bereikbaar zijn. Een ideale locatie voor wie rust, natuur en bereikbaarheid wil combineren.

U bent nog niet aangemeld!

Na invullen van onderstaande gegevens wordt u aangemeld, indien er nog geen account bestaat kan deze aangemaakt worden!



 Geef ons uw mening...

 Momenteel nog geen reviews voor dit pand.

Uitgebreide beschrijving:

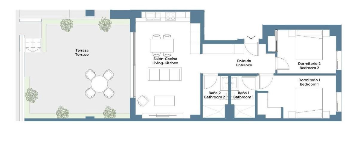
Dit appartement is gelegen op de gelijkvloerse verdieping en voorzien van 2 slaapkamers met 2 badkamers. Het appartement is gelegen op het golfdomein Corvera Hills Golf, een golfdomein dat vertoeft in alle rust met toch de nabijheid van de luchthaven. We nemen even een literaire wandeling doorheen de woning, zodat je mee bent met de indeling. 

Bij het betreden van de woning kom je terecht in de centrale inkomhal, met inbouwkasten. Deze inbouwkasten zijn ideaal voor schoenen of jassen in op te bergen. Aan de linkerkant van de inkomhal, is het slaapgedeelte gelegen. Daar zijn 2 slaapkamers te vinden, 1 hoofdslaapkamer met een badkamer-ensuite. Elke badkamer is uitgerust met een wastafel, bijpassend meubel, toilet, douche, ... 

De slaapkamers zijn op zich dan weer voorzien van ruime inbouwkasten met hangrekken, lades en legplanken. 

Aan de rechterkant van de inkomhal, vindt je de centrale leefruimte. Deze leefruimte beschikt over een woonkamer met open keuken. De keuken heeft een L-vorm en is voorzien van alle nodige toestellen zoals een kookplaat, magnetron, dampkap, ... 

Vanuit de woonkamer heb je toegang via grote schuiframen tot het aanliggend terras. Het terras heeft een oppervlakte van 36m², een heerlijke ruimte waar je gezellig kan vertoeven terwijl je geniet van de Spaanse zon. 

DUS CONCREET: 

  • 2 slaapkamers
  • 2 badkamers
  • Inkomhal met inbouwkasten 
  • Keuken met toestellen 
  • Woonkamer
  • Ruim terras van 36m²

Deze woning is gelegen in residentie Aneas, het nieuwste wooncomplex op Corvera Hills Golf. Deze residentie is voorzien van een gemeenschappelijk zwembad van maar liefst 150m². Rondom het zwembad is er een ruime ligweide gelegen, ideaal om heerlijk te ontspannen. 

De appartementen zijn verdeeld over 3 gebouwen, met in totaal 56 appartementen. De gebouwen zijn hoger gelegen, zodat elk appartement geniet van een vrij uitzicht over de omgeving. Elk appartement heeft een bovengrondse parkeerplaats én een ondergrondse berging. 

TECHNISCHE KENMERKEN: 

  • Elektrische rolluiken 
  • Beveiligde voordeuren 
  • Aerothermisch systeem voor sanitair warm water

Deze woning is gelegen in Corvera. Corvera, en meer specifiek het golfdomein Corvera Hills, is een rustige en groene woonomgeving in de regio Murcia waar natuur, comfort en privacy samenkomen. Het domein ligt aan de voet van een heuvelachtig landschap en wordt gekenmerkt door open zichten, lage bebouwing en een aangename, rustige sfeer. Hier woon je in een afgesloten en verzorgd geheel, omringd door groen en ver weg van drukte, maar toch strategisch gelegen nabij stad en kust.

Corvera Hills is ontworpen als een residentieel resort met focus op rust en ruimte. De aanwezigheid van een golfomgeving zorgt voor een open en verzorgde uitstraling, met brede lanen en veel groen rondom de woningen. Het domein heeft een licht verhoogde ligging, waardoor je geniet van mooie zichten over het omliggende landschap. De sfeer is internationaal maar rustig, ideaal voor wie een ontspannen leefomgeving zoekt met een zekere mate van privacy.

De ligging is een grote troef. Je bevindt je op korte afstand van Murcia stad, waar je terechtkunt voor winkels, gastronomie en cultuur. Ook de stranden van de Mar Menor en de Middellandse Zee zijn vlot bereikbaar. Daarnaast liggen verschillende golfresorts in de directe omgeving, wat de regio aantrekkelijk maakt voor liefhebbers van golf en buitenleven. De nabijheid van de luchthaven zorgt bovendien voor extra praktisch comfort.

Wat veel mensen niet weten, is dat Corvera Hills profiteert van een bijzonder open en natuurlijke omgeving, wat zorgt voor een aangenaam microklimaat en veel licht. De lucht is hier helder en de nachten zijn opvallend rustig, met weinig lichtvervuiling. Vooral bij zonsopgang en zonsondergang ontstaat er een serene sfeer over het domein.

Daarnaast heeft het domein een discreet en residentieel karakter dat het hele jaar door behouden blijft. In tegenstelling tot sommige drukkere resorts blijft het hier stil en overzichtelijk, wat bijdraagt aan een constante kwaliteit van leven. De combinatie van natuur, bereikbaarheid en rust maakt Corvera Hills tot een bijzonder evenwichtige locatie.

AFSTANDEN: 

  • Corvera Hills golfdomein: op locatie
  • Centrum Corvera: ±2 km
  • Restaurants & cafés: ±2 km
  • Supermarkt: ±2,5 km
  • Golfbanen in de regio: ±5–10 km
  • Murcia stad: ±20 km
  • Cartagena: ±30 km
  • Stranden Mar Menor: ±25 km
  • Ziekenhuis: ±15 km
  • Luchthaven Murcia (Corvera): ±5 km
  • Luchthaven Alicante: ±80 km

Onze visie binnen Casas Kimpencio;

  • Bij Casas Kimpencio ben je niet zomaar iemand, wij willen een persoonlijke relatie aangaan.
  • We behandelen jullie zoals we zelf behandeld willen worden, met de nodige betrokkenheid, precisie en details.
  • Geen enkele vraag is ons te veel, we staan elke dag telefonisch voor jou klaar.
  • Wij hebben de gedachte dat een huis kopen niet zomaar een huis kopen is, maar een nieuwe thuis kopen.
  • Iedereen dient een eigen verhaal te krijgen, met verschillende hoofdstukken. 
  • Wij willen helpen aan het Spaanse hoofdstuk, een hoofdstuk van een nieuwe thuis, vakantiewoning of een investering.
  • En dit doen we met open, duidelijke communicatie  en daarmee geraken we er altijd, zo vinden we jouw ideale woning gebaseerd op meerdere gesprekken.
  • We helpen vanaf het begin tot aan de sleuteloverdracht, en ver daarbuiten. 

Wij vinden deze woning bijzonder omdat

  • Gelijkvloers appartement in een rustig golfresort, wonen in alle sereniteit met open zichten op de groene omgeving
  • Ruime leefruimte met open keuken en toestellen, een praktische en aangename indeling voor dagelijks comfort
  • Terras van 36 m² aansluitend aan de woonkamer, ideaal om buiten te leven onder de Spaanse zon
  • Twee slaapkamers met ingebouwde kasten, waarvan één met en-suite badkamer voor extra privacy
  • Twee volledig afgewerkte badkamers, voorzien van alle comfort en moderne afwerking
  • Inkomhal met extra inbouwkasten, handig voor jassen, schoenen en extra opslag
  • Residentie Aneas met groot gemeenschappelijk zwembad van 150 m², omringd door een ruime ligweide
  • Verhoogde ligging van de gebouwen, waardoor elk appartement geniet van vrij en open uitzicht
  • Inclusief parkeerplaats en ondergrondse berging, praktisch en comfortabel wonen
  • Rustige ligging op Corvera Hills Golf, met natuur, privacy en open ruimte als grootste troeven
  • Vlotte verbinding naar Murcia stad, stranden en luchthaven, waardoor bereikbaarheid optimaal blijft
  • Moderne technieken zoals aerothermie en elektrische rolluiken, energiezuinig en toekomstgericht

WONINGEN IN RESIDENTIE ANEAS:

Type woning Aantal slaapkamers / badkamers Bebouwde oppervlakte Buitenruimte in m² Prijs 
Gelijkvloers appartement  2/2 82m² 36m² €275.000
Gelijkvloers appartement  3/2  103m² 124m² €320.000
Appartement met terras 2/2  83m² 19m² €229.000
Appartement met terras 3/2 103m² 27m² €285.000
Penthouse 2/2  73m² 67m² €299.000
Penthouse 3/2 91m² 83m² €350.000
Halfvrijstaande woning  3/3 117m² 115m² + 249m² €369.000

GROEI EN TRENDS IN CORVERA: 

Jaar Prijs per m² Jaarlijkse stijging 
2023 €1.250 -
2024 €1.380 +10.4%
2025 €1.520 +10.1%

Kenmerken:

Kenmerken van Gelijkvloers appartement in residentie Aneas
Aantal slaapkamers 2
Aantal badkamers 2
Gedeeld zwembad Ja
Terras Ja
Bebouwde oppervlakte 82 m²
Bewoonbare oppervlakte 65 m²
Terras oppervlakte 36 m²
Douche schermen Ja
Afstand naar het strand 51 km
Pré installatie airco Ja
Elektrische rolluiken Ja
Led verlichting buiten Ja
Led verlichting binnen Ja
privé parkeerplaats Ja
Telefoon Data aansluiting Ja
Videofonie Ja
Inbouwkasten Ja
Aero thermische warmtepomp Ja
Poort Ja
Badkamer spiegels Ja
Alle keuken apparatuur volledig inbegrepen Ja
Kookplaat Dampkap Magnetron & Oven Ja
Berging Ja
Uitzicht tuin Ja
Op golfterrein Ja
Ziekenhuis afstand in km 20-30 km
Luchthaven Murcia afstand 10-20 km
Gedeelde kosten Ja
Lift Ja
Ontspanning ruimte buiten Ja
Hangend toilet Ja
Hangend badkamer meubel Ja
Uitzicht op het zwembad Ja
Dampkap Ja
Gepantserde toegangsdeur met veiligheidsslot Ja
Hoogwaardige afwerking Ja
Goede prijs-kwaliteit verhouding Ja
Aerothermische boiler Ja
Gelijkvloers Ja
Energielabel B
Afgewerkte badkamer Ja
Gesloten urbanisatie Ja

Meer info?


Beschikbare documenten

gelijkvloers 2-2.jpeg

Document bij Gelijkvloers appartement in residentie Aneas

download

Ontdek wat we nog meer voor jou in petto hebben!

Foto van Residentie Olmo - nieuwbouwvilla's in San Javier
Residentie Olmo - nieuwbouwvilla's in San Javier

GELIJKVLOERSE VILLA - 3 SLAAPKAMERS - TUIN & PRIVÉZWEMBAD - ...

 Ligging: San Javier 30730  Stad: San Javier-Murcia-Mar-Menor  Type locatie: Uitzicht zwembad


nog 1 Pand beschikbaar!
Foto van Alondra Villa’s in Puerto de Mazarrón Spanje
Alondra Villa’s in Puerto de Mazarrón Spanje

VILLA MET 3 SLAAPKAMERS - PRIVÉ SOLARIUM - WANDELAFSTAND VA ...

 Ligging: Puerto de Mazarrón  Stad: Puerto de Mazarrón  Type locatie: Uitzicht zwembad


nog 1 Pand beschikbaar!
Foto van LOS COLLADOS DEL COUNTRY Mazarrón Country Club
LOS COLLADOS DEL COUNTRY Mazarrón Country Club

VILLA - 3 OF 4 SLAAPKAMERS - PRIVÉZWEMBAD EN SOLARIUM - MOD ...

 Ligging: Mazarron  Stad: Mazarron  Type locatie: Golfdomein


nog 1 Pand beschikbaar!
Foto van Residencial Macao Playa II nieuwbouw Lo Pagán
Residencial Macao Playa II nieuwbouw Lo Pagán

Residencial Macao Playa II appartement kopen Lo PagánSommig ...

 Ligging: Lo Pagán aan de Mar Menor  Stad: Lo Pagán aan de Mar Menor  Type locatie: Uitzicht zwembad


nog 3 Panden beschikbaar!
Foto van Villa Menorca Santa Rosalía Lake and Life Resort
Villa Menorca Santa Rosalía Lake and Life Resort

Villa Menorca in Santa Rosalía Lake and Life Resort combine ...

 Ligging: Santa Rosalia  Stad: Santa Rosalia  Type locatie: Uitzicht zwembad


nog 1 Pand beschikbaar!
Foto van RAMBLA BEACH V Nieuwbouw in Pilar de La Horadada
RAMBLA BEACH V Nieuwbouw in Pilar de La Horadada

APPARTEMENT OF BUNGALOW - 2 SLAAPKAMERS - PRIVÉTUIN OF SOLA ...

 Ligging: Pilar de la Horadada - Alicante  Stad: Pilar de la Horadada - Alicante  Type locatie: Uitzicht zwembad


nog 2 Panden beschikbaar!
Foto van Residencial Carmen VI nieuwbouw villa San Javier
Residencial Carmen VI nieuwbouw villa San Javier

VILLA - 3 SLAAPKAMERS - PRIVÉZWEMBAD EN SOLARIUM - NIEUWBOU ...

 Ligging: Santiago de la Ribera San Javier  Stad: Santiago de la Ribera  Type locatie: Uitzicht zwembad


nog 1 Pand beschikbaar!
Foto van LAKE VIEW VILLAS Santa Rosalía villa kopen
LAKE VIEW VILLAS Santa Rosalía villa kopen

Exclusieve LAKE VIEW VILLAS in Santa Rosalía Lake and Life ...

 Ligging: Santa Rosalia  Stad: Santa Rosalia  Type locatie: Uitzicht zwembad


nog 1 Pand beschikbaar!
Foto van TERRA OLIVA villa kopen in Sucina met zwembad
TERRA OLIVA villa kopen in Sucina met zwembad

VILLA - 3 SLAAPKAMERS - PRIVÉZWEMBAD EN SOLARIUM - LUXE NIE ...

 Ligging: Sucina  Stad: Sucina  Type locatie: Uitzicht zwembad


nog 1 Pand beschikbaar!
Foto van Penthouse LA JOYA BEACH Mar Menor in Lo Pagan
Penthouse LA JOYA BEACH Mar Menor in Lo Pagan

Exclusief kleinschalig wooncomplex in Lo Pagan aan de Costa ...

 Ligging: Lo Pagan 30740 San Pedro del Pinatar  Stad: San Pedro del Pinatar - Mar-Menor  Type locatie: Uitzicht zwembad


nog 1 Pand beschikbaar!
Foto van Villa SERENA SUN GOLF Los Alcázares
Villa SERENA SUN GOLF Los Alcázares

VILLA - 3 SLAAPKAMERS - PRIVÉZWEMBAD EN SOLARIUM - NIEUWBOU ...

 Ligging: Las Lomas Del Rame-bahía Bella 30710  Stad: Los Alcazares - Murcia - Mar Menor  Type locatie: Uitzicht zwembad


nog 1 Pand beschikbaar!
Foto van Bungalow kopen EL LAGO 45 Mar Cristal Costa Cálida
Bungalow kopen EL LAGO 45 Mar Cristal Costa Cálida

APPARTEMENT OF BUNGALOW - 3-2  SLAAPKAMERS - TERRAS OF PRIV ...

 Ligging: Islas Menores-mar De Cristal 30384  Stad: Cartagena  Type locatie: Uitzicht zwembad


nog 2 Panden beschikbaar!

Lees mee met onze nieuwste blogs!

Afbeelding bij Besparen én genieten op de Costa Blanca
Besparen én genieten op de Costa Blanca

Carrefour Spanje lanceert de ‘Tarjeta 65+’, waarmee 65-plussers geen btw meer betalen op verse producten.

Dit initiatief helpt senioren tot €200 per jaar besparen. Ideaal voor wie op de Costa Blanca wil genieten van een betaalbaar, zonnig leven vol levenskwaliteit. O...

Martine

Afbeelding bij Wandel langs glazen uitzichtpunten in Relleu
Wandel langs glazen uitzichtpunten in Relleu

De adembenemende pasarela wandelroute bij het stuwmeer van Relleu, in de provincie Alicante, heeft een spectaculaire upgrade gekregen! Met een glazen uitzichtpunt dat zweeft boven de kloof van de rivier Amadorio en een uitbreiding van 20 meter, biedt deze route nu een nog indrukwekkender erv...

Martine

Afbeelding bij Zorgeloos kopen in Spanje met Casas Kimpencio
Zorgeloos kopen in Spanje met Casas Kimpencio

Een droomhuis onder de zon aan de Costa Blanca is een veelvoorkomend verlangen. 

Er zijn veel mogelijkheden om een tweede huis te vinden in deze regio, of het nu gaat om een appartement aan zee, een villa in het binnenland of een nieuwbouwproject.

 De Costa Blanca staat beke...

Martine