Gelijkvloers appartement in residentie Vegasol XI

 Project: Residentie Vegasol XI in Benijofar

Nieuwbouwappartementen in Benijofar met een centrale ligging

Korte beschrijving:

GELIJKVLOERS APPARTEMENT – 2 SLAAPKAMERS – PRIVÉTERRAS – BENIJÓFAR

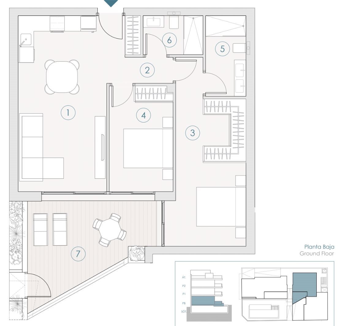
Dit gelijkvloerse appartement beschikt over 2 slaapkamers en 2 badkamers en is ontworpen voor comfortabel wonen met een sterke focus op licht, ruimte en buitenleven. Bij het binnenkomen kom je meteen terecht in de open leefruimte met keuken. De keuken is volledig uitgerust met alle elektrische toestellen en biedt dankzij de open indeling een directe verbinding met de woonkamer. Grote schuiframen zorgen voor veel natuurlijke lichtinval en geven rechtstreeks uit op het privéterras van 18,5 m².

De woning telt twee volwaardige slaapkamers, elk met toegang tot het terras. De hoofdslaapkamer beschikt over een badkamer-ensuite en een ruime inloopdressing met hangrekken en legplanken, wat zorgt voor een echte suitesfeer. De tweede slaapkamer heeft eveneens een eigen badkamer, ideaal voor gasten of gezinsleden. Beide badkamers zijn afgewerkt met doucheschermen en vloerverwarming, wat het comfort duidelijk verhoogt.

Het terras vormt een volwaardig verlengstuk van de leefruimte en is bereikbaar vanuit zowel de woonkamer als beide slaapkamers. Dankzij de gelijkvloerse ligging en de brede raampartijen geniet je hier optimaal van het mediterrane buitenleven. Extra comfort wordt geboden door onder meer dubbele beglazing, goede ventilatie, een aerothermische boiler voor sanitair warm water en pré-installatie voor airconditioning. Dit appartement is perfect geschikt als vaste woonst, tweede verblijf of kwalitatieve investering in Benijófar.

U bent nog niet aangemeld!

Na invullen van onderstaande gegevens wordt u aangemeld, indien er nog geen account bestaat kan deze aangemaakt worden!



 Geef ons uw mening...

 Momenteel nog geen reviews voor dit pand.

Uitgebreide beschrijving:

Ontdek deze gloednieuwe residentie in het begeerde Benijofar! Deze woning is gelegen op de gelijkvloerse verdieping én voorzien van 2 slaapkamers met 2 badkamers. We nemen even een wandeling via woorden doorheen het appartement. 

Bij het betreden van de woning bereik je de ruime leefruimte met open keuken. De keuken is voorzien van ruime onder- en bovenkasten en heeft rechtstreekse verbinding met de ruime leefruimte. Verder is de keuken voorzien van alle elektrische toestellen, zodat je zorgeloos kan genieten van jouw woning. De woonkamer kijkt via grote schuiframen uit op het terras. 

Dit appartement is voorzien van 2 slaapkamers met 2 badkamers. De hoofdslaapkamer heeft een badkamer-ensuite, ruime inloopdressing met hangrekken en legplanken én rechtstreekse toegang tot het terras. De tweede slaapkamer heeft ook een eigen badkamer maar geen ensuite. 

Elke slaapkamer heeft toegang tot het ruime terras via ruime schuiframen. Geniet van jouw eigen stekje onder de Spaanse zon!

DUS CONCREET: 

  • 2 slaapkamers
  • 2 badkamers
  • Afgewerkte badkamer met doucheschermen 
  • Ruime woonkamer met directe toegang tot het terras
  • Terras van 18.5m²

Deze woning is gelegen op de gelijkvloerse verdieping en heeft een privéterras van 18.5m². Zowel de woonkamer als de slaapkamers zijn via grote schuiframen verbonden met het terras. 

Deze woning is gelegen in residentie Vegasol XI, deze is voorzien van een ruim gemeenschappelijk zwembad met chillplatform. Op dat platform zullen ligbedden geplaatst kunnen worden, zodat je optimaal kan ontspannen onder de Spaanse zon. 

Elke woning heeft een ondergrondse parkeerplaats met berging. 

TECHNISCHE KENMERKEN: 

  • Dubbele beglazing 
  • Vloerverwarming in de badkamers
  • Uitstekende ventilatie in alle kamers
  • Pré-installatie airconditioning
  • Aerothermische boiler van 150 liter voor sanitair warm water

Deze woning is gelegen in Benijofar. Benijófar, gelegen in het hart van de Vega Baja del Segura in de provincie Alicante, is een charmant en levendig dorp dat bekendstaat om zijn authentieke Spaanse karakter en aangename levensritme. Omringd door citrusboomgaarden en open landschappen ademt Benijófar rust en traditie, terwijl het dorp tegelijk verrassend dynamisch is. De compacte dorpskern met haar pleinen, cafés en kleine winkels vormt het sociale middelpunt, waar bewoners elkaar dagelijks ontmoeten en het leven zich grotendeels buiten afspeelt.

Ondanks zijn traditionele uitstraling is Benijófar de voorbije jaren uitgegroeid tot een moderne en goed uitgeruste gemeente. Er zijn uitstekende voorzieningen zoals sportcomplexen, een cultureel centrum, restaurants en medische diensten. De ligging vlak bij de rivier de Segura en op korte afstand van Guardamar del Segura zorgt voor een mooie balans tussen landelijk wonen en kustnabijheid. De stranden, duinen en pijnboombossen van Guardamar zijn snel bereikbaar, terwijl Benijófar zelf gevrijwaard blijft van massatoerisme.

De omgeving nodigt uit tot wandelen en fietsen langs irrigatiekanalen, landbouwvelden en rustige wegen. Dankzij het milde mediterrane klimaat met meer dan 300 zonnige dagen per jaar is het buitenleven hier een vanzelfsprekendheid. Grotere plaatsen zoals Rojales, Ciudad Quesada en Torrevieja liggen dichtbij en zorgen voor extra winkelmogelijkheden, uitgaansleven en internationale voorzieningen, zonder dat Benijófar zijn dorpsgevoel verliest.

Wat veel mensen niet weten, is dat Benijófar een sterke artistieke en culturele gemeenschap heeft. Het dorp investeert actief in kunst en cultuur, met muurschilderingen, beeldhouwwerken en evenementen die het straatbeeld verrijken. Het cultureel centrum organiseert regelmatig tentoonstellingen, concerten en lokale initiatieven die zowel Spaanse als internationale bewoners samenbrengen.

Daarnaast kent Benijófar een opvallend jonge en levendige energie voor een traditioneel dorp. Dankzij de mix van lokale families en nieuwe bewoners is er een sterke gemeenschapszin ontstaan. In de zomeravonden zitten de terrassen vol, kinderen spelen op de pleinen en de geur van vers bereide gerechten hangt in de lucht. Het is precies die combinatie van authenticiteit, levendigheid en nabijheid van zee die Benijófar zo aantrekkelijk maakt.

AFSTANDEN: 

  • Strand Guardamar del Segura: ca. 8 km

  • Torrevieja centrum: ca. 12 km

  • Ciudad Quesada: ca. 3 km

  • Golfbaan La Marquesa: ca. 4 km

  • Winkelcentrum Habaneras (Torrevieja): ca. 10 km

  • Zoutmeren La Mata en Torrevieja: ca. 9 km

  • Luchthaven Alicante: ca. 35 km

  • Ziekenhuis Torrevieja: ca. 11 km

Onze visie binnen Casas Kimpencio;

  • Bij Casas Kimpencio ben je niet zomaar iemand, wij willen een persoonlijke relatie aangaan.
  • We behandelen jullie zoals we zelf behandeld willen worden, met de nodige betrokkenheid, precisie en details.
  • Geen enkele vraag is ons te veel, we staan elke dag telefonisch voor jou klaar.
  • Wij hebben de gedachte dat een huis kopen niet zomaar een huis kopen is, maar een nieuwe thuis kopen.
  • Iedereen dient een eigen verhaal te krijgen, met verschillende hoofdstukken. 
  • Wij willen helpen aan het Spaanse hoofdstuk, een hoofdstuk van een nieuwe thuis, vakantiewoning of een investering.
  • En dit doen we met open, duidelijke communicatie  en daarmee geraken we er altijd, zo vinden we jouw ideale woning gebaseerd op meerdere gesprekken.
  • We helpen vanaf het begin tot aan de sleuteloverdracht, en ver daarbuiten. 

Wij vinden deze woning bijzonder omdat;

  • Twee volwaardige slaapkamers met elk een eigen badkamer
    Ideaal voor privacy en comfort, perfect voor zowel eigen gebruik als gasten of verhuur.

  • Hoofdslaapkamer met inloopdressing en directe toegang tot het terras
    Een echte hotelsuite-ervaring waarbij binnen en buiten naadloos in elkaar overlopen.

  • Lichtrijke leefruimte met grote schuiframen
    Dankzij de brede glaspartijen baadt de woning in natuurlijk licht en voelt ze extra ruim aan.

  • Volledig uitgeruste open keuken
    Direct instapklaar, met voldoende kastruimte en een praktische indeling voor dagelijks comfort.

  • Privéterras van 18,5 m² op het gelijkvloers
    Een verlengstuk van de leefruimte waar je het hele jaar door van het buitenleven geniet.

  • Vloerverwarming in de badkamers
    Een luxe detail dat elke ochtend extra comfort en een aangename warmte biedt.

  • Ondergrondse parkeerplaats met private berging
    Veilig, praktisch en ideaal voor extra opslag zonder ruimte in te nemen in het appartement.

  • Gemeenschappelijk zwembad met chillplatform
    Een resortgevoel in eigen residentie, perfect om te ontspannen onder de Spaanse zon.

WONINGEN IN RESIDENTIE VEGASOL XI: 

Type woning  Aantal slaapkamers / badkamers Bebouwde oppervlakte  Terras in m² Prijs 
Gelijkvloers appartement  2/2 73m² 18m² €325.000
Gelijkvloers appartement  3/2 115m² 25m² €350.000
Appartement op tussenverdieping  2/2 66m² 23m² €285.000
Appartement op tussenverdieping  3/2 90m² 20m² €294.000
Penthouse  2/2 66m² 114m² €410.000
Penthouse  3/2 90m² 134m² €410.000

GROEI EN TRENDS IN BENIJOFAR: 

Jaar  Prijs per m² Jaarlijkse stijging 
2023 €3.093 -
2024 €3.157 +2.1%
2025 €3.412 +8.1%

Kenmerken:

Kenmerken van Gelijkvloers appartement in residentie Vegasol XI
Aantal slaapkamers 2
Aantal badkamers 2
Bebouwde oppervlakte 73 m²
Bewoonbare oppervlakte 63 m²
Afstand naar het strand 8 km
Terras oppervlakte 18 m²
Gedeeld zwembad Ja
Poort Ja
Nabij Scholen Ja
Nabij Commercieel centrum Ja
Nabij bushalte Ja
Terras Ja
Fietsafstand van het strand Ja
Vloerverwarming badkamer Ja
Douche schermen Ja
Pré installatie airco Ja
Elektrische rolluiken Ja
Led verlichting buiten Ja
Led verlichting binnen Ja
privé parkeerplaats Ja
Ondergrondse parking Ja
Telefoon Data aansluiting Ja
Videofonie Ja
Inbouwkasten Ja
Elektrische poort Ja
Badkamer spiegels Ja
Alle keuken apparatuur volledig inbegrepen Ja
Kookplaat Dampkap Magnetron & Oven Ja
Nabij kinder speeltuin Ja
Berging Ja
Gedeelde tuin Ja
Uitzicht tuin Ja
Golfresort afstand in km 2-5 km
Ziekenhuis afstand in km 0-5 km
Luchthaven Alicante afstand 40-50 km
Luchthaven Murcia afstand 50+ km
Uitzicht bergen Ja
Ontspanning ruimte buiten Ja
Hangend toilet Ja
Hangend badkamer meubel Ja
Uitzicht op het zwembad Ja
Volledig ingerichte keuken Ja
Dampkap Ja
Gepantserde toegangsdeur met veiligheidsslot Ja
Hoogwaardige afwerking Ja
Goede prijs-kwaliteit verhouding Ja
Aerothermische boiler Ja
Gelijkvloers Ja
Luxe nieuwbouw Ja
Dressing Ja
Goed gebied voor rentabiliteit van huur Ja
Energielabel B
Afgewerkte badkamer Ja
Gesloten urbanisatie Ja

Meer info?


Beschikbare documenten

gelijkvloers 2-2.jpeg

Document bij Gelijkvloers appartement in residentie Vegasol XI

download

Ontdek wat we nog meer voor jou in petto hebben!

Foto van AURA I villa kopen in Benijófar met 4 slaapkamers
AURA I villa kopen in Benijófar met 4 slaapkamers

Project: Auro I villa Benijófar kopen Costa Blanca

Stad: Benijófar-Alicante

4   3     220 m²    

Foto van Herverkoop: bemeubelde hoekvilla met 3 slaapkamers
Herverkoop: bemeubelde hoekvilla met 3 slaapkamers

Project: Unieke herverkoop in Benijofar: bemeubelde villa

Stad: Benijófar-Alicante

3   3     131 m²   57 m²  

Foto van Penthouse met solarium in residentie Benisol 2
Penthouse met solarium in residentie Benisol 2

Project: Residentie Benisol 2 in Benijofar

Stad: Benijófar-Alicante

3   2   81 m²   18 m²  

Foto van Penthouse met solarium in residentie Vegasol XI
Penthouse met solarium in residentie Vegasol XI

Project: Residentie Vegasol XI in Benijofar

Stad: Benijófar-Alicante

2   2   66 m²   24 m²  

Foto van Herverkoop: hoekvilla met zwembad in Benijofar
Herverkoop: hoekvilla met zwembad in Benijofar

Project: Herverkoop: hoekvilla met zwembad in Benijofar

Stad: Benijófar-Alicante

3   3     133 m²   47 m²  

Foto van Vrijstaande luxe villa in Residentie Almunia
Vrijstaande luxe villa in Residentie Almunia

Project: Residentie Almunia gelijksvloers vrijstaande villa

Stad: Benijófar-Alicante

3   2     98 m²   40 m²  

Foto van Luxe nieuwbouw villa's in Benijófar
Luxe nieuwbouw villa's in Benijófar

Project: Luxe nieuwbouw villa's in Benijófar, Costa Blanca

Stad: Benijófar-Alicante

3   3     138 m²   97 m²  

Foto van Villa in Benijofar met onderbouw en solarium
Villa in Benijofar met onderbouw en solarium

Project: Residentie villas Benijofar

Stad: Benijófar-Alicante

3   3     141 m²   31 m²  

Foto van Ontdek luxe appartementen in Benijófar
Ontdek luxe appartementen in Benijófar

Project: Modern en stijlvol wonen in Benijófar

Stad: Benijófar-Alicante

3   2     86 m²   39 m²  

Foto van Exclusieve villa's in Benijófar
Exclusieve villa's in Benijófar

Project: Exclusief Benijófar Villa's!

Stad: Benijófar-Alicante

3   2     120 m²   40 m²  

Foto van Exclusieve villa met zwembad in Benijófar
Exclusieve villa met zwembad in Benijófar

Project: Exclusieve vrijstaande villa met zwembad en tuin

Stad: Benijófar-Alicante

2   2     110 m²   40 m²  

Foto van Luxe penthouse in Benijófar
Luxe penthouse in Benijófar

Project: Appartementen MoMa in benijofar

Stad: Benijófar-Alicante

3   2     87 m²   80 m²  

Lees mee met onze nieuwste blogs!

Afbeelding bij Spanje verwelkomt meer dan 5 miljoen toeristen
Spanje verwelkomt meer dan 5 miljoen toeristen

Het aantal buitenlandse toeristen in Spanje stijgt sterker dan ooit.

...

Martine

Afbeelding bij Zorgeloos investeren in de zon in Spanje
Zorgeloos investeren in de zon in Spanje

Op zoek is naar een tweede woning, vakantieverblijf of permanente verhuizing naar de zon?

In Costa Blanca, vindt je in deze regio’s volop je woning keuze. Liever iets koeler en groener?

In het noorden van Spanje, zoals Galicië en Asturië, schijnt de zon minder, maar vindt je een ...

Martine

Afbeelding bij Werkgelegenheid in Spanje
Werkgelegenheid in Spanje

Spanje bereikt een recordaantal werkenden. Vooral horeca, detailhandel, onderwijs en zorg groeien sterk en zorgen voor nieuwe kansen in het hele land.

...

Martine