Home Lopende projecten Alle Panden Over ons Ons team Ons kantoor Onze werkwijze Contacteer ons Blog Cookies

Gelijkvloers appartement met terras in Allonbay Hills

 Project: Residentie Allonbay Hills in Villajoyosa - Fase 2

Nieuwbouwappartement op 60 meter van de zee én zeezicht

Korte beschrijving:

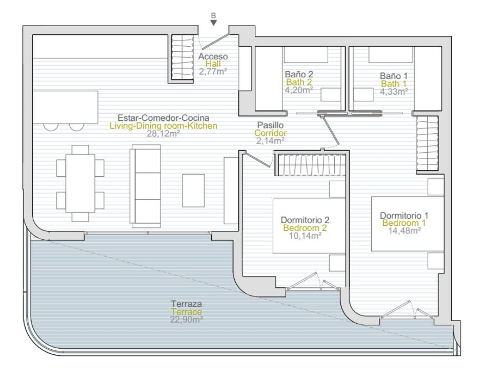
RESIDENTIE ALLONBAY HILLS - APPARTEMENT OP BEGANE VLOER -  2 SLAAPKAMERS MET 2 BADKAMERS - EERSTELIJN ZEEZICHT 

Deze woningen zijn gelegen in Villajoyosa in de noordelijke Costa Blanca. De woningen zijn gelegen op wandelafstand van het strand en genieten van prachtig zeezicht. Deze woning is gelegen op een de begane vloer en is voorzien van 2 slaapkamers met 2 badkamers. 

Binnen de residentie staat privacy en comfort voorop. Het heeft alle voordelen van het zusterproject Allonbay Village, bijkomend met de extra privacy en rust. 

U bent nog niet aangemeld!

Na invullen van onderstaande gegevens wordt u aangemeld, indien er nog geen account bestaat kan deze aangemaakt worden!



 Geef ons uw mening...

 Momenteel nog geen reviews voor dit pand.

Uitgebreide beschrijving:

Deze woning is gelegen op de gelijkvloerse verdieping en is voorzien van 2 slaapkamers met 2 badkamers. Er is een ruime leefruimte voorzien met open keuken. De keuken komt volledig geëquipeerd met volgende toestellen; inductiekookplaat, oven, dampkap, magnetron, koelkast, vaatwasser en wasmachine met droger. 

Er zijn 2 slaapkamers met 2 badkamers voorzien. De slaapkamers zijn uitgerust met inbouwkasten; met hangrekken, lades en legplanken. De hoofdslaapkamer heeft een badkamer-ensuite, voorzien van toilet, wastafel met bijpassend meubel, wastafel en spiegel. De badkamer is bovendien ook uitgerust met elektrische vloerverwarming, zodat je altijd aangenaam kan wakkere worden. 

De tweede badkamer heeft dezelfde uitrusting. 

Zowel de woonkamer als de 2 slaapkamers kijken uit op het terras van 22m². Het balkon is voorzien van anti-slip tegels, zodat ongewenste valpartijen vermeden kunnen worden. Doorheen de woning kan de vloer afgewerkt worden met laminaat of porseleinen tegels. De keuze is aan jou. 

Elk appartement heeft een eigen parkeerplaats in de ondergrondse parking. Deze is te bereiken via een gemeenschappelijke oprit met een automatische poort. Bij de parkeerplaats is er een pré-installatie laadpunt voor elektrische wagen voorzien. 

Geniet van een korte wandeling, via een aangelegd pad naar het strand. Tijdens de wandeling wandel je langs aangelegde beplanting, en hoor je het geruis van de zee al op de achtergrond. Je hebt een woning omgeven door natuurlijke verlichting, zee en de natuur. 

In de residentie zijn er heel wat voorzieningen. Zo is er een ruim gemeenschappelijk zwembad, omgeven door een aangelegde tuin. Hier kan je volledig tot rust komen al genietend onder de Spaanse zon. De gemeenschappelijke delen zijn prachtig samenhangend door de aangelegde tuinen, hierdoor wordt dit 1 geheel. 

Op de 9e verdieping, op het solarium is er een gemeenschappelijk zwembad gelegen met zeezicht. Vanop dat solarium heb je prachtig zeezicht, uitstekend om helemaal te ontspannen. Er is ook een social club te vinden op de 9e verdieping. In de tweede fase komt er bovenop deze gemeenschappelijke voorziengen nog een sauna, jacuzzi en een fitness met de nodige toestellen. 

Extra troeven aan deze woning: 

  • Uitstekende isolatie
  • Dubbele beglazing 
  • Aerothermisch systeem voor sanitair warm water
  • Volledige airconditioning
  • Uitgeruste keuken én afgewerkte badkamer

Onze visie binnen Casas Kimpencio;

Bij Casas Kimpencio ben je niet zomaar iemand, wij willen een persoonlijke relatie aangaan. We behandelen jullie zoals we zelf behandeld willen worden, met de nodige betrokkenheid, precisie en details. Geen enkele vraag is ons te veel, we staan elke dag telefonisch voor jou klaar. Wij hebben de gedachte dat een huis kopen niet zomaar een huis kopen is, maar een nieuwe thuis kopen. Iedereen dient een eigen verhaal te krijgen, met verschillende hoofdstukken. 

Wij willen helpen aan het Spaanse hoofdstuk, een hoofdstuk van een nieuwe thuis, vakantiewoning of een investering. En enkel met open, duidelijke communicatie geraken we er. Enkel zo vinden we jouw ideale woning gebaseerd op meerdere gesprekken. We helpen vanaf het begin tot aan de sleuteloverdracht, en ver daarbuiten. 

Deze woning is gelegen in Villajoyosa. Villajoyosa, ook wel bekend als La Vila Joiosa, is een kleurrijke kustplaats aan de noordelijke Costa Blanca, gelegen tussen Benidorm en El Campello. De stad staat bekend om haar schilderachtige gevels in felle kleuren die uitkijken over zee, haar historische charme en de ontspannen, mediterrane levensstijl die er heerst. De ligging aan zee, gecombineerd met een rijke geschiedenis en lokale tradities, maakt het tot een plek met een unieke sfeer.

De stad heeft een authentiek karakter, met een oud centrum vol smalle straatjes, historische gebouwen en een levendige dagelijkse markt. De boulevard en jachthaven zijn geliefde plekken voor een wandeling of een avond op het terras, terwijl het dagelijkse leven zich op een ontspannen manier afspeelt tussen de vissersboten, tapasbars en lokale winkels. Het strand van Villajoyosa is breed, rustig en voorzien van de Blauwe Vlag, wat garant staat voor netheid, veiligheid en kwaliteit.

Wat Villajoyosa bijzonder maakt, is de combinatie van cultuur, natuur en zee. De stad heeft een sterke band met haar maritieme verleden, wat zichtbaar is in het Museo del Chocolate en de lokale vissershaven, waar nog dagelijks verse vis wordt binnengebracht. De beroemde chocoladefabriek Valor is zowel een toeristische trekpleister als een stukje cultureel erfgoed, met een museum en proeverijen. Daarnaast zijn er historische bezienswaardigheden zoals de stadsmuren, wachttorens en kerken die de lange geschiedenis van de stad weerspiegelen.

De omgeving is rijk aan natuurlijke schoonheid, met wandelpaden langs de kust richting Benidorm en rustige baaitjes zoals Cala del Torres en Playa del Paradís. Deze stranden bieden helder water en zijn ideaal voor zwemmen, snorkelen of kajakken. Voor natuurliefhebbers zijn er routes door het achterland richting het berggebied van Aitana of de nabijgelegen rivierbedding van Amadorio, waar je kunt wandelen, fietsen of gewoon genieten van de rust.

Villajoyosa ligt op slechts twintig minuten rijden van Benidorm en dertig minuten van de luchthaven van Alicante, wat zorgt voor uitstekende bereikbaarheid zonder dat je in het massatoerisme terechtkomt. De stad is veel rustiger en lokaler van karakter, met een fijne balans tussen Spaanse traditie en internationale toegankelijkheid. Er zijn scholen, supermarkten, medische voorzieningen en goede openbaarvervoerverbindingen naar Alicante en Dénia, wat het ook praktisch maakt voor dagelijks leven.

De combinatie van zeezicht, historische charme, levendige cultuur en moderne voorzieningen maakt Villajoyosa tot een plek waar het aangenaam en gebalanceerd wonen is. Of je nu houdt van strand, gastronomie, erfgoed of natuur: hier komt alles samen in een kleinschalige maar complete kustgemeente.

Wat Villajoyosa voor insiders bijzonder maakt, is het netwerk van oude wandelpaden dat nog steeds de kust verbindt met het achterland. Een van de mooiste, maar weinig bekende routes loopt langs de rivier Amadorio en voert je naar stille uitkijkpunten waar je de stad, de zee en de kleurrijke gevels van bovenaf ziet. Deze paden worden vooral gebruikt door locals die op weg zijn naar hun moestuinen of citrusboomgaarden net buiten de stad, waardoor je onderweg niet alleen natuur, maar ook het authentieke dorpsleven tegenkomt.

Daarnaast heeft Villajoyosa een verborgen culinaire traditie die buiten de regio nauwelijks bekend is: gerechten waarin chocolade wordt verwerkt in hartige bereidingen. Dit gebruik stamt uit de tijd dat de stad een belangrijke rol speelde in de import van cacao uit Zuid-Amerika. In sommige traditionele restaurants kun je nog stoofgerechten proeven waarbij een vleugje pure chocolade wordt toegevoegd om de saus diepte en warmte te geven. Het is een smaakcombinatie die je nergens anders aan de Costa Blanca op deze manier tegenkomt, en die de stad een extra, onverwachte laag geeft voor wie verder kijkt dan de bekende hoogtepunten.

Woningen binnen AllonBay Hills: 

Type woning  Aantal slaapkamers / badkamers  Oppervlakte terras Bebouwde oppervlakte  Prijs 
Gelijkvloers appartement  2/2  23m² 78m² €318.000
Appartement met terras 1/1 9m² 47m² €225.000
Appartement met terras 2/2  14m² 73m² €290.000
Penthouse  2/2  40m² 81m² €398.000

Deze woningen zijn slechts een beperkte selectie, uiteraard zijn er meer dan 4 appartementen beschikbaar. Neem gerust contact met ons op voor meer informatie!

Groei en trends binnen Villajoyosa; 

Jaar  Prijs per m² Jaarlijkse stijging 
2023 €2.400 -
2024 €2.580 +7.5%
2025 €2.750 +6.6%


Kenmerken:

Aantal slaapkamers 2
Aantal badkamers 2
Gedeeld zwembad Ja
Terras Ja
Bebouwde oppervlakte 79 m²
Bewoonbare oppervlakte 66 m²
Fietsafstand van het strand Ja
Terras oppervlakte 22 m²
Vloerverwarming badkamer Ja
Douche schermen Ja
Jaccuzi Ja
Afstand naar het strand 0.06 km
Solarium Gedeeld
Volledige airco installatie Ja
Led verlichting buiten Ja
Led verlichting binnen Ja
Zeezicht Ja
privé parkeerplaats Ja
Ondergrondse parking Ja
Telefoon Data aansluiting Ja
Videofonie Ja
Inbouwkasten Ja
Aero thermische warmtepomp Ja
Poort Ja
Elektrische poort Ja
Pre installatie elektrisch laadpunt Ja
Badkamer spiegels Ja
Alle keuken apparatuur volledig inbegrepen Ja
Kookplaat Dampkap Magnetron & Oven Ja
Nabij kinder speeltuin Ja
Fitness ruimte Ja
Gedeelde tuin Ja
Golfresort afstand in km 5-10 km
Ziekenhuis afstand in km 0-5 km
Nabij Commercieel centrum Ja
Luchthaven Alicante afstand 40-50 km
Luchthaven Murcia afstand 50+ km
Gedeelde kosten Ja
Lift Ja
Ontspanning ruimte buiten Ja
Hangend toilet Ja
Hangend badkamer meubel Ja
Uitzicht op het zwembad Ja
Spa center Ja
Volledig ingerichte keuken Ja
Dampkap Ja
Gepantserde toegangsdeur met veiligheidsslot Ja
Hoogwaardige afwerking Ja
Goede prijs-kwaliteit verhouding Ja
Aerothermische boiler Ja
Gelijkvloers Ja
Luxe nieuwbouw Ja
Goed gebied voor rentabiliteit van huur Ja
Wandelafstand van het strand Ja
Fietsberging Ja
Social club Ja
Energielabel B
Afgewerkte badkamer Ja
Gesloten urbanisatie Ja

Meer info?


Beschikbare documenten

gelijkvloers.jpeg

document-gelijkvloers.jpeg

download

Ontdek wat we nog meer voor jou in petto hebben!

Moderne Ibiza-stijl villa te koop in Benissa
Moderne Ibiza-stijl villa te koop in Benissa

Project: Serenity: Gelijkvloerse Ibiza-stijl villa

Stad: Benissa

3   2     139 m²   68 m²  

Luxe villa Lysandra in Orihuela Costa, La Zenia
Luxe villa Lysandra in Orihuela Costa, La Zenia

Project: Luxe villa in Orihuela Costa - Lysandra Villa

Stad: Orihuela Costa-Alicante

3   4     203 m²   160 m²  

Luxe villa’s met zwembad in Desert Springs.
Luxe villa’s met zwembad in Desert Springs.

Project: Villa's op Golfresort Desert Spring Resort

Stad: Cuevas Del Almanzora

3   3     174 m²   51 m²  

Luxe villa op eerstelijn zee
Luxe villa op eerstelijn zee

Project: Residentie 3 Palmeras in Puerto de Mazarron

Stad: Puerto de Mazarrón

3   3     182 m²   56 m²  

Vrijstaande luxewoning in Arena Beach III
Vrijstaande luxewoning in Arena Beach III

Project: Arena golf villa's in La Finca Golf

Stad: Algorfa

6   3     486 m²   52 m²  

Luxevilla met zicht op zee en natuur in Polop
Luxevilla met zicht op zee en natuur in Polop

Project: Luxe nieuwbouw villa met zeezicht in Polop

Stad: Polop-Benidorm

4   3     208 m²   160 m²  

Villa met prachtig bergzicht in residentie Airen
Villa met prachtig bergzicht in residentie Airen

Project: Airen: eco-vriendelijke luxe villa's in Llíber

Stad: Llíber

3   2     432.76 m²    

Villa met prachtig bergzicht in residentie Airen
Villa met prachtig bergzicht in residentie Airen

Project: Airen: eco-vriendelijke luxe villa's in Llíber

Stad: Llíber

3   2     432.76 m²    

Luxe villa op eerstelijn zee
Luxe villa op eerstelijn zee

Project: Residentie 3 Palmeras in Puerto de Mazarron

Stad: Puerto de Mazarrón

3   3     182 m²   56 m²  

Luxueuze nieuwbouwvilla's in Sierra Cortina!
Luxueuze nieuwbouwvilla's in Sierra Cortina!

Project: Residentie Sea View 6: Luxe woningen nabij de zee

Stad: Finestrat-Benidorm

3   3     155 m²   69 m²  

Exclusieve ruime villa in Roldán
Exclusieve ruime villa in Roldán

Project: VILLAS ROLDÁN

Stad: Roldan

3   2     199 m²   106 m²  

Appartement met terras in Azure Icons
Appartement met terras in Azure Icons

Project: Residentie Azure Icons in Calpe

Stad: Calpe-Costa-Blanca

3   2     125 m²   30 m²  

Lees mee met onze nieuwste blogs!

Pensioen in Spanje: wat je moet weten
Pensioen in Spanje: wat je moet weten

Droom je van een zorgeloos leven onder de Spaanse zon? Ontdek waarom steeds meer gepensioneerden kiezen voor Spanje. Met een gemiddeld pensioen van €1.500 per maand geniet je hier van rust, comfort en een hoge levenskwaliteit. Betaalbaar wonen, een mild klimaat, uitstekende gezondheidszorg en e...

Martine

Genieten van pensioen aan de Costa Blanca Spanje
Genieten van pensioen aan de Costa Blanca Spanje

Ontdek hoe gepensioneerden aan de Costa Blanca een nieuw, actief leven opbouwen. Zon, rust en gezondheid vormen de basis van een vitaal pensioen in Spanje.

...

Martine

Villajoyosa is de verborgen parel van Europa
Villajoyosa is de verborgen parel van Europa

Villajoyosa werd bekroond als verborgen parel van Europa. Een stad vol kleur, verhalen en schoonheid aan de Costa Blanca.

...

Juliette

square-box
Tine
Vragen over panden, projecten en onze content
Snel starten:

Hallo, ik ben Tine je kan bij mij terecht met al je vragen over panden, projecten en onze content. Ik antwoord alleen op basis van de beschikbare website-inhoud.