Home Lopende projecten Alle Panden Over ons Ons team Ons kantoor Onze werkwijze Contacteer ons Blog Cookies

laatste kans

Geschakelde woning met zwembad en solarium

 Project: VILLACOSTA CLUB 2: Nieuwbouw woning in Villamartin

Nieuwbouwwoning in Orihuela Costa: met solarium!

Korte beschrijving:

GESCHAKELDE VILLA MET 2 SLAAPKAMERS EN 2 BADKAMERS - SOLARIUM - PARKEERPLAATS - LAATSTE KANS

Deze villa heeft 2 slaapkamers met elk een aansluitende badkamer! De villa is verdeeld over 3 verdiepingen, met op de tweede verdieping een solarium met buitenkeuken en buitendouche. Elke slaapkamer is voorzien van inbouwkasten en grote schuiframen. De woning is gelegen in Orihuela Costa, omringd door 3 golfbanen. Op slechts een paar minuten rijden vinden we het prachtige strand waar je diverse watersporten kan uitoefenen. Een halfuur rijden en je bereikt de luchthaven van Alicante, hierdoor wordt reizen uitermate gemakkelijk. 

LAATSTE KANS! Nog maar 1 woning beschikbaar! 

U bent nog niet aangemeld!

Na invullen van onderstaande gegevens wordt u aangemeld, indien er nog geen account bestaat kan deze aangemaakt worden!



 Geef ons uw mening...

 Momenteel nog geen reviews voor dit pand.

Uitgebreide beschrijving:

Deze nieuwbouwvilla is een geschakelde woning, ingesloten door andere villa's. Er zijn 2 slaapkamers met elk een aansluitende badkamer. De villa is verdeeld over 3 verdiepingen. Op de begane vloer is de eerste slaapkamer met badkamer-ensuite te vinden. Alle badkamers zijn uitgerust met een douchescherm, spiegel, badkamermeubel en toilet. Alle slaapkamers zijn voorzien van witte inbouwkasten met een hangrek en ladekast. Op het gelijkvloers is er ook een ruime leefruimte met een open keuken. De leefruimte kijkt via grote schuiframen uit op jouw eigen tuin. 

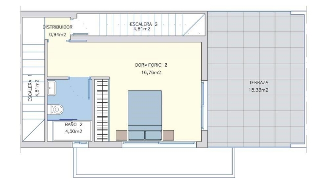
Een verdieping hoger, vind je de tweede slaapkamer met de tweede badkamer. Deze slaapkamer is de enige slaapkamer op deze verdieping, waardoor de privacy centraal staat. Vanuit de slaapkamer betreed je jouw eigen terras van ruim 22m². Op de tweede verdieping vind je jouw solarium van 33m². Hier kan je de hele dag door genieten van de zon en prachtige zonsondergangen. Op het solarium is er een buitendouche en buitenkeuken aanwezig. Tegen een meerprijs is het mogelijk om een privézwembad te hebben , van 5.5 m op 2.5 m. 

Extra troeven aan deze woning: 

  • Keramische tegels, buitentegels zijn antislip 
  • Parkeerplaats
  • Pré-installatie airconditioning 
  • Voordeur met veiligheidsslot 
  • Waterkoker met aerothermisch systeem
  • Tv- en telefoonaansluiting
  • Buitenkeuken 

Orihuela Costa, gelegen in de provincie Alicante, is een prachtig kustgebied dat bekendstaat om zijn schitterende stranden en levendige gemeenschappen. De kustlijn van Orihuela Costa strekt zich uit over meer dan 16 kilometer en biedt idyllische stranden zoals Playa Flamenca, La Zenia en Cabo Roig. Deze stranden zijn perfect voor zonnebaden, zwemmen en watersporten. Golfliefhebbers kunnen genieten van verschillende gerenommeerde golfbanen, zoals Villamartin Golf Club en Las Ramblas Golf. Het La Zenia Boulevard winkelcentrum biedt een breed scala aan winkels, restaurants en entertainmentopties, waardoor het een populaire bestemming is voor een dagje uit. Orihuela Costa heeft een kosmopolitische gemeenschap met vele internationale bewoners en toeristen. De regio biedt talloze restaurants met internationale en Spaanse gerechten, evenals lokale markten en festivals die de cultuur en tradities van de regio weerspiegelen. Natuurliefhebbers kunnen genieten van wandel- en fietspaden in natuurgebieden zoals het Parque Natural de las Lagunas de La Mata y Torrevieja. De goede verbindingen, waaronder de nabijgelegen luchthaven van Alicante, maken reizen gemakkelijk en toegankelijk. Orihuela Costa biedt moderne voorzieningen zoals scholen, medische centra en sportfaciliteiten, wat bijdraagt aan een comfortabele en ontspannen levensstijl aan de Middellandse Zee.



Kenmerken:

Aantal slaapkamers 2
Aantal badkamers 2
Privaat zwembad Optioneel
Oppervlakte perceel rond het huis 104 m²
Bebouwde oppervlakte 100 m²
Bewoonbare oppervlakte 80 m²
Afstand naar het strand 5 km
Terras oppervlakte 50 m²
Private Tuin Ja
Poort Ja
Nabij Scholen Ja
Nabij Commercieel centrum Ja
Terras Ja
Fietsafstand van het strand Ja
Douche schermen Ja
Buitenkeuken Ja
Jaccuzi Ja
Nabij bushalte Ja
Solarium Ja
Solarium oppervlakte in m2 30-40 m²
Pré installatie airco Ja
Led verlichting buiten Ja
Led verlichting binnen Ja
privé parkeerplaats Ja
Telefoon Data aansluiting Ja
Videofonie Ja
Inbouwkasten Ja
Badkamer spiegels Ja
Alle keuken apparatuur volledig inbegrepen Ja
Nabij kinder speeltuin Ja
Golfresort afstand in km 2-5 km
Ziekenhuis afstand in km 5-10 km
Luchthaven Alicante afstand 50+ km
Luchthaven Murcia afstand 50+ km
Uitzicht tuin Ja
Ontspanning ruimte buiten Ja
Ontspanning ruimte binnen Ja
Hangend toilet Ja
Hangend badkamer meubel Ja
Security glas met uv filter Ja
Volledig ingerichte keuken Ja
Gepantserde toegangsdeur met veiligheidsslot Ja
Kunstgras Ja
Grote ramen van vloer tot plafond Ja
Hoogwaardige afwerking Ja
Goede prijs-kwaliteit verhouding Ja
Aerothermische boiler Ja
Hoge plafonds Ja
Gelijkvloers Ja
Gelijkvloers met tuin Ja
Luxe nieuwbouw Ja
Kijkwoning Ja
Goed gebied voor rentabiliteit van huur Ja
Geschakelde woning Ja
Automatische irrigatie in de tuin. Ja
Fietsberging Ja
Energielabel B
Afgewerkte badkamer Ja

Meer info?


Beschikbare documenten

Schermopname_12-9-2024_135652_www.redsp.net.jpeg

document-Schermopname_12-9-2024_135652_www.redsp.net.jpeg

download
Schermopname_12-9-2024_135639_www.redsp.net.jpeg

document-Schermopname_12-9-2024_135639_www.redsp.net.jpeg

download

Ontdek het laatste nieuws!

Administratief medewerker vastgoed Spanje gezocht
Administratief medewerker vastgoed Spanje gezocht

Droom jij van werken onder de Spaanse zon én deel uitmaken van een ambitieus vastgoedteam aan de Costa Blanca?

Bij Casas Kimpencio zoeken we een administratieve topper die structuur brengt, klanten professioneel opvolgt en mee wil bouwen aan een groeiend succesverhaal.

Jij wordt de...

Martine

Koningsdag Spanje: Feest aan de Costa Blanca
Koningsdag Spanje: Feest aan de Costa Blanca

Koningsdag 2026 in Spanje

Waar vieren Belgen en Nederlanders het feest aan de Costa Blanca?

Vier Koningsdag 2026 in Spanje en ontdek waarom zoveel Belgen en Nederlanders kiezen voor de Costa Blanca.

Van grote festivals in steden zoals Valencia en Barcelona tot gezellige lokale...

Martine

Nederlanders kopen meer huizen in Spanje
Nederlanders kopen meer huizen in Spanje

In 2025 kochten buitenlanders 69.690 woningen in Spanje, iets minder dan in 2024.


...

Martine

square-box
Tine
Vragen over panden, projecten en onze content
Snel starten:

Hallo, ik ben Tine je kan bij mij terecht met al je vragen over panden, projecten en onze content. Ik antwoord alleen op basis van de beschikbare website-inhoud.