Hoogwaardig appartement met privé tuin op de begane grond!
Project: Stijlvolle appartementen in Cala Finestrat
Grijp je kans: tuinappartement op toplocatie!
Korte beschrijving:
🏡 VISTA CALA 52 - Appartement die jouw mediterrane droom waarmaakt!
Een appartement op de bagane grond met privétuin vanaf slecht €369.000!
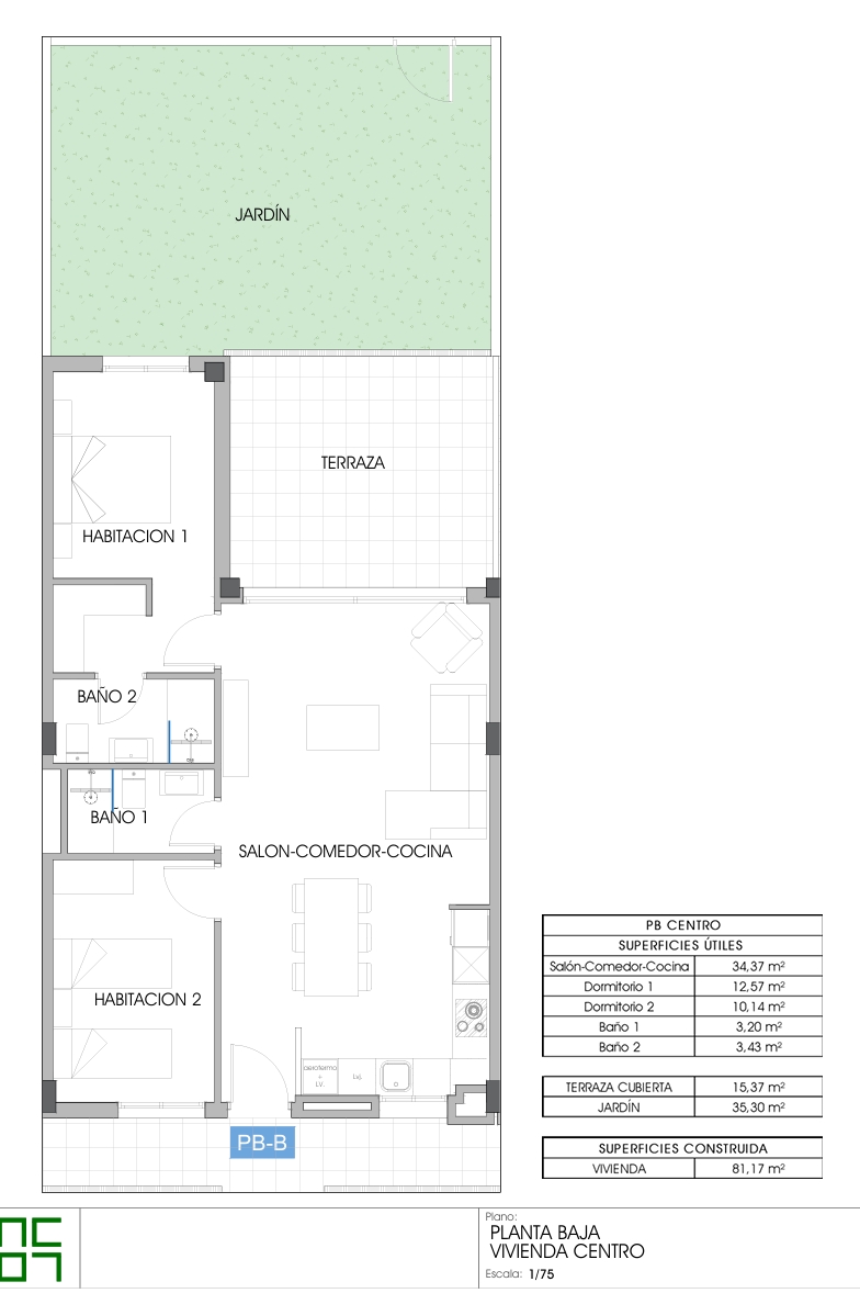
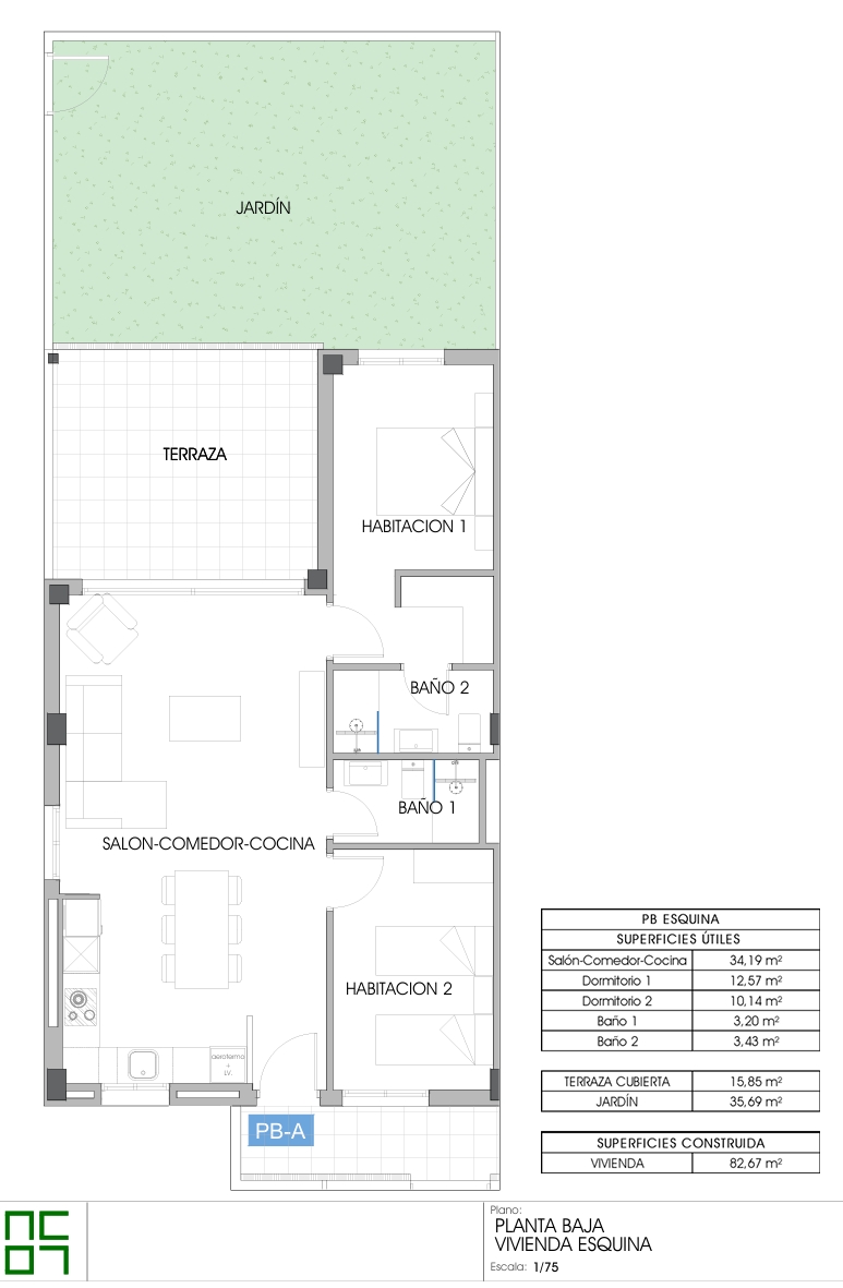
Ontdek dit exclusieve begane grond appartement in het rustige Cala Finestrat, vlak bij het charmante Villajoyosa en het bruisende Benidorm aan de Costa Blanca. Dit appartement maakt deel uit van een stijlvol nieuwbouwproject met 52 moderne woningen, en biedt jou de perfecte mix van comfort, locatie en mediterrane levensstijl. Met een royale privé tuin van bijna 36 m², een zonnig terras én hoogwaardige afwerking is dit jouw kans op zorgeloos wonen in Spanje!
Geniet van een doordacht ontwerp met veel natuurlijk lichtinval, twee ruime slaapkamers waarvan één met ensuite badkamer en inloopkast, en een open keuken met kwaliteitsapparatuur. Dankzij de grote raampuien vloeien binnen en buiten moeiteloos in elkaar over. Ideaal voor ontspanning of een gezellige avond met vrienden in jouw eigen groene oase!
Neem vandaag nog contact op om één van de eerste te zijn die de perfecte plek uitkiest!
U bent nog niet aangemeld!
 Geef ons uw mening...
Vanaf: €369.000
Ref: KIMP-PROP-4122
Uitgebreide beschrijving:
Nieuwbouw appartementen - Wonen op een toplocatie vlakbij Cala Finestrat, Villajoyosa! ☀️
Ontdek deze prachtige ruime appartementen aan de Costa Blanca, op slechts 1 km van het schitterende Cala de Finestrat strand!
In Cala Finestrat, tussen de charmante stadjes Villajoyosa en Finestrat en het bruisende Benidorm, vind je dit unieke nieuwbouwproject met 52 moderne appartementen. Deze combineren niet alleen stijl en comfort, maar ook de ultieme mediterrane levenstijl waar je naar op zoek bent.
Grijp deze unieke kans voordat anderen het doen. Kies voor zekerheid, rust en de mooiste locatie!
Op slechts 400 meter lopen vind je alles wat je nodig hebt: gezellige winkelcentra zoals La Marina, heerlijke restaurants, bars en sportfaciliteiten om actief te blijven. Wil je een dagje naar het strand? Geen zorgen, want op niet meer dan 1 km afstand vanuit je hoogwaardige appartement bereik je het prachtige Cala de Finestrat! Ook de fantastische en geliefde golfbaan Puig Campana, die op enkel 6 km afstand ligt, is binnen handbereik voor de golfliefhebbers.
Voor elk wat wils: Jouw ideale appartement in Cala Finestrat
➡ Appartementen op de begane grond: met privé tuin van bijna 36 m², waar je buiten kunt genieten van het zonnetje en je eigen groene oase creëert vanaf €369.000!
➡ Appartementen op de middelste verdieping: met ruime terassen om als je vrienden uit te nodigen voor een zonnige lunch of om simpelweg te ontspannen na een dag op het strand vanaf slechts €349.000!
➡ Appartementen op de bovenste verdieping: met enorme terrassen van maar liefst 46 m² en panoramisch uitzicht op de zee. De perfecte privé plek om van het uitzicht te genieten, elke ochtend en avond! Prijzen beginnen vanaf €550.000!
Wat kun je van de appartementen verwachten?
- ➡️ 2 slaapkamers & 2 badkamers, waarvan één ensuite en een inloopkast in de hoofdslaapkamer
- ➡️ Inbouwkasten in de tweede slaapkamer
- ➡️ Ruime inloopdouches met glazen douchescherm
- ➡️ Een open, strakke en ruime keuken met kwaliteitsapparatuur
- ➡️ Een doordachte ruime leefruimte met veel natuurlijk lichtinval
- ➡️ Zonnige terrassen van bijna 16 m² tot wel 46 m² op de bovenste verdieping
- ➡️ Grote raampuien die het terras met de leefruimte verbinden en een échte binnen-buiten sfeer creëren
- ➡️ Alle appartementen zijn voorzien van een stevige veiligheidsdeur
Alles in één: Dit zit er bij de prijs inbegrepen!
Bij dit project hoef je geen extra kosten of verrassingen te verwachten. Jouw nieuwe woning is volledig uitgerust met een zorgeloze start. Wat je krijgt:
- ✅ Volledig ingerichte keuken met inbouwapparatuur
- ✅ Stijlvol afgewerkte én ingerichte badkamers met inloopdouche
- ✅ Volledige airconditioning (warm/koud) met thermostaat
- ✅ Elektrische rolluiken in de slaapkamers
- ✅ Sfeervolle spotverlichting (LED) in keuken en badkamers
- ✅ Privé parkeerplaats
Het complex
In dit exclusieve complex draait allen om comfort, gemak en gemoedsrust. Alles is tot in de puntjes geregeld, zodat jij je volledig kunt richten op genieten. Wat mag je verwachten?
- 🏡 Volledig omheind complex: met een afgesloten ingang voor extra veiligheid en privacy
- 🎥 Videofonie: zie altijd wie er voor de deur staat, veilig en makkelijk
- 🛗 Liften in het gebouw: vlot en comfortabel, liften die je naar alle 9 verdiepingen brengen
- 🏊 Twee ruime zwembaden: ideaal voor ontspanning of een frisse duik
- 🌿 Groen aangelegde zones: omgeven door rust en natuur, perfect om even te onthaasten, te relaxen of te picknicken
- 💪 Buitenfitness: sport in de openlucht en blijf fit met de Spaanse zon op je gezicht
- 🚗 Privé parkeerplaats: altijd een veilige plek voor jouw auto
Cala de Finestrat, Villajoyosa
Cala de Finestrat is een charmante kustplaats waar je geniet van een rustige baai, zacht zand en helderblauw water op slechts enkele minuten van het levendige Benidorm!
Wandel naar het strand, shop in het winkelcentrum om de hoek of ontdek de natuur rondom de indrukwekkende Puig Camane (golfbaan). Alles ligt dichtbij, van lokale restaurants tot gezellige markten.
📅 Planning en oplevering
Dit prachtige en gewilde woonproject wordt opgeleverd op 1 mei 2027. Dat lijkt misschien ver weg, maar de verkoop gaat razendsnel!
Wie nu instapt, verzekert zich van de beste ligging, het mooiste uitzicht én de eerste keus.
Ben je enthousiast geworden?
Wacht dan niet langer! Neem vandaag nog contact op met Casas Kimpencio voor meer informatie, een brochure of om een bezichtiging in te plannen!
Jouw plekje onder de Spaanse zon begint hier! 🌞
Kenmerken:
Aantal slaapkamers | 2 | |
Aantal badkamers | 2 | |
Oppervlakte perceel rond het huis | 35 m² | |
Bebouwde oppervlakte | 81 m² | |
Bewoonbare oppervlakte | 70 m² | |
Afstand naar het strand | 1 km | |
Terras oppervlakte | 15 m² | |
Gedeeld zwembad | Ja | |
Private Tuin | Ja | |
Poort | Ja | |
Nabij Scholen | Ja | |
Nabij Commercieel centrum | Ja | |
Nabij bushalte | Ja | |
Terras | Ja | |
Fietsafstand van het strand | Ja | |
Douche schermen | Ja | |
Jaccuzi | Optioneel | |
Volledige airco installatie | Ja | |
Elektrische rolluiken | Ja | |
Led verlichting buiten | Ja | |
Led verlichting binnen | Ja | |
Zeezicht | Ja | |
privé parkeerplaats | Ja | |
Telefoon Data aansluiting | Ja | |
Videofonie | Ja | |
Inbouwkasten | Ja | |
Aero thermische warmtepomp | Ja | |
Badkamer spiegels | Ja | |
Volledig bemeubeld | Nee | |
Alle keuken apparatuur volledig inbegrepen | Ja | |
Kookplaat Dampkap Magnetron & Oven | Ja | |
Nabij kinder speeltuin | Ja | |
Buiten fitness | Ja | |
Kelder | Ja | |
Domotica | Ja | |
Golfresort afstand in km | 5-10 km | |
Ziekenhuis afstand in km | 0-5 km | |
Luchthaven Alicante afstand | 40-50 km | |
Luchthaven Murcia afstand | 50+ km | |
Uitzicht bergen | Ja | |
Lift | Ja | |
Ontspanning ruimte buiten | Ja | |
Ontspanning ruimte binnen | Ja | |
Hangend toilet | Ja | |
Hangend badkamer meubel | Ja | |
Uitzicht op het zwembad | Ja | |
Cameradeur met intercom terminal | Ja | |
Security glas met uv filter | Ja | |
Badkamer meubel en spiegels | Ja | |
Security 24/24 | Ja | |
Volledig ingerichte keuken | Ja | |
Gepantserde toegangsdeur met veiligheidsslot | Ja | |
Kranen met waterbesparing | Ja | |
Grote ramen van vloer tot plafond | Ja | |
Hoogwaardige afwerking | Ja | |
Goede prijs-kwaliteit verhouding | Ja | |
Aluminium rolgordijnen | Ja | |
Aerothermische boiler | Ja | |
Hoge plafonds | Ja | |
Meubelpakket | Optioneel | |
Gelijkvloers | Ja | |
Gelijkvloers met tuin | Ja | |
Bungalow | Ja | |
Extra grote ramen uitkijkend op tuin en zwembad | Ja | |
Goed gebied voor rentabiliteit van huur | Ja | |
Energielabel | A | |
Afgewerkte badkamer | Ja | |
Gesloten urbanisatie | Ja |
Meer info?
Ontdek wat we nog meer voor jou in petto hebben!

Moderne gerenoveerde villa met zwembad in Rafal
Project: Betaalbare villa's in Alicante – jouw droomhuis...
Stad: Rafal
4   2     207 m²   47 m²  

Zelfbouwvilla's in Pinoso - model MEDITERRANEO 4
Project: Zelf te bouwen villa :Villas Sunset in Pinoso
Stad: Pinoso
4   2     192 m²   74 m²  

Residentie Alonis: Appartement in Villajoyosa
Project: Residentie Alonis in Villajoyosa Tweede fase
Stad: Villajoyosa-Benidorm
2   2     119 m²   44 m²  

Residencial Lidia Mar-Campana Garden Villa Addaia
Project: Residencial Lidia Mar-Campana Garden
Stad: Finestrat-Benidorm
3   3     198 m²   60 m²  

Sóller Residential : Gelijkvloerse luxe villa's
Project: Soller: Betaalbare luxe gelijksvloerse villa
Stad: Finestrat-Benidorm
3   2     132 m²   27 m²  

Villa Sunset-Residencial Catalina-Finestrart
Project: Villa Sunset-Residencial Catalina-Finestrat
Stad: Finestrat-Benidorm
3   3     167 m²   46 m²  

Nieuwe fase! Luxe villa’s in Sierra Cortina
Project: NIEUW NIEUW... Costabella Residences Phase II
Stad: Finestrat-Benidorm
2   3     145 m²   60 m²  

Gelijkvloers appartement met tuin in Alonis
Project: Residentie Alonis in Villajoyosa
Stad: Villajoyosa-Benidorm
2   2     95 m²   28 m²  

Villa met privézwembad en gasthuis
Project: Residentie Elysium in El Campello
Stad: El Campello
4   3     182 m²   60 m²  

Penthouse met zeezicht en groot terras
Project: Xeresa del Monte: Betaalbare woningen met zeezicht
Stad: Xeresa
3   2     89 m²   88 m²  

Villa met zicht op Puig campana golf met onderbouw
Project: Villas Paula II-Golf Puig Campana-Finestrat
Stad: Finestrat-Benidorm
3   3     285 m²   55 m²  

AURUM VILLAGE SAN JUAN
Project: AURUM VILLAGE SAN JUAN ALICANTE
Stad: San Juan De Alicante
3   2     295 m²   24 m²  
Ontdek de leukste weetjes over Spanje hier!

Grenzeloos genieten emigreer zorgeloos naar Spanje
Droom je van een leven in het prachtige Spanje? Of ben je al bezig met concrete plannen voor een nieuwe start? In beide gevallen heb je enorm veel vragen. Hoe werkt inschrijven in Spanje? Wat zijn de kosten van levensonderhoud? Hoe regel je een soepele verhuizing naar Spanje, inclusief je pensioe...
Martine

Waarom investeren in Costa Blanca loont?
Costa Blanca is een topbestemming voor slimme investeerders: betaalbare woningprijzen, sterke vraag, stabiele markt en winstgevende verhuurmogelijkheden.
Voeg daar de zonnige levensstijl aan toe, en je hebt een investering die rendeert én verrijkt.
Ontdek het met Casas Kimpencio!
Martine
