Home Lopende projecten Alle Panden Over ons Ons team Ons kantoor Onze werkwijze Contacteer ons Blog Cookies

verkocht

Ontdek wat Laguna Rosa Villas te bieden heeft !

 Project: Laguna Rosa Villas-Torretas-Torrevieja

Boek snel jouw bezichtigingsreis! Tot binnenkort!

Korte beschrijving:

Welkom in deze prachtige INSTAPKLARE nieuwbouw villa, ontworpen om het ultieme comfort en luxe te bieden voor jou en je vrienden of familie.

Ontvang nu gratis huisverlichting, doucheschermen in badkamers en een pakket met witgoed bij de lancering! Wees er snel bij!

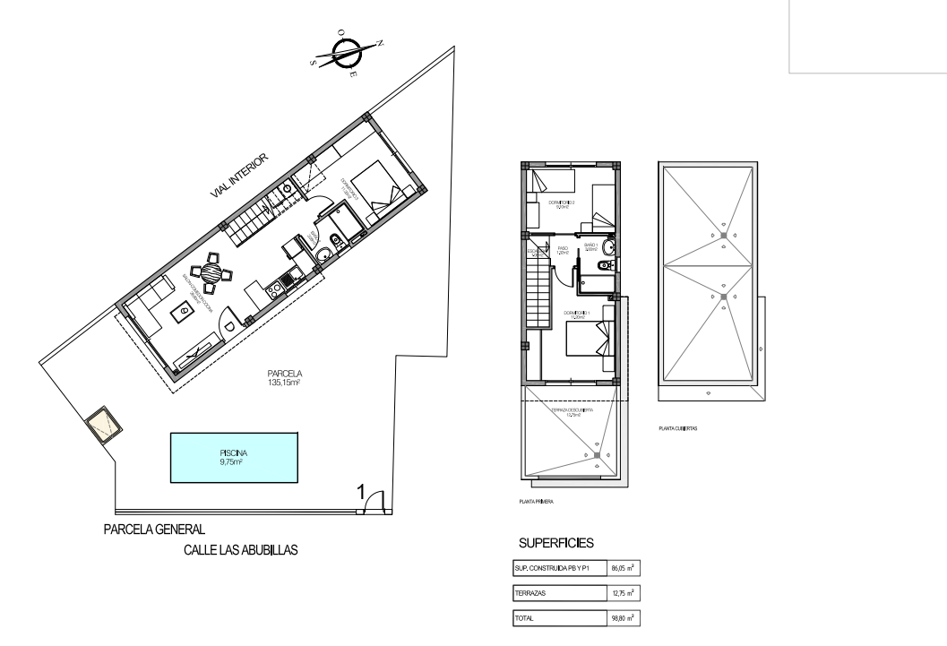
Deze schitterende woning strekt zich uit over twee verdiepingen en beschikt over 3 ruime slaapkamers en 3 smaakvolle badkamers, open keuken met zithoek, inbouwkasten, terras en privé solarium. Perfect voor gezinnen van elke omvang.

Mis deze kans niet om jouw droomhuis te ontdekken! Boek nu jouw GRATIS bezichtigingsreis en verken de prachtige omgeving en modelwoning van Laguna Rosa Villas. Laat ons je begeleiden op deze spannende reis naar jouw toekomstige thuis. We kijken ernaar uit om je te verwelkomen en je alle mogelijkheden te laten zien die Laguna Rosa Villas te bieden heeft. Tot snel!



U bent nog niet aangemeld!

Na invullen van onderstaande gegevens wordt u aangemeld, indien er nog geen account bestaat kan deze aangemaakt worden!



 Geef ons uw mening...

 Momenteel nog geen reviews voor dit pand.

Uitgebreide beschrijving:

Geniet van de open keuken met gezellige zithoek, ideaal voor het creëren van onvergetelijke momenten met vrienden en familie.

Dankzij de handige inbouwkasten heb je altijd voldoende opbergruimte voor al je bezittingen.

Stap naar buiten en laat je betoveren door het prachtige terras en het privé solarium, waar je kunt genieten van adembenemende uitzichten op de omgeving.

De villa wordt compleet geleverd met meubilair en airconditioning, zodat je meteen kunt genieten van je nieuwe thuis.

Ontspan en verfris jezelf in de weelderige tuin, omringd door groen, en neem een verfrissende duik in je eigen privé zwembad.

Met een eigen parkeerplaats op het perceel hoef je je nooit zorgen te maken over het vinden van een plekje voor je auto.

Dompel jezelf onder in luxe en comfort in deze prachtige villa, waar elk detail zorgvuldig is ontworpen om jouw levensstijl te verbeteren. Welkom thuis.

Prijzen voor Laguna Rosa Villas beginnen bij €349.000 voor een villa met 3 slaapkamers en 2 badkamers, en €360.000 voor een villa met 3 slaapkamers en 3 badkamers.

Boek nu jouw GRATIS bezichtigingsreis en ontdek de pracht van Laguna Rosa Villas.

Ontdek Torrevieja en alles wat deze levendige stad te bieden heeft!

Belangrijke voorzieningen in de buurt van dit project:

-Strand: 3,5 km

-Golfresort: 17 km

-Winkels, bars & restaurants: 500 m

-Luchthaven Alicante: 45 kmLuchthaven Murcia: 63 km

-Ziekenhuis: 7 km

Mis deze unieke kans niet en maak Laguna Rosa Villas jouw thuis weg van huis aan de prachtige Costa Blanca!

Welkom in Torrevieja, een levendige stad aan de prachtige Costa Blanca die de harten van toeristen uit heel Europa heeft veroverd.

Van een bescheiden vissershaventje is Torrevieja uitgegroeid tot een bruisende bestemming vol leven en energie.

Gelegen aan de kust, biedt Torrevieja een scala aan prachtige stranden die perfect zijn voor een dagje zonnebaden of een verfrissende duik in de Middellandse Zee.

Langs de 3 kilometer lange wandelpromenade langs de zee vind je talloze terrasjes, winkels en restaurants, waar je kunt genieten van heerlijke lokale gerechten en de ontspannen sfeer kunt proeven.

De haven van Torrevieja, gelegen in het hart van de stad, is een bruisend centrum van activiteit. Hier vertrekken boten naar het betoverende eiland Tabarca, een paradijs voor liefhebbers van natuur en geschiedenis. Bovendien biedt de haven volop mogelijkheden voor watersporten, van zeilen tot jetskiën, waardoor avonturiers van alle leeftijden zich hier kunnen vermaken.

Een van de hoogtepunten van Torrevieja is de wekelijkse markt, een kleurrijke en levendige plek waar je lokale producten, handwerk en souvenirs kunt vinden.

Het is de perfecte plek om de lokale cultuur te ervaren en unieke schatten te ontdekken.

Voor golfliefhebbers biedt Torrevieja ook een paradijs. Op minder dan 15 minuten rijden vind je een aantal prachtige golfbanen, waaronder Las Ramblas, Villamartin, Las Colinas, Campoamor en La Finca, waar je kunt genieten van een uitdagend potje golf te midden van het prachtige landschap van de Costa Blanca.

In het binnenland ligt het natuurpark Lagunas de La Mata-Torrevieja met wandelpaden en twee zoute lagunes, de ene roze en de andere groen.

Of je nu op zoek bent naar ontspanning op het strand, avontuurlijke watersporten, heerlijk eten of een dagje golfen,

Torrevieja heeft voor elk wat wils. Dompel jezelf onder in de warme en gastvrije sfeer van deze bruisende badplaats en ontdek zelf de charme van Torrevieja.


Kenmerken:

Aantal slaapkamers 3
Aantal badkamers 2
Privaat zwembad Ja
Oppervlakte perceel rond het huis 135 m²
Bebouwde oppervlakte 86 m²
Bewoonbare oppervlakte 76 m²
Afstand naar het strand 3000 km
Terras oppervlakte 12 m²
Private Tuin Ja
Poort Ja
Nabij Scholen Ja
Nabij Commercieel centrum Ja
Nabij bushalte Ja

Meer info?


Beschikbare documenten

VIV N1.png

document-VIV N1.png

download
Development plan.jpg

document-Development plan.jpg

download

Maak je droom waar ontdek het hier!

Luxe villa eerste lijn in Cabo de Palos
Luxe villa eerste lijn in Cabo de Palos

Project: Luxe villa's eerste lijn in Cabo de Palos

Stad: Cabo de Palos

4   3     280 m²  

El Alba: Jouw slimme investering in Costa Cálida
El Alba: Jouw slimme investering in Costa Cálida

Project: Residencial universo homes in Resort El Alba

Stad: Torre-Pacheco - Murcia

2   2     81 m²   73 m²  

Villa Los Alcázares golf met zwembad Costa Cálida
Villa Los Alcázares golf met zwembad Costa Cálida

Project: Villa’s met verhuurlicentie – La Serena Breeze 3

Stad: Los Alcazares - Murcia - Mar Menor

3   2     101 m²   40 m²  

Ruim toeristisch appartement in Vera Playa
Ruim toeristisch appartement in Vera Playa

Project: Toeristisch vastgoed Spanje investering Vera Playa

Stad: Vera- regio Costa Almeria Andalusië

3   2     93 m²   12 m²  

Opbrengst-appartement in Aguilas
Opbrengst-appartement in Aguilas

Project: Investeren in appartementen vlak bij zee Águilas

Stad: Aguilas

2   1     61 m²   6 m²  

Villa met zwembad en onderbouw in Rojales
Villa met zwembad en onderbouw in Rojales

Project: Villa Ciudad Quesada – Auro I met kelderoptie

Stad: Rojales- Alicante

4   3     279 m²    

Villa op een groot perceel met uitzicht op natuur
Villa op een groot perceel met uitzicht op natuur

Project: Herverkoop van villa op groot perceel nabij golf

Stad: Ciudad Quesada

4   3   300 m²  

Penthouse met terras in residentie Talan 1
Penthouse met terras in residentie Talan 1

Project: Appartementen Torrevieja met zwembad Talan 1

Stad: Torrevieja-Alicante

2   2     74 m²   7 m²  

Residentie Valonia Resort in Punta Prima
Residentie Valonia Resort in Punta Prima

Project: Valonia Resort-Punta Prima-Torrevieja

Stad: Torrevieja-Alicante

3   2   116 m²   20 m²  

square-box
Tine
Vragen over panden, projecten en onze content
Snel starten:

Hallo, ik ben Tine je kan bij mij terecht met al je vragen over panden, projecten en onze content. Ik antwoord alleen op basis van de beschikbare website-inhoud.