Home Lopende projecten Alle Panden Over ons Ons team Ons kantoor Onze werkwijze Contacteer ons Blog Cookies

Luxueuze villa met infinity pool en zeezicht in Altea Hills

 Project: VILLA PETRA luxe in Altea Hills

Moderne luxe villa met panoramisch uitzicht in Altea

Korte beschrijving:

ommunity van Altea Hills, een van de meest gewilde woonwijken aan de Costa Blanca.

Gelegen op een verhoogd perceel biedt het pand een adembenemend panoramisch uitzicht op de Middellandse Zee en de omliggende bergen, terwijl het de hele dag door volledige privacy, rust en een uitstekende zonligging biedt.

Ontworpen met moderne architectuur en strakke lijnen, integreert de villa naadloos de binnen- en buitenruimtes.

Grote ramen van vloer tot plafond laten overvloedig natuurlijk licht binnenstromen, terwijl het prachtige uitzicht op zee en de directe toegang tot de terrassen en buitenruimtes optimaal worden benut.  

De buitenkant van de villa is zorgvuldig ontworpen om comfort en plezier te maximaliseren.

Een spectaculaire infinity pool versmelt visueel met de horizon, terwijl de aangelegde tuinen, chill-out zones en eetterrassen de perfecte setting bieden voor cocktails bij zonsondergang of diners in de buitenlucht.

De woning beschikt ook over ruimte voor een privé-fitnessruimte, een ultramoderne thuisbioscoop en een privégarage verbonden door een lift waarmee dit exclusieve lifestyle-aanbod compleet is. Toplocatie aan de Costa Blanca!

U bent nog niet aangemeld!

Na invullen van onderstaande gegevens wordt u aangemeld, indien er nog geen account bestaat kan deze aangemaakt worden!



 Geef ons uw mening...

 Momenteel nog geen reviews voor dit pand.

Uitgebreide beschrijving:

Ontdek deze indrukwekkende moderne villa in Altea Hills, een van de meest exclusieve en beveiligde woonwijken aan de noordelijke Costa Blanca.

Gelegen op een bevoorrechte, verhoogde positie geniet deze woning van een adembenemend panoramisch uitzicht op de Middellandse Zee en de omliggende bergen, terwijl rust, privacy en een optimale zonoriëntatie centraal staan.

De architectuur is eigentijds en verfijnd, met strakke lijnen en een doordachte indeling waarbij binnen- en buitenruimtes naadloos in elkaar overvloeien.

Grote raampartijen van vloer tot plafond laten het natuurlijke licht overvloedig binnen en kaderen het spectaculaire zeezicht als een levend schilderij in elke ruimte.

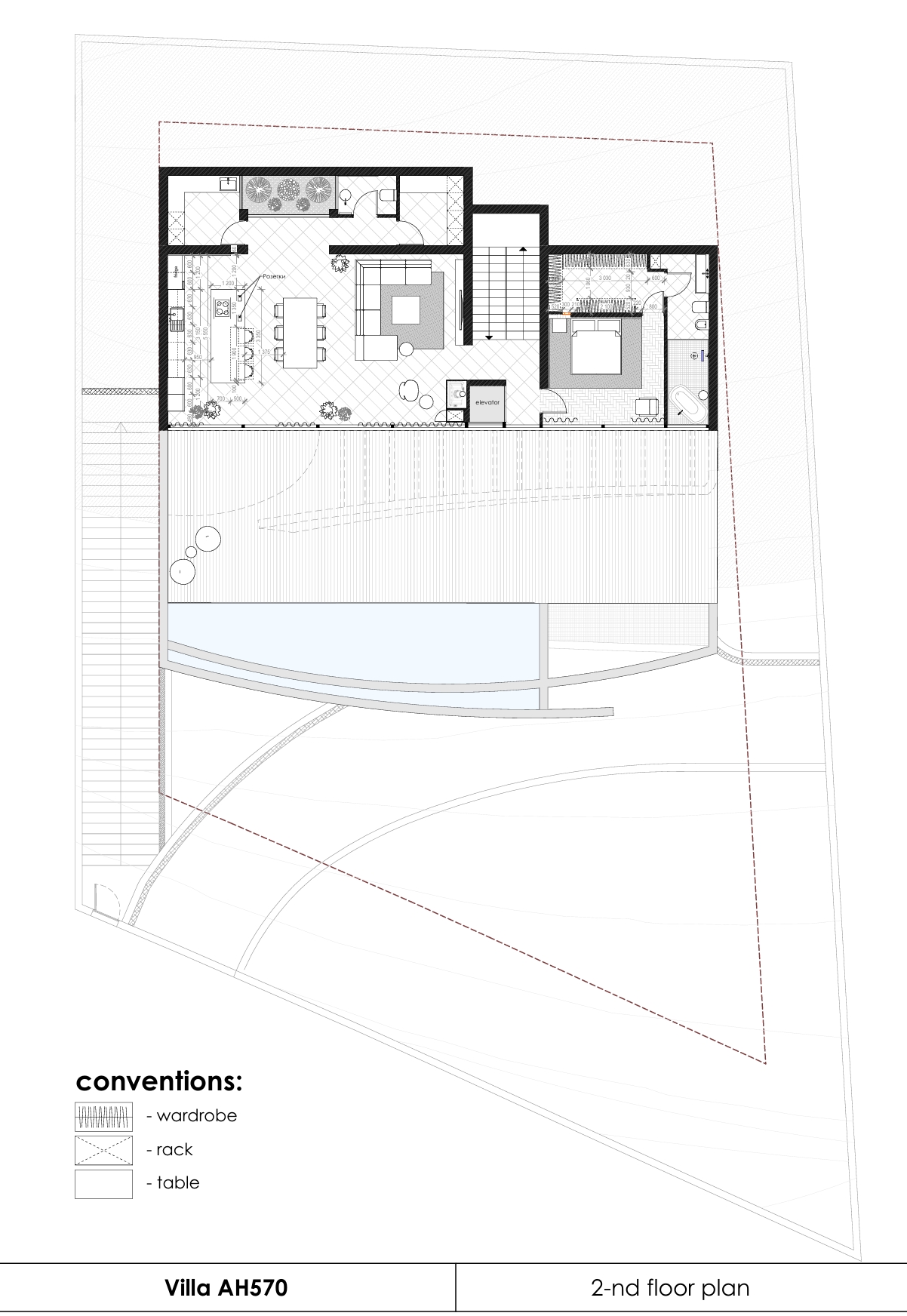
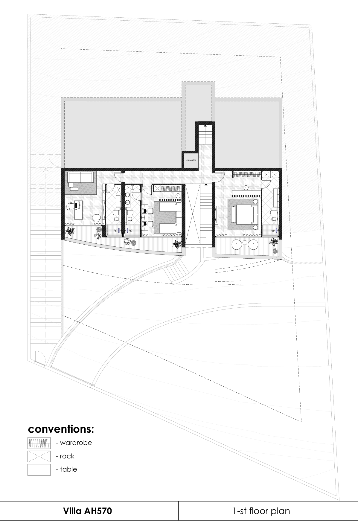
De villa strekt zich uit over drie niveaus, verbonden door een privélift, en biedt een uitzonderlijk gevoel van ruimte en comfort.

De leefruimte vormt het kloppende hart van de woning: een elegante open omgeving waar woonkamer, eetruimte en designkeuken harmonieus samenkomen.

De keuken, uitgerust met hoogwaardige Italiaanse kasten en premium apparatuur, combineert esthetiek met functionaliteit en nodigt uit tot gezellige momenten met familie en gasten.

Met vier stijlvolle slaapkamers, elk met een eigen badkamer en toegang tot een terras, biedt deze villa een ongeëvenaarde woonervaring.

De master suite is een waar toevluchtsoord, compleet met een ruime inloopkast en een luxueuze badkamer met vrijstaand bad en uitzicht op zee; een setting die doet denken aan een exclusieve spa. Ook op technisch vlak is aan alles gedacht:

  • vloerverwarming,
  • geïntegreerde airconditioning,
  • zonnepanelen en
  • hoogwaardige afwerkingen.

Buiten ontvouwt zich een waar paradijs.

Het infinity zwembad lijkt naadloos over te vloeien in de horizon, terwijl de verschillende terrassen, loungezones en eetruimtes een unieke sfeer creëren om te genieten van lange zomeravonden en spectaculaire zonsondergangen.

Deze villa biedt bovendien ruimte voor een privéfitness, een thuisbioscoop en een garage met twee plaatsen, waardoor het totaalplaatje van exclusief wonen aan de Costa Blanca volledig wordt gerealiseerd.

Afstanden tot belangrijkste bezienswaardigheden:

  • de internationale luchthaven van Alicante op 70 km
  • de luchthaven van Valencia op 140 km
  • de Altea Club de Golf op 5 km
  • de jachthaven Marina Greenwich op 4 km
  • stranden van Altea en Calpe op 3 tot 10 km

Altea Hills is een exclusieve en beveiligde woonwijk gelegen in de heuvels boven Altea, aan de Costa Blanca.

Deze prestigieuze urbanisatie staat bekend om haar luxueuze villa’s, spectaculaire panoramische zeezichten en de combinatie van rust, privacy en veiligheid dankzij 24/7 bewaking.

Door de verhoogde ligging geniet je hier van adembenemende vergezichten over de Middellandse Zee, de jachthaven van Marina Greenwich en de omliggende bergen.

De architectuur is modern en stijlvol, met veel aandacht voor licht, ruimte en buitenleven, wat perfect aansluit bij het mediterrane klimaat.

Altea Hills ligt op korte afstand van het charmante centrum van Altea, bekend om zijn witte huizen, smalle straatjes en de iconische kerk met blauwe koepel.

Tegelijk ben je ook snel in Calpe of Benidorm, wat zorgt voor een ideale combinatie van rust en bereikbaarheid.

Een leuk weetje is dat de jachthaven Marina Greenwich zich exact op de nulmeridiaan (0° lengtegraad) bevindt; een uniek geografisch detail dat je bijna nergens anders in Europa vindt.

Daarnaast zorgt de ligging van Altea Hills tegen de bergen voor een bijzonder mild microklimaat, waardoor het hier het hele jaar door aangenaam vertoeven is

Wij bij Casas Kimpencio vinden dit alvast over dit project:

  • de ligging in Altea Hills absoluut top is; een van de meest prestigieuze en beveiligde woonomgevingen aan de Costa Blanca Noord.
  • het panoramische zeezicht gecombineerd met bergzichten zorgt voor een indrukwekkende en blijvende meerwaarde.
  • de verhoogde positie garant staat voor maximale privacy, rust en optimale zonligging.
  • de villa beschikt over vier volwaardige slaapkamersuites, elk met eigen badkamer en terras; ideaal voor comfort en gasten.
  • de master suite met vrijstaand bad en zeezicht een echte wellnessbeleving in eigen huis creëert.
  • de aanwezigheid van een lift over alle verdiepingen het wooncomfort aanzienlijk verhoogt.
  • de buitenruimtes met infinity pool, terrassen en chill-out zones ontworpen zijn om maximaal te genieten van het mediterrane leven.
  • extra mogelijkheden zoals een fitnessruimte en thuisbioscoop deze woning naar een hoger luxeniveau tillen.


Groei en trends in deze regio:

Jaar Prijs per m² Jaarlijkse stijging
2023 1.380€
2024 1.450€ +5.1%
2025 1.500€ +3.4%


Kenmerken:

Aantal slaapkamers 4
Aantal badkamers 4
Privaat zwembad Ja
Oppervlakte perceel rond het huis 963 m²
Bebouwde oppervlakte 600 m²
Bewoonbare oppervlakte 443 m²
Afstand naar het strand 3 km
Terras oppervlakte 156 m²
Private Tuin Ja
Poort Ja
Nabij Scholen Ja
Nabij Commercieel centrum Ja
Verwarmd zwembad Ja
Terras Ja
Fietsafstand van het strand Ja
Vloerverwarming badkamer Ja
Douche schermen Ja
Volledige airco installatie Ja
Led verlichting buiten Ja
Led verlichting binnen Ja
Zeezicht Ja
privé parkeerplaats Ja
Garage Ja
Telefoon Data aansluiting Ja
Videofonie Ja
Inbouwkasten Ja
Aero thermische warmtepomp Ja
Alle keuken apparatuur volledig inbegrepen Ja
Kookplaat Dampkap Magnetron & Oven Ja
Berging Ja
Kelder Ja
Uitzicht tuin Ja
Golfresort afstand in km 5-10 km
Luchthaven Alicante afstand 50+ km
Lift Ja
Ontspanning ruimte binnen Ja
Hangend toilet Ja
Hangend badkamer meubel Ja
Zonnepanelen Ja
Uitzicht op het zwembad Ja
Overloopzwembad Ja
Security 24/24 Ja
Volledig ingerichte keuken Ja
Gepantserde toegangsdeur met veiligheidsslot Ja
Grote ramen van vloer tot plafond Ja
Hoogwaardige afwerking Ja
Aerothermische boiler Ja
Meubelpakket Optioneel
Luxe nieuwbouw Ja
Dressing Ja
Aangelegde tuin met grind, gras en planten. Ja
Volledige vloerverwarming Ja
Wandelafstand van het strand Ja
Automatische irrigatie in de tuin. Ja
Dubbele garage Ja
Open haard Ja
Extra verdieping ondergronds (basement) Ja
Fietsberging Ja
Energielabel B
Afgewerkte badkamer Ja
Gesloten urbanisatie Ja

Meer info?


Beschikbare documenten

Schermopname_29-3-2026_171136_geoscostablanca.com.jpeg

document-Schermopname_29-3-2026_171136_geoscostablanca.com.jpeg

download
Schermopname_29-3-2026_171124_geoscostablanca.com.jpeg

document-Schermopname_29-3-2026_171124_geoscostablanca.com.jpeg

download
Schermopname_29-3-2026_171110_geoscostablanca.com.jpeg

document-Schermopname_29-3-2026_171110_geoscostablanca.com.jpeg

download

Nog buitenkansen het ontdekken waard

Luxe villa Residencial Lidia Mar Campana Garden
Luxe villa Residencial Lidia Mar Campana Garden

Project: Villa's Residencial Lidia Mar-Campana Garden

Stad: Finestrat-Benidorm

4   3     242 m²   78 m²  

Moderne Ibiza-stijl villa te koop in Benissa
Moderne Ibiza-stijl villa te koop in Benissa

Project: Serenity: Gelijkvloerse Ibiza-stijl villa

Stad: Benissa

3   2     139 m²   68 m²  

Luxe villa Lysandra in Orihuela Costa, La Zenia
Luxe villa Lysandra in Orihuela Costa, La Zenia

Project: Luxe villa in Orihuela Costa - Lysandra Villa

Stad: Orihuela Costa-Alicante

3   4     203 m²   160 m²  

Luxe villa’s met zwembad in Desert Springs.
Luxe villa’s met zwembad in Desert Springs.

Project: Villa's op Golfresort Desert Spring Resort

Stad: Cuevas Del Almanzora

3   3     174 m²   51 m²  

Luxe villa op eerstelijn zee
Luxe villa op eerstelijn zee

Project: Residentie 3 Palmeras in Puerto de Mazarron

Stad: Puerto de Mazarrón

3   3     182 m²   56 m²  

Vrijstaande luxewoning in Arena Beach III
Vrijstaande luxewoning in Arena Beach III

Project: Arena golf villa's in La Finca Golf

Stad: Algorfa

6   3     486 m²   52 m²  

Luxevilla met zicht op zee en natuur in Polop
Luxevilla met zicht op zee en natuur in Polop

Project: Luxe nieuwbouw villa met zeezicht in Polop

Stad: Polop-Benidorm

4   3     208 m²   160 m²  

Villa met prachtig bergzicht in residentie Airen
Villa met prachtig bergzicht in residentie Airen

Project: Airen: eco-vriendelijke luxe villa's in Llíber

Stad: Llíber

3   2     432.76 m²    

Villa met prachtig bergzicht in residentie Airen
Villa met prachtig bergzicht in residentie Airen

Project: Airen: eco-vriendelijke luxe villa's in Llíber

Stad: Llíber

3   2     432.76 m²    

Luxe villa op eerstelijn zee
Luxe villa op eerstelijn zee

Project: Residentie 3 Palmeras in Puerto de Mazarron

Stad: Puerto de Mazarrón

3   3     182 m²   56 m²  

Luxueuze nieuwbouwvilla's in Sierra Cortina!
Luxueuze nieuwbouwvilla's in Sierra Cortina!

Project: Residentie Sea View 6: Luxe woningen nabij de zee

Stad: Finestrat-Benidorm

3   3     155 m²   69 m²  

Exclusieve ruime villa in Roldán
Exclusieve ruime villa in Roldán

Project: VILLAS ROLDÁN

Stad: Roldan

3   2     199 m²   106 m²  

Lees mee met onze informatieve blogs

Erfbelasting Spanje voor Belgen en Nederlanders
Erfbelasting Spanje voor Belgen en Nederlanders

Een woning kopen in Spanje draait niet alleen om zon, zee en levenskwaliteit, maar ook om slimme keuzes voor later.

Veel Belgen en Nederlanders denken pas te laat na over erfbelasting en successieplanning, terwijl dit grote financiële verschillen kan maken.

Vooral in de regio Valen...

Martine

Nieuwbouw vs bestaande woning Spanje kiezen
Nieuwbouw vs bestaande woning Spanje kiezen

Nieuwbouw of bestaande woning kopen in Spanje lijkt een eenvoudige keuze… tot je er écht induikt.

Want wat op het eerste zicht goedkoper lijkt, kan op lange termijn duurder uitvallen. En wat duurder lijkt, kan net de slimste investering zijn.

Bij Casas Kimpencio zien we dagelij...

Martine

Casas Kimpencio specialist vastgoed Spanje!
Casas Kimpencio specialist vastgoed Spanje!

Een huis kopen in Spanje begint vaak met een droom.

Voor sommigen is het het idee van lange zomeravonden op een terras onder de palmbomen.

Voor anderen gaat het om rust, levenskwaliteit, investeren of eindelijk tijd maken voor wat echt belangrijk is.

Maar tussen die eerste dr...

Martine

square-box
Tine
Vragen over panden, projecten en onze content
Snel starten:

Hallo, ik ben Tine je kan bij mij terecht met al je vragen over panden, projecten en onze content. Ik antwoord alleen op basis van de beschikbare website-inhoud.