Home Lopende projecten Alle Panden Over ons Ons team Ons kantoor Onze werkwijze Contacteer ons Blog Cookies

Nieuwbouw villa's in Dolores - Comfort en stijl in Alicante

 Project: Nieuwbouw Villa's in Dolores leef in Alicante

Dolores - Luxe wonen met eigen zwembad

Korte beschrijving:

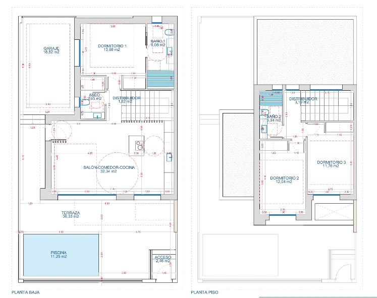
Woning 7 in Dolores: Eigentijdse luxe en comfort

Woning 7 heeft een totale oppervlakte van 151,50 m² en biedt een elegant ontwerp met 3 comfortabele slaapkamers en 3 stijlvolle badkamers.

De woonoppervlakte van 88,50 m² creëert een open en lichte leefruimte die ideaal is voor zowel dagelijks wonen als voor het ontvangen van gasten.

Het royale terras van 36,33 m² biedt een perfecte plek om te genieten van de natuur, of het nu gaat om ontspannen in de zon van dineren onder de sterren.

Daarnaast is de woning uitgerust met een garage van 18,82 m², ideaal voor parkwoning en extra opslag. Met een vanafprijs van €425.000 biedt woning 7 een uitstekende combinatie van stijl en functionaliteit in het rustige Dolores.

U bent nog niet aangemeld!

Na invullen van onderstaande gegevens wordt u aangemeld, indien er nog geen account bestaat kan deze aangemaakt worden!



 Geef ons uw mening...

 Momenteel nog geen reviews voor dit pand.

Uitgebreide beschrijving:

Nieuwbouw project met enkele halfvrijstaande villa's in Dolores

Stap binnen in een wereld van eigentijds comfort en stijl met deze prachtige nieuw gebouwde halfvrijstaande villa's in het charmante Dolores. Dit moderne woonproject biedt een unieke combinatie van luxe en functionaliteit, perfect voor gezinnen en levensgenieters.

Elke villa is slim ontworpen over twee verdiepingen en beschikt over drie ruime slaapkamers en drie elegante badkamers, waardoor ruimte en privacy gegarandeerd zijn.

Ontdek deze prachtig ontworpen halfvrijstaande villa's in het schilderachtige Dolores, Alicante. Met een prijs vanaf €420.000 bieden deze nieuwgebouwde woningen een ideale mix van moderne stijl, comfort en functionaliteit.

Ruimtelijke indeling

Elke villa is verdeeld over twee verdiepingen en heeft een totale bouwgrootte van 90 m². Met drie ruime slaapkamers en drie luxe badkamers, is deze woning perfect voor gezinnen of als vakantiehuis. De open keuken sluit naadloos aan op de lichte woonkamer, waardoor een uitnodigende en sociale sfeer ontstaat.

Grote glazen schuifdeuren leiden direct naar het privéterras en de tuin, waar je kunt genieten van de Spaanse zon.

Buitengebieden en voorzieningen

Elke villa beschikt over een eigen zwembad, perfect om te ontspannen op warme dagen, en een parkeerplaats voor gemakkelijke toegang. Het terras van 36 m² biedt voldoende ruimte voor buiten dineren of loungen, omringd door een onderhoudsvriendelijke tuin van 155 m².

Hoogwaardige afwerking

Deze villa's zijn gebouwd met hoogwaardige materialen en afwerkingen die zowel stijl als duurzaamheid waarborgen. Het buitenschrijnwerk is vervaardigd uit aluminium met thermische onderbreking, wat bijdraagt aan de energie-efficiëntie. De badkamers zijn uitgerust met moderne glazen douchewanden, en overal in de woning is LED-verlichting geïnstalleerd, wat zorgt voor een strakke, eigentijdse uitstraling.

Comfort en energiezuinigheid

De combinatie van moderne architectuur en hoogwaardige afwerkingen creëert een comfortabele en stijlvolle leefomgeving voor jou en je gezin.

Deze villa's zijn niet alleen visueel aantrekkelijk, maar ook ontworpen met het oog op energiezuinigheid en duurzaamheid, waardoor ze perfect zijn voor het moderne leven.

Met een verwachte opleverdatum van 1 oktober 2025, is dit jouw kans om een prachtig huis in Dolores te bemachtigen, omringd door de schoonheid van de Costa Blanca.


Een harmonieuze indeling

De open keuken, uitgerust met de nieuwste apparatuur, sluit naadloos aan op de lichte woonkamer. Grote glazen schuifdeuren leiden je direct naar een privéterras en een uitnodigende tuin, ideaal voor gezellige barbecues of ontspannen momenten in de zon. Het eigen zwembad biedt de perfecte ontsnapping op warme dagen, terwijl je vanaf je terras kunt genieten van het uitzicht op de groene omgeving.

Hoogwaardige afwerking en duurzame voorzieningen

De villa's zijn gebouwd met aandacht voor detail en zijn afgewerkt met hoogwaardige materialen. Het buitenschrijnwerk van aluminium met thermische onderbreking zorgt voor een energiezuinige woonomgeving, terwijl de stijlvolle badkamers met glazen douchewanden een luxe uitstraling hebben. Overal in het huis zijn LED-verlichting en slimme installaties geïnstalleerd, wat niet alleen bijdraagt aan de moderne sfeer, maar ook aan een lagere energierekening.

Ideale locatie met gemak binnen handbereik

Gelegen aan de rand van het schilderachtige stadje Dolores, vind je alle dagelijkse voorzieningen op loopafstand. Van lokale winkels en gezellige restaurants tot gezondheidscentra, alles is binnen handbereik.

Dolores,

gelegen in de prachtige regio Vega Baja del Segura, biedt een ontspannen levensstijl temidden van weelderige agrarische landschappen.

Dichtbij de mooiste bezienswaardigheden

Met de kust op slechts 10 km afstand kun je binnen een mum van tijd genieten van de prachtige stranden van La Marina en Guardamar.

De luchthavens van Alicante en Murcia-Corvera zijn gemakkelijk bereikbaar, ideaal voor frequente reizigers.

Voor de golfenthousiastelingen zijn er verschillende golfbanen binnen een straal van 15 km.

Strand La Marina: 10 km

Strand van Guardamar: 10 km

Luchthaven Alicante: 30 km

Luchthaven Murcia-Corvera: 60 km

Golfbanen: 15 km

Winkelcentra: 12 km

De perfecte levensstijl aan de Costa Blanca

Geniet van het milde mediterrane klimaat en de nabijheid van prachtige stranden en recreatiemogelijkheden.

Deze nieuwbouwwoningen in Dolores bieden de perfecte balans tussen ontspanning en activiteit, of je nu op zoek bent naar een vakantiehuis of een permanente verblijfplaats.

Ontdek de moderne woonstijl in een serene omgeving en maak van deze villa jouw nieuwe thuis!


Kenmerken:

Aantal slaapkamers 3
Aantal badkamers 3
Pré installatie airco Ja
Led verlichting buiten Ja
Led verlichting binnen Ja
privé parkeerplaats Ja
Telefoon Data aansluiting Ja
Videofonie Ja
Inbouwkasten Ja
Aero thermische warmtepomp Ja
Douche schermen Ja
Poort Ja
Badkamer spiegels Ja
Terras Ja
Solarium Ja
Privaat zwembad Ja
Verwarmd zwembad optioneel
Volledig bemeubeld Nee
Alle keuken apparatuur volledig inbegrepen Ja
Nabij kinder speeltuin Ja
Berging Ja
Private Tuin Ja
Golfresort afstand in km 10-15 km
Ziekenhuis afstand in km 5-10 km
Nabij Commercieel centrum Ja
Luchthaven Alicante afstand 30-40 km
Luchthaven Murcia afstand 50+ km
Uitzicht tuin Ja
Ontspanning ruimte buiten Ja
Oppervlakte perceel rond het huis 155 m²
Bebouwde oppervlakte 90 m²
Bewoonbare oppervlakte 80 m²
Afstand naar het strand 12 km
Terras oppervlakte 36 m²
Nabij Scholen Ja
Nabij bushalte Ja
Pre installatie warmtepomp zwembad Ja
Hangend toilet Ja
Hangend badkamer meubel Ja
Uitzicht op het zwembad Ja
Volledig ingerichte keuken Ja
Gepantserde toegangsdeur met veiligheidsslot Ja
Grote ramen van vloer tot plafond Ja
Fietsafstand van het strand Ja
Hoogwaardige afwerking Ja
Goede prijs-kwaliteit verhouding Ja
Aerothermische boiler Ja
Hoge plafonds Ja
Gelijkvloers Ja
Gelijkvloers met tuin Ja
Luxe nieuwbouw Ja
Extra grote ramen uitkijkend op tuin en zwembad Ja
Aangelegde tuin met grind, gras en planten. Ja
Kijkwoning Ja
Goed gebied voor rentabiliteit van huur Ja
Meubelpakket Optioneel
Energielabel A
Afgewerkte badkamer Ja

Meer info?


Beschikbare documenten

Schermopname_30-10-2024_10426_www.dropbox.com.jpeg

document-Schermopname_30-10-2024_10426_www.dropbox.com.jpeg

download
Schermopname_30-10-2024_1027_www.dropbox.com.jpeg

document-Schermopname_30-10-2024_1027_www.dropbox.com.jpeg

download
Schermopname_30-10-2024_10511_www.dropbox.com.jpeg

document-Schermopname_30-10-2024_10511_www.dropbox.com.jpeg

download
Schermopname_30-10-2024_10349_www.dropbox.com.jpeg

document-Schermopname_30-10-2024_10349_www.dropbox.com.jpeg

download

Casas Kimpencio: jouw partner in jouw zoektocht:

Studio met verhuurlicentie in Finestrat
Studio met verhuurlicentie in Finestrat

Project: Appartement met verhuurlicentie Costa Blanca

Stad: Finestrat-Benidorm

0   1     36 m²   1 m²  

Opbrengst-appartement in Aguilas
Opbrengst-appartement in Aguilas

Project: Investeren in appartementen vlak bij zee Águilas

Stad: Aguilas

2   1     61 m²   6 m²  

Appartement met solarium in residentie Lolm
Appartement met solarium in residentie Lolm

Project: Residentie Lolm in Hondon de las Nieves

Stad: Hondón de las Nieves

2   1   71.8 m²  

Casas Kimpencio begeleidt jou van A tot Z:

Administratief medewerker vastgoed Spanje gezocht
Administratief medewerker vastgoed Spanje gezocht

Droom jij van werken onder de Spaanse zon én deel uitmaken van een ambitieus vastgoedteam aan de Costa Blanca?

Bij Casas Kimpencio zoeken we een administratieve topper die structuur brengt, klanten professioneel opvolgt en mee wil bouwen aan een groeiend succesverhaal.

Jij wordt de...

Martine

Horizon Resort II gelanceerd23/04/2026
Horizon Resort II gelanceerd23/04/2026

Nieuwe fase gelanceerd van Horizon Resort II in San Miguel de Salinas, een modern bungalowproject waar rust, ruimte en buitenleven centraal staan. Kies tussen een woning met tuin of solarium en geniet van een zorgeloze levensstijl dicht bij zee, golf en natuur.

...

Martine

Koningsdag Spanje: Feest aan de Costa Blanca
Koningsdag Spanje: Feest aan de Costa Blanca

Koningsdag 2026 in Spanje

Waar vieren Belgen en Nederlanders het feest aan de Costa Blanca?

Vier Koningsdag 2026 in Spanje en ontdek waarom zoveel Belgen en Nederlanders kiezen voor de Costa Blanca.

Van grote festivals in steden zoals Valencia en Barcelona tot gezellige lokale...

Martine

square-box
Tine
Vragen over panden, projecten en onze content
Snel starten:

Hallo, ik ben Tine je kan bij mij terecht met al je vragen over panden, projecten en onze content. Ik antwoord alleen op basis van de beschikbare website-inhoud.