Home Lopende projecten Alle Panden Over ons Ons team Ons kantoor Onze werkwijze Contacteer ons Blog Cookies

Villa met zwembad en solarium in Serena Costa

 Project: Residentie Serena Costa in Los Alcazares

Gloednieuwe woningen nabij golfbaan Serena Golf

Korte beschrijving:

ONAFHANKELIJKE VILLA - 3 SLAAPKAMERS MET 2 BADKAMERS - OMHEINDE TUIN - SOLARIUM 

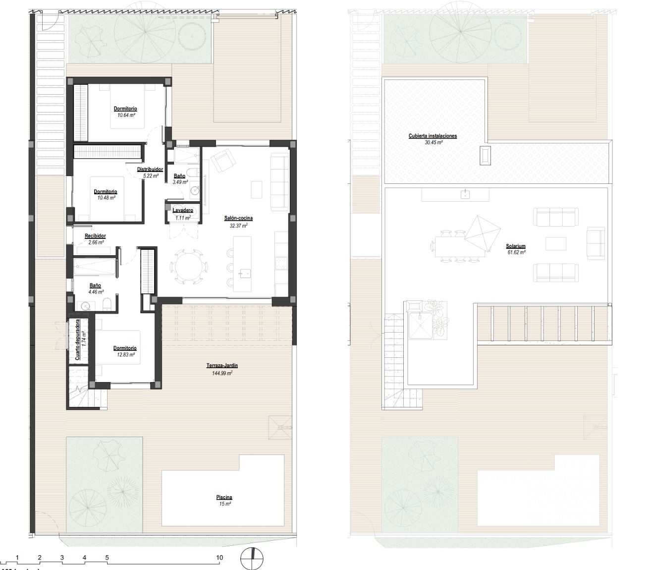
Deze villa is verdeeld over 2 verdiepingen. De villa is voorzien van 3 slaapkamers met 2 badkamers. In deze woning kan je genieten van een perfect omheinde tuin, die jouw privacy voorop stelt. De afwerking is subliem en in de gehele woning wordt er gebruik gemaakt van hoogwaardige en kwaliteitsvolle materialen. 

Deze woning is gelegen in Los Alcazares, op loopafstand van Serena Golf, het prachtige golfdomein. De residentie voorziet een idyllisch gemeenschappelijk zwembad waar je volop kan ontspannen onder de Spaanse zon. 

U bent nog niet aangemeld!

Na invullen van onderstaande gegevens wordt u aangemeld, indien er nog geen account bestaat kan deze aangemaakt worden!



 Geef ons uw mening...

 Momenteel nog geen reviews voor dit pand.

Uitgebreide beschrijving:

Deze woning is verdeeld over 2 verdiepingen en is voorzien van 3 slaapkamers met 2 badkamers. Op de gelijkvloerse verdieping is er een ruime leefruimte voorzien met open keuken. De keuken is voorzien van een afzuigkap en een keramische kookplaat. Aansluitend aan de keuken is er een berging voorzien. 

Op de begane vloer zijn alle slaapkamers gelegen. De hoofdslaapkamer heeft een badkamer-ensuite. De tweede en derde slaapkamer delen een badkamer. Elke slaapkamer is voorzien van inbouwkasten met ruime legplanken en hangrekken. 

Vanuit de woonkamer en hoofdslaapkamer heb je toegang tot jouw prachtige tuin met een zwembad van 15m². De tuin kent een oppervlakte van 144m². HIer kan je volop genieten van de Spaanse zon met de perfecte afkoeling bij de hand. Naast de buitenruimte op de begane vloer is er een ruim solarium voorzien van maar liefst 61m². Dit solarium is te bereiken via een buitentrap. 

De woning heeft ook heel wat gemeenschappelijke voorzieningen. Er is een prachtig gemeenschappelijk zwembad voorzien met een ruime ligweide. Naast het grote zwembad voor volwassenen is er ook een kinderzwembad gereserveerd. Rondom het zwembad is er een ruime ligweide voorzien met ligbedden op de groene zones maar ook met geïntregreerde ligbedden in het zwembad. Doorheen het complex is er gewerkt met aangelegde groene zones. 

Elke woning heeft een ondergrondse parkeerplaats met een toegewezen berging. Aan de parkeerplaats is er een pré-installatie voorzien voor een laadpunt van jouw elektrische wagen. 

Extra troeven aan deze woning: 

  • Zonnepanelen voor gemeenschappelijk gebruik
  • Aerothermisch systeem voor sanitair warm water
  • Pré-installatie airconditioning
  • Dubbele beglazing
  • Uitstekende akoestische & thermische isolatie
  • Elektrische rolluiken in de slaapkamers

Deze woning is gelegen in Los Alcazares. Los Alcázares is een levendige kustplaats aan de Mar Menor, een unieke zoutwaterlagune met kalm en warm water. De lange boulevard langs de kust biedt een prachtig uitzicht en is ideaal voor ontspannen wandelingen, terwijl de brede zandstranden uitnodigen tot zwemmen en watersporten zoals zeilen, windsurfen en kajakken. De stad heeft een rijke geschiedenis die teruggaat tot de tijd van de Romeinen en Arabieren, wat terug te zien is in de historische architectuur en traditionele feesten.

De ligging nabij Cartagena en Murcia zorgt voor een perfecte balans tussen ontspanning en stedelijke voorzieningen. Cartagena, met haar indrukwekkende Romeinse theater en sfeervolle haven, ligt op korte afstand en biedt volop culturele bezienswaardigheden. Murcia, bekend om haar prachtige kathedraal en levendige winkelstraten, is eenvoudig te bereiken en biedt een mix van historie en moderne faciliteiten. In Los Alcázares zelf zijn alle dagelijkse voorzieningen binnen handbereik, met supermarkten, medische diensten en gezellige lokale markten.

Golfliefhebbers kunnen genieten van diverse gerenommeerde golfbanen in de regio, zoals Roda Golf en La Serena Golf, die een prachtig uitzicht en uitdagende holes bieden. De thermale modderbaden van Lo Pagán, bekend om hun geneeskrachtige werking, liggen eveneens vlakbij en vormen een ideale plek voor ontspanning en wellness. Voor wie van winkelen houdt, biedt het nabijgelegen Dos Mares Shopping Center een breed scala aan winkels, restaurants en entertainmentopties.

De stad heeft een authentieke Spaanse sfeer, met een mix van traditionele tapasbars, moderne eetgelegenheden en levendige festivals die het hele jaar door worden gevierd. De combinatie van een prachtige kustlijn, een rijk historisch erfgoed en moderne voorzieningen maakt Los Alcázares een veelzijdige en aantrekkelijke plek om te genieten van het mediterrane leven.

COSTA SERENA onderscheidt zich door zijn uitstekende locatie, dicht bij de schitterende stranden, uitdagende golfbanen en exclusieve voorzieningen.

Dit is de ideale kans om onze klanten een product aan te bieden dat perfect aansluit bij hun wensen, of ze nu verlangen naar een comfortabele levensstijl of een winstgevende investering in het zonnige Zuid-Spanje.



Kenmerken:

Aantal slaapkamers 3
Aantal badkamers 2
Pré installatie airco Ja
Elektrische rolluiken Ja
Led verlichting buiten Ja
Led verlichting binnen Ja
privé parkeerplaats Ja
Ondergrondse parking Ja
Telefoon Data aansluiting Ja
Videofonie Ja
Inbouwkasten Ja
Aero thermische warmtepomp Ja
Douche schermen Ja
Poort Ja
Elektrische poort Ja
Pre installatie elektrisch laadpunt Ja
Badkamer spiegels Ja
Terras Ja
Solarium Ja
Privaat zwembad Ja
Gedeeld zwembad Ja
Pre installatie keuken Ja
Nabij kinder speeltuin Ja
Berging Ja
Gedeelde tuin Ja
Private Tuin Ja
Golfresort afstand in km 0-2 km
Ziekenhuis afstand in km 5-10 km
Nabij Commercieel centrum Ja
Luchthaven Alicante afstand 50+ km
Luchthaven Murcia afstand 40-50 km
Uitzicht tuin Ja
Ontspanning ruimte buiten Ja
Solarium oppervlakte in m2 60-70 m²
Oppervlakte perceel rond het huis 150 m²
Bebouwde oppervlakte 102 m²
Bewoonbare oppervlakte 95 m²
Afstand naar het strand 2.4 km
Terras oppervlakte 144 m²
Hangend toilet Ja
Hangend badkamer meubel Ja
Zonnepanelen Ja
Uitzicht op het zwembad Ja
Dampkap Ja
Gepantserde toegangsdeur met veiligheidsslot Ja
Kunstgras Ja
Fietsafstand van het strand Ja
Hoogwaardige afwerking Ja
Goede prijs-kwaliteit verhouding Ja
Aerothermische boiler Ja
Luxe nieuwbouw Ja
Kijkwoning Nee
Goed gebied voor rentabiliteit van huur Ja
Wandelafstand van het strand Ja
Afgewerkte badkamer Ja
Gesloten urbanisatie Ja

Meer info?


Beschikbare documenten

model b.jpeg

document-model b.jpeg

download

Ontdek wat we nog meer te bieden hebben!

Appartement met solarium in residentie Lolm
Appartement met solarium in residentie Lolm

Project: Residentie Lolm in Hondon de las Nieves

Stad: Hondón de las Nieves

2   1   71.8 m²  

Hacienda San Julian-Lorca
Hacienda San Julian-Lorca

Project: Skandinavia IV

Stad: Torrevieja-Alicante

3   2     82 m²   82 m²  

Penthouse Galena met 2 slaapkamers in Herrerias
Penthouse Galena met 2 slaapkamers in Herrerias

Project: Residentie Galena woningen met zwembad in Almería

Stad: Cuevas Del Almanzora

2   2     84 m²   32 m²  

Penthouse met solarium in Costa Blanca
Penthouse met solarium in Costa Blanca

Project: Penthouse Benejúzar Boutique wonen Costa Blanca

Stad: Benejúzar

3   3     56 m²   12 m²  

Bigastro  geschakelde woning met 4 slaapkamers
Bigastro geschakelde woning met 4 slaapkamers

Project: Adosados Los Palacios Bigastro

Stad: Bigastro

4   3     177 m²   50 m²  

Duplex en Fortuna (murcia)
Duplex en Fortuna (murcia)

Project: Duplex en Fortuna (murcia)

Stad: Fortuna

3   2     164 m²   73 m²  

Miramar penthouse in Orihuela Costa
Miramar penthouse in Orihuela Costa

Project: Miramar Orihuela Costa

Stad: Orihuela Costa-Alicante

2   2     93 m²   8 m²  

Appartementen in het centrum van San Miguel
Appartementen in het centrum van San Miguel

Project: SALINAS VIEWS: appartementen in het centrum

Stad: Wonen in San Miguel: rust en zon aan zee

3   2     102 m²   7 m²  

Penthouse Riomar Healthy Living
Penthouse Riomar Healthy Living

Project: Assistentie appartementen Riomar Healthy Living

Stad: Torre De La Horadada

1   1   96 m²   44 m²  

Penthouse met zeezicht en groot terras
Penthouse met zeezicht en groot terras

Project: Xeresa del Monte: Betaalbare woningen met zeezicht

Stad: Xeresa

3   2     89 m²   88 m²  

Puerta de Oriente-Vera Playa
Puerta de Oriente-Vera Playa

Project: Puerta de Oriente-Vera Playa

Stad: Vera- regio Costa Almeria Andalusië

2   2     71 m²   45 m²  

Penthouse van met 2 slpk en terras van 108 m²
Penthouse van met 2 slpk en terras van 108 m²

Project: Sol y Vida fase 2-Torre-pacheco -ciudad

Stad: Torre-Pacheco - Murcia

3   2     107 m²   108 m²  

Ontdek het laatste nieuws!

La Manga del Mar Menor
La Manga del Mar Menor

Waarom vastgoed investeren in Mar Menor? Ontdek de mogelijkheden met Casas Kimpencio : jouw partner voor succesvolle investeringen.

...

Martine

Wonen in Los Alcazares: Ontdek jouw droomhuis!
Wonen in Los Alcazares: Ontdek jouw droomhuis!

Ontdek waarom Los Alcázares uitgroeit tot een van de meest geliefde kustplaatsen van de regio Mar Menor. Van stranden en geschiedenis tot golf, gastronomie en vastgoedkansen. Deze gids toont jou alles wat deze zonnige badplaats zo bijzonder maakt en waarom steeds meer Belgen en Nederlanders hier...

Martine

La Serena Golf Los Alcázares
La Serena Golf Los Alcázares

La Serena Golf Los Alcázares: Een paradijs voor golfliefhebbers en watersporters. La Serena Golf Los Alcázares, gelegen aan de prachtige Mar Menor in de regio Murcia, is een must-visit bestemming voor zowel golfliefhebbers als watersporters. Dit charmante stadje aan de Mar Menor verspreide trad...

Martine

square-box
Tine
Vragen over panden, projecten en onze content
Snel starten:

Hallo, ik ben Tine je kan bij mij terecht met al je vragen over panden, projecten en onze content. Ik antwoord alleen op basis van de beschikbare website-inhoud.