Moderne villa in San Pedro del Pinatar

 Project: Altos de San Pedro III: Moderne nieuwbouw villa's

Moderne nieuwbouwwoningen met privaatzwembad nabij Mar Menor

Korte beschrijving:

Altos de San Pedro III – Ruimte, licht en luxe in San Pedro del Pinatar

Ruime designvilla in San Pedro del Pinatar met zwembad en terrassen. Perfect voor wie luxe en leefcomfort zoekt onder de Spaanse zon. Vraag info aan.

Dit is zo’n villa waar je meteen voelt: hier is écht over nagedacht. Meer ruimte, meer comfort, meer beleving. Deze uitvoering binnen Altos de San Pedro III is ideaal voor wie net dat beetje extra zoekt voor familie, gasten of gewoon om zelf royaal te wonen onder de Spaanse zon. Met haar moderne, strakke architectuur en warme afwerking combineert deze woning stijl met leefbaarheid. Grote raampartijen halen het daglicht naar binnen en verbinden de leefruimte met tuin en terras waardoor binnen en buiten moeiteloos in elkaar overlopen.

Dit is een huis dat leeft met het ritme van de dag. Je beschikt hier over:

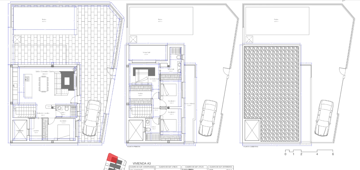
  • 4 volwaardige slaapkamers
  • 3 elegante badkamers
  • Bouwoppervlakte van ca. 153 m²
  • Perceel van ca. 228 m²
  • Zonnige terrassen (22 m²)
  • Privézwembad en eigen tuin
  • Doordachte indeling met veel openheid en privacy

Perfect voor wie vaak familie of vrienden ontvangt, of wie gewoon graag ruimte voelt rondom zich.

Denk aan lange avonden buiten, kinderen of kleinkinderen die in het zwembad spelen, en zelf genieten met een glas wijn op het terras.

De ligging in Los Antolinos

San Pedro del Pinatar maakt het plaatje compleet: dicht bij de Mar Menor, de zoutmeren en de stranden, met alle voorzieningen in de buurt. Een regio die populair is bij zowel levensgenieters als investeerders dankzij klimaat, bereikbaarheid en levenskwaliteit.

Zoals we bij Casas Kimpencio altijd zeggen: een woning koop je niet alleen met je hoofd, maar ook met je gevoel. En dit is er zo eentje die je moet ervaren.

Wees er snel bij, de villa's zijn al voor meer dan de helft verkocht.

Wij begeleiden jullie hier graag persoonlijk en eerlijk in van eerste indruk tot doordachte beslissing.

U bent nog niet aangemeld!

Na invullen van onderstaande gegevens wordt u aangemeld, indien er nog geen account bestaat kan deze aangemaakt worden!



 Geef ons uw mening...

 Momenteel nog geen reviews voor dit pand.

Uitgebreide beschrijving:

Buitenleven staat hier centraal, met een doordachte buitenruimte die volledig is ontworpen voor ontspanning en comfort.

Maak kennis met de derde fase van dit exclusieve woonproject in San Pedro del Pinatar, waar moderne architectuur, comfort en functionaliteit perfect samenkomen.

Deze collectie van 14 stijlvolle halfvrijstaande villa’s is ontworpen in een strakke, minimalistische stijl en afgewerkt met hoogwaardige materialen die zorgen voor een verfijnde en duurzame woonbeleving aan de Costa Cálida.

Deze villa biedt 4 ruime slaapkamers, 3 elegante badkamers, een privézwembad, zonnige terrassen en een eigen tuin, de ideale setting voor privacy, ontspanning en het ultieme mediterrane buitenleven.

San Pedro del Pinatar behoort tot de meest geliefde locaties rond de Mar Menor en staat bekend om zijn natuurlijke zoutmeren, kalme stranden en gezonde microklimaat.

Dankzij het aangename weer het hele jaar door is dit de perfecte plek voor zowel permanente bewoning als een zonnige vakantiewoning.

In de tuin vind je je eigen privézwembad, een verfrissende plek op warme dagen, compleet met een buitendouche voor extra gemak.

Wie nog meer uit het buitenleven wil halen, kan kiezen voor een optioneel solarium met buitenkeuken. Of je tovert deze ruimte optioneel om in één of 2 extra slaapkamers.

Deze privé dakterrasruimte is voorbereid met aansluitingen voor water en keukenvoorzieningen; perfect voor lange zomeravonden, barbecues met vrienden of gewoon heerlijk relaxen in de zon.

Ook praktisch is alles tot in de puntjes geregeld: Je beschikt over parkeergelegenheid op eigen perceel, met directe en veilige toegang tot je woning.

Het ontwerp van de woning straalt bovendien moderne klasse uit, met een strakke gevelafwerking en een gepantserde voordeur die zorgt voor extra veiligheid en gemoedsrust.

Dankzij hoogwaardige isolatie, PVC-ramen met dubbele beglazing en gemotoriseerde rolluiken bij grote raampartijen geniet je het hele jaar door van een aangenaam binnenklimaat én energiezuinig wooncomfort.

Samengevat heb je:

  • 3 of 4 slaapkamers met inbouwkasten
  • 3 volledig uitgeruste badkamers met wastafels, spiegels en doucheschermen
  • Ingerichte keuken met Balay-apparatuur
  • Privézwembad en tuin LED-verlichting binnen en buiten
  • Terrassen op de eerste verdieping en optioneel solarium op het dak
  • Parkeerplaats op het perceel
  • Aerothermisch systeem voor warm water
  • Fotovoltaïsche zonnepanelen voor verbeterde energie-efficiëntie
  • Voorbereiding voor airconditioning met luchtkanalen per verdieping

San Pedro del Pinatar is een sfeervolle kustplaats aan de Costa Cálida, beroemd om de Mar Menor, de natuurlijke zoutmeren en de geneeskrachtige modderbaden in het regionale park Las Salinas y Arenales.

Je vindt er rustige stranden, een gezellige jachthaven, een lange boulevard vol restaurants en cafés, en volop mogelijkheden om te wandelen en fietsen langs natuur en zee.

Dankzij het zachte klimaat het hele jaar door is het een ideale plek om te wonen én te genieten

Ook op gunstige afstand van:

  • Stranden van de Mar Menor 3 km
  • Mediterrane stranden 5 km
  • Winkelcentrum Dos Mares 5 km
  • Lo Romero Golf 10 km
  • Roda Golf 15 km
  • Luchthaven Murcia Corvera 30 km
  • Luchthaven Alicante 80 km
  • Jachthaven San Pedro 4 km

Bij Casas Kimpencio worden we enthousiast van projecten waar ligging, comfort en toekomstwaarde perfect samenkomen, en dat is hier absoluut het geval.

Deze moderne villa’s van een bij ons vertrouwde promotor combineren hedendaagse architectuur met een manier van wonen die volledig is afgestemd op het mediterrane leven: licht, open ruimtes en een sterke verbinding tussen binnen en buiten.

Wat ons extra aanspreekt, is de doordachte indeling. De open leefruimte met grote raampartijen zorgt voor een natuurlijke flow doorheen de woning, terwijl de slaapkamers en badkamers comfort en privacy bieden voor zowel bewoners als gasten.

Dit zijn woningen die niet alleen mooi ogen, maar ook praktisch en aangenaam zijn om in te leven, of dat nu permanent is of tijdens vakanties met familie en vrienden.

Daarnaast zien wij hier een sterke meerwaarde in de duurzame en energiezuinige voorzieningen zoals het aerothermisch systeem en de zonnepanelen.

Dat betekent niet alleen lagere verbruikskosten, maar ook een toekomstgerichte investering in woonkwaliteit.

In combinatie met de kleinschaligheid van het project en de rustige, residentiële omgeving geeft dit een gevoel van exclusiviteit zonder afgezonderd te zijn.

De ligging nabij de Mar Menor en de Middellandse Zee maakt het plaatje compleet. Stranden, jachthaven, restaurants, winkels en sportfaciliteiten liggen allemaal binnen handbereik. Dit is een regio die al jaren aan populariteit wint, wat deze woningen niet alleen aantrekkelijk maakt om zelf van te genieten, maar ook interessant vanuit investeringsperspectief.

Voor ons is dit dus geen standaard nieuwbouwproject, maar een plek waar levenskwaliteit, comfort en waarde op lange termijn samenkomen.

Een woning hier betekent thuiskomen onder de zon, met alles binnen bereik wat het Spaanse leven zo bijzonder maakt.

Trends als investering:


Jaar prijs per m² Jaarlijkse stijging
2023 € 1.950*

2024 € 2.230**
+ 14,1 %
2025 € 2.761†
+ 23,8 % *

* Gemiddelde prijs rond 2023-niveau afgeleid uit jaar-op-jaar stijgingen en data-inschattingen.

** Geschatte 2024-prijs op basis van 14 % groei in Q3 2024.

† Gemiddelde prijs begin 2026 (laatste beschikbare), gebruikt als proxy voor eind 2025.


Kenmerken:

Kenmerken van Altos de San Pedro III: Moderne nieuwbouw villa's
Aantal slaapkamers 4
Aantal badkamers 3
Privaat zwembad Ja
Oppervlakte perceel rond het huis 228 m²
Bebouwde oppervlakte 153 m²
Bewoonbare oppervlakte 120 m²
Afstand naar het strand 3000 km
Terras oppervlakte 22 m²
Private Tuin Ja
Poort Ja
Nabij Scholen Ja
Nabij Commercieel centrum Ja
Nabij bushalte Ja
Terras Ja
Fietsafstand van het strand Ja
Douche schermen Ja
Solarium Optioneel
Pré installatie airco Ja
Volledige airco installatie Nee
Elektrische rolluiken Ja
Led verlichting buiten Ja
Led verlichting binnen Ja
Zeezicht Nee
privé parkeerplaats Ja
Telefoon Data aansluiting Ja
Videofonie Optioneel
Inbouwkasten Ja
Pre installatie elektrisch laadpunt Ja
Badkamer spiegels Ja
Alle keuken apparatuur volledig inbegrepen Ja
Buitenkeuken Optioneel
Kookplaat Dampkap Magnetron & Oven Ja
Uitzicht tuin Ja
Golfresort afstand in km 2-5 km
Ziekenhuis afstand in km 5-10 km
Luchthaven Alicante afstand 50+ km
Luchthaven Murcia afstand 20-30 km
Gedeelde kosten Nee
Pre installatie warmtepomp zwembad Ja
Zonnepanelen Ja
Uitzicht op het zwembad Ja
Volledig ingerichte keuken Ja
Dampkap Ja
Gepantserde toegangsdeur met veiligheidsslot Ja
Grote ramen van vloer tot plafond Ja
Hoogwaardige afwerking Ja
Aerothermische boiler Ja
Hoge plafonds Ja
Luxe nieuwbouw Ja
Extra grote ramen uitkijkend op tuin en zwembad Ja
Goed gebied voor rentabiliteit van huur Ja
Wandelafstand van het strand Nee
Dubbele garage Nee
Extra verdieping ondergronds (basement) Nee
Energielabel B
Afgewerkte badkamer Ja

Meer info?


Beschikbare documenten

Schermopname_7-2-2026_231054_www.dropbox.com.jpeg

Document bij Altos de San Pedro III: Moderne nieuwbouw villa's

download
Schermopname_7-2-2026_231042_www.dropbox.com.jpeg

Document bij Altos de San Pedro III: Moderne nieuwbouw villa's

download
Schermopname_7-2-2026_231023_www.dropbox.com.jpeg

Document bij Altos de San Pedro III: Moderne nieuwbouw villa's

download
Schermopname_7-2-2026_23954_www.dropbox.com.jpeg

Document bij Altos de San Pedro III: Moderne nieuwbouw villa's

download
Schermopname_8-2-2026_11525_www.dropbox.com.jpeg

Document bij Altos de San Pedro III: Moderne nieuwbouw villa's

download

Neem ook eens een kijkje naar deze aanbiedingen:

Foto van Residentie Olmo - nieuwbouwvilla's in San Javier
Residentie Olmo - nieuwbouwvilla's in San Javier

GELIJKVLOERSE VILLA - 3 SLAAPKAMERS - TUIN & PRIVÉZWEMBAD - ...

 Ligging: San Javier 30730  Stad: San Javier-Murcia-Mar-Menor  Type locatie: Uitzicht zwembad


nog 1 Pand beschikbaar!
Foto van Alondra Villa’s in Puerto de Mazarrón Spanje
Alondra Villa’s in Puerto de Mazarrón Spanje

VILLA MET 3 SLAAPKAMERS - PRIVÉ SOLARIUM - WANDELAFSTAND VA ...

 Ligging: Puerto de Mazarrón  Stad: Puerto de Mazarrón  Type locatie: Uitzicht zwembad


nog 1 Pand beschikbaar!
Foto van LOS COLLADOS DEL COUNTRY Mazarrón Country Club
LOS COLLADOS DEL COUNTRY Mazarrón Country Club

VILLA - 3 OF 4 SLAAPKAMERS - PRIVÉZWEMBAD EN SOLARIUM - MOD ...

 Ligging: Mazarron  Stad: Mazarron  Type locatie: Golfdomein


nog 1 Pand beschikbaar!
Foto van Residencial Macao Playa II nieuwbouw Lo Pagán
Residencial Macao Playa II nieuwbouw Lo Pagán

Residencial Macao Playa II appartement kopen Lo PagánSommig ...

 Ligging: Lo Pagán aan de Mar Menor  Stad: Lo Pagán aan de Mar Menor  Type locatie: Uitzicht zwembad


nog 3 Panden beschikbaar!
Foto van Villa Menorca Santa Rosalía Lake and Life Resort
Villa Menorca Santa Rosalía Lake and Life Resort

Villa Menorca in Santa Rosalía Lake and Life Resort combine ...

 Ligging: Santa Rosalia  Stad: Santa Rosalia  Type locatie: Uitzicht zwembad


nog 1 Pand beschikbaar!
Foto van RAMBLA BEACH V Nieuwbouw in Pilar de La Horadada
RAMBLA BEACH V Nieuwbouw in Pilar de La Horadada

APPARTEMENT OF BUNGALOW - 2 SLAAPKAMERS - PRIVÉTUIN OF SOLA ...

 Ligging: Pilar de la Horadada - Alicante  Stad: Pilar de la Horadada - Alicante  Type locatie: Uitzicht zwembad


nog 2 Panden beschikbaar!
Foto van Residencial Carmen VI nieuwbouw villa San Javier
Residencial Carmen VI nieuwbouw villa San Javier

VILLA - 3 SLAAPKAMERS - PRIVÉZWEMBAD EN SOLARIUM - NIEUWBOU ...

 Ligging: Santiago de la Ribera San Javier  Stad: Santiago de la Ribera  Type locatie: Uitzicht zwembad


nog 1 Pand beschikbaar!
Foto van LAKE VIEW VILLAS Santa Rosalía villa kopen
LAKE VIEW VILLAS Santa Rosalía villa kopen

Exclusieve LAKE VIEW VILLAS in Santa Rosalía Lake and Life ...

 Ligging: Santa Rosalia  Stad: Santa Rosalia  Type locatie: Uitzicht zwembad


nog 1 Pand beschikbaar!
Foto van TERRA OLIVA villa kopen in Sucina met zwembad
TERRA OLIVA villa kopen in Sucina met zwembad

VILLA - 3 SLAAPKAMERS - PRIVÉZWEMBAD EN SOLARIUM - LUXE NIE ...

 Ligging: Sucina  Stad: Sucina  Type locatie: Uitzicht zwembad


nog 1 Pand beschikbaar!
Foto van Penthouse LA JOYA BEACH Mar Menor in Lo Pagan
Penthouse LA JOYA BEACH Mar Menor in Lo Pagan

Exclusief kleinschalig wooncomplex in Lo Pagan aan de Costa ...

 Ligging: Lo Pagan 30740 San Pedro del Pinatar  Stad: San Pedro del Pinatar - Mar-Menor  Type locatie: Uitzicht zwembad


nog 1 Pand beschikbaar!
Foto van Villa SERENA SUN GOLF Los Alcázares
Villa SERENA SUN GOLF Los Alcázares

VILLA - 3 SLAAPKAMERS - PRIVÉZWEMBAD EN SOLARIUM - NIEUWBOU ...

 Ligging: Las Lomas Del Rame-bahía Bella 30710  Stad: Los Alcazares - Murcia - Mar Menor  Type locatie: Uitzicht zwembad


nog 1 Pand beschikbaar!
Foto van Bungalow kopen EL LAGO 45 Mar Cristal Costa Cálida
Bungalow kopen EL LAGO 45 Mar Cristal Costa Cálida

APPARTEMENT OF BUNGALOW - 3-2  SLAAPKAMERS - TERRAS OF PRIV ...

 Ligging: Islas Menores-mar De Cristal 30384  Stad: Cartagena  Type locatie: Uitzicht zwembad


nog 2 Panden beschikbaar!

Laat je inspireren

Afbeelding bij Goedkoop vastgoed Costa Blanca en Almería
Goedkoop vastgoed Costa Blanca en Almería

BETAALBAAR WONEN AAN ZEE IN SPANJE?

STEEDS MEER KOPERS KIJKEN VERDER DAN TORREVIEJA

Wie vandaag droomt van een woning aan zee in Spanje merkt het meteen: de vastgoedprijzen in populaire kustplaatsen zoals Torrevieja, Calpe of Alicante zijn de voorbije jaren stevig gestegen.

...

Martine

Afbeelding bij AOW en emigreren naar Spanje uitgelegd
AOW en emigreren naar Spanje uitgelegd

Steeds meer Nederlanders verhuizen naar Spanje, maar vergeten dat hun AOW-opbouw kan stoppen bij emigratie.

Elk jaar buiten Nederland zonder vrijwillige verzekering kost later 2% AOW.

Met de juiste voorbereiding en advies kan je echter zorgeloos genieten van wonen onder de Spaanse zo...

Martine

Afbeelding bij Vakantie in Spanje met hond praktische gids 2026
Vakantie in Spanje met hond praktische gids 2026

Een vakantie in Spanje met je hond vraagt goede voorbereiding, maar wordt steeds populairder.

Spanje biedt meer hondvriendelijke stranden, accommodaties en wandelroutes.

Met de juiste documenten, bescherming tegen hitte en goede planning geniet je zorgeloos samen onder de zon.

...

Martine