Home Lopende projecten Alle Panden Over ons Ons team Ons kantoor Onze werkwijze Contacteer ons Blog Cookies

laatste kans

Appartement met dakterras in Marella Garden

 Project: Residentie Marella Garden appartementen in Rojales

Nieuwbouwappartement met gemeenschappelijk zwembad

Korte beschrijving:

NIEUWBOUWAPPARTEMENTEN IN MARELLA GARDEN - DAKTERRAS - 2 SLAAPKAMERS EN 2 BADKAMERS - PARKEERPLAATS - ZWEMBAD - LAATSTE KANS

Deze woning is voorzien van 2 slaapkamers met 2 badkamers. De woning is op kwaliteitsvolle manier gebouwd met hoogwaardige materialen. De woning heeft volledig afgewerkte badkamers, opbergruimte, inbouwkasten, ... Je kan genieten van een ruim gemeenschappelijk zwembad met ligbedden en parasols. Het hele complex is afgewerkt in authentieke Spaanse / Arabische stijl, wat een luxueuze uitstraling geeft. 

LAATSTE KANS! Nog maar 4 woningen beschikbaar! 

U bent nog niet aangemeld!

Na invullen van onderstaande gegevens wordt u aangemeld, indien er nog geen account bestaat kan deze aangemaakt worden!



 Geef ons uw mening...

 Momenteel nog geen reviews voor dit pand.

Uitgebreide beschrijving:

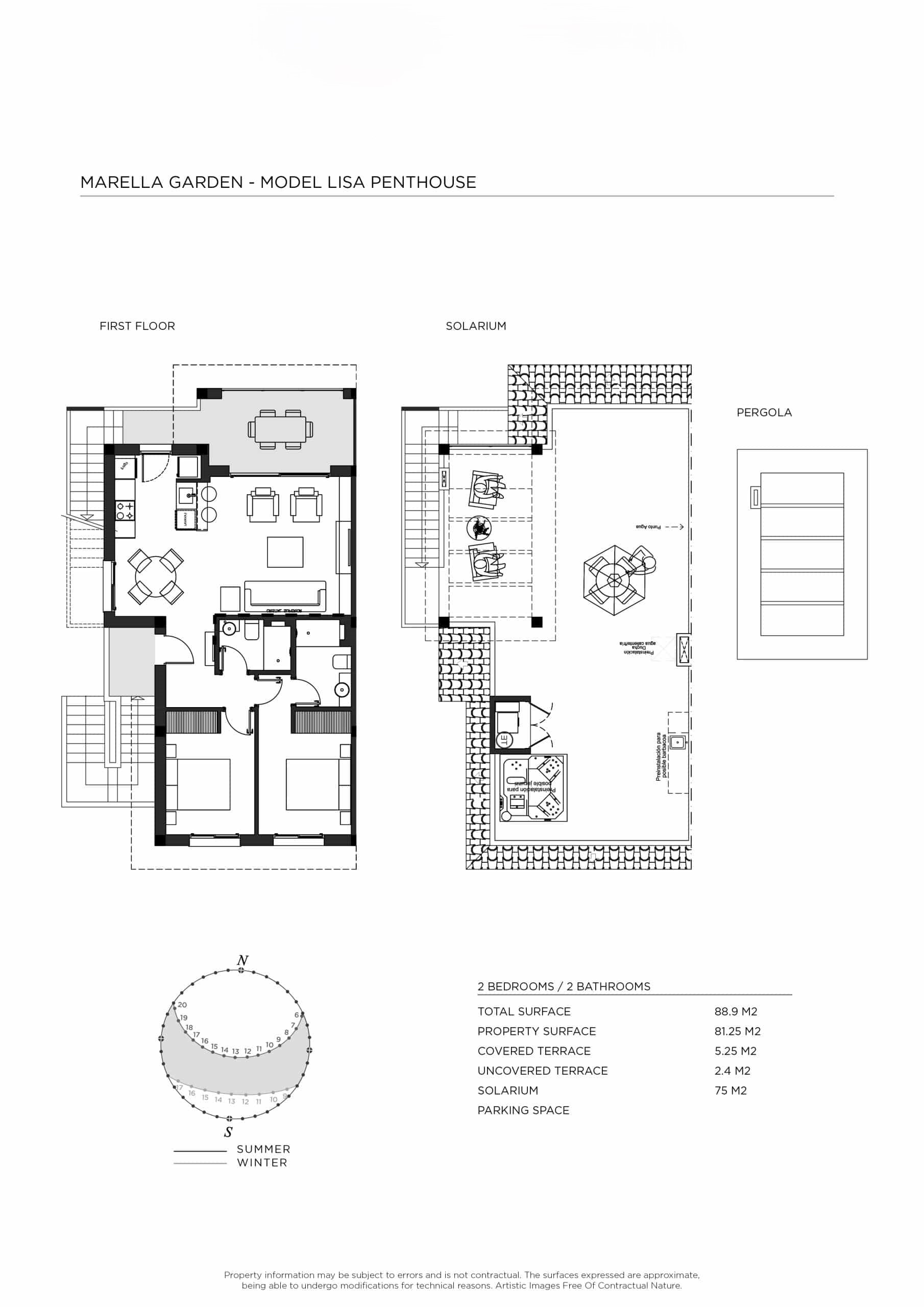
Dit appartement is gelegen op de eerste verdieping en heeft 2 slaapkamers met 2 badkamers. Via een buitentrap bereik je de eerste verdieping. Er is een ruime leefruimte met open keuken voorzien. De keuken kent een pré-installatie, zonder elektrische apparaten. Vanuit de woonkamer kijk je via grote schuiframen uit op jouw ruim terras van 7m². 

Er zijn 2 slaapkamers met 2 badkamers. De hoofdslaapkamer heeft een badkamer-ensuite. Elke badkamer is uitgerust met een toilet, spiegel, badkamermeubel, wastafel, douche, doucheschermen én vloerverwarming. Alle slaapkamers zijn voorzien van inbouwkasten met hangrekken en lades. 

Via een andere buitentrap bereik je het solarium van 75m². Het solarium is volledig afgewerkt in anti-slip tegels. Op het solarium is er een pré-installatie van een buitenkeuken voorzien, met een spoelbak. Er is een mogelijkheid tegen een meerprijs om een privéjacuzzi te installeren op het solarium. Er is een pergola voorzien op het solarium, zo geniet je keer op keer van aangename temperaturen. Geniet van de zon de hele dag door op het dakterras!

In het complex is er een privéparkeerplaats voorbehouden voor jouw appartement. 

Er is een ruim gemeenschappelijk zwembad voorzien met groene gebieden. Bij het zwembad zijn er ligbedden en parasols zodat je optimaal kan genieten van een dagje zonnekloppen. Het gehele complex is afgewerkt in de authentieke Spaanse / Arabische stijl, wat tropische sferen geeft. Kom helemaal tot rust in deze kwaliteitsvolle residentie. De residentie is perfect beveiligd, het gehele wooncomplex komt binnen via 1 centrale ingang, waar er beveiligingscamera's hangen. Hierdoor is jouw veiligheid optimaal verzekerd! 

Er is een mogelijkheid om een perfect afgewerkte woning te betreden, inclusief meubelen, elektrische apparaten, ... Neem contact met ons op en wij bespreken welke 'pakketten' er mogelijk zijn! 

Extra troeven aan deze woning: 

  • Pré-installatie airconditioning
  • 2 zonnepanelen voor sanitair warm water
  • Elektrische rolluiken
  • Video-intercom

Deze woning is gelegen in Rojales.

Rojales, een charmant stadje in de provincie Alicante, biedt een prachtige combinatie van rust, cultuur en recreatie. Een van de grootste troeven van Rojales is de nabijheid van La Marquesa Golf, een golfbaan van hoge kwaliteit die op slechts twee minuten afstand ligt. Deze golfbaan, ingebed in een schilderachtig landschap, is ideaal voor zowel beginners als ervaren golfers die willen genieten van een ontspannen ronde golf in een serene omgeving. De baan heeft een uitdagend ontwerp met tal van waterpartijen en goed onderhouden greens, waardoor het een geliefde plek is onder golfliefhebbers in de regio.

Naast de uitstekende golfmogelijkheden ligt Rojales op slechts tien minuten rijden van enkele van de mooiste stranden aan de Costa Blanca. De nabijgelegen stranden van Guardamar del Segura en La Mata bieden uitgestrekte zandstranden met kristalhelder water, perfect voor een dagje zonnebaden, zwemmen of wandelen langs de kust. Deze stranden staan bekend om hun natuurlijke schoonheid en rustige sfeer, waardoor ze ideaal zijn voor gezinnen en strandliefhebbers die op zoek zijn naar ontspanning aan de Middellandse Zee.

Rojales zelf heeft een rijke geschiedenis en een levendige lokale cultuur. De stad staat bekend om haar charmante oude molens en de Cuevas del Rodeo, een reeks kunstzinnige grotwoningen die tegenwoordig dienst doen als ateliers en galerieën voor lokale kunstenaars. Deze grotten zijn een uniek kenmerk van de stad en bieden bezoekers een kijkje in het creatieve leven van de gemeenschap. Elke maand wordt er een kunstmarkt gehouden, waar je kunstwerken, ambachten en lokale producten kunt kopen, wat bijdraagt aan de culturele rijkdom van de stad.

Voor wie verder wil verkennen, biedt Rojales een uitstekende uitvalsbasis voor het ontdekken van andere toeristische bestemmingen in de regio. Torrevieja, een levendige badplaats met een breed scala aan winkels, restaurants en een bruisend nachtleven, ligt op slechts een korte rit. Hier vind je ook het indrukwekkende zoutmerenpark, waar je kunt genieten van wandelingen door het natuurgebied en de beroemde roze meren kunt bewonderen.

Orihuela Costa, met zijn uitgebreide winkelcentra zoals Zenia Boulevard en een breed scala aan eetgelegenheden, ligt eveneens op een korte afstand. Dit gebied biedt tal van mogelijkheden voor winkelen, dineren en entertainment, evenals prachtige stranden en kustpaden om te verkennen.

Natuurliefhebbers zullen de nabijheid van de Lagunas de La Mata y Torrevieja waarderen, een beschermd natuurgebied waar je kunt wandelen, vogels kunt spotten en kunt genieten van het rustige, ongerepte landschap. Dit natuurpark is een toevluchtsoord voor flora en fauna en biedt een rustige ontsnapping uit de dagelijkse drukte.

Rojales combineert de rust en charme van een traditioneel Spaans stadje met gemakkelijke toegang tot golf, stranden en een breed scala aan toeristische bestemmingen. De strategische ligging, samen met de vele recreatieve mogelijkheden in de omgeving, maakt Rojales een ideale plek voor een evenwichtige levensstijl waar ontspanning, cultuur en avontuur hand in hand gaan.


Kenmerken:

Aantal slaapkamers 2
Aantal badkamers 2
Oppervlakte perceel rond het huis 0 m²
Bebouwde oppervlakte 88 m²
Bewoonbare oppervlakte 78 m²
Afstand naar het strand 6 km
Terras oppervlakte 7 m²
Gedeeld zwembad Ja
Poort Ja
Nabij Scholen Ja
Nabij Commercieel centrum Ja
Terras Ja
Fietsafstand van het strand Ja
Vloerverwarming badkamer Ja
Douche schermen Ja
Buitenkeuken Ja
Jaccuzi Ja
Solarium Ja
Solarium oppervlakte in m2 70-80 m²
Pré installatie airco Ja
Elektrische rolluiken Ja
Led verlichting buiten Ja
Led verlichting binnen Ja
privé parkeerplaats Ja
Telefoon Data aansluiting Ja
Videofonie Ja
Inbouwkasten Ja
Aero thermische warmtepomp Ja
Badkamer spiegels Ja
Pre installatie keuken Ja
Nabij kinder speeltuin Ja
Gedeelde tuin Ja
Golfresort afstand in km 2-5 km
Ziekenhuis afstand in km 5-10 km
Luchthaven Alicante afstand 40-50 km
Luchthaven Murcia afstand 50+ km
Uitzicht tuin Ja
Ontspanning ruimte buiten Ja
Hangend toilet Ja
Hangend badkamer meubel Ja
Zonnepanelen Ja
Gepantserde toegangsdeur met veiligheidsslot Ja
Bioklimatologische pergola Ja
Hoogwaardige afwerking Ja
Goede prijs-kwaliteit verhouding Ja
Aerothermische boiler Ja
Penthouse Ja
Kijkwoning Ja
Energielabel B
Afgewerkte badkamer Ja
Gesloten urbanisatie Ja

Meer info?


Beschikbare documenten

https___euromarina.com_wp-content_uploads_Plano-Lisa-Penthouse-724x1024 (1).jpg

document-https___euromarina.com_wp-content_uploads_Plano-Lisa-Penthouse-724x1024 (1).jpg

download

Ontdek wat we nog meer te bieden hebben!

Villa met zwembad en onderbouw in Rojales
Villa met zwembad en onderbouw in Rojales

Project: Villa Ciudad Quesada – Auro I met kelderoptie

Stad: Rojales- Alicante

4   3     279 m²    

Bovenste bungalow met solarium in Alba Salina 5
Bovenste bungalow met solarium in Alba Salina 5

Project: Residentie Alba Salina 5 in Rojales

Stad: Rojales- Alicante

2   2   76 m²   11 m²  

Moderne nieuwbouwvilla in Rojales-Alicante
Moderne nieuwbouwvilla in Rojales-Alicante

Project: Nieuwbouwproject : exclusieve ROJALES VILLAS

Stad: Rojales- Alicante

3   2     120 m²   15 m²  

Olivia Especial villa in Doña Pepa Ciudad Quesada
Olivia Especial villa in Doña Pepa Ciudad Quesada

Project: Mediterrane Olivia villa met groot privézwembad

Stad: Rojales- Alicante

3   2     168 m²   134 m²  

Gelijkvloerse bungalow met tuin in Marella Garden
Gelijkvloerse bungalow met tuin in Marella Garden

Project: Residentie Marella Garden appartementen in Rojales

Stad: Rojales- Alicante

3   2   95 m²   10 m²  

Luxe villa in Rojales met zwembad & kelder
Luxe villa in Rojales met zwembad & kelder

Project: Nieuwbouw villa Velázquez Rojales: Luxe en comfort

Stad: Rojales- Alicante

3   4     282 m²   50 m²  

VEGA GOLF - instapklare villa met 5 slaapkamers!
VEGA GOLF - instapklare villa met 5 slaapkamers!

Project: Vega Golf -Campo De Golf La Marquesa

Stad: Rojales- Alicante

5   3     229 m²  

Villas Maestras Rodin in Rojales
Villas Maestras Rodin in Rojales

Project: Villas Maestras - Rojales

Stad: Rojales- Alicante

3   3     150 m²   40 m²  

Luxury villa in Rojales- Alicante
Luxury villa in Rojales- Alicante

Project: Casa Lola villa in Rojales Alicante

Stad: Rojales- Alicante

3   2     80 m²   107 m²  

Luxe villa in Rojales nabij La Marquesa golfbanen
Luxe villa in Rojales nabij La Marquesa golfbanen

Project: Moderne villa in Cuidad Quesada met privézwembad

Stad: Rojales- Alicante

4   3     199 m²   30 m²  

Villa Delices Special villa in Doña Pepa, Rojales
Villa Delices Special villa in Doña Pepa, Rojales

Project: Nieuwe Allegra-villa Laura urbanisatie Doña Pepa

Stad: Rojales- Alicante

3   2     138 m²   138 m²  

Gelijkvloers appartement in Serena Garden
Gelijkvloers appartement in Serena Garden

Project: Residentie Serena Garden in Rojales

Stad: Rojales- Alicante

2   2   89 m²   14 m²  

Ontdek het laatste nieuws!

Bezienswaardigheden Alicante
Bezienswaardigheden Alicante

Alicante is een stad vol zon, geschiedenis en verborgen plekjes. In deze gids ontdek jij de mooiste bezienswaardigheden die jouw bezoek onvergetelijk maken.

...

Martine

Spanje verwelkomt meer dan 5 miljoen toeristen
Spanje verwelkomt meer dan 5 miljoen toeristen

Het aantal buitenlandse toeristen in Spanje stijgt sterker dan ooit.

...

Martine

Ontdek de rijke spaanse geschiedenis
Ontdek de rijke spaanse geschiedenis

Spanje, een land doordrenkt van geschiedenis en cultuur, heeft een unieke aantrekkingskracht op mensen over de hele wereld. Van de Middeleeuwen tot het moderne tijdperk heeft Spanje een opmerkelijke transformatie doorgemaakt. In deze blog duiken we in de boeiende geschiedenis van Spanje en ontdek...

Martine

square-box
Tine
Vragen over panden, projecten en onze content
Snel starten:

Hallo, ik ben Tine je kan bij mij terecht met al je vragen over panden, projecten en onze content. Ik antwoord alleen op basis van de beschikbare website-inhoud.