Home Lopende projecten Alle Panden Over ons Ons team Ons kantoor Onze werkwijze Contacteer ons Blog Cookies

Bovenste bungalow in Los Alcazares op golf

 Project: Residentie La Sunrise in Los Alcazares

Nieuwbouw wooncomplex in Los Alcázares Vlakbij Serena Golf

Korte beschrijving:

BOVENSTE BUNGALOW – 3 SLAAPKAMERS – GROTE TERRAS EN SOLARIUM – LOS ALCÁZARES

Deze bovenste bungalow combineert het comfort van een woning met de voordelen van een moderne residentie. Alle leefruimtes bevinden zich op één niveau, wat zorgt voor comfortabel en praktisch wonen zonder trappen. Een verdieping hoger, is dan weer jouw zonneterras gelegen. 

Binnenin beschikt het appartement over een open leefruimte met keuken, drie volwaardige slaapkamers en twee badkamers. De hoofdslaapkamer is ingericht als master suite met inloopdressing en badkamer-ensuite, terwijl de overige slaapkamers beschikken over ingebouwde kasten en een gedeelde badkamer. Grote schuiframen verbinden de woonkamer rechtstreeks met het terras en de tuin, waardoor binnen en buiten naadloos in elkaar overvloeien.

De buitenruimte is zonder twijfel een van de grootste troeven: een aangelegd terras van 20m² én een groot solarium zorgen samen voor een uitzonderlijk grote buitenbeleving rondom de woning. In combinatie met het gemeenschappelijk zwembad, de rustige residentie en de ligging nabij zee en golf, is dit appartement ideaal als vaste woonst, tweede verblijf of waardevaste investering aan de Costa Cálida.

U bent nog niet aangemeld!

Na invullen van onderstaande gegevens wordt u aangemeld, indien er nog geen account bestaat kan deze aangemaakt worden!



 Geef ons uw mening...

 Momenteel nog geen reviews voor dit pand.

Uitgebreide beschrijving:

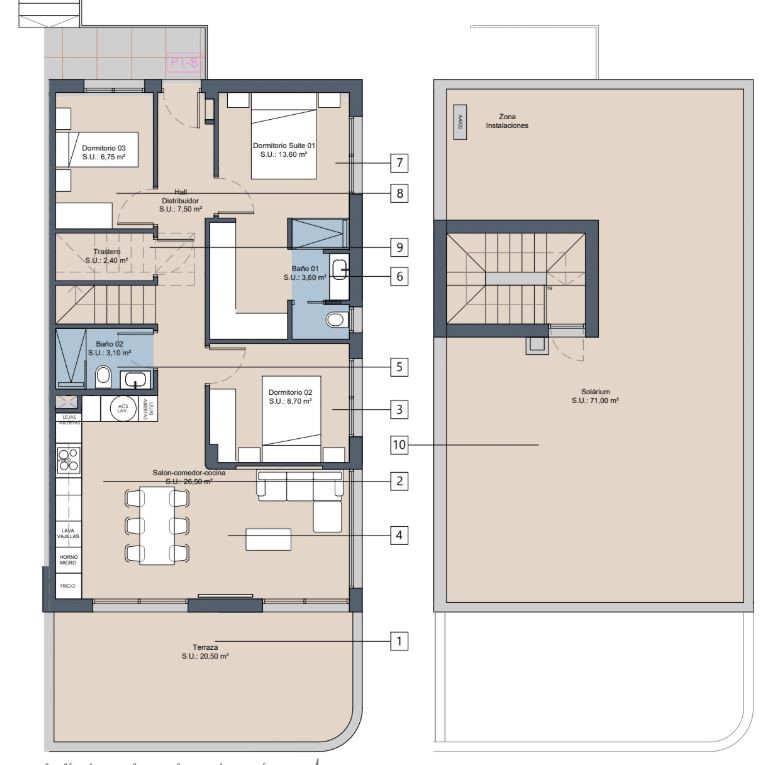
Deze bungalow is gelegen op de bovenste verdieping en voorzien van 3 slaapkamers met 2 badkamers. We nemen even een wandeling doorheen de woning, zodat je helemaal mee bent met de inrichting. Jouw bungalow is volledig omheind, het betreden van jouw woning, doe je via de beveiligde voordeur. Via de beveiligde voordeur kom je terecht in de lange inkomhal. 

Deze inkomhal loopt uit op de woonkamer met open keuken. De keuken heeft een L-vorm en is voorzien van een kookplaat en dampkap. De woonkamer kijkt via grote schuiframen uit op jouw aangelegd terras. 

Verder is er ook nog een berging voorzien in dit appartement. In deze berging is de aerothermische boiler gelegen. Dit appartement is voorzien van 3 slaapkamers met 2 badkamers. De hoofdslaapkamer heeft een inloopdressing en een badkamer-ensuite. 

De andere twee slaapkamers delen een badkamer. Elke slaapkamer heeft inbouwkasten met hangrekken, legplanken en lades. De badkamers zijn dan weer volledig uitgerust met een wastafel, bijpassend meubel, douche, toilet, spiegel, ... 

DUS CONCREET: 

  • 3 slaapkamers
  • 2 badkamers
  • Volledig uitgeruste badkamers
  • Berging 
  • Keuken met kookplaat en dampkap

Deze woning is gelegen op de bovenste verdieping, waardoor deze geniet van heel wat buitenruimte. Allereerst is er aansluitend aan de woonkamer een aangelegd balkon gelegen van 20m². Een verdieping hoger, geniet je van een privésolarium van 71m². Hier kan je de hele dag door genieten van de zon! 

Elke woning is voorzien van een eigen parkeerplaats. 

Dit appartement maakt onderdeel uit van residentie La Sunrise, derde fase. Deze residentie is voorzien van een gemeenschappelijk zwembad, met een ligweide rondom. Zo kan je optimaal ontspannen. Sommige blokken hebben een lift doorheen het gebouw, zodat toegankelijkheid verzekerd is. In de gemeenschappelijke tuin, is er een luxe-pergola voorzien voor een ideaal rustplekje. 

TECHNISCHE KENMERKEN: 

  • Dubbele beglazing 
  • Pré-installatie airconditioning 
  • Aerothermisch systeem voor sanitair warm water
  • Elektrische rolluiken in de slaapkamers
  • LED-verlichting, zowel binnen als buiten

Deze woning is gelegen in Los Alcazares. Los Alcázares, gelegen aan de Mar Menor, is een charmante kustplaats waar rust, zee en een actief buitenleven samenkomen. In de omgeving nabij La Serena Golf geniet je van een open en groene setting, met brede zichten en een ontspannen sfeer. De stranden langs de Mar Menor zijn kalm, ondiep en warm, wat zorgt voor een aangenaam dagelijks ritme dat het hele jaar door behouden blijft.

De ligging nabij de golfbaan geeft deze zone een extra rustige en verzorgde uitstraling. Waterpartijen, palmbomen en open landschappen bepalen het straatbeeld, terwijl het centrum van Los Alcázares vlot bereikbaar blijft. Winkels, restaurants, markten en voorzieningen liggen op korte afstand, waardoor alles praktisch en toegankelijk blijft zonder drukte.

Los Alcázares heeft een sterk lokaal karakter behouden. De boulevard leeft op tijdens de avonduren, terwijl overdag de zee en het strand centraal staan. Dankzij de vlakke omgeving is fietsen en wandelen hier bijzonder aangenaam. Watersport, golf en natuur vullen elkaar perfect aan, wat deze regio veelzijdig en evenwichtig maakt.

Wat veel mensen niet weten, is dat deze omgeving historisch werd gewaardeerd om haar gezonde leefklimaat. De combinatie van zee, zout en zachte wind zorgt voor zuivere lucht en aangename temperaturen, zelfs tijdens warme maanden. Vroege ochtenden langs de Mar Menor zijn opvallend stil en kalm, een zeldzame kwaliteit aan de kust.

Daarnaast heeft het gebied rond La Serena Golf een open, bijna resortachtige uitstraling zonder massaal te worden. Lage bebouwing en veel groen zorgen ervoor dat het landschap zichtbaar blijft. Vooral bij zonsondergang ontstaat er een serene sfeer waarbij golfbaan, zee en lucht samenkomen in zachte kleuren.

AFSTANDEN: 

  • Strand Mar Menor: ±800 m

  • La Serena Golf: ±300 m

  • Centrum Los Alcázares: ±1,5 km

  • Restaurants & bars: ±700 m

  • Supermarkt: ±900 m

  • Roda Golf: ±5 km

  • Winkelcentrum Dos Mares: ±10 km

  • Ziekenhuis Los Arcos: ±9 km

  • Cartagena: ±25 km

  • Murcia stad: ±40 km

  • Luchthaven Murcia (Corvera): ±35 km

  • Luchthaven Alicante: ±85 km

Onze visie binnen Casas Kimpencio;

  • Bij Casas Kimpencio ben je niet zomaar iemand, wij willen een persoonlijke relatie aangaan.
  • We behandelen jullie zoals we zelf behandeld willen worden, met de nodige betrokkenheid, precisie en details.
  • Geen enkele vraag is ons te veel, we staan elke dag telefonisch voor jou klaar.
  • Wij hebben de gedachte dat een huis kopen niet zomaar een huis kopen is, maar een nieuwe thuis kopen.
  • Iedereen dient een eigen verhaal te krijgen, met verschillende hoofdstukken. 
  • Wij willen helpen aan het Spaanse hoofdstuk, een hoofdstuk van een nieuwe thuis, vakantiewoning of een investering.
  • En dit doen we met open, duidelijke communicatie  en daarmee geraken we er altijd, zo vinden we jouw ideale woning gebaseerd op meerdere gesprekken.
  • We helpen vanaf het begin tot aan de sleuteloverdracht, en ver daarbuiten. 

Wij vinden deze woning bijzonder omdat;

  • Eigen parkeerplaats via elektrische toegangspoort maakt parkeren eenvoudig en volledig privé

  • Drie volwaardige slaapkamers geven flexibiliteit voor gezin, gasten of thuiswerk, zonder aan leefcomfort in te boeten

  • Hoofdslaapkamer met inloopdressing en badkamer-ensuite creëert een echte master suite met hotelgevoel

  • Open leefruimte met grote schuiframen laat binnen en buiten naadloos in elkaar overlopen en versterkt het ruimtelijk gevoel

  • Meerdere buitenzones rondom de woning zorgen ervoor dat elke leefruimte rechtstreeks verbonden is met buiten

  • Zeer royale totale buitenruimte met terras én een solarium is uitzonderlijk binnen dit segment

  • Solarium van 71m² biedt extra zon, privacy en mogelijkheden voor lounge, speelruimte of groenaccenten

  • Aangelegd terras van 20m² aansluitend aan de woonkamer vormt het natuurlijke verlengstuk van het dagelijkse leefleven

  • Praktische berging met aerothermische boiler houdt techniek netjes uit het zicht en verhoogt het wooncomfort

  • Elektrische rolluiken in de slaapkamers en LED-verlichting binnen en buiten versterken veiligheid, comfort en afwerkingsniveau

  • Residentie met gemeenschappelijk zwembad, ligweide en luxe pergola combineert privacy thuis met resortgevoel

  • Ligging nabij La Serena Golf en de Mar Menor biedt een unieke mix van rust, groen, zee en actieve ontspanning

WONINGEN BINNEN RESIDENTIE LA SUNRISE FASE 3:

Type woning  Aantal slaapkamers / badkamers  Bebouwde oppervlakte  Buitenruimte in m² Prijs 
Gelijkvloers appartement 3/2  81m² 121m² €339.900
Appartement met terras 2/2 67m² 13m² €279.900
Appartement met terras 3/2 81m² 20m² €319.900
Penthouse met solarium 2/2 67m² 69m² €339.900
Penthouse met solarium  3/2 85m² 91m² €399.900

GROEI EN TRENDS IN LOS ALCAZARES:

Jaar  Prijs per m² Jaarlijkse stijging 
2023 €2.246 -
2024 €2.610 +16.2%
2025 €2.977 +14.1%


Kenmerken:

Aantal slaapkamers 3
Aantal badkamers 2
Privaat zwembad Ja
Bebouwde oppervlakte 85 m²
Bewoonbare oppervlakte 78 m²
Afstand naar het strand 0.5 km
Terras oppervlakte 20 m²
Gedeeld zwembad Ja
Private Tuin Ja
Poort Ja
Nabij Scholen Ja
Nabij Commercieel centrum Ja
Terras Ja
Fietsafstand van het strand Ja
Vloerverwarming badkamer Ja
Douche schermen Ja
Nabij bushalte Ja
Solarium Ja
Solarium oppervlakte in m2 70-80 m²
Pré installatie airco Ja
Elektrische rolluiken Ja
Led verlichting buiten Ja
Led verlichting binnen Ja
Ondergrondse parking Ja
Telefoon Data aansluiting Ja
Videofonie Ja
Inbouwkasten Ja
Aero thermische warmtepomp Ja
Badkamer spiegels Ja
Volledig bemeubeld Nee
Alle keuken apparatuur volledig inbegrepen Nee
Pre installatie keuken Ja
Kookplaat Dampkap Magnetron & Oven Ja
Sportvelden Ja
Nabij kinder speeltuin Ja
Berging Ja
Op golfterrein Ja
Golfresort afstand in km 0-2 km
Ziekenhuis afstand in km 5-10 km
Luchthaven Alicante afstand 30-40 km
Luchthaven Murcia afstand 20-30 km
Uitzicht bergen Ja
Ontspanning ruimte buiten Ja
Hangend toilet Ja
Hangend badkamer meubel Ja
Uitzicht op het zwembad Ja
Security glas met uv filter Ja
Security 24/24 Ja
Volledig ingerichte keuken Ja
Gepantserde toegangsdeur met veiligheidsslot Ja
Kranen met waterbesparing Ja
Grote ramen van vloer tot plafond Ja
Hoogwaardige afwerking Ja
Goede prijs-kwaliteit verhouding Ja
Aerothermische boiler Ja
Hoge plafonds Ja
Meubelpakket Optioneel
Gelijkvloers Ja
Gelijkvloers met tuin Ja
Bungalow Ja
Luxe nieuwbouw Ja
Extra grote ramen uitkijkend op tuin en zwembad Ja
Aangelegde tuin met grind, gras en planten. Ja
Kijkwoning Ja
Goed gebied voor rentabiliteit van huur Ja
Wandelafstand van het strand Ja
Fietsberging Ja
Social club Ja
Energielabel A
Afgewerkte badkamer Ja
Gesloten urbanisatie Ja

Meer info?


Beschikbare documenten

bovenste bungalow 3-2.jpeg

document-bovenste bungalow 3-2.jpeg

download

Ontdek wat we nog meer voor jou in petto hebben!

Bellavista - San Miguel de Salinas - Villa Gemma
Bellavista - San Miguel de Salinas - Villa Gemma

Project: Bellavista villa's in San Miguel de salinas

Stad: Wonen in San Miguel: rust en zon aan zee

3   3     193 m²    

Nieuwbouw villa in Los Alcázares bij serena golf
Nieuwbouw villa in Los Alcázares bij serena golf

Project: Luxe villa aan Golf Serena in Los Alcázares

Stad: Los Alcazares - Murcia - Mar Menor

3   4     224 m²   110 m²  

Nieuwbouw villa in Los Alcázares bij serena golf
Nieuwbouw villa in Los Alcázares bij serena golf

Project: Luxe villa aan Golf Serena in Los Alcázares

Stad: Los Alcazares - Murcia - Mar Menor

3   4     224 m²   110 m²  

Dinant villa met privézwembad op La finca golf
Dinant villa met privézwembad op La finca golf

Project: Dinant villas op La finca golf resort

Stad: Algorfa

4   3     235 m²   59 m²  

Ottawa Luxury Costa Blanca villa 300m van zee
Ottawa Luxury Costa Blanca villa 300m van zee

Project: Ottawa Luxury Costa Blanca villa 300m van zee

Stad: Torre De La Horadada

189 m²   88 m²   3   3    

Villas de la Sal-San Miguel de salinas
Villas de la Sal-San Miguel de salinas

Project: Villas de la Sal in San Miguel de Salinas - F3

Stad: Wonen in San Miguel: rust en zon aan zee

3   2     107 m²   97 m²  

Gemeubeld appartement Ocean Dream Punta Prima
Gemeubeld appartement Ocean Dream Punta Prima

Project: Luxueuze appartementen Ocean Dream in Punta Prima

Stad: Torrevieja-Alicante

3   2   161 m²   85 m²  

Villas de la Sal-San Miguel de salinas
Villas de la Sal-San Miguel de salinas

Project: Villas de la Sal in San Miguel de Salinas - F3

Stad: Wonen in San Miguel: rust en zon aan zee

3   2     107 m²   97 m²  

Santa Rosalia Lake And Life Resort
Santa Rosalia Lake And Life Resort

Project: Levansur Home V Santa Rosalía Lake & Life Resort

Stad: Santa Rosalia

2   2     67 m²   103 m²  

Penthouse met solarium in Vista Azul
Penthouse met solarium in Vista Azul

Project: Vista Azul XXXVIII Spa & Nature - Fase 3

Stad: Guardamar del segura- Alicante

3   2   101 m²   18 m²  

Penthouse met solarium in Vista Azul
Penthouse met solarium in Vista Azul

Project: Vista Azul XXXVIII Spa & Nature - Fase 3

Stad: Guardamar del segura- Alicante

3   2   101 m²   15 m²  

Gelijkvloerse bungalow met ruim terras
Gelijkvloerse bungalow met ruim terras

Project: Bellavista bungalows: moderne mediterrane luxe

Stad: Wonen in San Miguel: rust en zon aan zee

2   2     92 m²   10 m²  

Ontdek woningen in de Costa Calida : La Sunrise

Advocaat in Spanje
Advocaat in Spanje

Ontdek waarom een Nederlandstalige advocaat in Spanje niet zomaar handig is, maar essentieel voor jouw gemoedsrust en zekerheid onder de zon.


...

Martine

Wonen in Spanje: gezond en gelukkig
Wonen in Spanje: gezond en gelukkig

Wonen aan de Costa Blanca verlengt je leven dankzij 300+ zonnige dagen, milde winters, frisse lucht en een gezond mediterraan dieet.

Casas Kimpencio helpt je jouw droomhuis aan zee vinden, voor vitaliteit, geluk en levenskwaliteit.

...

Martine

Buitenlandse kopers domineren hypotheekmarkt
Buitenlandse kopers domineren hypotheekmarkt

Steeds meer buitenlandse kopers kiezen voor een Spaanse hypotheek, en hun financiële profiel valt op. Met een gemiddeld inkomen van bijna zesduizend euro per maand en sterke eigen middelen kopen zij duurdere woningen dan d...

Martine

square-box
Tine
Vragen over panden, projecten en onze content
Snel starten:

Hallo, ik ben Tine je kan bij mij terecht met al je vragen over panden, projecten en onze content. Ik antwoord alleen op basis van de beschikbare website-inhoud.