Home Lopende projecten Alle Panden Over ons Ons team Ons kantoor Onze werkwijze Contacteer ons Blog Cookies

Bovenste bungalow in Mirador Santa Rosalia Lake & Life

 Project: Residentie Mirador in Santa Rosalia Resort F3

Appartementen en bungalows in het meest begeerde resort

Korte beschrijving:

BOVENSTE BUNGALOW – MIRADOR SANTA ROSALIA – GROTE TUIN & MODERNE AFWERKING

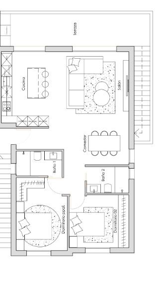
Deze bovenste bungalow is ontworpen met een doordachte indeling, hoogwaardige materialen en een sterke focus op licht en ruimte. Bij het binnenkomen bereik je de open leefruimte met grote schuiframen die rechtstreeks uitkijken op het aangelegd balkon van 16m². De keuken is modern afgewerkt in het wit, voorzien van een kookeiland én alle elektrische toestellen, zodat je zorgeloos kan intrekken. Op het terras bevindt zich een praktische buitenberging met aansluiting voor wasmachine en aerothermische boiler.

De woning beschikt over 2 slaapkamers en 2 volledig afgewerkte badkamers. De hoofdslaapkamer heeft een ensuite badkamer en een hoek-inbouwkast, terwijl de tweede slaapkamer eveneens over een eigen badkamer beschikt. Alle slaapkamers zijn voorzien van ingebouwde kasten met hangruimte, legplanken en lades. 

Deze bungalow bevindt zich in Mirador Santa Rosalía binnen het exclusieve Santa Rosalía Lake & Life Resort, een beveiligd resort met een uniek kristalhelder meer, strandzones en tal van sport- en ontspanningsfaciliteiten. De residentie zelf biedt een gemeenschappelijk zwembad, ruime ligweides én een ondergrondse parkeerplaats met berging per woning. Het geheel vormt een modern, duurzaam en comfortabel thuis waar buitenleven centraal staat.

U bent nog niet aangemeld!

Na invullen van onderstaande gegevens wordt u aangemeld, indien er nog geen account bestaat kan deze aangemaakt worden!



 Geef ons uw mening...

 Momenteel nog geen reviews voor dit pand.

Uitgebreide beschrijving:

Deze woning is gelegen op de bovenste verdieping, en voorzien van 2 slaapkamers met 2 badkamers. De bungalows zijn gebouwd in compacte rijblokken, waardoor het intrinsiek gevoel blijft bestaan. We nemen even een wandeling doorheen de woning. 

Bij het betreden van de woning, bereik je de ruime leefruimte met open keuken. De keuken wordt afgewerkt in het wit met een kookeiland, en is voorzien van alle elektrische toestellen. Hierdoor trek je zorgeloos in, zodat je optimaal kan genieten. De open woonkamer kijkt via grote schuiframen uit op het balkon, waar er ook een berging gelegen is. In die berging zijn er aansluitingen voorzien voor wasmachine en aerothermische boiler.

Er zijn 2 slaapkamers met 2 badkamers voorzien. De hoofdslaapkamer heeft een badkamer-ensuite én een hoek-inbouwkast. De andere slaapkamer heeft een eigen badkamer, maar geen ensuite. Elke slaapkamer is dus voorzien van inbouwkasten met hangrekken, legplanken en lades. 

Beide badkamers zijn dan weer uitgerust met een wastafel, bijpassend meubel, spiegel, douche, toilet, ... De gehele woning is modern afgewerkt, met de meest duurzame en kwaliteitsvolle materialen. 

DUS CONCREET: 

  • 2 slaapkamers
  • 2 badkamers
  • Keuken met toestellen 
  • Berging op het balkon 
  • Open leefruimte met grote schuiframen

Deze woning is gelegen op de bovenste verdieping, waardoor je geniet van een aangelegd terras van 16m². Een verdieping hoger, bereik je het solarium van 61m². Daar kan je de hele dag door genieten van de zon, met prachtige zichten over het Santa Rosalia Lake & Life Resort. 

Deze woning is gelegen in residentie Mirador Santa Rosalia, wat heel wat gemeenschappelijke voorzieningen heeft. Er is een gemeenschappelijk zwembad gelegen met een ruime ligweide rondom. Daarnaast heeft elke woning ook een brievenbus. 

Elke woning heeft een ondergrondse parkeerplaats met een berging, in de gemeenschappelijke ondergrondse parking. 

TECHNISCHE KENMERKEN: 

  • Porseleinen, keramische tegels 
  • Dubbele beglazing 
  • Ventilatie in de badkamer
  • Pré-installatie airconditioning via kanalen ( zowel warm als koud ) 

Deze woning is gelegen in Santa Rosalia Lake & Life Resort. Santa Rosalía Lake & Life Resort, gelegen tussen Los Alcázares en Torre-Pacheco, is een van de meest innovatieve en exclusieve woonresorts van de regio Murcia. Het resort is ontworpen rondom een schitterend, kristalhelder meer – het grootste kunstmatige meer van Europa – dat het hart vormt van een unieke leefomgeving waar ontspanning, natuur en luxe samenkomen. Rondom het meer bevinden zich witte zandstranden, ligweides, wandelpaden en sportzones, waardoor het voelt alsof je in een modern mediterrane oase woont.

Het leven in Santa Rosalía draait om buiten zijn, rust en welzijn. De combinatie van water, groene zones en zorgvuldig aangelegde tuinarchitectuur creëert een serene sfeer die perfect past bij het zachte klimaat van de Mar Menor. Bewoners genieten dagelijks van zwemmen in het meer, kajakken, padellen, yoga op strandplatforms of gewoon ontspannen op de natuurlijke stranden. Restaurants, beachclubs, een social club, kinderspeelzones en fietspaden maken het resort een levendige maar harmonieuze woonomgeving.

In de nabije omgeving van het resort vind je alles wat het dagelijks leven comfortabel maakt. Los Alcázares met zijn stranden, boulevard en winkels ligt op enkele minuten rijden, en ook Roda Golf, Mar Menor Golf en de haven van Los Narejos zijn vlakbij. De omgeving staat bekend om haar gezonde microklimaat, heerlijke gastronomie en ontspannende kustsfeer. Ondanks dit alles behoudt Santa Rosalía een gevoel van exclusiviteit en rust, dankzij de gecontroleerde toegang en het zorgvuldig ontworpen landschap.

Wat veel mensen niet weten, is dat het meer van Santa Rosalía een geavanceerde Crystal Lagoons®-technologie gebruikt, waardoor het water uitzonderlijk helder blijft met een minimale impact op het milieu. Hierdoor kan het resort enorme wateroppervlakken aanbieden met een fractie van het water- en energiegebruik dat traditionele zwembaden vereisen. Het is een milieuvriendelijke innovatie die Santa Rosalía een pionier maakt in duurzaam woonontwerp.

Daarnaast kent het resort een bijzonder klimaatgevoel doordat de warme wind van de Middellandse Zee zich mengt met de koelere lucht van de open landbouwvlakten rondom Torre-Pacheco. In de avonden ontstaat hierdoor een aangename, lichte bries die het meer soms een spiegelgladde glans geeft. Op die momenten lijkt Santa Rosalía meer op een idyllische lagune dan op een woongebied – een stukje mediterrane magie dat je alleen begrijpt wanneer je het zelf hebt ervaren.

AFSTANDEN: 

  • Luchthaven Murcia-Corvera: 25 min

  • Luchthaven Alicante: 55 min

  • Stranden Los Alcázares / Mar Menor: 8 min

  • Stranden Middellandse Zee (La Manga): 20 min

  • Supermarkt (Mercadona / Consum): 5 min

  • Winkelcentrum Dos Mares: 12 min

  • Torre-Pacheco centrum: 10 min

  • Golfbanen (Roda Golf, Mar Menor Golf, La Serena Golf): 5–10 min

  • Ziekenhuis Los Arcos: 12 min

Onze visie binnen Casas Kimpencio;

  • Bij Casas Kimpencio ben je niet zomaar iemand, wij willen een persoonlijke relatie aangaan.
  • We behandelen jullie zoals we zelf behandeld willen worden, met de nodige betrokkenheid, precisie en details.
  • Geen enkele vraag is ons te veel, we staan elke dag telefonisch voor jou klaar.
  • Wij hebben de gedachte dat een huis kopen niet zomaar een huis kopen is, maar een nieuwe thuis kopen.
  • Iedereen dient een eigen verhaal te krijgen, met verschillende hoofdstukken. 
  • Wij willen helpen aan het Spaanse hoofdstuk, een hoofdstuk van een nieuwe thuis, vakantiewoning of een investering.
  • En dit doen we met open, duidelijke communicatie  en daarmee geraken we er altijd, zo vinden we jouw ideale woning gebaseerd op meerdere gesprekken.
  • We helpen vanaf het begin tot aan de sleuteloverdracht, en ver daarbuiten. 

Wij vinden deze woning bijzonder omdat;

  • Je meteen een echt ‘huisgevoel’ hebt ondanks dat het een bungalow is – dankzij de slimme indeling, grote leefruimte en de directe verbinding tussen binnen- en buitenruimtes voelt dit niet als een klassiek appartement maar als een volwaardige villa.

  • Er een volledig uitgerust kookeiland is – een luxe element dat je zelden ziet in compacte bungalows. De keuken wordt volledig geleverd met toestellen én een modern design in wit.

  • Grote schuiframen de leefruimte visueel verdubbelen – door de kamerhoge ramen vloeit het balkon volledig mee in het interieur, wat zorgt voor licht, ruimte en een open woonbeleving.

  • Beide slaapkamers over hun eigen badkamer beschikken – de hoofdslaapkamer met ensuite én een tweede slaapkamer met privébadkamer. Hierdoor is de woning ideaal voor gasten of voor investering.

  • Er een volledig uitgeruste buitenberging is – met aansluitingen voor wasmachine en aerothermische boiler, perfect geïntegreerd zonder dat het ten koste gaat van de leefruimte binnen.

  • Je beschikt over een groot solarium van 61m² én een terras van 16m² – dit is bovengemiddeld voor een woning in deze regio. De tuin is perfect afgewerkt en volledig omheind voor maximale privacy.

  • De afwerkingsgraad uitzonderlijk hoog ligt – porseleinen vloeren, dubbele beglazing, hoogwaardige ventilatie, strak tegelwerk en moderne, duurzame materialen doorheen de hele woning.

  • De woning deel uitmaakt van een kleinschalige, rustige residentie – met een mooi aangelegd gemeenschappelijk zwembad, ligweide én private brievenbussen.

  • Je een ondergrondse parkeerplaats én berging krijgt – een grote troef binnen Santa Rosalía, waar ondergrondse parkeerruimte beperkt en zeer gewild is.

  • Je woont in één van de meest exclusieve resorts van Spanje – Santa Rosalía Lake & Life Resort, met het iconische Crystal Lagoon-meer, strandzones, sportfaciliteiten, beachclubs en een ongeëvenaarde leefkwaliteit.

WONINGEN BINNEN MIRADOR SANTA ROSALIA LAKE & LIFE RESORT: 

Type woning  Aantal slaapkamers / badkamers  Buitenruimte in m² Bebouwde oppervlakte  Prijs 
Gelijkvloerse bungalow  2/2 16 + 65 m² 96m² €329.900
Bovenste bungalow  2/2 16 + 61 m² 85m² €339.000
Gelijkvloers appartement  3/2 18 + 66 m² 109m² €347.900
Appartement op tussenverdieping  2/2 27m² 96m² €309.900
Penthouse  3/2 19 + 55 m² 100m² €419.900

GROEI EN TRENDS IN SANTA ROSALIA: 

Jaar  Prijs per m² Jaarlijkse stijging 
2023 €1.988 -
2024 €2.793 +40.5%
2025 €3.219 +15.3%


Kenmerken:

Aantal slaapkamers 2
Aantal badkamers 2
Gedeeld zwembad Ja
Terras Ja
Bebouwde oppervlakte 85 m²
Terras oppervlakte 16 m²
Douche schermen Ja
Afstand naar het strand 4 km
Solarium Ja
Solarium oppervlakte in m2 60-70 m²
Pré installatie airco Ja
Led verlichting buiten Ja
Led verlichting binnen Ja
privé parkeerplaats Ja
Ondergrondse parking Ja
Telefoon Data aansluiting Ja
Videofonie Ja
Inbouwkasten Ja
Poort Ja
Elektrische poort Ja
Badkamer spiegels Ja
Alle keuken apparatuur volledig inbegrepen Ja
Kookplaat Dampkap Magnetron & Oven Ja
Nabij kinder speeltuin Ja
Berging Ja
Uitzicht tuin Ja
Golfresort afstand in km 2-5 km
Ziekenhuis afstand in km 10-20 km
Nabij Commercieel centrum Ja
Luchthaven Alicante afstand 50+ km
Luchthaven Murcia afstand 40-50 km
Gedeelde kosten Ja
Ontspanning ruimte buiten Ja
Ontspanning ruimte binnen Ja
Hangend toilet Ja
Hangend badkamer meubel Ja
Uitzicht op het zwembad Ja
Volledig ingerichte keuken Ja
Dampkap Ja
Gepantserde toegangsdeur met veiligheidsslot Ja
Hoogwaardige afwerking Ja
Goede prijs-kwaliteit verhouding Ja
Aerothermische boiler Ja
Bungalow Ja
Penthouse Ja
Luxe nieuwbouw Ja
Kijkwoning Ja
Goed gebied voor rentabiliteit van huur Ja
Social club Ja
Energielabel B
Afgewerkte badkamer Ja
Gesloten urbanisatie Ja

Meer info?


Beschikbare documenten

penthouse onderste.jpeg

document-penthouse onderste.jpeg

download
penthouse solarium.jpeg

document-penthouse solarium.jpeg

download

Ontdek wat we nog meer voor jou in petto hebben!

Moderne Ibiza-stijl villa te koop in Benissa
Moderne Ibiza-stijl villa te koop in Benissa

Project: Serenity: Gelijkvloerse Ibiza-stijl villa

Stad: Benissa

3   2     139 m²   68 m²  

Luxe villa Lysandra in Orihuela Costa, La Zenia
Luxe villa Lysandra in Orihuela Costa, La Zenia

Project: Luxe villa in Orihuela Costa - Lysandra Villa

Stad: Orihuela Costa-Alicante

3   4     203 m²   160 m²  

Luxe villa’s met zwembad in Desert Springs.
Luxe villa’s met zwembad in Desert Springs.

Project: Villa's op Golfresort Desert Spring Resort

Stad: Cuevas Del Almanzora

3   3     174 m²   51 m²  

Luxe villa op eerstelijn zee
Luxe villa op eerstelijn zee

Project: Residentie 3 Palmeras in Puerto de Mazarron

Stad: Puerto de Mazarrón

3   3     182 m²   56 m²  

Vrijstaande luxewoning in Arena Beach III
Vrijstaande luxewoning in Arena Beach III

Project: Arena golf villa's in La Finca Golf

Stad: Algorfa

6   3     486 m²   52 m²  

Luxevilla met zicht op zee en natuur in Polop
Luxevilla met zicht op zee en natuur in Polop

Project: Luxe nieuwbouw villa met zeezicht in Polop

Stad: Polop-Benidorm

4   3     208 m²   160 m²  

Villa met prachtig bergzicht in residentie Airen
Villa met prachtig bergzicht in residentie Airen

Project: Airen: eco-vriendelijke luxe villa's in Llíber

Stad: Llíber

3   2     432.76 m²    

Villa met prachtig bergzicht in residentie Airen
Villa met prachtig bergzicht in residentie Airen

Project: Airen: eco-vriendelijke luxe villa's in Llíber

Stad: Llíber

3   2     432.76 m²    

Luxe villa op eerstelijn zee
Luxe villa op eerstelijn zee

Project: Residentie 3 Palmeras in Puerto de Mazarron

Stad: Puerto de Mazarrón

3   3     182 m²   56 m²  

Luxueuze nieuwbouwvilla's in Sierra Cortina!
Luxueuze nieuwbouwvilla's in Sierra Cortina!

Project: Residentie Sea View 6: Luxe woningen nabij de zee

Stad: Finestrat-Benidorm

3   3     155 m²   69 m²  

Exclusieve ruime villa in Roldán
Exclusieve ruime villa in Roldán

Project: VILLAS ROLDÁN

Stad: Roldan

3   2     199 m²   106 m²  

Appartement met terras in Azure Icons
Appartement met terras in Azure Icons

Project: Residentie Azure Icons in Calpe

Stad: Calpe-Costa-Blanca

3   2     125 m²   30 m²  

Ontdek wat we nog meer voor jou in petto hebben!

Deel 1: Santa Rosalia Lake Resort in Costa Cálida
Deel 1: Santa Rosalia Lake Resort in Costa Cálida

Santa Rosalia Lake & Life Resort in Costa Calida is een unieke mediterrane oase, een veilige haven waar je vrij kunt leven. Het uitgestrekte gebied van 700.000 m² is bezaaid met bijna 4.000 mediterrane bomen en planten, zorgvuldig geselecteerd op hun geschiktheid voor het klimaat. Deze plek ...

Martine

Deel 2 :Santa Rosalia Lake Resort in Costa Cálida
Deel 2 :Santa Rosalia Lake Resort in Costa Cálida

Ontdek Santa Rosalía Lake and Life Resort: een nieuw woonconcept aan de Spaanse Mediterrane vastgoedmarkt!

Deze unieke bestemming combineert natuur, veiligheid, luxe en exclusiviteit voor een ongeëvenaarde levensstijl in een pr...

Martine

Advocaat in Spanje
Advocaat in Spanje

Ontdek waarom een Nederlandstalige advocaat in Spanje niet zomaar handig is, maar essentieel voor jouw gemoedsrust en zekerheid onder de zon.


...

Martine

square-box
Tine
Vragen over panden, projecten en onze content
Snel starten:

Hallo, ik ben Tine je kan bij mij terecht met al je vragen over panden, projecten en onze content. Ik antwoord alleen op basis van de beschikbare website-inhoud.