Home Lopende projecten Alle Panden Over ons Ons team Ons kantoor Onze werkwijze Contacteer ons Blog Cookies

Bovenste bungalow met solarium op La Finca Golf

 Project: Residentie Mar Egeo II - R.19

Nieuwe bungalows in La Finca Golf, Algorfa in luxe en natuur

Korte beschrijving:

BOVENSTE BUNGALOW – 3 SLAAPKAMERS – 2 BADKAMERS – TERRAS EN SOLARIUM 

Deze moderne penthousewoning beschikt over een lichtrijke leefruimte met open keuken, grote schuiframen en directe toegang tot het terras van 23.5m². Naast de keuken bevindt zich een praktische wasruimte met aansluitingen voor wasmachine, droogkast en aerothermische boiler. Alle slaapkamers hebben ingebouwde kasten. De hoofdslaapkamer beschikt over een ensuite badkamer, beide badkamers zijn volledig afgewerkt en voorzien van vloerverwarming.

De woning maakt deel uit van residentie Mar Egeo 2, waar je geniet van een spectaculair gemeenschappelijk zwembad omringd door groene zones. Tegen meerprijs is er een ondergrondse parkeerplaats met berging beschikbaar.

Gelegen in La Finca Golf, Algorfa, tussen groene heuvels, natuur en prestigieuze golfbanen, met stranden op slechts 15 minuten rijden. Perfect voor wie rust, comfort en luxe wil combineren.

U bent nog niet aangemeld!

Na invullen van onderstaande gegevens wordt u aangemeld, indien er nog geen account bestaat kan deze aangemaakt worden!



 Geef ons uw mening...

 Momenteel nog geen reviews voor dit pand.

Uitgebreide beschrijving:

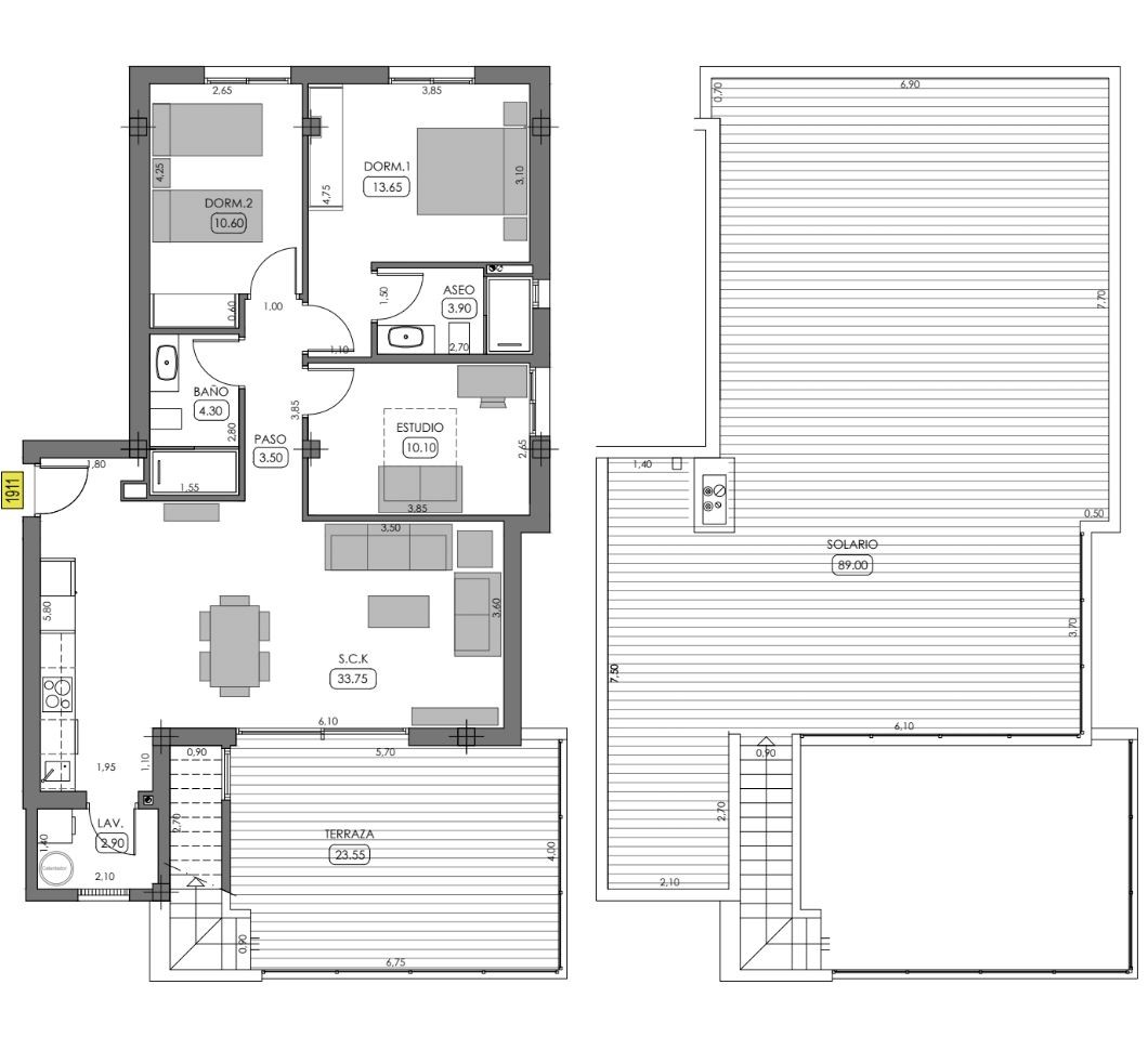
Deze woning is gelegen op de bovenste verdieping en voorzien van 3 slaapkamers met 2 badkamers. De woning is verdeeld over 2 verdiepingen. Op de onderste verdieping zijn alle leefruimtes gelegen. Bij het betreden van de woning bereik je de ruime leefruimte met open keuken. De keuken en woonkamer kijken via grote schuiframen uit op het balkon van 23.5m².

Aansluitend aan de keuken is er een wasruimte voorzien met aansluitingen voor wasmachine en droogmachine én installatie van aerothermische boiler. 

Verder in de woning zijn er 3 slaapkamers gelegen met 2 badkamers. De hoofdslaapkamer heeft een badkamer-ensuite. De tweede en derde slaapkamer delen een badkamer. Elke badkamer is uitgerust met een wastafel en bijpassend meubel, douche, spiegel, toilet, ... Bovendien is elke badkamer uitgerust met vloerverwarming. 

Elke slaapkamer heeft inbouwkasten met hangrekken, legplanken en lades. Via een buitentrap op het balkon bereik je het solarium van 89m². Daar kan je de hele dag door genieten van de zon én van de meest prachtige zichten over de golfbaan La Finca. 

DUS CONCREET: 

  • 3 slaapkamers
  • 2 badkamers 
  • Open keuken 
  • Ruime leefruimte
  • Wasruimte
  • Balkon van 23.5m²
  • Solarium van 89m²

Deze bungalow is gelegen in residentie Mar Egeo 2. Deze residentie is voorzien van tal van gemeenschappelijke voorzieningen. Zo is er onder meer een spectaculair gemeenschappelijk zwembad, met groene zones rondom. Dankzij de groene zones kan je volop ontspannen onder de Spaanse zon! 

Tegen een meerprijs, heb je zelfs een eigen ondergrondse parkeerplaats met berging! Ideaal toch? 

TECHNISCHE KENMERKEN: 

  • Elektrische rolluiken in slaapkamers en woonkamer
  • Volledige airconditioning 
  • Aerothermische boiler
  • Vloerverwarming in de badkamers
  • Dubbele beglazing 

Deze woning is gelegen in La Finca Golf, in Algorfa. La Finca Golf, gelegen in de gemeente Algorfa, is een van de meest gewilde plekken aan de Costa Blanca voor wie natuur, rust en comfort wil combineren. De urbanisatie ligt ingebed tussen groene heuvels, sinaasappelvelden en wijngaarden, met het clubhuis en de golfbaan als kloppend hart. Vanaf vele plekken kijk je uit over de perfect onderhouden fairways, vijvers en olijfbomen, terwijl de bergen in de verte voor een indrukwekkend decor zorgen. Ondanks de rustige ligging is de kust nooit ver weg – de stranden van Guardamar del Segura en Torrevieja bereik je binnen 15 à 20 minuten.

Het middelpunt van het gebied is de 18-holes golfbaan van La Finca, ontworpen door Pepe Gancedo. De baan staat bekend om zijn brede fairways, uitdagende greens en spectaculaire uitzichten. Het clubhuis biedt een stijlvol restaurant, een lounge, terrassen met panoramisch uitzicht en faciliteiten zoals een pro-shop en oefenterreinen. Daarnaast ligt er een luxe hotel met spa, zwembad en wellnessmogelijkheden, waar je kunt ontspannen met massages, sauna’s en andere verwenmomenten – allemaal omringd door rust en natuur.

In de directe omgeving vind je ook alles wat je nodig hebt voor het dagelijks leven. Er zijn restaurants, cafés, kleine winkels en sportfaciliteiten zoals padel- en tennisbanen. Algorfa, een traditioneel Spaans dorp met pleinen, kerken en tapasbars, ligt op korte afstand. Steden als Orihuela en Torrevieja zorgen voor extra voorzieningen zoals ziekenhuizen, markten, winkelcentra en culturele activiteiten.

Wat weinig mensen weten, is dat La Finca ’s ochtends vroeg een uitzonderlijke stilte kent. Terwijl de mist soms nog als een dunne sluier over de golfbaan ligt, hoor je alleen vogels en het zachte geluid van irrigatie dat de greens voedt. Het is een vredig moment waarop de zon langzaam boven de bergen verschijnt en de lucht zich vult met de geur van dennen en vers gemaaid gras – iets wat je alleen ervaart als je hier echt bent.

Daarnaast heeft de omgeving van Algorfa een agrarische ziel die vaak over het hoofd wordt gezien. Buiten de luxe van de golfbaan liggen velden vol citrus, artisjokken en amandelen, onderhouden door lokale boeren die hun tradities van generatie op generatie doorgeven. In de kleine dorpsrestaurants vind je gerechten bereid met producten die dezelfde ochtend nog van het land kwamen. Die verbinding tussen luxe, natuur en puur Spaans landleven maakt La Finca Golf in Algorfa zo bijzonder en uniek.

AFSTANDEN: 

  • Stranden van Guardamar del Segura: 15km 
  • Luchthaven van Alicante: 35km
  • Steden Almoradi, Benijofar en Ciudad Quesada: 7 minuten rijden 
  • Winkelcentrums: 15 minuten rijden

Onze visie binnen Casas Kimpencio;

  • Bij Casas Kimpencio ben je niet zomaar iemand, wij willen een persoonlijke relatie aangaan.
  • We behandelen jullie zoals we zelf behandeld willen worden, met de nodige betrokkenheid, precisie en details.
  • Geen enkele vraag is ons te veel, we staan elke dag telefonisch voor jou klaar.
  • Wij hebben de gedachte dat een huis kopen niet zomaar een huis kopen is, maar een nieuwe thuis kopen.
  • Iedereen dient een eigen verhaal te krijgen, met verschillende hoofdstukken. 
  • Wij willen helpen aan het Spaanse hoofdstuk, een hoofdstuk van een nieuwe thuis, vakantiewoning of een investering.
  • En dit doen we met open, duidelijke communicatie  en daarmee geraken we er altijd, zo vinden we jouw ideale woning gebaseerd op meerdere gesprekken.
  • We helpen vanaf het begin tot aan de sleuteloverdracht, en ver daarbuiten. 

Wij vinden deze woning bijzonder omdat; 

  • Ruime leefruimte met open keuken en grote schuiframen die uitkomen op het terras.

  • Wasruimte naast de keuken met aansluiting voor wasmachine/droogkast en aerothermische boiler.

  • 3 slaapkamers met inbouwkasten, waarvan één met ensuite badkamer.

  • 2 volledig afgewerkte badkamers met douche, toilet, lavabo én vloerverwarming.

  • Balkon van 23.5m² en solarium van 89m².

  • Residentie met groot gemeenschappelijk zwembad, groenzones en optioneel ondergrondse parking + berging.

  • Voorzien van airconditioning, elektrische rolluiken, dubbele beglazing en aerothermisch systeem.

  • Gelegen in La Finca Golf: rustige omgeving, vlak bij natuur, restaurants, golfbaan en op 15 min van het strand.

WONINGEN IN RESIDENTIE MAR EGEO 2: 

Type woning  Aantal slaapkamers / badkamers  Terras / plot in m² Bebouwde oppervlakte  Prijs 
Gelijkvloerse bungalow  2/2 56m² / 12m² 74m² €299.000
Gelijkvloerse bungalow  3/2 65m² 96m² €349.000
Bovenste bungalow  2/2 91m² 74m² €325.000
Bovenste bungalow  3/2 112m² 96m² €365.000

GROEI EN TRENDS IN ALGORFA:

Jaar Prijs per m² Jaarlijkse stijging 
2023 €2.256 -
2024 €2.428 +7.6%
2025 €2.611 +7.5%


Kenmerken:

Aantal slaapkamers 3
Aantal badkamers 2
Bebouwde oppervlakte 96 m²
Bewoonbare oppervlakte 85 m²
Afstand naar het strand 14 km
Terras oppervlakte 23.5 m²
Gedeeld zwembad Ja
Poort Ja
Terras Ja
Vloerverwarming badkamer Ja
Douche schermen Ja
Solarium Ja
Solarium oppervlakte in m2 80-90 m²
Volledige airco installatie Ja
Elektrische rolluiken Ja
Led verlichting buiten Ja
Led verlichting binnen Ja
Ondergrondse parking Ja
Telefoon Data aansluiting Ja
Videofonie Ja
Inbouwkasten Ja
Elektrische poort Ja
Badkamer spiegels Ja
Nabij kinder speeltuin Ja
Berging Ja
Gedeelde tuin Ja
Uitzicht tuin Ja
Op golfterrein Ja
Golfresort afstand in km 0-2 km
Ziekenhuis afstand in km 5-10 km
Nabij Commercieel centrum Ja
Luchthaven Alicante afstand 50+ km
Luchthaven Murcia afstand 50+ km
Gedeelde kosten Ja
Ontspanning ruimte buiten Ja
Hangend toilet Ja
Hangend badkamer meubel Ja
Gepantserde toegangsdeur met veiligheidsslot Ja
Bioklimatologische pergola Ja
Hoogwaardige afwerking Ja
Goede prijs-kwaliteit verhouding Ja
Aerothermische boiler Ja
Bungalow Ja
Penthouse Ja
Kijkwoning Ja
Automatische irrigatie in de tuin. Ja
Energielabel B
Afgewerkte badkamer Ja
Gesloten urbanisatie Ja

Meer info?


Beschikbare documenten

penthouse 3-2.jpeg

document-penthouse 3-2.jpeg

download

Ontdek wat we nog meer voor jou in petto hebben!

Appartement met solarium in residentie Lolm
Appartement met solarium in residentie Lolm

Project: Residentie Lolm in Hondon de las Nieves

Stad: Hondón de las Nieves

2   1   71.8 m²  

Penthouse met solarium in Costa Blanca
Penthouse met solarium in Costa Blanca

Project: Penthouse Benejúzar Boutique wonen Costa Blanca

Stad: Benejúzar

3   3     56 m²   12 m²  

Gerenoveerd penthouse met solarium  Collado Bajo
Gerenoveerd penthouse met solarium Collado Bajo

Project: Wooncomplex Collado Bajo

Stad: Aguilas

2   2   60 m²   56 m²  

Exclusieve herverkoop: penthouse in res. Veleta
Exclusieve herverkoop: penthouse in res. Veleta

Project: Residentie Veleta in San Miguel de Salinas

Stad: Wonen in San Miguel: rust en zon aan zee

2   2   99 m²   5 m²  

Duplex en Fortuna (murcia)
Duplex en Fortuna (murcia)

Project: Duplex en Fortuna (murcia)

Stad: Fortuna

3   2     164 m²   73 m²  

Penthouse (studio) in Torrevieja nabij zee
Penthouse (studio) in Torrevieja nabij zee

Project: Torrevieja: Nieuwbouw op 200m van zee, unieke kans

Stad: Torrevieja-Alicante

0   1   54 m²   12 m²  

Miramar penthouse in Orihuela Costa
Miramar penthouse in Orihuela Costa

Project: Miramar Orihuela Costa

Stad: Orihuela Costa-Alicante

2   2     93 m²   8 m²  

Penthouse Riomar Healthy Living
Penthouse Riomar Healthy Living

Project: Assistentie appartementen Riomar Healthy Living

Stad: Torre De La Horadada

1   1   96 m²   44 m²  

Penthouse met zeezicht en groot terras
Penthouse met zeezicht en groot terras

Project: Xeresa del Monte: Betaalbare woningen met zeezicht

Stad: Xeresa

3   2     89 m²   88 m²  

Puerta de Oriente-Vera Playa
Puerta de Oriente-Vera Playa

Project: Puerta de Oriente-Vera Playa

Stad: Vera- regio Costa Almeria Andalusië

2   2     71 m²   45 m²  

Penthouse - Puerta de Oriente
Penthouse - Puerta de Oriente

Project: Residentie Puerta De Oriente

Stad: Vera- regio Costa Almeria Andalusië

2   2   71 m²   45 m²  

Penthouse van met 2 slpk en terras van 108 m²
Penthouse van met 2 slpk en terras van 108 m²

Project: Sol y Vida fase 2-Torre-pacheco -ciudad

Stad: Torre-Pacheco - Murcia

3   2     107 m²   108 m²  

Lees mee met onze nieuwste blogs!

La Finca Golf - Luxe wonen aan de golfbaan
La Finca Golf - Luxe wonen aan de golfbaan

Ontdekt La Finca Golf in Algorfa: een exclusief woonproject met moderne woningen naast een fantastische golfbaan. 

Geniet van luxe, natuur en comfort aan de Costa Blanca Zuid. 

La Finca Golf biedt luxe woningen in een groene, rustige omgeving met een topgolfbaan, voorziening...

Martine

Wat zijn de drukste Spaanse snelwegen?
Wat zijn de drukste Spaanse snelwegen?

Spanje heeft een van de drukste wegennetten van Europa. In deze gids ontdek je waar de files het zwaarst zijn, waarom bepaalde snelwegen vastlopen en hoe jij slim reist.

...

Martine

Casas Kimpencio met trots in de schijnwerpers!
Casas Kimpencio met trots in de schijnwerpers!

Ontdek waarom Casas Kimpencio werd uitgenodigd door Ondernemerslounge en hoe hun persoonlijke aanpak het verschil maakt in Spaans vastgoed.


...

Martine

square-box
Tine
Vragen over panden, projecten en onze content
Snel starten:

Hallo, ik ben Tine je kan bij mij terecht met al je vragen over panden, projecten en onze content. Ik antwoord alleen op basis van de beschikbare website-inhoud.