Home Lopende projecten Alle Panden Over ons Ons team Ons kantoor Onze werkwijze Contacteer ons Blog Cookies

Duplex woning met tuin in residentie Montecala Gardens

 Project: Residentie Montecala Gardens in Benitachell

Nieuwbouwappartementen met tal van voorzieningen in luxe

Korte beschrijving:

DUPLEX APPARTEMENT – 2 SLAAPKAMERS – TERRAS 18M² + TUIN 143M² – BENITACHELL

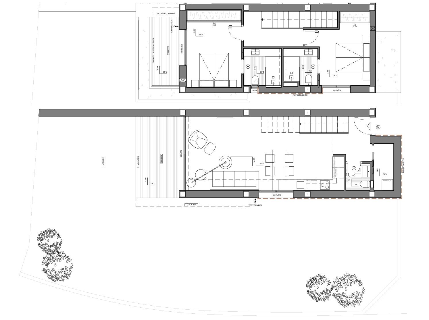
Dit appartement op de bovenste verdieping combineert privacy, licht en buitenruimte in een doordachte indeling. Dankzij de cascade-architectuur geniet je op het terras van maximale rust zonder inkijk van buren. Via de inkomhal kom je terecht in de lichtrijke woonkamer met open keuken, volledig uitgerust met toestellen van Bosch of gelijkaardig. De leefruimte sluit naadloos aan op het ruime terras van 22 m², dat fungeert als een echte verlenging van je woonruimte.

De woning beschikt over twee volwaardige slaapkamers en twee badkamers. Beide slaapkamers hebben rechtstreekse toegang tot het terras, wat zorgt voor een open gevoel en veel natuurlijke lichtinval. De badkamers zijn modern afgewerkt met douche, wastafel, toilet en bijpassend meubel. Daarnaast is er een praktische berging in de inkomhal, waardoor extra opbergruimte discreet geïntegreerd is in het appartement.

Technisch biedt deze woning een hoog comfortniveau met vloerverwarming, volledige airconditioning via domotica, aerothermie en uitstekende isolatie. De residentie beschikt bovendien over twee zwembaden, een social club en een speeltuin, wat zorgt voor een aangename en verzorgde leefomgeving. Een ideale combinatie van privacy, buitenleven en modern wooncomfort in een rustige, groene omgeving.

U bent nog niet aangemeld!

Na invullen van onderstaande gegevens wordt u aangemeld, indien er nog geen account bestaat kan deze aangemaakt worden!



 Geef ons uw mening...

 Momenteel nog geen reviews voor dit pand.

Uitgebreide beschrijving:

Deze woning is gelegen op een tussenverdieping en voorzien van 2 slaapkamers met 2 badkamers. Het duplex appartement is verdeeld over 2 verdiepingen. We nemen even een wandeling doorheen de woning, zodat je volledig mee bent met de indeling en voorzieningen. Bij het betreden van de woning, op de begane vloer, kom je terecht in de inkomhal die uitmondt in de woonkamer met open keuken. 

Het gebouw is gebouwd in een cascade-systeem, waardoor op jouw terras en tuin de privacy altijd voorop staat. De inkijk van de buren is strategisch aangepakt en wordt zo veel mogelijk beperkt. De woonkamer heeft een open keuken. De keuken is uitgerust met volgende toestellen; koelkast, kookplaat, oven, magnetron, afzuigkap en vaatwasser. Alle toestellen zijn van het merk Bosch of gelijkaardig.

Op de begane vloer is er ook nog een gastentoilet met wastafel gelegen én een berging. Via een binnentrap bereik je de bovenste verdieping. 

Dit appartement is voorzien van 2 slaapkamers met 2 badkamers. Beide slaapkamers zijn voorzien van inbouwkasten. De badkamers zijn op zich weer uitgerust met een wastafel, douche, toilet, spiegel, badkamermeubel. De hoofdslaapkamer heeft een eigen balkon.

DUS CONCREET: 

  • 2 slaapkamers
  • 2 badkamers
  • Terras van 18m²
  • Tuin van 143m²
  • Berging 
  • Gastentoilet
  • Uitgeruste keuken 
  • Moderne badkamer

Residentie Montecala Gardens heeft natuurlijk gemeenschappelijke voorzieningen. Zo zijn er 2 gemeenschappelijke zwembaden met ruime terrassen rondom. Daar kan elke bewoner optimaal ontspannen. Verder is er ook een speeltuin voor de kleinsten én een social club. De residentie is voorzien van voldoende parkeerplaatsen. 

TECHNISCHE KENMERKEN: 

  • Efficiënte thermische en akoestische isolatie
  • Dubbele beglazing 
  • Zonwering
  • Elektrische rolluiken in de slaapkamers
  • Ingebouwde kasten 
  • Porseleinen vloeren 
  • Alarmsysteem met video-intercom
  • LED-verlichting zowel binnen als buiten 
  • Aerothermische warmtepomp
  • Vloerverwarming 
  • Volledige airconditioning via domotica

Deze woning is gelegen in Benitachell. Benitachell, officieel El Poble Nou de Benitatxell, is een rustig en charmant dorp aan de noordelijke Costa Blanca, gelegen tussen Jávea en Moraira. Het dorp ligt iets landinwaarts op een heuvel, wat zorgt voor prachtige uitzichten over de vallei, de wijngaarden en de Middellandse Zee in de verte. Benitachell heeft zijn authentieke Spaanse karakter behouden, met een compacte dorpskern, smalle straatjes en een ontspannen levensritme.

Het centrum van Benitachell is kleinschalig maar compleet, met lokale winkels, cafés en restaurants waar het dorpsleven zich dagelijks afspeelt. De sfeer is gemoedelijk en traditioneel, met een sterke gemeenschapszin. Tegelijkertijd liggen de meer toeristische kustplaatsen Moraira en Jávea op korte afstand, waardoor je eenvoudig toegang hebt tot stranden, jachthavens en een breder aanbod aan voorzieningen.

De omgeving van Benitachell is bijzonder aantrekkelijk voor liefhebbers van natuur en rust. De nabijgelegen kustlijn biedt indrukwekkende kliffen en verborgen baaien zoals Cala Moraig, terwijl het binnenland gekenmerkt wordt door wijngaarden en glooiende heuvels. Wandel- en fietsroutes geven je de kans om het landschap op een rustige manier te ontdekken. Het milde klimaat en de open ligging zorgen ervoor dat het hier het hele jaar door aangenaam vertoeven is.

Wat veel mensen niet weten, is dat Benitachell een belangrijke wijntraditie heeft. De streek staat bekend om de productie van de zoete moscatelwijn, en de omliggende wijngaarden vormen een herkenbaar onderdeel van het landschap. Tijdens lokale feesten en markten wordt deze traditie nog steeds actief gevierd.

Daarnaast heeft Benitachell een rustige en bijna verborgen charme die je niet meteen ziet. Buiten de drukkere kustzones vind je hier stilte, open ruimte en een meer authentieke levensstijl. Vooral bij zonsopgang en zonsondergang komen de kleuren van het landschap en de zee prachtig tot hun recht, wat het dorp een unieke en serene uitstraling geeft.

AFSTANDEN: 

  • Centrum Benitachell: ±500 m
  • Supermarkt en lokale winkels: ±600 m
  • Restaurants & cafés: ±400 m
  • Cala Moraig (strand): ±3 km
  • Moraira: ±7 km
  • Jávea: ±10 km
  • Golfbanen: ±8–12 km
  • Internationale school: ±2 km
  • Ziekenhuis Dénia: ±18 km
  • Luchthaven Alicante: ±95 km
  • Luchthaven Valencia: ±110 km

Onze visie binnen Casas Kimpencio;

  • Bij Casas Kimpencio ben je niet zomaar iemand, wij willen een persoonlijke relatie aangaan.
  • We behandelen jullie zoals we zelf behandeld willen worden, met de nodige betrokkenheid, precisie en details.
  • Geen enkele vraag is ons te veel, we staan elke dag telefonisch voor jou klaar.
  • Wij hebben de gedachte dat een huis kopen niet zomaar een huis kopen is, maar een nieuwe thuis kopen.
  • Iedereen dient een eigen verhaal te krijgen, met verschillende hoofdstukken. 
  • Wij willen helpen aan het Spaanse hoofdstuk, een hoofdstuk van een nieuwe thuis, vakantiewoning of een investering.
  • En dit doen we met open, duidelijke communicatie  en daarmee geraken we er altijd, zo vinden we jouw ideale woning gebaseerd op meerdere gesprekken.
  • We helpen vanaf het begin tot aan de sleuteloverdracht, en ver daarbuiten. 

Wij vinden deze woning bijzonder omdat; 

  • Appartement met cascade-architectuur, waardoor privacy op het terras maximaal behouden blijft
  • Ruime leefruimte met open keuken en Bosch-toestellen, volledig ingericht voor comfortabel en zorgeloos wonen
  • Twee volwaardige slaapkamers met ingebouwde kasten, ideaal voor eigen gebruik of gasten
  • Twee moderne badkamers, praktisch en stijlvol afgewerkt met alle comfort
  • Handige berging in de inkomhal, extra opslagruimte netjes geïntegreerd in de woning
  • Residentie met twee zwembaden, social club en speeltuin, een aangename leefomgeving voor ontspanning en sociaal contact
  • Rustige ligging in Benitachell tussen zee en natuur, met Moraira en Jávea op korte afstand
  • Hoog wooncomfort dankzij vloerverwarming, airconditioning en domotica, perfect afgestemd op elk seizoen
  • Energie-efficiënte afwerking met aerothermie en uitstekende isolatie, duurzaam en toekomstgericht
  • Veiligheid en gemak met alarmsysteem, video-intercom en parkeerfaciliteiten, zorgeloos wonen in een verzorgde residentie

WONINGEN IN RESIDENTIE MONTECALA GARDENS:

Type woning  Aantal slaapkamers / badkamers Bewoonbare oppervlakte Buitenruimte in m² Prijs
Duplex  2/2 109m² 18 + 143m² €473.000
Penthouse 2/2 83m² 29m² €473.000
Penthouse 3/2 104m² 42m² €593.000
Appartement met terras 2/2 79m² 22m² €375.000
Appartement met terras  3/2 105m² 42m² €519.000

GROEI EN TRENDS IN BENITACHELL: 

Jaar  Prijs per m² Jaarlijkse stijging 
2023 €2.742 -
2024 €3.071 +12%
2025 €3.468 +12.9%


Kenmerken:

Aantal slaapkamers 2
Aantal badkamers 2
Gedeeld zwembad Ja
Terras Ja
Bewoonbare oppervlakte 109 m²
Terras oppervlakte 18 m²
Vloerverwarming badkamer Ja
Douche schermen Ja
Afstand naar het strand 0.7 km
Volledige airco installatie Ja
Elektrische rolluiken Ja
Led verlichting buiten Ja
Led verlichting binnen Ja
Parking in urbanisatie Ja
Telefoon Data aansluiting Ja
Videofonie Ja
Inbouwkasten Ja
Aero thermische warmtepomp Ja
Poort Ja
Badkamer spiegels Ja
Alle keuken apparatuur volledig inbegrepen Ja
Kookplaat Dampkap Magnetron & Oven Ja
Nabij kinder speeltuin Ja
Berging Ja
Gedeelde tuin Ja
Uitzicht tuin Ja
Alarmsysteem Ja
Domotica Ja
Golfresort afstand in km 10-15 km
Ziekenhuis afstand in km 0-5 km
Nabij Commercieel centrum Ja
Luchthaven Alicante afstand 50+ km
Uitzicht bergen Ja
Gedeelde kosten Ja
Lift Ja
Ontspanning ruimte buiten Ja
Hangend toilet Ja
Hangend badkamer meubel Ja
Volledig ingerichte keuken Ja
Dampkap Ja
Gepantserde toegangsdeur met veiligheidsslot Ja
Hoogwaardige afwerking Ja
Luxe nieuwbouw Ja
Kijkwoning Ja
Goed gebied voor rentabiliteit van huur Ja
Volledige vloerverwarming Ja
Wandelafstand van het strand Ja
Social club Ja
Energielabel B
Afgewerkte badkamer Ja
Oppervlakte perceel rond het huis 143 m²

Meer info?


Beschikbare documenten

duplex.jpeg

document-duplex.jpeg

download

Ontdek wat we nog meer voor jou in petto hebben!

Nieuwbouw appartement met balkon in Alicante stad
Nieuwbouw appartement met balkon in Alicante stad

NIEUWBOUWAPPARTEMENTEN - 1 TOT 3 SLAAPKAMERS - TERRASSEN - V ...

 Ligging: San Agustín 03005  Stad: Alicante  Type locatie: Stadsuitzicht


nog 4 Panden beschikbaar!
COMING SOON njoy eerste lijn villa's Villajoyosa
COMING SOON njoy eerste lijn villa's Villajoyosa

Wonen waar de Middellandse Zee letterlijk je achtertuin is ...

 Ligging: Villajoyosa 03570  Stad: Villajoyosa-Benidorm  Type locatie: Zeezicht


nog 1 Pand beschikbaar!
Moderne appartementen met terras in Finestrat
Moderne appartementen met terras in Finestrat

APPARTEMENTEN - 2 OF 3 SLAAPKAMERS - TERRAS, SOLARIUM OF TUI ...

 Ligging: 03509 Finestrat  Stad: Finestrat-Benidorm  Type locatie: Uitzicht zwembad


nog 5 Panden beschikbaar!
Bonalba Green in Mutxamel met zeezicht
Bonalba Green in Mutxamel met zeezicht

Ontdek het beste van de Middellandse Zee in ons nieuwe woonc ...

 Ligging: Bonalba-cotoveta 03110  Stad: Mutxamel- Alicante  Type locatie: Zeezicht


nog 8 Panden beschikbaar!
Investeren in SIERRA VERDE  villa nabij Benidorm
Investeren in SIERRA VERDE villa nabij Benidorm

VILLA - 3 SLAAPKAMERS - PRIVÉZWEMBAD EN TERRAS - EXCLUSIEF ...

 Ligging: Finestrat-Benidorm  Stad: Finestrat-Benidorm  Type locatie: Uitzicht zwembad


nog 2 Panden beschikbaar!
Appartement met verhuurlicentie Costa Blanca
Appartement met verhuurlicentie Costa Blanca

APPARTEMENT - 1 OF 2 SLAAPKAMERS - TERRAS - VERHUURMET LICEN ...

 Ligging: Balcón De Finestrat 03509  Stad: Finestrat-Benidorm  Type locatie: Uitzicht zwembad


nog 4 Panden beschikbaar!
Villa's Oasis in Cumbre del Sol - Palmeras
Villa's Oasis in Cumbre del Sol - Palmeras

LUXE VILLA’S - 2 SLAAPKAMERS - RUIME TERRASSEN & TUINEN - ...

 Ligging: Cumbre del Sol 03726  Stad: Cumbre Del Sol  Type locatie: Uitzicht zwembad


nog 1 Pand beschikbaar!
Investeren in modern project aan Costa Blanca
Investeren in modern project aan Costa Blanca

APPARTEMENT - 2 OF 3 SLAAPKAMERS - TERRAS OF SOLARIUM - NIEU ...

 Ligging: Ciudad del Deporte 03530  Stad: La Nucia  Type locatie: Uitzicht zwembad


nog 6 Panden beschikbaar!
Luxe villa’s te koop in Benissa – Racó de Galeno
Luxe villa’s te koop in Benissa – Racó de Galeno

LUXE VILLA’S - 4 SLAAPKAMERS - RUIME TERRASSEN & TUINEN - ...

 Ligging: Benissa 03720  Stad: Benissa  Type locatie: Zeezicht


nog 1 Pand beschikbaar!
VILLA PETRA luxe in Altea Hills
VILLA PETRA luxe in Altea Hills

Moderne luxe villa met panoramisch uitzicht op zee in Altea ...

 Ligging: Altea Hills 03599 Altea  Stad: Altea Hills  Type locatie: Uitzicht bergen en natuur


nog 1 Pand beschikbaar!
Residentie Sea View 6: Luxe woningen nabij de zee
Residentie Sea View 6: Luxe woningen nabij de zee

NIEUWBOUWVILLA'S MET 3 SLAAPKAMERS EN 3 BADKAMERS - GEMEENSC ...

 Ligging: Finestrat 03509  Stad: Finestrat-Benidorm  Type locatie: Uitzicht zwembad


nog 5 Panden beschikbaar!
SEAWAY Tower luxe appartementen en penthouse
SEAWAY Tower luxe appartementen en penthouse

Gelegen op een uitzonderlijke locatie in Calpe, op slechts 1 ...

 Ligging:  Stad: Calpe-Costa-Blanca  Type locatie: Zeezicht


nog 2 Panden beschikbaar!

Lees mee met onze nieuwste blogs!

Droomhuis in Costa Blanca: Van budget tot aankoop
Droomhuis in Costa Blanca: Van budget tot aankoop

Kopen van een huis in Costa Blanca?

Begin met het bepalen van je budget en wensen. Onderzoek de markt, vind een betrouwbare makelaar en bezoek panden. Zorg voor financiering en juridische controle.

Na ondertekening van het contract betaal je de resterende kosten en ben je officieel ...

Martine

Nieuw nationaal OV-abonnement in Spanje vanaf 2026
Nieuw nationaal OV-abonnement in Spanje vanaf 2026

Wie in Spanje woont of plannen heeft om er zich te vestigen, zal vanaf 2026 een belangrijke verandering merken in het openbaar vervoer. De Spaanse overheid voert dan een nationaal vervoersabonnement ...

Juliette

Spanje telt 642 Blauwe Vlag-stranden in 2025
Spanje telt 642 Blauwe Vlag-stranden in 2025

Spanje telt in 2025 opnieuw de meeste Blauwe Vlag-stranden ter wereld: 642!

Casas Kimpencio helpt jou aan een droomwoning vlak bij deze kwaliteitsstranden. Veiligheid, comfort en waarde verzekerd – ontdek waarom de locatie het verschil maakt.

...

Martine

square-box
Tine
Vragen over panden, projecten en onze content
Snel starten:

Hallo, ik ben Tine je kan bij mij terecht met al je vragen over panden, projecten en onze content. Ik antwoord alleen op basis van de beschikbare website-inhoud.