Home Lopende projecten Alle Panden Over ons Ons team Ons kantoor Onze werkwijze Contacteer ons Blog Cookies

Gelijkvloers appartement met tuin in Sunrise Beach

 Project: Residentie Sunrise Beach in El Campello

Nieuwbouwappartementen op 200 meter van het strand

Korte beschrijving:

GELIJKVLOERS APPARTEMENT – 3 SLAAPKAMERS – DUBBELE TUIN MET 117 M² BUITENRUIMTE – EL CAMPELLO

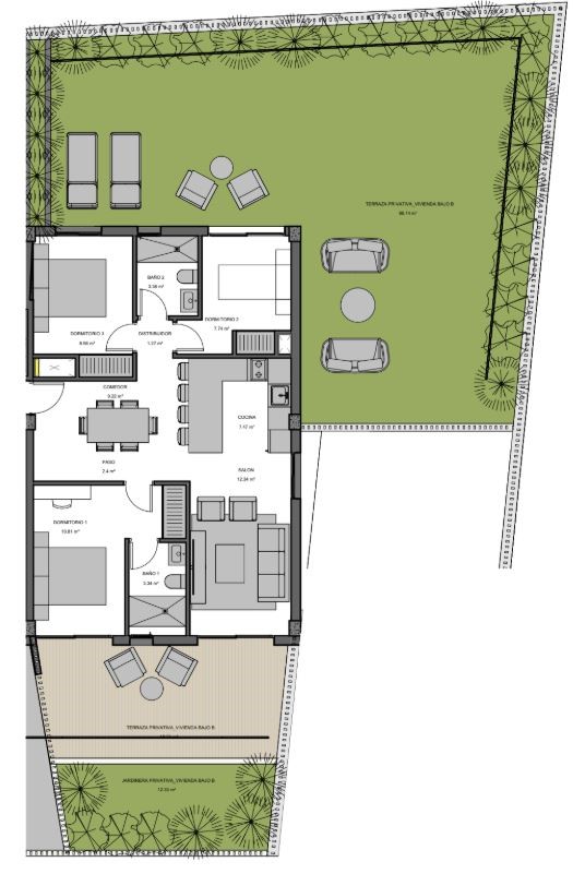
Dit gelijkvloers appartement combineert het comfort van een woning met het gemak van een appartement en valt meteen op door zijn uitzonderlijke buitenruimte. Via de gemeenschappelijke trappenhal kom je binnen in een doordacht ingedeelde woning waar eetruimte, U-vormige keuken en woonkamer logisch in elkaar overlopen. Grote schuiframen zorgen voor veel lichtinval en geven directe toegang tot het aangelegde terras en de tuin, waardoor binnen en buiten één geheel vormen.

De woning beschikt over drie volwaardige slaapkamers en twee badkamers. De hoofdslaapkamer heeft een badkamer-ensuite en directe toegang tot de voortuin, wat zorgt voor extra privacy en een aangenaam hotelgevoel. De twee andere slaapkamers bevinden zich aan de achterzijde en delen een tweede badkamer. Inbouwkasten en afgewerkte badkamers maken het geheel instapklaar en praktisch voor dagelijks gebruik.

Een absolute troef is de totale buitenruimte van maar liefst 117 m², verdeeld over een voortuin en achtertuin, zodat je op elk moment van de dag van zon of schaduw kan genieten. In combinatie met het gemeenschappelijk zoutwaterzwembad, de ondergrondse parkeerplaats met berging en de ligging op wandelafstand van zee en promenade, biedt dit appartement een zeldzame mix van ruimte, comfort en kustbeleving in El Campello.

U bent nog niet aangemeld!

Na invullen van onderstaande gegevens wordt u aangemeld, indien er nog geen account bestaat kan deze aangemaakt worden!



 Geef ons uw mening...

 Momenteel nog geen reviews voor dit pand.

Uitgebreide beschrijving:

Dit appartement is gelegen op de begane vloer en voorzien van 3 slaapkamers met 2 badkamers. We nemen even een wandeling doorheen de woning. Het betreden via de woning gebeurt via de gemeenschappelijke trappenhal. Via de beveiligde voordeur kom je terecht in de eetruimte. 

De eetruimte mondt uit in de U-vormige keuken. De keuken is voorzien van onder- en bovenkasten en volgende elektrische toestellen; koelkast, inductiekookplaat, dampkap, wasmachine, vaatwas. Deze apparaten zijn allemaal van het merk Bosch of gelijkaardig. 

De keuken staat op zijn beurt dan weer rechtstreeks in verbinding met de woonkamer. Deze woonkamer heeft via grote schuiframen rechtstreekse toegang met het aangelegd terras. Deze woning is voorzien van 3 slaapkamers met 2 badkamers. 

De hoofdslaapkamer is te bereiken via de eetruimte. Daar is de hoofdslaapkamer met badkamer-ensuite gelegen. Deze slaapkamer heeft ook rechtstreekse toegang tot de voortuin. Elke slaapkamer is voorzien van inbouwkasten met hangrekken, legplanken en lades. 

De andere 2 slaapkamers zijn aan de andere zijde van de woning gelegen. Deze slaapkamers delen een badkamer. De badkamers zijn uitgerust met een wastafel, bijpassend meubel, toilet en douche. 

DUS CONCREET: 

  • 3 slaapkamers
  • 2 badkamers
  • Uitgeruste keuken met toestellen 
  • Afgewerkte badkamer 
  • Veel buitenruimte

Deze woning is gelegen op de begane vloer. Hierdoor zijn er 2 buitenruimtes voorzien, een voortuin én een achtertuin. In deze 2 buitenruimtes is er een aangelegd terras voorzien van maar liefst 117m² in totaal. Geniet dus van uitzonderlijk veel buitenruimte en geniet met volle teugen! 

Deze woning is voorzien van een ondergrondse parkeerplaats met berging. 

Dit appartement is gelegen in residentie Sunrise Beach, met tal van gemeenschappelijke voorzieningen. Allereerst is er een gemeenschappelijk zwembad voorzien dat onderhouden wordt door zoutwater. Dit is aangenamer voor de huid om in te zwemmen. Rondom het zwembad is er een ruime ligweide voorzien om optimaal in te kunnen ontspannen. 

In het gebouw zijn er 2 liften voorzien met een capaciteit voor 6 personen, hierdoor is toegankelijkheid en bereikbaarheid verzekerd, ook op de oudere dag. 

TECHNISCHE KENMERKEN: 

  • Elektrische rolluiken ( niet in de keuken en badkamers ) 
  • Dubbele beglazing 
  • Volledige airconditioning 
  • Verwarming / verkoeling via warmtepomp
  • Sanitair warm water via aerothermisch systeem
  • Verlichting op het terras

Deze woning is gelegen in El Campello. El Campello, gelegen aan de noordelijke Costa Blanca, is een aantrekkelijke kustplaats die traditie, zee en modern comfort moeiteloos combineert. Op slechts 200 meter van het strand leef je hier met de Middellandse Zee altijd dichtbij. El Campello staat bekend om zijn lange promenade, brede stranden en aangename, open sfeer. Het dorp heeft zijn authentieke karakter weten te behouden, terwijl het tegelijk alle voorzieningen biedt van een volwaardige kuststad. Het dagelijkse leven speelt zich af tussen zee, terrasjes en rustige wandelingen langs het water.

Het centrum van El Campello is levendig maar overzichtelijk. Je vindt er lokale winkels, restaurants, cafés en markten die het hele jaar door geopend zijn. De tramverbinding langs de kust is een grote troef en verbindt El Campello rechtstreeks met Alicante en Benidorm, waardoor mobiliteit eenvoudig blijft zonder afhankelijk te zijn van de auto. De jachthaven en vissershaven geven het dorp een maritieme uitstraling en herinneren aan de sterke band met de zee.

De stranden van El Campello zijn gevarieerd en natuurlijk, met zowel lange zandstranden als kleinere baaien met helder water. Dankzij het milde klimaat en de zuivere zeelucht is het hier het hele jaar aangenaam vertoeven. Ook het binnenland ligt vlakbij, met wandelroutes, heuvels en open landschappen die zorgen voor afwisseling en rust.

Wat veel mensen niet weten, is dat El Campello een rijke geschiedenis heeft die teruggaat tot de Iberische en Romeinse tijd. Net buiten het centrum liggen archeologische zones en oude wachttorens die ooit dienden ter verdediging tegen piraten. Deze historische lagen geven de omgeving extra diepgang en karakter.

Daarnaast heeft El Campello een opvallend evenwicht tussen levendigheid en rust. Buiten het hoogseizoen blijft het dorp actief, maar zonder de drukte van grotere badplaatsen. Vooral ’s avonds, wanneer de zon ondergaat en de promenade zich vult met zacht licht en gesprekken, toont El Campello zijn meest authentieke en ontspannen kant.

AFSTANDEN: 

  • Strand: ±200 m

  • Promenade El Campello: ±200 m

  • Restaurants & bars: ±300 m

  • Supermarkt: ±400 m

  • Centrum El Campello: ±500 m

  • Jachthaven: ±800 m

  • Alicante centrum: ±12 km

  • Winkelcentrum (Alicante): ±10 km

  • Ziekenhuis: ±10 km

  • Golfbanen: ±15 km

  • Luchthaven Alicante: ±25 km

Onze visie binnen Casas Kimpencio;

  • Bij Casas Kimpencio ben je niet zomaar iemand, wij willen een persoonlijke relatie aangaan.
  • We behandelen jullie zoals we zelf behandeld willen worden, met de nodige betrokkenheid, precisie en details.
  • Geen enkele vraag is ons te veel, we staan elke dag telefonisch voor jou klaar.
  • Wij hebben de gedachte dat een huis kopen niet zomaar een huis kopen is, maar een nieuwe thuis kopen.
  • Iedereen dient een eigen verhaal te krijgen, met verschillende hoofdstukken. 
  • Wij willen helpen aan het Spaanse hoofdstuk, een hoofdstuk van een nieuwe thuis, vakantiewoning of een investering.
  • En dit doen we met open, duidelijke communicatie  en daarmee geraken we er altijd, zo vinden we jouw ideale woning gebaseerd op meerdere gesprekken.
  • We helpen vanaf het begin tot aan de sleuteloverdracht, en ver daarbuiten. 

Wij vinden deze woning bijzonder omdat;

  • Gelijkvloers appartement met dubbele tuin combineert het comfort van een appartement met het gevoel van een volwaardige woning

  • Zowel voortuin als achtertuin zorgen voor zon op elk moment van de dag en een uitzonderlijke buitenbeleving

  • Totale buitenruimte van maar liefst 117m² is uiterst zeldzaam voor een appartement en ideaal voor loungen, dineren en ontspannen

  • Slimme indeling met centrale eetruimte creëert een natuurlijke flow tussen keuken, woonkamer en buitenruimte

  • U-vormige keuken met kwaliteitsvolle Bosch-toestellen biedt veel werkruimte en maakt koken praktisch én gezellig

  • Woonkamer met grote schuiframen naar het terras laat binnen en buiten perfect in elkaar overvloeien

  • Hoofdslaapkamer met badkamer-ensuite én directe toegang tot de voortuin geeft een echt privé- en hotelgevoel

  • Drie volwaardige slaapkamers maken de woning perfect voor gezinnen, gasten of een combinatie van wonen en werken

  • Twee volledig afgewerkte badkamers verhogen het dagelijks comfort en de gebruiksvriendelijkheid

  • Ondergrondse parkeerplaats met privéberging inbegrepen zorgt voor zorgeloos parkeren en extra opbergruimte

  • Gemeenschappelijk zoutwaterzwembad biedt een aangenamere zwemervaring en een echt resortgevoel

  • Ruime ligweide rond het zwembad nodigt uit tot ontspanning zonder drukte

  • Twee liften in het gebouw garanderen comfort, toegankelijkheid en toekomstgericht wonen

  • Volledige airconditioning met warmtepomp zorgt voor energiezuinig comfort in elk seizoen

  • Topligging op wandelafstand van zee, promenade en centrum van El Campello combineert strandgevoel met dagelijkse voorzieningen

WONINGEN BINNEN RESIDENTIE SUNRISE BEACH: 

Type woning  Aantal slaapkamers / badkamers  Bebouwde oppervlakte  Buitenruimte in m² Prijs 
Gelijkvloers appartemnet  3/2 83m² 117m² €535.000
Appartement met terras  2/2 61m² 4m² €355.000
Appartement met terras  3/2 74m² 7m² €400.000
Penthouse met solarium  2/2 58m² 48m² €460.000
Penthouse met solarium 3/271m²74m²€600.000

GROEI EN TRENDS IN EL CAMPELLO: 

Jaar  Prijs per m² Jaarlijkse stijging 
2023 €2.222 -
2024 €2.491 +12.1%
2025 €2.836 +13.9%


Kenmerken:

Aantal slaapkamers 3
Aantal badkamers 2
Oppervlakte perceel rond het huis 100 m²
Bebouwde oppervlakte 83 m²
Bewoonbare oppervlakte 66 m²
Afstand naar het strand 0.2 km
Terras oppervlakte 37 m²
Gedeeld zwembad Ja
Private Tuin Ja
Poort Ja
Nabij Scholen Ja
Nabij Commercieel centrum Ja
Terras Ja
Fietsafstand van het strand Ja
Douche schermen Ja
Volledige airco installatie Ja
Elektrische rolluiken Ja
Led verlichting buiten Ja
Led verlichting binnen Ja
Zeezicht Ja
privé parkeerplaats Ja
Ondergrondse parking Ja
Telefoon Data aansluiting Ja
Videofonie Ja
Inbouwkasten Ja
Aero thermische warmtepomp Ja
Elektrische poort Ja
Badkamer spiegels Ja
Alle keuken apparatuur volledig inbegrepen Ja
Kookplaat Dampkap Magnetron & Oven Ja
Nabij kinder speeltuin Ja
Berging Ja
Gedeelde tuin Ja
Uitzicht tuin Ja
Golfresort afstand in km 5-10 km
Ziekenhuis afstand in km 10-20 km
Luchthaven Alicante afstand 20-30 km
Luchthaven Murcia afstand 50+ km
Gedeelde kosten Ja
Lift Ja
Ontspanning ruimte buiten Ja
Hangend toilet Ja
Hangend badkamer meubel Ja
Volledig ingerichte keuken Ja
Dampkap Ja
Gepantserde toegangsdeur met veiligheidsslot Ja
Hoogwaardige afwerking Ja
Aerothermische boiler Ja
Gelijkvloers Ja
Gelijkvloers met tuin Ja
Luxe nieuwbouw Ja
Goed gebied voor rentabiliteit van huur Ja
Wandelafstand van het strand Ja
Energielabel B
Afgewerkte badkamer Ja

Meer info?


Beschikbare documenten

gelijkvloers 3-2.jpeg

document-gelijkvloers 3-2.jpeg

download

Ontdek wat we nog meer voor jou in petto hebben!

Collado Bajo Appartement met ruim terras
Collado Bajo Appartement met ruim terras

Project: Collado Bajo wooncomlex

Stad: Aguilas

2   2     60 m²   20 m²  

Appartement - Collado Bajo
Appartement - Collado Bajo

Project: Residentie Collado Bajo Aquillas

Stad: Aguilas

2   2     60 m²   29 m²  

Studio met terras in res. Horizon Suites
Studio met terras in res. Horizon Suites

Project: Residentie Horizon Suites in San Pedro del Pinatar

Stad: San Pedro del Pinatar - Mar-Menor

1     44 m²   4 m²  

Sun and Sea-Playa De Los Locos-Torrevieja
Sun and Sea-Playa De Los Locos-Torrevieja

Project: Sun and Sea-Playa De Los Locos-Torrevieja

Stad: Torrevieja-Alicante

1   1     55 m²   3 m²  

Virazón-San Juan de los Terreros
Virazón-San Juan de los Terreros

Project: Virazón-San Juan de los Terreros

Stad: San Juan de los Terreros

2   1     72 m²   10 m²  

Miramar penthouse in Orihuela Costa
Miramar penthouse in Orihuela Costa

Project: Miramar Orihuela Costa

Stad: Orihuela Costa-Alicante

2   2     93 m²   8 m²  

Penthouse Riomar Healthy Living
Penthouse Riomar Healthy Living

Project: Assistentie appartementen Riomar Healthy Living

Stad: Torre De La Horadada

1   1   96 m²   44 m²  

Penthouse met zeezicht en groot terras
Penthouse met zeezicht en groot terras

Project: Xeresa del Monte: Betaalbare woningen met zeezicht

Stad: Xeresa

3   2     89 m²   88 m²  

Bemeubeld, instapklaar appartement met zeezicht
Bemeubeld, instapklaar appartement met zeezicht

Project: Mirador del Puerto -La Manga Del Mar Menor Murcia

Stad: La Manga del Mar Menor

3   2   102.8 m²   10.3 m²  

Puerta de Oriente-Vera Playa
Puerta de Oriente-Vera Playa

Project: Puerta de Oriente-Vera Playa

Stad: Vera- regio Costa Almeria Andalusië

2   2     71 m²   45 m²  

Prachtig appartement in Calpe
Prachtig appartement in Calpe

Project: Appartement in Calpe met uitzicht Peñón de Ifach

Stad: Calpe-Costa-Blanca

1   1     39 m²   13 m²  

Sun and City gelijkvloers appartement Torrevieja
Sun and City gelijkvloers appartement Torrevieja

Project: Sun and City Torrevieja

Stad: Torrevieja-Alicante

2   2     77 m²   10 m²  

Lees mee met onze nieuwste blogs!

De mooiste autoroute in Spanje van oost naar west
De mooiste autoroute in Spanje van oost naar west

Je begint aan de Middellandse Zee en rijdt dwars door het hart van Spanje. Onderweg ontdek je bergen, valleien, middeleeuwse dorpen en diepe kloven. Elke bocht toont een nieuw uitzicht dat je even stil laat worden. Deze route van oost naar west laat je Spanje voelen zoals het echt is.

...

Martine

Driekoningen en kersttradities in Spanje
Driekoningen en kersttradities in Spanje

Wie in Spanje woont of er langere tijd verblijft, merkt al snel dat Driekoningen (Día de los Reyes Magos) minstens zo belangrijk is als Kerstmis. Op 6 januari draa...

Juliette

Valor Catastral en belastingen in Spanje
Valor Catastral en belastingen in Spanje

Alles over het Kadastraal Inkomen (Valor Catastral) in Spanje – Belasting, Berekening & Voorbeelden

Alles wat je moet weten over het kadastraal inkomen in Spanje. Het kopen van een woning in Spanje is een droom voor velen.

Maar net als in België en Nederland moet je als eigena...

Martine

square-box
Tine
Vragen over panden, projecten en onze content
Snel starten:

Hallo, ik ben Tine je kan bij mij terecht met al je vragen over panden, projecten en onze content. Ik antwoord alleen op basis van de beschikbare website-inhoud.