Appartement 2 slpk kopen Los Alcázares – Best Mediterraneo 2

 Project: Best Mediterraneo Appartementen & villa’s aan golf

Luxe 2-slaapkamer appartement aan Serena Golf, Costa Cálida

Korte beschrijving:

Best Mediterraneo 2 – Modern 2 slpk/2 badkamers appartement met terras aan Serena Golf, dichtbij strand en centrum van Los Alcázares, ideale investering

Dit moderne appartement in Best Mediterraneo 2, gelegen aan de gerenommeerde Serena Golf in Los Alcázares, biedt het perfecte evenwicht tussen luxe, comfort en een toplocatie aan de Costa Cálida.

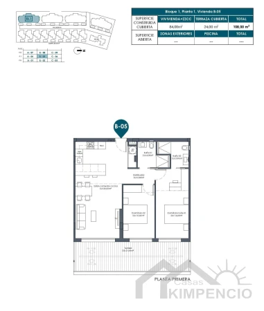
Met 2 slaapkamers en 2 badkamers heeft het een woonoppervlakte van 84 m² en een privéterras van 24 m², ideaal voor zonnige middagen, buiten dineren en ontspannen met uitzicht op het prachtig aangelegde complex. Bewoners kunnen genieten van een groot gemeenschappelijk zwembad, mediterrane tuinen, een ondergrondse parkeerplaats en berging, wat gemak en veiligheid garandeert.

Dankzij de nabijheid van de stranden van de Mar Menor, restaurants, winkels en uitstekende verbindingen naar de luchthaven van Murcia is dit appartement perfect voor zowel een tweede verblijf als een slimme investering in Spaans vastgoed.

Wacht niet te lang – verzeker jezelf vandaag nog van jouw droomwoning in Best Mediterraneo 2 en investeer in de luxe levensstijl aan Serena Golf in Los Alcázares!

Casas Kimpencio helpt je met Nederlandstalige aankoopbegeleiding!

U bent nog niet aangemeld!

Na invullen van onderstaande gegevens wordt u aangemeld, indien er nog geen account bestaat kan deze aangemaakt worden!



 Geef ons uw mening...

 Momenteel nog geen reviews voor dit pand.

Uitgebreide beschrijving:

Wonen aan de golfbaan én dichtbij zee - moderne appartementen & villa's in La Serena Golf, Los Alcázares

BEST MEDITERRANEO 2 – Luxe nieuwbouw direct aan La Serena Golf in Los Alcázares

  • Na het razendsnelle succes van fase 1, waarbij de woningen in recordtijd werden verkocht, start nu fase 2 van Best Mediterraneo, een exclusief nieuwbouwproject van Casas Kimpencio aan de eerste lijn van La Serena Golf in het betoverende Los Alcázares.
  • Met slechts een beperkt aantal appartementen en villa’s beschikbaar, is dit jouw kans om te investeren in een modern en stijlvol huis aan de Costa Cálida.
  • Unieke ligging en adembenemend uitzicht Fase 2 bevindt zich op een toplocatie, op slechts 1,7 km van de stranden van de Mar Menor en het centrum van Los Alcázares.
  • Bewoners genieten hier van de perfecte combinatie van rust, natuur en zee. Vanuit de ruime terrassen en penthouses heb je een spectaculair uitzicht over de 18-holes golfbaan van La Serena Golf en de glinsterende Middellandse Zee een zeldzame combinatie aan de Costa Cálida die zowel levenskwaliteit als investeringswaarde verhoogt.

Moderne appartementen en gelijkvloerse villa’s

Het project omvat 36 moderne appartementen verdeeld over vier blokken en 9 exclusieve gelijkvloerse villa’s, elk ontworpen voor maximaal comfort en een mediterrane levensstijl:

  • Appartementen: 2 of 3 slaapkamers, 2 badkamers (waarvan één en suite), ruime terrassen
  • Penthouses 2 of 3 slaapkamers, 2 badkamers (waarvan één en suite), ruime terrassen en privé-solariums.
  • Begane grond appartementen kunnen optioneel worden uitgerust met een privézwembad.
  • Elke woning beschikt over een ondergrondse parkeerplaats en berging.

Villa’s:

  • 3 slaapkamers, 2 badkamers + gastentoilet, privézwembad, tuin, berging en parkeerplaats.
  • Extra ruime kelder biedt flexibele mogelijkheden zoals fitnessruimte of opslag.
  • Alle woningen zijn stijlvol afgewerkt met hoogwaardige materialen, volledig ingerichte keukens, moderne badkamers en energiezuinige systemen zoals aluminium kozijnen met thermische onderbreking en airconditioning.

Gemeenschappelijke voorzieningen

Bewoners van fase 2 genieten van dezelfde topvoorzieningen die fase 1 zo populair maakten: een groot gemeenschappelijk zwembad, prachtig aangelegde mediterrane tuinen, liften in de appartementengebouwen en een veilige, ondergrondse parkeerfaciliteit. Waarom fase 2 nu jouw kans is?

  • De eerste fase werd in recordtijd verkocht ? fase 2 volgt hetzelfde patroon. Scherpe lanceringsprijzen bieden een uitstekende investeringskans.
  • Direct aan de eerste lijn van La Serena Golf, op korte afstand van zee en het centrum. Hoogwaardig afgewerkt, energiezuinig en volledig ingericht.
  • Ideaal voor Belgen en Nederlanders die willen wonen, vakantie vieren of investeren aan de Costa Blanca / Costa Cálida.
  • Perfecte verbindingen en omgeving Los Alcázares biedt een ontspannen mediterrane levensstijl met lange promenades, gezellige restaurants en alle voorzieningen binnen handbereik.

Belangrijke afstanden:

  • Internationale luchthaven Murcia: 35 km
  • Internationale luchthaven Alicante: 95 km
  • Roda Golf: 4 km
  • Cartagena: 25 km

Een investering in levenskwaliteit én waarde

Fase 2 van Best Mediterraneo combineert een unieke locatie, moderne architectuur, luxe afwerking en een topligging direct aan zee en golfbaan. Dankzij de combinatie van wooncomfort, natuur, zee en sport is dit een project waar zowel vakantiegenieters als investeerders hun hart aan kunnen ophalen.

Casas Kimpencio, jouw vertrouwde Nederlandstalige vastgoedexpert aan de Costa Blanca en Costa Cálida, begeleidt je volledig bij de aankoop.

  • Wij zorgen voor alle juridische en financiële stappen, zodat jij zorgeloos kunt investeren in jouw droomhuis in Spanje.
  • Neem vandaag nog contact op voor meer informatie of een bezichtiging en verzeker jezelf van een woning in dit exclusieve project, voordat alle woningen van fase 2 zijn verkocht!

Met trots introduceren wij dit unieke nieuwbouwproject aan de eerste lijn van La Serena Golf, gelegen in het charmante kustplaatsje Los Alcázares, aan de zonovergoten Costa Cálida. Hier komen luxe, natuur en comfort samen in een exclusieve residentie met uitzicht op de golfbaan én op slechts enkele minuten van het strand.

Of u nu op zoek bent naar een moderne villa met privézwembad of een stijlvol appartement met royaal terras of solarium, dit project biedt de perfecte balans tussen rust, recreatie en bereikbaarheid.

Een bijzondere ligging - direct aan de golfbaan van La Serena Golf

Gelegen aan de eerste lijn van de 18-holes La Serena Golfbaan, biedt dit woonproject een uniek uitzicht op het groen, de meren en de horizon. De golfbaan staat bekend om zijn vlakke karakter, technische uitdagingen en schilderachtige ligging, beïnvloed door de kenmerkende Levante-wind.

Tegelijkertijd ligt het bruisende centrum van Los Alcázares op slechts 1,7 km, net als de fijne zandstranden van de Mar Menor. Fietsen, wandelen of golfen - hier leef je midden in de natuur met alle voorzieningen binnen handbereik.

Het project in het kort

  • 30 moderne appartementen
  • 10 vrijstaande villa's (gelijkvloers)
  • Eerste lijn aan La Serena Golf
  • Slechts 1,7 km van zee en stadscentrum
  • Groene gemeenschappelijke zones met zwembad
  • Privéparkeerplaats (ondergrondse garage of eigen oprit)
  • Ruime buitenruimtes: tuin, terras of solarium
  • Hoogwaardige materialen en energiezuinig ontwerp

De woningen - stijlvol, ruim en comfortabel 

Appartementen - ruim en licht, met terras of solarium

De appartementen zijn beschikbaar in versies met 2 of 3 slaapkamers en beschikken over grote terrassen of, in het geval van de penthouses, een privé dakterras met panoramisch uitzicht. 

Geniet van de ochtendzon, het uitzicht op de golfbaan of van een diner in de buitenlucht.

Elk blok is voorzien van een lift en biedt toegang tot een gemeenschappelijke tuin en een groot zwembad in mediterrane stijl. 

Indeling en kenmerken appartementen:

  • 2 of 3 slaapkamers met inbouwkasten
  • 2 moderne badkamers met inloopdouche en glazen schermen
  • Open woonruimte met moderne keuken
  • Ruim terras of privésolarium (penthouse)
  • Pre-installantie airconditioning
  • Keukenapparaten inbegrepen met uitzondering van de vaatwasser an de wasmachine
  • LED-verlichting en zwarte designschakelaars
  • Aluminium kozijnen met thermische onderbreking
  • Gemeenschappelijke tuin en zwembad
  • Ondergrondse parkeerplaats
  • Beveiligde deur met domotica uitgerust

Villa's- exclusief wonen op één niveau met privézwembad

De vrijstaande villa's zijn perfect voor wie maximale privacy en comfort zoekt. Geheel gelijkvloers, met 3 slaapkamers en 2 badkamers, bieden ze een vloeiende overgang tussen binnen- en buitenleven. Elk perceel heeft een privézwembad, tuin, berging én een eigen oprit. 

Dankzij de ligging direct aan de golfbaan geniet je dagelijks van een onbelemmerd uitzicht over het groen, zowel vanuit jouw woonkamer als vanaf het terras. 

Indeling en kenmerken villa's:

  • 3 ruime slaapkamers met directe toegang tot de tuin
  • 2 complete badkamers met sanitair
  • Open keuken en woonkamer met grote raampartijen
  • Privézwembad en aangelegde tuin
  • Eigen parkeerplaats op het perceel
  • Berging
  • Hoogwaardige afwerking, inclusief LED-verlichting
  • Aluminium buitenschrijnwerk met elektrische rolluiken
  • Pre-installatie airconditioning

Hoogwaardige afwerking & duurzame voorzieningen

Alle woningen zijn ontworpen met comfort en duurzaamheid in gedachten. Materialen van hoge kwaliteit, moderne indeling en energiezuinige oplossingen zorgen voor een aangenaam binnenklimaat en lage onderhoudskosten.

Voorzieningen in alle woningen:

  • Aluminium ramen met thermische onderbreking
  • Gemotoriseerde rolluiken
  • LED-verlichting in het gehele huis
  • Pre-installatie airconditioning
  • Keukens met modern design
  • Ingerichte badkamers met design wastafel en glazen douchewanden

Wonen op een toplocatie waar natuur, comfort en ontspanning samenkomen

Deze residentie in Los Alcázares ligt op een unieke plek aan de eerste lijn van de La Serena Golf - een groene en rustige omgeving die perfect samengaat met het levendige kustleven. Of je nu houdt van golfen, ontspannen op het strand, watersport of de Spaanse keuken, alles ligt binnen handbereik. Hier woon je midden in de natuur, met de zee en het stadscentrum op steenworp afstand.

Strand, zon en stadsleven dichtbij

  • Op slechts 1,7 km afstand ligt het centrum van Los Alcázares, een gezellig kustplaatsje aan de Mar Menor. Je vindt er brede zandstranden, sfeervolle boulevards en een ruim aanbod aan winkels, restaurants en cafés. Dankzij de vlakke omgeving ben je er zo - te voet, met de fiets of de auto. Perfect voor wie van gemak én ontspanning houdt.

Direct aan La Serena Golf

  • Wonen aan de golfbaan? Hier kijk je elke dag uit over het groen van de 18-holes La Serena Golf. Deze baan staat bekend om z’n vlakke terrein, uitdagende waterpartijen en het spel met de zeewind. Wil je nog een baan uitproberen? Roda Golf ligt op slechts 4 km afstand.

Puerto Deportivo: het water op

  • Op maar 2 km van je woning ligt de jachthaven van Los Alcázares. Een heerlijke plek om te wandelen, een drankje te doen aan het water of actief te genieten van watersport. Denk aan suppen, zeilen of jetskiën - het kan hier allemaal.

Shoppen in Dos Mares

  • Voor een dagje shoppen of een snelle boodschap rijd je in zo’n 15 minuten naar het Winkelcentrum Dos Mares. Hier vind je een uitgebreid aanbod aan modewinkels, supermarkten en eetgelegenheden.

Cultuur en historie in Cartagena

  • Zin in een uitstapje met wat meer cultuur? Dan is het centrum van Cartagena op 25 km een aanrader. Deze historische stad aan zee barst van de bezienswaardigheden, musea en Romeinse overblijfselen. En met z’n moderne havenpromenade en tapasrestaurants is het ook een fijne plek om gewoon rond te slenteren.

Goed bereikbaar

Of je nu vrienden en familie wilt ontvangen of zelf graag reist - de luchthaven van Murcia (Corvera) ligt op slechts 35 km afstand, en Alicante Airport op 95 km. Beide hebben directe verbindingen met veel Europese steden.

Interesse? Neem vandaag nog contact op!

De vraag naar woningen op toplocaties zoals deze is groot - wacht dus niet te lang!

Plan vandaag een bezichtiging of vraag meer informatie aan, en ontdek zelf hoe heerlijk het leven is aan de golfbaan van La Serena Golf in Los Alcázares. 

Modern, groen en zonnig wonen - dit is jouw kans aan de Costa Cálida.


Kenmerken:

Kenmerken van Best Mediterraneo 2 – Appartement 2 slpk/2 badk
Aantal slaapkamers 2
Aantal badkamers 2
Privaat zwembad Ja
Oppervlakte perceel rond het huis 0 m²
Bebouwde oppervlakte 84 m²
Bewoonbare oppervlakte 75 m²
Afstand naar het strand 1700 km
Terras oppervlakte 24 m²
Gedeeld zwembad Ja
Poort Ja
Nabij Scholen Ja
Nabij Commercieel centrum Ja
Nabij bushalte Ja

Meer info?

Ontdek hier de nieuwste parels op onze website!

Foto van Villa met zwembad in residentie Mar de Granada
Villa met zwembad in residentie Mar de Granada

Project: Coming soon: Mar de Granada - Pilar de la Horadada

Stad: Pilar de la Horadada - Alicante

3   2    

Foto van VISTAS DE BIGASTRO quad house kopen Bigastro
VISTAS DE BIGASTRO quad house kopen Bigastro

Project: Villas de Bigastro Costa Blanca Zuid met ruimte

Stad: Bigastro

3   2     142 m²   58 m²  

Foto van Instapklare villa met 5 slpk in Los Montesinos
Instapklare villa met 5 slpk in Los Montesinos

Project: Laguna Azul

Stad: Los Montesinos

3   3     116 m²   52 m²  

Foto van Vastgoed met verhuurlicentie kopen Spanje
Vastgoed met verhuurlicentie kopen Spanje

Project: Luxe appartementen op 150 m van zee met rendement

Stad: Pilar de la Horadada - Alicante

2   2     69 m²   75 m²  

Foto van Bungalow met solarium in Vista Azul Lo Monte
Bungalow met solarium in Vista Azul Lo Monte

Project: Vista Azul XXXVIII Lo Monte Selection - Fase 2

Stad: Pilar de la Horadada - Alicante

3   2   74 m²   12 m²  

Foto van Bungalow met privézwembad in RES Alma
Bungalow met privézwembad in RES Alma

Project: Alma 5 Bungalows in San Pedro del Pinatar coming

Stad: San Pedro del Pinatar - Mar-Menor

3   2     101 m²   15 m²  

Foto van AURA II nieuwbouwvilla 4slpk Benijófar kopen
AURA II nieuwbouwvilla 4slpk Benijófar kopen

Project: Villa in Benijofar– Auro II met kelderoptie

Stad: Rojales- Alicante

4   3     218 m²   18 m²  

Foto van AURA I villa kopen in Benijófar met 4 slaapkamers
AURA I villa kopen in Benijófar met 4 slaapkamers

Project: Auro I villa Benijófar kopen Costa Blanca

Stad: Benijófar-Alicante

4   3     220 m²    

Foto van appartement Santa Rosalia Resort
appartement Santa Rosalia Resort

Project: Appartementen OLIVO 19 op Santa Rosalia Resort

Stad: Murcia

3   2     97 m²   27 m²  

Foto van Penthouse nabij zee Playa de El Cura
Penthouse nabij zee Playa de El Cura

Project: ALTEA VI appartementen nabij zee in Torrevieja

Stad: Torrevieja-Alicante

2   2     86 m²   29 m²  

Foto van Instapklare villa Spanje met zwembad koop
Instapklare villa Spanje met zwembad koop

Project: Wonen in Vistabella Plaza Golf- Luxe & natuur

Stad: Orihuela-Alicante

2   2     73 m²   150 m²  

Foto van Penthouse bungalow Torrevieja en uitzicht zoutmeer
Penthouse bungalow Torrevieja en uitzicht zoutmeer

Project: Los Balcones de Vivi in Los Balcones Torrevieja

Stad: Torrevieja-Alicante

2   2     63 m²   33 m²  

Lees onze tips en weetjes, en ontdek Spanje!

Afbeelding bij AOW en emigreren naar Spanje uitgelegd
AOW en emigreren naar Spanje uitgelegd

Steeds meer Nederlanders verhuizen naar Spanje, maar vergeten dat hun AOW-opbouw kan stoppen bij emigratie.

Elk jaar buiten Nederland zonder vrijwillige verzekering kost later 2% AOW.

Met de juiste voorbereiding en advies kan je echter zorgeloos genieten van wonen onder de Spaanse zo...

Martine

Afbeelding bij Vakantie in Spanje met hond praktische gids 2026
Vakantie in Spanje met hond praktische gids 2026

Een vakantie in Spanje met je hond vraagt goede voorbereiding, maar wordt steeds populairder.

Spanje biedt meer hondvriendelijke stranden, accommodaties en wandelroutes.

Met de juiste documenten, bescherming tegen hitte en goede planning geniet je zorgeloos samen onder de zon.

...

Martine

Afbeelding bij Hoe werkt een vereniging van eigenaars in Spanje?
Hoe werkt een vereniging van eigenaars in Spanje?

Bij aankoop van vastgoed in Spanje krijg je vaak te maken met een comunidad de propietarios.

Deze vereniging beheert onderhoud, kosten en regels van gemeenschappelijke delen en heeft grote invloed op comfort, verhuur en vastgoedwaarde.

...

Martine