Home Lopende projecten Alle Panden Over ons Ons team Ons kantoor Onze werkwijze Contacteer ons Blog Cookies

Luxe villa met zeezicht - model Horizonte

 Project: Residentie Jazmines in Cumbre del Sol: luxe villas

Villa met onderbouw en fenomenaal zeezicht op riant perceel

Korte beschrijving:

LUXE VILLA - 3 SLAAPKAMERS - ONDERBOUW - RIANT PERCEEL - CUMBRE DEL SOL 

Ontdek deze uitzonderlijk ruime villa, verdeeld over drie verdiepingen en gebouwd tegen een heuvel, waardoor je geniet van een unieke indeling en adembenemende zeezichten. De woning beschikt over 3 slaapkamers, elk met een eigen badkamer, en een royale leefruimte met open keuken uitgerust met hoogwaardige Miele-toestellen. De combinatie van ruimte, licht en zicht maakt van deze villa een echte eyecatcher.

Deze woning biedt tal van extra troeven zoals een polyvalente onderbouw die volledig naar eigen wens ingericht kan worden en een indrukwekkende buitenruimte op een perceel van 997m². Hier geniet je van een groot zwembad, meerdere terrassen en een buitenkeuken met barbecue, ideaal voor lange avonden in alle comfort. Dankzij de hoogwaardige afwerking en technieken zoals domotica, vloerverwarming, zonnepanelen en airzone-klimaatregeling is deze villa volledig futureproof.

De woning is gelegen in Cumbre del Sol, een exclusieve woonomgeving tussen Moraira en Jávea. Hier geniet je van rust, privacy en panoramische uitzichten over de Middellandse Zee, terwijl voorzieningen zoals restaurants, sportfaciliteiten en een internationale school zich op korte afstand bevinden. Een ideale combinatie van luxe, natuur en bereikbaarheid.

U bent nog niet aangemeld!

Na invullen van onderstaande gegevens wordt u aangemeld, indien er nog geen account bestaat kan deze aangemaakt worden!



 Geef ons uw mening...

 Momenteel nog geen reviews voor dit pand.

Uitgebreide beschrijving:

Deze luxe villa is voorzien van alles wat je maar kan wensen, verdeeld over 3 verdiepingen. Geniet van maar liefst 3 slaapkamers met 3 badkamers. De villa is gebouwd tegen een heuvel, waardoor je niet alleen geniet van een dynamische indeling maar ook van prachtige zeezichten. De luxe villa is verdeeld over verschillende verdiepingen, maar geen zorgen, je beweegt je zorgeloos via de ruime trappenhallen. 

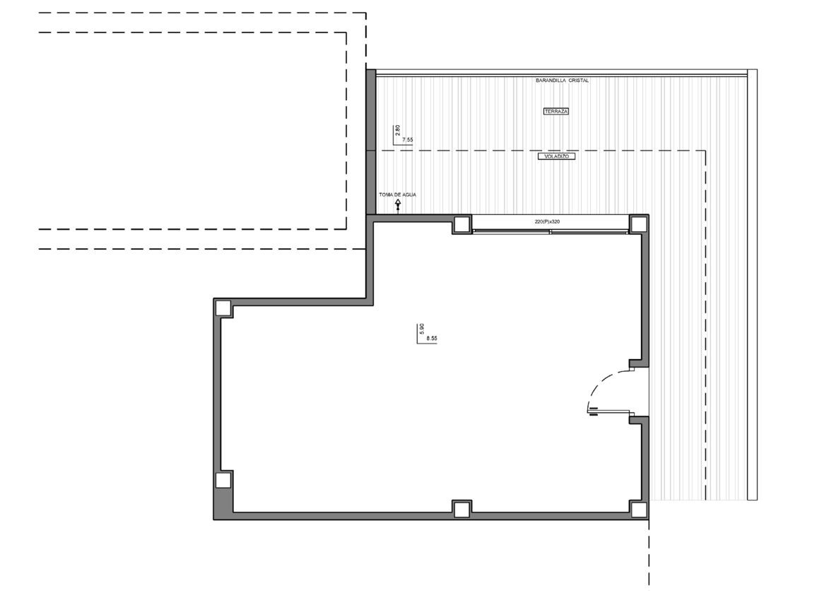
Logischergewijs, verlopen we de verdiepingen van beneden naar boven. Op de onderste verdieping, is er een kwalitatieve onderbouw voorzien. Deze onderbouw is in te richten naar jouw wensen, denk maar aan een binnenfitness, cinemazaal, ... Rondom deze onderbouw is er een aangelegd terras zodat de binnenruimte met de buitenruimte wordt verbonden. De binnenruimte heeft een oppervlakte van 65m², terwijl het terras een oppervlakte van 36m² kent. 

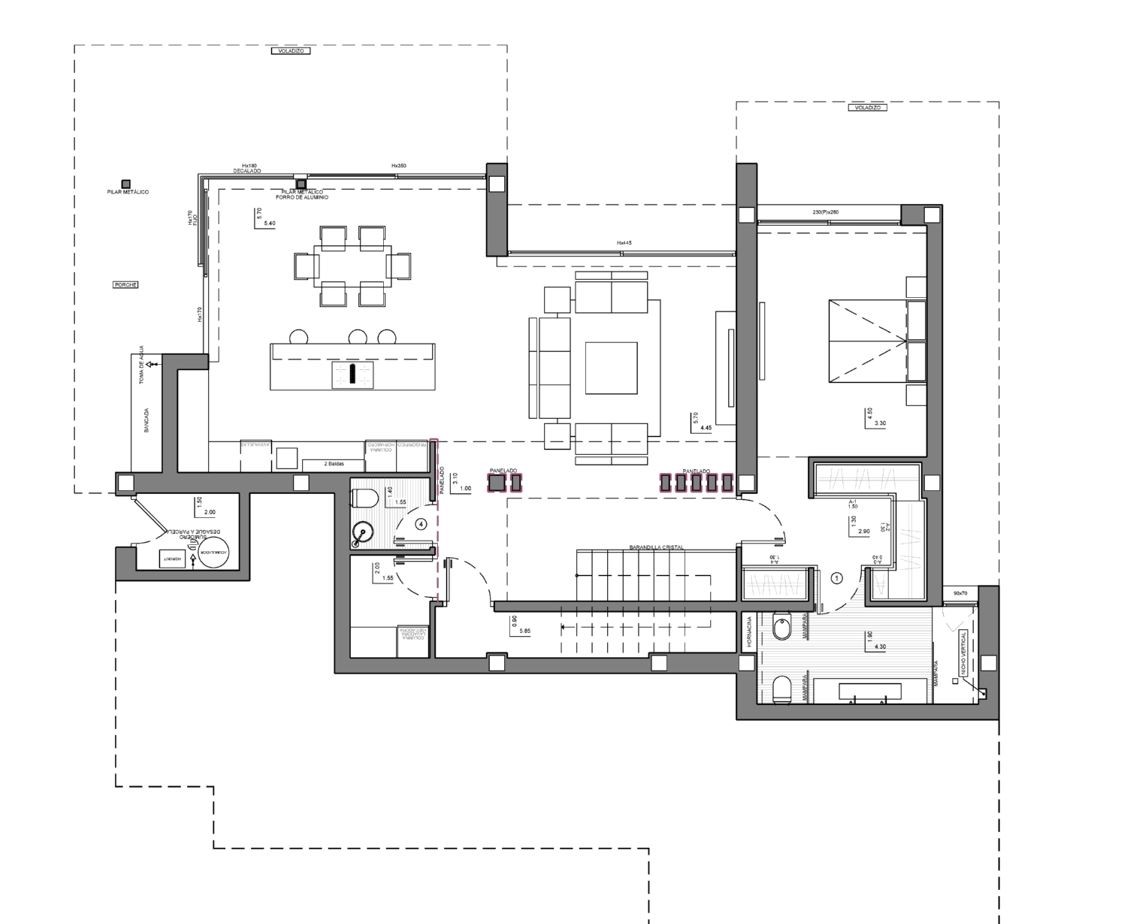
Een verdieping hoger is de begane vloer gelegen, met een prachtige tuin. In de gelijkvloerse verdieping is de ruime leefruimte met open keuken, het hart van deze verdieping. De keuken is uitgerust met volgende toestellen; koelkast, kookplaat, oven, magnetron, dampkap, waterverzachter en vaatwasser. Alle toestellen zijn van het merk Miele, of gelijkaardig. 

Nabij de keuken, is er een ruime inloopberging gelegen. Verder is er ook nog een gastentoilet met wastafel voorzien. De eerste gastenslaapkamer met badkamer-ensuite is gelegen op de begane vloer. Deze is voorzien van een kwaliteitsvolle dressing. De badkamer bereik je via de inloopdressing, een echt hotelgevoel dus!

Op de begane vloer zijn er nog 2 inpandige bergingen gelegen én een ruime inkomhal met inbouwkasten langs beide muren. 

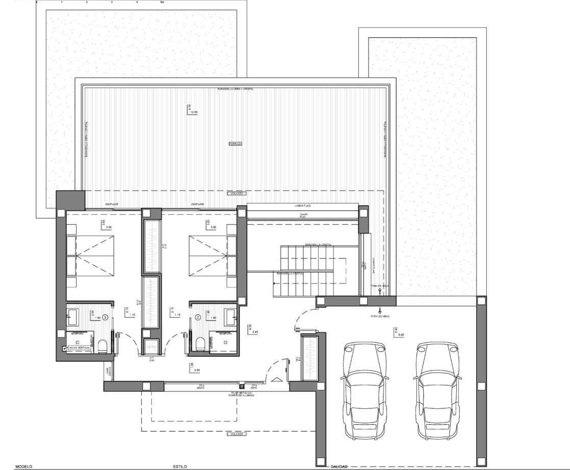
Via de trappenhal bereik je de eerste verdieping. Op deze verdieping, is ook de beveiligde voordeur gelegen, dus eigenlijk is deze verdieping gelegen op straatniveau. Er zijn maar liefst 2 parkeerplaatsen voorzien.

Hier zijn de overige 2 slaapkamers met elk een eigen badkamer gelegen. Elke slaapkamer heeft een eigen badkamer én ruime inbouwkasten. Deze zijn uitgerust met een wastafel, hangtoilet, douche, toilet, spiegel, bidet, ...

Elke slaapkamer op deze verdieping heeft toegang tot het gigantische balkon van 60m². 

DUS CONCREET: 

  • 3 slaapkamers
  • 3 badkamers
  • Gastentoilet 
  • Onderbouw
  • Ruime terrassen
  • Uitgeruste keuken met toestellen 
  • 2 bergingen 
  • 2 parkeerplaatsen 

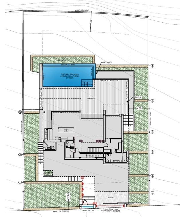
Deze woning is gelegen op een plot van 997m². De tuin is voorzien van een irrigatiesysteem, zodat jouw bloemen en planten altijd in volle bloei zijn. 

In de tuin geniet je van afkoeling met het prachtig zwembad van 4 meter op 10 meter. De tuin kijkt uit op een andere azuurblauwe bron; de Middellandse Zee. Het zwembad komt geleverd met een buitendouche. 

TECHNISCHE KENMERKEN: 

  • Topstructuur met kwalitatieve materialen
  • Elektrische rolluiken 
  • Dubbele beglazing en zonweringsglas
  • Inbouwkasten met hangrekken, legplanken en lades
  • Porseleinen vloeren 
  • Alarmsysteem
  • Binnen- en buitenverlichting 
  • Vloerverwarming doorheen de gehele woning 
  • Airconditioning in de zomer
  • Warmtepomp voor vloerverwarming in de winter en airconditioning in de zomer
  • Airzone; temperatuur regelbaar per kamer, via een centrale thermostaat of een applicatie 
  • Uitstekende ventilatie
  • Domotica systeem via iPads
  • Speaker doorheen de woning 
  • Zonnepanelen
  • Laadpunt voor elektrische wagen 

Deze villa is gelegen in Cumbre del Sol. Cumbre del Sol is een exclusieve woonomgeving aan de noordelijke Costa Blanca, gelegen tussen de kustplaatsen Moraira en Jávea. Het gebied ligt op een verhoogd plateau boven de Middellandse Zee en staat bekend om zijn spectaculaire panorama’s over de kustlijn en het omliggende berglandschap. Dankzij deze unieke ligging geniet je hier van open zichten, frisse zeelucht en een rustige, residentiële sfeer die sterk verschilt van de drukkere kustplaatsen.

De urbanisatie is zorgvuldig ontwikkeld met brede wegen, veel groen en verschillende woonzones die harmonieus in het landschap zijn geïntegreerd. In de directe omgeving vind je voorzieningen zoals restaurants, sportfaciliteiten, een internationale school en kleine commerciële centra. Het gebied is populair bij mensen die bewust kiezen voor ruimte, privacy en natuur, terwijl kustplaatsen zoals Moraira en Jávea op korte afstand liggen voor extra voorzieningen, stranden en jachthavens.

Een van de grote troeven van Cumbre del Sol is de indrukwekkende natuur rondom het gebied. De kliffen en baaien langs de kust behoren tot de mooiste van de regio. Wandelroutes langs de kustlijn bieden spectaculaire uitzichten over zee, terwijl kleine verborgen baaien uitnodigen tot zwemmen en snorkelen. Dankzij het milde klimaat en de open ligging is het hier het hele jaar door aangenaam vertoeven.

Wat veel mensen niet weten, is dat Cumbre del Sol een van de plekken aan de Costa Blanca is waar de zonsopgang het meest indrukwekkend is. Door de oostelijke ligging boven de zee zie je de zon letterlijk uit het water opkomen, wat zorgt voor spectaculaire lichtmomenten in de vroege ochtend.

Daarnaast heeft het gebied een opvallend rustige en exclusieve uitstraling. Door de lage bebouwingsdichtheid en de natuurlijke integratie in het landschap blijft het uitzicht behouden en overheerst een gevoel van ruimte. Vooral in de avond, wanneer de zon ondergaat achter de bergen en de zee zacht oplicht, toont Cumbre del Sol zijn meest serene kant.

AFSTANDEN: 

  • Cala Moraig strand: ±2 km

  • Restaurants & cafés: ±1 km

  • Supermarkt: ±2 km

  • Moraira centrum: ±8 km

  • Jávea centrum: ±10 km

  • Golfbanen: ±10–15 km

  • Internationale school: ±1 km

  • Ziekenhuis Dénia: ±20 km

  • Benidorm: ±40 km

  • Luchthaven Alicante: ±95 km

  • Luchthaven Valencia: ±110 km

Onze visie binnen Casas Kimpencio;

  • Bij Casas Kimpencio ben je niet zomaar iemand, wij willen een persoonlijke relatie aangaan.
  • We behandelen jullie zoals we zelf behandeld willen worden, met de nodige betrokkenheid, precisie en details.
  • Geen enkele vraag is ons te veel, we staan elke dag telefonisch voor jou klaar.
  • Wij hebben de gedachte dat een huis kopen niet zomaar een huis kopen is, maar een nieuwe thuis kopen.
  • Iedereen dient een eigen verhaal te krijgen, met verschillende hoofdstukken. 
  • Wij willen helpen aan het Spaanse hoofdstuk, een hoofdstuk van een nieuwe thuis, vakantiewoning of een investering.
  • En dit doen we met open, duidelijke communicatie  en daarmee geraken we er altijd, zo vinden we jouw ideale woning gebaseerd op meerdere gesprekken.
  • We helpen vanaf het begin tot aan de sleuteloverdracht, en ver daarbuiten. 

Wij vinden deze woning bijzonder omdat;

  • Architecturale villa gebouwd tegen de heuvel, waardoor elke verdieping geniet van indrukwekkende zeezichten

  • Onderbouw van 65 m² volledig naar eigen wens in te richten, perfect voor fitnessruimte, cinema of gastenverblijf

  • Extra terras van 36 m² rond de onderbouw, waardoor binnen en buiten op dit niveau mooi met elkaar verbonden worden

  • Gigantische leefruimte met open keuken en Miele-toestellen, een luxueuze centrale plek voor koken, tafelen en ontspannen

  • Lift doorheen de volledige woning, waardoor comfort en toegankelijkheid gegarandeerd zijn op elke verdieping

  • Master suite met dressing en en-suite badkamer, een private hotelervaring binnen je eigen woning

  • Twee extra slaapkamers met elk een eigen badkamer, ideaal voor gasten of familie

  • Perceel van 997 m² met panoramisch zeezicht, uitzonderlijke ruimte en privacy in een exclusieve omgeving

  • Zwembad met buitendouche en uitzicht op de Middellandse Zee, een spectaculaire plek om te ontspannen

  • Buitenkeuken met barbecue en aangelegde tuin met irrigatiesysteem, perfect voor lange mediterrane avonden

  • Hoogtechnologisch comfort, met domotica, vloerverwarming, airzone-klimaatregeling en geïntegreerde speakers

  • Dakterras met parkeerplaatsen en laadpunt voor elektrische wagen, praktisch en volledig toekomstgericht

WONINGEN IN RESIDENTIE JAZMINES: 

Type woning  Aantal slaapkamers  Bebouwde oppervlakte  Plot in m² Prijs 
Villa Amanecer 3 536m² 1205m² €2.598.000
Villa Brisa Del Mar  3 721m² 963m² €2.167.000
Villa Karma 223 3 471m² 878m² €2.148.000
Villa Lavanda  3 707m² 932m² €2.800.000
Villa Rubik 4 597m² 1054m² €2.891.000
Villa Karma 2223478m²880m²€2.197.500

GROEI EN TRENDS IN CUMBRE DEL SOL: 

Jaar  Prijs per m² Jaarlijkse stijging 
2023 €3.214 -
2024 €3.586 +11.6%
2025 €4.032 +12.4%


Kenmerken:

Aantal slaapkamers 3
Aantal badkamers 3
Privaat zwembad Ja
Terras Ja
Oppervlakte perceel rond het huis 997 m²
Fietsafstand van het strand Ja
Vloerverwarming badkamer Ja
Douche schermen Ja
Afstand naar het strand 2 km
Volledige airco installatie Ja
Elektrische rolluiken Ja
Led verlichting buiten Ja
Led verlichting binnen Ja
Zeezicht Ja
privé parkeerplaats Ja
Telefoon Data aansluiting Ja
Videofonie Ja
Inbouwkasten Ja
Aero thermische warmtepomp Ja
Elektrische poort Ja
Elektrisch laadpunt Ja
Badkamer spiegels Ja
Alle keuken apparatuur volledig inbegrepen Ja
Barbecue Ja
Kookplaat Dampkap Magnetron & Oven Ja
Nabij kinder speeltuin Ja
Berging Ja
Kelder Ja
Private Tuin Ja
Uitzicht tuin Ja
Alarmsysteem Ja
Domotica Ja
Oriëntatie Zuid-oost
Golfresort afstand in km 5-10 km
Ziekenhuis afstand in km 5-10 km
Luchthaven Alicante afstand 50+ km
Uitzicht bergen Ja
Lift Ja
Ontspanning ruimte buiten Ja
Ontspanning ruimte binnen Ja
Hangend toilet Ja
Hangend badkamer meubel Ja
Zonnepanelen Ja
Uitzicht op het zwembad Ja
Overloopzwembad Ja
Volledig ingerichte keuken Ja
Dampkap Ja
Gepantserde toegangsdeur met veiligheidsslot Ja
Hoogwaardige afwerking Ja
Aerothermische boiler Ja
Luxe nieuwbouw Ja
Dressing Ja
Aangelegde tuin met grind, gras en planten. Ja
Volledige vloerverwarming Ja
Automatische irrigatie in de tuin. Ja
Extra verdieping ondergronds (basement) Ja
Energielabel A
Afgewerkte badkamer Ja
Gesloten urbanisatie Ja
Bewoonbare oppervlakte 669 m²

Meer info?


Beschikbare documenten

eerste verdieping-2.jpeg

document-eerste verdieping-2.jpeg

download
gelijkvloers-2.jpeg

document-gelijkvloers-2.jpeg

download
onderbouw-2.jpeg

document-onderbouw-2.jpeg

download
perceel-2.jpeg

document-perceel-2.jpeg

download

Ontdek wat we nog meer voor jou in petto hebben!

Moderne Ibiza-stijl villa te koop in Benissa
Moderne Ibiza-stijl villa te koop in Benissa

Project: Serenity: Gelijkvloerse Ibiza-stijl villa

Stad: Benissa

3   2     139 m²   68 m²  

Luxe villa Lysandra in Orihuela Costa, La Zenia
Luxe villa Lysandra in Orihuela Costa, La Zenia

Project: Luxe villa in Orihuela Costa - Lysandra Villa

Stad: Orihuela Costa-Alicante

3   4     203 m²   160 m²  

Airen Collection woningen in Lliber Costa blanca
Airen Collection woningen in Lliber Costa blanca

Project: Airen: eco-vriendelijke luxe villa's in Llíber

Stad: Llíber

3   3     432.76 m²    

Luxe villa’s met zwembad in Desert Springs.
Luxe villa’s met zwembad in Desert Springs.

Project: Villa's op Golfresort Desert Spring Resort

Stad: Cuevas Del Almanzora

3   3     174 m²   51 m²  

Luxe villa op eerstelijn zee
Luxe villa op eerstelijn zee

Project: Residentie 3 Palmeras in Puerto de Mazarron

Stad: Puerto de Mazarrón

3   3     182 m²   56 m²  

Vrijstaande luxewoning in Arena Beach III
Vrijstaande luxewoning in Arena Beach III

Project: Arena golf villa's in La Finca Golf

Stad: Algorfa

6   3     486 m²   52 m²  

Luxevilla met zicht op zee en natuur in Polop
Luxevilla met zicht op zee en natuur in Polop

Project: Luxe nieuwbouw villa met zeezicht in Polop

Stad: Polop-Benidorm

4   3     208 m²   160 m²  

Luxe villa op eerstelijn zee
Luxe villa op eerstelijn zee

Project: Residentie 3 Palmeras in Puerto de Mazarron

Stad: Puerto de Mazarrón

3   3     182 m²   56 m²  

Luxueuze nieuwbouwvilla's in Sierra Cortina!
Luxueuze nieuwbouwvilla's in Sierra Cortina!

Project: Residentie Sea View 6: Luxe woningen nabij de zee

Stad: Finestrat-Benidorm

3   3     155 m²   69 m²  

Exclusieve ruime villa in Roldán
Exclusieve ruime villa in Roldán

Project: VILLAS ROLDÁN

Stad: Roldan

3   2     199 m²   106 m²  

Appartement met terras in Azure Icons
Appartement met terras in Azure Icons

Project: Residentie Azure Icons in Calpe

Stad: Calpe-Costa-Blanca

3   2     125 m²   30 m²  

Luxueuze villa Finestrat Hills in Finestrat
Luxueuze villa Finestrat Hills in Finestrat

Project: Vrijstaande villa's met zwembad Finestrat Hills

Stad: Finestrat-Benidorm

4   4     244 m²   60 m²  

Lees mee met onze nieuwste blogs!

Emigreren met kinderen? Zo werkt school in Spanje
Emigreren met kinderen? Zo werkt school in Spanje

Emigreren met kinderen? Ontdek Spanje's schoolsysteem met ons mee! Van gratis openbare scholen tot internationale varianten, per regio wisselende onderwijstalen en praktische tips zoals inschrijvingen en rapporten. Wij helpen je schoolkeuze op maat en delen ervaringen van klanten. Bij Casas Kim...

Martine

NIE nummer aanvragen Spanje
NIE nummer aanvragen Spanje

Als je langdurig verblijft in Spanje, is het verplicht om een NIE-nummer aan te vragen. Je kan dit vergelijken met een Belgisch rijksregisternummer. Het NIE-nummer wordt door het Directoraat-Generaal van de politie toegekend. Dit nummer moet je gebruiken voor het regelen van belangrijke zaken als...

Martine

Werkgelegenheid in Spanje
Werkgelegenheid in Spanje

Spanje bereikt een recordaantal werkenden. Vooral horeca, detailhandel, onderwijs en zorg groeien sterk en zorgen voor nieuwe kansen in het hele land.

...

Martine

square-box
Tine
Vragen over panden, projecten en onze content
Snel starten:

Hallo, ik ben Tine je kan bij mij terecht met al je vragen over panden, projecten en onze content. Ik antwoord alleen op basis van de beschikbare website-inhoud.