Home Lopende projecten Alle Panden Over ons Ons team Ons kantoor Onze werkwijze Contacteer ons Blog Cookies

Penthouse met solarium in residentie Sun Bay

 Project: Residentie Sun Bay in Torrevieja

Nieuwbouwappartementen in Torrevieja op 400 m van de zee

Korte beschrijving:

PENTHOUSE – 3 SLAAPKAMERS – STADSZICHT & DAKTERRAS – TORREVIEJA

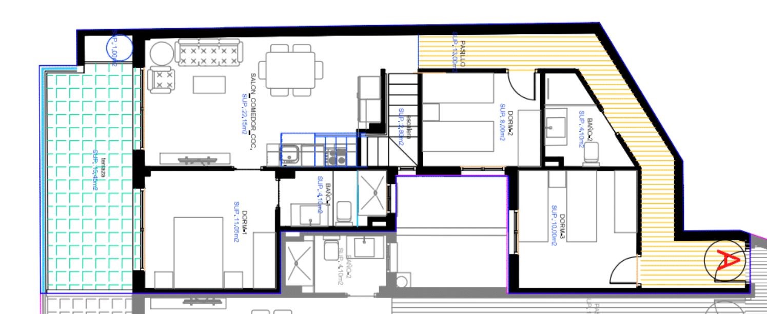
Dit appartement op de bovenste verdieping beschikt over 3 slaapkamers en 2 badkamers en werd ontworpen met een duidelijke focus op comfort en een logische indeling. Via de lange inkomhal bereik je eerst een aparte badkamer, waarna de woning zich opent naar de ruime leefruimte met open keuken. De L-vormige keuken is voorzien van kwaliteitsvolle boven- en onderkasten met soft-close lades en sluit naadloos aan op de woonkamer. Vanuit de leefruimte stap je het balkon van 15 m² op, waar je geniet van een mooi uitzicht over het historische centrum van Torrevieja. Een verdieping hoger heb je een eigen solarium van 41m². 

De woning telt drie volwaardige slaapkamers, allen uitgerust met inbouwkasten. De hoofdslaapkamer beschikt over een eigen badkamer-ensuite, terwijl de tweede badkamer afzonderlijk toegankelijk is. Beide badkamers zijn volledig afgewerkt met wastafelmeubel, spiegel, douche en toilet, waardoor het appartement meteen instapklaar is. De combinatie van twee badkamers en een duidelijke scheiding tussen leef- en slaapgedeelte maakt dit appartement bijzonder comfortabel voor zowel eigen gebruik als verhuur.

Bovenop het gebouw bevindt zich een gemeenschappelijk dakterras met zwembad en ligweide, een echte meerwaarde in het stadscentrum. Dankzij de lift doorheen het volledige gebouw zijn alle verdiepingen vlot bereikbaar. De centrale ligging in Torrevieja, op wandelafstand van strand, winkels en horeca, maakt dit appartement een aantrekkelijke keuze als vaste woonst, tweede verblijf of investering.

U bent nog niet aangemeld!

Na invullen van onderstaande gegevens wordt u aangemeld, indien er nog geen account bestaat kan deze aangemaakt worden!



 Geef ons uw mening...

 Momenteel nog geen reviews voor dit pand.

Uitgebreide beschrijving:

Dit appartement is gelegen op de bovenste verdieping en voorzien van 3 slaapkamers met 2 badkamers. Bij het betreden van de woning kom je terecht in de lange inkomhal.

De inkomhal loopt uit in de ruime leefruimte met open keuken. De keuken heeft een L-vorm en is voorzien van boven- en onderkasten. De lades in de keuken zijn voorzien van een zachte sluiting. De woonkamer komt uit op het balkon, van 15m². Deze heeft een prachtig stadszicht over het historische centrum van Torrevieja. 

Dit appartement is voorzien van 3 slaapkamers met 2 badkamers. De hoofdslaapkamer heeft een badkamer-ensuite. Elke slaapkamer heeft inbouwkasten met hangrekken, legplanken en lades. Beide badkamers zijn op zich dan weer uitgerust met een wastafel, bijpassend meubel, spiegel, douche en toilet. 

Alle slaapkamers hebben frisse lucht, dankzij de patio die loopt. Hierdoor kan je jouw kamer heerlijk verfrissen, aan de hand van verse lucht. 

DUS CONCREET: 

  • 3 slaapkamers
  • 2 badkamers
  • Pré-installatie keuken met kwaliteitsvolle kasten 
  • Afgewerkte badkamers
  • Balkon van 15m²
  • Solarium van 41m²

Deze woning is gelegen op een tussenverdieping, waardoor deze geniet van een balkon van 15m². Daar geniet je van prachtig zicht over Torrevieja. Een verdieping hoger, is jouw eigen privésolarium gelegen van 41m². 

Bovenop het gebouw is er een gemeenschappelijk dakterras te vinden, met zwembad en ligweide. Doorheen het volledige gebouw is er een lift voorzien, zodat je elke verdieping vlot en makkelijk kan bereiken. 

Op de gelijkvloerse verdieping zijn er verschillende garages te vinden, die beschikbaar zijn tegen een meerprijs. Dankzij deze garage kan je zorgeloos parkeren en eventueel extra spullen in op bergen. 

TECHNISCHE KENMERKEN: 

  • Porseleinen vloeren 
  • Elektrische rolluiken
  • Beveiligde voordeur
  • Pré-installatie airconditioning
  • Sanitair warm water via aerothermisch systeem

Deze woning is gelegen in Torrevieja. Torrevieja is een veelzijdige kuststad aan de zuidelijke Costa Blanca waar het mediterrane leven het hele jaar door voelbaar is. De stad combineert lange zandstranden, een levendige boulevard en een actieve haven met een aangenaam klimaat en meer dan 300 zonnige dagen per jaar. Overdag speelt het leven zich af langs zee en in de straten, terwijl ’s avonds terrassen, pleinen en promenades zorgen voor een ontspannen maar levendige sfeer.

Een van de meest opvallende kenmerken van Torrevieja is de unieke natuurlijke omgeving. De stad wordt geflankeerd door de zoutmeren van La Mata en Torrevieja, die niet alleen een bijzonder landschap vormen, maar ook bijdragen aan een gezond microklimaat. Wandel- en fietspaden rond de lagunes bieden rust en open ruimte, terwijl flamingo’s en andere vogelsoorten het gebied een bijna exotisch karakter geven. Deze combinatie van natuur en stad is zeldzaam aan de Costa Blanca.

Torrevieja biedt bovendien alle voorzieningen van een volwaardige stad. Je vindt er winkels, markten, restaurants, sportfaciliteiten, medische centra en culturele evenementen doorheen het hele jaar. De verschillende stranden, zoals Playa del Cura, Playa de los Locos en La Mata, hebben elk hun eigen karakter. Traditionele feesten en muziek, waaronder het bekende Habaneras-festival, herinneren aan het maritieme verleden en geven de stad een duidelijke identiteit.

Wat veel mensen niet weten, is dat Torrevieja ondanks haar grootte nog steeds rustige wijken en verborgen plekjes heeft waar het lokale leven overheerst. Vroege ochtenden aan zee tonen een andere kant van de stad, met vissersboten, joggers en stilte voordat de dag echt begint.

Daarnaast is Torrevieja strategisch gelegen tussen Alicante en Murcia, wat zorgt voor een uitstekende bereikbaarheid. Golfbanen, natuurgebieden en andere kustplaatsen liggen allemaal binnen korte afstand. Die combinatie van bereikbaarheid, voorzieningen en natuurlijke omgeving maakt Torrevieja tot een stad met blijvende aantrekkingskracht.

AFSTANDEN: 

  • Strand: ±600 m

  • Supermarkt: ±300 m

  • Restaurants & bars: ±200 m

  • Centrum Torrevieja: ±1,5 km

  • Jachthaven: ±2 km

  • Winkelcentrum Habaneras: ±2,5 km

  • Zoutmeren La Mata & Torrevieja: ±3 km

  • Golfbanen: ±10–12 km

  • Ziekenhuis: ±4 km

  • Luchthaven Alicante: ±40 km

  • Luchthaven Murcia: ±65 km

Onze visie binnen Casas Kimpencio;

  • Bij Casas Kimpencio ben je niet zomaar iemand, wij willen een persoonlijke relatie aangaan.
  • We behandelen jullie zoals we zelf behandeld willen worden, met de nodige betrokkenheid, precisie en details.
  • Geen enkele vraag is ons te veel, we staan elke dag telefonisch voor jou klaar.
  • Wij hebben de gedachte dat een huis kopen niet zomaar een huis kopen is, maar een nieuwe thuis kopen.
  • Iedereen dient een eigen verhaal te krijgen, met verschillende hoofdstukken. 
  • Wij willen helpen aan het Spaanse hoofdstuk, een hoofdstuk van een nieuwe thuis, vakantiewoning of een investering.
  • En dit doen we met open, duidelijke communicatie  en daarmee geraken we er altijd, zo vinden we jouw ideale woning gebaseerd op meerdere gesprekken.
  • We helpen vanaf het begin tot aan de sleuteloverdracht, en ver daarbuiten. 

Wij vinden deze woning bijzonder omdat;

  • Zicht op het historische centrum van Torrevieja geeft je elke dag een levendig, authentiek stadsdecor dat nooit verveelt

  • Logische indeling met lange inkomhal zorgt voor een duidelijke scheiding tussen leefruimte en slaapkamers, wat rust en comfort creëert

  • Ruime leefruimte met open keuken voelt luchtig en aangenaam aan, ideaal voor dagelijks wonen én gasten ontvangen

  • Keuken met zachte sluiting straalt kwaliteit en duurzaamheid uit, een detail dat je elke dag opnieuw voelt

  • Balkon van 15m² met stadszicht vormt een echte verlenging van de leefruimte, perfect voor ontbijt of avondmomenten

  • Twee volwaardige badkamers verhogen het comfort aanzienlijk, ideaal voor gezinnen, koppels of verhuur

  • Hoofdslaapkamer met badkamer-ensuite biedt privacy en hotelgevoel in je eigen woning

  • Inbouwkasten in beide slaapkamers zorgen voor een strakke afwerking en maximaal gebruik van de ruimte

  • Gemeenschappelijk dakterras met zwembad geeft je een resortgevoel midden in de stad, zonder onderhoudszorgen

  • Lift in het volledige gebouw maakt het appartement comfortabel en toekomstgericht

  • Aerothermisch systeem en pré-installatie airco zorgen voor energiezuinig wonen en lage verbruikskosten

  • Centrale ligging nabij strand, winkels en horeca maakt dit appartement ideaal voor vaste bewoning, vakantie én investering

WONINGEN IN RESIDENTIE SUN BAY: 

Type woning  Aantal slaapkamers / badkamers Bebouwde oppervlakte  Buitenruimte in m² Prijs 
Appartement met terras 2/2  85m² 9m² €299.000
Appartement met terras 3/2  92m² 8m² €329.000
Penthouse met solarium 2/2  103m² 34m² €419.000
Penthouse met solarium   3/2  137m² 56m² €469.000

GROEI EN TRENDS IN TORREVIEJA: 

Jaar  Prijs per m² Jaarlijkse stijging 
2023 €2.097 -
2024 €2.335 +11.4%
2025 €2.591 +10.9%


Kenmerken:

Aantal slaapkamers 3
Aantal badkamers 2
Oppervlakte perceel rond het huis 0 m²
Bebouwde oppervlakte 137 m²
Bewoonbare oppervlakte 132 m²
Afstand naar het strand 0.4 km
Terras oppervlakte 15 m²
Gedeeld zwembad Ja
Nabij Scholen Ja
Nabij Commercieel centrum Ja
Nabij bushalte Ja
Terras Ja
Fietsafstand van het strand Ja
Douche schermen Ja
Solarium Gedeeld
Solarium oppervlakte in m2 40-50 m²
Pré installatie airco Ja
Elektrische rolluiken Ja
Led verlichting buiten Ja
Led verlichting binnen Ja
Garage Optioneel
Telefoon Data aansluiting Ja
Videofonie Ja
Inbouwkasten Ja
Badkamer spiegels Ja
Pre installatie keuken Ja
Nabij kinder speeltuin Ja
Golfresort afstand in km 5-10 km
Ziekenhuis afstand in km 0-5 km
Luchthaven Alicante afstand 40-50 km
Luchthaven Murcia afstand 50+ km
Gedeelde kosten Ja
Lift Ja
Ontspanning ruimte buiten Ja
Hangend toilet Ja
Hangend badkamer meubel Ja
Gepantserde toegangsdeur met veiligheidsslot Ja
Aerothermische boiler Ja
Penthouse Ja
Goed gebied voor rentabiliteit van huur Ja
Wandelafstand van het strand Ja
Energielabel B
Afgewerkte badkamer Ja
Gesloten urbanisatie Ja

Meer info?


Beschikbare documenten

penthouse 3-2 solarium.jpeg

document-penthouse 3-2 solarium.jpeg

download
penthouse 3-2.jpeg

document-penthouse 3-2.jpeg

download

Ontdek wat we nog meer voor jou in petto hebben!

Appartement met solarium in residentie Lolm
Appartement met solarium in residentie Lolm

Project: Residentie Lolm in Hondon de las Nieves

Stad: Hondón de las Nieves

2   1   71.8 m²  

Penthouse met solarium in Costa Blanca
Penthouse met solarium in Costa Blanca

Project: Penthouse Benejúzar Boutique wonen Costa Blanca

Stad: Benejúzar

3   3     56 m²   12 m²  

Gerenoveerd penthouse met solarium  Collado Bajo
Gerenoveerd penthouse met solarium Collado Bajo

Project: Wooncomplex Collado Bajo

Stad: Aguilas

2   2   60 m²   56 m²  

Exclusieve herverkoop: penthouse in res. Veleta
Exclusieve herverkoop: penthouse in res. Veleta

Project: Residentie Veleta in San Miguel de Salinas

Stad: Wonen in San Miguel: rust en zon aan zee

2   2   99 m²   5 m²  

Duplex en Fortuna (murcia)
Duplex en Fortuna (murcia)

Project: Duplex en Fortuna (murcia)

Stad: Fortuna

3   2     164 m²   73 m²  

Penthouse (studio) in Torrevieja nabij zee
Penthouse (studio) in Torrevieja nabij zee

Project: Torrevieja: Nieuwbouw op 200m van zee, unieke kans

Stad: Torrevieja-Alicante

0   1   54 m²   12 m²  

Miramar penthouse in Orihuela Costa
Miramar penthouse in Orihuela Costa

Project: Miramar Orihuela Costa

Stad: Orihuela Costa-Alicante

2   2     93 m²   8 m²  

Penthouse Riomar Healthy Living
Penthouse Riomar Healthy Living

Project: Assistentie appartementen Riomar Healthy Living

Stad: Torre De La Horadada

1   1   96 m²   44 m²  

Penthouse met zeezicht en groot terras
Penthouse met zeezicht en groot terras

Project: Xeresa del Monte: Betaalbare woningen met zeezicht

Stad: Xeresa

3   2     89 m²   88 m²  

Puerta de Oriente-Vera Playa
Puerta de Oriente-Vera Playa

Project: Puerta de Oriente-Vera Playa

Stad: Vera- regio Costa Almeria Andalusië

2   2     71 m²   45 m²  

Penthouse - Puerta de Oriente
Penthouse - Puerta de Oriente

Project: Residentie Puerta De Oriente

Stad: Vera- regio Costa Almeria Andalusië

2   2   71 m²   45 m²  

Penthouse van met 2 slpk en terras van 108 m²
Penthouse van met 2 slpk en terras van 108 m²

Project: Sol y Vida appartementen- Torre-pacheco

Stad: Torre-Pacheco - Murcia

3   2     107 m²   108 m²  

Lees mee met onze nieuwste blogs!

Torrevieja: topkeuze voor Belgen en Nederlanders
Torrevieja: topkeuze voor Belgen en Nederlanders

Waarom zoveel Belgen en Nederlanders kiezen voor een woning in Torrevieja

De favoriete kustplaats aan de Costa Blanca Zuid

Torrevieja, gelegen aan de prachtige Costa Blanca, is al jarenlang een van de populairste bestemmingen voor Belgische en Nederlandse woningkopers. En dat is niet ...

Martine

Ontdek de Pracht van de Zoutmeren van Torrevieja!
Ontdek de Pracht van de Zoutmeren van Torrevieja!

Ontdek de betoverende zoutmeren van Torrevieja, waar roze water, witte zoutvlakten en zonnige lucht samen een natuurlijk kunstwerk vormen. Leer meer over hun geschiedenis, geneeskrachtige werking en unieke fauna, en voel waarom deze plek zóveel mensen raakt.

...

Martine

Investeren in Orihuela Costa & Torrevieja
Investeren in Orihuela Costa & Torrevieja

Orihuela Costa en Torrevieja zijn dé hotspots voor vastgoedbeleggingen aan de Costa Blanca Zuid.

Dankzij de prachtige stranden, uitstekende infrastructuur en populaire toeristische attracties trekken deze gebieden jaarlijks duizenden vakantiegangers aan.

Dit zorgt voor een hoog ver...

Martine

square-box
Tine
Vragen over panden, projecten en onze content
Snel starten:

Hallo, ik ben Tine je kan bij mij terecht met al je vragen over panden, projecten en onze content. Ik antwoord alleen op basis van de beschikbare website-inhoud.