Home Lopende projecten Alle Panden Over ons Ons team Ons kantoor Onze werkwijze Contacteer ons Blog Cookies

laatste kans

Villa Leonor in Ciudad Quesada

 Project: Villa's Leonor in Ciudad Quesada

Moderne mediterrane villa in Ciudad Quesada, Costa Blanca

Korte beschrijving:

VILLA – 3 SLAAPKAMERS – 2 BADKAMERS – ZWEMBAD EN SOLARIUM – CIUDAD QUESADA

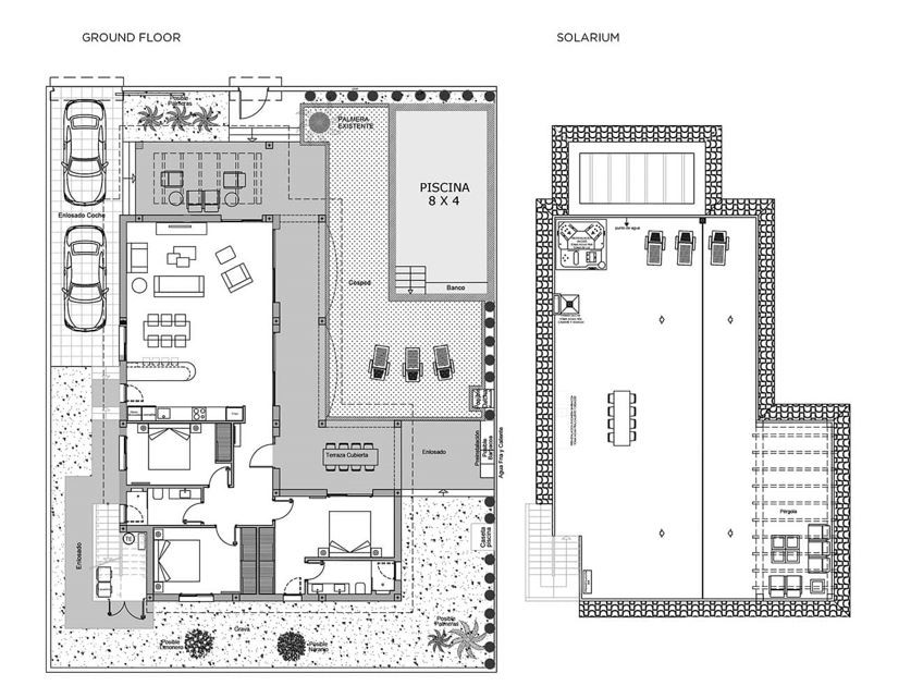
Deze moderne villa, verdeeld over twee verdiepingen, biedt 3 slaapkamers en 2 badkamers, en is ontworpen met oog voor ruimte, licht en privacy. De woning heeft twee toegangen, één voor voertuigen en één voor voetgangers, en ligt op een volledig omheind perceel van 500 m². Binnenin bevindt zich een lichte leefruimte met open keuken, volledig ingericht en klaar voor gebruik. Grote kamerhoge ramen verbinden de woonkamer met de prachtig aangelegde tuin die de woning omringt, rijk aan inheemse beplanting en voorzien van een zwembad van 8 x 4 meter.

De hoofdslaapkamer beschikt over een ensuite badkamer en uitzicht op het zwembad, terwijl de overige twee slaapkamers een tweede badkamer delen. Alle slaapkamers hebben inbouwkasten, en beide badkamers zijn uitgerust met een wastafel met meubel, douche, spiegel en toilet. Buiten bevindt zich een praktische berging met aansluiting voor wasmachine, droger en technische installaties.

Op de bovenverdieping bevindt zich een solarium van 150 m², afgewerkt met anti-slip tegels en voorzien van een pergola. Hier geniet je de hele dag van zon en panoramische uitzichten, optioneel kan er een jacuzzi worden geïnstalleerd. De villa is uitgerust met dubbele beglazing, een aerothermische boiler en pré-installatie voor airconditioning voor optimaal comfort en energie-efficiëntie.

De ligging in Ciudad Quesada combineert rust, elegantie en uitstekende bereikbaarheid. Op slechts enkele minuten vind je La Marquesa Golf, de stranden van Guardamar del Segura en tal van voorzieningen. De groene omgeving, levendige gemeenschap en mediterrane charme maken deze villa tot de perfecte keuze voor wie modern comfort en zuiders leven wil combineren

U bent nog niet aangemeld!

Na invullen van onderstaande gegevens wordt u aangemeld, indien er nog geen account bestaat kan deze aangemaakt worden!



 Geef ons uw mening...

 Momenteel nog geen reviews voor dit pand.

Uitgebreide beschrijving:

Deze villa is verdeeld over 2 verdiepingen en voorzien van 3 slaapkamers met 2 badkamers. Er zijn 2 ingangen om de woning te bereiken; de ingang via de wagen en de ingang voor voetgangers. Het gehele domein is omheind. Er is een ruime leefruimte gelegen met open keuken. De keuken is volledig ingericht, zodat je zorgeloos kan intrekken. 

De ruime woonkamer kijkt via kamerhoge raampartijen uit op de tuin, die rond de gehele woning ligt. Deze tuin is fenomenaal afgewerkt met inheemse planten. Geniet van een oase aan rust in jouw eigen stekje. 

Er zijn 3 slaapkamers met 2 badkamers voorzien. De hoofdslaapkamer heeft een badkamer-ensuite en zicht op het zwembad. De andere 2 slaapkamers delen een badkamer. Elke slaapkamer is voorzien van inbouwkasten. Beide badkamers zijn uitgerust met een wastafel met bijpassend meubel, toilet, douche en spiegel. 

Nabij de woning is er een berging voorzien, te bereiken via de tuin. Daar zijn de technische installaties geïnstalleerd maar kan je ook jouw wasmachine en droger aansluiten of eventueel tuinspullen in op bergen. Keuze genoeg! 

DUS CONCREET: 

  • 3 slaapkamers
  • 2 badkamers
  • Open keuken met toestellen 
  • Woonkamer wordt overspoeld met natuurlijk licht
  • Berging via buiten 

De woning is gelegen op een perceel van 500m². Allereerst heeft de oprit plaats om 2 wagens te parkeren. Rondom de woning is er een prachtige tuin aangelegd met heel wat groene beplanting. Verder is er ook een prachtig zwembad gelegen van 8 meter op 4 meter. 

Een verdieping hoger, bereik je het solarium van 150m². Op het solarium kan je de hele dag door genieten van de zon en de meest prachtige uitzichten. Geniet van een zalige tijd met familie en vrienden op jouw solarium. Op het solarium is er een pergola voorzien en kan er optioneel een jacuzzi geïnstalleerd worden. 

TECHNISCHE KENMERKEN: 

  • Pré-installatie airconditioning 
  • Dubbele beglazing 
  • Aerothermische boiler

Deze woning is gelegen in Ciudad Quesada. Ciudad Quesada, gelegen net ten noorden van Torrevieja aan de zuidelijke Costa Blanca, is een levendige en verzorgde woonomgeving die rust, comfort en mediterrane charme weet te combineren. Vanaf de hoger gelegen delen heb je een prachtig uitzicht over de zoutmeren van La Mata en Torrevieja, terwijl de zee op slechts tien minuten rijden ligt. De brede lanen, verzorgde tuinen en moderne voorzieningen maken Ciudad Quesada tot een aangename en veilige plek waar het buitenleven centraal staat.

De gemeenschap is dynamisch en internationaal, maar heeft een onmiskenbaar Spaanse sfeer behouden. In het centrum vind je alles wat je nodig hebt: restaurants, cafés, winkels, supermarkten en een gezellige hoofdstraat die bruist van leven, vooral in de zomeravonden. Er zijn sportfaciliteiten, gezondheidscentra en scholen in de directe omgeving, wat het gebied aantrekkelijk maakt voor zowel permanente bewoners als bezoekers die willen genieten van comfort en rust in de zon.

Een van de grote troeven van Ciudad Quesada is de nabijheid van natuur en recreatie. De beroemde golfbaan La Marquesa Golf slingert zich door het hart van de urbanisatie en biedt niet alleen uitdaging voor golfers, maar ook prachtige groene uitzichten voor omwonenden. Daarnaast ligt het natuurpark van La Mata vlakbij, een beschermd gebied met wandel- en fietspaden langs de roze zoutmeren, waar flamingo’s en andere vogels leven. De stranden van Guardamar del Segura en Torrevieja zijn snel bereikbaar en bieden een perfecte combinatie van natuur, rust en ontspanning.

Wat veel mensen niet weten, is dat Ciudad Quesada ooit begon als een droom van één man, Justo Quesada, die in de jaren zeventig een dorp wilde creëren waar het hele jaar door van de zon genoten kon worden. Die visie leeft nog steeds voort in de zorgvuldige opbouw van de wijk en de manier waarop het leven hier is georganiseerd, overzichtelijk, groen en met respect voor de mediterrane levensstijl.

Daarnaast heeft Ciudad Quesada een verrassend actief gemeenschapsleven. Door het hele jaar heen worden er lokale markten, muziekavonden, sportwedstrijden en culinaire evenementen georganiseerd die bewoners samenbrengen. In de vroege ochtend zie je mensen wandelen of fietsen richting de zoutmeren, terwijl ’s avonds de terrassen volstromen met gesprekken, lachende gezichten en het zachte geluid van krekels op de achtergrond. Ciudad Quesada is daarmee niet zomaar een woonplaats, maar een plek waar het mediterrane leven in zijn meest ontspannen vorm tot leven komt.

AFSTANDEN: 

  • Golfbaan La Marquesa: 5min
  • Stranden van Guardamar del Segura: 7km 
  • Rojales: 10min 
  • Luchthaven Alicante: 40km 
  • Luchthaven Murcia: 45min 

Onze visie binnen Casas Kimpencio;

  • Bij Casas Kimpencio ben je niet zomaar iemand, wij willen een persoonlijke relatie aangaan.
  • We behandelen jullie zoals we zelf behandeld willen worden, met de nodige betrokkenheid, precisie en details.
  • Geen enkele vraag is ons te veel, we staan elke dag telefonisch voor jou klaar.
  • Wij hebben de gedachte dat een huis kopen niet zomaar een huis kopen is, maar een nieuwe thuis kopen.
  • Iedereen dient een eigen verhaal te krijgen, met verschillende hoofdstukken. 
  • Wij willen helpen aan het Spaanse hoofdstuk, een hoofdstuk van een nieuwe thuis, vakantiewoning of een investering.
  • En dit doen we met open, duidelijke communicatie en daarmee geraken we er altijd, zo vinden we jouw ideale woning gebaseerd op meerdere gesprekken.
  • We helpen vanaf het begin tot aan de sleuteloverdracht, en ver daarbuiten. 

Wij vinden deze woning bijzonder aantrekkelijk

  • De ruime leefruimte met open keuken een harmonieus en licht geheel vormt, dankzij de kamerhoge ramen die uitzicht bieden op de prachtig aangelegde tuin.

  • De volledig ingerichte keuken alle comfort biedt om direct zorgeloos in te trekken.

  • De hoofdslaapkamer met ensuite badkamer en uitzicht op het zwembad zorgt voor een luxueus en ontspannen gevoel.

  • De praktische buitenberging extra ruimte biedt voor wasvoorzieningen, technische installaties of tuinmateriaal.

  • De grote tuin van 500m² met zwembad van 8 op 4 meter een oase van rust creëert, ideaal om te genieten van het mediterrane klimaat.

  • Het solarium van 150m² met pergola de perfecte plek is om te ontspannen, zonnebaden of te genieten van panoramische uitzichten, met de optie om een jacuzzi te plaatsen.

  • De dubbele beglazing, aerothermische boiler en pré-installatie airconditioning zorgen voor comfort, energiezuinigheid en een aangenaam binnenklimaat.

  • De ligging in Ciudad Quesada rust, luxe en nabijheid van La Marquesa Golf en de stranden van Guardamar del Segura combineert, de ideale balans tussen ontspanning, natuur en comfort.

TRENDS EN GROEI IN CIUDAD QUESADA: 

Jaar  Prijs per m² Jaarlijkse stijging 
2023 €2.484 -
2024 €2.801 +12.8%
2025 €2.987 +6.7%


Kenmerken:

Aantal slaapkamers 3
Aantal badkamers 2
Privaat zwembad Ja
Oppervlakte perceel rond het huis 450 m²
Bebouwde oppervlakte 140 m²
Bewoonbare oppervlakte 120 m²
Afstand naar het strand 7 km
Terras oppervlakte 68 m²
Private Tuin Ja
Poort Ja
Nabij Scholen Ja
Nabij Commercieel centrum Ja
Terras Ja
Fietsafstand van het strand Ja
Douche schermen Ja
Jaccuzi Ja
Solarium Ja
Solarium oppervlakte in m2 101-150 m²
Pré installatie airco Ja
Elektrische rolluiken Ja
Led verlichting buiten Ja
Led verlichting binnen Ja
privé parkeerplaats Ja
Telefoon Data aansluiting Ja
Videofonie Ja
Inbouwkasten Ja
Elektrische poort Ja
Badkamer spiegels Ja
Alle keuken apparatuur volledig inbegrepen Ja
Kookplaat Dampkap Magnetron & Oven Ja
Nabij kinder speeltuin Ja
Berging Ja
Uitzicht tuin Ja
Golfresort afstand in km 5-10 km
Ziekenhuis afstand in km 5-10 km
Luchthaven Alicante afstand 40-50 km
Luchthaven Murcia afstand 50+ km
Ontspanning ruimte buiten Ja
Hangend toilet Ja
Hangend badkamer meubel Ja
Uitzicht op het zwembad Ja
Volledig ingerichte keuken Ja
Dampkap Ja
Gepantserde toegangsdeur met veiligheidsslot Ja
Bioklimatologische pergola Ja
Grote ramen van vloer tot plafond Ja
Goede prijs-kwaliteit verhouding Ja
Aerothermische boiler Ja
Luxe nieuwbouw Ja
Pergola Ja
Energielabel B
Afgewerkte badkamer Ja

Meer info?


Beschikbare documenten

grondplan.jpeg

document-grondplan.jpeg

download

Ontdek wat we nog meer voor jou in petto hebben!

Appartement met solarium in residentie Lolm
Appartement met solarium in residentie Lolm

Project: Residentie Lolm in Hondon de las Nieves

Stad: Hondón de las Nieves

2   1   71.8 m²  

Hacienda San Julian-Lorca
Hacienda San Julian-Lorca

Project: Skandinavia IV

Stad: Torrevieja-Alicante

3   2     82 m²   82 m²  

Penthouse Galena met 2 slaapkamers in Herrerias
Penthouse Galena met 2 slaapkamers in Herrerias

Project: Residentie Galena woningen met zwembad in Almería

Stad: Cuevas Del Almanzora

2   2     84 m²   32 m²  

Penthouse met solarium in Costa Blanca
Penthouse met solarium in Costa Blanca

Project: Penthouse Benejúzar Boutique wonen Costa Blanca

Stad: Benejúzar

3   3     56 m²   12 m²  

Bigastro  geschakelde woning met 4 slaapkamers
Bigastro geschakelde woning met 4 slaapkamers

Project: Adosados Los Palacios Bigastro

Stad: Bigastro

4   3     177 m²   50 m²  

Duplex en Fortuna (murcia)
Duplex en Fortuna (murcia)

Project: Duplex en Fortuna (murcia)

Stad: Fortuna

3   2     164 m²   73 m²  

Miramar penthouse in Orihuela Costa
Miramar penthouse in Orihuela Costa

Project: Miramar Orihuela Costa

Stad: Orihuela Costa-Alicante

2   2     93 m²   8 m²  

Appartementen in het centrum van San Miguel
Appartementen in het centrum van San Miguel

Project: SALINAS VIEWS: appartementen in het centrum

Stad: Wonen in San Miguel: rust en zon aan zee

3   2     102 m²   7 m²  

Penthouse Riomar Healthy Living
Penthouse Riomar Healthy Living

Project: Assistentie appartementen Riomar Healthy Living

Stad: Torre De La Horadada

1   1   96 m²   44 m²  

Penthouse met zeezicht en groot terras
Penthouse met zeezicht en groot terras

Project: Xeresa del Monte: Betaalbare woningen met zeezicht

Stad: Xeresa

3   2     89 m²   88 m²  

Puerta de Oriente-Vera Playa
Puerta de Oriente-Vera Playa

Project: Puerta de Oriente-Vera Playa

Stad: Vera- regio Costa Almeria Andalusië

2   2     71 m²   45 m²  

Penthouse van met 2 slpk en terras van 108 m²
Penthouse van met 2 slpk en terras van 108 m²

Project: Sol y Vida fase 2-Torre-pacheco -ciudad

Stad: Torre-Pacheco - Murcia

3   2     107 m²   108 m²  

Lees mee met onze nieuwste blogs!

Advocaat in Spanje
Advocaat in Spanje

Ontdek waarom een Nederlandstalige advocaat in Spanje niet zomaar handig is, maar essentieel voor jouw gemoedsrust en zekerheid onder de zon.


...

Martine

Easy Jet opent een nieuwe basis in Alicante
Easy Jet opent een nieuwe basis in Alicante

EasyJet opent een nieuwe basis in Alicante. Met negen nieuwe Europese routes wordt de Costa Blanca nog beter bereikbaar voor reizigers, tweede verblijvers en investeerders.

...

Juliette

Pinar de Campoverde: wonen in rust en natuur
Pinar de Campoverde: wonen in rust en natuur

Pinar de Campoverde is een groene oase aan de zuidelijke Costa Blanca waar natuur, rust en modern comfort naadloos samenkomen. Dit charmante dorp, omringd door pijnboombossen en panoramische landschappen, biedt een unieke mix van traditionele Spaanse charme en hedendaagse luxe. Met prachtige stra...

Martine

square-box
Tine
Vragen over panden, projecten en onze content
Snel starten:

Hallo, ik ben Tine je kan bij mij terecht met al je vragen over panden, projecten en onze content. Ik antwoord alleen op basis van de beschikbare website-inhoud.