Villa met prachtig zeezicht in Polop

 Project: Bay View: Kies jouw villa met panoramisch zeezicht

Nieuwbouwvilla's in unieke residentie in Polop

Korte beschrijving:

LUXE VILLA MET ZEEZICHT – 3 SLAAPKAMERS – PLOT 433M² – POLOP

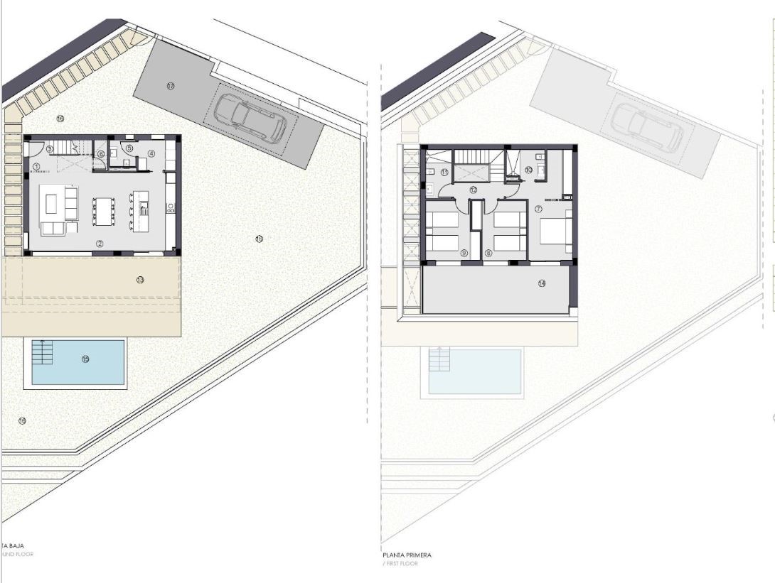
Deze moderne villa is verdeeld over twee verdiepingen en biedt een perfecte scheiding tussen leef- en slaapgedeelte. Via het aangelegde pad of de oprit met parkeerplaats voor één wagen bereik je de woning. Binnen kom je in de inkomhal die uitmondt in een lichtrijke woonkamer met open, volledig uitgeruste keuken. Grote schuiframen verbinden de leefruimte rechtstreeks met de tuin. De keuken beschikt over keramische kookplaat, afzuigkap, oven, magnetron, koelkast en vaatwasser, aangevuld met een praktische berging voor extra opslag.

De woning telt 3 slaapkamers en 2 badkamers. De master bedroom heeft een badkamer-ensuite, terwijl de andere twee slaapkamers een tweede badkamer delen. Alle slaapkamers zijn voorzien van ingebouwde kasten en hebben directe toegang tot het terras, wat zorgt voor licht en ventilatie in elke ruimte. De badkamers zijn volledig afgewerkt met douche, wastafelmeubel en toilet.

Op een perceel van 433 m² geniet je van een aangelegde tuin met mogelijkheid tot privézwembad en prachtig zeezicht. Technisch is de woning uitgerust met aerothermie, dubbele beglazing, elektrische rolluiken in de slaapkamers en voorbereidingen voor zonnepanelen en laadpunt voor een elektrische wagen – een toekomstgerichte villa op een rustige locatie tussen bergen en zee.

U bent nog niet aangemeld!

Na invullen van onderstaande gegevens wordt u aangemeld, indien er nog geen account bestaat kan deze aangemaakt worden!



 Geef ons uw mening...

 Momenteel nog geen reviews voor dit pand.

Uitgebreide beschrijving:

Ontdek deze luxe villa in Polop! Deze woning is voorzien van 3 slaapkamers met 2 badkamers en verdeeld over 2 verdiepingen. We nemen even een wandeling doorheen de woning. Het betreden van de woning kan via het aangelegd wandelpaadje of via de oprit waar er 1 wagen kan staan. Bij het binnenkomen, via de beveiligde voordeur, kom je terecht in de inkomhal. Deze inkomhal mondt uit in de woonkamer met open keuken. 

De keuken is afgewerkt met een keramische kookplaat, afzuigkap, oven, magnetron, koelkast, vaatwasser en onder-en bovenkasten. De woonkamer kijkt via grote schuiframen uit op de tuin met zwembad. Aansluitend aan de keuken is er een ruime berging gelegen met voldoende opslagruimte. Verder is er ook nog een gastentoilet met wastafel op de gelijkvloerse verdieping. 

Een verdieping hoger, zijn de 3 slaapkamers met 2 badkamers gelegen. De hoofdslaapkamer heeft een badkamer-ensuite. De tweede en derde slaapkamer delen een badkamer. Elke badkamer is afgewerkt met toilet, douche, wastafel met bijpassend meubel. 

Alle slaapkamers zijn voorzien van inbouwkasten met hangrekken, legplanken en lades. Bovendien geniet elke slaapkamer van rechtstreekse verbinding naar het terras toe. 

DUS CONCREET: 

  • 3 slaapkamers
  • 2 badkamers
  • Uitgeruste keuken met toestellen 
  • Oprijlaan 
  • Afgewerkte badkamers
  • Berging 
  • Gastentoilet
  • Inbouwkasten

Deze woning is gelegen op een perceel van 433m². In de tuin is er een mogelijkheid om een privézwembad te plaatsen. De tuin is prachtig afgewerkt in het groene, waarbij je van prachtig zeezicht geniet. 

In de residentie is er ook een panoramisch gemeenschappelijk zwembad gelegen. 

TECHNISCHE KENMERKEN: 

  • Omheinde tuin 
  • Parkeerplaats op eigen perceel
  • Dubbele beglazing 
  • Elektrische rolluiken in de slaapkamers
  • Beveiligde voordeur
  • Keramische vloeren 
  • Sanitair warm water via aerothermisch systeem
  • Pré-installatie laadpunt elektrische wagen 
  • Pré-installatie zonnepanelen

Deze villa is gelegen in Polop. Polop, gelegen in het binnenland van de noordelijke Costa Blanca, is een charmant bergdorp dat bekendstaat om zijn rust, uitzichten en authentieke karakter. Het dorp ligt aan de voet van de berg Monte Ponoig, ook wel de “leeuw van Alicante” genoemd, en wordt omringd door natuur en open landschap. Vanuit verschillende punten in Polop geniet je van panoramische vergezichten richting zee en bergen, wat het dorp een unieke en serene uitstraling geeft.

Het historische centrum van Polop bestaat uit smalle straatjes, witte huizen en het bekende plein met de fonteinen waar tientallen waterbronnen samenkomen. Hier proef je nog het echte Spaanse dorpsleven, met kleine cafés en lokale winkels waar bewoners elkaar dagelijks ontmoeten. Ondanks het traditionele karakter ligt Polop op korte afstand van grotere plaatsen zoals La Nucía, Alfaz del Pi en Benidorm, waardoor alle voorzieningen snel bereikbaar zijn.

De omgeving van Polop is ideaal voor liefhebbers van natuur en buitenleven. Wandelroutes, bergpaden en uitzichtpunten bieden volop mogelijkheden om actief te zijn in een rustige setting. Tegelijkertijd liggen de stranden van Altea en Benidorm binnen redelijke afstand, wat zorgt voor een mooie balans tussen berg en zee. Het milde klimaat en de iets hogere ligging zorgen bovendien voor frisse avonden, zelfs in de zomermaanden.

Wat veel mensen niet weten, is dat Polop een lange geschiedenis heeft die teruggaat tot de Moorse periode. De restanten van het oude kasteel boven op de heuvel herinneren aan die tijd en bieden vandaag een van de mooiste uitzichtpunten van de regio. Vooral bij zonsondergang is dit een indrukwekkende plek.

Daarnaast staat Polop bekend om zijn rustige woonzones met open zichten en veel privacy. Hier ervaar je stilte en natuur, zonder geïsoleerd te zijn. Die combinatie van berglandschap, nabijheid van de kust en een authentieke dorpssfeer maakt Polop bijzonder aantrekkelijk voor wie rust zoekt met bereikbaarheid.

AFSTANDEN: 

  • Centrum Polop: ±500 m

  • Supermarkt en lokale winkels: ±800 m

  • Restaurants & cafés: ±500 m

  • La Nucía: ±4 km

  • Benidorm: ±12 km

  • Strand Altea: ±10 km

  • Strand Benidorm: ±13 km

  • Golfbanen: ±10 km

  • Ziekenhuis Benidorm: ±12 km

  • Luchthaven Alicante: ±65 km

Onze visie binnen Casas Kimpencio;

  • Bij Casas Kimpencio ben je niet zomaar iemand, wij willen een persoonlijke relatie aangaan.
  • We behandelen jullie zoals we zelf behandeld willen worden, met de nodige betrokkenheid, precisie en details.
  • Geen enkele vraag is ons te veel, we staan elke dag telefonisch voor jou klaar.
  • Wij hebben de gedachte dat een huis kopen niet zomaar een huis kopen is, maar een nieuwe thuis kopen.
  • Iedereen dient een eigen verhaal te krijgen, met verschillende hoofdstukken. 
  • Wij willen helpen aan het Spaanse hoofdstuk, een hoofdstuk van een nieuwe thuis, vakantiewoning of een investering.
  • En dit doen we met open, duidelijke communicatie  en daarmee geraken we er altijd, zo vinden we jouw ideale woning gebaseerd op meerdere gesprekken.
  • We helpen vanaf het begin tot aan de sleuteloverdracht, en ver daarbuiten. 

Wij vinden deze woning bijzonder omdat;

  • Luxe villa verdeeld over 2 verdiepingen, met een doordachte indeling die wonen en slapen perfect scheidt

  • Open leefruimte met grote schuiframen naar tuin en zwembad, waardoor licht en uitzicht centraal staan

  • Volledig uitgeruste keuken met alle toestellen inbegrepen, van oven tot vaatwasser – meteen instapklaar

  • Ruime berging naast de keuken, ideaal voor extra opslag zonder rommel in de leefruimte

  • 3 slaapkamers met directe toegang naar buiten, elke kamer voelt licht, open en verbonden met de tuin

  • Master bedroom met en-suite badkamer, terwijl de andere twee slaapkamers een tweede stijlvolle badkamer delen

  • Perceel van 433 m² met zeezicht, privacy, ruimte en groen in een rustige woonomgeving

  • Mogelijkheid tot privézwembad én toegang tot panoramisch gemeenschappelijk zwembad, dubbele troef qua ontspanning

  • Voorbereid op zonnepanelen en laadpunt voor elektrische wagen, toekomstgericht en energie-efficiënt

  • Gelegen in Polop, tussen bergen en zee, waar rust, uitzicht en bereikbaarheid samenkomen

WONINGEN IN RESIDENTIE BAY VIEW POLOP: 

Type woning  Aantal slaapkamers / badkamers Bebouwde oppervlakte Plot in m² Prijs 
Villa  3/2 112m² 325m² €548.700
Villa 3/2 123m² 433m² €694.700
Villa 4/3 183m² 435m² €894.700

GROEI EN TRENDS IN POLOP: 

Jaar  Prijs per m² Jaarlijkse stijging 
2023 €1.982 -
2024 €2.221 +12.1%
2025 €2.487 +12%


Kenmerken:

Aantal slaapkamers 3
Aantal badkamers 2
Privaat zwembad Optioneel
Oppervlakte perceel rond het huis 433 m²
Bebouwde oppervlakte 123 m²
Bewoonbare oppervlakte 103 m²
Afstand naar het strand 9 km
Terras oppervlakte 78 m²
Private Tuin Ja
Poort Ja
Nabij Scholen Ja
Nabij Commercieel centrum Ja
Nabij bushalte Ja
Gedeeld zwembad Ja
Terras Ja
Douche schermen Ja
Jaccuzi Optioneel
Pré installatie airco Ja
Elektrische rolluiken Ja
Led verlichting buiten Ja
Led verlichting binnen Ja
Zeezicht Ja
privé parkeerplaats Ja
Telefoon Data aansluiting Ja
Videofonie Ja
Inbouwkasten Ja
Pre installatie elektrisch laadpunt Ja
Badkamer spiegels Ja
Alle keuken apparatuur volledig inbegrepen Ja
Kookplaat Dampkap Magnetron & Oven Ja
Nabij kinder speeltuin Ja
Berging Ja
Uitzicht tuin Ja
Golfresort afstand in km 10-15 km
Ziekenhuis afstand in km 10-20 km
Luchthaven Alicante afstand 50+ km
Uitzicht bergen Ja
Gedeelde kosten Ja
Ontspanning ruimte buiten Ja
Hangend toilet Ja
Hangend badkamer meubel Ja
Pré installatie zonnepanelen Ja
Volledig ingerichte keuken Ja
Dampkap Ja
Gepantserde toegangsdeur met veiligheidsslot Ja
Grote ramen van vloer tot plafond Ja
Hoogwaardige afwerking Ja
Aerothermische boiler Ja
Luxe nieuwbouw Ja
Kijkwoning Ja
Energielabel B
Afgewerkte badkamer Ja
Gesloten urbanisatie Ja

Meer info?


Beschikbare documenten

villa 3-2 grondplan.jpeg

document-villa 3-2 grondplan.jpeg

download

Ontdek wat we nog meer voor jou in petto hebben!

1ste-lijn zeezicht appartement met balkon- model K
1ste-lijn zeezicht appartement met balkon- model K

Project: Adembenemend 1é lijn zeezicht en luxe appartement

Stad: La Manga del Mar Menor

1   1   51 m²   4.3 m²  

Unieke herverkoop villa in Las Casicas
Unieke herverkoop villa in Las Casicas

Project: Unieke herverkoop villa in Las Casicas

Stad: Fortuna

5   5     280 m²   65 m²  

Penthouse in residentie Volanta
Penthouse in residentie Volanta

Project: Residentie Volanta in Alicante

Stad: Alicante

2   2     71 m²   5 m²  

Gelijkvloerse villa met zwembad in Altaona Golf
Gelijkvloerse villa met zwembad in Altaona Golf

Project: Residentie Oasis Altaona in Altaona Golf

Stad: Banos y Mendigo-Murcia

3   2     153 m²   31 m²  

1ste-lijn zeezicht appartement met balkon- model M
1ste-lijn zeezicht appartement met balkon- model M

Project: Adembenemend 1é lijn zeezicht en luxe appartement

Stad: La Manga del Mar Menor

2   2   96 m²   7.7 m²  

1ste-lijn zeezicht appartement met balkon- model L
1ste-lijn zeezicht appartement met balkon- model L

Project: Adembenemend 1é lijn zeezicht en luxe appartement

Stad: La Manga del Mar Menor

2   2   98 m²   9.55 m²  

Gelijkvloerse villa in residentie Samar Villas
Gelijkvloerse villa in residentie Samar Villas

Project: Residentie Samar Villas in Orihuela Costa

Stad: Orihuela Costa-Alicante

3   2     113 m²   20 m²  

Penthouse met solarium in Navale residentie
Penthouse met solarium in Navale residentie

Project: Navale Residencial, Guardamar del Segura

Stad: Guardamar- Alicante

2   2     95.5 m²    

1ste-lijn zeezicht appartement met balkon- model N
1ste-lijn zeezicht appartement met balkon- model N

Project: Adembenemend 1é lijn zeezicht en luxe appartement

Stad: La Manga del Mar Menor

3   2   114 m²   7.35 m²  

1ste-lijn zeezicht appartement met balkon- model J
1ste-lijn zeezicht appartement met balkon- model J

Project: Adembenemend 1é lijn zeezicht en luxe appartement

Stad: La Manga del Mar Menor

2   2   112 m²   10.55 m²  

Villa Leros Plus in La Finca Golf
Villa Leros Plus in La Finca Golf

Project: Residentie Mar Egeo II - R.19

Stad: Algorfa

3   2     232 m²   60 m²  

Luxe villa op golfdomein La Finca Golf
Luxe villa op golfdomein La Finca Golf

Project: Villas Liege op La Finca Golf in Algorfa

Stad: Algorfa

3   2     118 m²   46 m²  

Lees mee met onze nieuwste blogs!

Ontdek de golfresorts in Costa Blanca Noord
Ontdek de golfresorts in Costa Blanca Noord

Golfresorts in Costa Blanca Noord

Wonen in luxe en genieten van topgolf

De Costa Blanca Noord is een droombestemming voor golfliefhebbers.

Met zonovergoten fairways, panoramische uitzichten en exclusieve woonmogelijkheden biedt deze regio de perfecte balans tussen ontspanning...

Martine

Bezienswaardigheden Alicante
Bezienswaardigheden Alicante

Alicante is een stad vol zon, geschiedenis en verborgen plekjes. In deze gids ontdek jij de mooiste bezienswaardigheden die jouw bezoek onvergetelijk maken.

...

Martine

Ziekteverzekering in Spanje goed geregeld
Ziekteverzekering in Spanje goed geregeld

Wie naar Spanje verhuist, denkt vaak eerst aan zon, wonen en werk. Maar minstens zo belangrijk is een goede ziekteverzekering. Het Spaanse zorgsysteem verschilt namelijk sterk van dat in België en Nederland. In deze blog leggen we helder uit hoe d...

Juliette

square-box