Appartement met terras in residentie Aneas

 Project: Residentie Aneas in Corvera Hills Golf

Luxe woningen op prestigieus golfdomein nabij luchthaven

Korte beschrijving:

APPARTEMENT - 3 SLAAPKAMERS - RUIM TERRAS - GOLFRESORT - CORVERA

Ontdek dit appartement met 3 slaapkamers en 2 badkamers, gelegen in het rustige Corvera Hills Golf. Bij het betreden van de woning kom je terecht in een inkomhal met praktische inbouwkasten. De leefruimte met open keuken vormt het hart van het appartement en biedt via grote schuiframen directe toegang tot het ruime terras van 27m², waar je volop kan genieten van het buitenleven.

De woning beschikt over drie comfortabele slaapkamers met ingebouwde kasten, waarvan één met een badkamer-ensuite. Beide badkamers zijn modern afgewerkt en voorzien van alle comfort. De indeling is praktisch en doordacht, waardoor je hier zowel permanent als recreatief aangenaam kan verblijven. Daarnaast geniet je van een gemeenschappelijk zwembad met ruime ligweide, een eigen parkeerplaats en een ondergrondse berging.

Dit appartement is gelegen in Corvera Hills, een rustig en groen golfdomein in de regio Murcia. Hier woon je in een ontspannen, residentiële omgeving met open zichten en veel privacy, terwijl steden zoals Murcia en de stranden van de Mar Menor vlot bereikbaar zijn. Een ideale locatie voor wie rust, natuur en bereikbaarheid wil combineren.

U bent nog niet aangemeld!

Na invullen van onderstaande gegevens wordt u aangemeld, indien er nog geen account bestaat kan deze aangemaakt worden!



 Geef ons uw mening...

 Momenteel nog geen reviews voor dit pand.

Uitgebreide beschrijving:

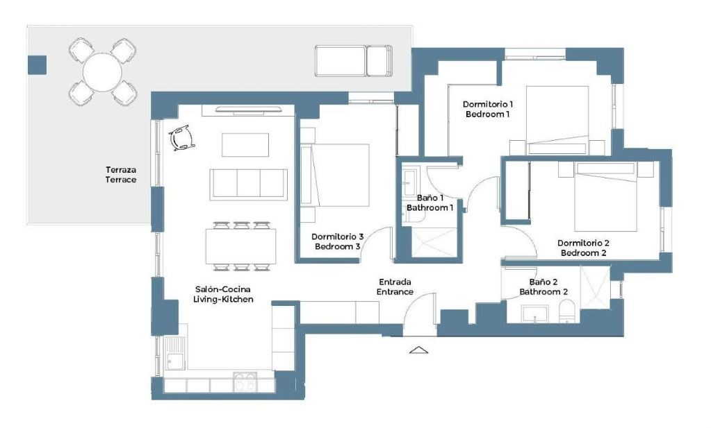
Dit appartement is gelegen op een tussenverdieping en voorzien van 3 slaapkamers met 2 badkamers. Het appartement is gelegen op het golfdomein Corvera Hills Golf, een golfdomein dat vertoeft in alle rust met toch de nabijheid van de luchthaven. We nemen even een literaire wandeling doorheen de woning, zodat je mee bent met de indeling. 

Bij het betreden van de woning kom je terecht in de centrale inkomhal, met inbouwkasten. Deze inbouwkasten zijn ideaal voor schoenen of jassen in op te bergen. Aan de linkerkant van de inkomhal, is het slaapgedeelte gelegen. Daar zijn 3 slaapkamers te vinden, 1 hoofdslaapkamer met een badkamer-ensuite. Elke badkamer is uitgerust met een wastafel, bijpassend meubel, toilet, douche, ... 

De slaapkamers zijn op zich dan weer voorzien van ruime inbouwkasten met hangrekken, lades en legplanken. 

Aan de rechterkant van de inkomhal, vindt je de centrale leefruimte. Deze leefruimte beschikt over een woonkamer met open keuken. De keuken heeft een L-vorm en is voorzien van alle nodige toestellen zoals een kookplaat, magnetron, dampkap, ... 

Vanuit de woonkamer heb je toegang via grote schuiframen tot het aanliggend terras. Het terras heeft een oppervlakte van 27m², een heerlijke ruimte waar je gezellig kan vertoeven terwijl je geniet van de Spaanse zon. 

DUS CONCREET: 

  • 3 slaapkamers
  • 2 badkamers
  • Inkomhal met inbouwkasten 
  • Keuken met toestellen 
  • Woonkamer
  • Ruim terras van 27m²

Deze woning is gelegen in residentie Aneas, het nieuwste wooncomplex op Corvera Hills Golf. Deze residentie is voorzien van een gemeenschappelijk zwembad van maar liefst 150m². Rondom het zwembad is er een ruime ligweide gelegen, ideaal om heerlijk te ontspannen. 

De appartementen zijn verdeeld over 3 gebouwen, met in totaal 56 appartementen. De gebouwen zijn hoger gelegen, zodat elk appartement geniet van een vrij uitzicht over de omgeving. Elk appartement heeft een bovengrondse parkeerplaats én een ondergrondse berging. 

TECHNISCHE KENMERKEN: 

  • Elektrische rolluiken 
  • Beveiligde voordeuren 
  • Aerothermisch systeem voor sanitair warm water

Deze woning is gelegen in Corvera. Corvera, en meer specifiek het golfdomein Corvera Hills, is een rustige en groene woonomgeving in de regio Murcia waar natuur, comfort en privacy samenkomen. Het domein ligt aan de voet van een heuvelachtig landschap en wordt gekenmerkt door open zichten, lage bebouwing en een aangename, rustige sfeer. Hier woon je in een afgesloten en verzorgd geheel, omringd door groen en ver weg van drukte, maar toch strategisch gelegen nabij stad en kust.

Corvera Hills is ontworpen als een residentieel resort met focus op rust en ruimte. De aanwezigheid van een golfomgeving zorgt voor een open en verzorgde uitstraling, met brede lanen en veel groen rondom de woningen. Het domein heeft een licht verhoogde ligging, waardoor je geniet van mooie zichten over het omliggende landschap. De sfeer is internationaal maar rustig, ideaal voor wie een ontspannen leefomgeving zoekt met een zekere mate van privacy.

De ligging is een grote troef. Je bevindt je op korte afstand van Murcia stad, waar je terechtkunt voor winkels, gastronomie en cultuur. Ook de stranden van de Mar Menor en de Middellandse Zee zijn vlot bereikbaar. Daarnaast liggen verschillende golfresorts in de directe omgeving, wat de regio aantrekkelijk maakt voor liefhebbers van golf en buitenleven. De nabijheid van de luchthaven zorgt bovendien voor extra praktisch comfort.

Wat veel mensen niet weten, is dat Corvera Hills profiteert van een bijzonder open en natuurlijke omgeving, wat zorgt voor een aangenaam microklimaat en veel licht. De lucht is hier helder en de nachten zijn opvallend rustig, met weinig lichtvervuiling. Vooral bij zonsopgang en zonsondergang ontstaat er een serene sfeer over het domein.

Daarnaast heeft het domein een discreet en residentieel karakter dat het hele jaar door behouden blijft. In tegenstelling tot sommige drukkere resorts blijft het hier stil en overzichtelijk, wat bijdraagt aan een constante kwaliteit van leven. De combinatie van natuur, bereikbaarheid en rust maakt Corvera Hills tot een bijzonder evenwichtige locatie.

AFSTANDEN: 

  • Corvera Hills golfdomein: op locatie
  • Centrum Corvera: ±2 km
  • Restaurants & cafés: ±2 km
  • Supermarkt: ±2,5 km
  • Golfbanen in de regio: ±5–10 km
  • Murcia stad: ±20 km
  • Cartagena: ±30 km
  • Stranden Mar Menor: ±25 km
  • Ziekenhuis: ±15 km
  • Luchthaven Murcia (Corvera): ±5 km
  • Luchthaven Alicante: ±80 km

Onze visie binnen Casas Kimpencio;

  • Bij Casas Kimpencio ben je niet zomaar iemand, wij willen een persoonlijke relatie aangaan.
  • We behandelen jullie zoals we zelf behandeld willen worden, met de nodige betrokkenheid, precisie en details.
  • Geen enkele vraag is ons te veel, we staan elke dag telefonisch voor jou klaar.
  • Wij hebben de gedachte dat een huis kopen niet zomaar een huis kopen is, maar een nieuwe thuis kopen.
  • Iedereen dient een eigen verhaal te krijgen, met verschillende hoofdstukken. 
  • Wij willen helpen aan het Spaanse hoofdstuk, een hoofdstuk van een nieuwe thuis, vakantiewoning of een investering.
  • En dit doen we met open, duidelijke communicatie  en daarmee geraken we er altijd, zo vinden we jouw ideale woning gebaseerd op meerdere gesprekken.
  • We helpen vanaf het begin tot aan de sleuteloverdracht, en ver daarbuiten. 

Wij vinden deze woning bijzonder omdat

  • Appartement in een rustig golfresort, wonen in alle sereniteit met open zichten op de groene omgeving
  • Ruime leefruimte met open keuken en toestellen, een praktische en aangename indeling voor dagelijks comfort
  • Terras van 27 m² aansluitend aan de woonkamer, ideaal om buiten te leven onder de Spaanse zon
  • Drie slaapkamers met ingebouwde kasten, waarvan één met en-suite badkamer voor extra privacy
  • Twee volledig afgewerkte badkamers, voorzien van alle comfort en moderne afwerking
  • Inkomhal met extra inbouwkasten, handig voor jassen, schoenen en extra opslag
  • Residentie Aneas met groot gemeenschappelijk zwembad van 150 m², omringd door een ruime ligweide
  • Verhoogde ligging van de gebouwen, waardoor elk appartement geniet van vrij en open uitzicht
  • Inclusief parkeerplaats en ondergrondse berging, praktisch en comfortabel wonen
  • Rustige ligging op Corvera Hills Golf, met natuur, privacy en open ruimte als grootste troeven
  • Vlotte verbinding naar Murcia stad, stranden en luchthaven, waardoor bereikbaarheid optimaal blijft
  • Moderne technieken zoals aerothermie en elektrische rolluiken, energiezuinig en toekomstgericht

WONINGEN IN RESIDENTIE ANEAS:

Type woning Aantal slaapkamers / badkamers Bebouwde oppervlakte Buitenruimte in m² Prijs 
Gelijkvloers appartement  2/2 82m² 36m² €275.000
Gelijkvloers appartement  3/2  103m² 124m² €320.000
Appartement met terras 2/2  83m² 19m² €229.000
Appartement met terras 3/2 103m² 27m² €285.000
Penthouse 2/2  73m² 67m² €299.000
Penthouse 3/2 91m² 83m² €350.000
Halfvrijstaande woning  3/3 117m² 115m² + 249m² €369.000

GROEI EN TRENDS IN CORVERA: 

Jaar Prijs per m² Jaarlijkse stijging 
2023 €1.250 -
2024 €1.380 +10.4%
2025 €1.520 +10.1%

Kenmerken:

Kenmerken van Appartement met terras in residentie Aneas
Aantal slaapkamers 3
Aantal badkamers 2
Gedeeld zwembad Ja
Terras Ja
Bebouwde oppervlakte 103 m²
Bewoonbare oppervlakte 80 m²
Terras oppervlakte 27 m²
Douche schermen Ja
Afstand naar het strand 51 km
Pré installatie airco Ja
Elektrische rolluiken Ja
Led verlichting buiten Ja
Led verlichting binnen Ja
privé parkeerplaats Ja
Telefoon Data aansluiting Ja
Videofonie Ja
Inbouwkasten Ja
Aero thermische warmtepomp Ja
Poort Ja
Badkamer spiegels Ja
Alle keuken apparatuur volledig inbegrepen Ja
Kookplaat Dampkap Magnetron & Oven Ja
Berging Ja
Uitzicht tuin Ja
Op golfterrein Ja
Ziekenhuis afstand in km 20-30 km
Luchthaven Murcia afstand 10-20 km
Gedeelde kosten Ja
Lift Ja
Ontspanning ruimte buiten Ja
Hangend toilet Ja
Hangend badkamer meubel Ja
Uitzicht op het zwembad Ja
Dampkap Ja
Gepantserde toegangsdeur met veiligheidsslot Ja
Hoogwaardige afwerking Ja
Goede prijs-kwaliteit verhouding Ja
Aerothermische boiler Ja
Energielabel B
Afgewerkte badkamer Ja
Gesloten urbanisatie Ja

Meer info?


Beschikbare documenten

tussen 3-2.jpeg

Document bij Appartement met terras in residentie Aneas

download

Ontdek wat we nog meer voor jou in petto hebben!

Foto van Studio met verhuurlicentie in Finestrat
Studio met verhuurlicentie in Finestrat

Project: Appartement met verhuurlicentie Costa Blanca

Stad: Finestrat-Benidorm

0   1     36 m²   1 m²  

Foto van Condado De Alhama- Mirador penthouse
Condado De Alhama- Mirador penthouse

Project: Condado De Alhama- Mirador del Condado-appartement

Stad: Alhama de Murcia

2   2     67 m²   47 m²  

Foto van Tussen-appartement Haciendo del Álamo
Tussen-appartement Haciendo del Álamo

Project: Appartementen in Hacienda del Álamo Golf Resort

Stad: Hacienda del Álamo Golf Resort-Roldan

2   2   88 m²   20 m²  

Foto van Appartement Calistoga - gelegen op golfresort
Appartement Calistoga - gelegen op golfresort

Project: Coming soon Appartementen op Golfresort Desert

Stad: Cuevas Del Almanzora

2   2   71 m²   17 m²  

Foto van Vista Golf Algorfa-Los Lagos -La Finca Golf
Vista Golf Algorfa-Los Lagos -La Finca Golf

Project: Vista Golf Algorfa-Los Lagos -La Finca Golf

Stad: Algorfa

3   2     168 m²   74 m²  

Foto van Altaona Golf And Country Village
Altaona Golf And Country Village

Project: Altaona Village Townhouses

Stad: Banos y Mendigo-Murcia

2   2     76 m²   91 m²  

Foto van Penthouse Hacienda del Álamo
Penthouse Hacienda del Álamo

Project: Appartementen in Hacienda del Álamo Golf Resort

Stad: Hacienda del Álamo Golf Resort-Roldan

2   2   81 m²    

Foto van Azure IV - Lo Romero Golf - Appartement
Azure IV - Lo Romero Golf - Appartement

Project: Azure IV - Lo Romero Golf - Appartement

Stad: Pilar de la Horadada - Alicante

2   2   83 m²   75 m²  

Foto van Los Lagos: bungalow met tuin in La Finca Golf
Los Lagos: bungalow met tuin in La Finca Golf

Project: Los Lagos R12 -La Finca Golf

Stad: Algorfa

2   2     69 m²   14 m²  

Foto van NOSTRUM LIVING - Penthouse 2 slaapkamers
NOSTRUM LIVING - Penthouse 2 slaapkamers

Project: NOSTRUM LIVING - Moderne bungalows Alhama Golf

Stad: Alhama de Murcia

2   2   74 m²   25 m²  

Foto van Moderne woningen met uitzicht op golfbaan en zee
Moderne woningen met uitzicht op golfbaan en zee

Project: Luxe appartementen – La Serena Breeze

Stad: Los Alcazares - Murcia - Mar Menor

2   2     76 m²   15 m²  

Foto van Santa Rosalia Lake & Life Resort - Encina 57
Santa Rosalia Lake & Life Resort - Encina 57

Project: Santa Rosalia Lake & Life Resort - Encina 57

Stad: Santa Rosalia

2   2   178 m²   100 m²  

Lees mee met onze nieuwste blogs!

Afbeelding bij Besparen én genieten op de Costa Blanca
Besparen én genieten op de Costa Blanca

Carrefour Spanje lanceert de ‘Tarjeta 65+’, waarmee 65-plussers geen btw meer betalen op verse producten.

Dit initiatief helpt senioren tot €200 per jaar besparen. Ideaal voor wie op de Costa Blanca wil genieten van een betaalbaar, zonnig leven vol levenskwaliteit. O...

Martine

Afbeelding bij Wandel langs glazen uitzichtpunten in Relleu
Wandel langs glazen uitzichtpunten in Relleu

De adembenemende pasarela wandelroute bij het stuwmeer van Relleu, in de provincie Alicante, heeft een spectaculaire upgrade gekregen! Met een glazen uitzichtpunt dat zweeft boven de kloof van de rivier Amadorio en een uitbreiding van 20 meter, biedt deze route nu een nog indrukwekkender erv...

Martine

Afbeelding bij Zorgeloos kopen in Spanje met Casas Kimpencio
Zorgeloos kopen in Spanje met Casas Kimpencio

Een droomhuis onder de zon aan de Costa Blanca is een veelvoorkomend verlangen. 

Er zijn veel mogelijkheden om een tweede huis te vinden in deze regio, of het nu gaat om een appartement aan zee, een villa in het binnenland of een nieuwbouwproject.

 De Costa Blanca staat beke...

Martine