Home Lopende projecten Alle Panden Over ons Ons team Ons kantoor Onze werkwijze Contacteer ons Blog Cookies

Appartement met terras in residentie Talan 2

 Project: Residentie Talan 2 in Torrevieja

Nieuwbouwappartement in Torrevieja, slechts 600m van de zee

Korte beschrijving:

APPARTEMENT OP TUSSENVERDIEPING – PATIO & BALKON – DAKTERRAS MET VERWARMD ZWEMBAD

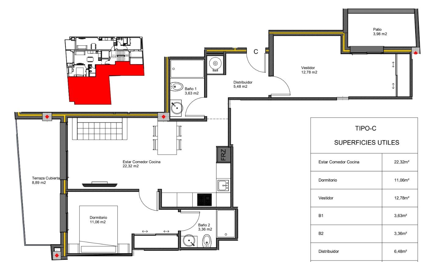
Dit appartement op een tussenverdieping beschikt over twee slaapkamers en twee badkamers en is praktisch ingedeeld. De open leefruimte met keuken vormt het hart van de woning en sluit rechtstreeks aan op een balkon van 9 m². De keuken is uitgerust met elektrische toestellen en staat in directe verbinding met de eet- en woonkamer, wat zorgt voor een open en lichtrijk geheel.

De slaapkamers genieten van natuurlijk licht dankzij het terras en de patio en is voorzien van ingebouwde kasten met hangrekken en legplanken. De badkamer is volledig afgewerkt en uitgerust met douche, wastafelmeubel, toilet en vloerverwarming. Op het balkon bevindt zich een discrete berging waarin de aerothermische boiler is ondergebracht, wat bijdraagt aan een nette en functionele indeling.

De residentie onderscheidt zich door het gemeenschappelijke dakterras met verwarmd zwembad van 20 m², ligweide en extra faciliteiten zoals een Finse sauna, barbecue en buitendouche. Deze voorzieningen geven het geheel een uitgesproken meerwaarde en zorgen voor ontspanning het hele jaar door. In combinatie met de moderne technische uitrusting is dit appartement bijzonder geschikt als vaste woonst, tweede verblijf of investering.

U bent nog niet aangemeld!

Na invullen van onderstaande gegevens wordt u aangemeld, indien er nog geen account bestaat kan deze aangemaakt worden!



 Geef ons uw mening...

 Momenteel nog geen reviews voor dit pand.

Uitgebreide beschrijving:

Deze woning is gelegen op een tussenverdieping en is voorzien van een 2 slaapkamers met 2 badkamers. Bij het betreden van de woning kom je terecht in de inkomhal die uitmondt in de woonkamer of in de tweede slaapkamer. 

Er is een open keuken voorzien met elektrische toestellen. De open keuken staat in verbinding met de eet-en leefruimte. Aansluitend aan de woonkamer is er een balkon gelegen van 9m². Op het terras is er een berging gelegen met aeorthermische boiler. 

Verder is er in het appartement 2 slaapkamers voorzien met 2 badkamers. De ene slaapkamer is gelegen nabij de woonkamer en heeft toegang tot het algemene terras van 9m². De andere slaapkamer is het andere deel van het appartement gelegen met toegang tot de patio. 

De hoofdslaapkamer heeft een badkamer-ensuite, de tweede slaapkamer heeft ook een eigen badkamer maar geen ensuite. Elke badkamer is uitgerust met een wastafel, bijpassend meubel, douche, vloerverwarming en toilet. 

DUS CONCREET: 

  • 2 slaapkamers
  • 2 badkamers
  • Open leefruimte
  • Open keuken met toestellen 
  • Balkon van 9m²
  • Patio 
  • Inbouwkasten

Deze woning is gelegen in residentie Talan 2. Deze residentie heeft een gemeenschappelijk dakterras met zwembad van 20m² op, waar je heerlijk kan ontspannen en genieten van zeezicht! Het zwembad is verwarmd en rondom het zwembad is er een ligweide. Verder is er op het dakterras ook nog een Finse sauna, barbecue en buitendouche. 

TECHNISCHE KENMERKEN: 

  • Dubbele beglazing 
  • Elektrische rolluiken 
  • Beveiligde balkonrailing 
  • Beveiligde voordeur
  • Pré-installatie wasmachine 
  • Pré-installatie airconditioning 
  • Videocom
  • Sanitair warm water via hernieuwbare energie
  • Vloerverwarming in de badkamers

Deze woning is gelegen in Torrevieja. Torrevieja, en meer specifiek de omgeving op 600 meter van Playa del Cura, is een levendige en centrale locatie waar het mediterrane stadsleven en de zee perfect samenkomen. Playa del Cura is een van de bekendste stranden van de stad, geliefd om zijn fijne zand, verzorgde promenade en directe verbinding met het centrum. Op deze afstand ligt alles op wandelafstand, waardoor het dagelijkse leven zich moeiteloos afspeelt tussen strand, winkels en terrassen.

De omgeving rond Playa del Cura staat bekend om haar dynamische maar toegankelijke sfeer. Je vindt er restaurants, cafés, supermarkten en lokale winkels die het hele jaar door geopend zijn. De boulevard vormt een natuurlijke ontmoetingsplek, terwijl de nabijgelegen straten een meer residentieel karakter behouden. Deze combinatie maakt de wijk aantrekkelijk voor wie centraal wil verblijven zonder volledig in de drukte te zitten.

Torrevieja zelf biedt alle voordelen van een volwaardige kuststad. Naast meerdere stranden beschikt de stad over een jachthaven, culturele evenementen, markten en uitgebreide voorzieningen. De zoutmeren in de directe omgeving zorgen voor een gezond microklimaat en bieden rust en natuur op korte afstand. Dankzij het milde klimaat blijft Torrevieja ook buiten het hoogseizoen levendig en aangenaam.

Wat veel mensen niet weten, is dat de wijk rond Playa del Cura een van de meest praktische zones van de stad is om zonder auto te leven. Alles ligt op wandelafstand, en openbaar vervoer is goed georganiseerd. Vooral in de vroege ochtend, wanneer de stad langzaam ontwaakt en het strand nog rustig is, toont deze omgeving haar meest aangename kant.

Daarnaast biedt deze zone een mooie balans tussen levendigheid en dagelijks comfort. Avonden brengen een zachte drukte van wandelende mensen, verlichte terrassen en het geluid van de zee, zonder het massale gevoel van grotere resorts. Het is precies deze mix die Playa del Cura en haar omgeving zo geliefd maakt.

AFSTANDEN: 

  • Strand: ±600 m

  • Promenade & boulevard: ±800 m

  • Restaurants & bars: ±200 m

  • Supermarkt: ±250 m

  • Centrum Torrevieja: ±1 km

  • Jachthaven Torrevieja: ±1,5 km

  • Winkelcentrum Habaneras: ±2 km

  • Zoutmeren Torrevieja & La Mata: ±3 km

  • Golfbanen: ±10–12 km

  • Ziekenhuis Torrevieja: ±4 km

  • Luchthaven Alicante: ±40 km

  • Luchthaven Murcia: ±65 km

Onze visie binnen Casas Kimpencio;

  • Bij Casas Kimpencio ben je niet zomaar iemand, wij willen een persoonlijke relatie aangaan.
  • We behandelen jullie zoals we zelf behandeld willen worden, met de nodige betrokkenheid, precisie en details.
  • Geen enkele vraag is ons te veel, we staan elke dag telefonisch voor jou klaar.
  • Wij hebben de gedachte dat een huis kopen niet zomaar een huis kopen is, maar een nieuwe thuis kopen.
  • Iedereen dient een eigen verhaal te krijgen, met verschillende hoofdstukken. 
  • Wij willen helpen aan het Spaanse hoofdstuk, een hoofdstuk van een nieuwe thuis, vakantiewoning of een investering.
  • En dit doen we met open, duidelijke communicatie  en daarmee geraken we er altijd, zo vinden we jouw ideale woning gebaseerd op meerdere gesprekken.
  • We helpen vanaf het begin tot aan de sleuteloverdracht, en ver daarbuiten. 

Wij vinden deze woning bijzonder omdat

  • Open leefruimte met geïntegreerd verbinding tot het terras, waardoor de ruimte flexibel en licht blijft

  • Open keuken met elektrische toestellen, rechtstreeks verbonden met de eet- en leefruimte

  • Aansluitend balkon van 9 m², perfect voor frisse lucht of een klein ontbijtmoment buiten

  • Berging op het terras met aerothermische boiler, praktisch en netjes weggewerkt

  • Volledig afgewerkte badkamer, voorzien van wastafel met meubel, douche, toilet én vloerverwarming

  • Residentie met gemeenschappelijk dakterras, uitgerust met verwarmd zwembad van 20 m² en ligweide

  • Extra voorzieningen op het dakterras, waaronder Finse sauna, barbecue en buitendouche – een echte meerwaarde

  • Technisch comfortabel afgewerkt, met dubbele beglazing, elektrische rolluiken, beveiligde voordeur en videocom

  • Pré-installaties voor wasmachine en airconditioning, zodat verdere personalisatie eenvoudig blijft

  • Centrale ligging in Torrevieja, op korte wandelafstand van strand, horeca en dagelijkse voorzieningen, ideaal om zonder auto te leven

WONINGEN IN RESIDENTIE TALAN 2: 

Type woning  Aantal slaapkamers / badkamers  Bebouwde oppervlakte  Terras in m² Prijs 
Gelijkvloerse studio  0/1 44m² 4m² €129.500
Appartement op tussenverdieping  1/1  57m² 8m² €185.000
Appartement op tussenverdieping  2/2 93m² 13m² €255.000
Penthouse  2/2 76m² 15m² €315.000

GROEI EN TRENDS IN TORREVIEJA: 

Jaar  Prijs per m² Jaarlijkse stijging 
2023 €2.097 -
2024 €2.335 +11.4%
2025 €2.591 +10.9%


Kenmerken:

Aantal slaapkamers 2
Aantal badkamers 2
Oppervlakte perceel rond het huis 0 m²
Bebouwde oppervlakte 93 m²
Bewoonbare oppervlakte 67 m²
Afstand naar het strand 0.4 km
Terras oppervlakte 9 m²
Gedeeld zwembad Ja
Nabij Scholen Ja
Nabij Commercieel centrum Ja
Nabij bushalte Ja
Terras Ja
Fietsafstand van het strand Ja
Vloerverwarming badkamer Ja
Douche schermen Ja
Solarium Gedeeld
Pré installatie airco Ja
Telefoon Data aansluiting Ja
Videofonie Ja
Inbouwkasten Ja
Aero thermische warmtepomp Ja
Poort Ja
Badkamer spiegels Ja
Alle keuken apparatuur volledig inbegrepen Ja
Buitenkeuken Ja
Barbecue Ja
Kookplaat Dampkap Magnetron & Oven Ja
Nabij kinder speeltuin Ja
Berging Ja
Golfresort afstand in km 10-15 km
Ziekenhuis afstand in km 5-10 km
Luchthaven Alicante afstand 40-50 km
Luchthaven Murcia afstand 50+ km
Gedeelde kosten Ja
Lift Ja
Ontspanning ruimte buiten Ja
Hangend toilet Ja
Hangend badkamer meubel Ja
Zonnepanelen Ja
Sauna Ja
Volledig ingerichte keuken Ja
Dampkap Ja
Gepantserde toegangsdeur met veiligheidsslot Ja
Goede prijs-kwaliteit verhouding Ja
Aerothermische boiler Ja
Goed gebied voor rentabiliteit van huur Ja
Wandelafstand van het strand Ja
Energielabel B
Afgewerkte badkamer Ja
Gesloten urbanisatie Ja

Meer info?


Beschikbare documenten

tussen 2-2.jpeg

document-tussen 2-2.jpeg

download

Ontdek wat we nog meer voor jou in petto hebben!

Studio met verhuurlicentie in Finestrat
Studio met verhuurlicentie in Finestrat

Project: Appartement met verhuurlicentie Costa Blanca

Stad: Finestrat-Benidorm

0   1     36 m²   1 m²  

Opbrengst-appartement in Aguilas
Opbrengst-appartement in Aguilas

Project: Investeren in appartementen vlak bij zee Águilas

Stad: Aguilas

2   1     61 m²   6 m²  

Studio met terras in res. Horizon Suites
Studio met terras in res. Horizon Suites

Project: Residentie Horizon Suites in San Pedro del Pinatar

Stad: San Pedro del Pinatar - Mar-Menor

1     44 m²   4 m²  

Penthouse Galena met 2 slaapkamers in Herrerias
Penthouse Galena met 2 slaapkamers in Herrerias

Project: Residentie Galena woningen met zwembad in Almería

Stad: Cuevas Del Almanzora

2   2     84 m²   32 m²  

Cabo Roig  Appartementen op een toplocatie!
Cabo Roig  Appartementen op een toplocatie!

Project: Gerenoveerd wooncomplex in Lomas de Cabo Roig

Stad: Orihuela Costa-Alicante

1   1     52 m²   46 m²  

Sun and Sea-Playa De Los Locos-Torrevieja
Sun and Sea-Playa De Los Locos-Torrevieja

Project: Sun and Sea-Playa De Los Locos-Torrevieja

Stad: Torrevieja-Alicante

1   1     55 m²   3 m²  

AN Home Appartement in Torrevieja
AN Home Appartement in Torrevieja

Project: AN Home appartementen vlakbij zee in Torrevieja

Stad: Torrevieja-Alicante

1   1     55 m²   8 m²  

Virazón-San Juan de los Terreros
Virazón-San Juan de los Terreros

Project: Virazón-San Juan de los Terreros

Stad: San Juan de los Terreros

2   1     72 m²   10 m²  

Penthouse (studio) in Torrevieja nabij zee
Penthouse (studio) in Torrevieja nabij zee

Project: Torrevieja: Nieuwbouw op 200m van zee, unieke kans

Stad: Torrevieja-Alicante

0   1   54 m²   12 m²  

Lofts Maestro - Alicante - Appartement
Lofts Maestro - Alicante - Appartement

Project: Lofts Maestro - Alicante

Stad: Alicante

1   1   66 m²   1 m²  

Loftstijl appartementen"Postiget" in Alicante
Loftstijl appartementen"Postiget" in Alicante

Project: Loftstijl appartementen"Postiget" in Alicante

Stad: Alicante

1   1     49 m²   2 m²  

Penthouse Riomar Healthy Living
Penthouse Riomar Healthy Living

Project: Assistentie appartementen Riomar Healthy Living

Stad: Torre De La Horadada

1   1   96 m²   44 m²  

Lees mee met onze nieuwste blogs!

10 redenen om nu een woning in Spanje te kopen!
10 redenen om nu een woning in Spanje te kopen!

Je droomt al langer van een leven onder de zon, met meer rust, warmte en vrijheid. In deze blog ontdek je waarom juist nú het moment is om die stap te zetten: de prijzen, het klimaat, de levensstijl, én de zekerheid die Spanje vandaag biedt.

...

Martine

Torrevieja: topkeuze voor Belgen en Nederlanders
Torrevieja: topkeuze voor Belgen en Nederlanders

Waarom zoveel Belgen en Nederlanders kiezen voor een woning in Torrevieja

De favoriete kustplaats aan de Costa Blanca Zuid

Torrevieja, gelegen aan de prachtige Costa Blanca, is al jarenlang een van de populairste bestemmingen voor Belgische en Nederlandse woningkopers. En dat is niet ...

Martine

Locatie sleutel tot geluk en waarde van je huis
Locatie sleutel tot geluk en waarde van je huis

Bij het kopen van een woning is locatie de sleutel tot geluk en waarde. Of je nu kiest voor een bruisende buurt, een rustige straat of een prachtig uitzicht, de juiste locatie maakt het verschil.

...

Martine

square-box
Tine
Vragen over panden, projecten en onze content
Snel starten:

Hallo, ik ben Tine je kan bij mij terecht met al je vragen over panden, projecten en onze content. Ik antwoord alleen op basis van de beschikbare website-inhoud.