Home Lopende projecten Alle Panden Over ons Ons team Ons kantoor Onze werkwijze Contacteer ons Blog Cookies

Appartement op tussenverdieping met terras

 Project: Residentie La Hoya in Torrevieja

Gloednieuwe residentie met veel voorzieningen in Torrevieja

Korte beschrijving:

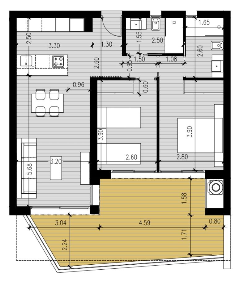
APPARTEMENT - 2 SLAAPKAMERS MET 2 BADKAMERS - TERRAS VAN 25M²

Deze woning is gelegen op een tussenverdieping en voorzien van 2 slaapkamers met 2 badkamers. Elke slaapkamer is voorzien van inbouwkasten. De badkamers en keuken komen volledig ingericht geleverd met de nodige toestellen. 

Er is aan jouw comfort gedacht, zo is er airconditioning voorzien, alsook elektrische rolluiken, dubbele beglazing, ... In de residentie zijn er heel wat gemeenschappelijke voorzieningen zoals een groot zwembad, kinderzwembad, petanquebaan, padelterrein, speeltuin, barbecueplaats, ... 

TIJDELIJKE PROMO! De eerste verkochte woningen worden geleverd met een compleet meubel- en verlichtingspakket! Grijp je kans en betrek jouw woning vanaf dag 1 volledig zorgeloos! 

U bent nog niet aangemeld!

Na invullen van onderstaande gegevens wordt u aangemeld, indien er nog geen account bestaat kan deze aangemaakt worden!



 Geef ons uw mening...

 Momenteel nog geen reviews voor dit pand.

Uitgebreide beschrijving:

Deze woning is gelegen op een tussenverdieping en voorzien van 2 slaapkamers met 2 badkamers. Bij binnenkomst van de woning kom je terecht in de ruime leefruimte met open keuken. De keuken is voorzien van onder- en bovenkasten, een werkblad en een gootsteen. De keuken is ook voorzien van alle nodige toestellen. 

De keuken en woonkamer kijken via grote schuiframen uit op het terras van 25m². Hier kan je optimaal ontspannen en genieten van de Spaanse zon. 

Er zijn 2 slaapkamers voorzien met elk een eigen badkamer. De hoofdslaapkamer heeft een badkamer-ensuite, de andere slaapkamer z'n badkamer ligt verder in de hal. Elke badkamer is uitgerust met een douche, toilet, wastafel met meubel en spiegel. 

Elke slaapkamer is voorzien van inbouwkasten met hangrekken, legplanken en lades. Hier kan je zorgeloos jouw spullen in op bergen en met een nette slaapkamer achterblijven! Bovendien hebben beide slaapkamers toegang tot het balkon. Dit verzekerd ook natuurlijke lichtinval! 

Elke woning heeft een ondergrondse parkeerplaats met berging. Met zijn mix van traditionele Spaanse charme en moderne voorzieningen is het een ideale plek om permanent te wonen, een vakantieverblijf of een slimme investeringsmogelijkheid. Contacteer ons snel! 

Dus concreet; 

  • 2 slaapkamers
  • 2 badkamers
  • Afgewerkte badkamers
  • Uitgeruste keuken
  • Ruime leefruimte 

In de residentie zijn er tal van gemeenschappelijke voorzieningen. Zo is groot gemeenschappelijk zwembad, kinderzwembad, petanquebaan, speeltuin, padelterrein, barbecue plek, ... Doorheen de gehele residentie zijn er natuurlijke tuinen aangelegd om jou volledig in het groene te laten ontspannen. 

Technische kenmerken; 

  • Dubbele beglazing
  • Elektrische rolluiken 
  • Veiligheidsdeur
  • Sanitair warm water via aerothermisch systeem
  • Volledige airconditioning 

Deze woning is gelegen in Torrevieja. Torrevieja, gelegen aan de zuidelijke Costa Blanca, is een van de bekendste kustplaatsen van de regio. De stad dankt haar populariteit aan de combinatie van lange zandstranden, levendige boulevards en een rijk aanbod aan voorzieningen. Met meer dan 300 zonnige dagen per jaar en een zacht mediterraan klimaat is het een plek waar het leven zich grotendeels buiten afspeelt. De stranden zijn voorzien van de Blauwe Vlag, wat staat voor schone en goed onderhouden kustlijnen met helder water en uitstekende faciliteiten.

Naast de kust is Torrevieja beroemd om haar zoutmeren, Las Salinas de Torrevieja y La Mata. Deze roze gekleurde lagunes vormen niet alleen een spectaculair natuurverschijnsel, maar creëren ook een gezond microklimaat dat bekendstaat om zijn gunstige effecten op luchtwegen en gewrichten. Rondom de meren lopen wandel- en fietspaden waar je flamingo’s en andere vogels kunt spotten, en in de zomer kleurt de lucht bij zonsondergang in warme tinten die het landschap een magische uitstraling geven.

Het centrum van Torrevieja biedt alles wat je van een middelgrote stad verwacht. Er zijn talloze winkels, restaurants, cafés en markten, evenals een bruisende haven waar vissersboten en jachten samenkomen. Cultureel valt er ook veel te beleven, met het jaarlijkse Habaneras-muziekfestival, lokale fiestas en openluchtconcerten die de stad een levendige sfeer geven. Bovendien zorgen sportfaciliteiten, gezondheidszorg en goede verbindingen met steden als Alicante en Murcia voor extra comfort. Torrevieja is daarmee een veelzijdige bestemming waar zon, natuur, cultuur en gemak hand in hand gaan.

Wat veel mensen niet weten, is dat Torrevieja naast de drukke stranden kleine, verborgen calas heeft die vooral bekend zijn bij de lokale bevolking. Deze rotsachtige inhammen liggen verscholen achter duinen of zijn alleen bereikbaar via smalle paadjes. Hier vind je geen ligbedden of drukke boulevards, maar wel helder water en een rustige sfeer. Het zijn ideale plekken om te snorkelen of gewoon in stilte van de zee te genieten, ver weg van de levendige stad.

Daarnaast heeft Torrevieja een sterke band met haar muzikale tradities. De stad is de bakermat van de Habaneras, melancholische zeemansliederen die ooit door vissers werden meegebracht uit Cuba. Hoewel het internationale Habaneras-festival veel bezoekers trekt, leeft deze traditie het hele jaar door voort. Kleine amateurkoren repeteren in buurthuizen en kerken, en soms hoor je ze spontaan zingen tijdens lokale bijeenkomsten. Het geeft de stad een culturele diepgang die je pas ontdekt als je verder kijkt dan zon en strand.

Onze visie binnen Casas Kimpencio;

  • Bij Casas Kimpencio ben je niet zomaar iemand, wij willen een persoonlijke relatie aangaan.
  • We behandelen jullie zoals we zelf behandeld willen worden, met de nodige betrokkenheid, precisie en details.
  • Geen enkele vraag is ons te veel, we staan elke dag telefonisch voor jou klaar.
  • Wij hebben de gedachte dat een huis kopen niet zomaar een huis kopen is, maar een nieuwe thuis kopen.
  • Iedereen dient een eigen verhaal te krijgen, met verschillende hoofdstukken. 
  • Wij willen helpen aan het Spaanse hoofdstuk, een hoofdstuk van een nieuwe thuis, vakantiewoning of een investering.
  • En dit doen we met open, duidelijke communicatie  en daarmee geraken we er altijd, zo vinden we jouw ideale woning gebaseerd op meerdere gesprekken.
  • We helpen vanaf het begin tot aan de sleuteloverdracht, en ver daarbuiten. 

Wij vinden deze woning bijzonder omdat; 

  • Ruime leefruimte met open keuken, volledig uitgerust met onder- en bovenkasten, werkblad, gootsteen en alle nodige toestellen

  • 2 slaapkamers, elk met eigen badkamer

  • Hoofdslaapkamer met badkamer-ensuite

  • Badkamers uitgerust met douche, wastafel met meubel, toilet en spiegel

  • Elke slaapkamer voorzien van inbouwkasten met hangrekken, legplanken en lades

  • Ondergrondse parkeerplaats met berging

  • Groot gemeenschappelijk zwembad, kinderzwembad, petanquebaan, speeltuin, padelterrein en barbecueplek

  • Natuurlijke tuinen doorheen de residentie

  • Dubbele beglazing, elektrische rolluiken en veiligheidsdeur

  • Volledige airconditioning en sanitair warm water via aerothermisch systeem

Woningen in La Hoya: 

Type woning  Aantal slaapkamers / badkamers Terras in m² Bebouwde oppervlakte  Prijs 
Gelijkvloers appartement  2/2 48m² 81m² €289.000
Appartement op tussenverdieping  2/2 25m² 77m² €274.000
Penthouse  2/2 101m² 77m² €295.000

Groei en trends in Torrevieja; 

Jaar  Prijs per m² Jaarlijkse stijging 
2023 €1.900 -
2024 €2.040 +7.4%
2025€2.180+6.9%


Kenmerken:

Aantal slaapkamers 2
Aantal badkamers 2
Oppervlakte perceel rond het huis 0 m²
Bebouwde oppervlakte 77 m²
Bewoonbare oppervlakte 60 m²
Afstand naar het strand 3.5 km
Terras oppervlakte 25 m²
Gedeeld zwembad Ja
Poort Ja
Volledig bemeubeld Ja
Nabij Scholen Ja
Nabij kinder speeltuin Ja
Nabij Commercieel centrum Ja
Nabij bushalte Ja
Terras Ja
Fietsafstand van het strand Ja
Douche schermen Ja
Volledige airco installatie Ja
Elektrische rolluiken Ja
Led verlichting buiten Ja
Led verlichting binnen Ja
privé parkeerplaats Ja
Ondergrondse parking Ja
Telefoon Data aansluiting Ja
Videofonie Ja
Inbouwkasten Ja
Elektrische poort Ja
Badkamer spiegels Ja
Alle keuken apparatuur volledig inbegrepen Ja
Barbecue Ja
Kookplaat Dampkap Magnetron & Oven Ja
Sportvelden Ja
Petanque Ja
Padel Terrein Ja
Berging Ja
Private Tuin Ja
Uitzicht tuin Ja
Golfresort afstand in km 10-15 km
Ziekenhuis afstand in km 5-10 km
Luchthaven Alicante afstand 50+ km
Gedeelde kosten Ja
Ontspanning ruimte buiten Ja
Ontspanning ruimte binnen Ja
Hangend toilet Ja
Hangend badkamer meubel Ja
Volledig ingerichte keuken Ja
Dampkap Ja
Gepantserde toegangsdeur met veiligheidsslot Ja
Hoogwaardige afwerking Ja
Goede prijs-kwaliteit verhouding Ja
Aerothermische boiler Ja
Meubelpakket Ja
Kijkwoning Ja
Goed gebied voor rentabiliteit van huur Ja
Wandelafstand van het strand Ja
Energielabel B
Afgewerkte badkamer Ja
Gesloten urbanisatie Ja

Meer info?


Beschikbare documenten

appartement.jpeg

document-appartement.jpeg

download

Ontdek wat we nog meer voor jou in petto hebben!

Appartement op tussenverdiep - Spa Valley II
Appartement op tussenverdiep - Spa Valley II

Project: Residentie Spa Valley - Fase 2

Stad: Archena

1   1   42 m²   12 m²  

Opbrengst-appartement in Aguilas
Opbrengst-appartement in Aguilas

Project: Investeren in appartementen vlak bij zee Águilas

Stad: Aguilas

2   1     61 m²   6 m²  

Vizconde-Alcantarilla-Murcia
Vizconde-Alcantarilla-Murcia

Project: Vizconde-Alcantarilla-Murcia

Stad: Alcantarilla-Murcia

3   2   105 m²   12 m²  

Collado Bajo Appartement met ruim terras
Collado Bajo Appartement met ruim terras

Project: Collado Bajo wooncomlex

Stad: Aguilas

2   2     60 m²   20 m²  

Appartement - Collado Bajo
Appartement - Collado Bajo

Project: Residentie Collado Bajo Aquillas

Stad: Aguilas

2   2     60 m²   29 m²  

Studio met terras in res. Horizon Suites
Studio met terras in res. Horizon Suites

Project: Residentie Horizon Suites in San Pedro del Pinatar

Stad: San Pedro del Pinatar - Mar-Menor

1     44 m²   4 m²  

Investeren in een nieuwbouw appartement Relleu
Investeren in een nieuwbouw appartement Relleu

Project: MIRADOR DE RELLEU

Stad: Relleu

1   1   72.07 m²   15.82 m²  

EDIFICIO SAN ISODRO 19 - 3 slaapkamers-appartement
EDIFICIO SAN ISODRO 19 - 3 slaapkamers-appartement

Project: EDIFICIO SAN ISODRO 19 - 2 moderne appartementen

Stad: Jacarilla

3   1   80 m²   6 m²  

Gerenoveerd penthouse met solarium  Collado Bajo
Gerenoveerd penthouse met solarium Collado Bajo

Project: Wooncomplex Collado Bajo

Stad: Aguilas

2   2   60 m²   56 m²  

AN Home Appartement in Torrevieja
AN Home Appartement in Torrevieja

Project: AN Home appartementen vlakbij zee in Torrevieja

Stad: Torrevieja-Alicante

1   1     55 m²   8 m²  

1-slaapkamer-appartement in residentie Halar
1-slaapkamer-appartement in residentie Halar

Project: Residentie Halar in Alicante

Stad: Alicante

1   1   49 m²   4 m²  

Duplex en Fortuna (murcia)
Duplex en Fortuna (murcia)

Project: Duplex en Fortuna (murcia)

Stad: Fortuna

3   2     164 m²   73 m²  

Lees mee met onze nieuwste blogs!

Torrevieja: topkeuze voor Belgen en Nederlanders
Torrevieja: topkeuze voor Belgen en Nederlanders

Waarom zoveel Belgen en Nederlanders kiezen voor een woning in Torrevieja

De favoriete kustplaats aan de Costa Blanca Zuid

Torrevieja, gelegen aan de prachtige Costa Blanca, is al jarenlang een van de populairste bestemmingen voor Belgische en Nederlandse woningkopers. En dat is niet ...

Martine

Wonen in Spanje? Dit zijn de belastingen
Wonen in Spanje? Dit zijn de belastingen

Ontdek alle belastingen bij het kopen, bezitten en verkopen van een woning in Spanje. Helder uitgelegd, met praktische voorbeelden voor de Costa Blanca, Costa Cálida en Costa Almería.


...

Martine

Recordaantal toeristen bezoekt Spanje
Recordaantal toeristen bezoekt Spanje

In januari 2025 ontving Spanje meer dan 4.7 miljoen toeristen, een opvallende groei die vooral gedragen werd door Belgen en Nederlanders. Hiermee bevestigt Spanje opnieuw zijn positie als favoriete winterbestemming.

...

Martine

square-box
Tine
Vragen over panden, projecten en onze content
Snel starten:

Hallo, ik ben Tine je kan bij mij terecht met al je vragen over panden, projecten en onze content. Ik antwoord alleen op basis van de beschikbare website-inhoud.