Bungalow op de onderste verdieping in Torrevieja
Project: Residentie Nature views 2
Nieuwe fase van Nature Views nabij zoutmeren!
Korte beschrijving:
BUNGALOW – 3 SLAAPKAMERS – 3 BADKAMERS – TERRAS – GEMEENSCHAPPELIJK ZWEMBAD
Deze moderne bungalow in Torrevieja is verdeeld over twee verdiepingen en biedt drie ruime slaapkamers met elk een eigen badkamer. De onderbouw is slim ingericht met twee slaapkamers, een wasruimte en een patio die zorgt voor veel natuurlijk licht, terwijl de begane grond een lichtrijke leefruimte met open keuken en hoofdslaapkamer met badkamer-ensuite biedt.
De woning beschikt over een ruim terras van 28m² en maakt deel uit van een residentie met uitstekende gemeenschappelijke voorzieningen, waaronder een zwembad, kinderzwembad, fitnessruimte en groene zones. Dankzij de moderne afwerking, het hoge comfortniveau en de ligging nabij zee is dit een ideale plek voor wie op zoek is naar ontspanning en kwaliteit aan de Costa Blanca.
U bent nog niet aangemeld!
 Geef ons uw mening...
Vanaf: €330.000
Ref: KIMP-PROP-4176
Uitgebreide beschrijving:
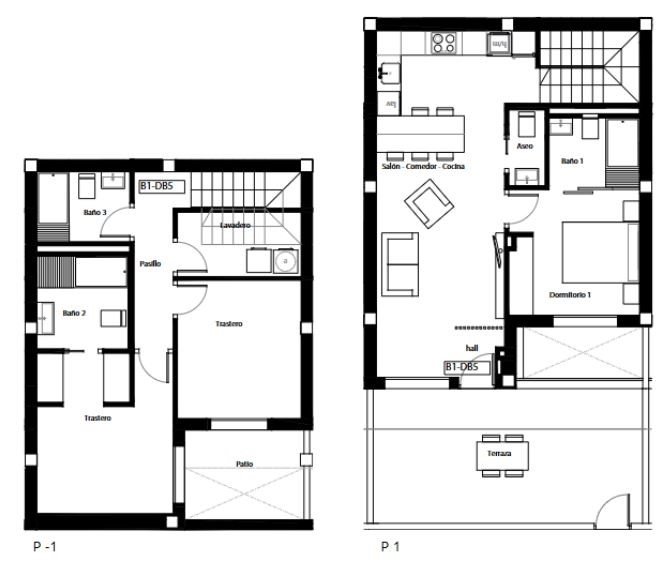
Deze woning is gelegen op de gelijkvloerse verdieping en is voorzien van 2 verdiepingen. De bungalow heeft maar liefst 3 ruime slaapkamers met elk een eigen badkamer. Op de onderste verdieping van de bungalow, de onderbouw zijn er heel wat ruimtes gelegen.
In de onderbouw zijn de eerste 2 slaapkamers met elk een eigen badkamer te vinden. 1 van deze slaapkamers heeft een badkamer-ensuite én inloopdressing. Beide slaapkamers hebben een overvloed aan natuurlijk licht, dankzij de patio die grenst aan beide slaapkamers. Hierdoor voelt de onderbouw niet aan als een onderbouw, maar als een volwaardige extra verdieping in jouw bungalow.
Elke badkamer is uitgerust met een wastafel en bijpassend meubel, toilet én afgewerkte douche. In de ondergrondse verdieping is er ook nog een ruime wasruimte te vinden, met aansluitingen voor wasmachine en droger. Bovendien krijg je zelfs een wasmachine erbij met een drogerfunctie. Via een binnentrap bereik je de gelijkvloerse verdieping.
Op de begane vloer is er een ruime leefruimte gelegen met open keuken. De keuken is uitgerust met een keramische kookplaat, dampkap, oven, microgolf, koelkast en diepvriezer én een vaatwasser. Kortom alles wat je nodig hebt om meteen zorgeloos in te trekken!
Verder is er nog de hoofdslaapkamer gelegen met badkamer-ensuite. Op de begane vloer is er nog een gastentoilet met wastafel gelegen. Elke woning heeft een eigen parkeerplaats.
Dus concreet;
- 3 slaapkamers
- 3 badkamers
- Gastentoilet
- Uitgeruste keuken
- Afgewerkte badkamers
- Onderbouw met Engelse patio
- Wasruimte met wasmachine en droger
De woning heeft een buitenruimte van maar liefst 28m². Aansluitend aan de woonkamer, gelegen op de gelijkvloerse verdieping, is er een ruim terras gelegen van maar liefst 28m². Hier kan je optimaal genieten van de Spaanse zon.
De woning is in een residentie gelegen. De residentie is voorzien van tal van gemeenschappelijke voorzieningen zoals; fietsenparking, groene landschappen met irrigatiesysteem, fitness, zwembad met kinderzwembad, WiFi, ... Tal van voordelen dus! Er is zelfs gedacht aan brievenbussen voor alle bewoners!
Technische kenmerken;
- Energielabel B
- Keramische tegels in de badkamers
- Veiligheidsdeur
- Elektrische rolluiken
- Dubbele beglazing
- Sanitair warm water via warmtepomp, boilet heeft een capaciteit van 110 liter
- Pré-installatie laadpunt voor elektrische wagen
- Alarmsysteem, optioneel met bediening via smartphone
- Volledige airconditioning én verwarming
- LED-verlichting binnen én buiten
Deze woning is gelegen in Torrevieja. Torrevieja, gelegen aan de zuidelijke Costa Blanca, is een levendige stad die zon, zee en cultuur op een natuurlijke manier samenbrengt. De kustlijn is hier veelzijdig: van brede zandstranden met alle voorzieningen tot kleine, intieme baaien waar je in alle rust kunt genieten van het zachte ruisen van de Middellandse Zee. Met een woning op slechts enkele meters van het strand ervaar je het echte mediterrane leven — de geur van zout in de lucht, het geluid van golven op de achtergrond en het gemak van een ochtendduik of een avondwandeling langs de zee.
De stad staat bekend om haar twee zoutmeren, Las Salinas de Torrevieja y La Mata, die de omgeving een uniek karakter geven. Deze roze gekleurde lagunes trekken flamingo’s en andere vogels aan en zorgen voor een microklimaat dat de lucht zuiver en gezond houdt. Rondom de meren liggen wandel- en fietspaden die uitnodigen om de natuur van dichtbij te beleven. De combinatie van zee, zoutmeren en zon maakt Torrevieja niet alleen mooi om te zien, maar ook bijzonder aangenaam om in te verblijven.
Het centrum van Torrevieja bruist van leven. De haven, de boulevard en de markten vormen het hart van de stad, waar lokale bewoners en bezoekers elkaar ontmoeten. Restaurants serveren dagverse vis, tapas en internationale gerechten, terwijl cafés en boetieks zorgen voor een levendige, maar ontspannen sfeer. Gedurende het jaar zijn er talloze culturele evenementen, waaronder het bekende Habaneras-festival, dat de maritieme geschiedenis van de stad in ere houdt.
Wat veel mensen niet weten, is dat Torrevieja nog steeds een sterke band heeft met haar visserijverleden. In de vroege ochtend keren de vissersboten terug naar de haven en wordt de vangst van de dag direct verkocht aan lokale restaurants. Het is een ritueel dat het authentieke karakter van de stad bewaart, ver weg van het toeristische beeld dat velen kennen.
Daarnaast liggen er rondom Torrevieja kleine, verborgen baaien die alleen bij de lokale bevolking bekend zijn. Deze rustige plekken met helder water zijn ideaal om te snorkelen of gewoon even te ontsnappen aan de drukte van de boulevard. Hier ervaar je de meer stille, pure kant van Torrevieja — een stad die, ondanks haar populariteit, nog steeds ruimte biedt voor rust, natuur en eenvoud aan zee.
Afstanden;
- Strand: 4km
- Luchthaven Alicante: 55km
- Luchthaven Murcia: 65km
- Golfbaan Villamartin: 9km
- Jachthaven Torrevieja: 5km
Onze visie binnen Casas Kimpencio;
- Bij Casas Kimpencio ben je niet zomaar iemand, wij willen een persoonlijke relatie aangaan.
- We behandelen jullie zoals we zelf behandeld willen worden, met de nodige betrokkenheid, precisie en details.
- Geen enkele vraag is ons te veel, we staan elke dag telefonisch voor jou klaar.
- Wij hebben de gedachte dat een huis kopen niet zomaar een huis kopen is, maar een nieuwe thuis kopen.
- Iedereen dient een eigen verhaal te krijgen, met verschillende hoofdstukken.
- Wij willen helpen aan het Spaanse hoofdstuk, een hoofdstuk van een nieuwe thuis, vakantiewoning of een investering.
- En dit doen we met open, duidelijke communicatie en daarmee geraken we er altijd, zo vinden we jouw ideale woning gebaseerd op meerdere gesprekken.
- We helpen vanaf het begin tot aan de sleuteloverdracht, en ver daarbuiten.
Wij vinden deze woning bijzonder omdat;
De ruime leefruimte met open keuken een moderne en lichtrijke sfeer creëert, volledig uitgerust met toestellen zodat je meteen zorgeloos kunt intrekken.
-
Elke slaapkamer heeft een eigen badkamer, volledig afgewerkt met douche, wastafel, meubel en toilet, wat zorgt voor extra comfort en privacy.
-
De hoofdslaapkamer beschikt over een inloopdressing met praktische indeling van lades, legplanken en hangrekken.
-
Er is een extra gastentoilet aanwezig, wat het wooncomfort vergroot.
-
Grote schuiframen zorgen voor overvloedig daglicht en een natuurlijke overgang tussen binnen- en buitenruimte.
-
De woning beschikt over een praktische wasruimte met wasmachine en droger, ideaal voor dagelijks gebruik.
-
De residentie biedt uitzonderlijke voorzieningen zoals een zwembad, fitnessruimte, kinderzwembad, fietsenstalling en groene zones.
-
De ligging in Torrevieja combineert zon, zee en stadse gezelligheid met natuur en ontspanning
Woningen in Nature Views 2;
Type woning | Aantal slaapkamers / badkamers | Terras in m² | Bebouwde oppervlakte | Prijs |
Bungalow op onderste verdieping | 3/3 | 28m² | 110m² | €330.000 |
Bungalow op bovenste verdieping | 2/2 | 94m² | 78m² | €310.000 |
Groei en trends in Torrevieja;
Jaar | Prijs per m² | Jaarlijkse stijging |
2023 | €1.633 | - |
2024 | €1.979 | +21.2% |
2025 | €2.079 | +5% |
Kenmerken:
Aantal slaapkamers | 3 | |
Aantal badkamers | 3 | |
Bebouwde oppervlakte | 110 m² | |
Bewoonbare oppervlakte | 90 m² | |
Afstand naar het strand | 4 km | |
Terras oppervlakte | 28 m² | |
Gedeeld zwembad | Ja | |
Poort | Ja | |
Nabij Scholen | Ja | |
Nabij Commercieel centrum | Ja | |
Nabij bushalte | Ja | |
Terras | Ja | |
Fietsafstand van het strand | Ja | |
Douche schermen | Ja | |
Volledige airco installatie | Ja | |
Elektrische rolluiken | Ja | |
Led verlichting buiten | Ja | |
Led verlichting binnen | Ja | |
privé parkeerplaats | Ja | |
Telefoon Data aansluiting | Ja | |
Videofonie | Ja | |
Inbouwkasten | Ja | |
Ingebouwde kasten met LED-licht | Ja | |
Pre installatie elektrisch laadpunt | Ja | |
Alle keuken apparatuur volledig inbegrepen | Ja | |
Kookplaat Dampkap Magnetron & Oven | Ja | |
Nabij kinder speeltuin | Ja | |
Berging | Ja | |
Kelder | Ja | |
Alarmsysteem | Ja | |
Golfresort afstand in km | 5-10 km | |
Ziekenhuis afstand in km | 0-5 km | |
Luchthaven Alicante afstand | 50+ km | |
Luchthaven Murcia afstand | 50+ km | |
Gedeelde kosten | Ja | |
Lift | Ja | |
Ontspanning ruimte buiten | Ja | |
Hangend toilet | Ja | |
Hangend badkamer meubel | Ja | |
Cameradeur met intercom terminal | Ja | |
Badkamer meubel en spiegels | Ja | |
Security 24/24 | Ja | |
Volledig ingerichte keuken | Ja | |
Dampkap | Ja | |
Gepantserde toegangsdeur met veiligheidsslot | Ja | |
Hoogwaardige afwerking | Ja | |
Goede prijs-kwaliteit verhouding | Ja | |
Aerothermische boiler | Ja | |
Gelijkvloers | Ja | |
Bungalow | Ja | |
Dressing | Ja | |
Aangelegde tuin met grind, gras en planten. | Ja | |
Kijkwoning | Ja | |
Goed gebied voor rentabiliteit van huur | Ja | |
Automatische irrigatie in de tuin. | Ja | |
Extra verdieping ondergronds (basement) | Ja | |
Fietsberging | Ja | |
Energielabel | B | |
Afgewerkte badkamer | Ja | |
Gesloten urbanisatie | Ja |
Meer info?
Beschikbare documenten
Ontdek wat we nog meer voor jou in petto hebben!

Bungalow op de bovenste verdieping in Torrevieja
Project: Residentie Nature views 2
Stad: Torrevieja-Alicante
2   2   78 m²   20 m²  

AN Home Appartement in Torrevieja
Project: AN Home appartementen vlakbij zee in Torrevieja
Stad: Torrevieja-Alicante
1   1     55 m²   8 m²  

Penthouse met terras in residentie Rodas Playas
Project: Residentie Rodas Playas in Torrevieja
Stad: Torrevieja-Alicante
2   1   69 m²   20 m²  

Penthouse met solarium in La Hoya
Project: Residentie La Hoya in Torrevieja
Stad: Torrevieja-Alicante
2   2   77 m²   20 m²  

Penthouse in Neptuno II
Project: Edificio Neptuno II: appartementen in Torrevieja
Stad: Torrevieja-Alicante
1   2   69 m²   14 m²  

Penthouse op 200 meter van de zee
Project: Residentie Panorama Beach
Stad: Torrevieja-Alicante
2   1   58 m²   15 m²  

Penthouse met terras in Torrevieja
Project: Residentie Soprano in Torrevieja
Stad: Torrevieja-Alicante
2   2   59 m²   14 m²  

Penthouse met terras in residentie Anamar
Project: Residentie Anamar in Torrevieja
Stad: Torrevieja-Alicante
3   2   107 m²   22 m²  

Eden Beach-Torrevieja-Alicante
Project: Eden Beach-Torrevieja-Alicante
Stad: Torrevieja-Alicante
3   2     129 m²   162 m²  

Sfeervol appartement met groot terras Punta prima
Project: Wonen aan zee in stijl: Corallia Resort Torrevieja
Stad: Torrevieja-Alicante
3   2     87 m²   17 m²  

Luxe Penthouse Torrevieja – Zoutmeerzicht
Project: Nature Views - Volledig ingericht Penthouse
Stad: Torrevieja-Alicante
2   2   178 m²   22 m²  

Appartement kopen in Torrevieja? Bekijk Victoria I
Project: Edificio Victoria I-Playa Del Cura
Stad: Torrevieja-Alicante
3   3     122 m²   54 m²  
Lees mee met onze nieuwste blogs!

Torrevieja: topkeuze voor Belgen en Nederlanders
Waarom zoveel Belgen en Nederlanders kiezen voor een woning in Torrevieja
De favoriete kustplaats aan de Costa Blanca Zuid
Torrevieja, gelegen aan de prachtige Costa Blanca, is al jarenlang een van de populairste bestemmingen voor Belgische en Nederlandse woningkopers. En dat is niet ...
Martine

De topredenen om een huis te kopen in Torrevieja
Ontdek Torrevieja: Jouw droomhuis aan de Costa Blanca Torrevieja, gelegen aan de zonovergoten Costa Blanca, combineert prachtig weer, adembenemende stranden en betaalbare woningen met een rijke cultuur en een bloeiende internationale gemeenschap.
Of je nu op zoek bent naar een vakantiehuis...
Martine