
Luxueuze gelijkvloerse villa met privé zwembad en solarium
Project: Residentie El Alba Mediterranean Resort -Villa's
El Alba: Jouw droomwoning nabij golfdomeinen & Spaanse kust
Korte beschrijving:
HOEKVILLA MET 2 SLAAPKAMERS, 2 BADKAMERS, ZONNIGE TERRASSEN, PRIVE ZWEMBAD EN SOLARIUM - LAATSTE KANS
Strak, modern en hedendaags met een twist. Dit nieuwbouw complex bevat luxueuze villa's van een of twee verdiepingen. Er is keuze tussen woningen met 2 slaapkamers en 2 badkamers en woningen met 3 slaapkamers en 3 badkamers. Alle villa's hebben één of meerdere zonovergoten terrassen, een solarium en privé zwembad. Vanop het solarium heb je een prachtig zicht op jouw nieuwe woonomgeving. Geniet alle dagen van het jaar van tropische temperaturen. El Alba is een omheind, beveiligd resort die jou en jouw gezin een brede waaier aan recreatiemogelijkheden schenkt. Padellen, golfen en petanque, het kan hier allemaal. Dit resort is gelegen in een prachtig natuurgebied waar jouw gemoedsrust centraal staat. Kom tot rust op deze bevoorrechte locatie vlakbij de Middellandse Zee en prachtige golfdomeinen. Een prachtige buitenkans voor iedereen die op zoek is naar de nodige rust maar toch in de buurt wil zijn van toeristische trekpleisters. Laat je onderdompelen in de rijke cultuur en natuur van de Costa Calida.
De faciliteiten bieden een scala aan nieuwe, spannende voorzieningen die je verblijf onvergetelijk zullen maken. 4 Paddle-tennisbanen, pak je racket en verzamel je vrienden en familie voor een opwindend spel paddle-tennis! Onze vier splinternieuwe banen staan klaar om je vaardigheden te testen en zorgen voor eindeloos speelplezier in de zon. Er is ook nog een bowlingbaan en meerdere bars met een terras. Het terras, omgeven door weelderige tropische vegetatie en een charmante Afrikaanse rieten pergola, is de ideale plek om te genieten van het prachtige uitzicht en de serene omgeving. We hopen dat je dit nieuws leuk vindt!
Er is een prachtig zwembad in strandstijl, compleet met zacht zand en een oppervlak van 300 tot 400 m². Hier kunt u heerlijk ontspannen en genieten van een verfrissende duik in een omgeving die aanvoelt als een luxe strandvakantie.
Kom en maak een bezichtigingsafspraak met Casas Kimpencio en ervaar zelf de nieuwe faciliteiten die we met trots presenteren. Je zult merken dat er voor iedereen iets te beleven valt, waardoor je aankoop en verblijf bij ons nog aangenamer wordt.
U bent nog niet aangemeld!
 Geef ons uw mening...
Vanaf: €324.900
Ref: KIMP-PROP-3397
Uitgebreide beschrijving:
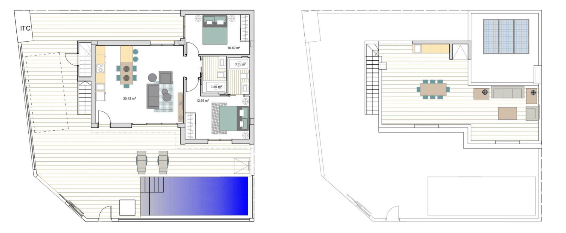
Het ontwerp van de villa's werd geïnspireerd op geografische vormgeving waardoor deze woningen een uiterst hedendaagse uitstraling hebben die iedereen zal bekoren: Treed binnen in jouw moderne droomwoning. Deze hoekvilla bevatten 2 slaapkamers, 2 badkamers, zonovergoten terrassen, een privé zwembad en prachtig solarium waar wij nu al jaloers op zijn na het bekijken van de foto's. De woningen zijn gebouwd in een omheind, beveiligd resort met alle benodigde recreatiemogelijkheden voor jong en oud. Geniet van het prachtig natuurgebied en ga gerust golfen, padellen of petanquen: in dit unieke woonresort kan het allemaal zonder de auto of fiets te moeten bovenhalen. De leefruimte bestaat uit de woonkamer en een volledig uitgeruste open keuken: alle benodigde toestellen zijn reeds aanwezig en klaar voor gebruik.
De keuken bevat overigens een prachtig kookeiland die jou alle ruimte biedt om heerlijk te kokerellen. De handige inbouw keukenkasten maken opbergen een plezier. Verder naar de slaapkamers waar je niet alleen een prachtig zicht cadeau krijgt maar ook nog eens handige inbouwkasten waardoor geen enkele ruimte verloren gaat. Vanop jouw slaapkamer wandel je zo naar een van de zonnige terrassen waar je heerlijk kan ontwaken met een koffie. De badkamers hebben kwalitatieve regendouche's met bijpassend badkamermeubel en toilet. Aan alle comfort en gemak werd gedacht zonder in te boeten op de moderne look. Deze villa's pakken verder nog uit met een zalig privé zwembad en zonnig solarium. Wij durven er bijna op wedden dat je amper de woning zal willen verlaten omdat het er zo heerlijk vertoeven is.
De villa's zijn instapklaar dankzij:
° TV-en internetaansluiting
° Video intercom
° Pré-installatie voor kabeltelevisie
° Pré-installatie voor elektrische handdoekdrogers in de badkamer
° Pré-installatie voor airconditioning
° Privé zwembad met solar buitendouche en pré-installatie warmtepomp
° Buitenkeuken op het solarium met aansluiting voor koelkast en wasmachine
° Keuken met koelkast, oven, microgolfoven, kookplaat, afzuigkap en afwasmachine
° Zonnepanelen
° Parkeerplaats op eigen plot
° LED verlichting binnen en buiten
Zoals eerder vermeld zijn de villa's gebouwd in het prachtige 'El Alba Mediterranean Residential'-resort: Dit resort is omheind en beveiligd en heeft een prachtig natuurdomein met verschillende sportvelden voor o.a. padel en petanque. Op het resort vind je 4 tennisvelden en een bowlingruimte. Voor de allerkleinsten is er een speeltuin voorzien. Geniet van een verfrissend drankje en heerlijke versnaperingen in de bijhorende tropische bar met ruim terras waar je sociale contacten kan onderhouden met de overige bewoners. Golfen kan in een van de nabijgelegen exclusieve golfclubs waaronder o.a. 'Saurines Golf Ugolf Exclusive' en 'La Torre Golf'.
Het wooncomplex bevindt zich in Roldan, een gezellig dorp vol charisma en authentieke Spaanse sfeer: Je vindt hier alle benodigde voorzieningen waaronder bars, restaurants, supermarkten en een sporthal. De stranden van het adembenemende 'Mar Menor' bevinden zich op 20 min rijden van je woning. Mar Menor is een smalle landstrook die de Middellandse Zee in twee delen scheidt. Een fantastische hotspot aan de Middellandse Zee waar verschillende watersporten mogelijk zijn maar waar je ook kan genieten van de heerlijke horeca gelegenheden. Vis rechtstreeks van de zee op je bord: een culinair genot. Laat dat bronzen bruine kleurtje maar komen aan een van de mooie zandstranden. Als je je dan toch in Mar Menor bevindt, vergeet dan zeker geen bezoekje te brengen aan het nabijgelegen 'Lo Pagan' voor een natuurlijk modderbad aan de oevers van de Middellandse Zee. Een therapeutisch uitje met helende krachten die zonder twijfel ook op de lachspieren zal werken.
Kortom: een unieke buitenkans op een unieke locatie.
Kenmerken:
Aantal slaapkamers | 2 | |
Aantal badkamers | 2 | |
Pré installatie airco | Ja | |
Elektrische rolluiken | Ja | |
Led verlichting buiten | Ja | |
Led verlichting binnen | Ja | |
privé parkeerplaats | Ja | |
Telefoon Data aansluiting | Ja | |
Videofonie | Ja | |
Inbouwkasten | Ja | |
Aero thermische warmtepomp | Ja | |
Douche schermen | Ja | |
Poort | Ja | |
Badkamer spiegels | Ja | |
Terras | Ja | |
Solarium | Ja | |
Privaat zwembad | Ja | |
Verwarmd zwembad | Ja | |
Alle keuken apparatuur volledig inbegrepen | Ja | |
Buitenkeuken | Ja | |
Sportvelden | Ja | |
Petanque | Ja | |
Padel Terrein | Ja | |
Nabij kinder speeltuin | Ja | |
Kookplaat Dampkap Magnetron & Oven | Ja | |
Gedeelde tuin | Ja | |
Private Tuin | Ja | |
Alarmsysteem | Ja | |
Badkamer spiegels met verlichting | Ja | |
Golfresort afstand in km | 2-5 km | |
Ziekenhuis afstand in km | 20-30 km | |
Nabij Commercieel centrum | Ja | |
Luchthaven Alicante afstand | 50+ km | |
Luchthaven Murcia afstand | 20-30 km | |
Uitzicht tuin | Ja | |
Uitzicht bergen | Ja | |
Solarium oppervlakte in m2 | 40-50 m² | |
Oppervlakte perceel rond het huis | 102 m² | |
Bebouwde oppervlakte | 76 m² | |
Bewoonbare oppervlakte | 70 m² | |
Afstand naar het strand | 15 km | |
Terras oppervlakte | 35 m² | |
Nabij Scholen | Ja | |
Nabij bushalte | Ja | |
Pre installatie warmtepomp zwembad | Ja | |
Hangend toilet | Ja | |
Hangend badkamer meubel | Ja | |
Zonnepanelen | Ja | |
Uitzicht op het zwembad | Ja | |
Cameradeur met intercom terminal | Ja | |
Security glas met uv filter | Ja | |
Badkamer meubel en spiegels | Ja | |
Security 24/24 | Ja | |
Volledig ingerichte keuken | Ja | |
Dampkap | Ja | |
Grote ramen van vloer tot plafond | Ja | |
Hoogwaardige afwerking | Ja | |
Goede prijs-kwaliteit verhouding | Ja | |
Elektrische handdoekverwarmer | Ja | |
Gelijkvloers | Ja | |
Gelijkvloers met tuin | Ja | |
Luxe nieuwbouw | Ja | |
Extra grote ramen uitkijkend op tuin en zwembad | Ja | |
Social club | Ja | |
Afgewerkte badkamer | Ja | |
Gesloten urbanisatie | Ja |
Meer info?
Beschikbare documenten
Ontdek wat we nog meer te bieden hebben!

Appartement op tussenverdiep - Spa Valley II
Project: Residentie Spa Valley - Fase 2
Stad: Archena
1   1   42 m²   12 m²  

Appartement met balkon in Balsicas
Project: Residentie Terrazas de la Torre
Stad: Balsicas, Murcia
2   2   55 m²   12 m²  

Appartement met solarium in residentie Lolm
Project: Residentie Lolm in Hondon de las Nieves
Stad: Hondón de las Nieves
2   1   71.8 m²  

Collado Bajo Appartement met ruim terras
Project: Collado Bajo wooncomlex
Stad: Aguilas
2   2     60 m²   20 m²  

Appartement - Collado Bajo
Project: Residentie Collado Bajo Aquillas
Stad: Aguilas
2   2     60 m²   29 m²  

Cabo Roig Appartementen op een toplocatie!
Project: Gerenoveerd wooncomplex in Lomas de Cabo Roig
Stad: Orihuela Costa-Alicante
1   1     52 m²   46 m²  

EDIFICIO SAN ISODRO 19 - 2 slaapkamers-appartement
Project: EDIFICIO SAN ISODRO 19 - 2 moderne appartementen
Stad: Jacarilla
2   1   63 m²    

Nieuwbouwappartementen in Jacarilla
Project: Moderne appartementen te koop in Jacarilla
Stad: Jacarilla
2   2     70 m²   7 m²  

Appartement vierde verdieping in Mirador Relleu
Project: MIRADOR DE RELLEU
Stad: Relleu
2   2     163.95 m²   29.59 m²  

Sun and Sea-Playa De Los Locos-Torrevieja
Project: Sun and Sea-Playa De Los Locos-Torrevieja
Stad: Torrevieja-Alicante
1   1     55 m²   3 m²  

AN Home Appartement in Torrevieja
Project: AN Home appartementen vlakbij zee in Torrevieja
Stad: Torrevieja-Alicante
1   1     55 m²   8 m²  

1-slaapkamer-appartement in residentie Halar
Project: Residentie Halar in Alicante
Stad: Alicante
1   1   49 m²   4 m²