Home Lopende projecten Alle Panden Over ons Ons team Ons kantoor Onze werkwijze Contacteer ons Blog Cookies

Luxe villa Solis met onderbouw in Javéa

 Project: Luxe villa's op een perceel van 1000m² in Javéa

Nieuwbouwwoning in Ibiza-stijl met luxe voorzieningen

Korte beschrijving:

VALLE DEL SOL – IBIZA-STYLE LUXE VILLA MET ENGELSE PATIO – JÁVEA

Deze exclusieve villa in Ibiza-stijl is gelegen in de geliefde woonwijk Valle del Sol in Jávea, op slechts 2,5 km van het strand. De woning bevindt zich op een ruim perceel van 1.000 m² en combineert absolute rust, privacy en een hoogwaardige afwerking met een uitgesproken mediterrane uitstraling. Dankzij het doordachte ontwerp, natuurlijke materialen en grote raampartijen ademt deze villa luxe én warmte uit.

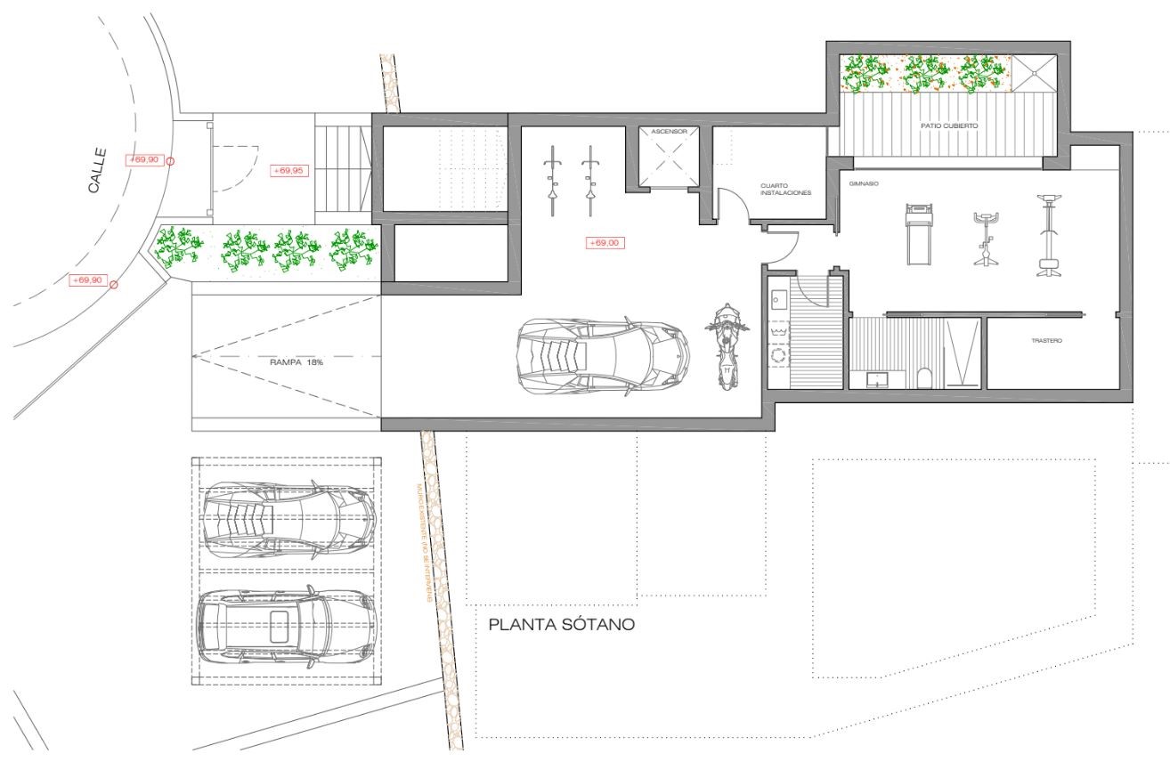
De villa is opgebouwd uit een gelijkvloerse leefverdieping en een volwaardige onderbouw met daglicht. Op het leefniveau bevindt zich een royale woonkamer met open, volledig uitgeruste keuken, een gastentoilet en drie slaapkamers, elk met een eigen badkamer-ensuite. Grote schuiframen verbinden alle ruimtes rechtstreeks met de tuin en het zwembad. De onderbouw is geen klassieke kelder, maar een extra leeflaag met fitnessruimte, badkamer, wasruimte, meerdere bergingen, garage en een Engelse patio die zorgt voor licht en openheid.

Buiten geniet je van een prachtig aangelegde tuin in Ibiza-stijl met een privézwembad van 38 m² en een buitenkeuken met barbecue, perfect voor lange zomerdagen. De villa is uitgerust met vloerverwarming, zonnepanelen, lift, domotica en hoogwaardige afwerking doorheen de hele woning. Villa Solis is een zeldzame combinatie van architecturale finesse, comfort en ligging, ideaal voor wie op zoek is naar een luxueuze woning in een van de meest gegeerde regio’s van de Costa Blanca.

U bent nog niet aangemeld!

Na invullen van onderstaande gegevens wordt u aangemeld, indien er nog geen account bestaat kan deze aangemaakt worden!



 Geef ons uw mening...

 Momenteel nog geen reviews voor dit pand.

Uitgebreide beschrijving:

Ontdek deze luxe villa in Ibiza-stijl in Javéa, op 2.5km van het strand. We nemen even een tour doorheen de woning, zodat je net zo verliefd kan worden op deze luxe parel, als wij! Het betreden van de woning kan via 2 manieren; via de gewone voordeur of via de oprijlaan die een lichte helling naar beneden neemt, naar de onderbouw. 

In de onderbouw, is er een ruime garage voorzien met plaats  voor een wagen, moto, fietsen, ... Noem maar op! Verder is de eerste opbergruimte voor technische installaties gelegen. In de onderbouw is er ook een badkamer gelegen met wastafel, bijpassend meubel, toilet én douche. Deze badkamer ligt aansluitend aan de fitnessruimte, die uitkijkt op de Engelse patio. 

De Engelse patio zorgt ervoor dat de onderbouw een verlenging wordt van de ruimte, geen gewone kelderverdieping. Nabij de fitnessruimte is er een tweede opbergruimte gelegen. 

Verder is er in de onderbouw ook nog een ruime wasruimte voorzien met aansluitingen voor de wasmachine, droogmachine, wastafel, kasten, ... Er is ook nog een overdekte parkeerplaats voorzien op dit niveau buiten, voor maar liefst 2 wagens.

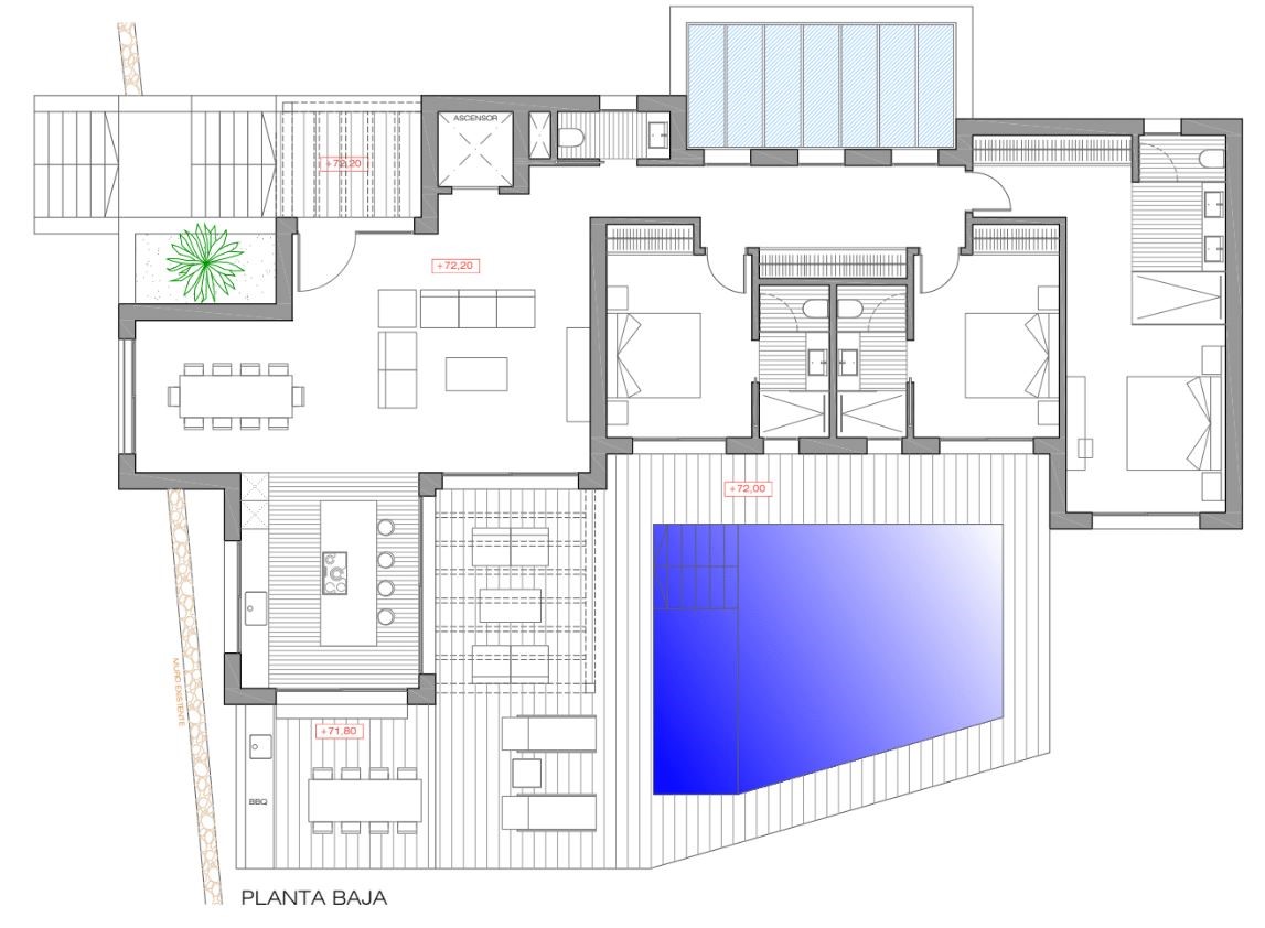
De gelijkvloerse verdieping bereik je door de lift, die in het gebouw geïntegreerd is. Met een gemak kom je dus uit op de begane vloer, waar je terecht komt in de gigantische woonkamer met open keuken. De keuken is gelegen in een apart gedeelte, maar heeft toch de perfecte verbinding met de woonkamer. 

De keuken wordt volledig uitgerust geleverd, en biedt prachtig zicht op de Ibiza-tuin met natuursteen afgewerkt. In de inkomhal is er ook nog een gastentoilet voorzien. Verder zijn er nog 3 slaapkamers gelegen met elk een badkamer-ensuite. Elke badkamer is volledig afgewerkt met inloopdouche, wastafel met bijpassend meubel, toilet, spiegel, ... Elke slaapkamer op zich, heeft dan weer ruime inbouwkasten met hangrekken, legplanken én lades. 

De hoofdslaapkamer heeft een gigantische badkamer-ensuite met een dubbele wastafel, toilet én douche. Elke slaapkamer geniet van directe toegang tot de tuin, dankzij de grote schuiframen. 

DUS CONCREET: 

  • 3 slaapkamers
  • 4 badkamers
  • Onderbouw met heel wat opbergruimte
  • Wasruimte
  • Fitness
  • Engelse patio
  • Volledig uitgeruste keuken 
  • Gastentoilet

Deze woning is gelegen op een perceel van 1.000m². Op de gelijkvloerse verdieping, geniet je van een riante buitenruimte in Ibiza-stijl. De villa is afgewerkt in warme houten én natuurstenen kleuren. Hierdoor voel je jou meteen thuis in deze villa. 

In de tuin is er nog een buitenkeuken met barbecue voorzien, aansluitend aan de keuken. Geniet van jouw eigen privézwembad van maar liefst 38m² tijdens een heerlijk dagje zonnen onder de Spaanse zon. 

TECHNISCHE KENMERKEN: 

  • Vloerverwarming 
  • Zonnepanelen

Deze woning is gelegen in Javéa, op 3km van het strand. Jávea (Xàbia), gelegen aan de noordelijke Costa Blanca, is een van de meest veelzijdige en elegante kustplaatsen van de regio. De stad wordt omringd door de Montgó-berg, groene valleien en een indrukwekkende kustlijn met baaien, kliffen en stranden. In de woonomgeving Valle del Sol, op ongeveer 3 km van het strand, ervaar je een rustige, groene setting waar privacy en ruimte centraal staan, terwijl de zee en het levendige stadsleven altijd dichtbij blijven. Het klimaat van Jávea wordt vaak beschouwd als een van de gezondste van Europa, met milde winters en aangename zomers.

Jávea bestaat uit drie duidelijk verschillende delen die samen voor veel afwisseling zorgen. Het historische centrum biedt smalle straatjes, natuurstenen gevels en traditionele pleinen waar het Spaanse leven nog puur aanvoelt. De haven heeft een authentiek karakter met vissersboten, visrestaurants en een ontspannen sfeer. Het strandgebied rond Arenal is levendig en modern, met een brede boulevard, winkels, restaurants en een zandstrand dat ideaal is voor gezinnen. Vanuit Valle del Sol bereik je al deze zones eenvoudig, zonder midden in de drukte te wonen.

De omgeving van Valle del Sol is geliefd bij natuurliefhebbers en rustzoekers. De wijk ligt tussen wijngaarden, pijnbomen en glooiende heuvels, met uitzicht op de Montgó en het omliggende landschap. Wandel- en fietsroutes starten letterlijk om de hoek, en binnen enkele minuten sta je bij verborgen baaien zoals Cala Granadella of Cala Portitxol, bekend om hun kristalheldere water. Tegelijkertijd zijn internationale scholen, sportclubs en voorzieningen vlot bereikbaar, wat de ligging bijzonder evenwichtig maakt.

Wat veel mensen niet weten, is dat Jávea door de Montgó-berg wordt beschermd tegen extreme weersomstandigheden. Deze natuurlijke barrière zorgt voor een uitzonderlijk stabiel microklimaat, met relatief weinig wind en een hoge luchtkwaliteit. Dat is een van de redenen waarom de regio al decennialang geliefd is bij kunstenaars, schrijvers en mensen die bewust kiezen voor een gezonde levensstijl.

Daarnaast heeft Valle del Sol een bijna dorpsachtige rust die zeldzaam is zo dicht bij de kust. In de avond, wanneer de zon achter de bergen zakt en de lucht oranje en roze kleurt, hoor je vooral natuurgeluiden en voel je een diepe sereniteit. Het is een plek waar de dag vertraagt, waar binnenland en kust samenkomen en waar Jávea zich van haar meest verfijnde, rustige kant laat zien.

AFSTANDEN: 

  • Strand (Playa del Arenal): ca. 3 km

  • Centrum Jávea (oude stad): ca. 4 km

  • Haven van Jávea: ca. 5 km

  • Supermarkten en winkels: ca. 2,5 km

  • Golfbaan (La Sella Golf): ca. 7 km

  • Jachthaven Jávea: ca. 5 km

  • Ziekenhuis Denia: ca. 15 km

  • Luchthaven Alicante: ca. 95 km

  • Luchthaven Valencia: ca. 105 km

Onze visie binnen Casas Kimpencio;

  • Bij Casas Kimpencio ben je niet zomaar iemand, wij willen een persoonlijke relatie aangaan.
  • We behandelen jullie zoals we zelf behandeld willen worden, met de nodige betrokkenheid, precisie en details.
  • Geen enkele vraag is ons te veel, we staan elke dag telefonisch voor jou klaar.
  • Wij hebben de gedachte dat een huis kopen niet zomaar een huis kopen is, maar een nieuwe thuis kopen.
  • Iedereen dient een eigen verhaal te krijgen, met verschillende hoofdstukken. 
  • Wij willen helpen aan het Spaanse hoofdstuk, een hoofdstuk van een nieuwe thuis, vakantiewoning of een investering.
  • En dit doen we met open, duidelijke communicatie  en daarmee geraken we er altijd, zo vinden we jouw ideale woning gebaseerd op meerdere gesprekken.
  • We helpen vanaf het begin tot aan de sleuteloverdracht, en ver daarbuiten. 

Wij vinden deze woning bijzonder omdat; 

  • Ibiza-stijl met warme natuurmaterialen – de combinatie van hout, natuursteen en zachte lijnen creëert een instant vakantiegevoel dat perfect past bij Jávea

  • Slim benut gelijkvloers wonen mét onderbouw – geen klassieke kelder, maar een volwaardige leeflaag met fitness, badkamer en daglicht via de Engelse patio

  • Engelse patio als verborgen troef – brengt licht, lucht en openheid tot diep in de woning en maakt de onderbouw verrassend aangenaam

  • Volledig uitgeruste designkeuken met zicht op de tuin – koken met uitzicht op natuursteen, groen en zwembad versterkt het binnen-buitenleven

  • Alle slaapkamers met badkamer-ensuite – maximale privacy en hotelgevoel, ideaal voor gasten of comfortabel gezinsleven

  • Directe tuinverbinding vanuit elke slaapkamer – grote schuiframen zorgen ervoor dat buiten altijd onderdeel is van je leefervaring

  • Lift geïntegreerd in de woning – uitzonderlijk comfort tussen onderbouw en leefverdieping, zeldzaam in dit segment

  • Buitenkeuken en privézwembad in Ibiza-setting – perfect voor lange zomerdagen, diners met vrienden en pure ontspanning

  • Perceel van 1.000 m² op toplocatie – ruimte, rust en privacy op slechts enkele minuten van strand en stad

  • Duurzame luxe met vloerverwarming en zonnepanelen – toekomstgericht wonen zonder in te boeten aan comfort

WONINGEN BINNEN DIT PROJECT:

Type woning  Aantal slaapkamers / badkamers  Bebouwde oppervlakte  Terras in m² ( perceel = 1.000m²)  Prijs 
Los Olivos  3/3 189m² 36m² €1.375.000
Solis  3/4 342m² 60m² €2.050.000
Sorolla  4/4 245m² 155m² €1.525.000
Altaris  4/4 465m² 124m² €2.200.000

GROEI EN TRENDS IN JAVEA: 

Jaar  Prijs per m² Jaarlijkse stijging 
2023 €2.669 -
2024 €3.042 +14%
2025 €3.410 +12.1%


Kenmerken:

Aantal slaapkamers 3
Aantal badkamers 4
Privaat zwembad Ja
Oppervlakte perceel rond het huis 1000 m²
Bebouwde oppervlakte 342 m²
Bewoonbare oppervlakte 240 m²
Afstand naar het strand 3 km
Terras oppervlakte 60 m²
Private Tuin Ja
Poort Ja
Nabij Scholen Ja
Nabij Commercieel centrum Ja
Terras Ja
Fietsafstand van het strand Ja
Vloerverwarming badkamer Ja
Douche schermen Ja
Volledige airco installatie Ja
Elektrische rolluiken Ja
Led verlichting buiten Ja
Led verlichting binnen Ja
privé parkeerplaats Ja
Ondergrondse parking Ja
Garage Ja
Telefoon Data aansluiting Ja
Videofonie Ja
Inbouwkasten Ja
Aero thermische warmtepomp Ja
Elektrische poort Ja
Badkamer spiegels Ja
Alle keuken apparatuur volledig inbegrepen Ja
Buitenkeuken Ja
Barbecue Ja
Kookplaat Dampkap Magnetron & Oven Ja
Nabij kinder speeltuin Ja
Fitness ruimte Ja
Berging Ja
Kelder Ja
Uitzicht tuin Ja
Golfresort afstand in km 2-5 km
Ziekenhuis afstand in km 0-5 km
Luchthaven Alicante afstand 50+ km
Uitzicht bergen Ja
Lift Ja
Ontspanning ruimte buiten Ja
Hangend toilet Ja
Hangend badkamer meubel Ja
Zonnepanelen Ja
Uitzicht op het zwembad Ja
Volledig ingerichte keuken Ja
Dampkap Ja
Gepantserde toegangsdeur met veiligheidsslot Ja
Bioklimatologische pergola Ja
Hoogwaardige afwerking Ja
Goede prijs-kwaliteit verhouding Ja
Aerothermische boiler Ja
Luxe nieuwbouw Ja
Volledige vloerverwarming Ja
Extra verdieping ondergronds (basement) Ja
Pergola Ja
Energielabel B
Afgewerkte badkamer Ja

Meer info?


Beschikbare documenten

grondplan solis gelijkvloers.jpeg

document-grondplan solis gelijkvloers.jpeg

download
grondplan solis onderbouw.jpeg

document-grondplan solis onderbouw.jpeg

download

Ontdek wat we nog meer voor jou in petto hebben!

Moderne Ibiza-stijl villa te koop in Benissa
Moderne Ibiza-stijl villa te koop in Benissa

Project: Serenity: Gelijkvloerse Ibiza-stijl villa

Stad: Benissa

3   2     139 m²   68 m²  

Luxe villa Lysandra in Orihuela Costa, La Zenia
Luxe villa Lysandra in Orihuela Costa, La Zenia

Project: Luxe villa in Orihuela Costa - Lysandra Villa

Stad: Orihuela Costa-Alicante

3   4     203 m²   160 m²  

Luxe villa’s met zwembad in Desert Springs.
Luxe villa’s met zwembad in Desert Springs.

Project: Villa's op Golfresort Desert Spring Resort

Stad: Cuevas Del Almanzora

3   3     174 m²   51 m²  

Luxe villa op eerstelijn zee
Luxe villa op eerstelijn zee

Project: Residentie 3 Palmeras in Puerto de Mazarron

Stad: Puerto de Mazarrón

3   3     182 m²   56 m²  

Vrijstaande luxewoning in Arena Beach III
Vrijstaande luxewoning in Arena Beach III

Project: Arena golf villa's in La Finca Golf

Stad: Algorfa

6   3     486 m²   52 m²  

Luxevilla met zicht op zee en natuur in Polop
Luxevilla met zicht op zee en natuur in Polop

Project: Luxe nieuwbouw villa met zeezicht in Polop

Stad: Polop-Benidorm

4   3     208 m²   160 m²  

Villa met prachtig bergzicht in residentie Airen
Villa met prachtig bergzicht in residentie Airen

Project: Airen: eco-vriendelijke luxe villa's in Llíber

Stad: Llíber

3   2     432.76 m²    

Villa met prachtig bergzicht in residentie Airen
Villa met prachtig bergzicht in residentie Airen

Project: Airen: eco-vriendelijke luxe villa's in Llíber

Stad: Llíber

3   2     432.76 m²    

Luxe villa op eerstelijn zee
Luxe villa op eerstelijn zee

Project: Residentie 3 Palmeras in Puerto de Mazarron

Stad: Puerto de Mazarrón

3   3     182 m²   56 m²  

Luxueuze nieuwbouwvilla's in Sierra Cortina!
Luxueuze nieuwbouwvilla's in Sierra Cortina!

Project: Residentie Sea View 6: Luxe woningen nabij de zee

Stad: Finestrat-Benidorm

3   3     155 m²   69 m²  

Exclusieve ruime villa in Roldán
Exclusieve ruime villa in Roldán

Project: VILLAS ROLDÁN

Stad: Roldan

3   2     199 m²   106 m²  

Appartement met terras in Azure Icons
Appartement met terras in Azure Icons

Project: Residentie Azure Icons in Calpe

Stad: Calpe-Costa-Blanca

3   2     125 m²   30 m²  

Lees mee met onze nieuwste blogs!

Belgisch pensioen in Spanje: hoeveel hou je over?
Belgisch pensioen in Spanje: hoeveel hou je over?

Dromen van je pensioen onder de Spaanse zon? Steeds meer Belgen ontdekken dat Spanje niet alleen zachter is qua klimaat, maar ook qua leven. Je merkt het in alles: lagere kosten, minder stress, meer tijd voor wat écht telt. In deze blog ontdek je hoe groot het verschil kan zijn niet enkel in ...

Martine

Zorgloos off-plan kopen in Spanje
Zorgloos off-plan kopen in Spanje

Een woning kopen in Spanje nog vóór hij gebouwd is?

Wat een avontuur! Off plan kopen geeft jou de mogelijkheid om je droomhuis precies zo te creëren zoals jij het wilt. Van een moderne architectuur en slimme energiezuinige oplossingen tot een vleugje luxe die je bij bestaande woningen n...

Martine

U dient wel de Spaanse verkeersregels te kennen!
U dient wel de Spaanse verkeersregels te kennen!

Rijd je met een Belgische auto naar je woning aan de Costa Blanca? Ontdek de Spaanse verkeersregels, boetes, tol en milieuzones. Rij zorgeloos en voorbereid.

...

Martine

square-box
Tine
Vragen over panden, projecten en onze content
Snel starten:

Hallo, ik ben Tine je kan bij mij terecht met al je vragen over panden, projecten en onze content. Ik antwoord alleen op basis van de beschikbare website-inhoud.