laatste kans

Penthouse met terras in residentie Talan 1

 Project: Appartementen Torrevieja met zwembad Talan 1

Nieuwbouwwoningen in Torrevieja, op 100 meter van het strand

Korte beschrijving:

PENTHOUSE- 2 SLAAPKAMERS - TERRAS - CENTRALE LIGGING - TORREVIEJA

Ontdek dit penthouse met 2 slaapkamers en 2 badkamers, gelegen in het centrum van Torrevieja. Via de inkomhal kom je terecht in de lichtrijke leefruimte met open keuken, die volledig uitgerust is met de nodige toestellen. Grote schuiframen zorgen voor directe toegang tot het terras, waardoor binnen en buiten mooi in elkaar overlopen.

De woning beschikt over twee comfortabele slaapkamers met ingebouwde kasten en twee moderne badkamers, voorzien van onder andere vloerverwarming voor extra comfort. Het terras van 7 m² biedt een aangename buitenruimte met zicht op de stad. Daarnaast geniet je binnen de residentie van een gemeenschappelijk dakterras met zwembad, ligweide, barbecuezone en zelfs een sauna. Een lift in het gebouw zorgt voor extra gebruiksgemak.

Dit appartement is gelegen in Torrevieja, een levendige kuststad aan de Costa Blanca. Hier woon je op wandelafstand van winkels, restaurants en stranden, terwijl je geniet van een zonnig klimaat en een bruisende, internationale sfeer. Een ideale locatie voor wie comfort, bereikbaarheid en stadsleven wil combineren.

U bent nog niet aangemeld!

Na invullen van onderstaande gegevens wordt u aangemeld, indien er nog geen account bestaat kan deze aangemaakt worden!



 Geef ons uw mening...

 Momenteel nog geen reviews voor dit pand.

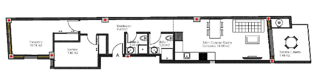
Uitgebreide beschrijving:

Dit appartement is gelegen op een tussenverdieping, voorzien van 2 slaapkamers met 2 badkamers. We nemen een wandeling doorheen de woning, zodat je volledig mee bent met de indeling. Bij het betreden van de woning kom je terecht in een inkomhal, die uitmondt in de woonkamer met open keuken. De L-vormige keuken is voorzien van de nodige toestellen. De woonkamer heeft rechtstreekse toegang tot het terras via schuiframen.  Het appartement is voorzien van 2 slaapkamers met 2 badkamers. De slaapkamers zijn voorzien van inbouwkasten met hangrekken, legplanken en lades. De badkamers zijn op zich dan weer uitgerust met een wastafel en bijpassend meubel, spiegels, vloerverwarming, douche en doucheschermen. 

DUS CONCREET: 

  • 2 slaapkamers
  • 2 badkamers
  • Keuken met toestellen 
  • Inbouwkasten 
  • Vloerverwarming in de badkamers
  • Terras van 7m²

Dit appartement is gelegen op een tussenverdieping en bijgevolg voorzien van een terras van 7m². Hier heb je prachtig zicht op de levendige stad dat Torrevieja is. Dit appartement is gelegen in residentie Talan 1.

Deze residentie heeft een gemeenschappelijk dakterras met zwembad. Rondom het dakterras is er een ruime ligweide voorzien, waar je heerlijk kan ontspannen. Bij een hongertje, geniet je van de barbecue op het solarium. Kom bovendien helemaal tot rust in de sauna!  Doorheen het gebouw is er een lift, zodat jouw toegankelijkheid verzekerd wordt. 

TECHNISCHE KENMERKEN: 

  • Vloerverwarming in de badkamers
  • Hoogwaardige materialen
  • Dubbele beglazing 
  • Uitstekende thermische en akoestische isolatie
  • Gemotoriseerde zonwering 
  • Pré-installatie airconditioning via kanalen 
  • Beveiligde voordeur
  • Verlichting binnen en buiten 
  • Sanitair warm water via aerothermisch systeem

Dit appartement is gelegen in Torrevieja. Torrevieja is een levendige kuststad aan de zuidelijke Costa Blanca, bekend om haar zonnige klimaat, zoutmeren en lange zandstranden. De stad heeft zich de voorbije decennia ontwikkeld van een traditioneel vissersdorp tot een populaire bestemming voor zowel vakantiegangers als permanente bewoners. Dankzij het milde mediterrane klimaat geniet Torrevieja van meer dan 300 zonnige dagen per jaar, wat het een aantrekkelijke plek maakt voor overwinteraars en zonliefhebbers.

De ligging van Torrevieja is bijzonder gunstig. De stad bevindt zich op ongeveer 45 minuten rijden van Alicante-Elche Airport en iets meer dan een uur van Region de Murcia International Airport. De directe toegang tot de kust zorgt ervoor dat stranden zoals Playa del Cura en Playa de La Mata gemakkelijk bereikbaar zijn, vaak op wandelafstand of enkele minuten rijden vanuit het centrum. Ook omliggende steden zoals Alicante en Murcia zijn vlot bereikbaar voor daguitstappen.

Qua voorzieningen biedt Torrevieja alles wat nodig is voor comfortabel wonen en verblijven. Er zijn tal van supermarkten, winkelcentra zoals Habaneras Shopping Centre, en een breed aanbod aan restaurants en bars. Van traditionele Spaanse keuken tot internationale gastronomie: bezoekers kunnen genieten van lokale specialiteiten zoals paella en verse visgerechten in restaurants langs de boulevard. De stad beschikt bovendien over goede gezondheidszorg, scholen en sportfaciliteiten, wat het ook aantrekkelijk maakt voor gezinnen en expats.

Een minder bekend feit over Torrevieja is dat de stad ooit één van de belangrijkste zoutproducenten van Europa was. De nabijgelegen zoutmeren, waaronder de roze lagune van Laguna Salada de Torrevieja, spelen nog steeds een belangrijke rol in de lokale economie. Het unieke microklimaat dat hierdoor ontstaat, wordt door de World Health Organization zelfs beschouwd als één van de gezondste van Europa, wat vooral mensen met ademhalingsproblemen aantrekt.

Een ander bijzonder weetje is dat Torrevieja een zeer internationale gemeenschap heeft, met inwoners uit meer dan 100 verschillende nationaliteiten. Hierdoor heeft de stad een multiculturele sfeer met tal van internationale evenementen en markten. Daarnaast is er een sterke maritieme traditie zichtbaar in de haven en tijdens lokale feesten, waar muziek en dans een centrale rol spelen.

AFSTANDEN: 

  • Luchthaven Alicante-Elche: ± 45 km
  • Luchthaven Murcia: ± 65 km
  • Strand (Playa del Cura): ± 0–2 km (afhankelijk van locatie)
  • Strand (La Mata): ± 5 km
  • Centrum Torrevieja: 0 km
  • Alicante stad: ± 50 km
  • Murcia stad: ± 70 km

Onze visie binnen Casas Kimpencio;

  • Bij Casas Kimpencio ben je niet zomaar iemand, wij willen een persoonlijke relatie aangaan.
  • We behandelen jullie zoals we zelf behandeld willen worden, met de nodige betrokkenheid, precisie en details.
  • Geen enkele vraag is ons te veel, we staan elke dag telefonisch voor jou klaar.
  • Wij hebben de gedachte dat een huis kopen niet zomaar een huis kopen is, maar een nieuwe thuis kopen.
  • Iedereen dient een eigen verhaal te krijgen, met verschillende hoofdstukken. 
  • Wij willen helpen aan het Spaanse hoofdstuk, een hoofdstuk van een nieuwe thuis, vakantiewoning of een investering.
  • En dit doen we met open, duidelijke communicatie  en daarmee geraken we er altijd, zo vinden we jouw ideale woning gebaseerd op meerdere gesprekken.
  • We helpen vanaf het begin tot aan de sleuteloverdracht, en ver daarbuiten. 

Wij vinden deze woning bijzonder omdat

  • Gelegen in Torrevieja centrum – alles op wandelafstand
  • Terras van 7 m² – buitenruimte met stadszicht
  • 2 slaapkamers – functionele indeling
  • 2 badkamers – extra comfort en privacy
  • Open keuken met toestellen – volledig uitgerust
  • Lichtrijke woonkamer – directe toegang tot terras
  • Inbouwkasten – praktisch en ruimtebesparend
  • Vloerverwarming in badkamers – extra comfort
  • Gemeenschappelijk dakterras met zwembad & sauna
  • Lift aanwezig in het gebouw – vlotte toegankelijkheid

APPARTEMENTEN IN TALAN 1:

Type woning
Aantal slaapkamers / badkamers
Bebouwde oppervlakte
Terras in m²
Prijs
Appartement met terras 2/2 80m²
7m²
€250.000
Penthouse
2/2 74m²
7m²
€290.000

GROEI EN TRENDS IN TORREVIEJA:

Jaar Prijs per m²
Jaarlijkse stijging
2023 €2.400
-
2024 €2.650
+10.4%
2025 €2.900
+9.4%


Kenmerken:

Aantal slaapkamers 2
Aantal badkamers 2
Privaat zwembad Ja
Oppervlakte perceel rond het huis 0 m²
Bebouwde oppervlakte 74 m²
Bewoonbare oppervlakte 61 m²
Afstand naar het strand 0.1 km
Terras oppervlakte 7 m²
Gedeeld zwembad Ja
Nabij Scholen Ja
Nabij Commercieel centrum Ja
Nabij bushalte Ja
Terras Ja
Fietsafstand van het strand Ja
Vloerverwarming badkamer Ja
Douche schermen Ja
Solarium Gedeeld
Pré installatie airco Ja
Elektrische rolluiken Ja
Led verlichting buiten Ja
Led verlichting binnen Ja
Telefoon Data aansluiting Ja
Videofonie Ja
Inbouwkasten Ja
Badkamer spiegels Ja
Alle keuken apparatuur volledig inbegrepen Ja
Kookplaat Dampkap Magnetron & Oven Ja
Nabij kinder speeltuin Ja
Golfresort afstand in km 10-15 km
Ziekenhuis afstand in km 5-10 km
Luchthaven Alicante afstand 40-50 km
Gedeelde kosten Ja
Lift Ja
Ontspanning ruimte buiten Ja
Hangend badkamer meubel Ja
Sauna Ja
Volledig ingerichte keuken Ja
Dampkap Ja
Gepantserde toegangsdeur met veiligheidsslot Ja
Aerothermische boiler Ja
Goed gebied voor rentabiliteit van huur Ja
Wandelafstand van het strand Ja
Energielabel B
Afgewerkte badkamer Ja
Gesloten urbanisatie Ja
Volledig bemeubeld Nee
Security glas met uv filter Ja
Meubelpakket Optioneel
Penthouse Ja
Luxe nieuwbouw Ja

Meer info?


Beschikbare documenten

Schermafbeelding 2026-04-14 131231.png

document-Schermafbeelding 2026-04-14 131231.png

download

Ontdek wat we nog meer leuks voor jou hebben!

Studio met terras in res. Horizon Suites
Studio met terras in res. Horizon Suites

Project: Residentie Horizon Suites in San Pedro del Pinatar

Stad: San Pedro del Pinatar - Mar-Menor

1     44 m²   4 m²  

Penthouse Galena met 2 slaapkamers in Herrerias
Penthouse Galena met 2 slaapkamers in Herrerias

Project: Residentie Galena woningen met zwembad in Almería

Stad: Cuevas Del Almanzora

2   2     84 m²   32 m²  

Cabo Roig  Appartementen op een toplocatie!
Cabo Roig  Appartementen op een toplocatie!

Project: Gerenoveerd wooncomplex in Lomas de Cabo Roig

Stad: Orihuela Costa-Alicante

1   1     52 m²   46 m²  

Sun and Sea-Playa De Los Locos-Torrevieja
Sun and Sea-Playa De Los Locos-Torrevieja

Project: Sun and Sea-Playa De Los Locos-Torrevieja

Stad: Torrevieja-Alicante

1   1     55 m²   3 m²  

AN Home Appartement in Torrevieja
AN Home Appartement in Torrevieja

Project: AN Home appartementen vlakbij zee in Torrevieja

Stad: Torrevieja-Alicante

1   1     55 m²   8 m²  

Virazón-San Juan de los Terreros
Virazón-San Juan de los Terreros

Project: Virazón-San Juan de los Terreros

Stad: San Juan de los Terreros

2   1     72 m²   10 m²  

Penthouse (studio) in Torrevieja nabij zee
Penthouse (studio) in Torrevieja nabij zee

Project: Torrevieja: Nieuwbouw op 200m van zee, unieke kans

Stad: Torrevieja-Alicante

0   1   54 m²   12 m²  

Lofts Maestro - Alicante - Appartement
Lofts Maestro - Alicante - Appartement

Project: Lofts Maestro - Alicante

Stad: Alicante

1   1   66 m²   1 m²  

Loftstijl appartementen"Postiget" in Alicante
Loftstijl appartementen"Postiget" in Alicante

Project: Loftstijl appartementen"Postiget" in Alicante

Stad: Alicante

1   1     49 m²   2 m²  

Penthouse Riomar Healthy Living
Penthouse Riomar Healthy Living

Project: Assistentie appartementen Riomar Healthy Living

Stad: Torre De La Horadada

1   1   96 m²   44 m²  

Edificio Aqua - La Mata - Gelijkvloers appartement
Edificio Aqua - La Mata - Gelijkvloers appartement

Project: Edificio Aqua - La Mata

Stad: La Mata-Torrevieja

2   2   89 m²  

Modern 1-slaapkamerappartement in Santa Pola
Modern 1-slaapkamerappartement in Santa Pola

Project: Investeren in Sea Essence - Luxe appartementen

Stad: Santa Pola

1   1     46 m²   3 m²  

Lees mee met onze nieuwste blogs!

After Sales: jouw zorgeloze ervaring in Spanje
After Sales: jouw zorgeloze ervaring in Spanje

Casas Kimpencio biedt uitgebreide aftersales services voor huiseigenaren in Spanje, waaronder hulp bij het kopen van keukentoestellen, auto’s huren of kopen, woninginrichting, internetabonnementen, aanpassingen aan je woning, sleutelbeheer, verhuurservices, verzekeringen en lokale informatie. <...

Martine

10 redenen om nu een woning in Spanje te kopen!
10 redenen om nu een woning in Spanje te kopen!

Je droomt al langer van een leven onder de zon, met meer rust, warmte en vrijheid. In deze blog ontdek je waarom juist nú het moment is om die stap te zetten: de prijzen, het klimaat, de levensstijl, én de zekerheid die Spanje vandaag biedt.

...

Martine

Alles over wonen in Spanje
Alles over wonen in Spanje

Ontdek wat NIE, empadronamiento en tarjeta residencia betekenen. Wij delen tips, verrassende weetjes en onze dagelijkse ervaring in Spanje.

Bij Casas Kimpencio combineren we praktische kennis, persoonlijke begeleiding en lokale ervaring om jouw leven in Spanje soepel en zorgeloos te maken.<...

Martine

square-box