Home Lopende projecten Alle Panden Over ons Ons team Ons kantoor Onze werkwijze Contacteer ons Blog Cookies

Jouw droomhuis in Spanje wacht op je!

 Project: Moderne appartementen in Hondón de las Nieves

Nieuwbouw in Spanje met topafwerking en luxe

Korte beschrijving:

Luxe appartement in Hondón de las Nieves – Vineyard Views

Dit exclusieve gelijksvloers appartement in de Vineyard Views ontwikkeling biedt een perfecte combinatie van moderne luxe en het charmante, rustige leven van Hondón de las Nieves, provincie Alicante. Gelegen in een prachtige natuurlijke omgeving met uitzicht op wijngaarden, biedt dit appartement alles wat je zoekt in een nieuwe woning.

Belangrijkste kenmerken:

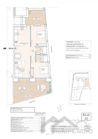
  • 2 slaapkamers en 2 badkamers, met een open en lichte indeling die zorgt voor een luchtige en ruime sfeer.
  • Woonoppervlakte van 90 m², met een functionele en moderne lay-out, perfect voor comfortabel wonen.
  • Groot privé terras van 41 m², ideaal voor het genieten van het mediterrane klimaat en het prachtige uitzicht op de omliggende natuur en wijngaarden.
  • Volledig uitgeruste keuken met granieten werkbladen en moderne apparatuur, zodat koken een plezier wordt.
  • Pre-installatie van airconditioning, voor een comfortabel klimaat in alle seizoenen.
  • Energie-efficiëntie dankzij de installatie van zonnepanelen en een aerothermisch warmwatersysteem.
  • Veilige en versterkte toegangsdeur voor extra gemoedsrust.
  • Ondergrondse parkeerplaats en berging, ideaal voor het opbergen van persoonlijke bezittingen.
  • Gemeenschappelijk zwembad, perfect voor ontspanning in de zon.

Dit appartement biedt zowel luxe als energie-efficiëntie, en is ideaal voor wie op zoek is naar een permanente woning, vakantiehuis of investering in het hart van de Costa Blanca.

Prijs vanaf: €240.000 Leveringsdatum: 01-12-2025  Neem vandaag nog contact met ons op voor meer informatie of om een bezichtiging te regelen!

U bent nog niet aangemeld!

Na invullen van onderstaande gegevens wordt u aangemeld, indien er nog geen account bestaat kan deze aangemaakt worden!



 Geef ons uw mening...

 Momenteel nog geen reviews voor dit pand.

Uitgebreide beschrijving:

Exclusieve nieuwbouwappartementen met uitzicht op de wijngaarden in Hondón de las Nieves Moderne woningen in een unieke natuurlijke omgeving

Ontdek dit nieuwe appartementenproject in Hondón de las Nieves, een charmant dorp in een prachtige vallei omringd door olijf- en amandelboomgaarden.

Dit project biedt 15 exclusieve woningen met 2 en 3 slaapkamers, allemaal ontworpen om maximaal comfort, energie-efficiëntie en een prachtig uitzicht op de wijngaarden van de Vinalopó te bieden. Deze rustige enclave ligt in Vinalopó Medio en is ideaal voor wie op zoek is naar een ontspannen mediterrane levensstijl, met gemakkelijke toegang tot de natuur en alle essentiële voorzieningen.

Hoge kwaliteit en modern ontwerp

Elk appartement is ontworpen met materialen van topkwaliteit en een functionele lay-out, met:

  • Ruime en open woonruimtes, ideaal voor het moderne leven.
  • Volledig ingerichte keukens met granieten werkbladen.
  • Topklasse badkamers met ingebouwde reservoirs en topkwaliteit sanitair.
  • Energie-efficiëntie met aerothermisch systeem voor warm water.
  • Pre-installatie van gekanaliseerde airconditioning, voor comfort in alle seizoenen.
  • Aluminium ramen met dubbele beglazing voor thermische en akoestische isolatie.
  • Versterkte veiligheidsdeur voor gemoedsrust.
  • Parkeerplaats en berging in de kelder, inbegrepen in de prijs.
  • Lift in het gebouw voor toegankelijkheid en comfort.
  • Zonnepanelen op het dak om de energie-efficiëntie te verbeteren en de onderhoudskosten te verlagen.
  • Bovendien beschikt de residentie over een gemeenschappelijk zwembad, perfect om te genieten van het mediterrane klimaat.

Bevoorrechte locatie in Hondón de las Nieves

  • Hondón de las Nieves is een stad met een grote wijntraditie, beroemd om zijn tafeldruiven met de oorsprongsbenaming Vinalopó. Het gebied wordt omringd door de Sierra de Crevillente en biedt talloze wandelpaden, natuurgebieden en een rijk cultureel en historisch aanbod.
  • Vanuit je nieuwe huis heb je snel toegang tot de belangrijkste bezienswaardigheden in de omgeving:
  • Vliegveld Alicante - 30 km (30 minuten met de auto).
  • Stranden van Alicante - 35 km (35 minuten met de auto)
  • Elche - 20 km (20 minuten met de auto)
  • Natuurpark Crevillente - 10 km (15 minuten rijden)
  • Golfbanen - 25 km (30 minuten rijden)

Een ideaal huis aan de Costa Blanca

Geniet van de rust van de Hondón Vallei, zonder de nabijheid van Alicante en Elche op te geven.

Deze moderne appartementen zijn een onverslaanbare keuze voor permanente bewoning, vakantie of investering.

Neem vandaag nog contact met ons op voor meer informatie of om een bezichtiging te regelen.


Kenmerken:

Aantal slaapkamers 2
Aantal badkamers 2
Privaat zwembad Ja
Oppervlakte perceel rond het huis 0 m²
Bebouwde oppervlakte 90 m²
Bewoonbare oppervlakte 74 m²
Afstand naar het strand 37 km
Terras oppervlakte 41 m²
Gedeeld zwembad Ja
Poort Ja
Nabij Scholen Ja
Terras Ja
Douche schermen Ja
Nabij bushalte Ja
Pré installatie airco Ja
privé parkeerplaats Ja
Ondergrondse parking Ja
Telefoon Data aansluiting Ja
Videofonie Ja
Inbouwkasten Ja
Aero thermische warmtepomp Ja
Badkamer spiegels Ja
Volledig bemeubeld Nee
Alle keuken apparatuur volledig inbegrepen Ja
Berging Ja
Private Tuin Ja
Oriëntatie Zuid
Golfresort afstand in km 10-15 km
Ziekenhuis afstand in km 5-10 km
Luchthaven Alicante afstand 30-40 km
Uitzicht bergen Ja
Lift Ja
Ontspanning ruimte buiten Ja
Hangend toilet Ja
Hangend badkamer meubel Ja
Uitzicht op het zwembad Ja
Security glas met uv filter Ja
Security 24/24 Ja
Volledig ingerichte keuken Ja
Gepantserde toegangsdeur met veiligheidsslot Ja
Grote ramen van vloer tot plafond Ja
Hoogwaardige afwerking Ja
Goede prijs-kwaliteit verhouding Ja
Aerothermische boiler Ja
Hoge plafonds Ja
Meubelpakket Optioneel
Gelijkvloers Ja
Bungalow Ja
Penthouse Ja
Luxe nieuwbouw Ja
Extra grote ramen uitkijkend op tuin en zwembad Ja
Kijkwoning Ja
Goed gebied voor rentabiliteit van huur Ja
Fietsberging Ja
Energielabel A
Afgewerkte badkamer Ja
Gesloten urbanisatie Ja

Meer info?


Beschikbare documenten

property-3393-9-pic.webp

document-property-3393-9-pic.webp

download

Ontdek en droom mee van al het nieuws in Spanje!

Appartement op tussenverdiep - Spa Valley II
Appartement op tussenverdiep - Spa Valley II

Project: Residentie Spa Valley - Fase 2

Stad: Archena

1   1   42 m²   12 m²  

Appartement Costa Blanca betaalbaar
Appartement Costa Blanca betaalbaar

Project: Residentie Larrosa 43: betaalbaar in San Fulgencio

Stad: San Fulgencio

2   1     71 m²   6 m²  

Gelijkvloerse bungalow San Pedro del Pinatar
Gelijkvloerse bungalow San Pedro del Pinatar

Project: Woning Spanje kopen? Bella Salina vanaf €149.900

Stad: San Pedro del Pinatar - Mar-Menor

1   1     51 m²   7 m²  

Casas Kimpencio leert je alles wat je moet weten:

Nieuwbouw vs bestaande woning Spanje kiezen
Nieuwbouw vs bestaande woning Spanje kiezen

Nieuwbouw of bestaande woning kopen in Spanje lijkt een eenvoudige keuze… tot je er écht induikt.

Want wat op het eerste zicht goedkoper lijkt, kan op lange termijn duurder uitvallen. En wat duurder lijkt, kan net de slimste investering zijn.

Bij Casas Kimpencio zien we dagelij...

Martine

Casas Kimpencio specialist vastgoed Spanje!
Casas Kimpencio specialist vastgoed Spanje!

Casas Kimpencio Vastgoed Spanje groeit uit tot dé referentie voor wie een huis wil kopen in Spanje

Huis kopen in Spanje met Casas Kimpencio Nederlandstalige makelaar


...

Martine

Vliegschow Los Alcázares beleven in Spanje
Vliegschow Los Alcázares beleven in Spanje

Het spektakel van de vliegfeesten, de unieke ligging aan de Mar Menor en de aantrekkelijke vastgoedkansen in de regio. 

De vliegfeesten in Los Alcázares zijn een uniek spektakel boven de Mar Menor, met internationale airshows, historische roots en een levendige sfeer.

Wat wei...

Martine

square-box
Tine
Vragen over panden, projecten en onze content
Snel starten:

Hallo, ik ben Tine je kan bij mij terecht met al je vragen over panden, projecten en onze content. Ik antwoord alleen op basis van de beschikbare website-inhoud.