Home Lopende projecten Alle Panden Over ons Ons team Ons kantoor Onze werkwijze Contacteer ons Blog Cookies

Gelijkvloers appartement in residentie Vistalago

 Project: Residentie Vistalago in San Miguel de Salinas

Moderne nieuwbouwappartementen in het centrum van San Miguel

Korte beschrijving:

RESIDENTIE VISTALAGO – GELIJKVLOERS APPARTEMENT – COMPACT TERRAS – SAN MIGUEL DE SALINAS

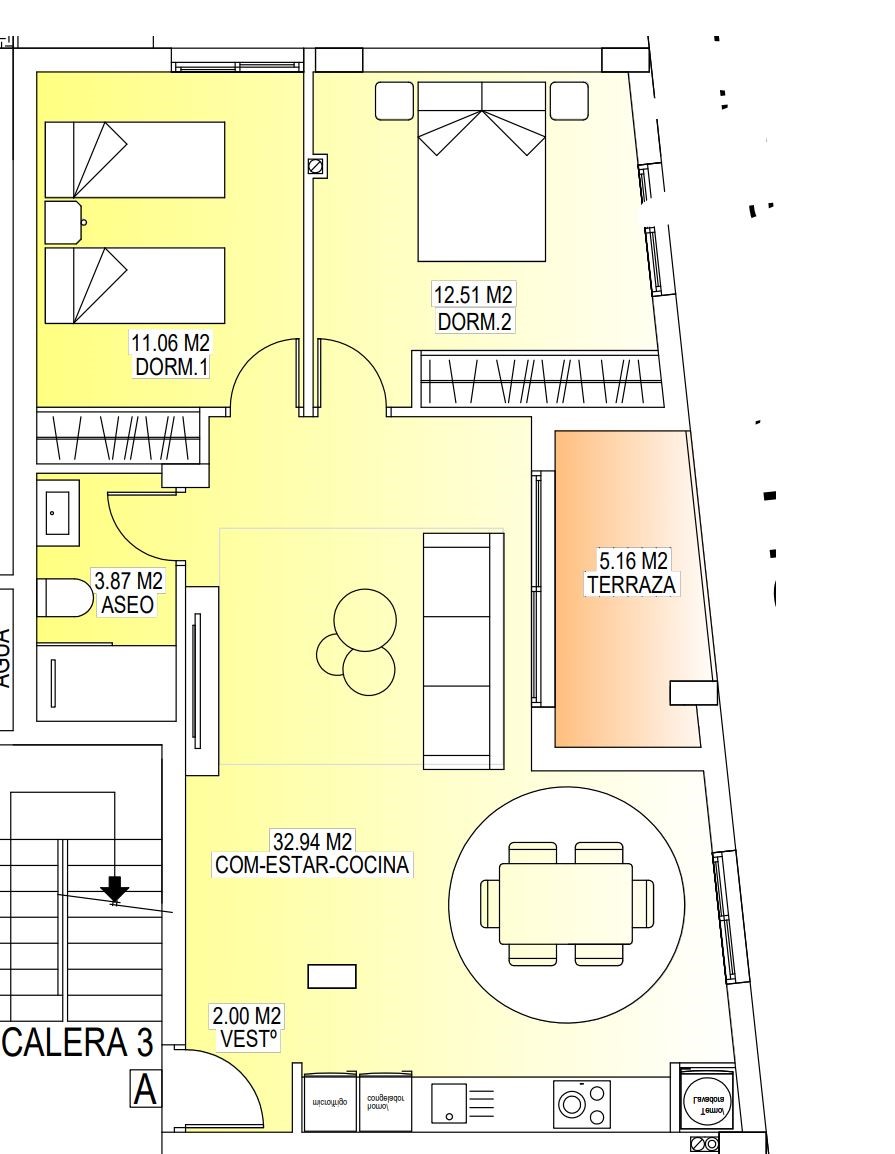
Dit gelijkvloers appartement is ideaal voor wie comfortabel wil wonen zonder trappen en met een directe connectie naar buiten. Bij het binnenkomen stap je meteen de leefruimte met open keuken binnen, een praktische en gezellige indeling waar wonen en koken mooi samenkomen. De keuken is voorbereid voor alle toestellen, zodat installatie vlot kan gebeuren en je snel kan intrekken.

De woonkamer sluit aan op een privéterras van 5 m², perfect voor wat frisse lucht of een rustig koffiemoment. De slaapkamers zijn uitgerust met ingebouwde kasten met hangruimte, legplanken en lades, waardoor elke vierkante meter optimaal benut wordt. De badkamer is volledig afgewerkt met wastafelmeubel, douche en toilet, wat maakt dat de woning meteen gebruiksklaar is.

Binnen de residentie geniet je bovendien van uitzonderlijke gemeenschappelijke faciliteiten. Op het gelijkvloers bevindt zich een groene ontmoetingszone met zitplaatsen, fietsenstallingen en een speelruimte, terwijl het indrukwekkende dakterras met zwembaden, ligzones en panoramische uitzichten een echte meerwaarde vormt. Dankzij de lift bereik je deze ontspanningsruimte moeiteloos, waardoor comfort en toegankelijkheid centraal blijven staan.

U bent nog niet aangemeld!

Na invullen van onderstaande gegevens wordt u aangemeld, indien er nog geen account bestaat kan deze aangemaakt worden!



 Geef ons uw mening...

 Momenteel nog geen reviews voor dit pand.

Uitgebreide beschrijving:

Deze woning is gelegen op de gelijkvloerse verdieping en voorzien van 2 slaapkamers met 1 badkamer. Bij het betreden van de woning, kom je meteen terecht in de woonkamer met open keuken. In de keuken is er een koelkast, oven, magnetron, diepvriezer. Deze uitsparingen zijn voorzien, zodat deze zorgeloos ingeïnstalleerd kunnen worden. 

De woonkamer heeft rechtstreekse toegang tot het terras van 5m². 

Deze woning is voorzien van 2 slaapkamers met 1 badkamer. Elke slaapkamer is voorzien van inbouwkasten met hangrekken, legplanken en lades. Elke badkamer is op zich dan weer uitgerust met een wastafel, bijpassend meubel, toilet en douche. 

DUS CONCREET: 

  • 2 slaapkamers
  • 1 badkamer
  • Open keuken 
  • Inbouwkasten slaapkamers
  • Afgewerkte badkamers

Deze woning heeft een terras van 5m². Verder zijn we in residentie Vistalago, een residentie van 56 appartementen met gemeenschappelijke voorzieningen. Op de begane vloer is het sociale hart van de residentie gelegen. Deze is voorzien van een ruime tuin, zitplaatsen, fietsenstallingen en kinderspeelplaats. 

Op het dak is er een gemeenschappelijke ruimte gelegen van in totaal 350m². In deze ruimte is er onder meer een zwembad van 70m² gelegen, een kinderzwembad, ligstoelen, schaduwplekken, ... Deze ruimte is makkelijk te bereiken dankzij de lift. Op het solarium geniet je van panoramische zichten. Op het solarium is er ook sanitair voorzien voor jouw gemak. 

TECHNISCHE KENMERKEN: 

  • Pré-installatie airconditioning
  • Energiecertificaat A
  • Beveiligde voordeur

Deze woning is gelegen in San Miguel de Salinas. San Miguel de Salinas is een charmant en traditioneel Spaans dorp in het binnenland van de zuidelijke Costa Blanca, gelegen tussen de zoutmeren en de heuvels met uitzicht richting zee. Het dorp staat bekend om zijn rustige karakter, authentieke sfeer en panoramische vergezichten over de Vega Baja. Hier leef je weg van de drukte van de kust, maar toch dichtbij alles wat de regio aantrekkelijk maakt.

Het centrum van San Miguel de Salinas is levendig en goed voorzien, met gezellige pleinen, lokale winkels, cafés en restaurants waar bewoners elkaar dagelijks ontmoeten. De smalle straatjes, de kerk en de traditionele architectuur geven het dorp een warm en herkenbaar karakter. Wekelijkse markten en dorpsfeesten zorgen voor extra dynamiek en houden de lokale cultuur springlevend.

Dankzij de hogere ligging geniet San Miguel van frisse lucht en vaak een lichte bries, wat vooral in de zomer aangenaam is. Tegelijkertijd liggen de stranden van Orihuela Costa en Torrevieja op korte rijafstand, net als meerdere golfbanen. Hierdoor combineert San Miguel perfect de rust van het binnenland met de mogelijkheden van de kust.

Wat veel mensen niet weten, is dat San Miguel een van de mooiste uitzichtpunten van de regio heeft. Vanaf verschillende plekken rond het dorp kijk je uit over zoutmeren, citrusvelden en de Middellandse Zee in de verte. Vooral bij helder weer en tijdens zonsondergang levert dit indrukwekkende panorama’s op.

Daarnaast heeft San Miguel een sterk gemeenschapsgevoel dat ook nieuwe bewoners snel opneemt. Het leven is hier persoonlijker en kleinschaliger, waardoor je je snel thuis voelt. Het is precies die combinatie van uitzicht, rust en verbondenheid die het dorp zo aantrekkelijk maakt.

AFSTANDEN: 

  • Centrum San Miguel de Salinas: ±500 m

  • Supermarkt en winkels: ±600 m

  • Restaurants & cafés: ±400 m

  • Golfbanen (Las Colinas, Campoamor, Villamartín): ±5–10 km

  • Strand Orihuela Costa: ±10 km

  • Torrevieja: ±12 km

  • Zoutmeren Torrevieja & La Mata: ±8 km

  • Winkelcentrum La Zenia Boulevard: ±9 km

  • Ziekenhuis Torrevieja: ±10 km

  • Luchthaven Alicante: ±50 km

  • Luchthaven Murcia (Corvera): ±45 km

Onze visie binnen Casas Kimpencio;

  • Bij Casas Kimpencio ben je niet zomaar iemand, wij willen een persoonlijke relatie aangaan.
  • We behandelen jullie zoals we zelf behandeld willen worden, met de nodige betrokkenheid, precisie en details.
  • Geen enkele vraag is ons te veel, we staan elke dag telefonisch voor jou klaar.
  • Wij hebben de gedachte dat een huis kopen niet zomaar een huis kopen is, maar een nieuwe thuis kopen.
  • Iedereen dient een eigen verhaal te krijgen, met verschillende hoofdstukken. 
  • Wij willen helpen aan het Spaanse hoofdstuk, een hoofdstuk van een nieuwe thuis, vakantiewoning of een investering.
  • En dit doen we met open, duidelijke communicatie  en daarmee geraken we er altijd, zo vinden we jouw ideale woning gebaseerd op meerdere gesprekken.
  • We helpen vanaf het begin tot aan de sleuteloverdracht, en ver daarbuiten. 

Wij vinden deze woning bijzonder omdat;

  • Gelijkvloers appartement met vlotte toegankelijkheid, ideaal voor wie comfort zoekt zonder trappen en met directe verbinding naar buiten

  • Slim ingedeelde leefruimte met open keuken, waar koken en wonen samenkomen in één gezellige, praktische omgeving

  • Voorzieningen voor alle keukentoestellen aanwezig, waardoor installatie snel verloopt en je meteen kan starten met inrichten

  • Terras van 5 m² aan de woonkamer, perfect voor frisse lucht, een koffiemoment of om even buiten te ontspannen

  • Ruime slaapkamers met ingebouwde opbergmogelijkheden, zodat kleding en persoonlijke spullen netjes uit het zicht blijven

  • Volledig afgewerkte badkamer, uitgerust met meubel, douche en toilet zodat je zonder extra werk kan intrekken

  • Sociaal en groen hart binnen de residentie, met tuin, zitplaatsen, fietsenstalling en speelzone die het dagelijks leven aangenamer maken

  • Spectaculair dakterras van 350 m² met zwembaden, ligzones en panoramische uitzichten als verlengstuk van jouw woonruimte

  • Lift tot aan het solarium, waardoor comfort en toegankelijkheid voor iedereen gegarandeerd blijven

  • Energiezuinige keuze met label A, toekomstgericht wonen met lagere verbruikskosten

  • Gelegen in San Miguel de Salinas, een authentieke en rustige omgeving met mooie vergezichten en toch vlak bij kust en golf

WONINGEN BINNEN RESIDENTIE VISTALAGO: 

Type woning  Aantal slaapkamers / badkamers  Bebouwde oppervlakte  Terras in m² Prijs 
Gelijkvloers appartement  1/1 52m² 3.5m² €110.000
Gelijkvloers appartement  2/1 67m² 5m² €130.000
Gelijkvloers appartement 2/2 71m² 6m² €160.000
Gelijkvloers appartement  3/2 93m² 17m² €190.000
Appartement met terras 1/1 52m² 3m² €125.000
Appartement met terras  2/2 62m² 3m² €180.000
Penthouse 1/1 51m² 4m² €135.000
Penthouse 2/1 70m² 7m² €160.000
Penthouse  2/2 65m² 5m² €155.000

GROEI EN TRENDS IN SAN MIGUEL DE SALINAS: 

Jaar  Prijs per m² Jaarlijkse stijging 
2023 €2.383 -
2024 €2.383 +0%
2025 €2.639 +10.9%


Kenmerken:

Aantal slaapkamers 2
Aantal badkamers 1
Bebouwde oppervlakte 67 m²
Bewoonbare oppervlakte 62 m²
Afstand naar het strand 10 km
Terras oppervlakte 5 m²
Gedeeld zwembad Ja
Nabij Scholen Ja
Nabij kinder speeltuin Ja
Nabij bushalte Ja
Terras Ja
Douche schermen Ja
Solarium Gedeeld
Solarium oppervlakte in m2 301-400 m²
Pré installatie airco Ja
Led verlichting buiten Optioneel
Led verlichting binnen Optioneel
Telefoon Data aansluiting Ja
Videofonie Ja
Inbouwkasten Ja
Aero thermische warmtepomp Ja
Elektrische poort Ja
Badkamer spiegels Ja
Pre installatie keuken Ja
Berging Ja
Gedeelde tuin Ja
Uitzicht tuin Ja
Golfresort afstand in km 5-10 km
Ziekenhuis afstand in km 5-10 km
Luchthaven Alicante afstand 50+ km
Luchthaven Murcia afstand 50+ km
Gedeelde kosten Ja
Lift Ja
Ontspanning ruimte buiten Ja
Hangend toilet Ja
Hangend badkamer meubel Ja
Uitzicht op het zwembad Ja
Dampkap Ja
Gepantserde toegangsdeur met veiligheidsslot Ja
Hoogwaardige afwerking Ja
Goede prijs-kwaliteit verhouding Ja
Aerothermische boiler Ja
Gelijkvloers Ja
Goed gebied voor rentabiliteit van huur Ja
Energielabel A
Afgewerkte badkamer Ja
Gesloten urbanisatie Ja

Meer info?


Beschikbare documenten

gelijkvloers 2-1.jpeg

document-gelijkvloers 2-1.jpeg

download

Ontdek wat we nog meer voor jou in petto hebben!

Luxe bungalows in Pueblo, San Miguel de Salinas
Luxe bungalows in Pueblo, San Miguel de Salinas

Project: Luxe bungalows Horizon II, San Miguel de Salinas

Stad: Wonen in San Miguel: rust en zon aan zee

3   2     86 m²   11 m²  

Appartement met terras in residentie Vistalago
Appartement met terras in residentie Vistalago

Project: Residentie Vistalago in San Miguel de Salinas

Stad: Wonen in San Miguel: rust en zon aan zee

2   1   70 m²   7 m²  

Bovenste bungalow met solarium in SAGA Resort
Bovenste bungalow met solarium in SAGA Resort

Project: SAGA Nieuwbouw bungalows in San Miguel de Salinas

Stad: Wonen in San Miguel: rust en zon aan zee

2   2   152 m²   16 m²  

Bovenste bungalow met solarium in Horizon Resort
Bovenste bungalow met solarium in Horizon Resort

Project: Luxe bungalows in San Miguel de Salinas - F2

Stad: Wonen in San Miguel: rust en zon aan zee

2   2   152 m²   16 m²  

Villa Idealis in San Miguel de Salinas
Villa Idealis in San Miguel de Salinas

Project: Villa Idealis in San Miguel de Salinas

Stad: Wonen in San Miguel: rust en zon aan zee

4   2     169 m²   60 m²  

Onafhankelijke villa in Villas de la Sal
Onafhankelijke villa in Villas de la Sal

Project: Villas de la Sal in San Miguel de Salinas - F5

Stad: Wonen in San Miguel: rust en zon aan zee

3   2     107.32 m²   11 m²  

Appartement met terras in Cruise Resort
Appartement met terras in Cruise Resort

Project: Residentie Cruise Resort in San Miguel de Salinas

Stad: Wonen in San Miguel: rust en zon aan zee

2   2   158 m²   81 m²  

Exclusieve herverkoop: penthouse in res. Veleta
Exclusieve herverkoop: penthouse in res. Veleta

Project: Residentie Veleta in San Miguel de Salinas

Stad: Wonen in San Miguel: rust en zon aan zee

2   2   99 m²   5 m²  

Bovenste bungalow met solarium in Sol Natura
Bovenste bungalow met solarium in Sol Natura

Project: Residentie Sol Natura

Stad: Wonen in San Miguel: rust en zon aan zee

3   2   73 m²   13 m²  

Luxe penthouse in Cruise Resort Spanje
Luxe penthouse in Cruise Resort Spanje

Project: Cruise resort San Miguel de salinas

Stad: Wonen in San Miguel: rust en zon aan zee

3   2     80 m²   109 m²  

Penthouse met solarium en 3 slaapkamers
Penthouse met solarium en 3 slaapkamers

Project: Luxe bungalows in San Miguel de Salinas

Stad: Wonen in San Miguel: rust en zon aan zee

3   2      

Modern comfort in San Miguel de Salinas
Modern comfort in San Miguel de Salinas

Project: Appartementen in San Miguel de Salinas

Stad: Wonen in San Miguel: rust en zon aan zee

2   2   70 m²   21 m²  

Lees mee met onze nieuwste blogs!

Advocaat in Spanje
Advocaat in Spanje

Ontdek waarom een Nederlandstalige advocaat in Spanje niet zomaar handig is, maar essentieel voor jouw gemoedsrust en zekerheid onder de zon.


...

Martine

Zorgeloos kopen in Spanje met Casas Kimpencio
Zorgeloos kopen in Spanje met Casas Kimpencio

Een droomhuis onder de zon aan de Costa Blanca is een veelvoorkomend verlangen. 

Er zijn veel mogelijkheden om een tweede huis te vinden in deze regio, of het nu gaat om een appartement aan zee, een villa in het binnenland of een nieuwbouwproject.

 De Costa Blanca staat beke...

Martine

Spaanse woorden die je begrijpt als je hier leeft
Spaanse woorden die je begrijpt als je hier leeft

Wie in Spanje woont of er regelmatig verblijft, merkt het al snel: Spaans is geen droge taal.

Het is expressief, speels en doorspekt met emoties. Veel woorden zeggen meer da...

Juliette

square-box
Tine
Vragen over panden, projecten en onze content
Snel starten:

Hallo, ik ben Tine je kan bij mij terecht met al je vragen over panden, projecten en onze content. Ik antwoord alleen op basis van de beschikbare website-inhoud.