Home Lopende projecten Alle Panden Over ons Ons team Ons kantoor Onze werkwijze Contacteer ons Blog Cookies

Onafhankelijke villa in Villas de la Sal

 Project: Villas de la Sal in San Miguel de Salinas - F5

Villa met solarium en optioneel zwembad

Korte beschrijving:

ONAFHANKELIJKE VILLA - TUIN EN SOLARIUM - 3 SLAAPKAMERS EN 2 BADKAMERS 

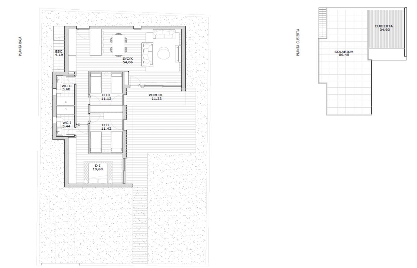
Deze woning is voorzien van 3 slaapkamers met 2 badkamers. De hoofdslaapkamer is voorzien van een badkamer-ensuite. Elke badkamer is afgewerkt met prachtige materialen, zoals marmer én zwarte mengkranen. Dit biedt een tijdloos, elegant kader aan jouw woning. 

Doorheen deze woning staat lichtinval en toegang centraal. Zo heeft elke ruimte op de gelijkvloerse verdieping ( woonkamer en de 3 slaapkamers ) rechtstreeks toegang via schuiframen tot de tuin. Tegen een meerprijs, kan je een zwembad installeren. 

U bent nog niet aangemeld!

Na invullen van onderstaande gegevens wordt u aangemeld, indien er nog geen account bestaat kan deze aangemaakt worden!



 Geef ons uw mening...

 Momenteel nog geen reviews voor dit pand.

Uitgebreide beschrijving:

Deze woning is verdeeld over 2 verdiepingen. Op de begane vloer zijn alle leefruimtes gelegen. Er is een ruime woonkamer voorzien met open keuken. De keuken heeft een kookeiland waardoor koken nog nooit zo verbonden gebeurde met de gasten. De keuken is uitgerust met de wastafel, kraan en een inductiekookplaat met ingebouwde dampkap. Vanuit de woonkamer kijk je via enorme glaspartijen uit op jouw eigen tuin. De woning is gebouwd op een minimum perceel van 300m².

Er zijn ook 3 slaapkamers voorzien. De hoofdslaapkamer is een klepper van formaat, deze heeft een badkamer-ensuite én ruime inbouwkasten. De badkamers zijn allen voorzien van een wastafel met bijpassend badkamermeubel, toilet, douche én spiegel. De afwerking gebeurt in een strakke maar tijdloze stijl, zodat jouw comfort centraal blijft staan. Met de zwarte mengkranen wanen we ons in een tijdloze elegantie. De tweede en derde slaapkamer delen een badkamer. Elke slaapkamer heeft via grote schuiframen toegang tot de tuin. 

In de tuin is er een optie om een zwembad te bouwen. Rond de woning is er een ruim terras aangelegd van 11m², de rest blijft groene zone. Naast de buitenruimte op de begane vloer, is er ook een solarium van maar liefst 86m² waarvan nog eens 35m² overdekt terras. Hier kan je de hele dag door genieten van de zon en prachtige zonsondergangen. 

De woning is volledig omheind en voorziet een parkeerplaats op eigen perceel. Deze is te bereiken via een garagepoort. 

Doorheen de woning staat elegantie en een tijdloos kader centraal. Dit is overduidelijk te zien aan de marmeren en houten afwerking. Hierdoor blijft het ontwerp decennialang pracht uitstralen. Doorheen de gehele woning wordt de vloer betegeld met porselein. 

Extra troeven aan deze woning: 

  • Gemotoriseerde rolluiken
  • Aerothermische boiler voor sanitair warm water
  • Pré-installatie airconditioning

Deze woning is gelegen in San Miguel de Salinas. San Miguel de Salinas, gelegen op een heuvel tussen de zoutmeren van Torrevieja en het groene binnenland van de Vega Baja, is een plek waar rust, natuur en mediterrane charme samenkomen. Het dorp heeft een authentieke Spaanse uitstraling, met smalle straatjes, witte gevels en een sfeervol centraal plein waar lokale cafés en terrasjes het dagelijks leven kleur geven. Door de verhoogde ligging heb je op veel punten een prachtig uitzicht over het landschap, de zoutmeren en zelfs de Middellandse Zee in de verte.

De omgeving van San Miguel is een paradijs voor natuurliefhebbers. De nabijgelegen Sierra Escalona en Sierra de la Peña bieden een uitgestrekt natuurgebied waar je kunt wandelen, fietsen en genieten van een rijke flora en fauna. Toch ligt de kust verrassend dichtbij: binnen enkele minuten bereik je de stranden van Orihuela Costa, zoals Playa Flamenca, La Zenia en Campoamor, die bekendstaan om hun helder water en brede zandstroken. Hierdoor combineert San Miguel de Salinas een landelijk karakter met de voordelen van een kustlocatie.

Het leven in het dorp is rustig maar levendig genoeg om comfortabel te wonen. Er zijn restaurants, winkels, een wekelijkse markt en tal van sportfaciliteiten. In de directe omgeving liggen ook meerdere golfbanen, waaronder de bekende Las Colinas, Campoamor en Villamartín, waardoor de regio sterk geliefd is bij golfliefhebbers. Ondanks de groei van de urbanisaties rondom het dorp heeft San Miguel altijd zijn authentieke, warme sfeer weten te behouden.

Wat veel mensen niet weten, is dat San Miguel de Salinas een van de oudste nederzettingen van de regio is, met wortels die teruggaan tot de tijd van de Moren. Onder het dorp bevindt zich nog een netwerk van oude waterkanalen en grotten, ooit gebruikt voor opslag en irrigatie. Deze verborgen structuren vertellen veel over de geschiedenis en landbouwtraditie van de streek.

Daarnaast ligt San Miguel op een unieke klimatologische plek: tussen de zoutmeren en de bergen ontstaat een bijzonder gezond microklimaat met zachte winters en milde zomers. Dit heeft ertoe geleid dat veel bewoners hier speciaal komen wonen voor de zuivere lucht en het aangename buitenleven. En ’s avonds, wanneer het dorp baadt in warm licht en je de geur van jasmijn en sinaasappelbloesem ruikt, begrijp je meteen waarom San Miguel zo geliefd is.

AFSTANDEN: 

  • Luchthaven Alicante: 45 minuten

  • Luchthaven Murcia Corvera: 40 minuten

  • Winkels en supermarkten: 5 minuten

  • Restaurants en cafés: 3 minuten

  • Strand Orihuela Costa (Playa Flamenca / La Zenia): 12–15 minuten

  • Las Colinas Golf: 10 minuten

  • Villamartín Golf: 12 minuten

  • Torrevieja centrum: 15 minuten

  • Ziekenhuis Torrevieja: 12 minuten

  • Zenia Boulevard shoppingcenter: 10 minuten

GROEI EN TRENDS IN SAN MIGUEL DE SALINAS: 

Jaar  Prijs per m² Jaarlijkse stijging 
2023 €2.232 -
2024 €2.464 +10.4%
2025 €2.699 +9.5%


Kenmerken:

Aantal slaapkamers 3
Aantal badkamers 2
Privaat zwembad Optioneel
Terras Ja
Bebouwde oppervlakte 107.32 m²
Oppervlakte perceel rond het huis 190 m²
Bewoonbare oppervlakte 202 m²
Terras oppervlakte 11 m²
Douche schermen Ja
Afstand naar het strand 12 km
Solarium Ja
Solarium oppervlakte in m2 80-90 m²
Pré installatie airco Ja
Elektrische rolluiken Ja
Led verlichting buiten Ja
Led verlichting binnen Ja
privé parkeerplaats Ja
Telefoon Data aansluiting Ja
Videofonie Ja
Inbouwkasten Ja
Aero thermische warmtepomp Ja
Poort Ja
Badkamer spiegels Ja
Pre installatie keuken Ja
Nabij kinder speeltuin Ja
Private Tuin Ja
Oriëntatie Noord-west
Golfresort afstand in km 5-10 km
Ziekenhuis afstand in km 5-10 km
Nabij Commercieel centrum Ja
Luchthaven Alicante afstand 50+ km
Luchthaven Murcia afstand 50+ km
Uitzicht tuin Ja
Ontspanning ruimte buiten Ja
Hangend toilet Ja
Hangend badkamer meubel Ja
Dampkap Ja
Gepantserde toegangsdeur met veiligheidsslot Ja
Bioklimatologische pergola Ja
Hoogwaardige afwerking Ja
Aerothermische boiler Ja
Gelijkvloers met tuin Ja
Kijkwoning Ja
Afgewerkte badkamer Ja
Gesloten urbanisatie Ja

Meer info?


Beschikbare documenten

grondplan.jpeg

document-grondplan.jpeg

download

Ontdek wat we nog meer voor jou in petto hebben!

Moderne Ibiza-stijl villa te koop in Benissa
Moderne Ibiza-stijl villa te koop in Benissa

Project: Serenity: Gelijkvloerse Ibiza-stijl villa

Stad: Benissa

3   2     139 m²   68 m²  

Luxe villa Lysandra in Orihuela Costa, La Zenia
Luxe villa Lysandra in Orihuela Costa, La Zenia

Project: Luxe villa in Orihuela Costa - Lysandra Villa

Stad: Orihuela Costa-Alicante

3   4     203 m²   160 m²  

Luxe villa’s met zwembad in Desert Springs.
Luxe villa’s met zwembad in Desert Springs.

Project: Villa's op Golfresort Desert Spring Resort

Stad: Cuevas Del Almanzora

3   3     174 m²   51 m²  

Luxe villa op eerstelijn zee
Luxe villa op eerstelijn zee

Project: Residentie 3 Palmeras in Puerto de Mazarron

Stad: Puerto de Mazarrón

3   3     182 m²   56 m²  

Vrijstaande luxewoning in Arena Beach III
Vrijstaande luxewoning in Arena Beach III

Project: Arena golf villa's in La Finca Golf

Stad: Algorfa

6   3     486 m²   52 m²  

Luxevilla met zicht op zee en natuur in Polop
Luxevilla met zicht op zee en natuur in Polop

Project: Luxe nieuwbouw villa met zeezicht in Polop

Stad: Polop-Benidorm

4   3     208 m²   160 m²  

Villa met prachtig bergzicht in residentie Airen
Villa met prachtig bergzicht in residentie Airen

Project: Airen: eco-vriendelijke luxe villa's in Llíber

Stad: Llíber

3   2     432.76 m²    

Villa met prachtig bergzicht in residentie Airen
Villa met prachtig bergzicht in residentie Airen

Project: Airen: eco-vriendelijke luxe villa's in Llíber

Stad: Llíber

3   2     432.76 m²    

Luxe villa op eerstelijn zee
Luxe villa op eerstelijn zee

Project: Residentie 3 Palmeras in Puerto de Mazarron

Stad: Puerto de Mazarrón

3   3     182 m²   56 m²  

Luxueuze nieuwbouwvilla's in Sierra Cortina!
Luxueuze nieuwbouwvilla's in Sierra Cortina!

Project: Residentie Sea View 6: Luxe woningen nabij de zee

Stad: Finestrat-Benidorm

3   3     155 m²   69 m²  

Exclusieve ruime villa in Roldán
Exclusieve ruime villa in Roldán

Project: VILLAS ROLDÁN

Stad: Roldan

3   2     199 m²   106 m²  

Appartement met terras in Azure Icons
Appartement met terras in Azure Icons

Project: Residentie Azure Icons in Calpe

Stad: Calpe-Costa-Blanca

3   2     125 m²   30 m²  

Ontdek het laatste nieuws!

De voordelen van spaans vastgoed
De voordelen van spaans vastgoed

Een huis in Spanje is meer dan een investering. Het is een keuze voor rust, zon en levenskwaliteit. Bij Casas Kimpencio geloven we dat rendement pas echt telt als het goed voelt. Spanje biedt niet alleen een sterke vastgoedmarkt en een hoog verhuurrendement, maar ook een leven in balans, met t...

Martine

Waarom we niet aanwezig waren op de beurs  ?
Waarom we niet aanwezig waren op de beurs ?

Ontdek Casas Kimpencio's unieke aanpak: Second Home beurzen zijn niet ons pad, wij koesteren duurzame relaties. We bieden buitengewone persoonlijke service en waarborgen privacy in elke stap. Kies voor een partnerschap dat verder gaat dan een beurscontact. Uw reis met ons is gevuld met toewijding...

Martine

Ongehuwd een huis kopen in Spanje
Ongehuwd een huis kopen in Spanje

Samen een huis kopen in Spanje, maar (nog) niet getrouwd? Dat kan perfect zolang je weet hoe de Spaanse wet jouw relatie bekijkt. In deze blog ontdek je wat er verandert als je ongehuwd koopt: van erfbelasting en registratie tot bescherming en praktische tips. Helder uitgelegd, in gewone taal en ...

Martine

square-box
Tine
Vragen over panden, projecten en onze content
Snel starten:

Hallo, ik ben Tine je kan bij mij terecht met al je vragen over panden, projecten en onze content. Ik antwoord alleen op basis van de beschikbare website-inhoud.