Home Lopende projecten Alle Panden Over ons Ons team Ons kantoor Onze werkwijze Contacteer ons Blog Cookies

Geschakelde woning in residentie Sinergia World VIII

 Project: Residentie Sinergia World VIII in Serena Golf

Nieuwbouwwoningen aan de frontlinie van La Serena Golf

Korte beschrijving:

GESCHAKELDE WONING – 3 SLAAPKAMERS - 2 BADKAMERS – PRIVÉZWEMBAD – LOS ALCÁZARES, LA SERENA GOLF

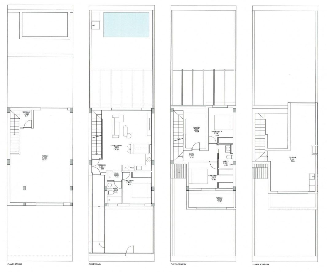
Deze moderne villa is verdeeld over vier verdiepingen en beschikt over 3 slaapkamers en 2 badkamers. In de onderbouw bevindt zich een garage van 50 m² voor twee wagens met extra bergruimte. Op de gelijkvloerse verdieping vind je de lichte leefruimte met open keuken, volledig uitgerust met elektrische toestellen, berging met wasmachinevoorziening, een eerste slaapkamer en badkamer. Grote schuiframen verbinden de woonkamer met de tuin.

Op de eerste verdieping liggen twee slaapkamers en een badkamer. Eén slaapkamer heeft toegang tot een privéterras van 8 m², terwijl er daarnaast nog een terras van 10 m² is. Via een buitentrap bereik je het solarium van 30 m² met zomerkeuken, de hele dag zon en uitzicht op de golfbaan. Buiten beschikt de woning over een privézwembad, buitendouche, aangelegde tuin en meerdere terrassen. De oriëntatie oost en west zorgt voor zon van ’s morgens tot ’s avonds.

Deze villa ligt frontlinie aan La Serena Golf in Los Alcázares, op slechts 1,3 km van het strand. De omgeving biedt rust, natuur en zicht op de Mar Menor, gecombineerd met nabijheid van voorzieningen zoals restaurants, winkels, het centrum en sportfaciliteiten. Een ideale combinatie van wooncomfort, ligging en investering.

U bent nog niet aangemeld!

Na invullen van onderstaande gegevens wordt u aangemeld, indien er nog geen account bestaat kan deze aangemaakt worden!



 Geef ons uw mening...

 Momenteel nog geen reviews voor dit pand.

Uitgebreide beschrijving:

Deze woning is verdeeld over 4 verdiepingen en is voorzien van 3 slaapkamers met 2 badkamers. Allereerst is er een ondergrondse verdieping, waar er een garage gelegen is van 50m², plaats voor 2 wagens. Deze garage is verbonden met een oprijlaan, zodat je altijd veilig jouw wagen kan parkeren. In die garage is er ook een opbergruimte om praktische spullen in op te bergen. 

Een verdieping hoger, is de gelijkvloerse verdieping gelegen. Daar is er een ruime leefruimte met open keuken. De keuken is voorzien van een koelkast, magnetron, afwasmachine, oven, ... Volledig instapklaar dus! Aansluitend aan de keuken, is er een berging voorzien met aansluitingen voor een wasmachine. 

Verder is er ook een eerste slaapkamer met de eerste badkamer gelegen op de begane vloer. De badkamer is uitgerust met een badkamermeubel, toilet, douche, ... Elke slaapkamer is uitgerust met inbouwkasten met hangrekken, legplanken en lades. 

Op de eerste verdieping zijn de overige 2 slaapkamers en badkamer gelegen. Deze 2 slaapkamers delen een badkamer. De tweede slaapkamer heeft toegang via grote schuiframen tot het privéterras van 8m². 

Op de eerste verdieping is er ook nog balkon gelegen van 10m². Via dat terras bereik je via een buitentrap het solarium van 30m². Het solarium heeft de hele dag door zon én geniet je van de prachtige golfbaan La Serena Golf. 

Op het dakterras is er een zomerkeuken geïnstalleerd, met inbouwkast en granieten werkblad. 

DUS CONCREET: 

  • 3 slaapkamers
  • 2 badkamers
  • Berging 
  • Open keuken met elektrische toestellen 
  • Open leefruimte met zicht op het zwembad
  • 2 terrassen op de eerste verdieping 
  • Solarium met zomerkeuken 

Bij deze woning is er heel wat buitenruimte voorzien. Op de begane vloer is er een ruime tuin gelegen met privézwembad én buitendouche. Vanuit het zwembad heb je eerstelijn zicht op de golfbaan, via uitsparingen. Op de eerste verdieping zijn er 2 terrassen én op de bovenste verdieping is er een solarium gelegen van 30m². 

De woning is west en oost georiënteerd; ideaal dus. In de voormiddag heb je zon én aan de andere zijde van jouw woning heb je in de namiddag zon. Op het solarium heb je bovendien de hele dag door zon. 

TECHNISCHE KENMERKEN: 

  • Uitstekende akoestische isolatie
  • Airconditioning 
  • Porseleinen tegels
  • Elektrische rolluiken
  • Beveiligde voordeur
  • Dubbele beglazing
  • Branddeuren in de garage
  • Bewakingscamera op straat
  • Elektrische garagepoort

Deze woning is gelegen in Los Alcazares, nabij La Serena Golf. Los Alcázares, gelegen aan de oevers van de Mar Menor in de regio Murcia, is een charmante kustplaats waar ontspanning, natuur en mediterrane elegantie samenkomen. De ligging aan de binnenzee zorgt voor kalm en ondiep water, ideaal om te zwemmen, zeilen of gewoon te genieten van de rust aan het strand. Het klimaat is er mild, met meer dan 300 zonnige dagen per jaar, waardoor het leven zich grotendeels buiten afspeelt. De boulevard langs de kust bruist van gezelligheid met restaurants, ijssalons en terrassen die uitkijken over het water.

De woning ligt direct aan de frontlinie van Serena Golf, een van de mooiste golfbanen van de regio. Vanaf hier geniet je dagelijks van uitzicht over de perfect onderhouden greens, waterpartijen en palmbomen, terwijl de zeebries voor een aangenaam klimaat zorgt. Serena Golf is ontworpen door voormalig Ryder Cup-speler Manuel Piñero en biedt 18 uitdagende holes, maar ook een clubhuis met restaurant, lounge en een ruim terras waar golfers en bezoekers samenkomen. Het uitzicht vanaf de woning, met de golfbaan op de voorgrond en de Mar Menor op de achtergrond, zorgt voor een rustgevend en luxueus gevoel dat moeilijk te evenaren is.

In de omgeving van Los Alcázares vind je een ideale balans tussen ontspanning en activiteit. Naast golfen kun je hier wandelen of fietsen langs de kust, watersporten beoefenen of genieten van wellness- en fitnessfaciliteiten in de nabijgelegen resorts. Het centrum van de stad ligt op korte afstand en biedt alles wat je nodig hebt: winkels, markten, lokale tapasbars en restaurants waar verse vis en traditionele gerechten centraal staan.

Wat veel mensen niet weten, is dat Los Alcázares een bijzondere geschiedenis heeft als kuuroord. De Romeinen ontdekten hier al de mineraalrijke modder en het zoutwater van de lagune, die bekendstaan om hun geneeskrachtige werking. Vandaag de dag zijn er nog steeds plekken waar locals natuurlijke modderbaden nemen, een traditie die de band met de natuur en het gezonde klimaat versterkt.

Daarnaast is er in de vroege ochtend op de golfbaan een unieke rust die je zelden elders ervaart. Terwijl de eerste zon over de greens valt en vogels beginnen te zingen, heerst er een serene stilte waarin de geur van gras en zee samenkomen. Dit moment van pure kalmte, met uitzicht over de glooiende golfbaan en de glinsterende Mar Menor in de verte, laat zien waarom wonen op Serena Golf in Los Alcázares zo bijzonder is.

AFSTANDEN; 

  • Strand: 1.3 km 
  • Serena Golf: grenzend 
  • Centrum Los Alcazares: 2 km
  • Cartagena: 22 km 
  • Murcia: 40 km 
  • Luchthaven Murcia: 30 km 
  • Luchthaven Alicante: 90 km 

Onze visie binnen Casas Kimpencio;

  • Bij Casas Kimpencio ben je niet zomaar iemand, wij willen een persoonlijke relatie aangaan.
  • We behandelen jullie zoals we zelf behandeld willen worden, met de nodige betrokkenheid, precisie en details.
  • Geen enkele vraag is ons te veel, we staan elke dag telefonisch voor jou klaar.
  • Wij hebben de gedachte dat een huis kopen niet zomaar een huis kopen is, maar een nieuwe thuis kopen.
  • Iedereen dient een eigen verhaal te krijgen, met verschillende hoofdstukken. 
  • Wij willen helpen aan het Spaanse hoofdstuk, een hoofdstuk van een nieuwe thuis, vakantiewoning of een investering.
  • En dit doen we met open, duidelijke communicatie  en daarmee geraken we er altijd, zo vinden we jouw ideale woning gebaseerd op meerdere gesprekken.
  • We helpen vanaf het begin tot aan de sleuteloverdracht, en ver daarbuiten. 

Wij vinden deze woning bijzonder omdat; 

  • Luxe villa met 4 verdiepingen, 3 slaapkamers en 2 badkamers, waarbij de leefruimte en open keuken samen een lichtrijk geheel vormen dankzij grote schuiframen met uitzicht op de tuin, het zwembad en de golfbaan.

  • De keuken is volledig uitgerust met toestellen zoals koelkast, oven, magnetron, vaatwasser en kookplaat, en aansluitend is er een praktische berging voor wasmachine en extra opslag.

  • De hoofdslaapkamer beschikt over een ensuite badkamer en ingebouwde kasten, terwijl de andere slaapkamers eveneens ingebouwde kasten hebben en een tweede badkamer delen, elk smaakvol afgewerkt met douche, toilet, meubel en spiegel.

  • Buiten geniet je van een privézwembad met buitendouche, omringd door een aangelegde tuin en terrassen die uitnodigen om te ontspannen met zicht op de golfbaan.

  • Op de eerste verdieping zijn er twee private terrassen verbonden aan de slaapkamers, en via een trap bereik je het solarium waar een zomerkeuken is voorzien en je de hele dag door zon en uitzicht hebt.

  • De villa is doordacht georiënteerd naar het oosten en westen, waardoor je zowel ’s morgens als ’s namiddags zon hebt, terwijl het solarium zon vangt van zonsopgang tot zonsondergang.

  • De afwerking is van hoog niveau met airconditioning, porseleinen vloeren, elektrische rolluiken, dubbele beglazing, beveiligde voordeur en uitstekende geluidsisolatie.

  • De ondergrondse garage biedt plaats voor twee wagens, heeft een automatische poort en extra bergruimte, wat zorgt voor comfort en veiligheid.

  • Gelegen aan de frontlinie van La Serena Golf in Los Alcázares, met rust, natuur en water rondom, en toch vlakbij het strand, het centrum, restaurants, winkels en alle dagelijkse voorzieningen.

TRENDS EN GROEI IN LOS ALCAZARES: 

Jaar  Prijs per m² Jaarlijkse stijging 
2023 €1.317 -
2024 €1.491 +13.2%
2025 €1.612 +8.1%


Kenmerken:

Aantal slaapkamers 3
Aantal badkamers 2
Privaat zwembad Ja
Bebouwde oppervlakte 135 m²
Bewoonbare oppervlakte 110 m²
Afstand naar het strand 0.6 km
Terras oppervlakte 47 m²
Private Tuin Ja
Poort Ja
Nabij Scholen Ja
Nabij Commercieel centrum Ja
Terras Ja
Fietsafstand van het strand Ja
Douche schermen Ja
Buitenkeuken Ja
Solarium Ja
Solarium oppervlakte in m2 20-30 m²
Volledige airco installatie Ja
Elektrische rolluiken Ja
Led verlichting buiten Ja
Led verlichting binnen Ja
Zeezicht Ja
privé parkeerplaats Ja
Ondergrondse parking Ja
Garage Ja
Telefoon Data aansluiting Ja
Videofonie Ja
Inbouwkasten Ja
Elektrische poort Ja
Badkamer spiegels Ja
Alle keuken apparatuur volledig inbegrepen Ja
Kookplaat Dampkap Magnetron & Oven Ja
Nabij kinder speeltuin Ja
Uitzicht tuin Ja
Op golfterrein Ja
Golfresort afstand in km 0-2 km
Ziekenhuis afstand in km 10-20 km
Luchthaven Alicante afstand 50+ km
Luchthaven Murcia afstand 40-50 km
Ontspanning ruimte buiten Ja
Hangend toilet Ja
Hangend badkamer meubel Ja
Uitzicht op het zwembad Ja
Volledig ingerichte keuken Ja
Dampkap Ja
Gepantserde toegangsdeur met veiligheidsslot Ja
Hoogwaardige afwerking Ja
Aerothermische boiler Ja
Dressing Ja
Kijkwoning Ja
Wandelafstand van het strand Ja
Dubbele garage Ja
Extra verdieping ondergronds (basement) Ja
Energielabel B
Afgewerkte badkamer Ja

Meer info?


Beschikbare documenten

grondplan.jpeg

document-grondplan.jpeg

download

Ontdek wat we nog meer voor jou in petto hebben!

Studio met verhuurlicentie in Finestrat
Studio met verhuurlicentie in Finestrat

Project: Appartement met verhuurlicentie Costa Blanca

Stad: Finestrat-Benidorm

0   1     36 m²   1 m²  

Condado De Alhama- Mirador penthouse
Condado De Alhama- Mirador penthouse

Project: Condado De Alhama- Mirador del Condado-appartement

Stad: Alhama de Murcia

2   2     67 m²   47 m²  

Tussen-appartement Haciendo del Álamo
Tussen-appartement Haciendo del Álamo

Project: Appartementen in Hacienda del Álamo Golf Resort

Stad: Hacienda del Álamo Golf Resort-Roldan

2   2   88 m²   20 m²  

Appartement Calistoga - gelegen op golfresort
Appartement Calistoga - gelegen op golfresort

Project: Coming soon Appartementen op Golfresort Desert

Stad: Cuevas Del Almanzora

2   2   71 m²   17 m²  

Vista Golf Algorfa-Los Lagos -La Finca Golf
Vista Golf Algorfa-Los Lagos -La Finca Golf

Project: Vista Golf Algorfa-Los Lagos -La Finca Golf

Stad: Algorfa

3   2     168 m²   74 m²  

Altaona Golf And Country Village
Altaona Golf And Country Village

Project: Altaona Village Townhouses

Stad: Banos y Mendigo-Murcia

2   2     76 m²   91 m²  

Penthouse Hacienda del Álamo
Penthouse Hacienda del Álamo

Project: Appartementen in Hacienda del Álamo Golf Resort

Stad: Hacienda del Álamo Golf Resort-Roldan

2   2   81 m²    

Azure IV - Lo Romero Golf - Appartement
Azure IV - Lo Romero Golf - Appartement

Project: Azure IV - Lo Romero Golf - Appartement

Stad: Pilar de la Horadada - Alicante

2   2   83 m²   75 m²  

Los Lagos: bungalow met tuin in La Finca Golf
Los Lagos: bungalow met tuin in La Finca Golf

Project: Los Lagos R12 -La Finca Golf

Stad: Algorfa

2   2     69 m²   14 m²  

NOSTRUM LIVING - Penthouse 2 slaapkamers
NOSTRUM LIVING - Penthouse 2 slaapkamers

Project: NOSTRUM LIVING - Moderne bungalows Alhama Golf

Stad: Alhama de Murcia

2   2   74 m²   25 m²  

Moderne woningen met uitzicht op golfbaan en zee
Moderne woningen met uitzicht op golfbaan en zee

Project: Luxe appartementen – La Serena Breeze

Stad: Los Alcazares - Murcia - Mar Menor

2   2     76 m²   15 m²  

Santa Rosalia Lake & Life Resort - Encina 57
Santa Rosalia Lake & Life Resort - Encina 57

Project: Santa Rosalia Lake & Life Resort - Encina 57

Stad: Santa Rosalia

2   2   178 m²   100 m²  

Lees mee met onze nieuwste blogs!

La Serena Golf Los Alcázares
La Serena Golf Los Alcázares

La Serena Golf Los Alcázares: Een paradijs voor golfliefhebbers en watersporters. La Serena Golf Los Alcázares, gelegen aan de prachtige Mar Menor in de regio Murcia, is een must-visit bestemming voor zowel golfliefhebbers als watersporters. Dit charmante stadje aan de Mar Menor verspreide trad...

Martine

Wonen in Los Alcazares: Ontdek jouw droomhuis!
Wonen in Los Alcazares: Ontdek jouw droomhuis!

Ontdek waarom Los Alcázares uitgroeit tot een van de meest geliefde kustplaatsen van de regio Mar Menor. Van stranden en geschiedenis tot golf, gastronomie en vastgoedkansen. Deze gids toont jou alles wat deze zonnige badplaats zo bijzonder maakt en waarom steeds meer Belgen en Nederlanders hier...

Martine

Bankwaarborg in Spanje : jouw zekerheid
Bankwaarborg in Spanje : jouw zekerheid

De bankwaarborg is jouw zekerheid bij het kopen van een nieuwbouwwoning in Spanje. In deze blog ontdek je hoe deze wettelijke garantie jouw vooruitbetalingen beschermt, wat ze precies dekt, welke valkuilen je moet vermijden en waarom ze zo belangrijk is bij off-plan aankopen. Casas Kimpencio legt...

Martine

square-box
Tine
Vragen over panden, projecten en onze content
Snel starten:

Hallo, ik ben Tine je kan bij mij terecht met al je vragen over panden, projecten en onze content. Ik antwoord alleen op basis van de beschikbare website-inhoud.