Home Lopende projecten Alle Panden Over ons Ons team Ons kantoor Onze werkwijze Contacteer ons Blog Cookies

Halfvrijstaande villa met privézwembad in Mojacar Nature

 Project: MOJACAR NATURE residentie in Mojacar

Modern kustleven op 30 meter van de Middellandse Zee!

Korte beschrijving:

Een mediterrane villa waar rust, licht en luxe samenkomen

Vivienda 7 is zo’n woning die je niet alleen ziet, maar meteen voelt. Een halfvrijstaande villa met een zachte, moderne elegantie, op amper 30 meter van het strand, met een prachtige tuin en een privézwembad dat elk moment van de dag uitnodigt om buiten te leven.

Hier krijg je drie serene slaapkamers, royale leefruimtes, een schitterend solarium en een onderbouw die deze woning uittilt boven alles wat je normaal in nieuwbouw aan zee vindt. Het is een plek waar privacy, comfort en mediterrane schoonheid één verhaal vormen en waar elke kamer voelt alsof ze speciaal voor jouw levensstijl ontworpen is.

Dit is niet zomaar een villa.
Dit is een thuis waar het leven lichter, warmer en mooier aanvoelt.

U bent nog niet aangemeld!

Na invullen van onderstaande gegevens wordt u aangemeld, indien er nog geen account bestaat kan deze aangemaakt worden!



 Geef ons uw mening...

 Momenteel nog geen reviews voor dit pand.

Uitgebreide beschrijving:

Jouw halfvrijstaande kustvilla waar licht en luxe samenkomen

Vivienda 7 in Mojácar Nature is zo’n woning waar je binnenstapt en meteen voelt: ja… dit klopt.
Niet omdat alles overweldigend of overdreven luxueus is, maar omdat er een zacht soort elegantie hangt. Een mediterrane rust waar licht, ruimte en verfijning automatisch hun plek vinden.

Dit is geen standaard nieuwbouwwoning.
Dit is een halfvrijstaande boutique villa, ontworpen voor mensen die het leven aan zee willen ervaren met comfort, privacy en schoonheid. Elke lijn, elke ruimte en elk materiaal is gekozen om een sfeer te creëren die warm, tijdloos en natuurlijk aanvoelt.

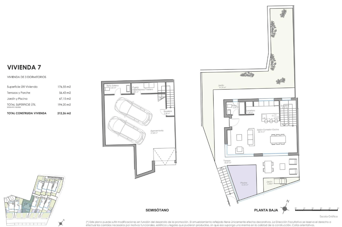
Met een bruikbare oppervlakte van 176,55 m² en een totale gebouwde oppervlakte van 212,26 m², verdeeld over drie niveaus, inclusief een grote semisouterrain, biedt Vivienda 7 een leefervaring die tegelijk ruim, comfortabel en visueel rustgevend is.

Daarbovenop geniet je van:

  • 56,43 m² terrassen & porch

  • 67,15 m² tuin met privézwembad

  • Extra buitenruimte rond de woning dankzij de halfvrijstaande ligging

Samen maken deze ruimtes van Vivienda 7 een van de meest aantrekkelijke villa’s binnen het project, met een zeldzame balans tussen binnenruimte, buitenleven en privacy.

Wat je bij binnenkomst meteen voelt, is de zachtheid van het ontwerp.
De neutrale mediterrane kleuren, de porcellanato vloeren, de natuurlijke materialen en de grote raampartijen zorgen ervoor dat dit huis letterlijk licht ademt. Overal stroomt daglicht binnen. Overal voel je rust.

Dit is een woning die niet probeert te imponeren, ze maakt indruk door haar eenvoud en harmonie.

Je merkt meteen dat deze villa ontworpen is voor mensen die echt willen genieten van het leven aan zee:

  • de ruime open leefruimte, volledig verbonden met tuin en zwembad

  • de keuken, die je naar eigen stijl kan laten afwerken

  • de drie elegante slaapkamers, waarvan één met ensuite

  • de terrassen die een verlengde van het dagelijks leven worden

  • de tuin met privézwembad, jouw persoonlijke plek om te ontspannen

  • de halfvrijstaande setting, die meer privacy geeft dan de geschakelde woningen

En dat alles in een exclusief project van slechts 10 woningen, op amper 30 meter van de kustlijn.

Vivienda 7 is een villa voor mensen die kiezen voor licht, stilte, design en mediterrane levenskwaliteit, precies die combinatie waar iedereen naar zoekt, maar die je bijna nergens meer vindt.


Het gelijkvloers: waar licht, ruimte en het buitenleven één worden

Het gelijkvloers van Vivienda 7 is het echte hart van deze halfvrijstaande villa.
Het is de verdieping waar het mediterrane leven vanzelf naar je toekomt: koken met open ramen, ontspannen in de schaduw van het terras, genieten van het uitzicht op je eigen zwembad…
Elke hoek voelt hier warm, luchtig en uitnodigend aan.

In tegenstelling tot de geschakelde woning heeft Vivienda 7 meer privacy, meer gevelbreedte en een royale tuinlayout.
Dat merk je vanaf de eerste stap in de woning.


Een woonkamer die opent naar tuin en privézwembad

Via de inkomhal kom je onmiddellijk terecht in een lichte, open leefruimte van maar liefst 39,54 m², ontworpen rond drie essentiële elementen:

  • een zitruimte met rechtstreekse toegang tot terras, tuin én zwembad

  • een eetruimte die centraal staat tussen keuken en buitenleven

  • grote schuiframen die de volledige breedte van de ruimte openen

De sfeer is zacht en warm: neutrale mediterrane tinten, natuurlijke texturen, zachte rondingen en veel lichtinval geven de ruimte een gevoel van rust en elegantie.

Dankzij de royale afmetingen kun je deze leefruimte op talloze manieren indelen:

  • een ruime sofa-opstelling met zicht op het terras

  • een leeshoek of speelhoek

  • een subtiele TV-wand

  • een werkplek die baadt in daglicht

En het mooiste?
De volledige glaspartij schuift open naar het terras van 21,09 m² en de tuin van 67,15 m², met jouw privézwembad van 10,75 m².
Elke ochtend voelt hier als vakantie. Elke avond als thuiskomen.


De keuken: maatwerk, elegantie en jouw eigen stijl

De open keuken bevindt zich knap geplaatst langs de zijde van de eetruimte, waardoor je een perfecte balans hebt tussen openheid en visuele rust.
Ze is volledig te personaliseren, dankzij het inbegrepen interieur- en keukenproject: een van de grootste troeven van Mojácar Nature.

Je kiest zelf:

  • fronten

  • werkblad

  • materiaalafwerking

  • kleurenpalet

  • verlichting

  • opstelling

  • apparatuur (volgens jouw stijl en wensen)

In Vivienda 7 zie je in de plannen:

  • een brede, functionele kastenwand

  • een ideale werkzone in L-vorm

  • ruimte voor geïntegreerde toestellen

  • een eetruimte die direct aansluit op keuken én terras

Dit is een keuken die zowel praktisch als gezellig is:
perfect voor dagelijkse maaltijden, maar net zo ideaal voor avonden waarop vrienden rond de tafel zitten, wijn wordt bijgeschonken en de schuiframen wijd openstaan richting het zwembad.


De eetruimte: licht, zicht en het zachte ritme van de kust

In Vivienda 7 ligt de eetruimte precies op het mooiste punt van de benedenverdieping: centraal tussen keuken, leefruimte én het grote terras. Hierdoor voelt het nooit als een afgesloten hoek, maar als een warme verzamelplek waar het dagelijkse leven vanzelf samenkomt.

Dankzij de royale raampartijen geniet je hier van:

  • licht van ’s ochtends tot laat in de namiddag

  • uitzicht op je eigen tuin én het privézwembad

  • een directe link met het mediterrane buitenleven

De ruimte is ruim genoeg voor een comfortabele tafel voor 6 tot 8 personen, ideaal voor avonden met vrienden, lange lunches op zondag of een familiediner met open ramen en de geur van zomer in de lucht.

En in de warmste maanden?
Dan schuif je de grote ramen open en verandert je eetruimte in een natuurlijke overgangszone tussen binnen en buiten.
Precies dat is de charme van Vivienda 7: alles loopt door, niets stopt aan de drempel.


De tuin, het terras & jouw privézwembad: buitenleven in zijn mooiste vorm

Aansluitend op de leefruimte vind je de eerste echte buitenzone: een terras van 21,09 m² dat elegant uitloopt in een royale tuin van 67,15 m² met een privézwembad van 10,75 m².

Waar de geschakelde woningen compacte tuinen hebben, geniet deze halfvrijstaande villa van meer breedte, meer diepte en vooral meer privacy.

De materialen volgen de hoogwaardige technische standaard van het project:

  • antislip porseleinen buitentegels

  • accenten in natuursteen

  • inheemse beplanting & mediterrane groenzones

  • moderne balustrades en buitenschermen voor extra privacy

Het terras en de tuin zijn groot genoeg om écht te leven:

  • een ruime loungehoek

  • een eettafel voor zomerse diners

  • ligstoelen naast het zwembad

  • plaats voor een compacte buitenkeuken

  • potten met bougainvillea, lavendel of citrus

Wat dit perceel zo bijzonder maakt, is dat het ondanks zijn royale omvang intiem voelt, maar nooit afgesloten. De halfvrijstaande ligging zorgt ervoor dat je geniet van een open, luchtige tuin zonder dat voorbijgangers je zicht hebben.

En dan het hoogte­punt:
jouw eigen zwembad, letterlijk enkele stappen van je sofa.
Een plek waar je ’s morgens een frisse duik neemt, of ’s avonds onder de sterren nog even afkoelt.


Het gastentoilet & de praktische ruimtes

Op het gelijkvloers bevindt zich ook een elegant gastentoilet, volledig afgewerkt met:

  • porseleinen wand- en vloertegels van topkwaliteit

  • een moderne wastafel

  • verfijnde kranen

  • zachte, indirecte verlichting

Daarnaast vind je hier discreet ingewerkte bergzones, een absolute must voor wie langere tijd verblijft of permanent woont aan zee. Perfect voor:

  • huishoudproducten

  • voorraad

  • strandmateriaal

  • handdoeken en kussens voor buiten

Functioneel, maar nooit storend in het interieur.


Een gelijkvloers dat leeft zoals jij leeft

Het gelijkvloers van Vivienda 7 is ontworpen voor mensen die houden van ruimte, licht en een vleugje mediterrane magie.
Niets is hier druk, niets voelt chaotisch: alles is rustig, warm en uitnodigend.

Hier begin je de dag met zonlicht in je woonkamer.
Hier eindigt elke avond met een briesje vanuit de tuin.
En elke keer dat je deze villa binnenstapt, voelt het alsof het leven vanzelf een beetje lichter wordt.


De slaapverdieping: drie kamers, twee badkamers en pure mediterrane rust

Een verdieping waar elke kamer aanvoelt als een private suite

De bovenverdieping van Vivienda 7 is ontworpen als een oase van rust.
Hier laat je de dag achter je, hier ontwaak je met het zachte licht van Mojácar, en hier voel je een rust die typisch is voor woningen aan de kust maar dan in de comfortabele beslotenheid van een halfvrijstaande villa.

Doordat Vivienda 7 breder en vrijer staat dan een geschakelde woning, voelt deze verdieping ruim, luchtig en perfect in balans. Niets is gehaast, niets te klein, niets benauwd. Je krijgt hier het gevoel van een boutique hotelkamer, maar dan volledig privé en helemaal van jou.

De indeling bestaat uit:

  • Master bedroom met ensuite badkamer

  • Twee volwaardige gastenkamers, allebei met ingebouwde kasten

  • Een tweede badkamer met volledige uitrusting

  • Lichte circulatiezone die de verdieping breed en comfortabel maakt

  • Privéterras aan de master (zelfde oppervlakte als in de plannen)

Laten we kamer per kamer bekijken.


De Master Bedroom: jouw lichte suite met privéterras

Dit is de plek waar je ’s ochtends wakker wordt in stilte, met licht dat zacht door de ramen binnenvalt.
De master bedroom van Vivienda 7 voelt niet aan als een slaapkamer, maar als een echte suite.

Ruimte & gevoel

Je merkt meteen:

  • een royale oppervlakte

  • een perfecte rechthoekige vorm

  • veel licht dankzij een brede glaspartij

  • een serene sfeer door warme materialen

  • directe toegang tot een privéterras

Dat terras is werkelijk een geschenk: een plek voor koffie in de ochtend, een intiem zitplekje, of gewoon een momentje voor jezelf met de mediterrane lucht om je heen.

Ingebouwde kasten

De kastenwand is volledig geïntegreerd, met strakke schuifpanelen die zorgen voor rust en een ruimtelijk effect.
Alles voelt zacht en hotelwaardig.

Ensuite badkamer

De badkamer grenst rechtstreeks aan de master en sluit perfect aan bij de lichte, warme stijl van de woning.

Voorzien van:

  • ruime inloopdouche met glaswand

  • grootformaat porcellanato tegels

  • modern wastafelmeubel in warme houttinten

  • premium kranen

  • indirecte verlichting

  • elegante spiegel

Het voelt als een serene, private wellnessruimte.


Slaapkamer 2: licht, rust en perfecte verhoudingen

Slaapkamer 2 is ideaal als gastenkamer, kinderkamer, logeerplek of hobbyruimte.
Dankzij de halfvrijstaande structuur is deze kamer verrassend licht en breed.

Je kan hier moeiteloos plaatsen:

  • een tweepersoonsbed

  • of twee aparte bedden

  • of een bureau met bed

  • of een dressinghoek + bed

De ingebouwde kast is diep en hoog, ideaal voor langere verblijven.


Slaapkamer 3: een tweede volwaardige gastenkamer

Ook deze kamer is geen kleine “derde slaapkamer”, maar een echte, comfortabele ruimte.
Hier vind je:

  • mooie lichtinval

  • een goede rechthoekige indeling

  • ruimte voor een bed van 135 of zelfs 150 cm

  • een ingebouwde kast

  • dezelfde mediterrane serene stijl als de rest van de verdieping

Gasten voelen zich hier meteen thuis.


De tweede badkamer: elegant, ruim en perfect geplaatst

Deze badkamer ligt tussen slaapkamer 2 en 3 en is volledig uitgerust als een tweede volledige wellnessruimte.

Met:

  • ruime inloopdouche

  • glaswand

  • grootformaat tegels in warme tinten

  • modern wastafelmeubel

  • hoogwaardige kranen

  • goede ventilatie

  • zachte indirecte verlichting

Niets voelt hier “extra” of “basic”.
Het is een echte, hoogwaardige badkamer.


Lichte circulatiezone

De overloop in Vivienda 7 is opvallend helder en rustig.
Geen donkere gang, maar een lichte circulatiezone die de verdieping structuur en ademruimte geeft. Dit komt door de slimme plaatsing van ramen en de bredere gevel van de halfvrijstaande villa.


Een verdieping ontworpen voor echte rust

Wat deze verdieping bijzonder maakt, is de balans:

  • geen krappe kamers

  • geen geforceerde indeling

  • geen donkere hoeken

  • wel warm licht, rustige kleuren, natuurlijke materialen

Het is een verdieping die voelt als een wereld op zich:
stil, zacht, elegant en volledig gewijd aan comfort.

Een plek waar je niet alleen slaapt maar waar je tot rust komt.


De onderbouw & garage: ruimte, comfort en eindeloze mogelijkheden

De onderbouw van Vivienda 7 is een van die verborgen troeven die het dagelijks leven moeiteloos maken. Geen kleine berging, maar een volwaardige semisouterrainverdieping die rechtstreeks verbonden is met het woongedeelte.De dubbele garage biedt plaats aan twee auto’s én extra ruimte voor fietsen, surf- en paddleboards, strandmateriaal, koffers of sportuitrusting. Alles voelt ruim, logisch en comfortabel, zelfs bij grotere voertuigen.

Dankzij de royale afmetingen kan deze verdieping veel meer zijn dan enkel een garage. Je kan hier perfect een fitnesscorner, hobbyruimte, wijnrek, voorraadzone of een rustige werkplek inrichten. De ventilatie en materialen zorgen ervoor dat alles droog, fris en georganiseerd blijft. Via de interne trap stap je zo van je leefruimte naar deze praktische verdieping, zonder ooit buitenom te moeten. Het geeft een gevoel van veiligheid, privacy en comfort, precies wat een hoogwaardige villa nodig heeft.

Deze onderbouw maakt Vivienda 7 écht compleet:  een flexibele, ruime en praktische laag die jouw woonervaring groter, rustiger en aangenamer maakt.



La Mena in Mojácar: een plek waar de kust nog puur aanvoelt

Er bestaan kustplaatsen die zich in de loop der jaren hebben laten vormen door toerisme, drukte en snelle groei. En er bestaan plaatsen die zich precies andersom ontwikkelen: ze worden mooier met de tijd, authentieker, verfijnder, en blijven trouw aan hun natuurlijke charme.
La Mena in Mojácar hoort resoluut bij die tweede categorie.

Wie hier woont, merkt het meteen: er hangt een andere energie.
Een zachtere.
Een elegantere.
Een die moeilijk te beschrijven is, tenzij je er geweest bent.

De kustlijn van La Mena: de kleur van het zuiden

De locatie van Mojácar Nature bevindt zich letterlijk op de eerste lijn, op slechts 30 meter van het strand. Maar niet zomaar een strand. Dit is een kuststrook die het DNA van Mojácar perfect belichaamt: rustige golven, fijn goudkleurig zand, rotsformaties die het uitzicht karakter geven, en een zee die zo helder is dat je de lijnen van de zeebodem kan volgen.

De Paseo del Mediterráneo verbindt het project met de rest van Mojácar Playa.
Een prachtige, brede kustpromenade waar je ’s ochtends wandelt, ’s middags flaneert en ’s avonds dineert met zicht op de horizon. Maar ondanks de nabijheid van alles, heerst er hier een soort stille luxe. Het is geen druk toeristisch punt. Je voelt vooral rust en openheid.

Alles dichtbij, maar nooit overweldigend

Binnen een straal van enkele honderden meters vind je fijne strandbars waar locals en vaste bezoekers elkaar kennen. Restaurants die heerlijke vis serveren, loungespots met zachte muziek, beachclubs waar je hele middagen kan blijven hangen zonder dat het luid of chaotisch wordt.

Je zit bovendien op amper 3 kilometer van Mojácar Playa en de Parador van Mojácar, een landmark in de regio, omringd door groene zones, sportfaciliteiten en stijlvolle terrassen.

Dat betekent dat je alles binnen handbereik hebt:

  • gezellige winkels en boetieks

  • supermarkten

  • restaurants en tapasbars

  • sportclubs

  • apotheken en medische voorzieningen

  • strandclubs met ligbedden en service aan zee

Maar zodra je terug wandelt naar Mojácar Nature, valt de rust als een deken rondom je heen. Dat is het grote verschil met veel kustplaatsen in Spanje: je woont hier in de luwte, maar nooit in de leegte.

Een regio vol cultuur, geschiedenis en karakter

Mojácar zelf is een van de meest schilderachtige dorpen van Andalusië. Het ligt bovenop een heuvel, met witte huisjes die zich vastklampen aan de rotswand, smalle straatjes vol pergola’s en uitzichtpunten die je de adem benemen.
’s Avonds kleurt het dorp warm oranje en blauw. De terrassen lopen vol, de lucht ruikt naar tijm, wijn en zee. Het is het soort plek waar je telkens weer naartoe wil, zelfs als je er al tientallen keren bent geweest.

De regio is rijk aan geschiedenis: Moorse invloeden, oude wachttorens langs de kust, traditionele feesten en een lokale cultuur die bewust gekoesterd wordt. Je woont hier in een modern project, maar omringd door een omgeving waar traditie nog écht leeft.

Natuur die je elke dag uitnodigt

De natuur rondom Mojácar is ruig, zonovergoten en divers. Rijd je tien minuten landinwaarts, dan verandert het landschap in zachte heuvels, amandelgaarden en oude muurtjes. Ga je richting kust, dan vind je kleine baaien, rotsplateaus en uitzichtpunten die bijna surrealistisch lijken.

Voor wie houdt van wandelen, fietsen of kleine roadtrips, is dit gebied een paradijs.
En dan hebben we Cabo de Gata nog niet genoemd, het natuurpark dat wereldwijd bekend staat om zijn ongerepte stranden, vulkanische rotsformaties en turquoise water. Van Mojácar tot Cabo de Gata is het één van de mooiste ritten van Almería.

Vlot bereikbaar, hoe je ook reist

Hoewel Mojácar een serene, intieme sfeer heeft, is het verrassend goed bereikbaar:

  • Luchthaven Almería: ongeveer 50 minuten

  • Luchthaven Murcia (Corvera): ongeveer 1u25

  • Luchthaven Alicante: ongeveer 1u50

Grote wegen, rustige routes en mooie landschappen maken elke rit aangenaam. Voor wie pendelt tussen Noord-Europa en Spanje is dit een locatie die perfect werkt: niet te ver, niet te druk en altijd bereikbaar.

Een locatie die je leven verandert

Veel mensen komen naar Mojácar om uit te rusten.
Maar ze blijven er omdat ze beseffen dat dit een plek is waar ze elke dag beter leven.
Meer zon.
Meer licht.
Meer natuur.
Meer rust.
Meer ruimte om jezelf te zijn.

Mojácar Nature past perfect in dat verhaal.
Wonen op deze plek betekent leven op een van de meest geliefde kuststroken van Almería, maar dan in een setting die heel bewust klein, luxe en kwalitatief is gehouden.

Hier ben je niet zomaar aan zee.
je bént onderdeel van de kust, het licht en het ritme van de Middellandse Zee.


Een thuis voor mensen die niet alleen aan zee willen wonen, maar er willen léven

Niet elke woning is voor iedereen. En dat is precies wat Mojácar Nature zo bijzonder maakt. Deze plek trekt een zeer specifiek type koper aan, iemand die niet op zoek is naar zomaar een nieuwbouw aan de kust, maar naar een woning die iets in hem of haar raakt.
Een plek die klopt.
Een plek met ziel, met rust, met ritme.

Voor levensgenieters die eenvoud verkiezen boven drukte

Mojácar Nature is perfect voor wie de luxe van rust waardeert. Voor mensen die liever een zachte ochtendwandeling maken op het strand dan in een overvolle boulevard terechtkomen. Voor koppels die willen thuiskomen in stilte, in licht, in zachtheid.

Dit project is geen vakantiepark, geen toeristische hot spot, geen massacomplex.
Het is kleinschalig, elegant en bewust ontworpen voor wie geen compromis wil tussen schoonheid en sereniteit.

Voor mensen die wakker willen worden met zeezicht élke dag

Je koopt hier niet alleen een woning, je koopt een beleving.
De zee wordt een deel van je dagelijkse leven:
het uitzicht vanuit je leefruimte, het licht dat door je woning glijdt, het geluid van golven dat ’s avonds rust brengt.

Wie dit eenmaal heeft, wil nooit meer anders.

Voor mensen die een tweede verblijf willen dat écht voelt als thuis

Sommige tweede verblijven voelen afstandelijk.
Hier is dat onmogelijk.

De warme materialen, de tuinen, de terrassen, de zachte architectuur… alles voelt gemaakt om in te leven, niet alleen om af en toe te gebruiken. Het is een plek waar je na een drukke periode opnieuw kan opladen, herademen, jezelf terugvinden.

Voor gezinnen die ruimte, comfort en veiligheid willen

Met drie slaapkamers, royale leefruimtes, private terrassen, tuinen en een ondergrondse garage voor twee wagens is Mojácar Nature ook ideaal voor gezinnen.
Kinderen lopen hier veilig binnen en buiten, spelen op het strand, fietsen op de Paseo… en groeien op in een omgeving die gezond, zonnig en vrij voelt.

Voor investeerders die op zoek zijn naar duurzame waarde

In eerste-lijns projecten van deze kwaliteit zit altijd toekomstwaarde.
Je koopt hier niet alleen een woning, maar ook een locatie die zeldzaam is, een energieprestatie die vooruit loopt op de markt, en een ontwerp dat tijdloos is.

Het is een investering die meegroeit met de vraag naar kwalitatief, duurzaam en rustig kustleven.

Voor mensen die bewust, duurzaam en comfortabel willen wonen

De energieprestatie A+, de aerothermie, de inheemse beplanting, het slimme lichtgebruik… dit is wonen voor mensen die geloven dat comfort en duurzaamheid perfect samen kunnen gaan.

Je voelt het in alles:
dit is een project dat respect heeft voor zijn omgeving én voor jou.

Voor wie verlangt naar een leven met meer licht, meer lucht, meer momentjes

Mojácar Nature is voor mensen die verlangen naar:

  • ochtendkoffie op een terras waar de zon net opkomt

  • avonden op een solarium met zicht op de sterren

  • zomerdagen die vanzelf langer lijken

  • weekends die naar zout, tijm en vrijheid ruiken

  • rust, schoonheid en een thuis dat klopt

Het is voor wie een woning wil die niet alleen functioneel is, maar je leven mooier maakt. Een plek die je écht voelt.


Waarom wij bij Casas kimpencio Mojácar nature aanbevelen:

Exclusief boutiqueproject met slechts 10 luxe woningen, perfect voor wie rust, privacy en kwaliteit zoekt.

Eerstelijns zeezicht op 30 meter van het strand van La Mena, een zeldzame locatie met directe toegang tot zand en zee.

Keuze uit geschakelde woningen met solarium of halfvrijstaande villa’s met privézwembad, elk ontworpen voor een andere levensstijl.

Mediterrane architectuur met natuursteen, hout en zachte lijnen, volledig geïntegreerd in het kustlandschap.

Royale leefruimte met grote glaspartijen en een naadloze overgang naar terrassen en tuin.

Drie stijlvolle slaapkamers en drie moderne badkamers met inloopdouches en verfijnde materialen.

Keuken volgens jouw smaak, dankzij het inbegrepen decoratieproject, volledig personaliseerbaar.

Ruime terrassen, tuinen en zonnige dakterrassen, ideaal voor ontbijt, loungen of avonden onder de sterren.

Energieprestatie A+, hoogwaardige isolatie, slim lichtgebruik en duurzame materialen.

Volledig geïnstalleerde aerothermische klimaatregeling, stil, efficiënt en uiterst comfortabel.

Ondergrondse garage voor twee wagens en extra ruimte voor opslag of hobby’s.

Inheemse tuinarchitectuur die weinig onderhoud vraagt en perfect past bij de mediterrane omgeving.

Rustige én centrale ligging: strandclubs, restaurants en Mojácar Playa (3 km) binnen handbereik.

Uitstekende bereikbaarheid via Almería, Murcia en Alicante Airport.

Een unieke lifestyle aan de Costa de Almería, waar natuur, zeezicht en kwaliteit elke dag samenkomen.


Onze visie bij Casas Kimpencio

  • Bij Casas Kimpencio ben je niet zomaar iemand, wij willen een persoonlijke relatie aangaan.
  • We behandelen jullie zoals we zelf behandeld willen worden, met de nodige betrokkenheid, precisie en details.
  • Geen enkele vraag is ons te veel, we staan elke dag telefonisch voor jou klaar.
  • Wij hebben de gedachte dat een huis kopen niet zomaar een huis kopen is, maar een nieuwe thuis kopen.
  • Iedereen dient een eigen verhaal te krijgen, met verschillende hoofdstukken. 
  • Wij willen helpen aan het Spaanse hoofdstuk, een hoofdstuk van een nieuwe thuis, vakantiewoning of een investering.
  • En dit doen we met open, duidelijke communicatie  en daarmee geraken we er altijd, zo vinden we jouw ideale woning gebaseerd op meerdere gesprekken.
  • We helpen vanaf het begin tot aan de sleuteloverdracht, en ver daarbuiten. 


Investeren in Mojácar Nature: De nieuwe boutique toplocatie van de costa de Almería

Mojácar Nature ligt in La Mena, één van de meest geliefde en stabielste kustzones van de hele Costa de Almería. Dit gebied staat bekend om zijn onwaarschijnlijk mooie kustlijn, zijn rustige, volwassen woonomgeving en een vastgoedmarkt die de laatste jaren opvallend sterk groeit. Hier vind je geen overbebouwde stroken of experimentele urbanisaties, maar een verfijnde, perfect onderhouden en internationaal geliefde woonregio waar het hele jaar door vraag is naar kwaliteitsvolle nieuwbouw.

Het grootste voordeel?
De kust van Mojácar, zeker de zone La Mena, is bijna volledig ontwikkeld. Nieuwe percelen, laat staan eerstelijns gronden, komen bijna nooit meer op de markt. De schaarste is enorm. En precies daarom zijn projecten zoals Mojácar Nature zó interessant: 10 exclusieve woningen aan de eerste lijn, op 30 meter van het strand, met uitzicht, privacy en een stijl die perfect aansluit bij wat de moderne internationale koper zoekt.

Dit is geen gebied in opkomst. Dit is een gebied dat zich al bewezen heeft.
De mix van strand, restaurants, golf, natuur, welzijn, internationale gemeenschap en uitstekende bereikbaarheid (drie luchthavens binnen 2 uur) zorgt ervoor dat zowel residenten als tweede-verblijvers heel bewust voor Mojácar kiezen.

De markt groeit hier niet impulsief, maar constant en stabiel, precies omwille van die unieke combinatie van rust, levenskwaliteit en schaarste. En dat maakt Mojácar Nature één van de meest zekere investeringskansen in de regio.


Waarom Mojácar Nature een uitzonderlijk investeringsproject is

Mojácar Nature biedt exact die elementen die vastgoed waardevol én waardevast maken, vandaag én over tien jaar.

1. Een eerstelijns locatie die bijna niet meer bestaat

30 meter van het strand, direct aan de Paseo del Mediterráneo, met onbelemmerd uitzicht en een volwassen, rustige kustsfeer.
Dergelijke posities zijn schaars, vast in waarde en altijd aantrekkelijk voor kopers én huurders.

2. Kleinschaligheid verhoogt exclusiviteit

Slechts 10 woningen, volledig boutique, met een luxueuze uitstraling en een doelgroep die bereid is meer te betalen voor privacy, design en rust.
Schaarste = sterke waardestijging.

3. Moderne architectuur sluit perfect aan bij internationale vraag

Geschakelde woningen met solarium, optionele jacuzzi en zeezicht.
Halfvrijstaande villa’s met privézwembad.
Mediterrane warme lijnen, natural materials, grote glaspartijen.
Dit is exact het type woning dat de hedendaagse koper zoekt.

4. Energie-efficiëntie en duurzaamheid

Energieprestatie A+, aerothermische klimaatregeling, hoogwaardige isolatie, inheemse beplanting, doordacht lichtgebruik.
Dit verhoogt niet alleen het comfort, maar ook de toekomstige waarde én de verhuurcapaciteit.

5. Grote vraag, klein aanbod

De vraag naar luxe nieuwbouw aan de Costa de Almería stijgt explosief, vooral in eerstelijns projecten.
Maar de zone La Mena laat amper nieuwe bouwgrond toe.
De markt beweegt in één richting: omhoog.

6. Hoog rendementspotentieel

Mojácar kent een zeer sterke markt voor:

  • overwinteraars

  • lifestyle-kopers

  • golfliefhebbers (met Marina de la Torre op enkele minuten)

  • internationale huurders die eerstelijn zoeken

  • gezinnen die rust én strand willen

De combinatie van zeezicht, luxe en privacy creëert hogere verhuurprijzen én een langere verhuurseizoen.

7. Een woning die alle ‘must-haves’ van 2025–2030 bezit

Mojácar Nature biedt:

  • luxe architectuur

  • grote terrassen

  • privétuin

  • solarium of zwembad

  • 3 slaapkamers, 3 badkamers

  • energiezuil (A+ & aerothermie)

  • gepersonaliseerde keuken

  • ondergrondse garage voor 2 wagens

  • premium locatie

Dit zijn precies de elementen die de internationale markt voortaan verwacht en waar de herverkoopwaarde het sterkst op stijgt.


Prijsontwikkeling Mojácar – La Mena (indicatief marktbeeld)

Jaar
Gemiddelde prijs per m²
Jaarlijkse stijging
2023
€1.850

2024
€1.960
+5,9 %
2025
€2.080
+6,1 %

Opmerking: Eerstelijns nieuwbouwprojecten zoals Mojácar Nature zitten ruim boven dit gemiddelde, en dat is precies waarom ze zulke sterke waardedragers zijn.


Waarom dit project zo’n slimme keuze is

• Boutiqueproject van slechts 10 woningen, extreem schaars op deze toplocatie.
• Eerstelijns zeezicht op 30 meter van het strand, gegarandeerde waardeverhogende factor.
• Sterke internationale vraag naar moderne, energiezuinige designwoningen aan zee.
• Perfecte combinatie van luxe, rust en mediterrane levenskwaliteit.
• Hoogwaardige bouw met A+ energieprestatie en aerothermie.
• Privézwembad (villa’s) of solarium + jacuzzi-optie (geschakelde woningen).
• Ondergrondse garage voor 2 wagens, zeldzaam in eerstelijns projecten.
• Strategische ligging vlak bij stranden, horeca, winkels, sport en drie luchthavens.
• Uitstekend verhuurpotentieel door uitzicht, luxe en ligging.
• Een veilige, elegante en volwassen woonomgeving met stabiele vraag.
• Schaarste aan nieuwe percelen maakt dit project extra waardevast.

Mojácar Nature spreekt kopers aan die zoeken naar rust, licht, uitzicht en kwaliteit, maar even sterk investeerders die mikken op zekerheid, lage risico’s en een vastgoedmarkt die jaar na jaar aantrekt.


Mojácar Nature moet je voelen en dat tonen wij je graag

Bij Casas Kimpencio begeleiden we je niet enkel tijdens het bezoek aan de woning, maar door de hele kustlijn van Mojácar, het dorpje boven op de heuvel, de strandclubs, de wandelroutes, de restaurants, de sfeer en het dagelijkse leven dat deze plek zo uniek maakt.

We tonen je hoe het echt voelt om hier te wonen , niet alleen hoe het eruitziet.

Jouw nieuwe leven aan de Costa de Almería kan hier beginnen.
En wij lopen met je mee, tot de sleutel in je hand ligt.




Kenmerken:

Aantal slaapkamers 3
Aantal badkamers 3
Privaat zwembad Ja
Gedeeld zwembad Nee
Terras Ja
Bebouwde oppervlakte 176 m²
Oppervlakte perceel rond het huis 56 m²
Bewoonbare oppervlakte 163 m²
Fietsafstand van het strand Ja
Terras oppervlakte 55 m²
Douche schermen Ja
Jaccuzi Optioneel
Afstand naar het strand 0,3 km
Nabij bushalte Ja
Solarium Nee
Volledige airco installatie Ja
Elektrische rolluiken Ja
Led verlichting buiten Ja
Led verlichting binnen Ja
Zeezicht Ja
privé parkeerplaats Ja
Ondergrondse parking Ja
Garage Ja
Telefoon Data aansluiting Ja
Videofonie Ja
Inbouwkasten Ja
Aero thermische warmtepomp Ja
Poort Ja
Elektrische poort Ja
Badkamer spiegels Ja
Alle keuken apparatuur volledig inbegrepen Ja
Kookplaat Dampkap Magnetron & Oven Ja
Nabij kinder speeltuin Ja
Nabij Scholen Ja
Berging Ja
Kelder Ja
Private Tuin Ja
Uitzicht tuin Ja
Oriëntatie Zuid-oost
Golfresort afstand in km 5-10 km
Ziekenhuis afstand in km 10-20 km
Nabij Commercieel centrum Ja
Luchthaven Alicante afstand 50+ km
Luchthaven Murcia afstand 50+ km
Ontspanning ruimte buiten Ja
Ontspanning ruimte binnen Ja
Hangend toilet Ja
Hangend badkamer meubel Ja
Uitzicht op het zwembad Ja
Security glas met uv filter Ja
Volledig ingerichte keuken Ja
Dampkap Ja
Gepantserde toegangsdeur met veiligheidsslot Ja
Grote ramen van vloer tot plafond Ja
Hoogwaardige afwerking Ja
Goede prijs-kwaliteit verhouding Ja
Aerothermische boiler Ja
Hoge plafonds Ja
Meubelpakket Optioneel
Luxe nieuwbouw Ja
Extra grote ramen uitkijkend op tuin en zwembad Ja
Aangelegde tuin met grind, gras en planten. Ja
Goed gebied voor rentabiliteit van huur Ja
Wandelafstand van het strand Ja
Geschakelde woning Ja
Dubbele garage Ja
Extra verdieping ondergronds (basement) Ja
Fietsberging Ja
Energielabel B
Afgewerkte badkamer Ja

Meer info?


Beschikbare documenten

plan vivenda 7 .png

document-plan vivenda 7 .png

download
plan vivenda 7 eerste verdieping.png

document-plan vivenda 7 eerste verdieping.png

download

Benieuwd naar meer? Ontdek onze nieuwste parels!

Gelijkvloers appartement tuin in residentie Njoy
Gelijkvloers appartement tuin in residentie Njoy

Project: COMING SOON njoy eerste lijn villa's Villajoyosa

Stad: Villajoyosa-Benidorm

2   1   50 m²   25 m²  

Villa kopen in Mutxamel Bonalba Green
Villa kopen in Mutxamel Bonalba Green

Project: Bonalba Green in Mutxamel met zeezicht

Stad: Mutxamel- Alicante

4   3     273 m²   56 m²  

Modern Appartement eerste verdiep Finestrat
Modern Appartement eerste verdiep Finestrat

Project: Moderne appartementen met terras in Finestrat

Stad: Finestrat-Benidorm

3   2     116 m²   19 m²  

Hoek villa kopen in SIERRA VERDE Finestrat?
Hoek villa kopen in SIERRA VERDE Finestrat?

Project: Investeren in SIERRA VERDE villa nabij Benidorm

Stad: Finestrat-Benidorm

3   3     143 m²   24 m²  

Studio met verhuurlicentie in Finestrat
Studio met verhuurlicentie in Finestrat

Project: Appartement met verhuurlicentie Costa Blanca

Stad: Finestrat-Benidorm

0   1     36 m²   1 m²  

Penthouse met groot terras La Nucía
Penthouse met groot terras La Nucía

Project: Investeren in modern project aan Costa Blanca

Stad: La Nucia

2   2     73 m²   113 m²  

Luxe villa met magnifiek zeezicht - model Irati
Luxe villa met magnifiek zeezicht - model Irati

Project: Luxe villa’s te koop in Benissa – Racó de Galeno

Stad: Benissa

4   4     770 m²   160 m²  

Villa met prachtig bergzicht in residentie Airen
Villa met prachtig bergzicht in residentie Airen

Project: Airen: eco-vriendelijke luxe villa's in Llíber

Stad: Llíber

3   2     432.76 m²    

Villa Bianca luxe wonen met zeezicht in Cumbre
Villa Bianca luxe wonen met zeezicht in Cumbre

Project: Magnolias Design in Cumbres Del Sol Benitachell

Stad: Benitachell- Alicante

3   3     160 m²  

Luxe villa met zeezicht op ruim perceel - Horizont
Luxe villa met zeezicht op ruim perceel - Horizont

Project: Residentie Jazmines in Cumbre del Sol: luxe villas

Stad: Cumbre Del Sol

3   3    

Luxevilla met zeezicht Campana Garden Finestrat
Luxevilla met zeezicht Campana Garden Finestrat

Project: Sunny Hills Resort villa: Luxe wonen in Finestrat

Stad: Finestrat-Benidorm

3   3     224 m²   100 m²  

Luxe villa met zeezicht - model Alba
Luxe villa met zeezicht - model Alba

Project: Azure Altea Homes II - Luxe villa met zeezicht

Stad: Altea

4   5     484 m²  

Slim kopen in Spanje? Lees onze inzichten!

Tweede verblijf belastingaangifte Spanje: hoe?
Tweede verblijf belastingaangifte Spanje: hoe?

Je Spaanse droomwoning gekocht?

Dan komt er ook wat administratie bij kijken.

Ontdek hier stap voor stap hoe je je tweede verblijf correct aangeeft bij de Belgische fiscus en wat je moet ...

Martine

7 slimme keuzes bij het kopen op plan
7 slimme keuzes bij het kopen op plan

Kopen op plan in Spanje is niet alleen bouwen aan stenen, maar aan toekomst. Met de juiste begeleiding wordt elk plan een verhaal van vertrouwen, groei en plezier. Bij Casas Kimpencio wandel je van tekening naar thuis, stap voor stap, met zon, zekerheid en gemoedsrust.

...

Martine

Kan je een woning cash aankopen in Spanje?
Kan je een woning cash aankopen in Spanje?

Je kan een woning kopen door een contante betaling, maar daarvoor moet je een aantal regels in acht nemen en respecteren. Toch kan je de woning niet meteen kopen met cash geld, er moeten een aantal tussenstappen genomen worden. 

...

Martine

square-box
Tine
Vragen over panden, projecten en onze content
Snel starten:

Hallo, ik ben Tine je kan bij mij terecht met al je vragen over panden, projecten en onze content. Ik antwoord alleen op basis van de beschikbare website-inhoud.