Home Lopende projecten Alle Panden Over ons Ons team Ons kantoor Onze werkwijze Contacteer ons Blog Cookies

Vinci, villa met zwembad in La Herrada

 Project: Residentie Vinci in La Herradada

Moderne nieuwbouwwilla's in La Herrada Los Montesinos

Korte beschrijving:

Residentie Vinci is een exclusief en kleinschalig nieuwbouwproject bestaande uit 16 moderne villa’s, gelegen in de rustige en geliefde wijk La Herrada in Los Montesinos.

Het project richt zich op wie op zoek is naar privacy, ruimte en hedendaags wooncomfort in een aangename woonomgeving, weg van massatoerisme maar toch dicht bij alle voorzieningen en de kust.

Alle villa’s binnen Residentie Vinci volgen hetzelfde hoogwaardige concept en beschikken over 3 slaapkamers en 3 badkamers, verdeeld over twee volwaardige verdiepingen.

De architectuur wordt gekenmerkt door een open woonindeling, grote raampartijen en kamerhoge schuiframen, waardoor licht en ruimte centraal staan en binnen- en buitenleven naadloos in elkaar overlopen.

Elke woning ligt op een privéperceel met tuin, privézwembad en eigen parkeerplaats, met bovendien de mogelijkheid om uit te breiden met een solarium.

Het project werd ontwikkeld met focus op kwaliteit en toekomstgericht wonen.

Residentie Vinci combineert zo hedendaagse luxe met energiezuinig wonen, op een strategische locatie in La Herrada, waar rust, dorpsleven en de nabijheid van stranden, golfbanen en zoutmeren perfect samenkomen.

U bent nog niet aangemeld!

Na invullen van onderstaande gegevens wordt u aangemeld, indien er nog geen account bestaat kan deze aangemaakt worden!



 Geef ons uw mening...

 Momenteel nog geen reviews voor dit pand.

Uitgebreide beschrijving:

Deze moderne, nieuw gebouwde villa in La Herrada Los Montesinos met privézwembad wordt miscchien wel jouw thuishaven in het zonnige Spanje.

Deze exclusieve moderne villa, gelegen in de prestigieuze woonwijk La Herrada in Los Montesinos, biedt privacy, comfort en een uitstekende levenskwaliteit.

Het is een eigentijds ontwerp met geoptimaliseerde binnenruimtes.

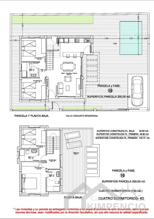
De villa heeft 130 m² goed verdeelde woonruimte verdeeld over twee verdiepingen, ontworpen om natuurlijk licht en functionaliteit te maximaliseren.

De woning is gebouwd op een perceel van 250 m² en biedt ruime buitenruimtes die perfect zijn om te zonnebaden, gasten te ontvangen of te ontspannen bij het privézwembad.

Comfortabele indeling over twee verdiepingen is een plus.

De begane grond beschikt over een open woonkamer met een volledig geïntegreerde keuken en directe toegang tot de tuin en het zwembad.

Op deze verdieping bevinden zich ook twee slaapkamers, een complete badkamer en een praktische wasruimte.

Op de bovenverdieping zijn er twee ruime slaapkamers, elk met een eigen badkamer, waarvan één en-suite.

Beide slaapkamers hebben toegang tot een open privéterras van 28 m².

Voor wie nog meer buitenruimte wil, is er tegen meerprijs een optioneel solarium op het dak beschikbaar.

De villa is voorzien van hoogwaardige afwerkingen, zoals badkamermeubilair, spiegels, doucheschermen en vloerverwarming in alle badkamers.

Er is een pre-installatie voor airconditioning, een gemotoriseerde toegangspoort voor voertuigen, een eigen parkeerplaats op het perceel en een afgesloten toegang tot de woonwijk via een eigen interne weg.

Samengevat biedt deze villa deze inrichting:

  • Volledig afgewerkte inbouwkasten met praktische indeling, inclusief legplanken, kledingroede en ladekast, waardoor optimale opbergruimte wordt gegarandeerd.
  • Volledig ingerichte designkeuken met een moderne tweekleurige afwerking.
  • LED-verlichting geïntegreerd in het keukenmeubilair voor een stijlvolle en functionele uitstraling.
  • Soft-close lades en kastdeuren voor extra comfort en duurzaamheid.
  • Keukeneiland met onderkasten, ideaal als extra werkruimte en ontmoetingsplek met keramisch werkblad van 12 mm, waarbij de kleur naar keuze kan worden geselecteerd.
  • Badkamer met hoogwaardige keramische wandbekleding in groot formaat en tegels voor een moderne en luxueuze uitstraling.
  • Hangtoiletten en eengreepsmengkranen met een stijlvolle zwarte doucheset.
  • Douchebak met zwarte leisteenlook, afgewerkt met een vaste glazen douchewand.
  • Witte porseleinen wastafel met spiegel en geïntegreerde LED-verlichting.
  • Voorinstallatie voor een elektrische handdoekradiator.
  • Elektrische vloerverwarming voor extra comfort in de badkamer.
  • Privézwembad voor optimaal genieten van het mediterrane klimaat.
  • Aangelegde tuin met kunstgras, porseleinen terrastegels, plantenbakken en verticale bekleding in natuursteen voor een stijlvolle buitenruimte.
  • Terrassen met gedeeltelijke glazen balustrades, waardoor uitzicht en licht maximaal behouden blijven.
  • Schuifpoort voor voertuigen met motorisatie, voor comfortabele en veilige toegang tot het perceel.

Toplocatie dicht bij belangrijke voorzieningen en attracties

  • Strand Guardamar del Segura ± 10 km

  • Stranden Torrevieja ± 11 km

  • Zoutmeren Torrevieja & La Mata ± 5 km

  • Golfbanen (La Marquesa, Vistabella) ± 6–10 km

  • Supermarkten en winkels Los Montesinos ± 1,5 km

  • Winkelcentrum Habaneras Torrevieja ± 10 km

  • Ziekenhuis Torrevieja ± 12 km

  • Luchthaven Alicante ± 40 km

  • Luchthaven Murcia ± 55 km

Deze residentie is gelegen in Los Montesinos, La Herradada. La Herrada, gelegen binnen de gemeente Los Montesinos in de provincie Alicante, is een rustige en moderne woonomgeving die perfect aansluit bij het mediterrane leven in de Vega Baja.

De wijk ligt net buiten het dorpscentrum en wordt omringd door open landschap, citrusvelden en zachte heuvels.

Dankzij deze ligging geniet je hier van ruimte, licht en een aangename rust, terwijl alle dagelijkse voorzieningen verrassend dichtbij zijn.

Het klimaat is typisch voor deze regio: zonnig, droog en mild, met een constante frisse bries afkomstig van de nabijgelegen zoutmeren.

Los Montesinos zelf is een levendig Spaans dorp met een sterk lokaal karakter.

Op het centrale plein komen bewoners samen in cafés en restaurants, en de wekelijkse markt zorgt voor kleur, geur en sociale dynamiek.

De sfeer is gemoedelijk en authentiek, met veel aandacht voor tradities en lokale feesten.

Vanuit La Herrada bereik je het dorpscentrum binnen enkele minuten, waardoor je profiteert van het beste van twee werelden: wonen in alle rust, met het dorpsleven vlakbij.

De omgeving biedt volop mogelijkheden voor ontspanning en natuur.

Op korte afstand liggen de zoutmeren van Torrevieja en La Mata, een beschermd natuurgebied dat bekendstaat om zijn flamingo’s en gezonde microklimaat.

Ook de stranden van Guardamar en Torrevieja zijn vlot bereikbaar, net als diverse golfbanen en wandel- en fietsroutes door het open landschap. De centrale ligging maakt La Herrada bijzonder aantrekkelijk voor wie graag mobiel is zonder midden in de drukte te zitten.

Wat veel mensen niet weten, is dat La Herrada licht verhoogd ligt ten opzichte van de omliggende vlakte.

Hierdoor is er vaak meer windcirculatie, wat zorgt voor koelere avonden in de zomer en een aangenamer gevoel tijdens warme dagen.

Dit natuurlijke voordeel wordt door locals erg gewaardeerd, maar zelden expliciet benoemd.

Daarnaast heeft Los Montesinos een sterke gemeenschapszin die ook in La Herrada voelbaar is.

Nieuwe bewoners worden snel opgenomen in het sociale leven, en informele ontmoetingen op straat of tijdens dorpsfeesten zijn eerder regel dan uitzondering.

In de avond, wanneer de zon langzaam zakt en het landschap goud kleurt, heerst er een stilte en rust die typerend is voor deze omgeving.

Het is precies die combinatie van eenvoud, ruimte en verbondenheid die La Herrada zo aantrekkelijk maakt.


GROEI EN TRENDS IN LOS MONTESINOS

Jaar  Prijs per m² Jaarlijkse stijging 
2023 €2.183 -
2024 €2.416 +10.7%
2025 €2.657 +9.9%

Of u nu op zoek bent naar een permanente woning of een vakantiehuis, dit project biedt alles wat u nodig heeft om te genieten van een rustige en comfortabele mediterrane levensstijl.

Neem vandaag nog contact met ons op om een bezichtiging te regelen en uw nieuwe huis in La Herrada te bemachtigen.


Kenmerken:

Aantal slaapkamers 4
Aantal badkamers 3
Privaat zwembad Ja
Oppervlakte perceel rond het huis 251 m²
Bebouwde oppervlakte 130 m²
Bewoonbare oppervlakte 110 m²
Afstand naar het strand 9 km
Terras oppervlakte 68 m²
Private Tuin Ja
Poort Ja
Nabij Scholen Ja
Terras Ja
Fietsafstand van het strand Ja
Douche schermen Ja
Pré installatie airco Ja
Elektrische rolluiken Nee
Led verlichting buiten Ja
Led verlichting binnen Ja
privé parkeerplaats Ja
Telefoon Data aansluiting Ja
Videofonie Ja
Inbouwkasten Ja
Elektrische poort Ja
Pre installatie elektrisch laadpunt Ja
Badkamer spiegels Ja
Alle keuken apparatuur volledig inbegrepen Ja
Kookplaat Dampkap Magnetron & Oven Ja
Kelder Nee
Uitzicht tuin Ja
Golfresort afstand in km 2-5 km
Luchthaven Alicante afstand 20-30 km
Pre installatie warmtepomp zwembad Ja
Hangend toilet Ja
Hangend badkamer meubel Ja
Pré installatie zonnepanelen Ja
Uitzicht op het zwembad Ja
Security glas met uv filter Ja
Volledig ingerichte keuken Ja
Dampkap Ja
Gepantserde toegangsdeur met veiligheidsslot Ja
Hoogwaardige afwerking Ja
Goede prijs-kwaliteit verhouding Ja
Kunstgras Ja
Elektrische handdoekverwarmer Ja
Aangelegde tuin met grind, gras en planten. Ja
Wandelafstand van het strand Nee
Afgewerkte badkamer Ja

Meer info?


Beschikbare documenten

property-4955-40-pic.webp

document-property-4955-40-pic.webp

download

Ontdek ook deze buitenkansen voor jou:

Luxe hoekvilla kopen Los Montesinos | Costa Blanca
Luxe hoekvilla kopen Los Montesinos | Costa Blanca

Project: Villa kopen nabij strand Spanje | NL makelaar

Stad: Los Montesinos

3   3     108 m²   54 m²  

Moderne Villa Vinci met zwembad in La Herrada
Moderne Villa Vinci met zwembad in La Herrada

Project: Residentie Vinci in La Herradada

Stad: Los Montesinos

4   3     130 m²   68 m²  

Villa’s Los Montesinos nabij zee, golf & natuur
Villa’s Los Montesinos nabij zee, golf & natuur

Project: Alba Salinas 3 villa's in Montesinos

Stad: Los Montesinos

3   2     106 m²   24 m²  

Villa in Laguna Azul
Villa in Laguna Azul

Project: Laguna Azul

Stad: Los Montesinos

3   3     116 m²   52 m²  

MODEL HERA - Alba Salina 3 - Fase 5
MODEL HERA - Alba Salina 3 - Fase 5

Project: Alba Salina 3 - Luxe villa's met kelder of garage

Stad: Los Montesinos

3   2     90 m²   20 m²  

Nieuwbouwvilla met privé zwembad
Nieuwbouwvilla met privé zwembad

Project: Alba Salina villa's in Montesinos

Stad: Los Montesinos

3   2     105 m²   80 m²  

Gelijkvloers stadsappartement in Los Montesinos
Gelijkvloers stadsappartement in Los Montesinos

Project: Los Montesinos Ground Floor Appartement Deluxe

Stad: Los Montesinos

2   2   164 m²   46 m²  

Gelijkvloers appartement Sea Gardens F4
Gelijkvloers appartement Sea Gardens F4

Project: La Herrada

Stad: Los Montesinos

2   2  

En dit geven we ook graag even mee:

Ontdek de luxe golfresorts van de Costa Blanca!
Ontdek de luxe golfresorts van de Costa Blanca!

Welkom aan de sprankelende Costa Blanca, waar de zon altijd lijkt te stralen en de azuurblauwe zee uitnodigt voor een verfrissende duik! Deze betoverende regio aan de oostkust van Spanje biedt niet alleen idyllische stranden en een bruisende cultuur, maar is ook een paradijs voor golfliefhebbers....

Martine

Meerwaardebelasting in Spanje
Meerwaardebelasting in Spanje

Wanneer je jouw woning in Spanje verkoopt, verdwijnt de zon niet uit je verhaal, maar er duikt wel één belangrijke term op: de meerwaardebelasting. Ontdek hier in mensentaal hoe die werkt, wie ze betaalt en hoe je ze slim kunt beperken.

...

Martine

Personenbelasting in Spanje
Personenbelasting in Spanje

De Spaanse personenbelasting hoeft geen doolhof te zijn. In deze gids ontdek je in mensentaal hoe het systeem werkt van resident of niet-resident, tot huur- en verkoopbelastingen, aftrekken, voordelen en praktische tips per regio. Casas Kimpencio legt stap voor stap uit wat je moet weten om zonde...

Martine

square-box
Tine
Vragen over panden, projecten en onze content
Snel starten:

Hallo, ik ben Tine je kan bij mij terecht met al je vragen over panden, projecten en onze content. Ik antwoord alleen op basis van de beschikbare website-inhoud.