
Welkom in luxe: nieuwbouw wooncomplex in Algorfa
Project: Mar Egeo in La Finca Golf - Res. 14
Ontdek de perfecte mix van comfort en elegantie.
Korte beschrijving:
Ervaar luxe wonen in Algorfa's La Finca golfbaan!
Stap binnen in ons nieuwe wooncomplex met vrijstaande en halfvrijstaande villa's en appartementen, omgeven door groen en een gemeenschappelijk zwembad. Geniet van moderne elegantie en ontspanning in harmonie. Ontdek ruime 3-slaapkamer halfvrijstaande villa's, compleet met zwembad en stijlvolle open keuken.
Gunstig gelegen nabij La Finca Golf Resort, biedt ons complex de ideale mix van golfplezier en nabijheid van de prachtige stranden van Guardamar del Segura.
Verken omliggende steden zoals Almoradi en Torrevieja, terwijl Casas Kimpencio klaarstaat om jouw droomhuis in Algorfa te realiseren.
LAATSTE KANS! Nog maar 2 woningen beschikbaar!
U bent nog niet aangemeld!
 Geef ons uw mening...
Vanaf: €565.000
Ref: KIMP-PROP-1083
Uitgebreide beschrijving:
Ontdek de Luxe van Mar Egeo Residential op La Finca Golf
Welkom bij Mar Egeo Residential, een juweel binnen het prestigieuze La Finca Golf in het zonnige Algorfa, Costa Blanca. Dit exclusieve project biedt luxe woningen ontworpen voor diegenen die het beste van het beste zoeken.
Laten we een kijkje nemen in wat deze indrukwekkende residentie te bieden heeft.
Villa Leros+ – Luxe en Comfort De Villa Leros+ is een semi-vrijstaande villa die perfect is voor gezinnen en liefhebbers van luxe. Deze prachtige woning biedt een harmonieuze combinatie van elegantie en functionaliteit.
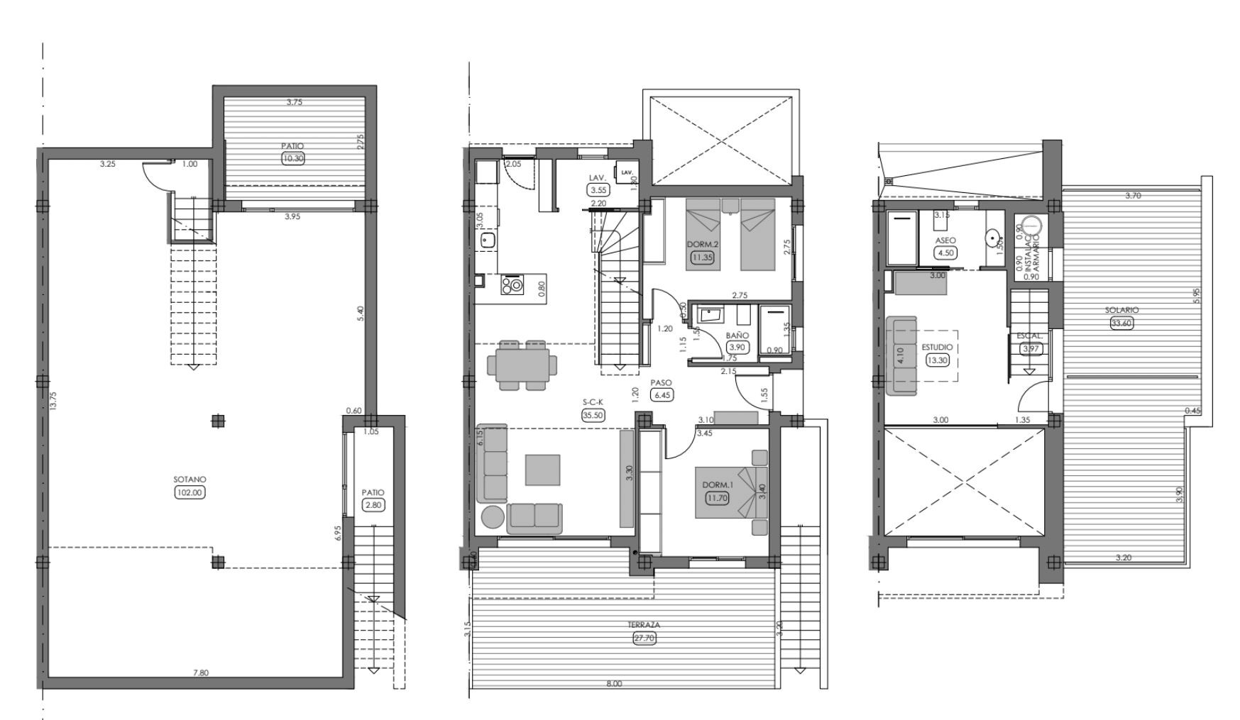
- Indeling: De villa beschikt over een ruime woonkamer met grote openslaande deuren naar de tuin. De open ingerichte keuken en eetruimte zijn ontworpen voor gezellige diners en bijeenkomsten. De wasruimte biedt extra gemak, terwijl de twee tweepersoons slaapkamers met inbouwkasten zorgen voor voldoende opslagruimte. De woning is voorzien van een ruime onderbouw, van maar liefst 102m². In de onderbouw is er een Engelse patio voorzien, waardoor de onderbouw overgoten wordt door natuurlijk zonlicht. Op de bovenste verdieping is er een solarium te vinden van 34m².
- Bovenverdieping: Hier bevindt zich de grote hoofdslaapkamer met inbouwkasten en een en-suite badkamer. Het ruime terras biedt een prachtige plek om van de zon te genieten.
- Privé zwembad: Ontspan en verfris jezelf in je eigen privé zwembad, een luxe die bij elke woning hoort.
- Tuin en parkeerplaats: Elke woning heeft een privé tuin en parkeergelegenheid binnen het perceel.
- Gemeenschappelijke voorzieningen: Naast je eigen zwembad, kun je genieten van de gemeenschappelijke tuinen, zonneweides en een groot gemeenschappelijk zwembad. Perfect om nieuwe vrienden te maken en te socializen met je buren.
Specificaties en voorzieningen
Elke woning in Mar Egeo Residential is uitgerust met moderne voorzieningen die je dagelijks leven nog aangenamer maken:
- Airconditioning: Een efficiënt A/C systeem zorgt voor een aangenaam klimaat in huis, het hele jaar door.
- Vloerverwarming: Geniet van het comfort van vloerverwarming in de badkamers.
- Luxe afwerking: Spiegel en volledige douchewand in de badkamers voor een verfijnde uitstraling.
- Semi-afgewerkte kelder: Extra ruimte die je naar wens kunt afwerken en gebruiken.
Locatievoordelen Gelegen op slechts 20,2 km van het strand, 55,2 km van de luchthaven van Alicante en 72,5 km van de luchthaven van Murcia, biedt La Finca Golf een ideale uitvalsbasis voor zowel ontspanning als avontuur.
Binnen een straal van 500 meter vind je winkels, bars en restaurants, evenals het golfresort zelf. Het dichtstbijzijnde ziekenhuis ligt op slechts 17,9 km afstand, wat voor extra gemoedsrust zorgt.
Prijs: De prijzen voor deze luxe villa's beginnen bij €525.000, met een extra €40.000 voor de afwerking van de kelder.
Ligging Mar Egeo Residential La Finca Golf,
gelegen in het prachtige Algorfa aan de zonovergoten Costa Blanca, Spanje, is een luxe golfresort waar comfort en natuur samenkomen. Dit resort is een paradijs voor golfliefhebbers, met een adembenemende 18-holes kampioenschapsgolfbaan die zowel amateurs als professionals uitdaagt. De baan staat bekend om zijn uitdagende lay-out en uitstekende onderhoud, waardoor elke ronde een unieke ervaring is.
Naast de fantastische golfbaan biedt La Finca Golf een scala aan indrukwekkende faciliteiten. Het moderne clubhuis is de perfecte plek om te ontspannen na een dag op de green, terwijl de diverse restaurants en bars zorgen voor culinaire hoogstandjes die je smaakpapillen zullen verwennen. Of je nu zin hebt in een informele snack of een uitgebreid diner, hier vind je het allemaal.
Voor ultieme ontspanning is er de luxe spa, die uitgebreide wellnessfaciliteiten biedt, waaronder sauna's, stoombaden en een verwarmd zwembad. Hier kun je helemaal tot rust komen en jezelf verwennen met een breed scala aan behandelingen.
Het resort biedt ook tal van sportfaciliteiten, zoals tennisbanen, een fitnessruimte en meerdere zwembaden. Of je nu je backhand wilt verbeteren, aan je conditie wilt werken of gewoon een verfrissende duik wilt nemen, La Finca Golf heeft het allemaal.
Wonen in Mar Egeo Residential betekent dat je geniet van al deze luxe voorzieningen in een schilderachtige omgeving. Het resort biedt een perfecte mix van ontspanning, recreatie en verfijning, waardoor het een ideale plek is om te wonen of vakantie te vieren. Beleef de schoonheid van La Finca Golf en ervaar het beste van de Costa Blanca.
Conclusie Mar Egeo Residential biedt een ongeëvenaarde woonervaring in een van de mooiste regio's van Spanje. Of je nu een fervent golfer bent, een zonaanbidder of gewoon op zoek naar een luxe toevluchtsoord, deze woningen hebben alles wat je nodig hebt en meer. Beleef de ultieme luxe en comfort in La Finca Golf en maak van je droomhuis werkelijkheid!
Kenmerken:
Aantal slaapkamers | 3 | |
Aantal badkamers | 2 | |
Privaat zwembad | Ja | |
Oppervlakte perceel rond het huis | 460 m² | |
Bebouwde oppervlakte | 216 m² | |
Bewoonbare oppervlakte | 114 m² | |
Afstand naar het strand | 14 km | |
Terras oppervlakte | 34 m² | |
Private Tuin | Ja | |
Poort | Ja | |
Nabij Scholen | Ja | |
Terras | Ja | |
Fietsafstand van het strand | Ja | |
Vloerverwarming badkamer | Ja | |
Douche schermen | Ja | |
Jaccuzi | Ja | |
Nabij bushalte | Ja | |
Solarium | Ja | |
Solarium oppervlakte in m2 | 30-40 m² | |
Volledige airco installatie | Ja | |
Elektrische rolluiken | Ja | |
Led verlichting buiten | Ja | |
Led verlichting binnen | Ja | |
privé parkeerplaats | Ja | |
Telefoon Data aansluiting | Ja | |
Videofonie | Ja | |
Inbouwkasten | Ja | |
Aero thermische warmtepomp | Ja | |
Elektrische poort | Ja | |
Pre installatie elektrisch laadpunt | Ja | |
Badkamer spiegels | Ja | |
Alle keuken apparatuur volledig inbegrepen | Ja | |
Badkamer spiegels met verlichting | Ja | |
Sportvelden | Ja | |
Petanque | Ja | |
Padel Terrein | Ja | |
Nabij kinder speeltuin | Ja | |
Fitness ruimte | Ja | |
Berging | Ja | |
Kelder | Ja | |
Gedeelde tuin | Ja | |
Oriëntatie | Zuid-west | |
Golfresort afstand in km | 0-2 km | |
Ziekenhuis afstand in km | 5-10 km | |
Luchthaven Alicante afstand | 30-40 km | |
Luchthaven Murcia afstand | 50+ km | |
Uitzicht tuin | Ja | |
Ontspanning ruimte buiten | Ja | |
Ontspanning ruimte binnen | Ja | |
Hangend toilet | Ja | |
Hangend badkamer meubel | Ja | |
Uitzicht op het zwembad | Ja | |
Op golfterrein | Ja | |
Spa center | Ja | |
Cameradeur met intercom terminal | Ja | |
Security glas met uv filter | Ja | |
Hydromassage kolom in douche | Ja | |
Sauna | Ja | |
Badkamer meubel en spiegels | Ja | |
Security 24/24 | Ja | |
Volledig ingerichte keuken | Ja | |
Gepantserde toegangsdeur met veiligheidsslot | Ja | |
Tuin met kunstgras, palmbomen, druppelirrigatie | Ja | |
Kranen met waterbesparing | Ja | |
Grote ramen van vloer tot plafond | Ja | |
Hoogwaardige afwerking | Ja | |
Kunstgras | Ja | |
Aerothermische boiler | Ja | |
Hoge plafonds | Ja | |
Gelijkvloers met tuin | Ja | |
Bouwgrond en villa op maat | Ja | |
Luxe nieuwbouw | Ja | |
Extra grote ramen uitkijkend op tuin en zwembad | Ja | |
Aangelegde tuin met grind, gras en planten. | Ja | |
e-bike oplaadstation | Ja | |
Kijkwoning | Ja | |
Goed gebied voor rentabiliteit van huur | Ja | |
Deuren met magnetische sluiting | Ja | |
Automatische irrigatie in de tuin. | Ja | |
Extra verdieping ondergronds (basement) | Ja | |
Fietsberging | Ja | |
Social club | Ja | |
Energielabel | A | |
Afgewerkte badkamer | Ja | |
Gesloten urbanisatie | Ja |
Meer info?
Ontdek en droom mee van het nieuwste van de markt

Condado De Alhama Resort appartementen
Project: Condado De Alhama nature resort appartementen
Stad: Mazarron
2   2     73 m²   27 m²  

Condado De Alhama- Mirador penthouse
Project: Condado De Alhama- Mirador del Condado-appartement
Stad: Alhama de Murcia
2   2     67 m²   47 m²  

Tussen-appartement Haciendo del Álamo
Project: Appartementen in Hacienda del Álamo Golf Resort
Stad: Hacienda del Álamo Golf Resort-Roldan
2   2   88 m²   20 m²  

Appartement Calistoga - gelegen op golfresort
Project: Appartementen op Golfresort Desert Springs Resort
Stad: Cuevas Del Almanzora
2   2   71 m²   17 m²  

Vista Golf Algorfa-Los Lagos -La Finca Golf
Project: Vista Golf Algorfa-Los Lagos -La Finca Golf
Stad: Algorfa
3   2     168 m²   74 m²  

Condado De Alhama Bungalows Gaudi
Project: Condado De Alhama Bungalows Gaudi
Stad: Alhama de Murcia
3   2     90 m²   19 m²  

Altaona Golf And Country Village
Project: Altaona Village Townhouses
Stad: Banos y Mendigo-Murcia
2   2     76 m²   91 m²  

SWING GOLF 2-slaapkamer penthouse in Pulpí
Project: SWING GOLF appartementen met zicht op zee & golf
Stad: Mar de Pulpi- Costa Almeria
2   2   100 m²   37 m²  

Azure IV - Lo Romero Golf - Appartement
Project: Azure IV - Lo Romero Golf - Appartement
Stad: Pilar de la Horadada - Alicante
2   2   83 m²   75 m²  

Los Lagos: bungalow met tuin in La Finca Golf
Project: Los Lagos R12 -La Finca Golf
Stad: Algorfa
2   2     69 m²   14 m²  

NOSTRUM LIVING - Penthouse 2 slaapkamers
Project: NOSTRUM LIVING - Moderne bungalows Alhama Golf
Stad: Alhama de Murcia
2   2   74 m²   25 m²  

Moderne woningen met uitzicht op golfbaan en zee
Project: Luxe appartementen – La Serena Breeze
Stad: Los Alcazares - Murcia - Mar Menor
2   2     76 m²   15 m²  
Casas Kimpencio leert je alles wat je moet weten:

Top 12 overwinterplekken Costa de Almería
Ontdek de top 12 beste plekken om te overwinteren aan de Costa de Almería.
Tips voor Belgen & Nederlanders: zon, rust, stranden en verborgen parels zoals Mar de Pulpí en San Juan de los Terreros.
Stel je voor: een zachte winterzon, kilometerslange stranden en het ontspannen ...
Martine

Feestdagen Spanje 2025-2006
In 2026 telt Spanje 14 officiële feestdagen, met vier gunstig vallende dagen voor lange weekenden, zoals 1 mei, 3 april (Goede Vrijdag), 12-13 oktober en 25 december.
Sommige regionale feestdagen zoals San José of Santiago Apóstol verschillen per regio.
Vooral het lange weekend r...
Martine

Rotondes in Spanje: nieuwe tijden op komst
Een Spaanse rotonde is eigenlijk een slim soort gelijkvloers knooppunt, bedacht om het verkeer vlotter en veiliger te laten verlopen.
Het idee is simpel: minder kruispunten van rijrichtingen, dus minder kans op ongelukken. Maar eerlijk is eerlijk dat werkt niet altijd even goed.
Zek...
Martine