Home Lopende projecten Alle Panden Over ons Ons team Ons kantoor Onze werkwijze Contacteer ons Blog Cookies

Villa kopen in SIERRA VERDE Finestrat

 Project: Investeren in SIERRA VERDE villa nabij Benidorm

Investeren in SIERRA VERDE nabij Benidorm

Korte beschrijving:

Villa kopen in Finestrat – SIERRA VERDE met ruimte, privacy en topligging

Wil je wonen in alle rust met zicht op natuur en toch vlak bij de levendigheid van de Costa Blanca?

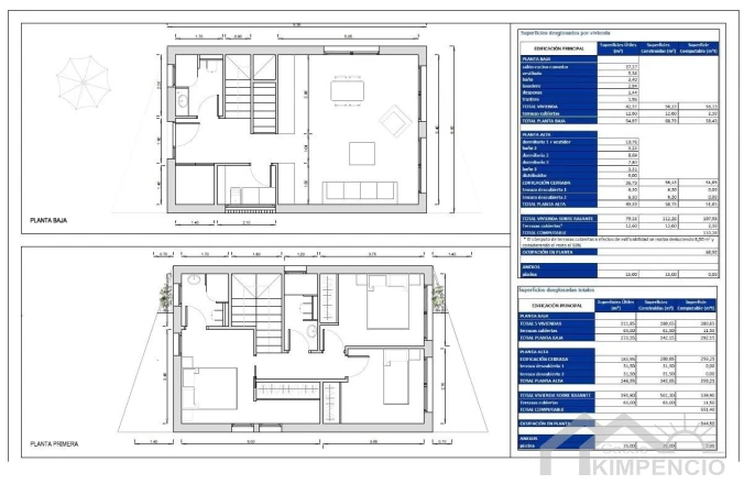
Deze villa in SIERRA VERDE in Finestrat (Balcón de Finestrat, Alicante) biedt precies die balans. Met 143m² woonoppervlakte, 3 slaapkamers en 3 badkamers is dit een woning die comfort en kwaliteit uitstraalt, ideaal voor zowel vaste bewoning als investering in vastgoed Spanje. Gelegen op een perceel van 300m² geniet je hier van privacy en buitenruimte, met een terras van 24m² waar je het hele jaar door kan ontspannen. De moderne architectuur en slimme indeling zorgen voor veel licht en een aangename flow tussen binnen en buiten. Met oplevering op 01-12-2026 stap je in een afgewerkt project op korte termijn, volledig begeleid in het Nederlands door Casas Kimpencio. Overzicht:

  • 3 slaapkamers
  • 3 badkamers
  • 143m² bebouwd
  • 24m² terras
  • Perceel 300m²
  • Villa Prijs vanaf 550.000€
  • Oplevering 01-12-2026

Een villa die alles biedt: ruimte, ligging en levenskwaliteit. Zie jij jezelf hier al thuiskomen onder de Spaanse zon?

Neem contact op en wij begeleiden je persoonlijk naar jouw droomwoning in Spanje.

U bent nog niet aangemeld!

Na invullen van onderstaande gegevens wordt u aangemeld, indien er nog geen account bestaat kan deze aangemaakt worden!



 Geef ons uw mening...

 Momenteel nog geen reviews voor dit pand.

Uitgebreide beschrijving:

Villa kopen in Finestrat – Sierra Verde: exclusief wonen met privacy en natuur

Exclusief investeringsproject in Finestrat op een unieke locatie vlakbij de golfbaan Puig Campana en op korte afstand van Benidorm, vinden we deze kleinschalige residentie gericht op investeerders die op zoek zijn naar rendement én zorgeloos eigendom in Spanje.

Deze nieuwbouwontwikkeling combineert een rustige, groene omgeving met een strategische ligging aan de Costa Blanca, waar vraag naar vakantieverhuur het hele jaar door aanwezig is. Dankzij de verhoogde ligging geniet het project van panoramische zichten op zee en bergen, wat de aantrekkingskracht voor huurders aanzienlijk verhoogt.

Deze moderne villa beschikt over 3 comfortabele slaapkamers en 3 stijlvolle badkamers, verdeeld over een bebouwde oppervlakte van 143 m². De woning is ontworpen met een open en luchtige indeling waarbij de keuken, eetruimte en woonkamer harmonieus in elkaar overvloeien. Dankzij de grote schuiframen baadt het interieur in natuurlijk licht en loopt de leefruimte moeiteloos over in het terras en het privézwembad, wat zorgt voor een echt binnen-buitengevoel. Er is gekozen voor kwalitatieve materialen en een verfijnde afwerking, aangevuld met hedendaagse technieken die het wooncomfort naar een hoger niveau tillen.

De combinatie van strak design, functionaliteit en een warme uitstraling maakt deze villa tot een ideale plek om te ontspannen en te genieten van het mediterrane leven.

Villa kopen in Finestrat nieuwbouw met privézwembad nabij Benidorm Costa Blanca?

Exclusief nieuwbouwproject met slechts 5 villa’s in Finestrat

Ontdek deze unieke residentie van slechts 5 moderne nieuwbouwvilla’s in Finestrat, één van de meest gegeerde regio’s aan de Costa Blanca voor Belgische en Nederlandse kopers.

Dit kleinschalige project combineert rust, privacy en een topligging vlakbij Benidorm, stranden, golfbanen en alle voorzieningen.

Gelegen tussen het authentieke dorp Finestrat en de levendige kust van Benidorm, geniet je hier van een perfecte balans tussen natuur en bereikbaarheid.

Dankzij de verhoogde ligging heb je prachtige zichten op zee en bergen, wat deze woningen extra aantrekkelijk maakt voor zowel eigen gebruik als investering.

Overzicht villa’s Sierra Verde

Villa 1 – Verkocht
4 slaapkamers • 3 badkamers • 170 m²
Hedendaags design met een hoogwaardige afwerking en een slimme indeling.

Ruime open keuken met directe toegang tot het terras, privézwembad van 3x5 meter en eigen parkeerplaats.

Villa 2 – Verkocht
3 slaapkamers • 3 badkamers • 143 m²
Doordachte indeling met twee inloopkasten, kitchenette en grote panoramische ramen.

Terras en balkons zorgen voor een gezellige en private sfeer.

Villa 3 – Beschikbaar vanaf 550.000 euro
3 slaapkamers • 3 badkamers • 143 m²
Elegante open leefruimte met moderne keuken en directe toegang tot terras en zwembad.

Afwerking met kwalitatieve materialen en focus op comfort in elk detail.

Villa 4 – Verkocht
3 slaapkamers • 3 badkamers • 201 m²
Ruimere woning met extra leefoppervlakte, twee inloopkasten

grote kamers en meerdere buitenruimtes zoals balkons en terras.

Villa 5 hoek Beschikbaar vanaf 600.000 euro
3 slaapkamers • 3 badkamers • 143 m²
Moderne villa met open keuken, hoogwaardige afwerking en privézwembad.

Ontworpen met aandacht voor privacy en maximaal wooncomfort.

Indeling van de villa’s moderne architectuur en optimaal wooncomfort

Dit project omvat in totaal 5 villa’s, elk ontworpen met een moderne en minimalistische stijl, verdeeld over twee verdiepingen.

  • 3 slaapkamers en 3 badkamers
  • Bebouwde oppervlakte van 143 m²
  • Perceel van ongeveer 300 m²
  • Terrassen van 24 m²
  • Open leefruimte met veel lichtinval
  • Master bedroom met dressing en privé terras

De open indeling zorgt voor een naadloze overgang tussen binnen en buiten, ideaal om het hele jaar door te genieten van het mediterrane klimaat.

Privé buitenruimte met zwembad en parking

Elke villa beschikt over een volledig privatieve buitenruimte die comfort en luxe garandeert.

  • Privé zwembad
  • Aangelegde tuin
  • Parking op eigen perceel voor 2 wagens
  • Afgesloten perceel voor extra privacy en veiligheid

Deze combinatie maakt de woningen perfect voor gezinnen, tweede verblijven of verhuur.

Binnen dit aanbod springen vooral Villa 3 en Villa 5 eruit als absolute toppers voor wie op zoek is naar een combinatie van prijs, kwaliteit en ligging.

Villa 3 vanaf 550.000 euro
3 slaapkamers • 3 badkamers • 143 m²
Deze villa biedt een perfecte balans tussen ruimte en functionaliteit, met een elegante open leefruimte en moderne keuken die naadloos overgaat in het terras en het privézwembad. Grote raampartijen zorgen voor een lichtrijk geheel en een sterk binnen-buitengevoel. Ideaal voor wie een instapklare, hedendaagse villa zoekt in een rustige maar strategische omgeving.

Hoek villa 5 vanaf 600.000 euro
3 slaapkamers • 3 badkamers • 143 m²
Hier geniet je van dezelfde doordachte indeling, maar met een extra gevoel van exclusiviteit en afwerking. De woning is ontworpen met maximale privacy, een stijlvolle open keuken en een prachtig aangelegd buitengebied met privézwembad. Perfect voor wie nét dat tikkeltje meer luxe en uitstraling wil.

Met reeds verkochte units en een beperkte beschikbaarheid is dit het moment om te beslissen. Sierra Verde combineert rust, natuur en een topligging vlak bij de kust, wat het niet alleen een heerlijke plek maakt om te wonen, maar ook een sterke investering voor de toekomst.

Hoogwaardige afwerking en energiezuinig wonen

De villa’s worden gebouwd met kwalitatieve materialen en moderne technieken die zorgen voor een energiezuinige en comfortabele woning.

  • Energieklasse A
  • Aerothermisch systeem voor warm water
  • Airconditioning met individuele regeling per ruimte
  • Volledig ingerichte keuken met toestellen
  • Design verlichting binnen en buiten

Dit zorgt voor een duurzame investering met lage verbruikskosten en hoog wooncomfort.

Topligging nabij Benidorm golf en voorzieningen

De locatie is één van de grootste troeven van dit project en maakt het bijzonder interessant voor kopers en investeerders.

  • Stranden van Benidorm op 5 km
  • Finestrat dorp op 3 km
  • Puig Campana Golf op 2 km
  • Winkelcentrum La Marina op 4 km
  • Haven van Benidorm op 6 km
  • Luchthaven Alicante op 55 km

De combinatie van zee, golf, shopping en ontspanning zorgt voor een sterke aantrekkingskracht en waardevastheid. Investeren in vastgoed in Spanje met toekomstpotentieel

Dit project is ideaal voor Belgische en Nederlandse kopers die op zoek zijn naar een moderne villa in Spanje met privacy, luxe en een uitstekende ligging. Dankzij de beperkte oplage van slechts 5 woningen is exclusiviteit gegarandeerd.

Casas Kimpencio ziet dit als een sterke opportuniteit binnen het huidige vastgoedaanbod

  • Zeer kleinschalig en exclusief project
  • Moderne villa’s met privé zwembad
  • Topligging nabij Benidorm en golf
  • Ideaal voor eigen gebruik en investering

Wacht niet te lang, want projecten met slechts 5 villa’s op deze toplocatie zijn snel verkocht.

Neem vandaag nog contact met ons op en ontdek hoe jij jouw droomvilla in Spanje kan realiseren met persoonlijke begeleiding van A tot Z

Een woning kopen aan de Costa Blanca is voor veel Belgen en Nederlanders al jaren een droom.

Denk aan meer dan 300 dagen zon per jaar, een ontspannen levensstijl, prachtige stranden en een uitstekende bereikbaarheid. Maar wie zich echt verdiept in de vastgoedmarkt hier, merkt al snel dat er veel meer komt kijken bij een aankoop in Spanje dan op het eerste gezicht lijkt.

En precies daar maken wij bij Casas Kimpencio het verschil.

Steeds meer mensen zoeken vandaag online naar huis kopen Spanje Costa Blanca, vastgoed Spanje voor Belgen of investeren in Spaans vastgoed.

Wat opvalt, is dat er enorm veel informatie te vinden is, maar vaak versnipperd, verouderd of simpelweg onvolledig.

Wij hebben deze tekst bewust geschreven om jou een helder, betrouwbaar en volledig beeld te geven van wat er écht speelt op de vastgoedmarkt aan de Costa Blanca.

De Costa Blanca is vandaag één van de meest stabiele en aantrekkelijke vastgoedregio’s van Europa.

De combinatie van klimaat, levenskwaliteit en prijsniveau zorgt ervoor dat de vraag blijft stijgen.

Vooral regio’s zoals Alicante Zuid, Orihuela Costa, Torrevieja, Ciudad Quesada, Pinoso en het binnenland winnen enorm aan populariteit bij buitenlandse kopers.

Wat veel mensen niet weten, is dat de prijzen hier de afgelopen jaren structureel zijn gestegen en dat deze trend zich blijft doorzetten door schaarste aan bouwgrond en blijvende internationale vraag. Voor Belgische en Nederlandse kopers zijn er vandaag grofweg drie interessante opties: nieuwbouw, bestaande woningen en bouwen op maat.

  • Nieuwbouwprojecten bieden vaak moderne architectuur, energiezuinigheid en weinig onderhoud.
  • Bestaande woningen kunnen dan weer interessanter zijn qua ligging of prijs.

En voor wie echt zijn droomwoning wil realiseren, is bouwen op maat een steeds populairdere keuze, vooral in het binnenland waar grotere percelen beschikbaar zijn.

Maar hier zit meteen ook de grootste valkuil.

De Spaanse vastgoedmarkt werkt anders dan in België en Nederland. Denk aan juridische structuren, belastingen, vergunningen en bouwvoorschriften.

Zonder de juiste begeleiding loop je het risico om belangrijke details te missen die later grote gevolgen kunnen hebben.

Bij Casas Kimpencio begeleiden wij onze klanten van A tot Z. Dat betekent niet alleen het vinden van de juiste woning, maar ook volledige ondersteuning bij juridische vragen, belastingen, financiering en zelfs verhuurmogelijkheden. Wij werken samen met erkende advocaten en partners in Spanje zodat jij met een gerust hart kan investeren.

Wat ons onderscheidt, is dat wij niet werken als een klassieke makelaar. Wij denken met jou mee.

We luisteren naar jouw wensen en vertalen die naar concrete regio’s en projecten die écht bij jou passen. Zoals we vaak zeggen tegen onze klanten: Deze regio voelt gewoon juist voor jou.

Dat persoonlijke aspect maakt een enorm verschil in het aankoopproces. Daarnaast volgen wij de markt dagelijks op. We weten welke projecten interessant zijn, waar de beste investeringskansen liggen en welke regio’s in opkomst zijn. Dit is cruciale informatie die je niet zomaar op een vastgoedportaal terugvindt.

Een ander belangrijk aspect dat vaak onderschat wordt, is het rendement.

Veel van onze klanten kopen niet alleen voor eigen gebruik, maar ook als investering. De Costa Blanca biedt vandaag sterke verhuurmogelijkheden, zowel korte termijn als lange termijn.

Met de juiste woning en locatie kan je hier een mooi rendement behalen, zeker in toeristische zones of opkomende regio’s.

Wat ook meespeelt in de populariteit van de Costa Blanca, is de infrastructuur.

De luchthavens van Alicante en Murcia zorgen voor vlotte verbindingen met België en Nederland. Daarnaast is de regio perfect ontsloten met moderne wegen, ziekenhuizen, internationale scholen en commerciële centra. Maar misschien nog belangrijker dan alle cijfers en feiten, is het gevoel. Wie hier eenmaal is geweest, begrijpt waarom zoveel mensen de stap zetten.

Het leven vertraagt hier net genoeg om ervan te genieten, zonder in te boeten op comfort of kwaliteit.

Bij Casas Kimpencio nodigen wij je graag uit om deze regio zelf te ontdekken.

Wij organiseren bezichtigingsreizen waarbij we samen verschillende woningen en regio’s bekijken, volledig afgestemd op jouw wensen. Geen standaard aanpak, maar een persoonlijke ervaring die jou helpt om de juiste beslissing te nemen. Ben je benieuwd welke regio of woning het beste bij jou past? Dan is dit het perfecte moment om de eerste stap te zetten. De markt beweegt snel, en de beste opportuniteiten worden vaak snel verkocht.

Ontdek ons aanbod en onze aanpak via onze website Casas Kimpencio en laat je begeleiden door experts die de Costa Blanca door en door kennen. Jouw droomwoning in Spanje begint hier.

Strategische ligging in Finestrat nabij golf en Benidorm

Finestrat is één van de meest gegeerde regio’s aan de Costa Blanca Noord en combineert natuur, rust en bereikbaarheid.

  • Vlakbij golfbaan Puig Campana
  • Op slechts 4 km van de stranden van Benidorm
  • Dichtbij shoppingcentrum La Marina
  • Finestrat op korte afstand
  • Snelle verbinding naar luchthaven Alicante

Deze combinatie maakt het project aantrekkelijk voor zowel korte termijn vakantieverhuur als langere verblijven in het tussenseizoen.

Casas Kimpencio visie

  • Sterke opportuniteit voor investeerders die zoeken naar direct rendement in Spanje
  • Ideale instap in de verhuurmarkt aan de Costa Blanca met lage instapprijzen
  • Perfecte combinatie van eigen gebruik en professioneel beheer
  • Regio met bewezen stijgende vastgoedwaarde en constante huurvraag
  • Interessant fiscaal voordeel door mogelijkheid tot btw-recuperatie

Dit is een unieke kans om te investeren in vastgoed in Spanje met een duidelijk rendement en minimale zorgen.

Contacteer ons vandaag en ontdek hoe wij jou persoonlijk begeleiden naar een slimme en zorgeloze investering aan de Costa Blanca.

Deze nieuwe bouwheer is een jonge, dynamische bouwpromotor waar Casas Kimpencio met veel vertrouwen mee samenwerkt.

Wat meteen opvalt, is hun brede aanpak: van elektriciteit en loodgieterij tot volledige nieuwbouwprojecten en renovaties. Ze bieden dus echt totaaloplossingen aan, wat voor onze klanten een enorme meerwaarde is. Alles wordt in eigen beheer of met vaste, ervaren professionals uitgevoerd, waardoor de kwaliteit en opvolging gegarandeerd blijven.

Hoewel het bedrijf zelf relatief jong is, bestaat het team uit vakmensen met jarenlange ervaring in de bouwsector.

Die combinatie van frisse energie en stevige expertise zorgt ervoor dat projecten niet alleen modern en doordacht zijn, maar ook technisch sterk en duurzaam worden uitgevoerd.

Wat wij bij Casas Kimpencio bijzonder waarderen, is hun focus op kwaliteit en materiaalkeuze. Deze bouwheer werkt uitsluitend met hoogwaardige materialen, wat zich vertaalt in woningen die niet alleen mooi ogen, maar ook gebouwd zijn om lang mee te gaan. Comfort, afwerking en duurzaamheid staan altijd centraal. Daarnaast speelt duurzaamheid een grote rol in hun visie.

De woningen voldoen standaard aan energiecertificaten A of B, wat niet alleen goed is voor het milieu, maar ook voor de energiekosten en de toekomstige waarde van de woning.

Voor onze klanten betekent dit investeren in een energiezuinige en toekomstgerichte woning. Ook op juridisch vlak bieden ze extra zekerheid. Dankzij hun meertalige juridische ondersteuning en correcte garanties kunnen kopers rekenen op een transparant en veilig aankoopproces. Dit sluit perfect aan bij de manier waarop Casas Kimpencio werkt: onze klanten volledig ontzorgen en begeleiden van A tot Z.

Kort samengevat is deze promotor een betrouwbare partner die kwaliteit, duurzaamheid en service combineert.

Een promotor waar wij als Casas Kimpencio volledig achter staan, en die wij met een gerust hart aanbevelen aan onze klanten die op zoek zijn naar een zorgeloze bouw- of renovatie-ervaring in Spanje.

Casas Kimpencio visie investeren in sierra verde in Finestrat Costa Blanca en direct rendement

  • Strategische ligging vlakbij Benidorm
  • één van de sterkste verhuurregio’s van Spanje met het hele jaar door vraag
  • Panoramisch zee- en bergzicht, wat de aantrekkelijkheid voor huurders aanzienlijk verhoogt en zorgt voor hogere bezettingsgraden
  • Zeer interessante instapprijzen voor de Costa Blanca, ideaal voor zowel beginnende als ervaren investeerders
  • Flexibiliteit in aanbod met studio’s, 1 en 2 slaapkamer appartementen, en villa's waardoor je kan investeren volgens jouw budget en strategie
  • Hoogwaardige en instapklare afwerking, waardoor geen extra investeringen nodig zijn om te starten met verhuren
  • Sterke combinatie van ligging, verhuurbeheer en vraag, wat zorgt voor een stabiele en toekomstgerichte investering
  • Gelegen in een regio met bewezen waardestijging en blijvende populariteit bij internationale kopers

Casas Kimpencio ziet dit als een van de meest complete investeringsopportuniteiten momenteel op de Costa Blanca voor wie rendement en zekerheid wil combineren

Vastgoed kopen in Balcon de Finestrat Spanje

Costa Blanca wonen investeren met nederlandstalige begeleiding en persoonlijke aanpak op maat

Balcón de Finestrat is een snelgroeiende en zeer gegeerde residentiële zone aan de Costa Blanca Noord, gelegen op een verhoogde positie tussen Finestrat en Benidorm.

Deze locatie staat bekend om haar moderne uitstraling, panoramische uitzichten en strategische ligging dicht bij zee, golf en alle voorzieningen.

Het is een ideale plek voor wie wil investeren in nieuwbouw of comfortabel wil wonen in een rustige maar centraal gelegen omgeving.

De ligging is één van de grootste troeven.

Vanuit Balcón de Finestrat geniet je van indrukwekkende zichten op de Middellandse Zee en de skyline van Benidorm, terwijl je op slechts enkele minuten rijden van de stranden bent.

De nabijheid van het commerciële centrum La Marina, met tal van winkels, restaurants en supermarkten, zorgt ervoor dat alles binnen handbereik ligt zonder in te boeten op rust en privacy.

De omgeving is modern en ruim opgezet, met brede straten, groene zones en een lage bouwdichtheid. Dit zorgt voor een aangename woonkwaliteit en een open gevoel dat steeds zeldzamer wordt aan de kust. Daarnaast liggen verschillende golfbanen, zoals Puig Campana Golf, in de directe omgeving, wat deze regio extra aantrekkelijk maakt voor zowel levensgenieters als investeerders. Op vlak van vastgoed is Balcón de Finestrat één van de hotspots van de Costa Blanca. Hier vind je voornamelijk nieuwbouwprojecten met hedendaagse architectuur, ruime terrassen en vaak zeezicht. De combinatie van moderne woningen, sterke vraag en beperkte beschikbare bouwgrond zorgt voor een stabiele en stijgende vastgoedwaarde, wat het een interessante keuze maakt voor de toekomst.

Wat weinig mensen weten maar Casas Kimpencio je graag vertelt

  • is dat Balcón de Finestrat bewust ontwikkeld wordt als een kwalitatieve residentiële zone, met strikte bouwvoorschriften en aandacht voor esthetiek en ruimte.
  • Dit voorkomt overbebouwing en zorgt ervoor dat de wijk haar exclusieve en rustige karakter behoudt, zelfs na verdere ontwikkeling.
  • Een ander minder gekend inzicht is dat de vraag naar vastgoed in deze zone sterk wordt gedreven door internationale kopers die bewust kiezen voor een alternatief buiten het drukke Benidorm. Hierdoor ontstaat er een stabiele markt met kopers die gericht zijn op kwaliteit en lange termijn, wat een positief effect heeft op de waardevastheid van vastgoed.

Afstanden vanuit Balcón de Finestrat

  • Luchthaven Alicante ongeveer 40 minuten rijden
  • Luchthaven Murcia ongeveer 1 uur en 30 minuten rijden
  • Stranden van Benidorm ongeveer 10 minuten
  • Ziekenhuis Marina Baixa in Villajoyosa ongeveer 10 minuten rijden
  • Winkels en supermarkten zoals La Marina Shopping Center ongeveer 5 minuten
  • Restaurants en bars op korte afstand en in Benidorm
  • Golfbanen zoals Puig Campana
  • Golf ongeveer 5 minuten
  • Benidorm ongeveer 10 minuten
  • Finestrat dorp ongeveer 10 minuten
  • Alicante stad ongeveer 40 minuten

Een huis kopen aan de Costa Blanca?

Casas Kimpencio begeleidt Belgen en Nederlanders persoonlijk bij vastgoed, nieuwbouw, investering en aankoop in Spanje.

Trends en groei in Finestrat


JaarPrijs per m²Jaarlijkse stijging
2023€3.100
2024€3.450+11%
2025€3.800+10%

Of je nu op zoek bent naar een winstgevende investering, een vakantieverblijf of beide?

deze toeristische appartementen in Finestrat bieden uitzonderlijke waarde en een uitstekende locatie.

Neem vandaag nog contact met ons op voor meer informatie of om een bezichtiging te regelen en jouw investeringsobject aan de Costa Blanca veilig te stellen.

Investeren in de zon: Nieuwbouwwoningen met verhuurlicentie


Kenmerken:

Aantal slaapkamers 3
Aantal badkamers 3
Privaat zwembad Ja
Oppervlakte perceel rond het huis 300 m²
Bebouwde oppervlakte 143 m²
Bewoonbare oppervlakte 107 m²
Afstand naar het strand 5 km
Terras oppervlakte 24 m²
Gedeeld zwembad Ja
Poort Ja
Nabij Scholen Ja
Nabij Commercieel centrum Ja
Nabij bushalte Ja
Terras Ja
Fietsafstand van het strand Ja
Douche schermen Ja
Pré installatie airco Ja
Telefoon Data aansluiting Ja
Videofonie Ja
Inbouwkasten Ja
Aero thermische warmtepomp Ja
Badkamer spiegels Ja
Alle keuken apparatuur volledig inbegrepen Ja
Nabij kinder speeltuin Ja
Oriëntatie Zuid
Golfresort afstand in km 5-10 km
Ziekenhuis afstand in km 5-10 km
Luchthaven Alicante afstand 40-50 km
Uitzicht bergen Ja
Ontspanning ruimte buiten Ja
Pre installatie warmtepomp zwembad Ja
Hangend toilet Ja
Hangend badkamer meubel Ja
Pré installatie zonnepanelen Ja
Uitzicht op het zwembad Ja
Security glas met uv filter Ja
Security 24/24 Ja
Volledig ingerichte keuken Ja
Gepantserde toegangsdeur met veiligheidsslot Ja
Grote ramen van vloer tot plafond Ja
Hoogwaardige afwerking Ja
Goede prijs-kwaliteit verhouding Ja
Aerothermische boiler Ja
Hoge plafonds Ja
Meubelpakket Optioneel
Gelijkvloers Ja
Gelijkvloers met tuin Ja
Luxe nieuwbouw Ja
Extra grote ramen uitkijkend op tuin en zwembad Ja
Goed gebied voor rentabiliteit van huur Ja
Wandelafstand van het strand Ja
Energielabel A
Afgewerkte badkamer Ja
Gesloten urbanisatie Ja

Meer info?


Beschikbare documenten

property-5150-14-pic.webp

document-property-5150-14-pic.webp

download

Finestrat exclusief wonen tussen natuur en kust

Hoek villa kopen in SIERRA VERDE Finestrat?
Hoek villa kopen in SIERRA VERDE Finestrat?

Project: Investeren in SIERRA VERDE villa nabij Benidorm

Stad: Finestrat-Benidorm

3   3     143 m²   24 m²  

Studio met verhuurlicentie in Finestrat
Studio met verhuurlicentie in Finestrat

Project: Appartement met verhuurlicentie Costa Blanca

Stad: Finestrat-Benidorm

0   1     36 m²   1 m²  

Luxevilla met zeezicht Campana Garden Finestrat
Luxevilla met zeezicht Campana Garden Finestrat

Project: Sunny Hills Resort villa: Luxe wonen in Finestrat

Stad: Finestrat-Benidorm

3   3     224 m²   100 m²  

Halfvrijstaande villa in residentie Sea Views 6
Halfvrijstaande villa in residentie Sea Views 6

Project: Residentie Sea View 6: Luxe woningen nabij de zee

Stad: Finestrat-Benidorm

3   3     143 m²  

Vrijstaande villa in Finestrat, Bahia Golf
Vrijstaande villa in Finestrat, Bahia Golf

Project: Residentie El Duque Villas in Finestrat

Stad: Finestrat-Benidorm

4   4     249 m²   89 m²  

Finestrat Paradise Resort: jouw droom aan de Costa
Finestrat Paradise Resort: jouw droom aan de Costa

Project: Paradise resort , Luxe woningen in Finestrat!

Stad: Finestrat-Benidorm

2   2     80 m²   30 m²  

Gelijkvloers appartement in My White Resort
Gelijkvloers appartement in My White Resort

Project: My White Resort Exclusief & veelbelovend!

Stad: Finestrat-Benidorm

2   2   66 m²   21 m²  

NATURE: woning in Balcón De Finestrat
NATURE: woning in Balcón De Finestrat

Project: NATURE Moderne woningen in Balcón de Finestrat

Stad: Finestrat-Benidorm

3   2   176 m²   37 m²  

Villa Salisol Golf in Finestrat
Villa Salisol Golf in Finestrat

Project: Villas Salisol Golf in Finestrat

Stad: Finestrat-Benidorm

3   4     141 m²   79 m²  

Salisol Hills F2 - Balcón De Finestrat - Villa
Salisol Hills F2 - Balcón De Finestrat - Villa

Project: Salisol Hills - villa's gelegen in Finestrat - F2

Stad: Finestrat-Benidorm

3   2     107 m²    

Residencial Lidia Mar-Campana Garden Villa Addaia
Residencial Lidia Mar-Campana Garden Villa Addaia

Project: Residencial Lidia Mar-Campana Garden

Stad: Finestrat-Benidorm

3   3     198 m²   60 m²  

Sóller Residential : Gelijkvloerse luxe villa's
Sóller Residential : Gelijkvloerse luxe villa's

Project: Soller: Betaalbare luxe gelijksvloerse villa

Stad: Finestrat-Benidorm

3   2     132 m²   27 m²  

Word wakker in het groen villa kopen in Finestrat

Benidorm Beach: Luxe wonen aan de Costa Blanca
Benidorm Beach: Luxe wonen aan de Costa Blanca

Prachtige luxe appartementen met uitzicht op de Middellandse zee, een plek om te ontspannen en te genieten van de rust

Een woning in Benidorm Beach: unieke investeringskans?

Volgens Daniel Torregrosa, CEO van Aligrupo: "Benidorm Beach wordt een icoon van luxe wonen...

Martine

Vaste kosten na het kopen van een woning in Spanje
Vaste kosten na het kopen van een woning in Spanje

Jouw gids voor wonen in Spanje na de koop: belastingen, nuts, heffingen, onderhoud, verzekeringen en praktische tips om je maandlast te verlagen.


...

Martine

Ons aanbod in Finestrat: ontdek de parels!
Ons aanbod in Finestrat: ontdek de parels!

Finestrat is een van die zeldzame plekken aan de Spaanse kust waar je écht het gevoel hebt dat alles klopt. Een adembenemend berglandschap als achtergrond, panoramisch uitzicht over de Middellandse Zee, zonovergoten terrassen, moderne voorzieningen én het bruisende leven van Benidorm om de hoek...

Martine

square-box
Tine
Vragen over panden, projecten en onze content
Snel starten:

Hallo, ik ben Tine je kan bij mij terecht met al je vragen over panden, projecten en onze content. Ik antwoord alleen op basis van de beschikbare website-inhoud.