Home Lopende projecten Alle Panden Over ons Ons team Ons kantoor Onze werkwijze Contacteer ons Blog Cookies

Halfvrijstaande villa in residentie Sea Views 6

 Project: Residentie Sea View 6: Luxe woningen nabij de zee

Geschakelde woning op 2.5 km van de zee!

Korte beschrijving:

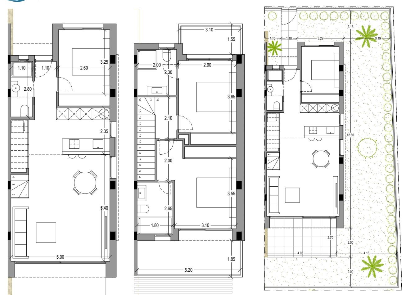
HALFVRIJSTAANDE VILLA MET 3 SLAAPKAMERS EN ENSUITE BADKAMERS IN FINESTRAT

Deze moderne geschakelde woning is verdeeld over twee verdiepingen en combineert comfort, privacy en buitenleven op een doordachte manier. Op het gelijkvloers kom je terecht in een lichtrijke leefruimte met open keuken en kookeiland, afgewerkt met een Silestone werkblad en kwalitatieve toestellen. Vanuit de woonkamer heb je directe toegang tot de tuin die zijlangs over de woning loopt, waardoor je op elk moment van de dag kan kiezen tussen zon en schaduw. Op deze verdieping bevindt zich ook de eerste slaapkamer met en-suite badkamer en ingebouwde kasten.

Op de eerste verdieping vind je de twee overige slaapkamers, elk met een eigen badkamer en toegang tot een privébalkon. Dit zorgt voor maximale privacy en een aangename lichtinval in elke ruimte. De woning is afgewerkt met porseleinen vloeren, elektrische rolluiken en moderne technieken zoals domotica en pré-installatie voor airconditioning, wat het wooncomfort naar een hoger niveau tilt.

Buiten geniet je van een private tuin vanaf 70m², perfect om te ontspannen onder de Spaanse zon. Daarnaast beschikt de residentie over een gemeenschappelijk zwembad, aangelegde tuinen en een kinderspeeltuin, wat zorgt voor een aangename en verzorgde leefomgeving. Dankzij de ligging in Finestrat, op slechts 2,5 km van zee en vlak bij Benidorm, combineer je hier rust, natuur en bereikbaarheid in één woning.

U bent nog niet aangemeld!

Na invullen van onderstaande gegevens wordt u aangemeld, indien er nog geen account bestaat kan deze aangemaakt worden!



 Geef ons uw mening...

 Momenteel nog geen reviews voor dit pand.

Uitgebreide beschrijving:

Deze geschakelde woning heeft 3 slaapkamers met elk een aansluitende badkamer. De woning heeft heel wat buitenruimte, afhankelijk van exact welk perceel, verschillende oppervlaktes. Met een minimale buitenruimte van 70m² kan je optimaal genieten van de Spaanse zon! 

De woning is verdeeld in 2 verdiepingen. Op de gelijkvloerse verdieping is de leefruimte met open keuken gelegen. De keuken heeft een kookeiland en is uitgerust met volgende apparaten: Silestone werkblad, dampkap en inductiekookplaat. Vanuit de woonkamer kijk je uit op jouw eigen tuin. De tuin loopt zijlings uit over de woning, waardoor je rondom de villa kan doorlopen en genieten van elk stukje tuin. 

De eerste slaapkamer is gelegen op de begane vloer, deze is voorzien van inbouwkasten met schuifdeuren. Zo zorgen we ervoor dat er geen enkele ruimte verloren gaat. Dankzij de grote schuiframen komt er voldoende natuurlijk licht binnen in de slaapkamer. De badkamer is uitgerust met toilet, wastafel met bijpassend meubel en douche met doucheschermen. 

Op de eerste verdieping zijn de overige 2 slaapkamers gelegen. Deze 2 slaapkamers hebben elk een aansluitende badkamer. Via grote schuiframen heeft elke slaapkamer op de eerste verdieping een privébalkon. Er is een balkon met oppervlakte van 12m², en een balkon met oppervlakte van 5m². Alle slaapkamers zijn voorzien van elektrische rolluiken die op afstand te bedienen zijn via een afstandsbediening. 

De 2 verdiepingen zijn met elkaar verbonden via een ruime trappenhal. De gehele woning is afgewerkt in porseleinen tegels. Bij de terrassen is er een anti-slip tegel voorzien. 

DUS CONCREET: 

  • 3 slaapkamers
  • 3 badkamers
  • Badkamer-ensuites
  • Gemeenschappelijk zwembad
  • Keukentoestellen inbegrepen 
  • Afgewerkte badkamers
  • Terras
  • Ruime tuin 
  • Parkeerplaats op het perceel 

Naast deze perfect uitgeruste woning, zijn er ook gemeenschappelijke voorzieningen. Er is een ruim zwembad voorzien, afgewerkt in glazen mozaïek. Rondom het zwembad is er een aangelegde tuin, bomen en een automatische sproeier. Alle gemeenschappelijke delen zijn voorzien van hoogwaardige buitenverlichting. Er is ook een kinderspeeltuin voorzien, voor de allerkleinsten. 

Extra troeven aan deze woning: 

  • Elektrische rolluiken
  • Beveiligde voordeur
  • Pré-installatie airconditioning
  • Sanitair warm water via zonnepanelen, back-up is een elektrische boiler 
  • Gebruik van hernieuwbare bronnen zoals wind, zon, ... 
  • Bedieningspaneel met bediening van airconditioning, binnenverlichting, besturing van de rolluiken, video-intercom, ... alle domotica is binnen handbereik
  • Prive-parkeerplaats

Deze woning is gelegen in Finestrat, op 2.5km van de zee en slechts 5 minuten rijden van Benidorm! Finestrat, gelegen in de provincie Alicante aan de Costa Blanca, is een stad die een unieke mix biedt van traditionele charme en moderne voorzieningen. Met zijn ligging op slechts 2.500 meter van de zee en in de nabijheid van de levendige stad Benidorm, is Finestrat een ideale plek voor degenen die zowel rust als opwinding zoeken.

De stad zelf heeft een pittoreske oude kern, waar smalle straatjes, kleurrijke huizen en historische gebouwen de sfeer bepalen. Het historische centrum, genesteld tegen de heuvels van de Puig Campana, biedt een prachtig uitzicht op de omgeving en de Middellandse Zee. Hier kunnen bezoekers genieten van lokale markten, gezellige cafés en restaurants die heerlijke Spaanse gerechten serveren. De kerk van Sant Bertomeu, een kenmerkend gebouw in het centrum, is een bezoek waard vanwege zijn architecturale schoonheid en historische betekenis. De nabijheid van de stranden is een van de grootste voordelen van Finestrat.

Cala de Finestrat, een kleine maar prachtige baai, ligt op slechts een korte rit en biedt een ontspannen sfeer met fijn zand en helder water. Dit strand is perfect voor gezinnen en mensen die op zoek zijn naar een rustige plek om te zonnebaden en te zwemmen. Finestrat grenst ook aan de bruisende stad Benidorm, die op slechts enkele minuten rijden ligt. Benidorm staat bekend om zijn uitgestrekte stranden zoals Playa de Levante en Playa de Poniente, waar bezoekers kunnen genieten van zon, zee en een breed scala aan watersporten. De stad biedt een levendig nachtleven met talloze bars, nachtclubs en restaurants die voor elk wat wils bieden.

Daarnaast zijn er in Benidorm diverse themaparken zoals Terra Mítica, een pretpark geïnspireerd op oude beschavingen, en Aqualandia, een van de grootste waterparken van Europa. Deze parken zorgen voor eindeloos plezier voor gezinnen en avonturiers. Voor natuurliefhebbers biedt Finestrat gemakkelijke toegang tot het indrukwekkende berglandschap van de Puig Campana. Deze berg, een van de hoogste in de regio, biedt uitdagende wandel- en fietsroutes met adembenemende uitzichten. De natuur in en rondom Finestrat is ideaal voor outdoor-activiteiten zoals wandelen, klimmen en mountainbiken.

Finestrat biedt ook moderne voorzieningen die het dagelijks leven aangenaam maken. Er zijn diverse winkelcentra, supermarkten, scholen en medische centra beschikbaar. Daarnaast zijn er uitstekende sportfaciliteiten, waaronder golfbanen, tennisbanen en fitnesscentra, die bijdragen aan een actieve en gezonde levensstijl. De stad heeft een rijk cultureel leven met tal van evenementen en festivals die het hele jaar door plaatsvinden. Deze evenementen bieden een kijkje in de lokale tradities en brengen de gemeenschap samen in een levendige en feestelijke sfeer.

De uitstekende vervoersverbindingen maken Finestrat goed bereikbaar. De nabijgelegen snelwegen en het openbaar vervoer zorgen voor eenvoudige toegang tot Alicante, de luchthaven en andere steden langs de Costa Blanca. Hierdoor is reizen van en naar Finestrat moeiteloos en comfortabel. Finestrat biedt een unieke combinatie van rustige landelijke charme en de nabijheid van de opwinding en voorzieningen van Benidorm. Het is een plek waar men kan genieten van de natuurlijke schoonheid van de bergen en de kust, terwijl men toegang heeft tot een breed scala aan activiteiten en moderne voorzieningen.

AFSTANDEN: 

  • Strand (Benidorm Poniente): ±2,5 km
  • Supermarkt: ±500 m
  • Restaurants & bars: ±400 m
  • Winkelcentrum La Marina: ±1 km
  • Benidorm centrum: ±5 km
  • Golfbanen: ±3–5 km
  • Ziekenhuis Benidorm: ±4 km
  • Alicante stad: ±40 km
  • Luchthaven Alicante: ±50 km

Onze visie binnen Casas Kimpencio;

  • Bij Casas Kimpencio ben je niet zomaar iemand, wij willen een persoonlijke relatie aangaan.
  • We behandelen jullie zoals we zelf behandeld willen worden, met de nodige betrokkenheid, precisie en details.
  • Geen enkele vraag is ons te veel, we staan elke dag telefonisch voor jou klaar.
  • Wij hebben de gedachte dat een huis kopen niet zomaar een huis kopen is, maar een nieuwe thuis kopen.
  • Iedereen dient een eigen verhaal te krijgen, met verschillende hoofdstukken. 
  • Wij willen helpen aan het Spaanse hoofdstuk, een hoofdstuk van een nieuwe thuis, vakantiewoning of een investering.
  • En dit doen we met open, duidelijke communicatie  en daarmee geraken we er altijd, zo vinden we jouw ideale woning gebaseerd op meerdere gesprekken.
  • We helpen vanaf het begin tot aan de sleuteloverdracht, en ver daarbuiten. 

Wij vinden deze woning bijzonder omdat

  • Geschakelde woning met 3 slaapkamers en telkens een en-suite badkamer, ideaal voor privacy en comfort
  • Open leefruimte met moderne keuken en kookeiland, afgewerkt met Silestone werkblad en kwalitatieve toestellen
  • Twee terrassen op het gelijkvloers, waardoor je op elk moment van de dag kan genieten van zon of schaduw
  • Private buitenruimte vanaf 70 m², perfect om het mediterrane buitenleven ten volle te beleven
  • Twee slaapkamers op de verdieping met eigen balkon, extra buitenruimte en natuurlijke lichtinval
  • Elektrische rolluiken en domotica-bediening, voor optimaal gebruiksgemak en comfort
  • Gemeenschappelijk zwembad met aangelegde tuin en verlichting, een verzorgde en ontspannen leefomgeving
  • Kinderspeeltuin en groene zones, ideaal voor gezinnen en sociaal contact
  • Privé parkeerplaats op het perceel, praktisch en veilig parkeren aan de woning
  • Duurzame technieken zoals zonnepanelen en aerothermie, energiezuinig en toekomstgericht wonen
  • Topligging in Finestrat op slechts 2,5 km van zee en nabij Benidorm, combinatie van rust en levendigheid

WONINGEN IN RESIDENTIE SEA VIEWS 6: 

Type woning  Aantal slaapkamers / badkamers Bebouwde oppervlakte Plot in m² Prijs 
Geschakelde woning  3/3 149m² 116m² €535.000
Geschakelde woning  3/3  150m² 103m² €545.000
Villa  3/3  183m² 551m² €995.000
Villa 3/3  183m² 491m² €915.000

GROEI EN TRENDS IN FINESTRAT: 

Jaar  Prijs per m² Jaarlijkse stijging 
2023 €2.875 -
2024 €3.246 +12.9%
2025 €3.689 +13.6%


Kenmerken:

Aantal slaapkamers 3
Aantal badkamers 3
Privaat zwembad Ja
Oppervlakte perceel rond het huis 179 m²
Bebouwde oppervlakte 143 m²
Bewoonbare oppervlakte 109 m²
Afstand naar het strand 2.5 km
Gedeeld zwembad Ja
Private Tuin Ja
Poort Ja
Nabij Scholen Ja
Nabij kinder speeltuin Ja
Nabij Commercieel centrum Ja
Terras Ja
Fietsafstand van het strand Ja
Douche schermen Ja
Jaccuzi Ja
Nabij bushalte Ja
Pré installatie airco Ja
Elektrische rolluiken Ja
Led verlichting buiten Ja
Led verlichting binnen Ja
privé parkeerplaats Ja
Telefoon Data aansluiting Ja
Videofonie Ja
Inbouwkasten Ja
Aero thermische warmtepomp Ja
Badkamer spiegels Ja
Volledig bemeubeld Nee
Alle keuken apparatuur volledig inbegrepen Ja
Berging Ja
Gedeelde tuin Ja
Alarmsysteem Ja
Domotica Ja
Golfresort afstand in km 2-5 km
Ziekenhuis afstand in km 0-5 km
Luchthaven Alicante afstand 50+ km
Luchthaven Murcia afstand 50+ km
Uitzicht tuin Ja
Uitzicht bergen Ja
Ontspanning ruimte buiten Ja
Hangend toilet Ja
Hangend badkamer meubel Ja
Uitzicht op het zwembad Ja
Security glas met uv filter Ja
Security 24/24 Ja
Volledig ingerichte keuken Ja
Dampkap Ja
Gepantserde toegangsdeur met veiligheidsslot Ja
Kunstgras Ja
Kranen met waterbesparing Ja
Grote ramen van vloer tot plafond Ja
Hoogwaardige afwerking Ja
Goede prijs-kwaliteit verhouding Ja
Aerothermische boiler Ja
Hoge plafonds Ja
Gelijkvloers Ja
Gelijkvloers met tuin Ja
Luxe nieuwbouw Ja
Aangelegde tuin met grind, gras en planten. Ja
Kijkwoning Ja
Bouwtermijn na contract 18 maand Ja
Goed gebied voor rentabiliteit van huur Ja
Deuren met magnetische sluiting Ja
Wandelafstand van het strand Ja
Dubbele garage Ja
Fietsberging Ja
Energielabel B
Afgewerkte badkamer Ja

Meer info?


Beschikbare documenten

halfvrijstaande woning.jpeg

document-halfvrijstaande woning.jpeg

download

Ontdek wat we nog meer voor jou in petto hebben!

Exclusieve resortvilla aan Costa Cálida
Exclusieve resortvilla aan Costa Cálida

Project: LAKE VIEW VILLAS Santa Rosalía villa kopen

Stad: Santa Rosalia

3   4     217 m²   77 m²  

Luxe villa Residencial Lidia Mar Campana Garden
Luxe villa Residencial Lidia Mar Campana Garden

Project: Villa's Residencial Lidia Mar-Campana Garden

Stad: Finestrat-Benidorm

4   3     242 m²   78 m²  

Boutiqueproject met slechts 6 luxe villa’s
Boutiqueproject met slechts 6 luxe villa’s

Project: Villa SERENA SUN GOLF Los Alcázares

Stad: Los Alcazares - Murcia - Mar Menor

3   2     112 m²   102 m²  

TERRA OLIVA villa Sucina kopen Costa Cálida
TERRA OLIVA villa Sucina kopen Costa Cálida

Project: TERRA OLIVA villa kopen in Sucina met zwembad

Stad: Sucina

3   2     145 m²   65 m²  

AURA II nieuwbouwvilla 4slpk Benijófar kopen
AURA II nieuwbouwvilla 4slpk Benijófar kopen

Project: Villa in Benijofar– Auro II met kelderoptie

Stad: Rojales- Alicante

4   3     218 m²   18 m²  

AURA I villa kopen in Benijófar met 4 slaapkamers
AURA I villa kopen in Benijófar met 4 slaapkamers

Project: Auro I villa Benijófar kopen Costa Blanca

Stad: Benijófar-Alicante

4   3     220 m²    

Instapklare villa Spanje met zwembad koop
Instapklare villa Spanje met zwembad koop

Project: Wonen in Vistabella Plaza Golf- Luxe & natuur

Stad: Orihuela-Alicante

2   2     73 m²   150 m²  

Villas San Mariano villa kopen Torre Pacheco?
Villas San Mariano villa kopen Torre Pacheco?

Project: Villas San Mariano villa Torre Pacheco kopen?

Stad: Torre-Pacheco - Murcia

3   2     84 m²   149 m²  

Investeren in villa Almoradi 4 slpk met extra’s
Investeren in villa Almoradi 4 slpk met extra’s

Project: Essence II-Las Heredades nabij Rojales-Alicante

Stad: Las Heredades

4   3     140 m²    

Villa kopen in Mutxamel Bonalba Green
Villa kopen in Mutxamel Bonalba Green

Project: Bonalba Green in Mutxamel met zeezicht

Stad: Mutxamel- Alicante

4   3     273 m²   56 m²  

Investeren in villa Hacienda del Alamo golf resort
Investeren in villa Hacienda del Alamo golf resort

Project: Vrijstaande villas in Hacienda del Álamo Golf

Stad: Hacienda del Álamo Golf Resort-Roldan

3   2     114 m²    

Hoek villa kopen in SIERRA VERDE Finestrat?
Hoek villa kopen in SIERRA VERDE Finestrat?

Project: Investeren in SIERRA VERDE villa nabij Benidorm

Stad: Finestrat-Benidorm

3   3     143 m²   24 m²  

Ontdek het laatste nieuws!

Diverse woningtypes in Spanje
Diverse woningtypes in Spanje

Dit overzicht biedt een beknopte uitleg van de diverse woningtypes in Spanje. Van appartementen en bungalows tot finca’s, cortijo’s en townhouses. Je ontdekt hun kenmerken, sfeer, mogelijkheden en waar je op moet letten bij aankoop. Een praktische, warme gids die jou helpt om exact te voelen ...

Martine

Jouw droomwoning met Casas Kimpencio
Jouw droomwoning met Casas Kimpencio
Martine

Hoe vastgoed kopen in Spanje met vennootschap?
Hoe vastgoed kopen in Spanje met vennootschap?

Je kan als onderneming vastgoed kopen in Spanje maar er zijn belangrijke stappen en documenten die in orde moeten zijn. Wij leggen helder uit hoe het proces werkt en waar je als vennootschap op moet letten.

...

Juliette

square-box
Tine
Vragen over panden, projecten en onze content
Snel starten:

Hallo, ik ben Tine je kan bij mij terecht met al je vragen over panden, projecten en onze content. Ik antwoord alleen op basis van de beschikbare website-inhoud.