Home Lopende projecten Alle Panden Over ons Ons team Ons kantoor Onze werkwijze Contacteer ons Blog Cookies

Luxe nieuwbouwvilla’s met zwembad en smart home technologie

 Project: Residentie Sea View 6: Luxe woningen nabij de zee

Luxueuze nieuwbouwvilla's in Sierra Cortina, Finestrat

Korte beschrijving:

SEA VIEW 6 – Luxe villa’s in Sierra Cortina, Finestrat

Welkom bij SEA VIEW 6, een exclusief project van moderne nieuwbouwvilla’s in de prachtige omgeving van Sierra Cortina, Finestrat.

Deze eersteklas woningen combineren luxe, comfort en technologie in een schilderachtige omgeving vlak bij Benidorm.

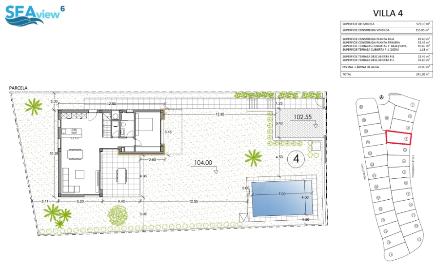
Met een perceeloppervlakte van 530 m², een woonoppervlakte van 155 m² en een ruim terras van 69 m² bieden deze villa’s alle ruimte en voorzieningen die je zoekt.

De villa beschikt over 3 ruime slaapkamers en 3 luxe badkamers. De open woon- en eetruimte is verbonden met een moderne, volledig geïntegreerde keuken, waardoor een ideale plek ontstaat voor familiebijeenkomsten en entertainment in een gezellige, eigentijdse sfeer.

Grote ramen zorgen voor een overvloed aan natuurlijk licht en directe toegang tot het terras en de tuin.

Deze villa is uitgerust met een geavanceerd domoticasysteem waarmee je onder andere de verlichting, jaloezieën en airconditioning eenvoudig kunt bedienen.

Veiligheid staat centraal met overstromings- en branddetectiesystemen, een video-intercom en beveiligingsfuncties op afstand.

Energie-efficiëntie wordt gegarandeerd door optimaal gebruik van natuurlijk licht, ventilatie en waterbesparende technologieën, waardoor deze villa zowel duurzaam als comfortabel zijn.

Geniet van een privétuin met een zwembad en aangelegde groene zones, perfect voor ontspanning en vermaak. De tuin beschikt over natuurlijk gras, bomen en automatische irrigatie, samen met sfeervolle buitenverlichting, wat een uitnodigende ambiance creëert, vooral na zonsondergang.

Uitstekende locatie

SEA VIEW 6 ligt op slechts 4 km van de prachtige stranden van Benidorm en op 50 km van de luchthaven Alicante-Elche.

Voor golfliefhebbers zijn prestigieuze golfbanen, zoals Villaitana Golf, in de buurt.

Het winkelcentrum La Marina ligt op slechts 2 km afstand, met een uitgebreide selectie winkels, restaurants en entertainmentopties.

Mis de kans niet om een villa te bezitten op een van de meest gewilde locaties aan de Costa Blanca.

Neem vandaag nog contact met ons op om een bezichtiging te plannen en ervaar de luxe levensstijl die SEA VIEW 6 te bieden heeft.  



Luxueuze nieuwbouwvilla's in Sierra Cortina, Finestrat Ontdek de elegante nieuwe ontwikkeling van vrijstaande villa's in de exclusieve wijk Sierra Cortina, Finestrat. Deze eersteklas woningen liggen in een schilderachtige omgeving dicht bij Benidorm en bieden moderne woonruimtes en eersteklas voorzieningen. Met gemakkelijke toegang tot de Middellandse Zeekust zijn deze villa's ideaal voor iedereen die op zoek is naar een mix van luxe, comfort en gemak. Op slechts 5 km van het bruisende stadscentrum van Benidorm ligt dit project ook op korte afstand van de belangrijkste bezienswaardigheden. Ruime en moderne villa's met 3 of 4 slaapkamers Elke villa in dit nieuwe project heeft 3 of 4 slaapkamers en 3 luxe badkamers, waardoor er voldoende ruimte is voor zowel familie als gasten. Het hart van deze huizen is de open woon- en eetruimte, verbonden met een strakke, geïntegreerde keuken. Deze veelzijdige ruimte is perfect voor familiebijeenkomsten en entertainment en biedt een gezellige maar eigentijdse sfeer. Sommige wooneenheden hebben ook een kelderverdieping die kan worden aangepast tot een fitnessruimte, thuisbioscoop of recreatieruimte. Geavanceerde domotica en energiezuinig ontwerp Deze villa's zijn ontworpen met de nieuwste smart home technologie. Volledig geautomatiseerd met een state-of-the-art domoticasysteem, kunnen bewoners verlichting, jaloezieën en airconditioning met gemak bedienen. Veiligheid is ook een prioriteit, met geïntegreerde overstromings- en branddetectiesystemen, een video-intercom en beveiligingsfuncties op afstand. Om energie-efficiëntie te garanderen, maken de villa's gebruik van natuurlijk licht, dwarsventilatie, windbescherming en waterbesparende functies, waardoor de energiekosten worden verlaagd terwijl een comfortabele leefomgeving wordt behouden. Privé buitenruimtes met zwembad en aangelegde tuinen Geniet van het mediterrane klimaat met een privétuin die dient als een persoonlijke oase. Elke villa heeft een privézwembad, ideaal om af te koelen op warme dagen of om zomerse bijeenkomsten te organiseren. De aangelegde tuin is versierd met natuurlijk gras en bomen, ondersteund door een automatisch irrigatiesysteem, en heeft smaakvolle buitenverlichting om een ontspannen sfeer te creëren na zonsondergang. Toplocatie vlakbij Benidorm en de belangrijkste attracties Deze villa's in Sierra Cortina liggen vlakbij belangrijke bestemmingen. De levendige stranden van Benidorm liggen op slechts 4 km afstand en de luchthaven Alicante-Elche kan worden bereikt in ongeveer 50 km. Golfliefhebbers vinden verschillende prestigieuze banen in de buurt, zoals Villaitana Golf, op slechts 3 km afstand. Om te winkelen en te dineren ligt het winkelcentrum La Marina op 2 km afstand, met toegang tot een verscheidenheid aan winkels, restaurants en amusementsmogelijkheden. Luxe wonen in Sierra Cortina - Reserveer vandaag nog uw droomhuis Ontdek een mix van elegantie, comfort en geavanceerde technologie in deze nieuwbouwvilla's in Sierra Cortina. Mis de kans niet om een huis te bezitten op een van de meest gewilde locaties aan de Costa Blanca. Neem vandaag nog contact met ons op voor een bezichtiging en ervaar de levensstijl die op je wacht.

U bent nog niet aangemeld!

Na invullen van onderstaande gegevens wordt u aangemeld, indien er nog geen account bestaat kan deze aangemaakt worden!



 Geef ons uw mening...


Bernard 24/06/2025
In één woord: fantastisch. Wij zijn zeer blij!
Totaalscore
Gemiddelde van 1 review

5 / 5


Uitgebreide beschrijving:

Deze woning heeft 3 slaapkamers met elk een aansluitende badkamer. De woning heeft heel wat buitenruimte, afhankelijk van exact welk perceel, verschillende oppervlaktes. Met een minimale buitenruimte van 70m² kan je optimaal genieten van de Spaanse zon! 

De woning is verdeeld in 2 verdiepingen. Op de gelijkvloerse verdieping is de leefruimte met open keuken gelegen. De keuken heeft een kookeiland en is uitgerust met volgende apparaten: Silestone werkblad, dampkap en inductiekookplaat. Vanuit de woonkamer kijk je uit op jouw eigen tuin. Aan weerszijden van de woning zijn terrassen voorzien, aan de ene kant een terras van 4m² en aan de andere kant een terras van 14m².??

De eerste slaapkamer is gelegen op de begane vloer, deze is voorzien van inbouwkasten met schuifdeuren. Zo zorgen we ervoor dat er geen enkele ruimte verloren gaat. Dankzij de grote schuiframen komt er voldoende natuurlijk licht binnen in de slaapkamer. De badkamer is uitgerust met toilet, wastafel met bijpassend meubel en douche met doucheschermen. 

Op de eerste verdieping zijn de overige 2 slaapkamers gelegen. Deze 2 slaapkamers hebben elk een aansluitende badkamer. Via grote schuiframen heeft elke slaapkamer op de eerste verdieping een privébalkon. Er is een balkon met oppervlakte van 12m², en een balkon met oppervlakte van 5m². Alle slaapkamers zijn voorzien van elektrische rolluiken die op afstand te bedienen zijn via een afstandsbediening. 

De 2 verdiepingen zijn met elkaar verbonden via een ruime trappenhal. De gehele woning is afgewerkt in porseleinen tegels. Bij de terrassen is er een anti-slip tegel voorzien. 

Naast deze perfect uitgeruste woning, zijn er ook gemeenschappelijke voorzieningen. Er is een ruim zwembad voorzien, afgewerkt in glazen mozaïek. Rondom het zwembad is er een aangelegde tuin, bomen en een automatische sproeier. Alle gemeenschappelijke delen zijn voorzien van hoogwaardige buitenverlichting. Er is ook een kinderspeeltuin voorzien, voor de allerkleinsten. 

Extra troeven aan deze woning: 

  • Elektrische rolluiken
  • Beveiligde voordeur
  • Pré-installatie airconditioning
  • Sanitair warm water via zonnepanelen, back-up is een elektrische boiler 
  • Gebruik van hernieuwbare bronnen zoals wind, zon, ... 
  • Bedieningspaneel met bediening van airconditioning, binnenverlichting, besturing van de rolluiken, video-intercom, ... alle domotica is binnen handbereik
  • Prive-parkeerplaats

Deze woning is gelegen in Finestrat, op 2.5km van de zee en slechts 5 minuten rijden van Benidorm! Finestrat, gelegen in de provincie Alicante aan de Costa Blanca, is een stad die een unieke mix biedt van traditionele charme en moderne voorzieningen. Met zijn ligging op slechts 2.500 meter van de zee en in de nabijheid van de levendige stad Benidorm, is Finestrat een ideale plek voor degenen die zowel rust als opwinding zoeken.

De stad zelf heeft een pittoreske oude kern, waar smalle straatjes, kleurrijke huizen en historische gebouwen de sfeer bepalen. Het historische centrum, genesteld tegen de heuvels van de Puig Campana, biedt een prachtig uitzicht op de omgeving en de Middellandse Zee. Hier kunnen bezoekers genieten van lokale markten, gezellige cafés en restaurants die heerlijke Spaanse gerechten serveren. De kerk van Sant Bertomeu, een kenmerkend gebouw in het centrum, is een bezoek waard vanwege zijn architecturale schoonheid en historische betekenis. De nabijheid van de stranden is een van de grootste voordelen van Finestrat.

Cala de Finestrat, een kleine maar prachtige baai, ligt op slechts een korte rit en biedt een ontspannen sfeer met fijn zand en helder water. Dit strand is perfect voor gezinnen en mensen die op zoek zijn naar een rustige plek om te zonnebaden en te zwemmen. Finestrat grenst ook aan de bruisende stad Benidorm, die op slechts enkele minuten rijden ligt. Benidorm staat bekend om zijn uitgestrekte stranden zoals Playa de Levante en Playa de Poniente, waar bezoekers kunnen genieten van zon, zee en een breed scala aan watersporten. De stad biedt een levendig nachtleven met talloze bars, nachtclubs en restaurants die voor elk wat wils bieden.

Daarnaast zijn er in Benidorm diverse themaparken zoals Terra Mítica, een pretpark geïnspireerd op oude beschavingen, en Aqualandia, een van de grootste waterparken van Europa. Deze parken zorgen voor eindeloos plezier voor gezinnen en avonturiers. Voor natuurliefhebbers biedt Finestrat gemakkelijke toegang tot het indrukwekkende berglandschap van de Puig Campana. Deze berg, een van de hoogste in de regio, biedt uitdagende wandel- en fietsroutes met adembenemende uitzichten. De natuur in en rondom Finestrat is ideaal voor outdoor-activiteiten zoals wandelen, klimmen en mountainbiken.

Finestrat biedt ook moderne voorzieningen die het dagelijks leven aangenaam maken. Er zijn diverse winkelcentra, supermarkten, scholen en medische centra beschikbaar. Daarnaast zijn er uitstekende sportfaciliteiten, waaronder golfbanen, tennisbanen en fitnesscentra, die bijdragen aan een actieve en gezonde levensstijl. De stad heeft een rijk cultureel leven met tal van evenementen en festivals die het hele jaar door plaatsvinden. Deze evenementen bieden een kijkje in de lokale tradities en brengen de gemeenschap samen in een levendige en feestelijke sfeer.

De uitstekende vervoersverbindingen maken Finestrat goed bereikbaar. De nabijgelegen snelwegen en het openbaar vervoer zorgen voor eenvoudige toegang tot Alicante, de luchthaven en andere steden langs de Costa Blanca. Hierdoor is reizen van en naar Finestrat moeiteloos en comfortabel. Finestrat biedt een unieke combinatie van rustige landelijke charme en de nabijheid van de opwinding en voorzieningen van Benidorm. Het is een plek waar men kan genieten van de natuurlijke schoonheid van de bergen en de kust, terwijl men toegang heeft tot een breed scala aan activiteiten en moderne voorzieningen.


Kenmerken:

Aantal slaapkamers 3
Aantal badkamers 3
Pré installatie airco Ja
Led verlichting buiten Ja
Led verlichting binnen Ja
Zeezicht Ja
privé parkeerplaats Ja
Telefoon Data aansluiting Ja
Videofonie Ja
Inbouwkasten Ja
Aero thermische warmtepomp Ja
Douche schermen Ja
Poort Ja
Elektrische poort Ja
Pre installatie elektrisch laadpunt Ja
Badkamer spiegels Ja
Terras Ja
Privaat zwembad Ja
Jaccuzi Ja
Volledig bemeubeld Nee
Alle keuken apparatuur volledig inbegrepen Ja
Buitenkeuken Ja
Nabij kinder speeltuin Ja
Kookplaat Dampkap Magnetron & Oven Ja
Berging Ja
Private Tuin Ja
Alarmsysteem Ja
Domotica Ja
Golfresort afstand in km 5-10 km
Ziekenhuis afstand in km 5-10 km
Nabij Commercieel centrum Ja
Luchthaven Alicante afstand 50+ km
Uitzicht tuin Ja
Uitzicht bergen Ja
Ontspanning ruimte buiten Ja
Ontspanning ruimte binnen Ja
Oppervlakte perceel rond het huis 530 m²
Bebouwde oppervlakte 155 m²
Bewoonbare oppervlakte 130 m²
Afstand naar het strand 2 km
Terras oppervlakte 69 m²
Nabij Scholen Ja
Nabij bushalte Ja
Hangend toilet Ja
Hangend badkamer meubel Ja
Uitzicht op het zwembad Ja
Security glas met uv filter Ja
Security 24/24 Ja
Volledig ingerichte keuken Ja
Gepantserde toegangsdeur met veiligheidsslot Ja
Kunstgras Ja
Kranen met waterbesparing Ja
Grote ramen van vloer tot plafond Ja
Fietsafstand van het strand Ja
Hoogwaardige afwerking Ja
Goede prijs-kwaliteit verhouding Ja
Aerothermische boiler Ja
Hoge plafonds Ja
Gelijkvloers Ja
Gelijkvloers met tuin Ja
Luxe nieuwbouw Ja
Extra grote ramen uitkijkend op tuin en zwembad Ja
Aangelegde tuin met grind, gras en planten. Ja
Kijkwoning Ja
Goed gebied voor rentabiliteit van huur Ja
Meubelpakket Optioneel
Deuren met magnetische sluiting Ja
Wandelafstand van het strand Ja
Extra verdieping ondergronds (basement) Ja
Fietsberging Ja
Energielabel A
Afgewerkte badkamer Ja
Gesloten urbanisatie Ja

Meer info?


Beschikbare documenten

Schermopname_13-11-2024_42821_www.dropbox.com.jpeg

document-Schermopname_13-11-2024_42821_www.dropbox.com.jpeg

download
Schermopname_13-11-2024_42750_www.dropbox.com.jpeg

document-Schermopname_13-11-2024_42750_www.dropbox.com.jpeg

download
Schermopname_13-11-2024_42230_.jpeg

document-Schermopname_13-11-2024_42230_.jpeg

download

Ontdek wat we nog meer te bieden hebben!

Nieuwbouwappartement in Avileses
Nieuwbouwappartement in Avileses

Project: AVILESES-VIRGEN DEL CARMEN appartementen

Stad: Avileses

1   1     44 m²  

Instapklaar 2-slpk appartement in hartje Avileses
Instapklaar 2-slpk appartement in hartje Avileses

Project: AVILESES-VIRGEN DEL CARMEN appartementen

Stad: Avileses

2   1     52 m²  

Appartement met terras in residentie Larrosa 43
Appartement met terras in residentie Larrosa 43

Project: Residentie Larrosa 43: betaalbaar in San Fulgencio

Stad: San Fulgencio

2   1   70 m²  

Ontdek het laatste nieuws!

Administratief medewerker vastgoed Spanje gezocht
Administratief medewerker vastgoed Spanje gezocht

Droom jij van werken onder de Spaanse zon én deel uitmaken van een ambitieus vastgoedteam aan de Costa Blanca?

Bij Casas Kimpencio zoeken we een administratieve topper die structuur brengt, klanten professioneel opvolgt en mee wil bouwen aan een groeiend succesverhaal.

Jij wordt de...

Martine

Horizon Resort II gelanceerd23/04/2026
Horizon Resort II gelanceerd23/04/2026

Nieuwe fase gelanceerd van Horizon Resort II in San Miguel de Salinas, een modern bungalowproject waar rust, ruimte en buitenleven centraal staan. Kies tussen een woning met tuin of solarium en geniet van een zorgeloze levensstijl dicht bij zee, golf en natuur.

...

Martine

Koningsdag Spanje: Feest aan de Costa Blanca
Koningsdag Spanje: Feest aan de Costa Blanca

Koningsdag 2026 in Spanje

Waar vieren Belgen en Nederlanders het feest aan de Costa Blanca?

Vier Koningsdag 2026 in Spanje en ontdek waarom zoveel Belgen en Nederlanders kiezen voor de Costa Blanca.

Van grote festivals in steden zoals Valencia en Barcelona tot gezellige lokale...

Martine

square-box
Tine
Vragen over panden, projecten en onze content
Snel starten:

Hallo, ik ben Tine je kan bij mij terecht met al je vragen over panden, projecten en onze content. Ik antwoord alleen op basis van de beschikbare website-inhoud.