Penthouse Pinet Beach II opnieuw vrij – unieke kans
Project: Pinet Beach II Niewe fase uiterst gewild project!
Moderne nieuwbouwwoningen op slechts 800 m van het strand
Korte beschrijving:
BREAKING NIEUWS – Zojuist opnieuw vrijgekomen nieuwe fase woningen in Pinet Beach II!
Dit is een zeldzame kans die maar heel af en toe op de markt verschijnt.
Een uitzonderlijk penthouse met een ongeëvenaarde ligging in La Marina del Pinet, op slechts een korte wandeling van het zandstrand en nu opnieuw beschikbaar voor €290.000.
Penthouse Pinet Beach II
- 78 m² wooncomfort + 92 m² privéterras
- Dit prachtige penthouse biedt:
- 2 slaapkamers
- 2 stijlvolle badkamers
- 78 m² moderne binnenruimte
- Een gigantisch dakterras van 92 m² dé plek om te loungen, te dineren, te zonnebaden of te genieten van het panoramisch uitzicht
Oplevering: 01-06-2027
Dit penthouse blinkt uit door zijn perfecte oriëntatie, royale buitenruimte en exclusieve positie binnen het complex.
Dit zijn precies de woningen die binnen een paar dagen verdwijnen zodra ze gereserveerd zijn.
Waarom dit zo speciaal is??
Penthouse-units op deze locatie komen bijna nooit terug vrij. Ze bieden:
Unieke privacy
Een indrukwekkend uitzicht
Enorme verhuurwaarde
De hoogste waardestijging binnen het project Pinet Beach II
Het is bovendien een van de meest geliefde projecten bij Belgische en Nederlandse kopers dankzij:
- De loopafstand naar het strand van El Pinet
- De rustige, natuurlijke omgeving met duinen, pijnbomen en de Salinas van Santa Pola
- Moderne afwerking, hoogwaardige bouwkwaliteit en een betrouwbare ontwikkelaar
- Gemeenschappelijke zones zoals een groot zwembad, speelpleinen en verzorgde tuinen
- Ondergrondse parking & berging inbegrepen
Casas Kimpencio brengt dit meteen naar jou!!!
Omdat we weten dat dit soort penthouses razendsnel verkocht raken, brengen we dit nieuws als eerste naar onze klanten. Ben jij op zoek naar een droomplek aan zee of een solide investering? Dan is dit zo'n kans die je niet wil missen.
Stuur ons meteen een bericht, dan bezorgen we je direct:
- Plannen
- Prijzen
- Indelingsopties
- Foto’s & renders
- En regelen we een online of fysieke bezichtiging.
Dit penthouse zal niet lang beschikbaar blijven. Casas Kimpencio staat klaar om je persoonlijk te begeleiden.
U bent nog niet aangemeld!
 Geef ons uw mening...
Vanaf: €290.000
Ref: KIMP-PROP-4526
Uitgebreide beschrijving:
Pinet Beach II – Waar mediterrane rust, modern comfort en kwaliteit samenkomen
La Marina – El Pinet (Elche, Alicante) Voor wie droomt van zee, natuur en een zorgeloze woonervaring
Bij Casas Kimpencio zijn we bijzonder trots om opnieuw samen te werken met een van de meest betrouwbare en gerenommeerde bouwgroepen aan de Costa Blanca.
Deze ontwikkelaar bouwt al meer dan 30 jaar hoogwaardige woningen verspreid over drie generaties en staat bekend om hun vertrouwen, transparantie, innovatie en absolute toewijding aan residentieel toerisme. Duizenden opgeleverde woningen bewijzen het: hun projecten zijn duurzaam, kwalitatief en ontworpen met respect voor de bewoners én de omgeving.
En precies daarom geloven wij zo sterk in Pinet Beach II.
Ervaar de Middellandse Zee op 800 meter van je deur
Pinet Beach II is een exclusief residentieel complex van 63 moderne appartementen met 2 slaapkamers en 2 badkamers, verdeeld over twee elegante gebouwen.
Een plek waar comfort, privacy en mediterrane elegantie perfect samenkomen.
Elke woning biedt: volledig ingerichte keuken + apparatuur binnen- en buitenverlichting voorbereiding voor airconditioning via luchtkanalen elektrische rolluiken aluminium ramen met Climalit-beglazing aerothermisch systeem (energiezuinig) beveiligde voordeur solarium (bij penthouses) lift in het gebouw ondergrondse parkeerplaats + eigen berging video-intercom
Alle appartementen zijn volledig afgewerkt en gemeubileerd, waardoor je meteen kunt intrekken of startklaar bent voor vakantieverhuur.
Leven in het licht voor elke levensstijl een perfecte woning
Dit project biedt verschillende typologieën zodat elke koper exact vindt wat hij zoekt:
Begane grond – met privétuin Perfect voor gezinnen, huisdieren of wie houdt van groen.
Middenverdiepingen – met ruime terrassen Heerlijk om te dineren, ontspannen of vanuit de schaduw het mediterrane leven te beleven.
Penthouses – met privéterras + solarium Voor wie droomt van totale privacy, zon en een schitterend vergezicht.
Alle woningen zijn ontworpen met moderne lijnen, functionele indelingen en abundant natuurlijk licht precies wat de mediterrane woonstijl zo geliefd maakt.
Prachtige gemeenschappelijke voorzieningen
Het complex is ontworpen om rust en ontspanning te combineren met gebruiksgemak:
- Groot gemeenschappelijk zwembad
- Kinderspeelzone
- Aangelegde mediterrane tuinen
- Veilige ondergrondse parkeergarage
- Rustige woonwijk, zonder massatoerisme
Dit is de perfecte omgeving om het hele jaar door te wonen of zorgeloos te verhuren.
De omgeving: natuur, zee en volledig comfort El Pinet is een van de meest geliefde kustzones tussen La Marina en Elche.
Hier woon je in een unieke setting, omringd door: beschermde duinen dennenbossen de iconische Salinas de Santa Pola pure mediterrane natuur En tegelijk heb je alle voorzieningen binnen handbereik: winkels, supermarkten, restaurants, bars en openbaar vervoer.
Strategische ligging
- El Pinet Strand: 800 m
- La Marina centrum: 1,5 km
- Elche: 17 km
- Alicante luchthaven: 22 km
- Golfbanen La Marquesa & El Plantío: 15–20 km
- Alicante stad & haven: 30 km
Een unieke combinatie van rust, natuur, bereikbaarheid en comfort.
Waarom Casas Kimpencio dit project écht aanbeveelt
Omdat Pinet Beach II alles heeft wat onze klanten zoeken:
- Kwaliteitsbouw van een bewezen en betrouwbare ontwikkelaar
- Modern, volledig afgewerkt en gemeubileerd
- Uitstekende locatie vlak bij zee en natuur
- Sterke verhuurmogelijkheden
- Hoge vraag van Belgische en Nederlandse kopers
- Toekomstbestendig dankzij aerothermie, isolatie en efficiënt ontwerp
- Een zorgeloze investering zonder verrassingen
Wij kennen deze bouwgroep persoonlijk en we werken al jaren met hen samen omdat ze doen wat ze beloven.
Wat ze bouwen, bouwen ze alsof het voor henzelf is. En dat voel je.
Klaar voor jouw leven aan zee?
Of je nu op zoek bent naar: een tweede verblijf een investering met verhuurpotentieel een toekomstige woonst een plek om te genieten van rust, natuur en zon Pinet Beach II is een kans die je niet mag missen.
Neem vandaag nog contact op met Casas Kimpencio Wij begeleiden je warm, persoonlijk en professioneel van eerste info tot sleutel in de hand.
Waarom Pinet Beach II een unieke kans is?
- Loopafstand van het strand en natuurgebied met beschermde duinen en Salinas de Santa Pola
- Hoog investeringspotentieel en verhuurwaarde
- Betrouwbare ontwikkelaar met kwaliteitsafwerking
- Perfect voor zowel permanente bewoning als vakantiewoningen
- Toplocatie die zeer gewild is bij Belgische en Nederlandse kopers
- Moderne 2- en 3-slaapkamerappartementen op wandelafstand van het prachtige strand van La Marina – El Pinet
Een zeldzame kans in een bijna uitverkocht project!!!
Als je houdt van brede zandstranden, duinen en een pure mediterrane omgeving, dan zal dit nieuwbouwproject in La Marina – El Pinet je meteen aanspreken.
Slechts op enkele minuten wandelen van een van de mooiste stranden van de Costa Blanca, combineert dit project moderne architectuur, kwaliteitsafwerking en een unieke ligging die je zelden nog vindt. Deze elegante appartementen worden gebouwd volgens de nieuwste kwaliteits- en ontwerpeisen en zijn beschikbaar in modellen met 2 of 3 slaapkamers.
Elke woning beschikt over: airconditioning (pre-installatie) een privéparkeerplaats moderne keuken functionele indeling veel natuurlijk licht
De bouw is af en de oplevering is instapklaar waardoor dit een perfecte kans is voor wie op korte termijn wil intrekken of meteen wil starten met verhuur.
Compact, modern en schaars – slechts 40 units
Projecten op wandelafstand van ruime zandstranden worden steeds schaarser aan de Costa Blanca. Dit maakt van El Pinet een absolute toplocatie voor zowel eigen gebruik als investering. Wie de beste ligging en het mooiste appartement wil kiezen, wacht best niet te lang.Pinet Beach II
Modern wonen op 800 meter van het strand van El Pinet
Een stijlvolle en serene thuisbasis tussen zee, natuur en mediterrane charme Pinet Beach II is een modern residentieel complex in La Marina – El Pinet (Alicante), op slechts 800 meter van het fijne zandstrand Playa del Pinet. Het is geen strandproject op zichzelf, maar een zorgvuldig ontworpen woonomgeving die alles biedt voor wie houdt van kwaliteit, comfort, natuur en de kustlevensstijl.
Over de woningen – Modern, licht en volledig afgewerkt
Pinet Beach II bestaat uit verschillende woningtypes, perfect afgestemd op verschillende levensstijlen:
- Woningtypes 2 slaapkamers & 2 badkamers
- Ruime open woonruimte met veel lichtinval
- Privéterras bij alle woningen
- Begane grond: grote privétuin
- Penthouses: eigen dakterras/solarium met panoramisch uitzicht
Elke woning is ontworpen met een functionele indeling, moderne lijnen en een warme mediterrane sfeer. Extra’s (inbegrepen!)
- Volledig uitgerust en gemeubileerd
- Complete keuken met toestellen
- Ondergrondse parkeerplaats
- Privéberging
- Pre-installatie airconditioning
- Ingebouwde kasten
- Binnen- en buitenverlichting
Je hoeft alleen je koffers mee te brengen: alles is klaar voor gebruik.
Voorzieningen – Ontspannen zoals het hoort aan de Costa Blanca
Het complex beschikt over prachtige gemeenschappelijke zones die het leven hier nog aangenamer maken:
- Groot gemeenschappelijk zwembad
- Kinderspeelplaats
- Aangelegde mediterrane tuinen
- Privéparking in ondergrondse garage
- Op wandelafstand van zee, natuur en voorzieningen
- Het is een heerlijke plek voor gezinnen, koppels, overwinteraars en investeerders die comfort, rust en gemak zoeken.
De omgeving
- Unieke combinatie van strand, natuur en Spaanse charme
- Playa de El Pinet (op 800 m) Dit strand is geliefd bij zowel locals als buitenlandse bewoners dankzij:
- Brede, schone zandstranden
- Rustige, natuurlijke omgeving
- Zachte zeebries door de dennenbossen
- Ongerepte natuur zonder massatoerisme
- Er zijn in de zomer enkele strandbars zoals Rock on the Beach, en meerdere restaurants op wandelafstand.
Activiteiten rondom het strand
- Wandelen langs de beschermde duinen
- Fietsen langs zoutmeren en natuurpaden
- Kajakken, windsurfen, paddle boarding
- Boottochten vanuit Santa Pola
- Vogelspotten in de Salinas de Santa Pola (met o.a. flamingo’s!)
- Een bijzonder weetje dat bijna niemand kent: In de Salinas broeden elk jaar duizenden roze flamingo’s, en tijdens zonsopgang kleurt de zoutlagune subtiel roze. Een magisch natuurfenomeen dat je op 10 minuten van je woning kunt bewonderen.
La Marina
Alles wat je dagelijks nodig hebt, in het nabijgelegen dorp La Marina vind je:
- Supermarkten
- Restaurants & tapasbars
- Koffiehuizen
- Apotheken
- Dokters & tandartsen
- Markt
- Openbaar vervoer
Het is een gezellige Spaanse kustgemeenschap met een mix van lokale families, overwinteraars en vaste buitenlandse bewoners.
Waarom Belgen en Nederlanders hier massaal investeren
Deze regio is de voorbije jaren uitgegroeid tot een hotspot voor Europese kopers, om verschillende redenen:
- Rustig, veilig en authentiek Spaans
- Wandelafstand tot het strand (zeldzaam!)
- Hoge waardestijging en sterke verhuurvraag
- Perfect voor overwinteren
- Slechts 22 km van de luchthaven Alicante
- Natuur én voorzieningen binnen handbereik
- Moderne, volledig afgewerkte nieuwbouw
Veel kopers vertellen ons dat deze regio echt voelt als thuiskomen precies omdat het minder commercieel is dan veel andere kustplaatsen en toch alle luxe biedt die je wenst.
Het natuurgebied
Een verborgen parel Wat Pinet Beach II écht uniek maakt, is de directe nabijheid van een beschermd natuurgebied met:
- Duinpaden die leiden tot kleine verborgen strandjes
- Dennebomen die zorgen voor schaduw en frisse lucht
- Zoutmeren met een unieke roze kleur
- Wandelroutes die je brengen tot Santa Pola en Guardamar
- Wist je dat er in dit gebied nog oude wachttorens staan die dateren uit de 16e eeuw?
Ze dienden ooit om piraten en smokkelaars te spotten vanuit zee een stukje geschiedenis dat maar weinig bewoners kennen.
Dit is Pinet Beach II – een plek waar natuur, comfort en zee samenkomen
Of je nu zoekt naar een permanente woning, een tweede verblijf, of een topinvestering met verhuurpotentieel, dit project biedt een combinatie die nog maar zelden op de markt komt:
- Moderne nieuwbouw
- 800 m van het strand
- Rust, natuur & ruimte
- Volledig uitgerust
- Perfect bereikbaar
- Uniek verhuurpotentieel
Wil je graag plannen, prijzen of een bezichtiging? Casas Kimpencio begeleidt je persoonlijk van eerste info tot sleuteloverdracht.
Bij Casas Kimpencio weten we uit eigen ervaring waarom La Marina zo bijzonder is.
Zelf wonen wij hier met veel plezier, en iedere dag ontdekken we opnieuw de charme van deze kuststreek: de ongerepte stranden, de geur van de dennenbossen en het zachte Mediterrane klimaat maken elke dag bijzonder. Wat wij als experts dagelijks ervaren, is hoe de perfecte balans tussen rust en gemak hier voelbaar is. Je kunt ’s ochtends genieten van een rustige wandeling langs het strand, ’s middags de lokale markten en gezellige restaurants ontdekken, en ’s avonds ontspannen in je eigen huis of op het terras terwijl de zon ondergaat.
La Marina is bovendien een plek waar leven, investeren en vakantiegevoel samenkomen. Het is een gemeenschap die vriendelijk en gastvrij is, met alles wat je nodig hebt binnen handbereik van supermarkten en scholen tot sport- en recreatiefaciliteiten.
Als makelaars zien we dagelijks hoe mensen hier hun droom van wonen aan de Costa Blanca werkelijkheid maken, en dat maakt ons werk extra bijzonder.
Kortom: La Marina is voor ons niet alleen een werkplek, maar ook een plek waar we graag zelf leven, genieten en ontdekken.
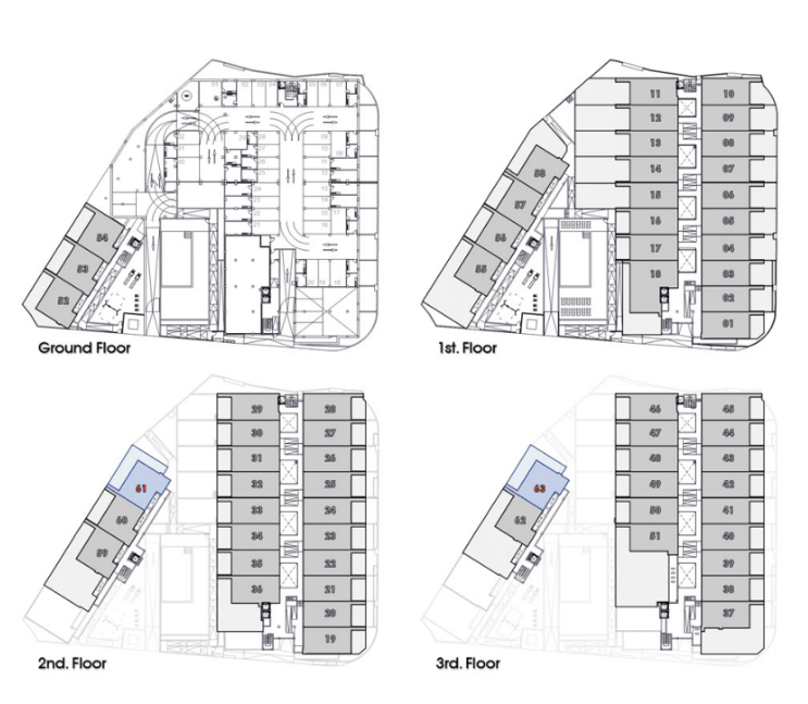
Pinet Beach II – La Marina del Pinet, inclusief verdiepingen, slaapkamers, terrassen, oriëntatie en prijzen.
| Unit | Verdieping | Slaapkamers | Badkamers | Gebouwd (m²) | Terras / Tuin (m²) | Oriëntatie | Prijs (€) | Status |
|---|---|---|---|---|---|---|---|---|
| 1 | Begane grond | 2 | 2 | 78,3 | 16 | Noord-Oost | 267.000 | Beschikbaar |
| 2 | Begane grond | 2 | 2 | 78,3 | 17 / 9,5 | Noord | 265.000 | Beschikbaar |
| 3 | Begane grond | 2 | 2 | 78,3 | 17 / 9,5 | Noord | 265.000 | Beschikbaar |
| 4 | Begane grond | 2 | 2 | 78,3 | 17 / 9,5 | Noord | 267.000 | Beschikbaar |
| 5 | Begane grond | 2 | 2 | 78,3 | 17 / 9,5 | Noord | 265.000 | Beschikbaar |
| 6 | Begane grond | 2 | 2 | 78,3 | 17 / 9,5 | Noord | 268.000 | Beschikbaar |
| 11 | Begane grond | 2 | 2 | 78,8 | 17 / 46 | Zuid | 325.000 | Beschikbaar |
| 12 | Begane grond | 2 | 2 | 78,3 | 17 / 50 | Zuid | 295.000 | Beschikbaar |
| 16 | Begane grond | 2 | 2 | 78,3 | 17 | Zuid | 280.000 | Beschikbaar |
| 18 | Begane grond | 3 | 2 | 120,7 | 59 | Zuid-Oost | 330.000 | Beschikbaar |
| 20 | Eerste verdieping | 2 | 2 | 78,3 | 17 | Noord | 250.000 | Beschikbaar |
| 23 | Eerste verdieping | 2 | 2 | 78,3 | 17 | Noord | 248.000 | Beschikbaar |
| 28 | Eerste verdieping | 2 | 2 | 78,3 | 16 | Noord | 258.000 | Beschikbaar |
| 30 | Eerste verdieping | 2 | 2 | 78,3 | 17 | Zuid | 289.000 | Beschikbaar |
| 37 | Penthouse | 2 | 2 | 78,8 | 92,5 / 86,5 | Noord-Oost | 355.000 | Beschikbaar |
| 38 | Penthouse | 2 | 2 | 78,3 | 17 / 75 | Noord | 290.000 | Beschikbaar |
| 46 | Penthouse | 2 | 2 | 78 | 51 | Zuid | 340.000 | Beschikbaar |
| 49 | Penthouse | 2 | 2 | 78,3 | 49 | Zuid | 335.000 | Beschikbaar |
Extra info:
-
Terras / Tuin: eerste getal = terras, tweede getal = tuin (indien aanwezig)
-
Oriëntatie: geeft maximale zon- en lichtinval aan
-
Status: sommige units zijn al gereserveerd
Kenmerken:
| Aantal slaapkamers | 2 | |
| Aantal badkamers | 2 | |
| Privaat zwembad | Ja | |
| Oppervlakte perceel rond het huis | 0 m² | |
| Bebouwde oppervlakte | 78 m² | |
| Bewoonbare oppervlakte | 71 m² | |
| Afstand naar het strand | 0.800 km | |
| Terras oppervlakte | 92 m² | |
| Gedeeld zwembad | Ja | |
| Poort | Ja | |
| Volledig bemeubeld | Ja | |
| Nabij Scholen | Ja | |
| Nabij bushalte | Ja | |
| Terras | Ja | |
| Fietsafstand van het strand | Ja | |
| Douche schermen | Ja | |
| Jaccuzi | Optioneel | |
| Solarium | Ja | |
| Solarium oppervlakte in m2 | 90-100 m² | |
| Pré installatie airco | Ja | |
| Elektrische rolluiken | Ja | |
| Led verlichting buiten | Ja | |
| Led verlichting binnen | Ja | |
| privé parkeerplaats | Ja | |
| Ondergrondse parking | Ja | |
| Parking in urbanisatie | Ja | |
| Telefoon Data aansluiting | Ja | |
| Videofonie | Ja | |
| Inbouwkasten | Ja | |
| Aero thermische warmtepomp | Ja | |
| Badkamer spiegels | Ja | |
| Alle keuken apparatuur volledig inbegrepen | Ja | |
| Berging | Ja | |
| Uitzicht tuin | Ja | |
| Golfresort afstand in km | 2-5 km | |
| Ziekenhuis afstand in km | 5-10 km | |
| Nabij Commercieel centrum | Ja | |
| Luchthaven Alicante afstand | 30-40 km | |
| Uitzicht bergen | Ja | |
| Ontspanning ruimte buiten | Ja | |
| Hangend toilet | Ja | |
| Hangend badkamer meubel | Ja | |
| Uitzicht op het zwembad | Ja | |
| Security glas met uv filter | Ja | |
| Security 24/24 | Ja | |
| Volledig ingerichte keuken | Ja | |
| Gepantserde toegangsdeur met veiligheidsslot | Ja | |
| Kranen met waterbesparing | Ja | |
| Grote ramen van vloer tot plafond | Ja | |
| Hoogwaardige afwerking | Ja | |
| Goede prijs-kwaliteit verhouding | Ja | |
| Kunstgras | Ja | |
| Aerothermische boiler | Ja | |
| Hoge plafonds | Ja | |
| Meubelpakket | Optioneel | |
| Penthouse | Ja | |
| Luxe nieuwbouw | Ja | |
| Extra grote ramen uitkijkend op tuin en zwembad | Ja | |
| Aangelegde tuin met grind, gras en planten. | Ja | |
| Kijkwoning | Ja | |
| Goed gebied voor rentabiliteit van huur | Ja | |
| Wandelafstand van het strand | Ja | |
| Fietsberging | Ja | |
| Energielabel | A | |
| Afgewerkte badkamer | Ja |
Meer info?
Beschikbare documenten
Ontdek wat we nog meer voor jou in petto hebben!
Penthouse Pinet Beach II: nieuw op de markt
Project: Pinet Beach II Niewe fase uiterst gewild project!
Stad: La Marina- Alicante
2   2     78 m²   92 m²  
Gelijkvloers opbrengstappartement in Oasis Laguna
Project: Res. Oasis Laguna: toeristische appartementen - F4
Stad: Guardamar- Alicante
2   2   85 m²   20 m²  
Luxe Villa Everest met privé zwembad en solarium
Project: Villa Font del Llop - Luxe te midden van natuur
Stad: Monforte del cid
4   4     531.91 m²    
Lees mee met onze nieuwste blogs!
Calasparra voor gepensioneerden
Calasparra biedt betaalbare luxe, rust en een authentieke Spaanse levensstijl. Omringd door bergen, rivieren en wijngaarden vind je hier ruimte, natuur en veiligheid—perfect voor pensioen of investering. Dankzij lage prijzen, sterke huurvraag, groeiende populariteit en een warm dorpsleven is Ca...
Martine
Feestdagen in Spanje: tradities, zon & gezellig
Feestdagen in Spanje: verrassende tradities, warme zon & magische momenten die bijna niemand kent
Een persoonlijke blog van Casas Kimpencio December in Spanje… het klinkt altijd idyllisch, maar wie het ooit zelf heeft meegemaakt, weet dat deze maand écht anders voelt dan in Belgi...
Martine
Wind Mill Murcia – ideaal tweede huis of wonen
The Wind Mill Jouw droomwoning in Murcia, ideaal als tweede huis of permanente woning Ben je op zoek naar een unieke kans om te wonen of te investeren in Spanje?
The Wind Mill in Murcia is een prachtig nieuwbouwproject dat alle voordelen combineert van comfort, privacy en een ...
Martine
Spanje: