Home Lopende projecten Alle Panden Over ons Ons team Ons kantoor Onze werkwijze Contacteer ons Blog Cookies

Gelijkvloers appartement in Allure F2 op golf

 Project: Residentie Allure Fase 2 in Alenda Golf

Gezellige appartementen op prestigieus golfdomein Alenda

Korte beschrijving:

GELIJKVLOERS APPARTEMENT – 2 SLPK / 2 BADK – PRIVÉTUIN – ALLURE 2 – ALENDA GOLF

Ontdek dit gelijkvloerse appartement met 2 slaapkamers en 2 badkamers, ontworpen voor maximaal wooncomfort. Bij het betreden van de woning kom je via de inkomhal in de open leefruimte met volledig uitgeruste keuken, voorzien van keramische kookplaat, oven, microgolf en dampkap. Naast de keuken bevindt zich een gastentoilet met wastafel, waar ook de aerothermische boiler is ondergebracht. De woonkamer geniet van grote schuiframen die uitgeven op het terras en de groene tuin, waardoor binnen en buiten naadloos in elkaar overlopen. 

Het appartement beschikt over twee ruime slaapkamers, elk met ingebouwde kasten met hangrekken, lades en legplanken. De hoofdslaapkamer heeft een ensuite badkamer én een afgesloten dressing, een uitzonderlijke troef in deze categorie. De tweede slaapkamer heeft ook een eigen badkamer (niet ensuite), volledig afgewerkt met wastafelmeubel, spiegel, douche en toilet. Dankzij de grote raampartijen voelt elke kamer licht, open en elegant aan.

Buiten geniet je van een aangelegd terras van 12 m², met aansluitend een groene tuin van 40 m² – volledig omheind voor privacy en rust. Residentie Allure 2 biedt daarnaast een prachtig gemeenschappelijk zwembad, een kinderbad, groene zones en een ondergrondse parking met pré-installatie voor een elektrisch laadpunt. Dit appartement combineert moderne afwerking, comfort en functionaliteit op een locatie waar rust en natuur centraal staan.

U bent nog niet aangemeld!

Na invullen van onderstaande gegevens wordt u aangemeld, indien er nog geen account bestaat kan deze aangemaakt worden!



 Geef ons uw mening...

 Momenteel nog geen reviews voor dit pand.

Uitgebreide beschrijving:

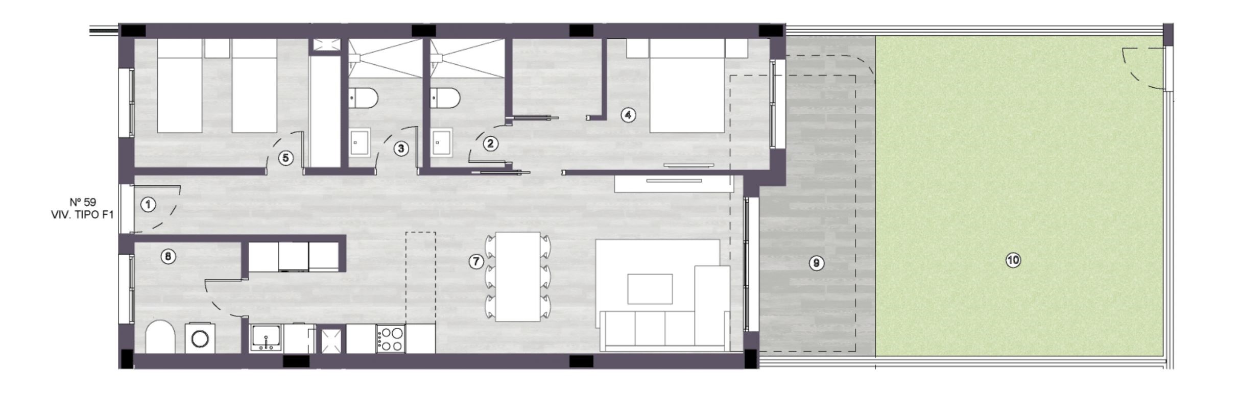
Deze woning is gelegen op de gelijkvloerse verdieping en voorzien van 2 slaapkamers met 2 badkamers. We nemen even een wandeling doorheen de woning. Bij het betreden van de woning kom je terecht in een inkomhal, die uitkomt op de open leefruimte met keuken. 

De keuken is uitgerust met alle nodige elektrische toestellen, zoals een keramische kookplaat, elektrische oven, microgolf, dampkap, ... Aansluitend aan de keuken is er een gastentoilet gelegen met een wastafel. In dit gastentoilet is ook de aerothermische boiler gelegen. 

De woonkamer kijkt via grote schuiframen uit op het terras met aansluitend een groene tuin. De hoofdslaapkamer kijkt uit op de tuin, via grote schuiframen. 

Er zijn 2 slaapkamers gelegen met 2 badkamers. De hoofdslaapkamer heeft een badkamer-ensuite én een afgesloten dressing. Via schuiframen, heb je rechtstreekse toegang tot het terras met tuin. De andere slaapkamer heeft ook een eigen badkamer, maar geen ensuite. 

Elke slaapkamer is voorzien van inbouwkasten met hangrekken, legplanken en lades. Beide badkamers zijn uitgerust met een wastafel, met bijpassend meubel, spiegel, douche en toilet. 

DUS CONCREET: 

  • 2 slaapkamers
  • 2 badkamers
  • Uitgeruste keuken met toestellen 
  • Open leefruimte
  • Gastentoilet
  • Terras 
  • Groene tuin 

De woning is gelegen op de gelijkvloerse verdieping, waardoor je kan genieten van een aangelegd terras van 12m² met aansluitend een groene tuin van 40m². 

Deze woning is gelegen in residentie Allure 2, wat voorzien is van heel wat gemeenschappelijke voorzieningen. Zo is er een gemeenschappelijk zwembad voor volwassenen maar ook een kinderzwembad voor de allerkleinsten. De residentie is prachtig afgewerkt met groene zones. 

Elke woning heeft een ondergrondse parkeerplaats in de parking. Deze parkeerplaatsen zijn voorzien van pre-installatie van een elektrisch laadpunt. Sommige woningen onder dit project hebben ook een berging in die ondergrondse parking. 

TECHNISCHE KENMERKEN: 

  • Dubbele beglazing
  • Veiligheidsdeur
  • Installatie voor wasmachine en vaatwasser
  • Sanitair warm water via aerothermisch systeem
  • Volledige airconditioning via kanalen ( zowel warm / koud ) 
  • Warmtepomp
  • Thermostaat per verdieping 
  • Verlichting 

Deze woning is gelegen in Alenda Golf, in Monforte Del Cid. Alenda Golf, gelegen in Monforte del Cid in de provincie Alicante, is een rustige en elegante woonomgeving waar het mediterrane binnenland en de groene perfectie van een golfresort samenkomen. De urbanisatie ligt tussen de heuvels en wijngaarden van de regio, met op de achtergrond de imposante Sierra del Cid. De sfeer is sereen, ruimtelijk en verzorgd, met brede lanen, wandelpaden en een blik op de perfect onderhouden greens die het landschap een bijna parkachtige uitstraling geven. Ondanks de natuurlijke rust ben je binnen korte tijd in grotere steden zoals Alicante en Elche, waardoor Alenda Golf een ideale balans biedt tussen stilte en bereikbaarheid.

Het hart van deze omgeving is de 18-holes golfbaan, ontworpen om golfers van elk niveau uit te dagen. De baan is omgeven door palmbomen, pijnbomen en open vlaktes die een oase van groen vormen in het warme mediterrane klimaat. Het clubhuis is een ontmoetingsplek waar golfers en bewoners samenkomen om te genieten van een maaltijd, een drankje of het panoramische uitzicht vanaf het terras. Daarnaast zijn er voorzieningen zoals een fitnessruimte, padelbanen, een supermarkt en sportfaciliteiten die bijdragen aan een comfortabel dagelijks leven.

Alenda Golf ligt op korte afstand van het charmante centrum van Monforte del Cid, een dorp met smalle straatjes, historische gebouwen en een ontspannen, traditionele sfeer. De omgeving staat bekend om haar wijnproductie en olijfgaarden, waardoor je hier nog het echte binnenlandse Spanje proeft. De aanwezigheid van natuurgebieden en wandelroutes in de nabijgelegen bergen maakt dit gebied ook aantrekkelijk voor wie graag de rust en ruimte van het buitenleven opzoekt, zonder ver verwijderd te zijn van stedelijke voorzieningen.

Wat veel mensen niet weten, is dat Monforte del Cid een belangrijke rol speelde tijdens de middeleeuwen en een strategische verdedigingspost vormde tussen het binnenland en de kust. De overblijfselen van het oude kasteel bovenop de heuvel bieden niet alleen een uniek uitzicht over de vallei, maar herinneren ook aan de rijke geschiedenis van deze regio. Het dorp kent bovendien eeuwenoude tradities die tot op de dag van vandaag worden gevierd, waardoor het leven hier een authentieke en warme uitstraling behoudt.

Daarnaast heeft Alenda Golf een charmant en bijna verborgen ritme dat vooral in de vroege ochtend tot leven komt. Wanneer de zon opkomt boven de Sierra del Cid en de eerste stralen de greens verlichten, hangt er een serene stilte over het resort. Het zachte geluid van vogels, het ruisen van bomen en het uitzicht over het glooiende landschap maken dit moment bijzonder. Het zijn precies dit soort stille, onverwachte momenten die Alenda Golf zo geliefd maken bij wie rust en kwaliteit zoekt in het mediterrane leven.

AFSTANDEN: 

  • Luchthaven Alicante: 18 km

  • Centrum Monforte del Cid: 3 km

  • Winkels & supermarkten: 2 km

  • Alicante centrum: 20 km

  • Elche centrum: 15 km

  • Strand (Arenales del Sol): 22 km

  • Ziekenhuis Elche: 14 km

  • Golfclubhuis Alenda: 0 km (binnen de urbanisatie)

  • Treinstation Alicante: 21 km

  • Bars & restaurants: 2 km

Onze visie binnen Casas Kimpencio;

  • Bij Casas Kimpencio ben je niet zomaar iemand, wij willen een persoonlijke relatie aangaan.
  • We behandelen jullie zoals we zelf behandeld willen worden, met de nodige betrokkenheid, precisie en details.
  • Geen enkele vraag is ons te veel, we staan elke dag telefonisch voor jou klaar.
  • Wij hebben de gedachte dat een huis kopen niet zomaar een huis kopen is, maar een nieuwe thuis kopen.
  • Iedereen dient een eigen verhaal te krijgen, met verschillende hoofdstukken. 
  • Wij willen helpen aan het Spaanse hoofdstuk, een hoofdstuk van een nieuwe thuis, vakantiewoning of een investering.
  • En dit doen we met open, duidelijke communicatie  en daarmee geraken we er altijd, zo vinden we jouw ideale woning gebaseerd op meerdere gesprekken.
  • We helpen vanaf het begin tot aan de sleuteloverdracht, en ver daarbuiten. 

Wij vinden deze woning bijzonder omdat;

  • De leefruimte meteen een open, helder gevoel geeft dankzij de inkomhal die uitkomt op een open woonkamer met grote schuiframen naar het terras en de tuin.

  • De keuken volledig uitgerust is met toestellen, waardoor je meteen zorgeloos kan intrekken zonder bijkomende kosten.

  • De woning beschikt over een extra gastentoilet, ideaal geplaatst naast de keuken, mét ingebouwde aerothermische boiler.

  • Beide slaapkamers directe toegang hebben tot buitenruimte, waardoor de woning uitzonderlijk veel licht en connectie met buiten biedt.

  • De hoofdslaapkamer een ensuite badkamer én afgesloten dressing heeft, iets wat je in deze prijsklasse zelden aantreft.

  • Elke slaapkamer beschikt over hoogwaardige inbouwkasten, volledig uitgerust met hangrekken, legplanken en lades.

  • Beide badkamers modern en volledig afgewerkt zijn met douche, meubel, spiegel en toilet.

  • Het aangelegde terras en de tuin een perfecte combinatie vormen van privacy, groen en onderhoudsgemak, dankzij de doordachte indeling.

  • De residentie uitzonderlijke voorzieningen biedt, zoals twee zwembaden (ook kinderbad), groene zones en ondergrondse parking.

  • Je een ondergrondse parkeerplaats hebt met pré-installatie voor een laadpunt, wat deze woning future-proof maakt.

WONINGEN BINNEN ALLURE 2:

Type woning  Aantal slaapkamers / badkamers Bebouwde oppervlakte  Buitenruimte in m² Prijs 
Gelijkvloers appartement  2/2 95m² 12 + 40m² €240.000
Duplex appartement  3/2 113m² 38m²
€280.000

GROEI EN TRENDS IN MONFORTE DEL CID: 

Jaar  Prijs per m² Jaarlijkse stijging 
2023 €1.724 -
2024 €1.795 +4.1%
2025 €2.069 +15.3%


Kenmerken:

Aantal slaapkamers 2
Aantal badkamers 2
Gedeeld zwembad Ja
Terras Ja
Bebouwde oppervlakte 148 m²
Oppervlakte perceel rond het huis 52 m²
Bewoonbare oppervlakte 125 m²
Terras oppervlakte 12 m²
Douche schermen Ja
Afstand naar het strand 20 km
Volledige airco installatie Ja
Elektrische rolluiken Ja
Led verlichting buiten Ja
Led verlichting binnen Ja
privé parkeerplaats Ja
Ondergrondse parking Ja
Telefoon Data aansluiting Ja
Videofonie Ja
Inbouwkasten Ja
Aero thermische warmtepomp Ja
Poort Ja
Elektrische poort Ja
Pre installatie elektrisch laadpunt Ja
Badkamer spiegels Ja
Alle keuken apparatuur volledig inbegrepen Ja
Kookplaat Dampkap Magnetron & Oven Ja
Nabij kinder speeltuin Ja
Berging Ja
Private Tuin Ja
Uitzicht tuin Ja
Op golfterrein Ja
Ziekenhuis afstand in km 10-20 km
Nabij Commercieel centrum Ja
Luchthaven Alicante afstand 10-20 km
Luchthaven Murcia afstand 50+ km
Uitzicht bergen Ja
Gedeelde kosten Ja
Ontspanning ruimte buiten Ja
Hangend toilet Ja
Hangend badkamer meubel Ja
Uitzicht op het zwembad Ja
Volledig ingerichte keuken Ja
Dampkap Ja
Gepantserde toegangsdeur met veiligheidsslot Ja
Hoogwaardige afwerking Ja
Kunstgras Ja
Aerothermische boiler Ja
Gelijkvloers Ja
Gelijkvloers met tuin Ja
Kijkwoning Ja
Goed gebied voor rentabiliteit van huur Ja
Energielabel B
Afgewerkte badkamer Ja
Gesloten urbanisatie Ja

Meer info?


Beschikbare documenten

gelijkvloers.jpeg

document-gelijkvloers.jpeg

download

Ontdek wat we nog meer voor jou in petto hebben!

Studio met verhuurlicentie in Finestrat
Studio met verhuurlicentie in Finestrat

Project: Appartement met verhuurlicentie Costa Blanca

Stad: Finestrat-Benidorm

0   1     36 m²   1 m²  

Condado De Alhama- Mirador penthouse
Condado De Alhama- Mirador penthouse

Project: Condado De Alhama- Mirador del Condado-appartement

Stad: Alhama de Murcia

2   2     67 m²   47 m²  

Tussen-appartement Haciendo del Álamo
Tussen-appartement Haciendo del Álamo

Project: Appartementen in Hacienda del Álamo Golf Resort

Stad: Hacienda del Álamo Golf Resort-Roldan

2   2   88 m²   20 m²  

Appartement Calistoga - gelegen op golfresort
Appartement Calistoga - gelegen op golfresort

Project: Coming soon Appartementen op Golfresort Desert

Stad: Cuevas Del Almanzora

2   2   71 m²   17 m²  

Vista Golf Algorfa-Los Lagos -La Finca Golf
Vista Golf Algorfa-Los Lagos -La Finca Golf

Project: Vista Golf Algorfa-Los Lagos -La Finca Golf

Stad: Algorfa

3   2     168 m²   74 m²  

Altaona Golf And Country Village
Altaona Golf And Country Village

Project: Altaona Village Townhouses

Stad: Banos y Mendigo-Murcia

2   2     76 m²   91 m²  

Penthouse Hacienda del Álamo
Penthouse Hacienda del Álamo

Project: Appartementen in Hacienda del Álamo Golf Resort

Stad: Hacienda del Álamo Golf Resort-Roldan

2   2   81 m²    

Azure IV - Lo Romero Golf - Appartement
Azure IV - Lo Romero Golf - Appartement

Project: Azure IV - Lo Romero Golf - Appartement

Stad: Pilar de la Horadada - Alicante

2   2   83 m²   75 m²  

Los Lagos: bungalow met tuin in La Finca Golf
Los Lagos: bungalow met tuin in La Finca Golf

Project: Los Lagos R12 -La Finca Golf

Stad: Algorfa

2   2     69 m²   14 m²  

NOSTRUM LIVING - Penthouse 2 slaapkamers
NOSTRUM LIVING - Penthouse 2 slaapkamers

Project: NOSTRUM LIVING - Moderne bungalows Alhama Golf

Stad: Alhama de Murcia

2   2   74 m²   25 m²  

Moderne woningen met uitzicht op golfbaan en zee
Moderne woningen met uitzicht op golfbaan en zee

Project: Luxe appartementen – La Serena Breeze

Stad: Los Alcazares - Murcia - Mar Menor

2   2     76 m²   15 m²  

Santa Rosalia Lake & Life Resort - Encina 57
Santa Rosalia Lake & Life Resort - Encina 57

Project: Santa Rosalia Lake & Life Resort - Encina 57

Stad: Santa Rosalia

2   2   178 m²   100 m²  

Lees mee met onze nieuwste blogs!

Ontdek Comunidad Valenciana: 3 provincies, 1 droom
Ontdek Comunidad Valenciana: 3 provincies, 1 droom

Van Castellón tot Alicante: in de Comunidad Valenciana koop je met zekerheid en zon. Casas Kimpencio begeleidt je stap voor stap, transparant en persoonlijk.

...

Martine

Pensioen in Spanje: wat je moet weten
Pensioen in Spanje: wat je moet weten

Droom je van een zorgeloos leven onder de Spaanse zon? Ontdek waarom steeds meer gepensioneerden kiezen voor Spanje. Met een gemiddeld pensioen van €1.500 per maand geniet je hier van rust, comfort en een hoge levenskwaliteit. Betaalbaar wonen, een mild klimaat, uitstekende gezondheidszorg en e...

Martine

Meerwaardebelasting in Spanje
Meerwaardebelasting in Spanje

Wanneer je jouw woning in Spanje verkoopt, verdwijnt de zon niet uit je verhaal, maar er duikt wel één belangrijke term op: de meerwaardebelasting. Ontdek hier in mensentaal hoe die werkt, wie ze betaalt en hoe je ze slim kunt beperken.

...

Martine

square-box
Tine
Vragen over panden, projecten en onze content
Snel starten:

Hallo, ik ben Tine je kan bij mij terecht met al je vragen over panden, projecten en onze content. Ik antwoord alleen op basis van de beschikbare website-inhoud.