Home Lopende projecten Alle Panden Over ons Ons team Ons kantoor Onze werkwijze Contacteer ons Blog Cookies

laatste kans

Gelijkvloers appartement met terras in Domus Catral

 Project: Residentie Domus Catral in Catral

Moderne nieuwbouwappartementen in Catral

Korte beschrijving:

GELIJKVLOERSE WONING – 2 SLAAPKAMERS – UNIEK DESIGN – CATRAL

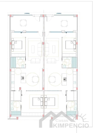
Ontdek deze gelijkvloerse woning, perfect ontworpen voor wie comfort, praktische indeling en moderne afwerking zoekt. Bij het betreden van de woning stap je via het terras van 18 m² meteen binnen in de open leefruimte met volledig uitgeruste keuken en kookeiland. De keuken beschikt over ruime onder- en bovenkasten en alle elektrische toestellen. Aansluitend aan de keuken bevindt zich een handige berging, ideaal voor proviand of huishoudtoestellen.

De woning beschikt over 2 slaapkamers en 2 badkamers. De eerste slaapkamer ligt naast de woonkamer en heeft een badkamer die volledig werd uitgerust met wastafel, spiegel en douche. De tweede slaapkamer bevindt zich achteraan en beschikt over een badkamer-ensuite. Beide slaapkamers zijn voorzien van inbouwkasten met hangrekken, legplanken en lades.

Buiten geniet je van een terras van 18 m², direct aan de inkom gelegen, waardoor binnen- en buitenleven mooi samenvloeien. Dankzij de kwalitatieve afwerking, zoals een natuurstenen accentmuur, elektrische rolluiken, een aerothermisch systeem, zonnepanelen en volledige airconditioning warm/koud, leef je hier energiezuinig en comfortabel. De woning maakt deel uit van een residentiële omgeving in Catral met alle dagelijkse voorzieningen op korte afstand.

U bent nog niet aangemeld!

Na invullen van onderstaande gegevens wordt u aangemeld, indien er nog geen account bestaat kan deze aangemaakt worden!



 Geef ons uw mening...

 Momenteel nog geen reviews voor dit pand.

Uitgebreide beschrijving:

Ontdek deze gelijkvloerse woning! De woning is gelegen op de begane vloer en voorzien van 2 slaapkamers met 2 badkamers. We nemen even een wandeling doorheen de woning. Je betreedt de woning rechtstreeks via de voortuin, waar jouw terras van 18m² gelegen is. 

De voordeur komt meteen uit op de open leefruimte met ruime keuken. De keuken is voorzien van ruime onder-en bovenkasten, zodat je meer dan voldoende plaats hebt om jouw spullen in op te bergen! De keuken is volledig uitgerust met alle elektrische toestellen.

Naast de woonkamer is de eerste slaapkamer met badkamer gelegen. De slaapkamers zijn voorzien van inbouwkasten met hangrekken, legplanken en lades. De badkamer is dan weer uitgerust met wastafels en spiegels. 

Aansluitend aan de keuken, is er een berging gelegen. Daar heb je meer dan voldoende plaats om jouw proviand in op te slaan. Ideaal dus! Verder in de woning is de tweede slaapkamer met badkamer-ensuite gelegen. 

DUS CONCREET: 

  • 2 slaapkamers
  • 2 badkamers
  • Keuken met kookeiland
  • Terras van 18m²

Bij het betreden van de woning is jouw buitenruimte gelegen. Deze woning is voorzien van een terras van 18m², zodat je optimaal kan genieten van heel wat buitenruimte!

TECHNISCHE KENMERKEN: 

  • Elektrische rolluiken 
  • Natuurstenen muur in het salon 
  • Sanitair warm water via aerothermisch systeem
  • 2 zonnepanelen met omvormer
  • Volledige airconditioning ( zowel warm als koud )

Deze woning is gelegen in Catral. Catral, gelegen in de vruchtbare vallei van de Vega Baja del Segura, is een charmant en typisch Spaans dorp waar rust, ruimte en traditie elkaar ontmoeten. Omringd door uitgestrekte landbouwvelden en citrusboomgaarden ademt de omgeving een serene, landelijke sfeer. Het dorp ligt op ongeveer twintig minuten rijden van de kust, waardoor je geniet van het beste van twee werelden: de kalmte van het binnenland en de nabijheid van de zandstranden van Guardamar en La Marina. In het centrum vind je brede pleinen, kleine winkels, lokale cafés en restaurants waar de mediterrane keuken gastvrij wordt geserveerd.

Het dagelijkse leven in Catral verloopt in een aangenaam, ontspannen ritme. De gemeenschap is warm en hecht, en overal proef je de authenticiteit van het Spaanse dorpsleven. Wekelijkse markten brengen de straten tot leven met kleurrijke kraampjes vol verse producten, ambachtelijke lekkernijen en geurige kruiden. Catral beschikt bovendien over diverse voorzieningen zoals sportfaciliteiten, scholen, parken en gezondheidscentra, wat het dorp bijzonder prettig maakt voor bewoners die rust willen zonder in te boeten aan comfort.

De natuurlijke omgeving biedt volop mogelijkheden voor liefhebbers van wandelen en fietsen. De nabijgelegen moerasgebieden van El Hondo vormen een belangrijk natuurreservaat waar talloze vogelsoorten leven, waaronder flamingo’s en reigers. Dit beschermde gebied is een paradijs voor natuurliefhebbers, waar stilte en ruimte nog voelbaar zijn. Het mediterrane klimaat met warme zomers en milde winters maakt dat het buitenleven hier het hele jaar door centraal staat.

Wat veel mensen niet weten, is dat Catral een lange geschiedenis heeft die teruggaat tot de middeleeuwen. Het dorp speelde ooit een belangrijke rol dankzij zijn verbinding met oude irrigatiesystemen die door de Moren werden aangelegd. Deze kanalen zorgden ervoor dat de regio uitgroeide tot een van de meest vruchtbare landbouwgebieden van de provincie Alicante. Tijdens wandelingen door het buitengebied kun je nog steeds restanten van deze ingenieuze waterwerken ontdekken.

Daarnaast staat Catral bekend om zijn levendige feesten en tradities. Elk jaar worden er culturele evenementen georganiseerd waarbij muziek, vuurwerk, gastronomie en folklore samenkomen. De Fiestas Patronales trekken bewoners én bezoekers aan, en brengen een sfeer met zich mee die het beste van Catral weerspiegelt: warmte, gemeenschap en mediterrane levensvreugde. In de avonden, wanneer de lucht afkoelt en de geur van citrusbloesem zich met de bries mengt, ervaar je een bijzondere rust die deze plek zo uniek maakt.

AFSTANDEN: 

  • Luchthaven Alicante-Elche: 28 km

  • Stranden van Guardamar del Segura: 19 km

  • Stranden van La Marina: 20 km

  • Centrum Almoradí: 7 km

  • Centrum Elche: 21 km

  • Hospital Vega Baja (Orihuela): 15 km

  • Consum Supermarkt Catral: 1 km

  • Sportcentrum Catral: 1,5 km

  • Natuurpark El Hondo: 5 km

Onze visie binnen Casas Kimpencio;

  • Bij Casas Kimpencio ben je niet zomaar iemand, wij willen een persoonlijke relatie aangaan.
  • We behandelen jullie zoals we zelf behandeld willen worden, met de nodige betrokkenheid, precisie en details.
  • Geen enkele vraag is ons te veel, we staan elke dag telefonisch voor jou klaar.
  • Wij hebben de gedachte dat een huis kopen niet zomaar een huis kopen is, maar een nieuwe thuis kopen.
  • Iedereen dient een eigen verhaal te krijgen, met verschillende hoofdstukken. 
  • Wij willen helpen aan het Spaanse hoofdstuk, een hoofdstuk van een nieuwe thuis, vakantiewoning of een investering.
  • En dit doen we met open, duidelijke communicatie  en daarmee geraken we er altijd, zo vinden we jouw ideale woning gebaseerd op meerdere gesprekken.
  • We helpen vanaf het begin tot aan de sleuteloverdracht, en ver daarbuiten. 

Wij vinden deze woning bijzonder omdat;

  • Twee volledig uitgeruste slaapkamers – Ruime, lichte kamers met ingebouwde kasten die ontworpen zijn om maximaal comfort te bieden. Ideaal voor zowel permanente bewoning als vakantieverhuur.

  • Twee moderne badkamers – Elke badkamer combineert comfort met hoogwaardige materialen, zodat elke ochtendroutine aanvoelt als een hotelervaring.

  • Volledig uitgeruste keuken met kookeiland – Niet zomaar een keuken, maar het kloppende hart van de woning waar functionaliteit en design samenkomen. Het kookeiland maakt koken én gezelligheid naadloos mogelijk.

  • Terras van 18 m² als verlengstuk van je leefruimte – De voortuin en het terras vormen één uitnodigende buitenruimte waar je het hele jaar door kunt genieten van het mediterrane klimaat.

  • Natuurstenen accentmuur in de leefruimte – Een uniek stijlkenmerk dat meteen sfeer brengt en de woning een luxueuze, warme uitstraling geeft.

  • Hoogwaardige klimaatinstallatie met aerothermisch systeem en twee zonnepanelen – Energiezuinig wonen wordt hier realiteit: lagere maandlasten, een comfortabel binnenklimaat en toekomstgerichte technologie.

  • Volledige airconditioning warm/koud – In elke seizoen de perfecte temperatuur, discreet geïntegreerd en eenvoudig regelbaar.

  • Elektrische rolluiken voor extra comfort en privacy – Met één druk op de knop creëer je rust, veiligheid en verkoeling.

GROEI EN TRENDS IN CATRAL: 

Jaar  Prijs per m² Jaarlijkse stijging 
2023 €2.232 -
2024 €2.464 +10.4%
2025 €2.699 +9.5%


Kenmerken:

Aantal slaapkamers 2
Aantal badkamers 2
Bebouwde oppervlakte 94 m²
Bewoonbare oppervlakte 80 m²
Afstand naar het strand 15 km
Terras oppervlakte 18 m²
Poort Ja
Nabij Scholen Ja
Nabij bushalte Ja
Terras Ja
Douche schermen Ja
Volledige airco installatie Ja
Elektrische rolluiken Ja
Led verlichting buiten Ja
Led verlichting binnen Ja
Aero thermische warmtepomp Ja
Badkamer spiegels Ja
Alle keuken apparatuur volledig inbegrepen Ja
Kookplaat Dampkap Magnetron & Oven Ja
Nabij kinder speeltuin Ja
Berging Ja
Golfresort afstand in km 15-20 km
Ziekenhuis afstand in km 20-30 km
Luchthaven Alicante afstand 20-30 km
Luchthaven Murcia afstand 50+ km
Uitzicht bergen Ja
Hangend toilet Ja
Hangend badkamer meubel Ja
Zonnepanelen Ja
Volledig ingerichte keuken Ja
Dampkap Ja
Gepantserde toegangsdeur met veiligheidsslot Ja
Hoogwaardige afwerking Ja
Kijkwoning Ja
Energielabel A
Afgewerkte badkamer Ja

Meer info?


Beschikbare documenten

grondplan.webp

document-grondplan.webp

download

Ontdek wat we nog meer voor jou in petto hebben!

Gemeubelde Appartementen El Raso Guardamar
Gemeubelde Appartementen El Raso Guardamar

MODERNE GEMEUBELDE APPARTEMENTEN IN EL RASO, GUARDAMAREigent ...

 Ligging: 03140 Guardamar Del Segura  Stad: Guardamar del segura- Alicante  Type locatie: Uitzicht zwembad


nog 6 Panden beschikbaar!
Residentie Corallia in Punta Prima - F1
Residentie Corallia in Punta Prima - F1

RESIDENTIE CORALLIA – Fase 1 nu beschikbaar! Ontdek de nie ...

 Ligging: Punta Prima 03189  Stad: Punta Prima  Type locatie: Uitzicht zwembad


nog 4 Panden beschikbaar!
Luxe villa's eerste lijn in Cabo de Palos
Luxe villa's eerste lijn in Cabo de Palos

LUXE VILLA'S - TOT 4 SLAAPKAMERS - PRIVÉZWEMBAD EN SOLARIUM ...

 Ligging: 30370 Cabo de Palos  Stad: Cabo de Palos  Type locatie: Zeezicht eerste lijn


nog 1 Pand beschikbaar!
Nieuwbouw appartementen in Guardamar del Segura
Nieuwbouw appartementen in Guardamar del Segura

APPARTEMENTEN - 2 SLAAPKAMERS - TERRAS - NIEUWBOUW MET RESOR ...

 Ligging: Avda del Puerto 03140  Stad: Guardamar del segura- Alicante  Type locatie: Uitzicht zwembad


nog 2 Panden beschikbaar!
Villa Ciudad Quesada – Auro I met kelderoptie
Villa Ciudad Quesada – Auro I met kelderoptie

Villa kopen Spanje Costa Blanca – Auro I Ciudad Quesada?Mo ...

 Ligging: Rojales 03170  Stad: Rojales- Alicante  Type locatie: Uitzicht zwembad


nog 1 Pand beschikbaar!
Herverkoop van villa op groot perceel nabij golf
Herverkoop van villa op groot perceel nabij golf

Uitzonderlijk ruime villa’s op percelen van ca. 1000m² M ...

 Ligging: Ciudad Quesada 03170  Stad: Ciudad Quesada  Type locatie: Uitzicht bergen en natuur


nog 1 Pand beschikbaar!
Appartementen Torrevieja met zwembad Talan 1
Appartementen Torrevieja met zwembad Talan 1

APPARTEMENTEN & PENTHOUSES - 2 SLAAPKAMERS - TERRAS - DAKTER ...

 Ligging: Torrevieja 03183  Stad: Torrevieja-Alicante  Type locatie: Stadsuitzicht


nog 2 Panden beschikbaar!
Residentie Corallia in Punta Prima - F3
Residentie Corallia in Punta Prima - F3

RESIDENTIE CORALLIA – Fase III nu beschikbaar! Ontdek de n ...

 Ligging: Punta Prima 03189  Stad: Punta Prima  Type locatie: Uitzicht zwembad


nog 5 Panden beschikbaar!
Nieuwbouw appartement met balkon centrum Bigastro
Nieuwbouw appartement met balkon centrum Bigastro

Ontdek dit exclusieve nieuwbouwproject met slechts drie mode ...

 Ligging: 03380 Bigastro  Stad: Bigastro  Type locatie: Stadsuitzicht


nog 3 Panden beschikbaar!
Villa's met zwembad Las Filipinas Orihuela Costa
Villa's met zwembad Las Filipinas Orihuela Costa

In Las Filipinas, Orihuela Costa bevindt zich dit kleinschal ...

 Ligging: Las Filipinas 03189 Orihuela-costa  Stad: Orihuela Costa-Alicante  Type locatie: Uitzicht zwembad


nog 1 Pand beschikbaar!
Luxe bungalows Horizon II, San Miguel de Salinas
Luxe bungalows Horizon II, San Miguel de Salinas

HORIZON RESORT II  BUNGALOWS - SAN MIGUEL DE SALINAS Ontdek ...

 Ligging: San Miguel de Salinas, Costa Blanca  Stad: Wonen in San Miguel: rust en zon aan zee  Type locatie: Uitzicht zwembad


nog 4 Panden beschikbaar!
Villa's Caliza bij la Finca Golf Algorfa
Villa's Caliza bij la Finca Golf Algorfa

Exclusieve nieuwbouwwilla’s met infinity-zwembad nabij La ...

 Ligging: Castillo De Montemar 03169  Stad: Algorfa  Type locatie: Golfdomein


nog 1 Pand beschikbaar!

Lees mee met onze nieuwste blogs!

Ontdek Comunidad Valenciana: 3 provincies, 1 droom
Ontdek Comunidad Valenciana: 3 provincies, 1 droom

Van Castellón tot Alicante: in de Comunidad Valenciana koop je met zekerheid en zon. Casas Kimpencio begeleidt je stap voor stap, transparant en persoonlijk.

...

Martine

De levenskwaliteit in Spanje
De levenskwaliteit in Spanje

De levenskwaliteit in Spanje blijft stijgen. Volgens het Spaanse statistiekbureau bereikt het land opnieuw een recordscore dankzij een gezonder, veiliger en evenwichtiger levensritme. Ontdek waarom zoveel mensen kiezen voor een leven onder de zon.

...

Juliette

Toplocaties in Orihuela Costa voor je droomhuis
Toplocaties in Orihuela Costa voor je droomhuis

Orihuela Costa, gelegen aan de prachtige Costa Blanca, is een topbestemming voor Nederlanders en Belgen die op zoek zijn naar een vakantiehuis of permanente woning in Spanje. Met zon, zee, stranden en uitstekende voorzieningen biedt dit gebied alles wat u nodig heeft voor een ontspannen levenssti...

Martine

square-box
Tine
Vragen over panden, projecten en onze content
Snel starten:

Hallo, ik ben Tine je kan bij mij terecht met al je vragen over panden, projecten en onze content. Ik antwoord alleen op basis van de beschikbare website-inhoud.