Gelijkvloers appartement met tuin in Alonis
Project: Residentie Alonis in Villajoyosa Tweede fase
Luxe Resort in Villajoyosa - Een paradijs aan zee
Korte beschrijving:
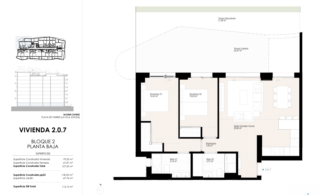
GELIJKVLOERS APPARTEMENT - 2 SLAAPKAMERS EN 2 BADKAMERS - GARAGE EN BERGING - ZEEZICHT
Deze woning is gelegen op de gelijkvloerse verdieping in een complex met 164 appartementen. De woning is voorzien van 2 slaapkamers met 2 badkamers. Qua locatie is deze woning top; op 400 meter van het strand, en op slechts 2 km van het kustdorpje Villajoyosa. Deze woning is voorzien van alle comfort zoals vloerverwarming in de badkamer, airconditioning, rolgordijnen, ...
Naast de unieke eigen woning biedt deze woning ook heel wat gemeenschappelijke voorzieningen zoals een overloopzwembad op het dakterras, 3 zwembaden op de begane vloer, jacuzzi, social club, fitnessruimtes (zowel binnen als buiten ), ... Noem maar op! Dit complex is uniek in deze buurt dankzij de vele voorzieningen en de comfort die je meekrijgt als bewoner.
U bent nog niet aangemeld!
 Geef ons uw mening...
Vanaf: €455.000
Ref: KIMP-PROP-3489
Uitgebreide beschrijving:
Deze woning is gelegen op de gelijkvloerse verdieping en is voorzien van 2 slaapkamers met 2 badkamers. De 2 slaapkamers hebben elk rechtstreekse toegang tot het terras. De hoofdslaapkamer heeft een badkamer-ensuite. Elke slaapkamer is voorzien van inbouwkasten met hangrekken, legplanken en lades alsook manuele rolluiken / gordijnen. Elke badkamer is voorzien van een wastafel, douche, doucheschermen, badkamermeubel en toilet. Er is vloerverwarming in de badkamer.
Er is een ruime leefruimte voorzien met open U-keuken. In de keuken zijn er kwaliteitsvolle en hoogwaardige materialen gebruikt van het merk Bosch of Samsung. De keuken wordt volledig uitgerust geleverd met de volgende elektrische apparaten: keramische kookplaat, koelkast, microgolf, elektrische oven en vaatwasser. Er wordt ook een wasmachine en droogkast meegeleverd.
Vanuit de woonkamer heb je prachtig zicht op jouw terras en bovendien ook rechtstreekse toegang.
Het voordeel aan deze woning is de grote buitenruimte. Zo is er aansluitend aan jouw woning een terras voorzien van 28 m² met daaraan verbonden ook nog een tuin van 38m². Dankzij de vele buitenruimte kan je volop genieten van de Spaanse zon! Het terras is afgewerkt met non-slip keramische tegels.
Doorheen de woning staat jouw comfort centraal. Dit is te zien in kleine, maar oh zo belangrijke kenmerken. Zo zijn er in de woonkamer, keuken, ... USB-poorten voorzien om eenvoudig jouw elektrische apparaten op te laden. Er is ook volledige airconditioning voorzien én een aerothermische warmteboiler. In het complex is er ook een speciaal postsysteem ontwikkeld zodat je zonder zorgen pakjes en brieven kan ontvangen.
Elke woning is voorzien van een garageplaats in de ondergrondse parking met aansluitend een berging. In de garage is de toegang geregeld via een automatische poort. Er is een laadpunt voor elektrische wagens aanwezig. Er is een receptie voor de inwoners, zodat je altijd met jouw vragen ergens terecht kan. Doorheen het hele appartementengebouw is er een lift voorzien.
Naast de prachtig afgewerkte woningen, zijn er ook heel wat gemeenschappelijke voorzieningen die dit complex tot een hoger niveau tillen. De parel van dit complex is het grote rooftop overloopzwembad met magnifiek zicht op zee. Op het dakterras is er een chill-out zone, pergola, ligweide én barbecue. Er wordt ook een social club ruimte voorzien, waar je kan socializen met jouw buren of van een co-working plaats kan genieten. Naast het zwembad op het dakterras zijn er ook verschillende zwembaden op de begane vloer. Zo is er een tropisch zwembad, verwarmd zwembad voor volwassenen, een zwembad voor kinderen én een verwarmde jacuzzi. Al deze zwembaden zijn omringd door prachtige groene tuinen.
Er is een indoor en outdoor fitness voorzien alsook een ruimte voor de sporten putting green en minigolf. De surfliefhebbers hebben een speciale opbergplaats om hun surfborden te stockeren.
Extra aan dit complex is de 'Alonis App'. Een applicatie speciaal gemaakt voor de bewoners om alles te vergemakkelijken. Dit is een unieke manier van werken, met Alonis 1 van de eerste projecten waarbij er een applicatie wordt ontwikkeld. Via deze app heb je doorheen het bouwproces eenvoudige toegang tot alle documenten van jouw woning zoals de plannen, ... Na het bouwproces blijft deze app relevant. Je kan eenvoudig reserveringen maken bij restauranten in de buurt, autoverhuur, alsook voor de gemeenschappelijke ruimtes zoals de fitness, co-working plaats, ...
Er is een mogelijkheid om deze woning nog meer af te werken naar jouw keuze. Zo zijn er extra diensten die je kan vragen, die niet inbegrepen zijn in de prijs. Extra diensten zijn de volgende:
- Afwerking van de keuken naar jouw keuze
- Alternatieven voor de betegeling doorheen jouw woning
- Vloerverwarming over de gehele woning
- Mini-zwembad voor de gelijkvloerse appartementen en de penthouses
- Barbecue voor de penthouses
- Laadpunt voor elektrische wagens
Deze woning is gelegen in Villajoyosa, in Playa del Torres op 400 meter van het strand. Playa del Torres is een charmante en rustige kustplaats aan de Costa Blanca, vlak bij Villajoyosa. Dit gebied staat bekend om zijn natuurlijke schoonheid, met een schilderachtige baai omgeven door heuvels en een ontspannen mediterrane sfeer. De stranden hier zijn minder druk dan die in grotere toeristische bestemmingen, wat het een ideale plek maakt voor wie op zoek is naar rust en een authentieke ervaring.
Op korte afstand ligt Villajoyosa, een stad met kleurrijke gevels en een rijke geschiedenis. De oude binnenstad en de beroemde chocoladefabrieken, zoals die van Valor, trekken bezoekers aan die willen genieten van cultuur en gastronomie. Voor wie meer levendigheid zoekt, is Benidorm binnen handbereik, met zijn bruisende nachtleven, themaparken en uitgestrekte zandstranden. Alicante en zijn internationale luchthaven liggen ook op een comfortabele rijafstand, waardoor reizen eenvoudig is.
Liefhebbers van natuur en buitenactiviteiten hebben hier genoeg mogelijkheden. Langs de kust zijn er prachtige wandelroutes met panoramische uitzichten over de Middellandse Zee. Watersporten zoals snorkelen, paddleboarden en kajakken zijn populair dankzij het heldere water en de beschutte ligging van de baai. In de omgeving zijn er ook golfbanen en natuurparken voor wie graag actief bezig is.
Qua voorzieningen heeft de regio alles wat nodig is voor een comfortabel leven. Supermarkten, restaurants en gezondheidszorg zijn goed bereikbaar, en de nabijgelegen steden bieden een breder scala aan winkels, scholen en andere faciliteiten. Dankzij het milde klimaat en de relaxte levensstijl trekt Playa del Torres mensen aan die willen genieten van het beste dat de Costa Blanca te bieden heeft.
Villajoyosa en Benidorm vormen een interessant contrast op het gebied van bebouwingsdichtheid en sfeer. Villajoyosa heeft een relatief lage dichtheid, met een mix van laagbouw, traditionele vissershuizen en moderne appartementen, maar zonder de massale hoogbouw die in andere kustplaatsen te vinden is. Dit zorgt voor een ontspannen en authentieke sfeer, waarbij het karakter van de oude stad en de brede, natuurlijke stranden behouden blijft.
Benidorm daarentegen staat bekend om zijn indrukwekkende skyline, vol wolkenkrabbers en hotels die direct aan de kust liggen. De stad heeft een van de hoogste bebouwingsdichtheden van Spanje, wat bijdraagt aan de dynamische en bruisende sfeer. Hierdoor zijn er talloze voorzieningen, van restaurants en winkels tot uitgaansgelegenheden en amusementsparken. Ondanks de drukte biedt Benidorm ook rustige plekken, zoals het natuurgebied Sierra Helada, dat net buiten de stad ligt en prachtige wandelroutes biedt met uitzicht op zee
Kenmerken:
Aantal slaapkamers | 2 | |
Aantal badkamers | 2 | |
Volledige airco installatie | Ja | |
Led verlichting buiten | Ja | |
Led verlichting binnen | Ja | |
Zeezicht | Ja | |
privé parkeerplaats | Ja | |
parking ondergronds | Ja | |
Telefoon Data aansluiting | Ja | |
Videofonie | Ja | |
Inbouwkasten | Ja | |
Aero thermische warmtepomp | Ja | |
Douche schermen | Ja | |
Poort | Ja | |
Elektrische poort | Ja | |
Elektrisch laadpunt | Otioneel | |
Badkamer spiegels | Ja | |
Terras | Ja | |
Solarium | Gedeeld | |
Privaat zwembad | Ja | |
Gedeeld zwembad | Ja | |
Verwarmd zwembad | Ja | |
Jaccuzi | Ja | |
Alle keuken apparatuur volledig inbegrepen | Ja | |
Vloerverwarming badkamer | Ja | |
Barbecue | Ja | |
Nabij kinder speeltuin | Ja | |
Buiten fitness | Ja | |
Fitness ruimte | Ja | |
Kookplaat Dampkap Magnetron & Oven | Ja | |
Berging | Ja | |
Gedeelde tuin | Ja | |
Private Tuin | Ja | |
Golfresort afstand in km | 5-10 km | |
Ziekenhuis afstand in km | 10-20 km | |
Nabij Commercieel centrum | Ja | |
Luchthaven Alicante afstand | 40-50 km | |
Luchthaven Murcia afstand | 50+ km | |
Uitzicht tuin | Ja | |
Gedeelde kosten | Ja | |
Lift | Ja | |
Ontspanning ruimte buiten | Ja | |
Ontspanning ruimte binnen | Ja | |
Oppervlakte perceel rond het huis | 38 m² | |
Bebouwde oppervlakte | 95 m² | |
Bewoonbare oppervlakte | 84 m² | |
Afstand naar het strand | 0.4 km | |
Terras oppervlakte | 28 m² | |
Nabij Scholen | Ja | |
Hangend toilet | Ja | |
Hangend badkamer meubel | Ja | |
Overloopzwembad | Ja | |
Infinity zwembad | Ja | |
Cameradeur met intercom terminal | Ja | |
Badkamer meubel en spiegels | Ja | |
Volledig ingerichte keuken | Ja | |
Dampkap | Ja | |
Gepantserde toegangsdeur met veiligheidsslot | Ja | |
Fietsafstand van het strand | Ja | |
Hoogwaardige afwerking | Ja | |
Aluminium rolgordijnen | Ja | |
Aerothermische boiler | Ja | |
Ondergronds parking | Ja | |
Gelijkvloers | Ja | |
Gelijkvloers met tuin | Ja | |
Luxe nieuwbouw | Ja | |
Parking in garage | Ja | |
Goed gebied voor rentabiliteit van huur | Ja | |
Wandelafstand van het strand | Ja | |
Social club | Ja | |
Pergola | Ja | |
Energielabel | A | |
Afgewerkte badkamer | Ja | |
Gesloten urbanisatie | Ja | |
BBQ | Optioneel |
Meer info?
Beschikbare documenten
Ontdek al het moois In Spanje

Penthouse met solarium in residentie Iconic
Project: Residentie Iconic in Los Alcazares
Stad: Los Alcazares
3   2   115 m²   9 m²  

Penthouse type P in Playa Principe bij Mar Menor
Project: 1e lijn Appartementen Playa Principe in Mar Menor
Stad: La Manga del Mar Menor
1   1   71 m²   12 m²  

Villa met zwembad en zicht op golf in Golden Green
Project: Residentie Golden Green bij Serena Golf
Stad: Los Alcazares
3   2     224 m²   114 m²  
Ontdek het laatste nieuws!

Kosten na aankoop van een woning in Spanje
Geniet van gemoedsrust in jouw Spaanse woning met de vaste kosten en onderhoud die perfect binnen jouw budget passen.
Bij Casas Kimpencio maken we het eenvoudig voor je door de jaarlijkse belastingen en andere uitgaven in kaart te brengen, zodat je zich kunt concentreren op het leven in jo...
Martine