Geschakelde woning met solarium in residentie Azohia New

 Project: Residentie Azohia New in La Azohia

Nieuwbouwwoning op slechts 50 meter van het strand in Azohia

Korte beschrijving:

LUXE DUPLEX MET SOLARIUM EN ZEEZICHT – 2 SLAAPKAMERS – LA AZOHÍA

Deze woning is verdeeld over drie verdiepingen en combineert compact wonen met uitzonderlijk buitenleven op amper 50 meter van zee. Op de begane vloer bevindt zich de leefruimte met open keuken (pré-installatie), samen goed voor ca. 22 m², met zicht op de privatieve tuin van 20 m². Op dit niveau is ook een eerste badkamer aanwezig. De tuin kan naar wens ingericht worden als privézwembad of gebruikt worden als parkeerplaats achter een automatische poort, wat zorgt voor extra flexibiliteit.

Op de eerste verdieping bevinden zich twee slaapkamers, elk met een eigen badkamer. De hoofdslaapkamer beschikt bovendien over een privébalkon, ideaal om ’s morgens te genieten van licht en zeelucht. De woning is praktisch ingedeeld met duidelijke scheiding tussen leefruimte, slaapgedeelte en buitenzones, wat het comfort verhoogt voor zowel eigen gebruik als verhuur.

Het absolute hoogtepunt bevindt zich bovenaan: een solarium van 24 m² met zeezicht, waar je de hele dag door van zon, rust en het uitzicht over de Middellandse Zee kan genieten. Met pré-installatie voor airconditioning en keuken, inbouwkasten in de slaapkamers en de unieke ligging in het authentieke kustdorp La Azohía, is dit een zeldzame kans voor wie dichtbij zee wil wonen zonder massatoerisme, maar mét karakter en potentieel.

U bent nog niet aangemeld!

Na invullen van onderstaande gegevens wordt u aangemeld, indien er nog geen account bestaat kan deze aangemaakt worden!



 Geef ons uw mening...

 Momenteel nog geen reviews voor dit pand.

Uitgebreide beschrijving:

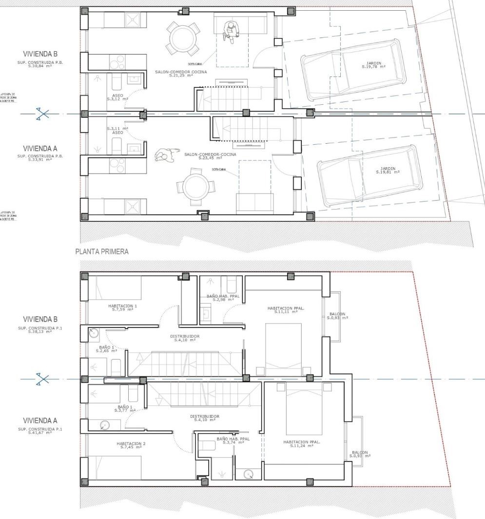
Deze woning is verdeeld over 3 verdiepingen en voorzien van 2 slaapkamers met 2 badkamers. Op de begane vloer is er een ruime leefruimte gelegen met open keuken. De keuken is gepré-installeerd, de keuken en woonkamer hebben een oppervlakte van 22m². Op de gelijkvloerse verdieping is er een badkamer gelegen met toilet, douche, wastafel met bijpassend meubel, ... 

Via een trap bereik je de eerste verdieping. Daar zijn de 2 slaapkamers met elk een eigen badkamer gelegen. De hoofdslaapkamer heeft een badkamer-ensuite, de andere slaapkamer heeft ook een eigen badkamer maar geen ensuite. De hoofdslaapkamer heeft ook een eigen balkon. 

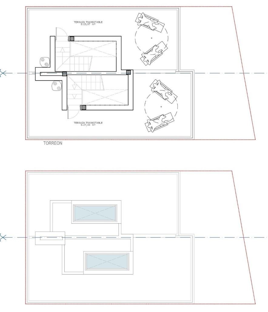
Nog een verdieping hoger, is het solarium gelegen van 24m². 

DUS CONCREET: 

  • 2 slaapkamers
  • 3 badkamers
  • Pré-installatie keuken 
  • Woonkamer met zicht op tuin 
  • Solarium van 24m²
  • Balkon op hoofdslaapkamer

Deze woning is voorzien van een tuin van 20m² op de begane vloer. De tuin kan omgevormd worden tot een privézwembad, tegen een meerprijs. In de originele vorm van de tuin is er een parkeerplaats voorzien op de tuin via automatische garagepoort. 

Op de bovenste verdieping is het solarium gelegen van 24m². Hier kan je de hele dag door genieten van de zon én zelfs van zeezicht! 

TECHNISCHE KENMERKEN: 

  • Pré-installatie keuken 
  • Pré-installatie airconditioning
  • Inbouwkasten in de slaapkamers

Deze woning is gelegen in Azohia. La Azohía, gelegen aan de rustige kust van de regio Murcia, is een verborgen parel aan de Middellandse Zee waar natuur, zee en authenticiteit samenkomen. Op slechts 50 meter van het strand leef je hier letterlijk op het ritme van de zee. Het dorp ligt ingeklemd tussen de zee en de heuvels van het natuurpark Sierra de la Muela, Cabo Tiñoso y Roldán, wat zorgt voor een uitzonderlijk open landschap en een gevoel van ruimte dat zeldzaam is aan de Spaanse kust. De stranden zijn kleinschalig, natuurlijk en staan bekend om hun heldere water en rust.

La Azohía heeft haar karakter als traditioneel vissersdorp weten te behouden. Er zijn geen grote hotels of massatoerisme, maar wel een kleine haven, lokale restaurants en een ontspannen dorpssfeer waar buren elkaar nog kennen. Verse vis en zeevruchten spelen een hoofdrol in de lokale keuken, vaak bereid volgens recepten die al generaties lang worden doorgegeven. Het leven verloopt hier in een rustig tempo, met lange lunches, avondwandelingen langs zee en zonsondergangen die de hemel oranje en roze kleuren.

De omgeving nodigt uit tot een actief buitenleven. Wandelen, fietsen, snorkelen en duiken zijn hier dagelijkse bezigheden, mede dankzij de beschermde zeebodem voor de kust van Cabo Tiñoso, een van de beste duikgebieden van Murcia. Tegelijkertijd ligt de historische havenstad Cartagena op korte afstand, waardoor cultuur, winkels en gastronomie altijd binnen bereik zijn. La Azohía biedt daarmee een zeldzame combinatie van natuur, stilte en bereikbaarheid.

Wat veel mensen niet weten, is dat La Azohía een van de helderste wateren van de hele Middellandse Zee heeft. Door de ligging buiten grote vaar- en industriegebieden blijft het water uitzonderlijk schoon, wat het dorp geliefd maakt bij duikers en biologen. Onder water vind je posidonia-weiden, rotsformaties en een rijke biodiversiteit die elders langs de Spaanse kust steeds zeldzamer wordt.

Daarnaast heeft La Azohía een bijna tijdloos karakter in de wintermaanden. Terwijl veel kustplaatsen dan stilvallen, blijft het leven hier rustig doorgaan. Lokale bewoners blijven het dorp bevolken, cafés blijven open en de zee behoudt haar diepe blauwe kleur. In de vroege ochtend, wanneer de zon opkomt boven het water en vissers hun netten controleren, voel je hoe puur en onaangetast het leven hier nog is. La Azohía is geen bestemming voor iedereen, maar precies daarom zo bijzonder.

AFSTANDEN: 

  • Strand: 50 meter

  • Centrum La Azohía: 300 meter

  • Restaurants en cafés: 200 tot 500 meter

  • Supermarkt: ca. 5 km

  • Cartagena centrum: ca. 25 km

  • Ziekenhuis Cartagena: ca. 28 km

  • Golfbanen (Mazarrón / La Manga): ca. 30 tot 40 km

  • Luchthaven Murcia International: ca. 45 km

  • Luchthaven Alicante: ca. 115 km

Onze visie binnen Casas Kimpencio;

  • Bij Casas Kimpencio ben je niet zomaar iemand, wij willen een persoonlijke relatie aangaan.
  • We behandelen jullie zoals we zelf behandeld willen worden, met de nodige betrokkenheid, precisie en details.
  • Geen enkele vraag is ons te veel, we staan elke dag telefonisch voor jou klaar.
  • Wij hebben de gedachte dat een huis kopen niet zomaar een huis kopen is, maar een nieuwe thuis kopen.
  • Iedereen dient een eigen verhaal te krijgen, met verschillende hoofdstukken. 
  • Wij willen helpen aan het Spaanse hoofdstuk, een hoofdstuk van een nieuwe thuis, vakantiewoning of een investering.
  • En dit doen we met open, duidelijke communicatie  en daarmee geraken we er altijd, zo vinden we jouw ideale woning gebaseerd op meerdere gesprekken.
  • We helpen vanaf het begin tot aan de sleuteloverdracht, en ver daarbuiten. 

Wij vinden deze woning bijzonder omdat;

  • Zee op wandelafstand (50 m) – wakker worden met zeelucht, spontane strandwandelingen en elke dag het gevoel van vakantie aan huis

  • Solarium met zeezicht van 24 m² – een privéplek waar zon, rust en uitzicht samenkomen, ideaal voor lange zomeravonden

  • Authentieke kustlocatie in La Azohía – geen massatoerisme, wel een puur vissersdorp met rust, natuur en karakter

  • Woning verdeeld over 3 verdiepingen – slimme indeling met duidelijke scheiding tussen leefruimte, slaapkamers en buitenleven

  • Twee slaapkamers met eigen badkamer – comfort en privacy voor bewoners én gasten, ideaal voor verhuur of bezoek

  • Privétuin op de begane vloer – mogelijkheid tot privézwembad of eigen parkeerplaats achter automatische poort

  • Hoofdslaapkamer met privébalkon – elke ochtend licht, lucht en zicht op de omgeving vanuit je eigen kamer

  • Zeer lichtrijke leefruimte – compacte maar efficiënte woonkamer met directe connectie naar buiten

  • Pré-installaties voor keuken en airconditioning – vrijheid om alles af te werken naar eigen smaak en budget

  • Unieke combinatie van zee, natuur en rust – wonen tussen strand en natuurpark, met Cartagena binnen bereik

GROEI EN TRENDS IN AZOHIA: 

Jaar  Prijs per m² Jaarlijkse stijging 
2023 €1.695 -
2024 €1.754 +3.5%
2025 €1.836 +4.7%


Kenmerken:

Aantal slaapkamers 2
Aantal badkamers 3
Privaat zwembad Optioneel
Oppervlakte perceel rond het huis 19 m²
Bebouwde oppervlakte 79 m²
Bewoonbare oppervlakte 56 m²
Afstand naar het strand 0.05 km
Terras oppervlakte 22 m²
Private Tuin Ja
Poort Ja
Nabij Scholen Ja
Terras Ja
Fietsafstand van het strand Ja
Douche schermen Ja
Solarium Ja
Solarium oppervlakte in m2 20-30 m²
Pré installatie airco Ja
Elektrische rolluiken Ja
Led verlichting buiten Ja
Led verlichting binnen Ja
Zeezicht Ja
privé parkeerplaats Ja
Telefoon Data aansluiting Ja
Videofonie Ja
Inbouwkasten Ja
Elektrische poort Ja
Badkamer spiegels Ja
Pre installatie keuken Ja
Nabij kinder speeltuin Ja
Uitzicht tuin Ja
Golfresort afstand in km 30+ km
Ziekenhuis afstand in km 30+ km
Nabij Commercieel centrum Ja
Luchthaven Alicante afstand 50+ km
Luchthaven Murcia afstand 40-50 km
Ontspanning ruimte buiten Ja
Hangend toilet Ja
Hangend badkamer meubel Ja
Gepantserde toegangsdeur met veiligheidsslot Ja
Hoogwaardige afwerking Ja
Aerothermische boiler Ja
Energielabel B
Afgewerkte badkamer Ja

Meer info?


Beschikbare documenten

gelijkvloers en eerste verdieping.jpeg

document-gelijkvloers en eerste verdieping.jpeg

download
solarium.jpeg

document-solarium.jpeg

download

Ontdek wat we nog meer voor jou in petto hebben!

Nieuwbouwappartement in Avileses
Nieuwbouwappartement in Avileses

Project: AVILESES-VIRGEN DEL CARMEN appartementen

Stad: Avileses

1   1     44 m²  

Instapklaar 2-slpk appartement in hartje Avileses
Instapklaar 2-slpk appartement in hartje Avileses

Project: AVILESES-VIRGEN DEL CARMEN appartementen

Stad: Avileses

2   1     52 m²  

Appartement met terras in residentie Larrosa 43
Appartement met terras in residentie Larrosa 43

Project: Residentie Larrosa 43: betaalbaar in San Fulgencio

Stad: San Fulgencio

2   1   70 m²  

Gelijkvloers appartement in residentie Vistalago
Gelijkvloers appartement in residentie Vistalago

Project: Residentie Vistalago in San Miguel de Salinas

Stad: Wonen in San Miguel: rust en zon aan zee

1   1   52 m²   3 m²  

Appartement op tussenverdiep - Spa Valley II
Appartement op tussenverdiep - Spa Valley II

Project: Residentie Spa Valley - Fase 2

Stad: Archena

1   1   42 m²   12 m²  

Appartement met terras in residentie Vistalago
Appartement met terras in residentie Vistalago

Project: Residentie Vistalago in San Miguel de Salinas

Stad: Wonen in San Miguel: rust en zon aan zee

1   1   52 m²   3 m²  

Gelijkvloers appartement in residentie Talan 2
Gelijkvloers appartement in residentie Talan 2

Project: Residentie Talan 2 in Torrevieja

Stad: Torrevieja-Alicante

0   1   44 m²   4 m²  

Studio met terras in res. Horizon Suites
Studio met terras in res. Horizon Suites

Project: Residentie Horizon Suites in San Pedro del Pinatar

Stad: San Pedro del Pinatar - Mar-Menor

1     44 m²   4 m²  

Penthouse met terras in residentie Vistalago
Penthouse met terras in residentie Vistalago

Project: Residentie Vistalago in San Miguel de Salinas

Stad: Wonen in San Miguel: rust en zon aan zee

1   1   51 m²   4 m²  

3-slaapkamerappartement in hartje Avileses
3-slaapkamerappartement in hartje Avileses

Project: AVILESES-VIRGEN DEL CARMEN appartementen

Stad: Avileses

3   2     96 m²   3 m²  

EDIFICIO SAN ISODRO 19 - 3 slaapkamers-appartement
EDIFICIO SAN ISODRO 19 - 3 slaapkamers-appartement

Project: EDIFICIO SAN ISODRO 19 - 2 moderne appartementen

Stad: Jacarilla

3   1   80 m²   6 m²  

Nieuwbouwappartementen in Jacarilla
Nieuwbouwappartementen in Jacarilla

Project: Moderne appartementen te koop in Jacarilla

Stad: Jacarilla

2   2     70 m²   7 m²  

Lees mee met onze nieuwste blogs!

Ontdek Comunidad Valenciana: 3 provincies, 1 droom
Ontdek Comunidad Valenciana: 3 provincies, 1 droom

Van Castellón tot Alicante: in de Comunidad Valenciana koop je met zekerheid en zon. Casas Kimpencio begeleidt je stap voor stap, transparant en persoonlijk.

...

Martine

Casas Kimpencio met trots in de schijnwerpers!
Casas Kimpencio met trots in de schijnwerpers!

Ontdek waarom Casas Kimpencio werd uitgenodigd door Ondernemerslounge en hoe hun persoonlijke aanpak het verschil maakt in Spaans vastgoed.


...

Martine

De 10 strandpersoonlijkheden in Spanje
De 10 strandpersoonlijkheden in Spanje

Tijd voor zon, zee en Spaanse flair 

Het is weer summertime of zoals ze hier zeggen de tiempo de verano! De zon schijnt, de zee roept en het strand wordt opnieuw het toneel waar iedereen zijn eigen zomerse kant laat zien. Van de eerste rijden vol parasols tot de zonnekloppers met rode ...

Martine

square-box