Prachtige losstaande villa op groot perceel
Project: Residentie Numa 3 in Ciudad Quesada
Moderne woningen met ruime tuin en groot zwembad
Korte beschrijving:
VILLA - 3 SLAAPKAMERS MET 3 BADKAMERS - ZWEMBAD - PERCEEL VAN MINIMUM 557M²
Deze woning is gelegen in Ciudad Quesada en is voorzien van maar liefst 3 slaapkamers met elk een eigen badkamer. De woning is gebouwd met alle luxe en heel wat natuurlijk lichtinval. Een grote troef aan deze woning is de ruime lichtkoepel boven de woonkamer. De luxe badkamers geven jou heel wat comfort!
De woning heeft een perceel van minimum 557m², waardoor er ruimte is voor een groot zwembad, heel wat ligweide en tal van terrassen om te ontspannen. Elke woning heeft een ruime oprijlaan met een carport voor 2 wagens. De tuin wordt volledig omheind zodat jouw privacy voorop staat!
U bent nog niet aangemeld!
 Geef ons uw mening...
Vanaf: €1.050.000
Ref: KIMP-PROP-4211
Uitgebreide beschrijving:
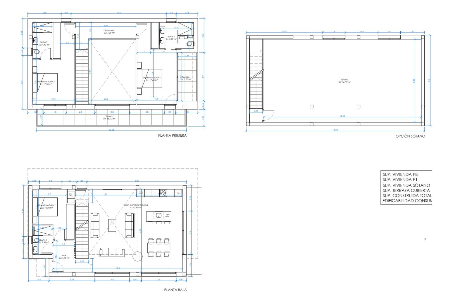
Deze woning is verdeeld over 2 verdiepingen en is voorzien van 3 slaapkamers met 3 badkamers. Optioneel is er een mogelijkheid om een onderbouw te bouwen, tegen een meerprijs. Op de begane vloer is de ruime leefruimte met open keuken gelegen. De keuken is ge-préinstalleerd, en voorzien van de nodige inbouwkasten én spoelbakken. Vanuit de woonkamer kijk je via grote schuiframen uit op de privétuin. Er zijn 4 schuiframen gelegen in een ruimte van 57m², waardoor natuurlijk licht in overvloed binnen straalt.
De eerste slaapkamer is gelegen op de gelijkvloerse verdieping. Deze heeft een badkamer-ensuite. Alle badkamers komen volledig uitgerust, met een douche, toilet, wastafel met bijpassend meubel. Een extra luxe; de badkamers hebben vloerverwarming. Hierdoor kan je jou elke ochtend op aangename temperaturen klaarmaken. Elke slaapkamer is voorzien van inbouwkasten met hangrekken, legplanken en lades.
Op de eerste verdieping zijn de overige 2 slaapkamers gelegen met elk een eigen badkamer. Beide slaapkamers hebben toegang tot het balkon van 15m² via schuiframen. 1 slaapkamer heeft ook nog een privébalkon van 6m². Er is een grote lichtkoepel te vinden die natuurlijk licht binnen laat over de woonkamer. De 2 slaapkamers worden gescheiden door een ruime hal.
Optioneel is het mogelijk om tegen een meerprijs een onderbouw te bouwen van maar liefst 84,5m². Hier kan je een vierde slaapkamer met vierde badkamer maken of heel wat opbergruimte maken. Deze onderbouw kan ingericht worden volledig naar jouw wensen!
Concreet in deze villa:
- 3 slaapkamers
- 3 badkamers
- Uitgeruste badkamer
- Vloerverwarming in badkamers
- Pré-installatie keuken
- Lichtkoepel over de woonkamer
- Heel veel lichtinval in de woonkamer dankzij de vele schuiframen
- Balkon van 15m²
- Onderbouw van 84,5m² tegen een meerprijs
Buiten is er heel wat buitenruimte voorzien. De woningen zijn gelegen op een perceel van minimum 557m² en maximum 618m². De tuin is volledig omheind zodat jouw privacy en rust voorop staat. Er is een ruim zwembad te vinden van 9 meter op 3,5 meter. Het zwembad wordt afgewerkt in blauwe porseleinen tegels in het kleur diepblauw. Bij het zwembad is er een ligweide te vinden én een buitendouche.
Aansluitend aan de woning zijn er ook tal van terrassen te vinden om optimaal te ontspannen. Er is een oprijlaan te vinden die plaats biedt voor 2 wagens. De wagens worden geparkeerd onder een pergola, zodat de auto's beschermd zijn tegen de felle zonnestralen.
Technische kenmerken:
- Porseleinen tegels doorheen de gehele woning
- Pré-installatie zonnepanelen op het plat dak
- Laadpunt voor elektrische wagen
- Elektrische rolluiken in slaapkamers + onderbouw
- Dubbele beglazing
- Warmtepomp voor airconditioning
- Installatie airconditioning
- Aerothermisch systeem voor sanitair warm water
Deze woning is gelegen in Ciudad Quesada. Ciudad Quesada, gelegen op een heuvel nabij de zoutmeren van Torrevieja en La Mata, is een moderne en levendige gemeenschap die bekendstaat om zijn veelzijdigheid en comfort. De ligging biedt niet alleen een prachtig uitzicht over de omliggende natuur en de Middellandse Zee in de verte, maar zorgt ook voor een aangenaam klimaat met verkoelende briesjes in de zomer. Op korte afstand vind je de uitgestrekte stranden van Guardamar del Segura, waar je kunt genieten van fijne zandstranden en helder water, terwijl je in het dorp zelf profiteert van alle voorzieningen binnen handbereik.
Het centrum van Ciudad Quesada is levendig en veelzijdig, met een breed aanbod aan restaurants, cafés, winkels en recreatieve mogelijkheden. Van internationale keukens tot lokale tapasbars: er is altijd iets nieuws te ontdekken. De gemeenschap heeft daarnaast een sterke sociale dynamiek, met veel activiteiten en evenementen die bewoners bij elkaar brengen. Voor golfliefhebbers ligt er direct naast het dorp de bekende golfbaan La Marquesa, die een groene oase vormt midden in het mediterrane landschap.
De omgeving is ideaal voor buitenactiviteiten. Dankzij de nabijheid van natuurgebieden en wandelroutes kun je hier het hele jaar door wandelen, fietsen of vogels spotten bij de zoutmeren. Ook sportfaciliteiten zoals tennisbanen, fitnessclubs en zwembaden zijn ruim aanwezig, wat het actieve leven in Ciudad Quesada extra aantrekkelijk maakt. En wie de grotere stad wil opzoeken, rijdt in minder dan een half uur naar Alicante of Murcia, beide met internationale vliegvelden en een breed cultureel aanbod.
Ciudad Quesada biedt een bijzondere balans tussen rust, natuur en moderne voorzieningen. Het is een plek waar je kunt genieten van een ontspannen mediterraan leven, met de zee dichtbij, het achterland om de hoek en een hechte, gastvrije gemeenschap die je meteen een thuisgevoel geeft.
Wat maar weinig mensen weten, is dat Ciudad Quesada ooit begon als een visionair project van één familie. In de jaren zeventig was dit nog een kaal stuk land, maar José Quesada droomde ervan om hier een zelfstandige gemeenschap te creëren. Tegenwoordig is het dorp uitgegroeid tot een van de meest herkenbare residentiële wijken van de Costa Blanca, maar dat oorspronkelijke idee van samenhang is altijd bewaard gebleven. Hierdoor vind je er nog steeds kleine, lokale initiatieven – zoals buurtmarkten, muziekavonden en culturele clubs – die het gevoel geven dat je deel uitmaakt van iets met een eigen geschiedenis en identiteit.
Daarnaast heeft Ciudad Quesada een onverwacht groen geheim: de Parque Recorral. Dit voormalige landbouwgebied is omgetoverd tot een natuurpark waar pijnbomen, wandelpaden en picknickplaatsen de sfeer bepalen. Voor natuurliefhebbers en rustzoekers is dit een van de weinige plekken in de directe omgeving waar je even weg bent van de bebouwing en volledig wordt omringd door natuur. Op heldere dagen hoor je er niets anders dan het ruisen van de wind door de bomen en het gezang van vogels, terwijl je vanaf sommige punten zelfs uitzicht hebt tot aan de Middellandse Zee. Het is een verborgen schat die veel bezoekers van Ciudad Quesada nooit ontdekken, maar die voor bewoners een onbetaalbare toevoeging vormt aan het dagelijks leven.
Onze visie binnen Casas Kimpencio;
- Bij Casas Kimpencio ben je niet zomaar iemand, wij willen een persoonlijke relatie aangaan.
- We behandelen jullie zoals we zelf behandeld willen worden, met de nodige betrokkenheid, precisie en details.
- Geen enkele vraag is ons te veel, we staan elke dag telefonisch voor jou klaar.
- Wij hebben de gedachte dat een huis kopen niet zomaar een huis kopen is, maar een nieuwe thuis kopen.
- Iedereen dient een eigen verhaal te krijgen, met verschillende hoofdstukken.
- Wij willen helpen aan het Spaanse hoofdstuk, een hoofdstuk van een nieuwe thuis, vakantiewoning of een investering.
- En dit doen we met open, duidelijke communicatie en daarmee geraken we er altijd, zo vinden we jouw ideale woning gebaseerd op meerdere gesprekken.
- We helpen vanaf het begin tot aan de sleuteloverdracht, en ver daarbuiten.
Wij vinden deze woning bijzonder aantrekkelijk:
De villa biedt een overvloed aan licht dankzij de grote schuiframen en een lichtkoepel boven de woonkamer.
-
De mogelijkheid om een onderbouw te bouwen van 84,5m² geeft extra flexibiliteit voor een extra slaapkamer, badkamer of opbergruimte.
-
Het ruime perceel met volledig omheinde tuin, terrassen en privézwembad biedt optimale privacy en ontspanning.
-
De ligging op een heuvel in Ciudad Quesada zorgt voor een panoramisch uitzicht over de zoutmeren en de Middellandse Zee.
-
Moderne voorzieningen zoals elektrische rolluiken, zonnepanelen, laadpunt voor elektrische wagens en warmtepomp maken het wonen comfortabel en toekomstgericht.
-
De combinatie van rust, natuur en nabijheid van stranden, golfbanen en het levendige dorpscentrum maakt deze locatie uitzonderlijk veelzijdig.
-
De rijke geschiedenis en unieke lokale initiatieven van Ciudad Quesada geven het gevoel deel uit te maken van een hechte en gastvrije gemeenschap.
Groei en trends voor gelijkaardige villa's in Ciudad Quesada:
Jaar | Prijs per m² | Jaarlijkse stijging |
2023 | €2.100 | - |
2024 | €2.250 | +7.1% |
2025 | €2.400 | +6.7% |
Kenmerken:
Aantal slaapkamers | 3 | |
Aantal badkamers | 3 | |
Privaat zwembad | Ja | |
Oppervlakte perceel rond het huis | 612 m² | |
Bebouwde oppervlakte | 258 m² | |
Bewoonbare oppervlakte | 154 m² | |
Afstand naar het strand | 7 km | |
Terras oppervlakte | 20 m² | |
Private Tuin | Ja | |
Poort | Ja | |
Nabij Scholen | Ja | |
Nabij Commercieel centrum | Ja | |
Terras | Ja | |
Fietsafstand van het strand | Ja | |
Vloerverwarming badkamer | Ja | |
Douche schermen | Ja | |
Volledige airco installatie | Ja | |
Elektrische rolluiken | Ja | |
Led verlichting buiten | Ja | |
Led verlichting binnen | Ja | |
privé parkeerplaats | Ja | |
Telefoon Data aansluiting | Ja | |
Videofonie | Ja | |
Inbouwkasten | Ja | |
Aero thermische warmtepomp | Ja | |
Pre installatie elektrisch laadpunt | Ja | |
Badkamer spiegels | Ja | |
Pre installatie keuken | Ja | |
Badkamer spiegels met verlichting | Ja | |
Nabij kinder speeltuin | Ja | |
Kelder | Optioneel | |
Uitzicht tuin | Ja | |
Golfresort afstand in km | 2-5 km | |
Ziekenhuis afstand in km | 10-20 km | |
Luchthaven Alicante afstand | 50+ km | |
Luchthaven Murcia afstand | 50+ km | |
Ontspanning ruimte buiten | Ja | |
Hangend toilet | Ja | |
Hangend badkamer meubel | Ja | |
Pré installatie zonnepanelen | Ja | |
Uitzicht op het zwembad | Ja | |
Cameradeur met intercom terminal | Ja | |
Badkamer meubel en spiegels | Ja | |
Gepantserde toegangsdeur met veiligheidsslot | Ja | |
Bioklimatologische pergola | Ja | |
Grote ramen van vloer tot plafond | Ja | |
Hoogwaardige afwerking | Ja | |
Goede prijs-kwaliteit verhouding | Ja | |
Aerothermische boiler | Ja | |
Luxe nieuwbouw | Ja | |
Automatische irrigatie in de tuin. | Ja | |
Extra verdieping ondergronds (basement) | Optioneel | |
Pergola | Ja | |
Energielabel | B | |
Afgewerkte badkamer | Ja |
Meer info?
Beschikbare documenten
Ontdek wat we nog meer voor jou in petto hebben!

EDIFICIO SAN ISODRO 19 - 2 slaapkamers-appartement
Project: EDIFICIO SAN ISODRO 19 - 2 moderne appartementen
Stad: Jacarilla
2   1   63 m²    

Appartement vierde verdieping in Mirador Relleu
Project: MIRADOR DE RELLEU
Stad: Relleu
2   2     163.95 m²   29.59 m²  

Virazón-San Juan de los Terreros
Project: Virazón-San Juan de los Terreros
Stad: San Juan de los Terreros
2   1     72 m²   10 m²  

1-slaapkamer-appartement in residentie Halar
Project: Residentie Halar in Alicante
Stad: Alicante
1   1   49 m²   4 m²  

Penthouse (studio) in Torrevieja nabij zee
Project: Torrevieja: Nieuwbouw op 200m van zee, unieke kans
Stad: Torrevieja-Alicante
0   1   54 m²   12 m²  

Appartementen in het centrum van San Miguel
Project: SALINAS VIEWS: appartementen in het centrum
Stad: San Miguel de salinas
3   2     102 m²   7 m²  

Loftstijl appartementen"Postiget" in Alicante
Project: Loftstijl appartementen"Postiget" in Alicante
Stad: Alicante
1   1     49 m²   2 m²  

Modern 1-slaapkamerappartement in Santa Pola
Project: Investeren in Sea Essence - Luxe appartementen
Stad: Santa Pola
1   1     46 m²   3 m²  

Studio in Guardamar de Segura
Project: 1-slaapkamer appartementen in Guardamar del Segura
Stad: Guardamar del segura- Alicante
1   1   53 m²  

Puerta de Oriente-Vera Playa
Project: Puerta de Oriente-Vera Playa
Stad: Vera- regio Costa Almeria Andalusië
2   2     71 m²   45 m²  

Boutique project met slechts 7 unieke woningen
Project: Moderne appartementen nabij Torrevieja & strand
Stad: Pilar de la Horadada - Alicante
3   2     96 m²   45 m²  

Penthouse met 2 slaapkamers in Vera-Almeria
Project: Residentie Puerta de Oriente
Stad: Vera- regio Costa Almeria Andalusië
2   2     71 m²   45 m²  
Lees mee met onze nieuwste blogs!

Waarom kopen in Spanje, nu ook mooi weer in België
Waarom het fantastische idee om een huis te kopen in Spanje, zelfs nu het weer in België zo schitterend is! We weten uit ervaring dat jullie allemaam antwoorden :we kunnen niet wachten om te genieten van het beste van beide werelden - het prachtige klimaat van Spanje en de...
Martine