laatste kans

Villa met onderbouw en solarium in Ciudad Quesada

 Project: Residentie villa Laura in Ciudad Quesada

Gigantisch perceel voor deze luxe villa in Costa Blanca Zuid

Korte beschrijving:

LUXE VILLA – 3 SLAAPKAMERS – ONDERBOUW & SOLARIUM – CIUDAD QUESADA

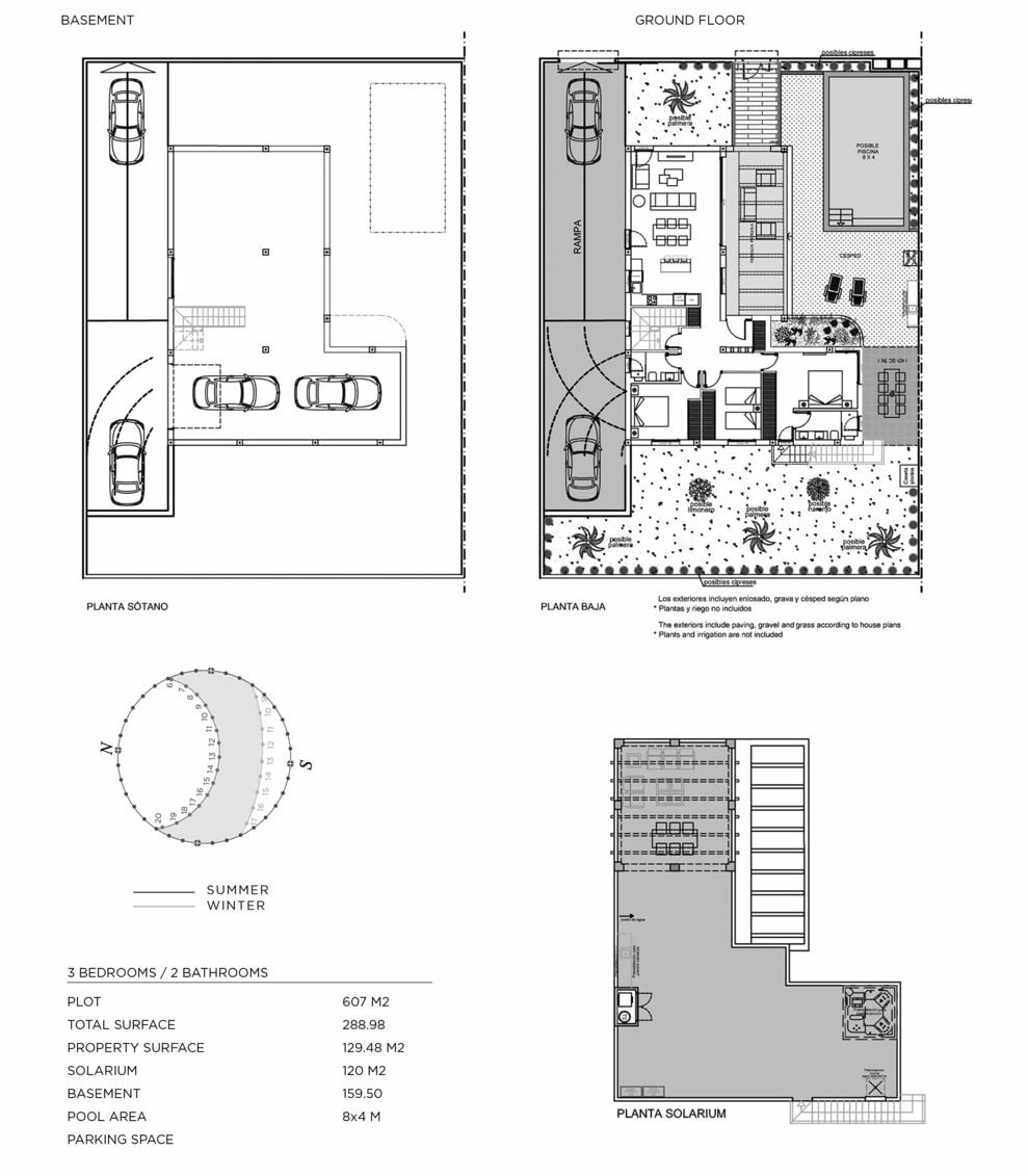
Deze vrijstaande villa is verdeeld over drie niveaus en combineert ruimte, karakter en comfort op een perceel van 607 m². Op de begane grond bevindt zich de leefverdieping met een open woonkamer en keuken met kookeiland, volledig gericht op de tuin dankzij grote schuiframen. De woning beschikt over 3 slaapkamers en 2 badkamers, waarbij de hoofdslaapkamer een badkamer-ensuite heeft en directe toegang biedt tot het terras en de tuin. Alle slaapkamers zijn voorzien van inbouwkasten en genieten van veel licht en buitencontact.

De tuin vormt een absolute meerwaarde: meerdere terrassen, een privézwembad van 8 x 4 meter en een uitzonderlijke Moorse veranda die fungeert als het warme, architecturale hart van de woning. Deze veranda verbindt binnen en buiten op een unieke manier en geeft de woning een uitgesproken karakter. Bovenop de woning bevindt zich een ruim solarium van ca. 120 m² met buitenkeuken, ideaal om de hele dag door te genieten van zon, rust en uitzicht.

Onder de woning ligt een volwaardige onderbouw van ca. 150–160 m² in ruwe staat, perfect als garage, opslagruimte of toekomstige uitbreiding. Er is een ruime oprijlaan met plaats voor meerdere wagens. Deze villa is gelegen in Ciudad Quesada, een gevestigde en populaire woonomgeving nabij golf, natuur, voorzieningen en de stranden van Guardamar, en biedt een zeldzame combinatie van ruimte, privacy en mediterrane levenskwaliteit.

U bent nog niet aangemeld!

Na invullen van onderstaande gegevens wordt u aangemeld, indien er nog geen account bestaat kan deze aangemaakt worden!



 Geef ons uw mening...

 Momenteel nog geen reviews voor dit pand.

Uitgebreide beschrijving:

Deze villa is verdeeld over 3 verdiepingen en voorzien van 3 slaapkamers met 2 badkamers. De onderste verdieping is de onderbouw. Deze onderbouw wordt in ruwe toestand geleverd, ideaal voor wagens te parkeren. Aan de onderbouw is er een ruime oprijlaan verbonden en een parkeerplaats voorzien voor 2 wagens. De onderbouw heeft een oppervlakte van 160m², dus meer dan voldoende ruimte om spullen in op te bergen. 

Een verdieping hoger, is de begane vloer gelegen. Deze is voorzien van een ruime woonkamer met open keuken. De woonkamer kijkt via gigantische schuiframen uit op de tuin, met zwembad. De keuken is voorzien van een kookeiland, zo is de kok altijd betrokken bij het familieleven in de woonkamer. 

Verder zijn er 3 slaapkamers met 2 badkamers gelegen op de gelijkvloerse verdieping. De hoofdslaapkamer heeft een badkamer-ensuite én rechtstreekse toegang tot de tuin met aanpalend een terras. De overige 2 slaapkamers delen een badkamer en hebben beide ook toegang tot de groene tuin. 

Elke slaapkamer is voorzien van inbouwkasten. Beide badkamers zijn voorzien van een wastafel met bijpassend meubel, toilet, douche, spiegel, ... Nog een verdieping hoger is het solarium gelegen. 

DUS CONCREET: 

  • 3 slaapkamers
  • 2 badkamers
  • Keuken met toestellen 
  • Afgewerkte badkamers
  • Ruime oprijlaan
  • Onderbouw van 150m²
  • Solarium 

Deze woning is gelegen op een perceel van 607m². Op de gelijkvloerse verdieping, is er een ruime, groene tuin te vinden met meerdere terrassen aanpalend aan de woning. Dankzij deze nabije ligging van de terrassen, worden jouw leefruimtes verlengd met de buitenruimte. In de tuin is er een zwembad gelegen van 8 meter op 4 meter. 

Het hoogtepunt van deze woning is de veranda in Moorse stijl, aanpalend aan de woonkamer. Deze ruimte vormt het hart van de woning. 

Een verdieping hoger, is het solarium gelegen van 120m². Op het solarium is er een buitenkeuken voorzien, zo kan je heerlijk genieten van de zon, op elk moment van de dag. 

Deze woning is gelegen in Ciudad Quesada. Ciudad Quesada, gelegen in de gemeente Rojales aan de zuidelijke Costa Blanca, is een gevestigde en populaire woonomgeving die bekendstaat om haar comfort, openheid en mediterrane levensstijl. De urbanisatie ligt licht verhoogd, waardoor veel plekken een prachtig uitzicht bieden over de omliggende vallei, de citrusvelden en de zoutmeren van La Mata en Torrevieja. De ligging is ideaal: rustig en groen, maar tegelijk dicht bij de kust en alle dagelijkse voorzieningen.

Het hart van Ciudad Quesada is levendig en compleet. Je vindt er een brede keuze aan restaurants, cafés, winkels, supermarkten en medische voorzieningen, allemaal vlot bereikbaar zonder afhankelijk te zijn van grote steden. De sfeer is internationaal, maar tegelijk sterk verankerd in de regio, met een ontspannen levensritme dat het hele jaar door voelbaar is. Dankzij de goede infrastructuur en de aangename schaalgrootte voelt Ciudad Quesada overzichtelijk en toegankelijk aan.

Een van de grote troeven van de omgeving is de aanwezigheid van La Marquesa Golf, een 18-holes golfbaan die zich door het landschap slingert en zorgt voor groene vergezichten en een open karakter. Daarnaast ligt het natuurpark van La Mata vlakbij, met wandel- en fietspaden langs de bekende roze zoutmeren waar flamingo’s en andere vogelsoorten leven. Ook de stranden van Guardamar del Segura zijn snel bereikbaar en bieden kilometers fijn zand, duinen en pijnboombossen.

Wat veel mensen niet weten, is dat Ciudad Quesada in de jaren zeventig werd ontwikkeld als een visionair project, met het idee om een plaats te creëren waar het hele jaar door comfortabel geleefd kon worden. Die visie zie je vandaag nog steeds terug in de brede lanen, het groen en de manier waarop wonen, ontspanning en voorzieningen op elkaar zijn afgestemd. Het is een van de weinige urbanisaties die echt als een zelfstandige gemeenschap functioneert.

Daarnaast kent Ciudad Quesada een sterk gemeenschapsgevoel. Door het jaar heen worden er markten, muziekavonden, sportactiviteiten en lokale feesten georganiseerd die bewoners samenbrengen. In de vroege ochtend zie je mensen wandelen richting de zoutmeren, terwijl ’s avonds de terrassen zich vullen en de lucht afkoelt. Het is precies die balans tussen rust, levendigheid en natuur die Ciudad Quesada zo geliefd maakt.

AFSTANDEN: 

  • Stranden Guardamar del Segura: ca. 8 km

  • Zoutmeren La Mata en Torrevieja: ca. 3 km

  • Centrum Torrevieja: ca. 7 km

  • Golfbaan La Marquesa: ca. 1 km

  • Winkelcentra en supermarkten: ca. 1–2 km

  • Ziekenhuis Torrevieja: ca. 6 km

  • Luchthaven Alicante: ca. 38 km

  • Luchthaven Murcia Corvera: ca. 55 km

Onze visie binnen Casas Kimpencio;

  • Bij Casas Kimpencio ben je niet zomaar iemand, wij willen een persoonlijke relatie aangaan.
  • We behandelen jullie zoals we zelf behandeld willen worden, met de nodige betrokkenheid, precisie en details.
  • Geen enkele vraag is ons te veel, we staan elke dag telefonisch voor jou klaar.
  • Wij hebben de gedachte dat een huis kopen niet zomaar een huis kopen is, maar een nieuwe thuis kopen.
  • Iedereen dient een eigen verhaal te krijgen, met verschillende hoofdstukken. 
  • Wij willen helpen aan het Spaanse hoofdstuk, een hoofdstuk van een nieuwe thuis, vakantiewoning of een investering.
  • En dit doen we met open, duidelijke communicatie  en daarmee geraken we er altijd, zo vinden we jouw ideale woning gebaseerd op meerdere gesprekken.
  • We helpen vanaf het begin tot aan de sleuteloverdracht, en ver daarbuiten. 

Wij vinden deze woning bijzonder omdat;

  • Unieke Moorse veranda als hart van de woning – een zeldzaam architecturaal element dat binnen en buiten naadloos verbindt en zorgt voor een warme, karaktervolle sfeer die je meteen voelt zodra je de leefruimte betreedt

  • Volwaardige onderbouw van ca. 150–160 m² – uitzonderlijk veel ruimte die perfect kan dienen als garage, opslag, hobbyruimte of toekomstige uitbreiding, iets wat je zelden vindt in deze regio

  • Grote raampartijen met directe tuinverbinding – de woonkamer en slaapkamers lopen visueel én functioneel door in de tuin, waardoor licht, ruimte en buitenleven centraal staan

  • Privézwembad van 8 x 4 meter in een groene setting – geen compacte stadstuin, maar een echte buitenomgeving waar rust en privacy primeren

  • Solarium van ca. 120 m² met buitenkeuken – een volwaardige extra leeflaag waar je de hele dag door van zon, uitzicht en gezelligheid geniet

  • Ruim perceel van 607 m² – meer dan voldoende ruimte rondom de woning, met meerdere terrassen die elk hun eigen beleving creëren

  • Hoofdslaapkamer met directe toegang tot tuin en terras – wakker worden en meteen buiten stappen, een echte luxebeleving in het dagelijkse leven

  • Onderbouw + oprijlaan met meerdere parkeeropties – praktisch én comfortabel, met plaats voor meerdere wagens op eigen terrein

  • Indeling over drie niveaus met duidelijke zones – wonen, slapen en ontspannen zijn logisch gescheiden, wat zorgt voor rust en privacy

  • Gelegen in het gevestigde Ciudad Quesada – een volwassen woonomgeving met alle voorzieningen, golf, natuur en stranden op korte afstand

GROEI EN TRENDS IN CIUDAD QUESADA: 

Jaar  Prijs per m² Jaarlijkse stijging 
2023 €1.966 -
2024 €2.149 +9.3%
2025 €2.383 +10.8%


Kenmerken:

Aantal slaapkamers 3
Aantal badkamers 2
Privaat zwembad Ja
Terras Ja
Bebouwde oppervlakte 288 m²
Oppervlakte perceel rond het huis 607 m²
Bewoonbare oppervlakte 130 m²
Terras oppervlakte 45 m²
Douche schermen Ja
Jaccuzi Optioneel
Afstand naar het strand 7 km
Solarium Ja
Solarium oppervlakte in m2 101-150 m²
Volledige airco installatie Ja
Elektrische rolluiken Ja
Led verlichting buiten Ja
Led verlichting binnen Ja
privé parkeerplaats Ja
Garage Ja
Telefoon Data aansluiting Ja
Videofonie Ja
Inbouwkasten Ja
Poort Ja
Elektrische poort Ja
Badkamer spiegels Ja
Nabij kinder speeltuin Ja
Berging Ja
Kelder Ja
Private Tuin Ja
Uitzicht tuin Ja
Golfresort afstand in km 0-2 km
Ziekenhuis afstand in km 5-10 km
Nabij Commercieel centrum Ja
Luchthaven Alicante afstand 40-50 km
Luchthaven Murcia afstand 50+ km
Ontspanning ruimte buiten Ja
Hangend toilet Ja
Hangend badkamer meubel Ja
Uitzicht op het zwembad Ja
Gepantserde toegangsdeur met veiligheidsslot Ja
Bioklimatologische pergola Ja
Grote ramen van vloer tot plafond Ja
Aerothermische boiler Ja
Luxe nieuwbouw Ja
Pergola Ja
Energielabel B
Afgewerkte badkamer Ja

Meer info?


Beschikbare documenten

grondplan laura.jpeg

document-grondplan laura.jpeg

download

Ontdek wat we nog meer voor jou in petto hebben!

Villa Catherine in Ciudad Quesada
Villa Catherine in Ciudad Quesada

Project: Residentie villa Catherine in Ciudad Quesada

Stad: Ciudad Quesada

4   3     244 m²   32 m²  

Villa Laura in Ciudad Quesada
Villa Laura in Ciudad Quesada

Project: Residentie villa Laura in Ciudad Quesada

Stad: Ciudad Quesada

3   2     288 m²   45 m²  

Bovenste bungalow in residentie Luisa
Bovenste bungalow in residentie Luisa

Project: Residentie Luisa bungalow in Ciudad Quesada

Stad: Ciudad Quesada

3   2   114 m²   10 m²  

Exclusieve nieuwbouwwoningen in Ciudad Quesada
Exclusieve nieuwbouwwoningen in Ciudad Quesada

Project: AREA BEACH V LO MARABU

Stad: Ciudad Quesada

2   2     73 m²    

Prachtige losstaande villa op groot perceel
Prachtige losstaande villa op groot perceel

Project: Residentie Numa 2 in Ciudad Quesada

Stad: Ciudad Quesada

3   3     258 m²   20 m²  

Moderne villa met zwembad in Julieta 5
Moderne villa met zwembad in Julieta 5

Project: Villa's Julieta 5 in Ciudad Quesada

Stad: Ciudad Quesada

4   4     257 m²   126 m²  

Villa Cibeles in Ciudad Quesada
Villa Cibeles in Ciudad Quesada

Project: Villas in Ciudad Quesada met zicht op de bergen

Stad: Ciudad Quesada

4   3     245 m²   95 m²  

Villa Leonor in Ciudad Quesada
Villa Leonor in Ciudad Quesada

Project: Villa's Leonor in Ciudad Quesada

Stad: Ciudad Quesada

3   2     140 m²   68 m²  

Moderne GIRALDA Villa in Ciudad Quesada
Moderne GIRALDA Villa in Ciudad Quesada

Project: GIRALDA villas in Ciudad Quesada

Stad: Ciudad Quesada

3   2     214 m²   93 m²  

Prachtige losstaande villa op groot perceel
Prachtige losstaande villa op groot perceel

Project: Residentie Numa 3 in Ciudad Quesada

Stad: Ciudad Quesada

3   3     258 m²   20 m²  

Gelijkvloers appartement met tuin - Jazmin Garden
Gelijkvloers appartement met tuin - Jazmin Garden

Project: Residentie Adhara appartementen in Ciudad Quesada

Stad: Ciudad Quesada

3   2   162 m²   150 m²  

Velazquez 50 - Key-ready villa in Ciudad Quesada
Velazquez 50 - Key-ready villa in Ciudad Quesada

Project: Residentie Velazques in Ciudad Quesada

Stad: Ciudad Quesada

3   4     280 m²   47 m²  

Lees mee met onze nieuwste blogs!

Zomervakantie in Spanje
Zomervakantie in Spanje

De zomervakantie in Spanje duurt niet zes weken, maar bijna drie maanden. In deze blog ontdek je waarom dat zo is, hoe het Spaanse ritme verschilt van België en Nederland, en wat dat betekent voor gezinnen, reizigers en nieuwkomers. Van lokale feesten tot zomerscholen en familiegewoontes. Casas ...

Martine

Villajoyosa is de verborgen parel van Europa
Villajoyosa is de verborgen parel van Europa

Villajoyosa werd bekroond als verborgen parel van Europa. Een stad vol kleur, verhalen en schoonheid aan de Costa Blanca.

...

Juliette

Indalo-sticker op Spaanse auto's
Indalo-sticker op Spaanse auto's

De Indalo sticker zie je vaak op Spaanse autos, vooral in Almeria. In deze blog ontdek je wat het mensfiguur betekent, waar het vandaan komt en waarom zoveel inwoners het symbool gebruiken voor bescherming en geluk.

...

Martine

square-box