Villa op ruim perceel met zwembad én solarium
Project: Residentie Castrum - ruime villa's in Dolores
Moderne, afgewerkte nieuwbouwwoningen in Dolores
Korte beschrijving:
VILLA – 3 SLAAPKAMERS – 2 BADKAMERS – PRIVÉZWEMBAD – GROTE TUIN – DOLORES
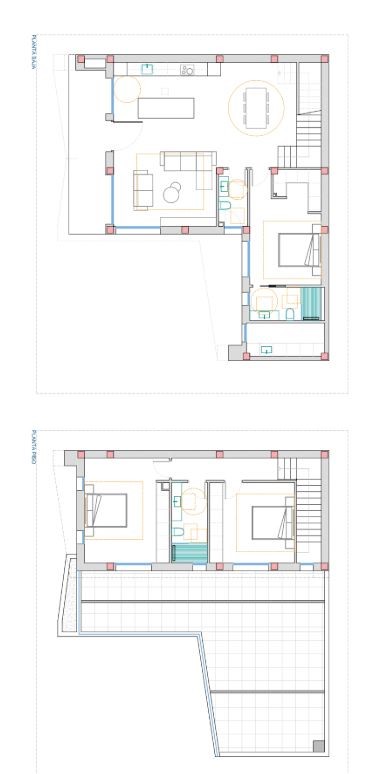
Deze moderne villa in Dolores is verdeeld over twee verdiepingen en biedt drie slaapkamers en twee badkamers. Op de gelijkvloerse verdieping bevindt zich een ruime woonkamer met open keuken en kookeiland, uitkijkend op de tuin met privézwembad. De hoofdslaapkamer heeft een badkamer-ensuite, een inloopdressing en directe toegang tot het terras. Daarnaast is er een praktische bijkeuken en een gastentoilet voorzien. Op de eerste verdieping liggen de overige twee slaapkamers met een gedeelde badkamer en toegang tot een ruim terras van 57 m².
De woning ligt op een perceel van 256 m² en beschikt over een grote tuin met privézwembad, strandzone, waterval en buitendouche, ideaal om te ontspannen onder de Spaanse zon. Verder is er een parkeerplaats op eigen terrein, elektrische rolluiken, dubbele beglazing met argongas en pré-installatie voor airconditioning. Dankzij het aerothermisch systeem met zonnepanelen geniet je van energiezuinig comfort.
Gelegen in Dolores, een authentiek Spaans dorp in het hart van de Vega Baja, ervaar je hier rust, traditie en natuur op slechts 20 minuten van de kust. Met lokale markten, gezellige pleinen, en jaarlijkse feesten die het dorpsleven kleuren, biedt Dolores het echte Spaanse gevoel, omringd door citrusvelden en met alle voorzieningen binnen handbereik. Een ideale keuze voor wie modern wonen wil combineren met landelijke charme en mediterrane rust
U bent nog niet aangemeld!
 Geef ons uw mening...
Vanaf: €465.000
Ref: KIMP-PROP-4233
Uitgebreide beschrijving:
Deze woning is verdeeld over 2 verdiepingen én is voorzien van 3 slaapkamers met 2 badkamers. Allereerst hebben we gelijkvloerse verdieping. Daar is er een ruime leefruimte gelegen met open keuken. De keuken is voorzien van een kookeiland. De kasten én spoelbak zijn al voorzien, de keuken wordt wel exclusief toestellen geleverd.
De woonkamer én keuken kijken via kamerhoge schuiframen uit op de tuin met zwembad. Op de begane vloer is er ook nog een gastentoilet met wastafel gelegen. Verder is er ook nog een bijkeuken voorzien, met verschillende inbouwkasten en een spoelbak.
Op de begane vloer is de eerste slaapkamer met badkamer-ensuite gelegen. Deze slaapkamer is de hoofdslaapkamer en heeft niet alleen rechtstreekse toegang tot de tuin, maar ook een ruime inloopdressing.
De badkamers zijn voorzien van douche, met handige inkeping voor douchegerief, wastafel, hangend toilet, wastafel en spiegel.
Op de eerste verdieping zijn de overige 2 slaapkamers gelegen. Deze 2 slaapkamers delen een badkamer. Allebei de slaapkamers zijn voorzien van ruime inbouwkasten die over de gehele muur lopen. Er zijn hangrekken, legplanken en lades voorzien. Beide slaapkamers hebben toegang via schuiframen tot het ruime terras op de eerste verdieping gelegen.
DUS CONCREET:
- 3 slaapkamers
- 2 badkamers
- Wasruimte
- Open leefruimte met keuken
- Gastentoilet
Bij deze woning is er heel wat buitenruimte voorzien. De woning is gelegen op een perceel van maar liefst 256m². Aansluitend aan de woonkamer is er een aangelegd terras voorzien van 12m². Een verdieping hoger, genieten de 2 slaapkamers van een ruim balkon. Dit balkon heeft een oppervlakte van maar liefst 57m².
Elke woning geniet van een ruime, aangelegde tuin met privézwembad. Het zwembad wordt geleverd inclusief strandzone, trap, waterval én buitendouche. Ideaal om af te koelen na het heerlijk Spaans zonnetje!
Elke woning is voorzien van een parkeerplaats op eigen perceel. Er zijn 2 ingangen; een ingang voor voetgangers en een ingang voor de wagens.
TECHNISCHE KENMERKEN:
- Elektrische rolluiken
- Dubbele beglazing met argongas
- Veiligheidsdeur
- Porseleinen vloeren
- Sanitair warm water via aerothermisch systeem ( boiler van 150 liter )
- 2 zonnepanelen
- Pré-installatie airconditioning
- Mechanische ventilatie in vochtige ruimtes
Deze woning is gelegen in Dolores. Dolores, gelegen in het hart van de Vega Baja del Segura in de provincie Alicante, is een charmant en authentiek Spaans dorp dat rust, traditie en landelijke schoonheid combineert. Omringd door vruchtbare landbouwgronden en citrusboomgaarden ademt de omgeving een sfeer van sereniteit en natuurlijke rijkdom. De brede lanen, traditionele pleinen en karakteristieke witgekalkte huizen geven Dolores een tijdloze uitstraling, terwijl het dagelijks leven zich in een rustig ritme voltrekt – ver weg van de drukte van de kust, maar toch op slechts twintig minuten rijden van de Middellandse Zee.
Het dorp zelf heeft alles wat je nodig hebt voor een comfortabel en ontspannen leven. Er zijn gezellige cafés, restaurants met lokale gerechten, winkels en een wekelijkse markt waar bewoners elkaar ontmoeten en de geur van vers fruit en olijven de straten vult. De kerk van Nuestra Señora de los Dolores, het hart van het dorp, staat symbool voor de sterke gemeenschapszin die hier heerst. De inwoners staan bekend om hun vriendelijkheid en gastvrijheid, iets wat je direct merkt zodra je door de dorpsstraten wandelt of een praatje maakt op een terras.
De omgeving van Dolores is rijk aan natuur en biedt volop mogelijkheden voor wandelen en fietsen langs irrigatiekanalen, sinaasappelvelden en rustige landweggetjes. Dankzij het mediterrane klimaat met meer dan 300 zonnige dagen per jaar is het buitenleven hier een vanzelfsprekend onderdeel van het dagelijks bestaan. Bovendien liggen steden als Elche, Orihuela en Torrevieja op korte afstand, waardoor cultuur, winkels en stranden altijd binnen handbereik zijn.
Wat veel mensen niet weten, is dat Dolores een van de meest traditionele dorpsfeesten van de hele Vega Baja-regio organiseert. Tijdens de Fiestas Patronales in september komt het hele dorp tot leven met paardenoptochten, muziek, dans en culinaire festiviteiten. De Feria del Caballo Español, gewijd aan het beroemde Spaanse paard, trekt bezoekers uit het hele land en laat zien hoe diep de liefde voor traditie en cultuur hier verankerd is.
Daarnaast heeft Dolores een verborgen charme in de stilte van zijn omgeving. In de vroege ochtend, wanneer de zon opkomt boven de citrusvelden en de lucht gevuld is met de geur van bloesem, hangt er een bijna poëtische rust over het landschap. Dit is het Dolores dat je niet in gidsen vindt – een plek waar het leven eenvoudig, puur en oprecht blijft, en waar elke dag begint met de warmte van de zon en de glimlach van de mensen.
AFSTANDEN:
- Stranden van La Marina en Guardamar: 12km
- Luchthaven van Alicante: 30km
- Luchthaven van Murcia: 70km
- Golfbaan: 15km
- Stad Alicante: 40km
Onze visie binnen Casas Kimpencio;
- Bij Casas Kimpencio ben je niet zomaar iemand, wij willen een persoonlijke relatie aangaan.
- We behandelen jullie zoals we zelf behandeld willen worden, met de nodige betrokkenheid, precisie en details.
- Geen enkele vraag is ons te veel, we staan elke dag telefonisch voor jou klaar.
- Wij hebben de gedachte dat een huis kopen niet zomaar een huis kopen is, maar een nieuwe thuis kopen.
- Iedereen dient een eigen verhaal te krijgen, met verschillende hoofdstukken.
- Wij willen helpen aan het Spaanse hoofdstuk, een hoofdstuk van een nieuwe thuis, vakantiewoning of een investering.
- En dit doen we met open, duidelijke communicatie en daarmee geraken we er altijd, zo vinden we jouw ideale woning gebaseerd op meerdere gesprekken.
- We helpen vanaf het begin tot aan de sleuteloverdracht, en ver daarbuiten.
Wij vinden deze woning bijzonder aantrekkelijk:
De ruime leefruimte met open keuken zorgt voor een moderne indeling waar licht en ruimte centraal staan.
-
De keuken is stijlvol afgewerkt met een kookeiland en granieten werkblad, klaar om naar eigen smaak verder in te richten met toestellen.
-
De hoofdslaapkamer beschikt over een badkamer-ensuite en een ruime inloopdressing met praktische indeling.
-
Elke badkamer is volledig afgewerkt met kwalitatieve materialen, waaronder een inloopdouche, wastafel met meubel, hangtoilet en spiegel.
-
De woning beschikt over veel buitenruimte, met een aangelegd terras, ruim balkon én een privézwembad met strandzone, waterval en buitendouche.
-
Er is een praktische bijkeuken voorzien met extra kastruimte en aansluiting voor wasmachine en droogkast.
-
De privéparkeerplaats op eigen perceel zorgt voor extra comfort en gemak.
-
De residentiële ligging in Dolores combineert rust, natuur en traditionele Spaanse charme met de nabijheid van stranden en stedelijke voorzieningen
GROEI EN TRENDS IN DOLORES:
Jaar | Prijs per m² | Jaarlijkse stijging |
2023 | €1.600 | - |
2024 | €1.815 | +13.4% |
2025 | €2.158 | +18.8% |
Kenmerken:
Aantal slaapkamers | 3 | |
Aantal badkamers | 2 | |
Privaat zwembad | Ja | |
Oppervlakte perceel rond het huis | 256 m² | |
Bebouwde oppervlakte | 183 m² | |
Bewoonbare oppervlakte | 120 m² | |
Afstand naar het strand | 12 km | |
Terras oppervlakte | 85 m² | |
Private Tuin | Ja | |
Poort | Ja | |
Nabij Scholen | Ja | |
Nabij Commercieel centrum | Ja | |
Terras | Ja | |
Douche schermen | Ja | |
Pré installatie airco | Ja | |
Elektrische rolluiken | Ja | |
Led verlichting buiten | Ja | |
Led verlichting binnen | Ja | |
privé parkeerplaats | Ja | |
Telefoon Data aansluiting | Ja | |
Videofonie | Ja | |
Inbouwkasten | Ja | |
Badkamer spiegels | Ja | |
Pre installatie keuken | Ja | |
Nabij kinder speeltuin | Ja | |
Berging | Ja | |
Uitzicht tuin | Ja | |
Golfresort afstand in km | 10-15 km | |
Ziekenhuis afstand in km | 10-20 km | |
Luchthaven Alicante afstand | 40-50 km | |
Luchthaven Murcia afstand | 50+ km | |
Ontspanning ruimte buiten | Ja | |
Hangend toilet | Ja | |
Hangend badkamer meubel | Ja | |
Zonnepanelen | Ja | |
Uitzicht op het zwembad | Ja | |
Badkamer meubel en spiegels | Ja | |
Gepantserde toegangsdeur met veiligheidsslot | Ja | |
Hoogwaardige afwerking | Ja | |
Aerothermische boiler | Ja | |
Dressing | Ja | |
Extra grote ramen uitkijkend op tuin en zwembad | Ja | |
Energielabel | B | |
Afgewerkte badkamer | Ja |
Meer info?
Beschikbare documenten
Ontdek wat we nog meer voor jou in petto hebben!

Natura Park IV - Luxe villa in Oasis, La Marina
Project: Natura Park Fase 4 - Luxe villa's in La Marina
Stad: La Marina- Alicante
3   2     90 m²   90 m²  

Bovenste bungalow met solarium
Project: Residentie Victor Manuel 2 in Pilar de la Horadada
Stad: Pilar de la Horadada - Alicante
3   2   90 m²   15 m²  

Villa op ruim perceel met zwembad én solarium
Project: Residentie Castrum - ruime villa's in Dolores
Stad: Dolores
3   2     183 m²   85 m²  

Lola-Formentera De Segura
Project: Lola-Formentera De Segura
Stad: Formentera del segura
3   2     157 m²   135 m²  

Luxe nieuwbouw villa's in Benijófar
Project: Luxe nieuwbouw villa's in Benijófar, Costa Blanca
Stad: Benijófar-Alicante
3   3     138 m²   97 m²  

Villa in Benijofar met onderbouw en solarium
Project: Residentie villas Benijofar
Stad: Benijófar-Alicante
3   3     141 m²   31 m²  

Prachtige losstaande villa op groot perceel
Project: Residentie Numa 3 in Ciudad Quesada
Stad: Ciudad Quesada
3   3     258 m²   20 m²  

Halfvrijstaande woning met privézwembad
Project: Residentie Orquidea in charmant stadje Almoradi
Stad: Almoradi
3   3     134 m²   20 m²  

Halfvrijstaande woning in Gran Alacant Fase 2
Project: Bahia Gran Alacant Adosados Fase 2
Stad: Gran Alacant
3   2   96 m²   33 m²  

Halfvrijstaande woning in Natura El Pinet
Project: Residentie Natura El Pinet M17 in La Marina
Stad: La Marina- Alicante
3   3   98 m²   90 m²  

Bungalow op de bovenste verdieping in Torrevieja
Project: Residentie Nature views 2
Stad: Torrevieja-Alicante
2   2   78 m²   20 m²  

AN Home Appartement in Torrevieja
Project: AN Home appartementen vlakbij zee in Torrevieja
Stad: Torrevieja-Alicante
1   1     55 m²   8 m²  
Lees mee met onze nieuwste blogs!

Financiering van jouw droomhuis in Spanje
Overweegt je een woning in Spanje te kopen?
Hier zijn zeven belangrijke punten om rekening mee te houden:
- Maximaal te lenen bedrag: je kan tot 60-70% van de getaxeerde waarde van de woning lenen.
- Zorg ervoor dat je over minimaal 50% eigen vermogen beschikt.
- Max...
Martine